Top.Mail.Ru
На Метре реклама - только нормальная. Никакого шок-контента.
Помогайте независимому ресурсу, как он помогает вам. Удачи!
Средняя цена м² · Новостройки
177 600 ₽/м²
↑ 7,44% за 12 мес.
Средняя цена м² · Вторичка
141 146 ₽/м²
↑ 11,5% за 12 мес.
Продажи новостроек · Мар 2026
2 396 сделок
↓ 5,96% к февралю
Вторичка, сделки · Мар 2026
10 947 сделок
↑ 7,98% к февралю
Ключевая ставка ЦБ РФ
15 %
↓ снижение
Новостройки Котт. посёлки Объявления Динамика цен и сделок

Продажа квартиры: г. Арамиль, ул. Космонавтов, 7 (городской округ Арамильский)

  • опубликовано 14.09.2024 , обновлено 29.08.2025
  • 39
Кадастровый номер:66:33:0101003:1878
Рынок:вторичный
Срок сдачи: 2015 года
Количество комнат:1
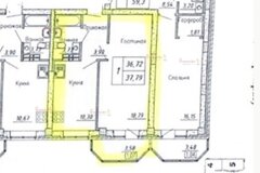
Общая площадь:36 м2
Жилая площадь:19 м2
Площадь кухни:10 м2
Этаж/Этажность дома:6 / 9
Санузел:совмещенный
Отделка:евроремонт
Год постройки:2015
Состояние:хорошее
Цена:
3 900 000
Объявление снято с публикации
Коммунальные платежи:оплачиваются отдельно
Ипотека:возможна

Объект № 186201. Подходит под семейную ипотеку!
Продаётся уютная однокомнатная квартира площадью 36.2 квадратных метров на шестом этаже девятиэтажного кирпичного дома, построенного в 2015 году. Дом расположен по адресу: город Арамиль, улица Космонавтов, 7.
В квартире косметический ремонт, что позволит новым владельцам сразу заселиться без дополнительных вложений.

Жилая площадь составляет 19 квадратных метров, а кухня 10 квадратных метров-достаточно места для комфортного проживания. Также есть балкон с видом на благоустроенный двор.
Для молодых семей особенно актуально наличие детской и спортивной площадок прямо во дворе дома, где можно проводить время на свежем воздухе всей семьей. Рядом с домом расположены школа и детский сад, что значительно упрощает жизнь родителям.
Для автовладельцев предусмотрена парковка во дворе, что позволяет избежать трудностей с поиском места для автомобиля.

Безопасность жильцов обеспечивается наличием домофона.
Эта квартира станет отличным выбором для тех, кто ценит комфорт, удобство и качество жизни. Приглашаем вас ознакомиться с этим предложением и убедиться во всех преимуществах данной квартиры лично. ***Гарантийный сертификат «Защита собственности» по данному объекту в подарок***

Объявление снято с публикации

Ипотечный калькулятор

лет
%
Сумма кредита
3900000 ₽
Платеж
22 540 ₽

Актуальные предложения в этом доме

  • 3-к квартира, Космонавтов, 7

    • 82.5 м2
    • 5/9 этаж
    • Состояние:
    9 300 000 ₽ (112700 ₽/м2)
    Продается просторная 3к-квартира в кирпичном доме!Квартиру можно приобрести по семейной ипотеке со ставкой 6%!Также рассмотрим ОБМЕН на ДОМ!Быстрый выход на сделку и переезд! Отличное расположение:+в пешей доступности два детских сада+у дома остановка общественного транспорта+быстрый и беспрепятственный выезд на Челябинский тракт и десятиминутный трафик до Екатеринбурга - все это способствует комфортному проживанию+в ДОМЕ есть все необходимое: супермаркеты Пятерочка, Магнит Косметик, Красное и Белое, Ozon, Студия красоты, фитнес-студия, магазин товаров для дома, ательеДОМ 2015года:+собственная газовая котельная, что дает разумные коммунальные платежи и наилучший коэффициент обогрева+всего 5 квартир на этаже+грузовой лифтЗакрытый ДВОР с современной детской площадкой.В КВАРТИРЕ сделан хороший качественный ремонт, выполнена звукоизоляция+просторные раздельные комнаты+прихожая с местами для хранения+ просторная кухня+вместительная лоджия+окна на разные стороны+установлены счетчики+СУ раздельные, выполнены керамогранитом и кафельной плиткойБОНУСОМ оставим мебель.Квартира идеально подходит для большой дружной семьи.Формат Заезжай и Живи.С удовольствием покажем эту квартиру! Звоните! ID объекта в нашей базе: 13163
    размещено: 11.01.2026 , обновлено: 6.04.2026
  • 2-к квартира, Космонавтов, 7

    • 61.6 м2
    • 7/9 этаж
    • Состояние:
    6 750 000 ₽ (109600 ₽/м2)
    Предлагается к продаже двухкомнатная квартира с современным ремонтом. Комнаты изолированные 16,2 кв.м, и 17,4 кв.м. Просторная кухня 16,2 кв.м.✅ Сделан свежий качественный ремонт только что✅ Гардеробная в детской комнате✅ Шкаф-купе в прихожей✅ Вся встроенная техника на кухне: посудомойка, духовой шкаф, варочная панель, микроволновка.✅ Новые коммуникации✅ Комфортный средний этаж✅ Квартира подойдет под семейную ипотеку! Заезжайте и живите! Идеальная возможность сэкономить время и деньги на ремонте, но получить абсолютно новое жильё. Один взрослый собственник. Чистая продажа. Ипотека возможна. Рядом развитая инфраструктура района. ID объекта в нашей базе: 26212
    размещено: 27.12.2025 , обновлено: 27.03.2026
  • 3-к квартира, Космонавтов, 7

    • 90.4 м2
    • 9/9 этаж
    • Состояние:
    10 500 000 ₽ (116200 ₽/м2)
    В продаже трёхкомнатная квартира в одном из лучших ЖК г. Арамиля.Очень просторная, светлая, стильная с хорошим, качественным ремонтом.Отличная планировка сделает жизнь каждого члена семьи комфортной.Большая прихожая со встроенной гардеробной, кухня - гостинная, большой залдля семейных посиделок и приёма гостей и спальная комната, раздельные ваннаякомната и туалет, большая панорамная лоджия. Окна квартиры выходят на 2 стороны. Рядом с домом вся необходимая для комфортной жизни инфраструктура.Остановка общественного транспорта так же рядом с домом.Ожидаем Вас на просмотр!Подходит под семейную ипотеку. ID объекта в нашей базе: 12536
    размещено: 21.11.2025 , обновлено: 18.04.2026
  • 3-к квартира, Космонавтов, 7

    • 76.8 м2
    • 5/9 этаж
    8 390 000 ₽ (109200 ₽/м2)
    Арт. 117123926 Продается просторная трехкомнатная квартира в современном доме в городе Арамиль. Развитая инфраструктура города позволит не выезжая жить любой семьей - близость магазинов, наличие школ, детских садов, современной больницы. Остановки транспорта в шаговой доступности. Квартира с капитальным ремонтом, сделано все красиво, добротно, для себя. Просторная кухня-столовая станет прекрасным местом, где соберется за столом вся семья. Высокий этаж – делает квартиру очень светлой и тихой. Приезжайте и примеряйте квартиру для своей семьи!
    размещено: 18.09.2025 , обновлено: 18.04.2026

История предложений в этом доме

объявление снято с публикации в продаже комнат площадь этаж цена,
г. Арамиль, ул. Космонавтов, 7 (городской округ Арамильский) - фото квартиры 4 марта 2026 90 дн. 1 48.8 2/9 5 420 000
г. Арамиль, ул. Космонавтов, 7 (городской округ Арамильский) - фото квартиры 1 ноября 2025 90 дн. 1 36 9/5 4 699 000
г. Арамиль, ул. Космонавтов, 7 (городской округ Арамильский) - фото квартиры 30 сентября 2025 90 дн. 1 33 2/10 3 800 000
г. Арамиль, ул. Космонавтов, 7 (городской округ Арамильский) - фото квартиры 18 сентября 2025 90 дн. 1 48.3 8/9 4 890 000
г. Арамиль, ул. Космонавтов, 7 (городской округ Арамильский) - фото квартиры 22 июля 2025 90 дн. 1 30.7 2/2 2 800 000
г. Арамиль, ул. Космонавтов, 7 (городской округ Арамильский) - фото квартиры 17 апреля 2025 90 дн. 1 36.3 1/9 3 700 000
г. Арамиль, ул. Космонавтов, 7 (городской округ Арамильский) - фото квартиры 31 марта 2025 90 дн. 2 77 4/9 6 400 000
г. Арамиль, ул. Космонавтов, 7 (городской округ Арамильский) - фото квартиры 22 октября 2024 90 дн. 1 36.2 8/9 3 650 000
г. Арамиль, ул. Космонавтов, 7 (городской округ Арамильский) - фото квартиры 14 ноября 2025 90 дн. 1 37.3 8/9 4 200 000
г. Арамиль, ул. Космонавтов, 7 (городской округ Арамильский) - фото квартиры 17 февраля 2024 90 дн. 1 36 1/9 3 100 000
г. Арамиль, ул. Космонавтов, 7 (городской округ Арамильский) - фото квартиры 30 октября 2023 90 дн. 2 43.7 8/9 4 050 000
г. Арамиль, ул. Космонавтов, 7 (городской округ Арамильский) - фото квартиры 29 декабря 2023 90 дн. 1 36.3 5/9 3 400 000
г. Арамиль, ул. Космонавтов, 7 (городской округ Арамильский) - фото квартиры 23 июня 2023 90 дн. 1 34.5 4/9 3 100 000
г. Арамиль, ул. Космонавтов, 7 (городской округ Арамильский) - фото квартиры 12 февраля 2023 90 дн. 1 48 4/6 3 700 000
г. Арамиль, ул. Космонавтов, 7 (городской округ Арамильский) - фото квартиры 5 марта 2023 90 дн. 1 48.4 6/9 3 500 000
г. Арамиль, ул. Космонавтов, 7 (городской округ Арамильский) - фото квартиры 15 марта 2023 90 дн. 3 82.58 5/9 6 590 000
г. Арамиль, ул. Космонавтов, 7 (городской округ Арамильский) - фото квартиры 7 февраля 2023 90 дн. 1 33.3 1/9 2 550 000
г. Арамиль, ул. Космонавтов, 7 (городской округ Арамильский) - фото квартиры 6 января 2023 90 дн. 1 47.5 8/9 3 400 000
г. Арамиль, ул. Космонавтов, 7 (городской округ Арамильский) - фото квартиры 6 января 2023 90 дн. 2 47.5 8/9 3 400 000
г. Арамиль, ул. Космонавтов, 7 (городской округ Арамильский) - фото квартиры 11 октября 2022 90 дн. 3 82.58 5/9 6 590 000
г. Арамиль, ул. Космонавтов, 7 (городской округ Арамильский) - фото квартиры 13 сентября 2022 90 дн. 2 49 2/9 3 650 000
г. Арамиль, ул. Космонавтов, 7 (городской округ Арамильский) - фото квартиры 19 апреля 2022 90 дн. 2 57 5/9 4 300 000
г. Арамиль, ул. Космонавтов, 7 (городской округ Арамильский) - фото квартиры 1 мая 2022 90 дн. 1 37 2/9 3 050 000
г. Арамиль, ул. Космонавтов, 7 (городской округ Арамильский) - фото квартиры 19 ноября 2021 90 дн. 1 36 2/9 2 650 000
г. Арамиль, ул. Космонавтов, 7 (городской округ Арамильский) - фото квартиры 16 ноября 2021 90 дн. 1 36.3 4/9 2 380 000
г. Арамиль, ул. Космонавтов, 7 (городской округ Арамильский) - фото квартиры 19 ноября 2021 90 дн. 3 76.5 2/9 4 100 000
г. Арамиль, ул. Космонавтов, 7 (городской округ Арамильский) - фото квартиры 13 ноября 2021 90 дн. 3 76.7 3/9 4 250 000
г. Арамиль, ул. Космонавтов, 7 (городской округ Арамильский) - фото квартиры 4 июня 2021 90 дн. 4 84 3/10 4 300 000
г. Арамиль, ул. Космонавтов, 7 (городской округ Арамильский) - фото квартиры 29 мая 2021 90 дн. 3 84 3/10 4 300 000
г. Арамиль, ул. Космонавтов, 7 (городской округ Арамильский) - фото квартиры 21 апреля 2021 90 дн. 3 84 3/10 4 300 000

Похожие предложения о продаже квартир в г. Арамиль

  • 1-к квартира, Рабочая, 128

    • 29 м2
    • 3/4 этаж
    • Состояние: удовлетворительное
    2 800 000 ₽ (96600 ₽/м2)
    Объект № 198556. Продаётся уютная квартира площадью 29 квадратных метров на третьем этаже четырёхэтажного кирпичного дома, расположенного по адресу: город Арамиль, Рабочая улица, 128. Жилая площадь составляет 6 квадратных метров, а кухня занимает целых 17 квадратных метров, что позволит вам комфортно разместиться и готовить любимые блюда. Квартира состоит из одной комнаты и кухни, благодаря чему каждый член семьи сможет найти своё личное пространство. Квартира под ремонт. Также стоит отметить, что в квартире проведён газ и установлен совмещённый санузел. Из окон открывается приятный вид на тихий и зелёный двор, где расположены детская и спортивная площадки – идеальное место для отдыха и развлечений всей семьёй. Для автовладельцев предусмотрена парковка во дворе. Район обладает развитой инфраструктурой: рядом находятся детские сады Magic Club, учебный центр, «Золотой ключик», детский сад №7, а также средняя школа №4. Комфорт дополняется близостью продуктовых магазинов «Красное&Белое» и других торговых точек, где можно приобрести всё необходимое. Для любителей посидеть в приятной атмосфере есть кафе и рестораны, такие как «Гюмри» и шашлычный двор. Выгода при работе с ГК Новоселе: полная организационная поддержка, как продавца, так и покупателя (все бумаги за вас соберем, поможем с ипотекой, опекой), присутствие на сделке на всех этапах, юридическое сопровождение всех участников, подготовка документов и консультирование, ГК Новосел 25 лет на рынке, члены Уральской палаты недвижимости и Российской гильдии риелторов. ***Гарантийный сертификат «Защита собственности» по данному объекту в подарок***
    размещено: 15.04.2026 , обновлено: 16.04.2026
  • 1-к квартира, Космонавтов, 15 к 1

    • 27 м2
    • 1/12 этаж
    • Состояние: удовлетворительное
    3 990 000 ₽ (147800 ₽/м2)
    ID в ИМЛС: 47045249 Агентство Дом Недвижимости продает великолепную студию в городе Арамиль по улице Космонавтов, д. 15\1. Дом относится к типу — спецпроект 2018 года постройки, кирпичный. Тихий двор и благополучные соседи — ваш ключ к размеренной и спокойной жизни. Студия расположена на 1-м этаже, но это никоим образом не должно смущать вас, ведь двор и подьезд под видеонаблюдением, а значит, покой и безопасность будут гарантированы. Дом состоит из 12 этажей - это намного комфортнее, т.к. количество соседей намного меньше, чем в 25-ти этажных "муравейниках"! Подвал в доме теплый, сухой, без запахов, протечек и насекомых. Согласитесь, что это очень важно для квартиры на первом этаже. Рядом с домом медицинский центр, круглосуточный магазин, в котором всегда можно приобрести наивкуснейшую выпечку и другие товары народного потребления, через дорогу – управляющая компания, вблизи Монетка, Пятерочка, Магнит. Площадь жилого помещения 26.7 кв.м., планировка правильной формы и наличие двух окон в квартире дают возможность сделать зонирование на кухонную зону и зону спальни, а большой санузел позволяет использовать помещение по максимуму. В квартире сделан косметический ремонт: натяжные потолки во всей квартире, на полу ламинат, в санузле кафель и душевая кабина, в подарок покупателю остается следующая мебель: кровать, раскладной диван, компьютерный стол, кухонный стол, полностью зеркальный встроенный шкаф-купе до потолка в коридоре, остальная мебель обсуждается с покупателем дополнительно. Данный объект прекрасно подойдет как одинокому человеку, так и молодой паре, делающей первые шаги семейной жизни. Во дворе есть детский сад, больница, рядом остановки транспорта. Юридические аспекты: - 1 взрослый собственник и 1 прописанный; - приобретение было не в браке; - паспорт продавца проверен; - продавец не признан банкротством; - долгов по ССП не имеет; - готовы рассмотреть ипотеку и сертификаты; Купить, продать квартиру с Агенством Дом Недвижимости быстро, легко и безопасно!
    размещено: 09.04.2026 , обновлено: 10.04.2026

    1-к квартира, Новая, 9

    • 32.5 м2
    • 4/5 этаж
    • Состояние: хорошее
    3 000 000 ₽ (92300 ₽/м2)
    В продаже уютная однокомнатная квартира с косметическим ремонтом в Арамиле. Все готово для комфортного проживания - заезжай и живи!В пешей доступности магазины. аптеки , остановки.Квартира юридически чистая, один собственник, быстрый выход на сделку.Звоните , приходите на просмотр! ID объекта в нашей базе: 12391
    размещено: 23.03.2026 , обновлено: 13.04.2026
  • 1-к квартира, Космонавтов, 11

    • 35 м2
    • 5/6 этаж
    • Состояние: хорошее
    3 750 000 ₽ (107100 ₽/м2)
    Объект № 198100. Продаётся уютная однокомнатная квартира площадью 35 квадратных метров на пятом этаже шестиэтажного кирпичного дома, расположенного по адресу: город Арамиль, улица Космонавтов, дом 11. Жилая площадь составляет комфортные 20 квадратных метров, а кухня занимает 9 квадратных метров, предоставляя достаточно места для приготовления и приёма пищи. Из окон открывается приятный вид на тихий двор, где расположены детская и спортивная площадки – идеальное место для отдыха и развлечений всей семьи. Квартира оснащена балконом, который можно обустроить под личный уголок для чтения книг или просто наслаждения чашечкой кофе на свежем воздухе. В квартире выполнен косметический ремонт, что позволит новым владельцам сразу же заселиться без дополнительных вложений. Совмещённый санузел оборудован всем необходимым для комфортного проживания. Для автовладельцев предусмотрена парковка во дворе дома. Район обладает развитой инфраструктурой: рядом находятся детские сады «Дарина», «Школа развития», «Сказка» и детский сад №8, а также супермаркеты и магазины, среди которых «Елисеевский». Супермаркет обеспечит вас всеми необходимыми продуктами питания и товарами повседневного спроса. Кроме того, поблизости функционируют фитнес-центры и торговые центры, а также салоны красоты, например, «Beauty club Elena Aleksandrova», и аптеки «Эйва». Этот вариант станет прекрасным выбором для тех, кто ценит комфорт, уединённость и удобство расположения своего жилья. Выгода при работе с ГК Новоселе: полная организационная поддержка, как продавца, так и покупателя (все бумаги за вас соберем), присутствие на сделке на всех этапах, юридическое сопровождение сделки как продавца, так и покупателя (подготовка документов и консультирование), ГК Новосел 25 лет на рынке, выдает гарантийный сертификат на сделку, подтверждённый Уральской палатой недвижимости. ***Гарантийный сертификат «Защита собственности» по данному объекту в подарок***
    размещено: 21.03.2026 , обновлено: 7.04.2026
  • 1-к квартира, 1 Мая, 69А

    • 30 м2
    • 8/10 этаж
    • Состояние: хорошее
    3 950 000 ₽ (131700 ₽/м2)
    Объект № 197703. Продаётся уютная однокомнатная квартира площадью 30.1 квадратных метров на восьмом этаже десятиэтажного панельного дома, расположенного по адресу: город Арамиль, улица 1 Мая, дом 69а. Строение выполнено в 2010 году и окружено благоустроенной территорией с детской и спортивной площадками для активного отдыха всей семьи. Квартира порадует вас качественным дизайнерским ремонтом, который выполнен с учетом современных тенденций и обеспечит комфортное проживание без дополнительных вложений. Жилая площадь составляет 16 квадратных метров, кухня занимает 5 квадратных метров, предоставляя достаточно места как для приготовления пищи, так и для приятных семейных ужинов. Особое внимание заслуживает балкон, открывающий приятный вид на тихий двор, где можно наслаждаться чашкой кофе на свежем воздухе в любое время года. Санузел совмещённый, что является удобным решением для экономии пространства. Для автовладельцев предусмотрена охраняемая парковка во дворе, обеспечивающая спокойствие за сохранность вашего транспортного средства. Расположение дома позволяет насладиться спокойствием удаленности от городской суеты, при этом все необходимые объекты инфраструктуры находятся рядом: учитесь и воспитывайте детей в хороших школе и детском саду, занимайтесь спортом в фитнес-центре, отдыхайте в парке, совершайте покупки в торговом центре и супермаркете «Магнит», а также заботьтесь о своём здоровье благодаря близости аптеки «Магнит Аптека». Выгода при работе с ГК Новоселе: полная организационная поддержка, как продавца, так и покупателя (все бумаги за вас соберем, поможем с ипотекой, опекой), присутствие на сделке на всех этапах, юридическое сопровождение всех участников, подготовка документов и консультирование, ГК Новосел 25 лет на рынке, члены Уральской палаты недвижимости и Российской гильдии риелторов. Приглашаем на просмотр этой замечательной квартиры, которая может стать вашим новым домом уже сегодня! ПОДХОДИТ ПОД СЕМЕЙНУЮ ИПОТЕКУ. ТОРГ. ***Гарантийный сертификат «Защита собственности» по данному объекту в подарок***
    размещено: 01.03.2026 , обновлено: 3.04.2026

    1-к квартира, 1 Мая, 71А

    • 35.5 м2
    • 7/9 этаж
    • Состояние: плохое
    3 850 000 ₽ (108500 ₽/м2)
    ID объекта в нашей базе: 5194
    размещено: 29.01.2026 , обновлено: 12.04.2026

Приоритет

Увеличивает просмотры в 3 раза

Ваше объявление показывается в списке выше обычных объявлений. подключить