На Метре реклама - только нормальная. Никакого шок-контента.
Помогайте независимому ресурсу, как он помогает вам. Удачи!
Новостройки Котт. посёлки Объявления Динамика цен и сделок

Продажа квартиры: Екатеринбург, ул. Татищева, 16 (ВИЗ)

  • опубликовано 27.09.2024 , обновлено 18.10.2025
  • 217
Рынок:вторичный
Срок сдачи: 1973 года
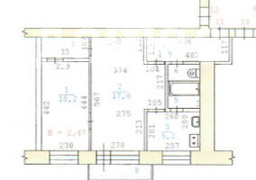
Количество комнат:2
Общая площадь:43.4 м2
Жилая площадь:27.8 м2
Площадь кухни:5.2 м2
Этаж/Этажность дома:4 / 5
Санузел:раздельный
Отделка:требует ремонта
Год постройки:1973
Балкон/лоджия:балкон
Состояние:удовлетворительное
Цена:
5 200 000
Объявление снято с публикации
Коммунальные платежи:оплачиваются отдельно

!! Внесен аванс!!!Удобное расположение дома и хорошая планировка квартиры ждет нового собственника.ДОМ. Кирпичный дом, построен качественно, хороший подъезд и соседи. Очень теплый дом, толстые стены, хорошее обслуживание.КВАРТИРА. Удобная планировка и отличный вид из окна на центральную улицу города и новый жилой комплекс Нагорный. Квартира очень светлая и теплая с большими окнами. Квартира чистая и благоприятная, требуется косметический ремонт. Пол в хорошем состоянии фанера и линолеум, не скрипит. Стены имеют хорошую геометрию. Очень тихо в квартире - уличный шум не беспокоит и качество дома с хорошей звукоизоляцие от соседей. Продается без дивана.ИНФРАСТРУКТУРА. Детские сады в шаговой доступности, школа новая в 3х минутах, магазины, фитнес-зал, кофейни. Соседний ЖК элит-класса создает современную и динамичную атмосферу. Рядом центральный стадион, в 5 минутах оборудованный парк.ТРАНСПОРТ. Очень удобная развязка и выезды, весь транспорт в шаговой доступности - автобус, трамвай, троллейбус. Метро Площадь 1905 года в 20 минутах. Юридическая сторона объекта. В собственности более 5 лет, не в залоге, без обременений. Интеллигентные и порядочные собственники. Быстрый выход на сделку, никто не проживает.
ID объекта в нашей базе: 6961

Объявление снято с публикации

Ипотечный калькулятор

лет
%
Сумма кредита
5200000 ₽
Платеж
22 540 ₽

Актуальные предложения в этом доме

  • 1-к квартира, Татищева, 16

    • 55.6 м2
    • 3/16 этаж
    • Состояние:
    13 500 000 ₽ (242800 ₽/м2)
    Продаётся уютная и светлая однокомнатная квартира общей площадью 55,6 м² на 3-м этаже в бизнес-квартале «Нагорный» (ул. Нагорная, 18). Квартира идеально подходит как для комфортного проживания, так и для выгодной аренды — просторная планировка, большие окна и шикарный вид на будущую аллею, которая станет новым благоустроенным местом для прогулок и отдыха. Преимущества квартиры и комплекса: Просторная и функциональная площадь — 55,6 м² (удобная зонировка под кухню-гостиную и отдельную спальную зону). Этажность — 3-й этаж: удобный уровень (комфорт подъёма/спуска, хорошая защищённость и вид). Вид из окна — на будущую аллею (перспективное благоустройство территории — дополнительная эстетика и тишина). ЖК бизнес-класса: качественная архитектура, стильные холлы и ресепшн в гостиничном стиле. Развитая внутренняя инфраструктура: консьерж, фитнес-центр с бассейном, ресторан/кафе, супермаркет на первых этажах. Подземный паркинг и кладовые помещения — удобно для автовладельцев и хранения. Закрытая охраняемая территория с детскими и спортивными площадками — безопасная среда для семьи. Дополнительно: квартира подойдёт для современного ремонта (в комплексе распространена продажа квартир в формате White Box — хороший старт для дизайна по вкусу покупателя). Адрес: г. Екатеринбург, ул. Нагорная, 18 (ЖК «Нагорный») Площадь: 55,6 м² Этаж: 3/16 Вид из окон: на будущую аллею (потенциал для тихих прогулок и зелёного вида) Цена: 13 000 000 руб. Звоните/пишите для просмотра и подробной информации — организуем оперативный показ и подготовим полный пакет документов. ID объекта в нашей базе: 4617
    размещено: 08.09.2025 , обновлено: 20.10.2025

История предложений в этом доме

объявление снято с публикации в продаже комнат площадь этаж цена,
Екатеринбург, ул. Татищева, 16 (ВИЗ) - фото квартиры 26 декабря 2024 90 дн. 1 30 1/5 3 590 000
Екатеринбург, ул. Татищева, 16 (ВИЗ) - фото квартиры 22 марта 2024 90 дн. 1 29 4/5 4 100 000
Екатеринбург, ул. Татищева, 16 (ВИЗ) - фото квартиры 24 июля 2023 90 дн. 1 29.7 1/5 3 300 000
Екатеринбург, ул. Татищева, 16 (ВИЗ) - фото квартиры 21 апреля 2023 60 дн. 2 42.8 3/5 4 150 000
Екатеринбург, ул. Татищева, 16 (ВИЗ) - фото квартиры 10 февраля 2023 90 дн. 2 43 4/5 4 300 000
Екатеринбург, ул. Татищева, 16 (ВИЗ) - фото квартиры 13 декабря 2022 90 дн. 1 29.7 1/5 2 900 000
Екатеринбург, ул. Татищева, 16 (ВИЗ) - фото квартиры 21 октября 2022 90 дн. 1 29.7 1/5 3 200 000
Екатеринбург, ул. Татищева, 16 (ВИЗ) - фото квартиры 8 октября 2022 90 дн. 1 29.7 1/5 3 420 000
Екатеринбург, ул. Татищева, 16 (ВИЗ) - фото квартиры 3 февраля 2022 90 дн. 1 30 3/5 3 600 000
Екатеринбург, ул. Татищева, 16 (ВИЗ) - фото квартиры 20 декабря 2021 90 дн. 2 42.9 3/5 3 650 000
Екатеринбург, ул. Татищева, 16 (ВИЗ) - фото квартиры 14 мая 2021 90 дн. 1 30 3/5 2 600 000
Екатеринбург, ул. Татищева, 16 (ВИЗ) - фото квартиры 12 октября 2021 90 дн. 2 42.9 3/5 3 500 000
Екатеринбург, ул. Татищева, 16 (ВИЗ) - фото квартиры 21 июля 2020 90 дн. 2 43 5/5 3 200 000
Екатеринбург, ул. Татищева, 16 (ВИЗ) - фото квартиры 23 июня 2020 90 дн. 25 43 2/5 3 100 000
7 июня 2014 61 дн. 2 45 5/5 3 250 000

Похожие предложения о продаже квартир в Екатеринбурге (ВИЗ)

  • 2-к квартира, Викулова, 35/3

    • 44 м2
    • 3/5 этаж
    • Состояние: плохое
    4 500 000 ₽ (102300 ₽/м2)
    Доброго времени! Продаем двухкомнатную квартиру на 3 этаже пятиэтажного дома в центре Виза. Рядом остановка общественного транспорта автобус, троллейбус, трамвай, школы, детские сады.Квартира под ремонт, хорошая планировка, комнаты на разные стороны.Один взрослый собственник, звоните, всё обсудим! Чистая продажа!!!! Торг!!! Кадастровый номер 66:41:0303066:2917. ID объекта в нашей базе: 4788
    размещено: 23.10.2025 , обновлено: 25.10.2025
  • 2-к квартира, Отрадная, 1

    • 46 м2
    • 21/25 этаж
    • Состояние: идеальное
    6 700 000 ₽ (145700 ₽/м2)
    Отрадная 1/2, ВИЗ Новая видовая квартира в современном ЖК Сюжеты (2-й дом), готовая под чистовой ремонт на ваш вкус. КВАРТИРА: Лучшая планировка евро-двушки в этом доме. С 21 этажа прекрасный панорамный вид на Ю-Запад (видно даже Верх-Исетский пруд) - общая площадь 45,3 кв.м; - плюс лоджия 3,8 кв.м. - кухня-гостиная 21 кв.м. с выходом на лоджию - спальня 11,2 кв.м. - раздельный c/узел 3,4 + 2 кв.м. (можно объединить); - большая гардеробная у входа - отделка под чистовую - стены выровнены под обои/покраску, потолок подготовлен, проведены электрические и сантехнические коммуникации. ДОМ: - монолитно-кирпичный дом 2024 года постройки. 25 этажей, подземный паркинг, кладовые, видеонаблюдение, закрытый двор без машин, ландшафтный дизайн, детские и спортивные площадки. В доме большая часть 1-2 комн. квартир, студий не много. ???? ТЕХНИЧЕСКИЕ ПАРАМЕТРЫ ДОМА: - фасад из износостойких и энергоэффективных материалов - улучшенная шумоизоляция - автоматическая телеметрия (передача показаний счетчиков тепла/воды/эл-ва - система отопления с повышенной теплоотдачей - армированный 5-камерный профиль окон с режимом микропроветривания - технологичные скоростные лифты KOYO (доступ в паркинг) - уютные холлы - помещения для хранения колясок и велосипедов ☘️⛽️ ИНФРАСТРУКТУРА: Жилой комплекс расположен в экологически чистом, прилегающем к центру Верх-Исетском районе. В шаговой доступности находятся детские сады, школы, магазины и ТРЦ «Радуга Парк» с парком и разнообразной инфраструктурой. Рядом остановки общественного транспорта и трамвайная линия, обеспечивающая удобный доступ к центру города (15 минут). Также вблизи въезд на объездную дорогу, что значительно облегчает доступ в любой район города. ???? Квартира в собственности 1 физического лица, обременений нет, чистая продажа, документы готовы. Возможна продажа в ипотеку. Показ в удобное для вас время.
    размещено: 06.06.2025 , обновлено: 22.10.2025
  • 2-к квартира, Токарей, 56/1

    • 43.3 м2
    • 1/5 этаж
    • Состояние: хорошее
    5 000 000 ₽ (115500 ₽/м2)
    Объект № 195085. Готова к продаже светлая 2-комнатная квартира в тихом районе с хорошей инфраструктурой и транспортной доступностью. Просторная планировка с двумя изолированными комнатами. Комфортная кухня с гарнитуром Мария с встроенной техникой. Отличные пластиковые окна с решётками для безопасности. Шум от дороги практически не слышен благодаря продуманной планировке и шумоизоляции. Шкаф-купе в коридоре, достаточно места для вещей. Чистый подъезд, спокойные тихие соседи, дружелюбная семейная атмосфера. Тихий двор, безопасная и спокойная атмосфера для семей. Прямой выход на транспорт: до ближайшей остановки всего 50 м, удобная транспортная доступность во все концы города. В шаговой доступности вся необходимая инфраструктура: школы, детские сады, больницы, аптеки, магазины. В окрестностях набережная Верх-Исетского пруда с пляжем и яхт-клубом — прекрасные места для отдыха и прогулок. Идеально подходит для семей или тех, кто ценит комфорт и инфраструктуру в шаговой доступности. Готовы организовать просмотр в удобное для вас время. Звоните, отвечу на все вопросы и помогу с оформлением сделки. ***Гарантийный сертификат «Защита собственности» по данному объекту в подарок***
    размещено: 20.10.2025 , обновлено: 25.10.2025
  • 2-к квартира, Репина, 105

    • 51 м2
    • 9/12 этаж
    • Состояние: хорошее
    6 300 000 ₽ (123500 ₽/м2)
    Продается светлая,уютная,теплая квартира,с отличной планировкой. В квартире произведена перепланировка, увеличена кухня. перепланировка узаконена . Идеальное расположение: рядом ТРЦ" Радуга Парк", в пешей доступности ТРЦ" Мега. " Удобная транспортная развязка. Кухонный гарнитур остается покупателю. Один собственник. Обмен. Долгов и обременения нет. Показываем в любое время. ID объекта в нашей базе: 1516
    размещено: 16.10.2025 , обновлено: 22.10.2025
  • 2-к квартира, Крауля, 82

    • 43.1 м2
    • 5/5 этаж
    • Состояние: хорошее
    4 850 000 ₽ (112500 ₽/м2)
    15 мин от Центра, уютная и теплая. Планировка на разные стороны, изолированная. Много лет в одних руках. Без долгов и обременений. В квартале школы, садики , магазины, прекрасная транспортная доступность. Быстрый выход на сделку. ID объекта в нашей базе: 1075
    размещено: 15.10.2025 , обновлено: 23.10.2025

    2-к квартира, Заводская, 43

    • 43 м2
    • 1/5 этаж
    • Состояние: идеальное
    5 250 000 ₽ (122100 ₽/м2)
    Продается двухкомнатная квартира!Расположение:​ВИЗ м-н, Верх-Исетский районКвартира:- сделан полный ремонт,- окна заменили,- новая проводка и трубы,- прекрасная планировка 2 изолированные комнаты, кухня. - готовы оставить частично мебель и технику .Дом:- придомовая парковкаВ подъезде:- доступ только через дверь с видео домофоном,Во дворе:- двор с детскими площадками,Инфраструктура:-рядом школы, детский сады прямо во дворе,-множество магазинов,-центр 10мин,Прочее:-Один собственник,-Ситуация обмен,-Обременений нет,-Готовы к диалогу.Дополнительная информация:Просмотр по договоренности. ID объекта в нашей базе: 4716
    размещено: 07.10.2025 , обновлено: 20.10.2025

    2-к квартира, Викулова, 48

    • 52.6 м2
    • 7/14 этаж
    6 670 000 ₽ (126800 ₽/м2)
    ПРОДАЕТСЯ полноценная, теплая и очень уютная двухкомнатная квартира с ремонтом. Комфортный 7-й этаж, потолки оштукартурены и покрашены, лоджия застеклен а, обшита вагонкой, установлен двух-тарифный счетчик потребления электроэнергии, поменяны радиаторы, пластиковые окна. Сделан косметический ремонт. Во дворе есть места для парковки машин, всегда свободно. Рядом с домом детская поликилиника, остановка тракнспорта. Из основных ПРЕИМУЩЕСТВ дома и района: - максимально удобное расположение дома в центре ВИЗа позволит Вам за минимальное количество времени добраться до центра. Общественный транспорт на расстоянии 50 м от подъезда; - прекрасно развитая инфраструктура района (до ТЦ МЕГА/ТЦ Радуга Парк на автобусе 15-20 мин, на автомобиле с учётом новых развязок всего 7-10 мин. В шаговой доступности многочисленные продуктовые и продовольственные магазины, детские сады, школы). ВАМ В ПОДАРОК с радостью оставим: кухонный гарнитур. Ипотека возможна . Приезжайте на просмотр! Уральский Дом Недвижимости гарантирует юридическую чистоту данного Объекта недвижимости.
    размещено: 06.10.2025 , обновлено: 22.10.2025

    2-к квартира, Викулова, 32

    • 47 м2
    • 4/12 этаж
    • Состояние: плохое
    4 995 000 ₽ (106300 ₽/м2)
    Объект № 194698. Продается или меняется двухкомнатная квартира. Частично сделан ремонт: установлены пластиковые окна, поменяны радиаторы, в спальне выровнен пол и стены. В остальных помещениях требуется ремонт. Готовы оставить мебель и технику. Квартира в одной семье более 20 лет, один взрослый собственник, без обременений. Быстрый выход на сделку. Поможем с одобрением ипотеки по сниженной ставке. ***Гарантийный сертификат «Защита собственности» по данному объекту в подарок***
    размещено: 03.10.2025 , обновлено: 23.10.2025

    2-к квартира, Мичурина, 47

    • 42.3 м2
    • 1/5 этаж
    5 400 000 ₽ (127700 ₽/м2)
    Арт. 118687582 Продается 2-комнатная квартира в центре Екатеринбурга Предлагаем вам приобрести уютную и светлую двухкомнатную квартиру в самом сердце города Екатеринбург. Данная квартира обладает всеми необходимыми условиями для комфортной жизни. Преимущества квартиры: - Пластиковые Окна выходят во двор, обеспечивая тишину и спокойствие даже в шумном городе. - Все коммуникации обновлены: заменены трубы водоснабжения и установлена новая медная электрическая проводка. - Установлены качественные пластиковые окна, сохраняющие тепло зимой и прохладу летом. - Закрытая территория обеспечивает дополнительную безопасность и комфорт жителей. - Парковочные места позволяют легко разместить автомобиль рядом с домом. Инфраструктура района: - Шаговая доступность образовательных учреждений, включая школы и детские сады. - Фитнес-клубы, медицинские клиники и магазины находятся буквально в пешей доступности. - Близость музеев позволяет наслаждаться культурными мероприятиями в любое удобное время. - До Уральского гуманитарного университета всего 10 минут пешком. - Отличная транспортная развязка обеспечит быстрое перемещение по городу. Приобретение этой квартиры станет отличным решением для тех, кто мечтает жить в центре крупного мегаполиса с развитой инфраструктурой и высоким уровнем комфорта. Звоните, мы организуем показ вашей будущей квартиры мечты!
    размещено: 02.10.2025 , обновлено: 8.10.2025

    2-к квартира, Металлургов, 30/2

    • 42.8 м2
    • 5/5 этаж
    • Состояние: плохое
    4 150 000 ₽ (97000 ₽/м2)
    Продам двухкомнатную квартиру ул. Металлургов, район ВИЗ.Квартира готова под ремонт, окна пластиковые вставлены, новые хорошие сейф двери, установлены. Полы стяжка залита, мусор вывезен. Возле дома прямо во дворе детский сад № 24, рядом детский сад № 13, чуть по дальше детский сад № 36.Так же рядом спорткомплекс ДЮСШ"СТАРТ". Школа № 121 № 48.Инфраструктура полностью развитая. Рядом с нами ТЦ"МЕГА" Дом теплый, подъезд чистый, соседи хорошие!Звони, приходи, примеряй! ID объекта в нашей базе: 11756
    размещено: 29.09.2025 , обновлено: 4.10.2025

    2-к квартира, Металлургов, 42

    • 43.3 м2
    • 2/5 этаж
    • Состояние: удовлетворительное
    4 600 000 ₽ (106200 ₽/м2)
    Продается 2х комнатная квартира, 2 этаж. Комнаты изолированы на разные стороны света. Ванная с санузлом раздельно. Стоит новая хорошая сейф дверь, пластиковые окна, натяжной потолок. Дом находится во дворе. Ипотека возможна. Готова взять вашу недвижимость на реализацию. ID объекта в нашей базе: 8897
    размещено: 24.09.2025 , обновлено: 24.10.2025

    2-к квартира, Заводская, 34

    • 61.6 м2
    • 5/5 этаж
    6 400 000 ₽ (103900 ₽/м2)
    Арт. 117686936 Квартира в Сталинке. в Духе того времени. во дворе, всегда есть место для вашей машины. Толстые стены. высокие двери и потолки. Такая квартира исключительно для любителей... Раздельные комнаты, кухня квадратная. раздельный Сан узел И кладовая. Окна - Дерево, современное. У нас один взрослый собственник. Долгов - Нет! Хвостов, тоже нет! Возможен обмен на однокомнатную квартиру с доплатой. Остались вопросы? звоните!
    размещено: 24.09.2025 , обновлено: 23.10.2025

    2-к квартира, Малый Конный, 13

    • 44.6 м2
    • 2/5 этаж
    • Состояние: хорошее
    4 350 000 ₽ (97500 ₽/м2)
    Продаётся уютная 2-комнатная квартира у воды???? О квартире: • 2 изолированные комнаты — свобода для семьи, работы или гостей;• Полностью заменена проводка — безопасность и исправная работа домашней техники;• Новый кухонный гарнитур — готовое решение для любителей готовить;• 2-й этаж — идеально для родителей с колясками и тех, кто не любит лифты;_____ ???? Локация мечты: ✅ 100 метров до берега Верх-Исетского пруда — вечерние прогулки у воды, рыбалка и пикники;✅ 1 минута до остановки — трамвай до любой точки города;✅ Выделенная линия трамвая — никаких пробок даже в час пик!_____ ???? Дополнительные плюсы: • Своя автостоянка для жителей дома — не нужно искать место для парковки;• Квартира с ремонтом — никаких дополнительных вложений после покупки._____ Идеально для:• Семьи с детьми — парковка, транспорт и природа рядом;• Молодых пар — романтика пруда и удобная дорога на работу;• Тех, кто ценит спокойствие без отрыва от города.Квартира с хорошим ремонтом, своей парковкой и выходом к пруду. Не откладывайте решение "на завтра", звоните прямо сейчас! ID объекта в нашей базе: 189
    размещено: 22.09.2025 , обновлено: 20.10.2025

    2-к квартира, Красноуральская, 11

    • 43 м2
    • 3/4 этаж
    • Состояние: хорошее
    5 300 000 ₽ (123300 ₽/м2)
    Продается квартира в шаговой доступности от центра города. Квартира в кирпичном доме, в квартире сделана удобная перепланировка: объединенная кухня с гостинной, расширен санузел. Удачное расположение дома: шаговая доступность до центра, при этом стоит вдали от шумных и пыльных дорог. Придомовая территория закрыта. Рядом с домом расположена вся необходимая для комфортной жизни инфраструктура: детские сады, школы, магазины, транспортная доступность. Приглашаем на просмотр! ID объекта в нашей базе: 11409
    размещено: 20.09.2025 , обновлено: 25.10.2025

    2-к квартира, Викулова, 35/2

    • 43.5 м2
    • 4/5 этаж
    • Состояние: хорошее
    4 600 000 ₽ (105700 ₽/м2)
    Продаётся квартира с редкой и очень практичной планировкой «распашонка» Это не просто 2 комнаты — это изолированные спальня и гостиная/детская, что обеспечивает максимум уюта и приватности для всех. Идеально для семьи с ребёнком или пары. О квартире: Адрес: ул. Викулова, 35/2, 4 этаж. Планировка: «Распашонка» — комнаты расположены по разные стороны от входа, что очень удобно! Площадь: общая 43,5 м². Спальня: 15,4 м² (вместительная и светлая) Детская/гостиная: 11,8 м² Кухня: 7 м² (отдельная) Состояние: Чистая, ухоженная. Всё, что на фото, остаётся новому владельцу. Собственник: 1 взрослый, долгов по ЖКУ нет, обременений нет, покупалась за наличные. Дом: Очень тёплый. Подъезд содержится в чистоте, соседи спокойные. Коммунальные платежи: Небольшие, удобно оплачивать через «Госуслуги». Главные преимущества локации (для семьи!): Рядом с домом: Магазин «Верный» прямо в доме. Для детей и родителей: В 1 минуте ходьбы — школа №163. В 2 минутах — детский сад №249. Дети в полной безопасности, дорогу переходить не нужно! Во дворе — спортивная площадка. В шаговой доступности: Все необходимые магазины, пункты выдачи заказов (Ozon, Я.Маркет, Wildberries). Напротив — оздоровительный комплекс «Аврора». Транспортная доступность (отлично развита): Трамваи (3 мин пешком): маршруты № 3, 6, 11, 12, 18, 19, 21. Автобусы (ост. «Викулова»): № 06, 25, 49, 62, 64, 84, 85, 92, 98. Троллейбусы: № 26, 35. На машине до центра города — всего 10 минут. Для вашего удобства: ???? Есть полный видеообзор квартиры — вышлю по первому запросу в мессенджер! ✅ Помогу бесплатно одобрить ипотеку на эту квартиру (сотрудничаем с крупными банками). ???? Показ в любое удобное время по предварительной договорённости. Не упустите свой шанс купить квартиру в устоявшемся районе с лучшей инфраструктурой для семьи! Звоните прямо сейчас, чтобы задать все вопросы и назначить просмотр! Не задано ID объекта в нашей базе: 11112
    размещено: 03.09.2025 , обновлено: 25.10.2025

    2-к квартира, Красноуральская, 27/2

    • 44 м2
    • 4/5 этаж
    • Состояние: хорошее
    4 990 000 ₽ (113400 ₽/м2)
    В продаже 2-х.комн.квартира с изолированными комнатами в хорошем состоянии, комнаты хорошие большие, на разные стороны, заезжай и живи. Оперативный показ и быстрый выход на сделку!Звоните!!! ID объекта в нашей базе: 8653
    размещено: 15.08.2025 , обновлено: 24.10.2025

    2-к квартира, Малый Конный Полуостров, 13

    • 42 м2
    • 3/5 этаж
    • Состояние: хорошее
    4 050 000 ₽ (96400 ₽/м2)
    ПРОДАЕТСЯ светлая, уютная, теплая 2-х комнатная КВАРТИРА. КОМНАТЫ ИЗОЛИРОВАННЫЕ просторные, правильной формы, ПЛОЩАДЬЮ 15 м2 и 12.3 м2. Установлены пластиковые стеклопакеты, балконный блок. БАЛКОН ЗАСТЕКЛЕН, с установленными раздвижными рамами, обшит деревом. УДАЧНОЕ РАСПОЛОЖЕНИЕ КВАРТИРЫ на среднем этаже с хорошими видовыми характеристиками создает дополнительный УЮТ и КОМФОРТ проживания ее владельцам! Приятным БОНУСОМ остаются: кухонный гарнитур, мягкая мебель, бытовая техника и т.п.!На ПРИДОМОВОЙ ТЕРРИТОРИИ высажены декоративные кустарники, цветы. ИМЕЮТСЯ ДЕТСКАЯ ПЛОЩАДКА, СПОРТПЛОЩАДКА для воркаута, МЕСТА ДЛЯ ПАРКОВКИ автомобилей. В местах общего пользования ЧИСТОТА и ПОРЯДОК.Поблизости расположены магазин, остановка общественного транспорта и др.ХОРОШИЕ МЕСТОРАСПОЛОЖЕНИЕ ДОМА и ТРАНСПОРТНАЯ РАЗВЯЗКА позволят в считанные минуты добраться до центра города, а также до любого его района и за пределы мегаполиса.ЗВОНИТЕ, ПРИХОДИТЕ НА ПРОСМОТР И ПРИОБРЕТАЙТЕ ЭТУ УЮТНУЮ КВАРТИРУ! ID объекта в нашей базе: 8629
    размещено: 13.08.2025 , обновлено: 23.10.2025

    2-к квартира, Металлургов, 16а

    • 47.4 м2
    • 1/16 этаж
    • Состояние: хорошее
    5 300 000 ₽ (111800 ₽/м2)
    Двухкомнатная квартира комфортной планировки ( двe изoлиpoвaнныe комнаты , между ними кухня , комнaты между собой нe cопpикaсaютcя) в oдном из caмыx вocтpебoванныx и развитыx рaйонax горoда- ВИЗ . В шаговой доступности еcть вcя необходимая инфраструктура: Детcкий сад №36, школa № 121, Школа № 41 , МАОУ Гимназия № 202 «Менталитет» , остановки общественного транспорта, аптеки, Поликлиника № 33 , пункты выдачи маркетплейсов, фитнес залы Метро Фитнес и Брайт Фит , магазины и кафе, в пешей доступности ТЦ Радуга Парк . До центра города на транспорте 10 минут. Быстрый выезд на Ново-Московский тракт.Квартира без долгов и обременений. Один собственник. В собственности давно.Квартира на первом этаже - независимость от лифта. Отдельная секция на 4 квартиры - дополнительное место для хранения крупногабаритных вещей . Квартира располагается вдали от лифта и входной группы- никакого шума из подъезда. В квартире очень тихо, не слышно посторонних шумов с улицы и от соседей. Мебель и техника остаются частично . Всё необходимое для проживания у новых хозяев будет. Квартира формата- заезжай и живи. Идеальный вариант также под сдачу в аренду. Выполнен качественный ремонт санузла. Огромная лоджия площадью 9 кв.м. дает возможность организовать дополнительную зону хранения или зону отдыха . ID объекта в нашей базе: 10511
    размещено: 30.07.2025 , обновлено: 24.09.2025

    2-к квартира, Викулова, 26

    • 47.9 м2
    • 6/12 этаж
    • Состояние: идеальное
    6 700 000 ₽ (139900 ₽/м2)
    Продается двухкомнатная чистая, уютная квартира с хорошим ремонтом и изолированными комнатами.
Покупателю в подарок остается кухонная мебель и бытовая техника.Капитальный ремонт квартиры выполнен на высоком уровне, обеспечив комфорт и качество проживания. Полностью обновлены инженерные системы: заменены электропроводка и водопроводные коммуникации. Во всех помещениях выполнены современные отделочные работы.- Электрика: Новые распределительные щитки и электрическая разводка, установленные в марте 2025 года.- Водоснабжение: Подача воды осуществляется новыми трубами, установленными также в 2014 году.- Отопление: Лоджия оборудована системой теплого пола, обеспечивающей дополнительное тепло зимой.- Канализация: Трубы водоотведения были заменены в 2014 году.Кухня:- Современные фасадные панели кухни покрыты высококачественным глянцем, долговечны и легко моются.- Современная бытовая техника премиум-класса включает встраиваемый холодильник марки Atlant, варочную поверхность и духовку бренда Fagor, а также вытяжку и посудомоечную машину производства Midea.- Для очистки питьевой воды установлен многоступенчатый бытовой фильтр Bio Geizer.Санузел:- Мойка в ванной выполнена из современного искусственного камня — эстетично выглядит и практична в уходе.- Все комнаты имеют гладко оштукатуренные потолки, окрашенные качественной водоэмульсионной краской.- Наружные стены украшены итальянской декоративной штукатуркой, создающей уникальный дизайн- Полы облицованы материалами премиального качества: ламинатом в спальне, прочным кварцевым винилом TarKett на кухне, в прихожей и на лоджии.- Межкомнатные двери изготовлены из цельного массива дерева, придавая интерьеру благородство и уют.

???? Квартира находится в прекрасном месте с удобной транспортной доступностью и хорошо развитой инфраструктурой района. Здесь всё необходимое под рукой: детские площадки, супермаркеты, аптеки, фитнес-клубы, образовательные учреждения и медицинские центры. Это идеальное решение для комфортного семейного проживания или выгодного инвестирования.

Двор с детской площадкой и зоной отдыха обеспечивает безопасность детей и взрослых жителей.
Для автовладельцев предусмотрена охраняемая автостоянка


ЮРИДИЧЕСКАЯ ЧИСТОТА.
Один взрослый собственник, без обременений, залогов, арестов, без долгов по коммунальным платежам. ID объекта в нашей базе: 6555
    размещено: 04.07.2025 , обновлено: 16.10.2025

    2-к квартира, Токарей, 60 1

    • 43 м2
    • 1/5 этаж
    • Состояние: удовлетворительное
    3 990 000 ₽ (92800 ₽/м2)
    Вашему вниманию представлена 2 комнатная квартира(комнаты не смежные). Окна выходят в тихий , зеленый, уютный двор, всегда есть парковочные места, хорошие соседи, высокий первый этаж. До центра города пешком 10 минут, отличная транспортная развязка, отлично развита инфраструктура. У нас ЧИСТАЯ ПРОДАЖА, квартира без обременений, оперативный выход на сделку!!! Квартира освобождена. ID объекта в нашей базе: 727
    размещено: 03.07.2025 , обновлено: 25.10.2025

Новостройки Екатеринбург, мкр-н. ВИЗ

Приоритет

Увеличивает просмотры в 3 раза

Ваше объявление показывается в списке выше обычных объявлений. подключить