Top.Mail.Ru
На Метре реклама - только нормальная. Никакого шок-контента.
Помогайте независимому ресурсу, как он помогает вам. Удачи!
Средняя цена м² · Новостройки
178 600 ₽/м²
↑ 6,88% за 12 мес.
Средняя цена м² · Вторичка
141 328 ₽/м²
↑ 11% за 12 мес.
Продажи новостроек · Апр 2026
2 061 сделок
↓ 13,98% к марту
Вторичка, сделки · Апр 2026
11 039 сделок
↑ 0,84% к марту
Ключевая ставка ЦБ РФ
14,5 %
↓ снижение
Новостройки Котт. посёлки Объявления Динамика цен и сделок

Продажа квартиры: Екатеринбург, ул. Старых Большевиков, 82/2 (Эльмаш)

  • опубликовано 28.10.2024 , обновлено 6.05.2026
  • 164
Рынок:вторичный
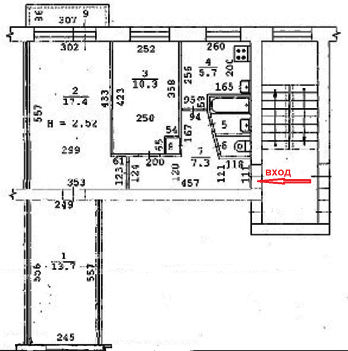
Количество комнат:3
Общая площадь:62.6 м2
Жилая площадь:48 м2
Площадь кухни:6.2 м2
Этаж/Этажность дома:5 / 5
Санузел:раздельный
Отделка:косметический
Мебель:есть мебель
Балкон/лоджия:балкон
Состояние:хорошее
Цена:
5 199 000
Объявление снято с публикации
Коммунальные платежи:оплачиваются отдельно

Продам Трехкомнатную квартиру возле ст. метро Проспект Космонавтов. Отличная светлая квартира с окнами на две стороны и в этом свой плюс. Возле нас расположены ст.

Метро " Проспект Космонавтов, четыре детских сада "НАДЕЖДА" № 475, 461,551,274 , детский сад № 15 и детский сад "Рябинка" , общеобразовательная школа № 138. Транспорт : Трамвай, троллейбус, автобус, маршрутное такси . Квартира в собственности 20 лет, юридическая часть самая спокойная в наше время, это ВАЖНО ! Мы готовы к быстрой сделке ! Собственность единоличная, ипотеки нет, мат капитал отсутствует .
ID объекта в нашей базе: 10334

Объявление снято с публикации

Ипотечный калькулятор

лет
%
Сумма кредита
5199000 ₽
Платеж
22 540 ₽

История предложений в этом доме

объявление снято с публикации в продаже комнат площадь этаж цена,
Екатеринбург, ул. Старых Большевиков, 82/2 (Эльмаш) - фото квартиры 17 февраля 2026 90 дн. 3 58 5/5 4 400 000
Екатеринбург, ул. Старых Большевиков, 82/2 (Эльмаш) - фото квартиры 27 июня 2023 90 дн. 1 29.2 5/5 3 590 000
Екатеринбург, ул. Старых Большевиков, 82/2 (Эльмаш) - фото квартиры 16 марта 2023 90 дн. 1 29.2 5/5 3 650 000
Екатеринбург, ул. Старых Большевиков, 82/2 (Эльмаш) - фото квартиры 13 февраля 2023 90 дн. 1 29.2 5/5 3 980 000
Екатеринбург, ул. Старых Большевиков, 82/2 (Эльмаш) - фото квартиры 31 марта 2022 90 дн. 1 30 5/5 3 100 000
Екатеринбург, ул. Старых Большевиков, 82/2 (Эльмаш) - фото квартиры 15 февраля 2022 90 дн. 3 58.8 3/5 4 500 000
20 марта 2019 90 дн. 2 44.4 4/5 3 050 000

Похожие предложения о продаже квартир в Екатеринбурге (Эльмаш)

  • 3-к квартира, Шефская, 97

    • 52 м2
    • 8/10 этаж
    • Состояние: плохое
    5 500 000 ₽ (105800 ₽/м2)
    Объект № 199059. Продаётся просторная 3-комнатная квартира в доме улучшенной планировки — отличный вариант для семьи, которая хочет сделать ремонт полностью под себя, а не переплачивать за чужие решения. Удобная планировка: — большая гостиная — две изолированные комнаты — отдельная кухня — раздельный санузел — балкон — комфортный квадратный коридор Квартира требует ремонта, но именно это даёт возможность создать интерьер своей мечты и не переплачивать за «косметику», которую всё равно хочется переделать. Главное преимущество — локация. Здесь действительно есть всё для комфортной жизни: 2 школы рядом с домом, 5 детских садов • школа искусств, спортивные секции для детей и взрослых, спортивный комплекс с бассейном, дом культуры, торговые центры, развлекательный центр «ВеерМолл», маркетплейсы и все необходимые магазины До метро — всего 10 минут пешком. Также в шаговой доступности остановки трамвая, автобуса и троллейбуса — удобно добираться в любую часть города. Тихий зелёный двор, развитый и давно сформированный район, где всё необходимое находится буквально рядом. Квартира подойдёт: семье с детьми, тем, кто хочет сделать ремонт под себя, инвесторам под аренду Покажем квартиру в удобное для вас время. ***Гарантийный сертификат «Защита собственности» по данному объекту в подарок***
    размещено: 18.05.2026 , обновлено: 20.05.2026
  • 3-к квартира, Фрезеровщиков, 41

    • 58.2 м2
    • 5/9 этаж
    • Состояние: хорошее
    6 290 000 ₽ (108100 ₽/м2)
    Продается 3-я ком квартира площадью 58 кв м., комнаты изолированны, окна на разные стороны. Площадь кухни 10 кв. м., зал 14 кв м. В квартире сделан косметический ремонт, требуется капитальный ремонт в туалете. В подарок покупателю остается кухонный гарнитур, прихожая с огромным шкафом, стенка и диван в зале.Дом находиться в пешей доступности от метро проспект Космонавтов. Трамваи, троллейбусы, маршрутки – все рядом. Развитая инфраструктура.Один взрослый собственник, обременений нет, мат капитал не использовался. ID объекта в нашей базе: 26508
    размещено: 06.05.2026 , обновлено: 21.05.2026
  • 3-к квартира, Замятина, 38/1

    • 59.5 м2
    • 1/5 этаж
    • Состояние: плохое
    4 500 000 ₽ (75600 ₽/м2)
    Продаем 3х квартиру.Дом в тишине и рядом с лесом. Рядом магазин.транспорт.школа и детские сады.Район активно развивается .В шаговой доступности кольцо трамвайное " Эльмаш" где расположены аптеки.магазины.почта.Сбербанк.стадион с бассейном "Калининец"Готовы рассмотреть обмен на " малосемейку"Документы в порядке, к сделке готовы. Два взрослый собственника, обременений, долгов исполнительных листов нет.Мат.капитал не использовался.Мы работаем для вас:пн-пт - с 10 до 20,сб - с 10 до 17,вс - нерабочий день. ID объекта в нашей базе: 730
    размещено: 30.04.2026 , обновлено: 9.05.2026
  • 3-к квартира, Краснофлотцев, 9

    • 56.1 м2
    • 4/5 этаж
    • Состояние: хорошее
    6 600 000 ₽ (117600 ₽/м2)
    Продается 3-х комнатная квартира 56,1кв.м. в кирпичном доме. квартира светлая,уютная,очень теплая,просторная,перекрытия железобетонные,отличная шумоизоляция. Все комнаты изолированные,окна выходят на две стороны,балкон застеклен. В квартире выполнен ремонт. Все окна из качественного ПВХ профиля с двухкамерным стеклопакетом.В квартире две просторные кладовки. В квартире остается кухонный гарнитур,остальное по согласованию. В ванной комнате новый водонагреватель. Подъезд чистый и опрятный. Двор зеленый и тихий,есть детская площадка. Проблем с парковкой нет,в любое время найдется место для вашего автомобиля. Инфраструктура района очень развита: рядом лингвистическая гимназия 99,музыкальная и спортивная школы. ДК Эльмаш с множеством детских кружков,секций. Детские сады,продуктовые магазины,больница,транспорт,8 минут до станции метро Уралмаш. Один взрослый собственник.Чистая продажа. ID объекта в нашей базе: 18647
    размещено: 01.04.2026 , обновлено: 20.05.2026
  • 3-к квартира, Лобкова, 30

    • 60.6 м2
    • 1/5 этаж
    • Состояние: хорошее
    5 400 000 ₽ (89100 ₽/м2)
    ???? Продаётся 3-комнатная квартира по адресу: ул. Лобкова, 30.Ищете светлую и тёплую квартиру? Это она!Внутри действительно уютно и солнечно. Санузел совмещённый, но функциональный.???? О районе:Всё необходимое рядом: школа, детский сад, продуктовые магазины и остановки транспорта. Удобная локация для семьи с детьми или для тех, кто ценит своё время.???? По мебели:Готова обсудить варианты — возможна договорённость, чтобы вы заехали и сразу чувствовали себя как дома.Звоните, договоримся о просмотре! ???? ID объекта в нашей базе: 14803
    размещено: 31.03.2026 , обновлено: 25.05.2026

    3-к квартира, Корепина, 30/а

    • 58 м2
    • 3/5 этаж
    • Состояние: хорошее
    5 500 000 ₽ (94800 ₽/м2)
    Объект № 197994. Продам 3х комнатную квартиру. Хороший 3 этаж. Балкон застеклен. Санузел раздельный со свежим ремонтом. Дом кирпичный. Сейф дверь. В шаговой доступности детский сад 181 , школа 107, остановка общественного транспорта. ***Гарантийный сертификат «Защита собственности» по данному объекту в подарок***
    размещено: 19.03.2026 , обновлено: 16.05.2026

    3-к квартира, Фрезеровщиков, 28

    • 63.1 м2
    • 6/9 этаж
    • Состояние: хорошее
    5 999 000 ₽ (95100 ₽/м2)
    Срочно! ???? Почему именно эта квартира? Уникальное расположение! Дом в хорошем расположение, в шаговой доступности – идеальное сочетание удобства. Всего в нескольких минутах от вас вся необходимая инфраструктура: магазины, школы, сады, парки, автовокзал и колледж. Всё под рукой для вашей комфортной жизни. Квартира 3 х комнатная улучшенной планировки Орджоникидзевский район, рядом со станцией метро "Проспект Космонавтов". Дом в отличном состоянии, ремонт фасадов, крыши, стояков в квартире, всё своевременно по графику. Своё ТСЖ. Квартира Светлая, просторная, окна на две стороны света во двор и на улицу. Двор закрытый, охраняемый, видеонаблюдение, детская и спортивная площадки, волейбольная площадка, спортивные снаряды. Удобное месторасположение, инфраструктура развита: все виды городского транспорта, магазины, медицинские и образовательные учреждения, торговые центры ОМЕГА, Веер МОЛЛ, трамвай до Верхней Пышмы. В шаговой доступности Спортивный комплекс "Калининец", Бассейн, спортивные секции, парк для прогулок. Долгов. обременений нет, два собственника. Возможен обмен на две жилплощади. ???? Не ждите! Звоните прямо сейчас, чтобы узнать подробности и записаться на просмотр. Мы покажем вам квартиру в удобное для вас время! Ваш квартира уже ждет вас. Не упустите эту уникальную возможность! ????✨ Сделайте первый шаг к вашей мечте! К оплате принимаем все возможные сертификаты, включая маткапитал. ID объекта в нашей базе: 18568
    размещено: 17.03.2026 , обновлено: 20.05.2026

    3-к квартира, Таганская, 10

    • 60 м2
    • 1/5 этаж
    • Состояние: хорошее
    5 490 000 ₽ (91500 ₽/м2)
    Объект № 196126. Продам трехкомнатную квартиру в кирпичном доме. Расположена на первом этаже, цоколь высокий. Комнаты изолированы, санузел раздельный. Выполнен капитальный ремонт. Развитая инфраструктура района. Звоните, отвечу на все вопросы. ***Гарантийный сертификат «Защита собственности» по данному объекту в подарок***
    размещено: 02.12.2025 , обновлено: 22.05.2026

    3-к квартира, Шефская, 87/1

    • 62 м2
    • 5/5 этаж
    • Состояние: хорошее
    5 480 000 ₽ (88400 ₽/м2)
    Квартира без рисков! Документы готовы. Объект встречной покупки уже куплен. Ключи в день сделки. Заезжай и живи! Продается уютная трехкомнатная квартира, расположенная в кирпичном доме на пятом этаже. Общая площадь квартиры составляет 62 кв. м, из которых 46.2 кв. м — жилая площадь, а кухня занимает 6 кв. м. В квартире предусмотрены встроенные шкафы и антресоли.Пятый этаж обеспечит вам отсутствие соседей сверху и, значит, тишину и покой.В квартире сделан косметический ремонт, что создает комфортную атмосферу для проживания, можно заехать и жить, без дополнительных затрат.Окна выходят во двор, поэтому вас не будут беспокоить шумные улицы. В квартире есть один застекленый балкон. Санузел раздельный, что удобно для большой семьи.Дом находится в отличном состоянии. Во дворе есть наземная парковка, поэтому можно без проблем найти место для автомобиля. Несмотря на год постройки, дом выглядит ухоженным и крепким, а кирпичные стены обеспечат надежную тепло- и звукоизоляцию.Район, в котором расположена квартира, отлично подходит для семейной жизни. В пешей доступности находятся школы и детские сады, что позволит вашим детям добираться до учебных заведений без лишней траты времени. Также рядом есть клиники, супермаркеты и магазины, где можно сделать все необходимые покупки. До станции метро "Проспект Космонавтов" всего 7 минут пешком, что позволит быстро добираться до любой точки города.Квартира освобождена и готова к передаче новому владельцу! Чистая продажа. Продается по договору купли-продажи, возможна ипотека. Все документы готовы к сделке.Это предложение станет отличным вариантом для тех, кто ищет комфортное жилье с развитой инфраструктурой и хорошей транспортной доступностью.Приглашаем вас на просмотр!Звоните и записывайтесь на удобное для Вас время. ID объекта в нашей базе: 13644
    размещено: 05.02.2026 , обновлено: 16.05.2026

    3-к квартира, Кобозева, 14

    • 58 м2
    • 1/5 этаж
    • Состояние: удовлетворительное
    4 970 000 ₽ (85700 ₽/м2)
    Продам отличную квартиру с 3 изолированными комнатами недалеко от метро в микрорайоне с сильно развитой инфраструктурой. До станции метро «Проспект Космонавтов» 10 минут неспешной прогулки. Рядом большой лесопарк «Калиновский» с озером, куда можно прогуляться и устроить пикник летом и кататься на лыжах зимой. Недалеко 2 больших бассейна, торговые центры, кинотеатры, медицинские центры, школы и садики. Высокий 1 этаж, окна выше роста человека. Ремонт делали давно, можно освежить – по желанию. Оставляем кухонный гарнитур, 2 просторных шкафа купе. Заезжай и живи. Квартира не угловая и очень тихая, теплая и уютная. Хорошие и дружелюбные соседи. Вторая линия от дороги, что создает тишину и уют. Рядом с домом остановки трамвая и автобуса, троллейбус в 5 минутах ходьбы. Эта квартира вас всегда будет только радовать. Записывайтесь на просмотр прямо сейчас! ID объекта в нашей базе: 13576
    размещено: 03.02.2026 , обновлено: 15.05.2026

    3-к квартира, Замятина, 20

    • 60.2 м2
    • 8/9 этаж
    • Состояние: хорошее
    5 800 000 ₽ (96300 ₽/м2)
    продам 3 ком квартиру на Эльмаше ID объекта в нашей базе: 4964
    размещено: 03.12.2025 , обновлено: 24.05.2026

    3-к квартира, Вали Котика, 9б

    • 55.2 м2
    • 5/5 этаж
    • Состояние: хорошее
    5 990 000 ₽ (108500 ₽/м2)
    Продаю уютную трехкомнатную квартиру в кирпичном доме с прекрасным расположением. Все необходимое для комфортного проживания в шаговой доступности: школы, садики, торговые центры, остановки общественного транспорта. Две комнаты изолированные, санузел совмещенный. В квартире сделан качественный ремонт. Ждем вас на просмотр! ID объекта в нашей базе: 1488
    размещено: 18.06.2025 , обновлено: 4.05.2026

Новостройки Екатеринбург, мкр-н. Эльмаш

Приоритет

Увеличивает просмотры в 3 раза

Ваше объявление показывается в списке выше обычных объявлений. подключить