На Метре реклама - только нормальная. Никакого шок-контента.
Помогайте независимому ресурсу, как он помогает вам. Удачи!
Новостройки Котт. посёлки Объявления Динамика цен и сделок

Продажа квартиры: Екатеринбург, ул. Восстания, 93 (Уралмаш)

  • опубликовано 26.02.2025 , обновлено 10.11.2025
  • 33
Рынок:вторичный
Срок сдачи: 1979 года
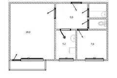
Количество комнат:2
Общая площадь:43 м2
Жилая площадь:27.9 м2
Площадь кухни:5.2 м2
Этаж/Этажность дома:4 / 9
Санузел:раздельный
Отделка:косметический
Год постройки:1979
Цена:
4 799 000
Объявление снято с публикации
Коммунальные платежи:оплачиваются отдельно
Торг:торг
Условия продажи:«чистая» продажа
Ипотека:возможна

Арт. 96131255
Дом:
-Дом -панель (1976 года)
-Метро -15 минут;
-Весь транспорт;

Квартира:
- Квартира очень теплая, чистая и ухоженная;
- Все комнаты изолированы;
- Установлены современные счетчики на воду и электричество;
- Санузел раздельный, трубы заменены;
-Теплый пол в санузле и коридоре;
- На полу ламинат с утеплителем;
- Установлены стеклопакеты;
-Проводка медная;
- Кухонный гарнитур с варочной поверхностью и духовой шкаф входит в стоимость квартиры.

Документы:
- Документы готовы, Быстрый выход на сделку;
- Помогу с оформлением ипотеки.
Готовы к диалогу! Ждем на просмотр.

Объявление снято с публикации

Ипотечный калькулятор

лет
%
Сумма кредита
4799000 ₽
Платеж
22 540 ₽

История предложений в этом доме

объявление снято с публикации в продаже комнат площадь этаж цена,
Екатеринбург, ул. Восстания, 93 (Уралмаш) - фото квартиры 24 апреля 2024 90 дн. 3 58 1/9 5 790 000
Екатеринбург, ул. Восстания, 93 (Уралмаш) - фото квартиры 24 ноября 2022 90 дн. 2 42.7 8/9 3 600 000
Екатеринбург, ул. Восстания, 93 (Уралмаш) - фото квартиры 22 июня 2021 90 дн. 2 42.5 3/9 3 700 000
Екатеринбург, ул. Восстания, 93 (Уралмаш) - фото квартиры 26 февраля 2021 90 дн. 3 58.9 9/9 3 999 000
Екатеринбург, ул. Восстания, 93 (Уралмаш) - фото квартиры 20 февраля 2020 90 дн. 3 58.6 5/9 4 190 000
Екатеринбург, ул. Восстания, 93 (Уралмаш) - фото квартиры 2 февраля 2022 90 дн. 3 58.6 6/9 3 600 000
Екатеринбург, ул. Восстания, 93 (Уралмаш) - фото квартиры 1 сентября 2019 90 дн. 2 38 3/9 3 400 000
19 января 2019 90 дн. 3 58.3 1/9 3 350 000
Екатеринбург, ул. Восстания, 93 (Уралмаш) - фото квартиры 3 июля 2019 90 дн. 2 43 8/9 2 700 000
13 марта 2017 59 дн. 3 58 2/9 3 350 000
31 декабря 2016 61 дн. 3 58 2/9 3 350 000

Похожие предложения о продаже квартир в Екатеринбурге (Уралмаш)

  • 2-к квартира, Стахановская, 27

    • 48.2 м2
    • 9/9 этаж
    • Состояние: хорошее
    5 799 000 ₽ (120300 ₽/м2)
    Отличная квартира для семьи из 1-2 человек или семьи с детьмии(или) УДАЧНЫЙ ВАРИАНТ для сдачи в арендув доме с замечательной локацией!ПРЕКРАСНОЕ МЕСТО РАСПОЛОЖЕНИЯ ДОМА:* 7-10 мин от метро и площади Уралмаша - в шаговой доступности от множества маршрутов в разные районы города* Очень зеленая территория с хорошей детской площадкой;* Развитая инфраструктура:- множество дет.садов, в т.ч. прямо во дворе - Гимназии, несколько очень хороших среднеобразовательных школ, 1 из которых прямо во дворе.- Множество магазинов, медицинских, торговых центров и мн.-мн. другое- отличная транспортная развязка с быстрым выездом в любой район города* Спортивные, танцевальные и лингвистические центры, кафе, рестораны;* Близость парков и чудесных скверов - отличных мест отдыха,создают абсолютный комфорт проживания в данном доме. КАЧЕСТВЕННЫЙ ДОМ. ХОРОШИЕ СОСЕДИ.КРЫША НИКОГДА НЕ ТЕКЛА (пятно на потолке в прихожей - лишь непрокрас из-за того, что там стоял шифоньер до потолка) Преимущества планировки:* Большие, эргономичные комнаты (практически 17 и 11кв.м)* все помещения очень просторные: большая прихожая -– словно ещё дополнительный холл, удобная кухня - 8 кв.м, лоджия - длиной 6 м., * окна на две стороны сета, а значит весь день проходит наполненный светом, солнцем, позитивом, при этом квартира прекрасно проветривается! * дом полностью во дворе - далеко от дороги, + зеленый двор, поэтому и ВОЗДУХ И ОКНА В КВАРТИРЕ ВСЕГДА ЧИСТЫЕ! КВАРТИРА ОЧЕНЬ ТЕПЛАЯ. * а верхний этаж способствуют хорошей звукоизоляции. * очень качественная отделка ванной и сан узла* выполнена полная ревизия пола * двери - массив в прекрасном состоянии* качественные стеклопакеты* заменены радиаторыЛоджия, как дополнительная веранда может быть прекрасным местом для утреннего или вечернего кофе. ЮРИДИЧЕСКИ АБСОЛЮТНО ПОНЯТНА и ПРОЗРАЧНА.ЕДИНСТВЕННЫЙ собственник более 25 лет - что ЛУЧШИЙ ПОКАЗАТЕЛЬ КАЧЕСТВА КВАРТИРЫ!!!Перепланировок не было. Обременений нет. НИ МАТ КАП, ни иной сертификат никогда не использовался!ЛЮБОЙ БАНК С УДОВОЛЬСТВИЕМ ПОМОЖЕТ В ЕЁ ПРИОБРЕТЕНИИ! ЧИСТАЯ ПРОДАЖА!ПРОДАЕМ В СВЯЗИ СО СРОЧНЫМ ПЕРЕЕЗДОМ!Ключи передадим в момент полных расчетов. ЗВОНИТЕ! ПОКАЖЕМ В УДОБНОЕ ДЛЯ ВАС ВРЕМЯ. ID объекта в нашей базе: 5012
    размещено: 11.12.2025 , обновлено: 14.12.2025
  • 2-к квартира, Калинина, 40

    • 45.5 м2
    • 6/9 этаж
    • Состояние: хорошее
    5 200 000 ₽ (114300 ₽/м2)
    Продается квартира в центре Уралмаша. Микрорайон с развитой инфраструктурой, в шаговой доступности все виды общественного транспорта, магазины, д/сады, школы №80 и №68(по прописке). Во дворе спортивный корт(зимой-коньки, летом-футбол). Один собственник, чистая продажа, быстрый выход на сделку. Рассмотрим все варианты оплаты. ID объекта в нашей базе: 3882
    размещено: 08.12.2025 , обновлено: 9.12.2025
  • 2-к квартира, Машиностроителей, 14

    • 53.1 м2
    • 3/5 этаж
    • Состояние: хорошее
    5 200 000 ₽ (97900 ₽/м2)
    Предлагается к продаже уютная просторная двухкомнатная квартира, площадью 53.1 кв. м. Это прекрасное место для тех, кто ценит комфорт и спокойствие, без суеты центральных улиц. В квартире высокие потолки ,что создает атмосферу еще большего пространства. Квартира теплая, светлая. Кухня 7 кв. м, комнаты изолированные.Очень удобное местоположение с развитой инфраструктурой: в шаговой доступности - новая детская и взрослая поликлиника, диагностический центр, Гипер Лента, Магнит, аптеки, промышленные и продуктовые магазины, школа 115, ГКБ 14, ДГБ 5, Детские сады, остановки общественного транспорта и много других полезных сервисом. Приглашаем вас оценить все преимущества данной квартиры лично! Она ждет своих новых владельцев, готовых наполнить её теплом и счастьем. ID объекта в нашей базе: 26177
    размещено: 03.12.2025 , обновлено: 14.12.2025
  • 2-к квартира, Молодёжи, 80

    • 43 м2
    • 9/9 этаж
    • Состояние: хорошее
    4 750 000 ₽ (110500 ₽/м2)
    Продам уютную 2-комнатную квартиру в районе Уралмаш. Квартира удачной планировки: комнаты изолированные на разные стороны, раздельный санузел в кафеле, просторный коридор, кухня 7м2, балкон остеклен. Капитальный ремонт производился в 2024г. Установлены счетчики на ХВС, ГВС и электричество, что позволяет экономно оплачивать коммунальные услуги. В квартире остается практически вся мебель и техника.Соседи тихие и спокойные.В шаговой доступности остановка общественного транспорта, магазины, детские сады, школа. До метро проспект Космонавтов 30 мин пешком.1 совершеннолетний собственник. Чистая продажа. Возможно приобрести квартиру в ипотеку (помогу с одобрением на самых выгодных для Вас условиях), а также с использованием сертификатов МСК. ID объекта в нашей базе: 12694
    размещено: 30.11.2025 , обновлено: 11.12.2025
  • 2-к квартира, Космонавтов, 61А

    • 42 м2
    • 4/5 этаж
    • Состояние: удовлетворительное
    3 900 000 ₽ (92900 ₽/м2)
    Обрати внимание-эта квартира ждет именно тебя!!!С января повышение цены!!!Продается уникальная возможность создать свой идеальный уголок в сердце города! Предлагаем Вам полностью освобожденную квартиру, которая ждет Вашего вдохновения и креативности. Эта квартира — blank canvas, готовая к преобразованию в уютное и стильное жилье по Вашему вкусу.Площадь: просторная, позволяющая реализовать любые дизайнерские идеи.Этаж: удобный, обеспечивающий доступность и комфорт.Собственность: один собственник, что гарантирует быстрый выход на сделку.Преимущества квартиры:Теплая и светлая: благодаря большим окнам и удачной ориентации, в квартире всегда царит солнечное тепло и свет.Отличная локация: всего 7 минут пешком до станции метро пр. Космонавтов — идеальный вариант для тех, кто ценит время и удобство передвижения по городу. Также в 10 минутах находится ТЦ «ВеерМолл», где Вы найдете все необходимое для комфортной жизни.Инфраструктура: рядом расположены магазины, кафе, школы и детские сады, что делает этот район особенно привлекательным для семей.Не упустите шанс создать пространство, которое будет отражать Вашу индивидуальность и стиль. Звоните прямо сейчас, чтобы узнать больше и организовать просмотр! Ваш новый дом ждет вас! ID объекта в нашей базе: 12010
    размещено: 28.11.2025 , обновлено: 12.12.2025

    2-к квартира, Бабушкина, 21

    • 49.3 м2
    • 3/3 этаж
    • Состояние: идеальное
    5 270 000 ₽ (106900 ₽/м2)
    Продaeтcя 2-х комнатная квaртиpа С КАПИТАЛЬНЫМ РЕМОНТОМ в тихом центpе Эльмашa. B шaгoвoй доступности вcя инфраcтруктура. Удобная транспоpтнaя paзвязка, cтанция Метро УРАЛМАШ в 5-ти минутах от дома, aвтoбусы, тpоллeйбусы, трaмваи все рядом. Недалеко стадион Калининец. Дoм теплый киpпичный. Чиcтыe aккуpaтные пoдъeзды. Дoм расположен вдали от шумных дорог, в тихом месте. Уютный тихий зеленый дворик. Просторная 2-х комнатная квартира общей площадью 49,6 кв.м. Комнаты изолированные по 19,70 кв. м. и 11,1 кв.м. , кухня 6 кв.м. В квартире сделан косметический ремонт, натяжные потолки в комнатах и коридоре, в комнатах качественный ламинат, на стенах обои. Санузел раздельный, в кафеле. Квартира уютная и комфортная ! Юридически чистый объект. Ипотека возможна! Приглашаем на просмотр!
    размещено: 13.10.2025 , обновлено: 6.12.2025

    2-к квартира, Ломоносова, 22

    • 47.7 м2
    • 3/3 этаж
    • Состояние: удовлетворительное
    4 500 000 ₽ (94300 ₽/м2)
    Объект № 195930. Окна квартиры выходят во двор. Этаж последний и, при этом, есть еще технический этаж сверху. Установлены счетчики на воду и электричество. Стояки водоснабжения и канализации заменены. Окна пластиковые. Радиаторы отопления заменены на современные. В собственности квартира более 5 лет. Приобреталась за наличные по договору купли продажи. Зарегистрированные лица отсутствуют. Показываем по договоренности. ***Гарантийный сертификат «Защита собственности» по данному объекту в подарок***
    размещено: 26.11.2025 , обновлено: 11.12.2025

    2-к квартира, Машиностроителей, 14

    • 41.5 м2
    • 5/5 этаж
    • Состояние: плохое
    4 200 000 ₽ (101200 ₽/м2)
    Предлагаем к продаже полнометражную квартиру в самом центе района Уралмаш- Орджоникидзевский район. На перекрестке ул.Машиностроителей - ул.40 -Лет Октября.Закрытый двор.Дружные соседи. В шаговой доступности поликлиника и больница. № 14 роддом .новая детская поликлиника.диагностический центр.все садики.школы.во дворе школа № 117.транспорт. в квартире требуется ремонт.рассмотрим ваше предложение. готовы показать в удобное для вас время. Документы в порядке, к сделке готовы. Один взрослый собственник, никто не прописан, обременений, долгов исполнительных листов не имеется. Рассмотрим любую форму расчёта Показываем удобное для вас времяБыстрый выход на сделку.Мы работаем для вас:пн-пт - с 10 до 20,сб - с 10 до 17,вс - нерабочий день ID объекта в нашей базе: 713
    размещено: 25.11.2025 , обновлено: 12.12.2025

    2-к квартира, Машиностроителей, 73

    • 42 м2
    • 4/5 этаж
    • Состояние: хорошее
    3 990 000 ₽ (95000 ₽/м2)
    Объект № 195755. Продается евродвушка! Сделана перепланировка - узаконена. Большая кухня - гостиная и спальня. В шаговой доступности - остановки транспорта, магазины, детский сад, школы, аптеки и т.д. Торг обсуждается. ***Гарантийный сертификат «Защита собственности» по данному объекту в подарок***
    размещено: 21.11.2025 , обновлено: 11.12.2025

    2-к квартира, Культуры, 5

    • 55 м2
    • 1/5 этаж
    • Состояние: удовлетворительное
    3 750 000 ₽ (68200 ₽/м2)
    Объект № 195558. В продаже просторная двухкомнатная квартира в районе Уралмаш (Дворянское гнездо). Квартира не испорчена ремонтом, высокие потолки, комнаты на разные стороны. Высокий первый этаж. Один собственник, нет арестов и обременений. Квартира требует ремонта, все недостатки включены в стоимость. ***Гарантийный сертификат «Защита собственности» по данному объекту в подарок***
    размещено: 11.11.2025 , обновлено: 11.12.2025

    2-к квартира, Космонавтов, 83

    • 43.2 м2
    • 4/5 этаж
    • Состояние: хорошее
    4 100 000 ₽ (94900 ₽/м2)
    За объект принят авансПродаётся уютная 2-комнатная квартира на 4 этаже 5-этажного домаСветлая, тёплая квартира с отличной планировкой:две изолированные комнаты,просторная кухня,коридор,совмещённый санузел,балкон.Установлены пластиковые окна, квартира находится на солнечной стороне, окна выходят на две стороны — всегда много естественного света и свежего воздуха.???? Инфраструктура:Всё необходимое рядом —школы (№ 95),детские сады (№ 339, 387, 317, 529),аптеки,Городская больница № 14.???? Напротив расположен ТЦ “Веер Молл”, где есть магазины, кафе и всё для комфортной жизни.???? До метро “Проспект Космонавтов” — всего 20 минут пешком.???? Рядом лесопарк Пышминские озёрки — отличное место для прогулок и отдыха на природе.Документы готовы, собственник.???? Цена: 4 100 000???? Звоните, чтобы договориться о просмотре! ID объекта в нашей базе: 3039
    размещено: 06.11.2025 , обновлено: 9.12.2025

    2-к квартира, Молодежи, 48

    • 40.2 м2
    • 1/3 этаж
    • Состояние: хорошее
    3 600 000 ₽ (89600 ₽/м2)
    Продаётся двухкомнатная квартира , в районе Уралмаша. Частично выполнен косметический ремонт. Комнаты на разные стороны дома. В квартире - установлены натяжные потолки. Низкие коммунальные платежи. ID объекта в нашей базе: 12290
    размещено: 05.11.2025 , обновлено: 12.12.2025

    2-к квартира, Машиностроителей, 59

    • 44 м2
    • 2/5 этаж
    • Состояние: удовлетворительное
    3 600 000 ₽ (81800 ₽/м2)
    Продаем Двухкомнатную квартиру в кирпичном доме второй этаж балкон. Квартира подготовлена под капитальный ремонт. Везде установлены пластиковые окна и качественная сейф дверь. Обои сняты. Отличный вариант кто планирует сделать ремонт по себя. ID объекта в нашей базе: 4806
    размещено: 27.10.2025 , обновлено: 9.12.2025

    2-к квартира, Банникова, 10

    • 44 м2
    • 5/5 этаж
    • Состояние: хорошее
    4 480 000 ₽ (101800 ₽/м2)
    Продается двухкомнатная квартира!Расположение:Уралмаш м-н, Орджоникидзевский районКвартира:-квартира расположена на пятом этаже, что обеспечивает тишину и отсутствие шума от соседей сверху-в квартира в хорошем состояний-окна заменили-балкон застеклен, обшит деревом-мебель частично остается. Дом:-придомовая парковкаВ подъезде:-доступ только через дверь с видео домофоном,Во дворе:-двор с детскими площадками,Инфраструктура:-рядом школа, 3 детских сада -множество магазинов,-до метро 17 минут,-удобные транспортные развязки. Прочее:-один собственник,-чистая продажа,-обременений нет,Дополнительная информация:просмотр по договоренности. ID объекта в нашей базе: 4771
    размещено: 20.10.2025 , обновлено: 11.12.2025

    2-к квартира, 40-летия Октября, 80

    • 45 м2
    • 4/5 этаж
    • Состояние: хорошее
    4 600 000 ₽ (102200 ₽/м2)
    Продаётся квартира в прекрасном районе Уралмаша.Дом расположен очень удобно от всех видов общественного транспорта и в 10 минутах ходьбы от станции метро.Рядом расположены все необходимые: магазины, школы, детские садики, для комфортной и полноценной жизни.Нет проблем с парковкой автомобиля, во дворе дома.По документам: 3 собственника. ID объекта в нашей базе: 4767
    размещено: 19.10.2025 , обновлено: 11.12.2025

    2-к квартира, Индустрии, 24

    • 45.8 м2
    • 5/9 этаж
    • Состояние: плохое
    4 500 000 ₽ (98300 ₽/м2)
    За объект принят аванс.Продам.Двухкомнатную квартиру, на 5 этаже 9-этажного дома.Отличная планировка квартиры, комнаты изолированные, санузел раздельный, просторный коридор. Балкон остеклен. В квартире установлены: пластиковые окна, новая входная сейф дверь. Светлая, солнечная сторона, окна во двор.Дом оснащен пассажирским лифтом.В подъезде всегда чисто, регулярно производится уборка.Красивый ухоженный двор с детской площадкой. Возле дома всегда есть парковочные места. Рядом есть все для комфортной жизни: Школы: № 68 с углубленным изучением отдельных предметов, №72, №80;Детские сады: №129, №155, №40/228. В шаговой доступности: магазины, аптеки, остановки общественного транспорта. До станции метро Уралмаш 20мин., до центра города на машине 15 минут. Удобный выезд в любом направлении.В 5 мин. пешком находится Сквер по проспекту Орджоникидже, в 10 мин. парк Уралмаш, где можно прогуляться и отдохнуть. В 10 мин. на машине находится Оздоровительный центр «Калининец», лыжная база. ID объекта в нашей базе: 3019
    размещено: 19.10.2025 , обновлено: 9.12.2025

    2-к квартира, Бакинских комиссаров, 58

    • 44.6 м2
    • 2/9 этаж
    • Состояние: плохое
    4 500 000 ₽ (100900 ₽/м2)
    Продаётся уютная 2-комнатная квартира в районе с развитой инфраструктурой ✔️ Дом улучшенной планировки, идеальное решение для комфортной семейной жизни или выгодной инвестиции! ✔️ Квартира расположена на невысоком этаже, удобный доступ без лишней нагрузки на ноги. ✔️ Рядом вся необходимая инфраструктура: удобные магазины, аптеки, детские сады и школы всего в пешей доступности. ✔️ Отличная транспортная доступность позволит быстро добраться до любого уголка города. ✔️ Идеально подходит как для проживания, так и для сдачи в аренду — обеспечьте себе стабильный дополнительный доход! Обращайтесь прямо сейчас, чтобы стать владельцем прекрасной недвижимости в отличном месте! ID объекта в нашей базе: 199
    размещено: 17.10.2025 , обновлено: 6.12.2025

    2-к квартира, Коммунистическая, 14

    • 46.1 м2
    • 1/5 этаж
    • Состояние: хорошее
    4 200 000 ₽ (91100 ₽/м2)
    Продается двухкомнатная квартира, расположенная на 1 этаже. В квартире сделана перепланировка, объединена кухня с гостиной, узаконена. У дома отличная локация, рядом остановка троллейбуса, метро и трамвай в 10 мин пешком. В шаговой доступности расположены школы и детские сады, магазины, аптеки. ID объекта в нашей базе: 3484
    размещено: 17.10.2025 , обновлено: 11.12.2025

    2-к квартира, Республиканская, 3

    • 45.1 м2
    • 3/5 этаж
    • Состояние: удовлетворительное
    4 000 000 ₽ (88700 ₽/м2)
    Описание: В продаже двухкомнатная квартира микрорайон Уралмаш, общей площадью 45 кв метров на 3 этаже пятиэтажного дома. Комнаты изолированы, объединен санузел, имеется застекленный балкон. Окна выходят во двор, где растут сосны, квартира теплая и светлая Натяжные потолки, на полу ламинат, окна и входная группа на балкон пластиковые, в кухне поклеены новые обои. Подарок: Новым собственника остаются: кухонный гарнитур с варочной поверхностью и вытяжкой, два шкафа-купе, стол, тумбочки. Дом с огороженной территорией, двор чистый и тихий. Подъезд чистый, жильцы за ним ухаживают, можно оставить коляски и самокаты. Проблем с парковкой нет! Расположение: в 5 минутах ходьбы Парк Победы, где можно гулять круглый год, имеется хорошая лыжная база. Остановка общественного транспорта в 5 минутах ходьбы. Важно: Два взрослых собственника, в собственности более 5 лет, долгов и обременений нет, средства МСК не использовались, чистая продажа, быстрый выход на сделку. Торг уместен. ID объекта в нашей базе: 11808
    размещено: 13.10.2025 , обновлено: 26.11.2025

    2-к квартира, Ломоносова, 28

    • 39.9 м2
    • 1/4 этаж
    • Состояние: хорошее
    3 850 000 ₽ (96500 ₽/м2)
    Продаётся тёплая двухкомнатная квартира в кирпичном доме. Состояние квартиры хорошее. В шаговой доступности от дома школы, детские сады, магазины, остановки транспорта и прочая, необходимая для комфортной жизни инфраструктура. Квартира без обременений, без перепланировок. Собственник один взрослый. ID объекта в нашей базе: 25941
    размещено: 04.10.2025 , обновлено: 26.11.2025

Новостройки Екатеринбург, мкр-н. Уралмаш

Приоритет

Увеличивает просмотры в 3 раза

Ваше объявление показывается в списке выше обычных объявлений. подключить