На Метре реклама - только нормальная. Никакого шок-контента.
Помогайте независимому ресурсу, как он помогает вам. Удачи!
Новостройки Котт. посёлки Объявления Динамика цен и сделок

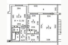
Продажа квартиры: Екатеринбург, ул. Профсоюзная, 83 (Химмаш)

  • опубликовано 18.03.2025 , обновлено 10.11.2025
  • 37
Кадастровый номер:66:41:0509029:1551
Рынок:вторичный
Срок сдачи: 1978 года
Количество комнат:2
Общая площадь:47.5 м2
Жилая площадь:28.5 м2
Площадь кухни:6.6 м2
Этаж/Этажность дома:4 / 16
Санузел:раздельный
Отделка:косметический
Год постройки:1978
Состояние:удовлетворительное
Цена:
4 900 000
Объявление снято с публикации
Коммунальные платежи:оплачиваются отдельно
Ипотека:возможна

Объект № 190487. Продается 2-комнатная квартира в доме с идеальной локацией. В шаговой доступности большое количество детских садов, школ, в том числе лучший лицей города №135, а так же магазины, парк-стадион Химмаш, пруд с набережной и все остановки транспорта.
Квартира идеально подойдет семье с маленькими детьми.
В доме два рабочих лифта: грузовой и легковой.
Быстрый выход на сделку. Один взрослый собственник, документы готовы, в квартире никто не прописан. ***Гарантийный сертификат «Защита собственности» по данному объекту в подарок***

Объявление снято с публикации

Ипотечный калькулятор

лет
%
Сумма кредита
4900000 ₽
Платеж
22 540 ₽

История предложений в этом доме

объявление снято с публикации в продаже комнат площадь этаж цена,
Екатеринбург, ул. Профсоюзная, 83 (Химмаш) - фото квартиры 15 ноября 2025 90 дн. 2 47.5 3/16 4 700 000
Екатеринбург, ул. Профсоюзная, 83 (Химмаш) - фото квартиры 28 июня 2025 90 дн. 2 48.3 12/16 4 550 000
Екатеринбург, ул. Профсоюзная, 83 (Химмаш) - фото квартиры 24 июня 2025 90 дн. 2 48.3 12/16 4 500 000
Екатеринбург, ул. Профсоюзная, 83 (Химмаш) - фото квартиры 10 июня 2025 90 дн. 2 48.3 12/16 4 500 000
Екатеринбург, ул. Профсоюзная, 83 (Химмаш) - фото квартиры 28 мая 2025 90 дн. 2 48.3 12/16 4 500 000
Екатеринбург, ул. Профсоюзная, 83 (Химмаш) - фото квартиры 15 мая 2025 90 дн. 2 48.3 12/16 4 990 000
Екатеринбург, ул. Профсоюзная, 83 (Химмаш) - фото квартиры 7 мая 2025 90 дн. 2 48.3 12/16 4 990 000
22 апреля 2025 90 дн. 2 48.3 12/16 5 100 000
Екатеринбург, ул. Профсоюзная, 83 (Химмаш) - фото квартиры 3 апреля 2025 90 дн. 2 48.3 12/16 5 100 000
Екатеринбург, ул. Профсоюзная, 83 (Химмаш) - фото квартиры 26 марта 2025 90 дн. 2 48.3 12/16 5 100 000
Екатеринбург, ул. Профсоюзная, 83 (Химмаш) - фото квартиры 14 марта 2025 90 дн. 2 48.3 12/16 5 200 000
Екатеринбург, ул. Профсоюзная, 83 (Химмаш) - фото квартиры 17 января 2025 90 дн. 2 48 6/16 4 300 000
Екатеринбург, ул. Профсоюзная, 83 (Химмаш) - фото квартиры 10 декабря 2024 90 дн. 1 34 3/16 3 100 000
Екатеринбург, ул. Профсоюзная, 83 (Химмаш) - фото квартиры 11 сентября 2024 90 дн. 2 47.2 4/16 3 600 000
Екатеринбург, ул. Профсоюзная, 83 (Химмаш) - фото квартиры 22 января 2025 90 дн. 2 47 3/16 3 599 000
Екатеринбург, ул. Профсоюзная, 83 (Химмаш) - фото квартиры 7 августа 2024 90 дн. 1 41.3 1/16 3 490 000
Екатеринбург, ул. Профсоюзная, 83 (Химмаш) - фото квартиры 20 января 2024 90 дн. 2 46.8 5/16 4 000 000
Екатеринбург, ул. Профсоюзная, 83 (Химмаш) - фото квартиры 9 мая 2024 90 дн. 2 47.7 2/16 3 999 000
Екатеринбург, ул. Профсоюзная, 83 (Химмаш) - фото квартиры 22 декабря 2023 90 дн. 2 48 3/16 4 500 000
Екатеринбург, ул. Профсоюзная, 83 (Химмаш) - фото квартиры 28 сентября 2023 90 дн. 1 41.4 1/16 3 800 000
15 декабря 2022 90 дн. 1 34.3 4/16 2 800 000
Екатеринбург, ул. Профсоюзная, 83 (Химмаш) - фото квартиры 30 ноября 2022 90 дн. 2 48 7/16 3 760 000
Екатеринбург, ул. Профсоюзная, 83 (Химмаш) - фото квартиры 9 июня 2022 90 дн. 1 34.9 11/16 3 250 000
Екатеринбург, ул. Профсоюзная, 83 (Химмаш) - фото квартиры 11 февраля 2022 90 дн. 2 48 12/16 3 950 000
Екатеринбург, ул. Профсоюзная, 83 (Химмаш) - фото квартиры 24 декабря 2021 90 дн. 2 48.3 11/16 3 099 000
Екатеринбург, ул. Профсоюзная, 83 (Химмаш) - фото квартиры 22 декабря 2021 90 дн. 2 48 11/16 3 350 000
Екатеринбург, ул. Профсоюзная, 83 (Химмаш) - фото квартиры 14 января 2022 90 дн. 2 48 10/16 3 400 000
Екатеринбург, ул. Профсоюзная, 83 (Химмаш) - фото квартиры 11 ноября 2021 90 дн. 1 34 3/16 2 400 000
Екатеринбург, ул. Профсоюзная, 83 (Химмаш) - фото квартиры 19 ноября 2021 90 дн. 2 48.3 11/16 3 099 000
Екатеринбург, ул. Профсоюзная, 83 (Химмаш) - фото квартиры 28 августа 2021 90 дн. 2 48.3 11/16 3 189 000

Похожие предложения о продаже квартир в Екатеринбурге (Химмаш)

  • 2-к квартира, Профсоюзная, 53

    • 48 м2
    • 12/12 этаж
    • Состояние: хорошее
    4 200 000 ₽ (87500 ₽/м2)
    Продается уютная и светлая двухкомнатная видовая квартира с панорамными видами на реку Исеть! Готовая принять новую семью для проживания. С удовольствием покажем и расскажем всё подробнее на просмотре. Преимущества: Инфраструктура района располагает всеми необходимыми удобствами для комфортного быта: неподалёку расположены удобные супермаркеты «Монетка», «Магнит», доступные аптеки, спортивные клубы (ReGYM всего в семи минутах пешком). Для владельцев домашних животных предусмотрена ветклиника напротив дома. Семьи с детьми оценят близость детских садов №391 и №127, лицея №135 и школы №86, расположенных буквально в шаговой доступности. Для удобства передвижения поблизости проходят маршруты автобусов №98, №78, №60 и троллейбусов №31, №36. Дополнительные преимущества: - Спокойные и доброжелательные соседи - Благоустроенный двор с детскими и спортивными площадками. Отличный вариант для пассивного дохода - можно легко сдать в аренду, фирмы арендуют сотрудникам квартиру. Идеально для вложения ваших денег в недвижимость. Уральский Дом Недвижимости гарантирует юридическую чистоту данного Объекта недвижимости.
    размещено: 12.12.2025 , обновлено: 13.12.2025
  • 2-к квартира, Водная, 21

    • 52 м2
    • 5/9 этаж
    • Состояние: хорошее
    3 850 000 ₽ (74000 ₽/м2)
    Объект № 196313. Представьте себе просторную светлую квартиру в тихом районе Екатеринбурга, где вас ждёт настоящий домашний уют. Здесь идеально разместится молодая семья, мечтающая создать своё собственное гнёздышко. Просторная гостиная станет местом семейных вечеров и встреч с друзьями. Вторая комната прекрасно подойдёт под детскую, где малыш сможет спокойно расти и развиваться. Удобная кухня оборудована необходимым гарнитуром, благодаря чему приготовление пищи превратится в удовольствие. А вместительный шкаф в прихожей позволит удобно разместить одежду и обувь всей семьи. Расположенная на пятом этаже десятиэтажного дома, эта квартира обеспечит тишину и необходимое спокойствие. Окружающая инфраструктура включает в себя развитые зоны отдыха, школы и детские сады поблизости, делая жизнь молодой семьи комфортной и беззаботной. Этот дом станет прекрасным началом вашего семейного пути. Создавайте здесь свою историю счастья и благополучия! Один собственник среднего возраста. Обременений нет. ***Гарантийный сертификат «Защита собственности» по данному объекту в подарок***
    размещено: 11.12.2025 , обновлено: 13.12.2025
  • 2-к квартира, Инженерная, 21/3

    • 42 м2
    • 1/5 этаж
    • Состояние: хорошее
    3 700 000 ₽ (88100 ₽/м2)
    Продается уютная квартира с комфортной планировкой. Развитая инфраструктура района включает в себя все необходимое для комфортной жизни-в пешей доступности школы и детские сады, остановки общественного транспорта и магазины. Так же рядом располагается сквер-есть все для занятий спортом и прогулок на свежем воздухе.Остается кухонный гарнитур со встроенной газовой панелью , встроенный шкаф.Квартира оборудована охранной сигнализацией.Звоните, ответим на все вопросы! Просмотры по согласованию в удобное для вас время. ID объекта в нашей базе: 3058
    размещено: 04.12.2025 , обновлено: 12.12.2025
  • 2-к квартира, Профсоюзная, 53

    • 47.9 м2
    • 2/12 этаж
    4 800 000 ₽ (100200 ₽/м2)
    Объект № 196068. Продаю 2- комнатную квартиру 47,7 метров, НА ВТОРОМ ЭТАЖЕ. С идеальной планировкой: изолированные комнаты и огромная лоджия- можно сделать отдельную комнату с возможностью узаконить, либо организовать зимний сад. В квартире установлены новые качественные стеклопакеты 5- камерного профиля, большие чугунные батареи (очень тепло). Идеальная звукоизоляция. Заменена проводка по всей квартире на медную. Чтоб увеличить высоту потолка убран пол, осталось залить. В подъезде спокойно, чисто. В окружении дружелюбных соседей. Дверь на отсек из 4 квартир. Двор большой зелёный, оборудованная детская площадка, парковочные места. Очень развита инфраструктура: рядом шикарная прогулочная зона у пруда, лодочная станция с теплыми беседками, стадион, детские сады, школы, детская и взрослая поликлиники. Большое количество сетевых магазинов, бассейн и спортивные залы. ОТДАДИМ В ДОБРЫЕ РУКИ. ***Гарантийный сертификат «Защита собственности» по данному объекту в подарок***
    размещено: 01.12.2025 , обновлено: 13.12.2025
  • 2-к квартира, Южногорская, 9

    • 49 м2
    • 3/16 этаж
    • Состояние: хорошее
    6 000 000 ₽ (122400 ₽/м2)
    Объект № 195281. Продаётся уютная 2-комнатная квартира площадью 49 м² с чудесным видом на парк. Расположение: Екатеринбург, Южнорская ул., 9, район Химмаш. Рядом вся необходимая инфраструктура: магазины, детсад, школа, больница и спорткомплекс с зеленым пространством вокруг живописного Нижне-Исетского пруда. Жилая площадь 27м², кухня 12 м². Находясь на 3 этаже нового 16-этажного кирпичного дома (2006 г.п.), квартира радует своей свежестью и светом. Просторные комнаты наполнены солнечным светом, есть просторная лоджия с отделкой натуральной древесиной. Удобный раздельный санузел. Подъезд оснащен пандусом и грузовым лифтом, а за порядок и состояние дома ответственно следит местное ТСЖ. Для автовладельцев доступна парковочная площадка. Запишитесь на просмотр жилья прямо сейчас! Выгода при работе с ГК Новосел: полная организационная поддержка продавца и покупателя (все документы за вас соберем), присутствие на сделке на всех этапах, юридическое сопровождение сделки как продавца, так и покупателя (подготовка документов и консультирование), ГК Новосел 25 лет на рынке. ***Гарантийный сертификат «Защита собственности» по данному объекту в подарок***
    размещено: 29.10.2025 , обновлено: 15.11.2025

    2-к квартира, Славянская, 53

    • 49 м2
    • 8/10 этаж
    • Состояние: идеальное
    5 300 000 ₽ (108200 ₽/м2)
    Не зря существует отдельное название этого района -СЕВЕРНЫЙ ХИММАШ. а на самом деле это южная часть города. и этот район иной, нежели сам Химмаш. Это маленький мирок, в котором добрососедские отношения. все друг друга знают. Самое главное он СПОКОЙНЫЙ. Ну в каком еще районе вы сможете собирать малину целое лето ( проверено мной лично), только не ленись. 2. магазины и прочее все под рукой. но ! чего нет у других - это стадион, куда может ходить в секции (хоккейная, лыжная, футбольная) ваш ребенок . Два водоема-Нижнеисетский и Рамада с организованными зонами отдыха. никуда не надо ездить. 3. В квартире сделан косметический ремонт, комнаты светлые и просторные. Просторная кухня позволит удобно разместить обеденную зону. Санузел раздельный, что обеспечивает дополнительный комфорт. Лоджия выходит во двор, что делает квартиру тихой и уютной. Дом в хорошем состоянии.⁉️ Вы не дозвонились? ( а это может быть по понятным причинам...). ????ВОЗМОЖЕН ОБМЕН!Если у вас есть своя недвижимость, покупатель на которую ещё не найден, то мы решим и этот вопрос! Просмотры по договорённости. Звоните!!!ЛЮБАЯ ФОРМА ОПЛАТЫ:-НАЛИЧНЫЕ❗оформим ИПОТЕКУ ( даже если у вас не айс с кредитной историей)❗Субсидия ДОМ.РФ ❗Материнский капитал❗Любые сертификаты‼️-МЫ МОЖЕМ ПРЕДЛОЖИТЬ ВАМ СУБСИДИРОВАННУЮ СТАВКУ НА ВТОРИЧНОЕ ЖИЛЬЕ 11.99 %. Эксклюзивно в ДОМОС. огромная просьба - в связи с тем, что сейчас очень плохая связь, написать сообщение и я вам отвечу ‼️Моя персональная скидка агента , которая суммируется с о скидкой Сбербанка. объявление на Дом клик ID объекта в нашей базе: 9780
    размещено: 22.10.2025 , обновлено: 6.11.2025

    2-к квартира, Славянская, 58

    • 44.9 м2
    • 1/5 этаж
    • Состояние: хорошее
    3 590 000 ₽ (80000 ₽/м2)
    Предлагаем Вашему вниманию уютную, отличную 2х комнатную квартиру общей площадью 44.5кв.м. Квартира находится в спальном районе Тихий , спокойный район с множеством красивых мест- набережная пруда зеленые парковые зоны, где можно отдохнуть от городской суеты. Рядом вся необходимая инфраструктура - магазины, больницы, детские сады, аптеки, учебные заведения. Квартира очень теплая, этаж высокий, имеется просторная гардеробная. Окна, батареи , входная дверь- заменены! Эта квартира – настоящая находка для тех, кто ценит тишину и экологичность. Купите светлую и солнечную современную квартиру в зеленом районе Екатеринбурга – где вас ждут комфорт и уют! Квартира готова к проживанию. Приглашаем на просмотр! ID объекта в нашей базе: 26073
    размещено: 15.10.2025 , обновлено: 9.12.2025

    2-к квартира, Грибоедова, 6

    • 42 м2
    • 5/5 этаж
    • Состояние: хорошее
    4 200 000 ₽ (100000 ₽/м2)
    Объект № 194922. Продается двухкомнатная квартира в самом центре Химмаша на 5 этаже. В квартире выполнен качественный, капитальный ремонт, с использованием современных отделочных материалов. Новый ламинат, стены выровнены, натяжные потолки, заменена проводка. В ванной комнате заменены трубы, кафель, сантехника. Дом обслуживается ТСЖ, подъезды чистые, соседи приличные. В шаговой доступности сетевые магазины, школы, садики. Остановка общественного транспорта рядом с домом. Чистая продажа, без долгов и обременений, один собственник. Звоните и приходите на просмотр. ***Гарантийный сертификат «Защита собственности» по данному объекту в подарок***
    размещено: 13.10.2025 , обновлено: 10.11.2025

    2-к квартира, Славянская, 58

    • 44 м2
    • 1/5 этаж
    • Состояние: хорошее
    3 700 000 ₽ (84100 ₽/м2)
    Объект № 194632. В продаже 2-комнатная квартира на Химмаше. Состояние квартиры заезжай и живи. Подъезд и двор чистый. Дом удачно расположен. У дома и напротив остановки общественного транспорта, через дорогу - проходная Центральной городской больницы №20. Инфраструктура развита: школы, детские сады, магазины, пункты выдачи заказов и большой парк-стадион ФОК Чкаловский. Квартира без обременений, ипотечных хвостов и использования материнского капитала. Приглашаем на просмотр ***Гарантийный сертификат «Защита собственности» по данному объекту в подарок***
    размещено: 13.10.2025 , обновлено: 12.12.2025

    2-к квартира, Профсоюзная, 53

    • 47.7 м2
    • 5/12 этаж
    • Состояние: хорошее
    5 390 000 ₽ (113000 ₽/м2)
    Самое выгодное предложение в таких домах улучшенной планировки! Продаем нашу любимую ,уютную квартиру.Квартира 2-х комнатная, комнаты изолированы в разных сторонах, на комфортном 5 этаже, окна выходят на Нижнеисетский пруд, никаких машин и грязи, тишина и зелень за окном.В квартире сделан капитальный ремонт, выровнены все стены, пол- на полу керамогранит и ламинат 33 класса, везде новая медная мощная проводка, качественная сейф дверь, сантехника Jacob Delafon, ванна Roca,межкомнатные двери новые.Лоджия 9 кв.м. ❗️утеплена и проведен теплый пол. При покупке экономия времени и ₽ на ремонте минимум 1млн., одну такую лоджию так сделать порядка 300 тыс стоит в среднем.На Химмаше самое лучшее местоположение в этом месте вдоль пруда - парк, лодочная за домом, все магазины рядом, остановки, до центра химмаша ул. Грибоедова 5 мин пешком, ничем не пахнет в отличии от правой стороны химмаша.Один взрослый собственник, быстрый выход на сделку. ID объекта в нашей базе: 11463
    размещено: 24.09.2025 , обновлено: 12.12.2025

    2-к квартира, Инженерная, 75

    • 43 м2
    • 8/9 этаж
    • Состояние: хорошее
    3 850 000 ₽ (89500 ₽/м2)
    Объект № 194205. Продаётся уникальная двухкомнатная квартира на Химмаше. Комнаты изолированные. Санузел раздельный. Хороший ремонт. Мебель. Заезжай и живи. Лоджия остеклена. В шаговой доступности школы, магазины, аптеки, детские сады, фитнес-клуб, бассейн, парк. До ближайшей остановки общественного транспорта – 1 минута пешком. Выгода при работе с ГК Новоселе: полная организационная поддержка, как продавца, так и покупателя (все бумаги за вас соберем), присутствие на сделке на всех этапах, юридическое сопровождение сделки как продавца, так и покупателя (подготовка документов и консультирование), ГК Новосел 25 лет на рынке, выдает гарантийный сертификат на сделку. Торг. ***Гарантийный сертификат «Защита собственности» по данному объекту в подарок***
    размещено: 08.09.2025 , обновлено: 10.12.2025

    2-к квартира, Инженерная, 19а

    • 49 м2
    • 6/12 этаж
    • Состояние: удовлетворительное
    4 050 000 ₽ (82700 ₽/м2)
    В продаже двухкомнатная квартира с функциональной планировкой в кирпичном доме!Изолированные комнаты, просторный коридор и лоджия. Окна на разные стороны. Квартира теплая с хорошей шумоизоляцией.Квартира в доме вдали от проезжих дорог, при этом вся необходимая инфраструктура в шаговой доступности. Магазины Магнит и Кировский, два детских сада, школа, бассейн, клуб Фехтования, футбольная площадка, сквер, Новая больница. Есть парковочные места для автомобилей. Один совершеннолетний собственник. Чистая продажа.Звоните и записывайтесь на просмотр! ID объекта в нашей базе: 11662
    размещено: 02.09.2025 , обновлено: 13.12.2025

    2-к квартира, Грибоедова, 24

    • 48.1 м2
    • 2/4 этаж
    • Состояние: хорошее
    4 180 000 ₽ (86900 ₽/м2)
    Объект № 193946. Предлагается к продаже уютная двухкомнатная квартира 48 кв. м на удобном 2 этаже в самом центре микрорайона Химмаш. Квартира в жилом состоянии, но есть возможность воплотить свои дизайнерские идеи, сделав ремонт под себя (все стены выровнены под оклейку обоями). Высота потолков 3,2 м. Перекрытия ж/бетонные. Комнаты изолированные, светлые и просторные, а планировка позволит удобно расставить мебель и технику. Большой совмещенный санузел и просторная прихожая. В шаговой доступности — школы, магазины, аптеки, детские сады, фитнес-клуб, бассейн, парк. До ближайшей остановки общественного транспорта 2 минут пешком. Дом находится в хорошем состоянии, выполнен капитальный ремонт. Подъезд чистый и ухоженный, есть домофон. Во дворе предусмотрены парковочные места, поэтому можно спокойно оставить автомобиль. Юридическая чистота документов гарантируется: два взрослых собственника, никаких обременений, ипотек, опек и материнских капиталов, нет долгов по коммунальным платежам и капитальному ремонту. Показы по договоренности. Выгода при работе с ГК Новоселе: полная организационная поддержка, как продавца, так и покупателя (все документы за вас соберем), присутствие на сделке на всех этапах, юридическое сопровождение сделки продавца и покупателя (подготовка документов и консультирование). ГК Новосел 25 лет на рынке, выдает гарантийный сертификат на сделку. ***Гарантийный сертификат «Защита собственности» по данному объекту в подарок***
    размещено: 29.08.2025 , обновлено: 1.12.2025

    2-к квартира, Космодемьянской, 44

    • 50 м2
    • 2/2 этаж
    • Состояние: хорошее
    4 390 000 ₽ (87800 ₽/м2)
    Объект № 193961. Продаётся уникальная двухкомнатная квартира на Химмаше. Комнаты изолированные. Санузел раздельный. Отличный ремонт. Квартира полнометражная, два балкона. Светлая, тёплая, окна выходят на восточную и южную сторону. Высота потолков 2,85 м. Два раза был кап. ремонт (в 1989 меняли всё- перекрытия, полы. И в 2016 году). Рядом: аптеки, детские сады, школа, фитнес-клуб, бассейн, парк, больница. До ближайшей остановки общественного транспорта 5 минут пешком. Выгода при работе с ГК Новоселе: полная организационная поддержка, как продавца, так и покупателя (все бумаги за вас соберем), присутствие на сделке на всех этапах, юридическое сопровождение сделки как продавца, так и покупателя (подготовка документов и консультирование). ГК Новосел 25 лет на рынке, выдает гарантийный сертификат на сделку. Торг. ***Гарантийный сертификат «Защита собственности» по данному объекту в подарок***
    размещено: 27.08.2025 , обновлено: 11.12.2025

    2-к квартира, Косарева, 1

    • 43 м2
    • 2/5 этаж
    3 990 000 ₽ (92800 ₽/м2)
    Объект № 193911. Предлагается к продаже уютная двухкомнатная квартира площадью 43 кв. м на 2 этаже. Выполнен современный ремонт с использованием качественных материалов, делали для себя. Натяжные потолки, ламинат, заменена вся проводка, балкон обшит вагонкой, установлены качественные межкомнатные двери. Удачная планировка: 2 изолированные комнаты, своя небольшая гардеробная. Развитая инфраструктура района: в шаговой доступности детские сады, школы, магазины, остановка общественного транспорта. Двор тихий, зеленый, есть место под авто. В подарок новому собственнику оставляем кухонный гарнитур, вместительный шкаф купе, водонагреватель. Один собственник, квартира освобождена, быстрая продажа. Звоните и приходите на просмотр. ***Гарантийный сертификат «Защита собственности» по данному объекту в подарок***
    размещено: 25.08.2025 , обновлено: 5.12.2025

    2-к квартира, Дагестанская, 34

    • 41 м2
    • 3/9 этаж
    • Состояние: хорошее
    3 750 000 ₽ (91500 ₽/м2)
    Не зад Представляем вашему вниманию прекрасную 2-комнатную квартиру общей площадью 41 квадратный метр, расположенную на третьем этаже девятиэтажного кирпичного дома, построенного в 1990 году. Почему именно эта квартира? ☀️ Изолированные комнаты – идеальный вариант как для семьи с детьми или молодых пар, так и для тех, кто ценит личное пространство;???? Просторная кухня позволит вам раскрыть свой кулинарный талант, а также устроить уютные семейные ужины и посиделки с друзьями;✨ Квартира находится в отличном состоянии благодаря единственному собственнику, что значительно экономит ваши средства на ремонт после покупки;Мы понимаем важность надежности сделки при покупке недвижимости, поэтому спешим сообщить, что все необходимые документы уже подготовлены, юридическая чистота подтверждена – никаких обременений и задолженностей нет. Хотите получить больше информации? Звоните прямо сейчас, мы ответим на любые вопросы и организуем просмотр в удобное время. Не упустите шанс стать владельцем прекрасного семейного гнездышка по доступной цене. ID объекта в нашей базе: 17588
    размещено: 25.06.2025 , обновлено: 13.12.2025

    2-к квартира, Косарева, 11

    • 52.3 м2
    • 7/12 этаж
    • Состояние: хорошее
    5 200 000 ₽ (99400 ₽/м2)
    Объект № 192000. Продам видовую двухкомнатную квартиру на Химмаше. Отличное расположение, рядом школы и детские садики. Высокий этаж, отличные видовые характеристики, очень светлая квартира. Чистовой ремонт, раздельных комнаты правильной формы. Совмещенный санузел. Дополнительно остается мебель и техника. Ипотека возможна. Цена действительная до 15.08.25. Приглашаю покупателей на просмотр! ***Гарантийный сертификат «Защита собственности» по данному объекту в подарок***
    размещено: 19.05.2025 , обновлено: 8.12.2025

    2-к квартира, Грибоедова, 8/вст

    • 49.5 м2
    • 4/5 этаж
    • Состояние: удовлетворительное
    4 600 000 ₽ (92900 ₽/м2)
    Объект № 191396. В продаже 2-квартира в отличном доме в центре Химмаша. Улучшенная планировка, изолированные комнаты на разные стороны. Теплый дом из желтого кирпича - очень высокая звукоизоляция. На этаже всего 2 квартиры. В шаговой доступности школы, садики, остановка, все магазины, детские центры. Квартира отлично подходит под покупку для сдачи в аренду (такие квартиры в этом районе пользуются большим спросом). Обременений нет, к сделке готовы. ***Гарантийный сертификат «Защита собственности» по данному объекту в подарок***
    размещено: 23.04.2025 , обновлено: 1.12.2025

    2-к квартира, Инженерная, 37

    • 46 м2
    • 1/4 этаж
    5 400 000 ₽ (117400 ₽/м2)
    Объект № 191125. Продаётся уникальная двухкомнатная квартира на Химмаше. Высота потолков 3,2 м. Внутри квартиры нет несущих стен. Перекрытия ж/бетонные. Расположение дома очень удачное для офиса или магазина. Высокий пешеходный и автомобильный трафик. Выгода при работе с ГК Новоселе: полная организационная поддержка, как продавца, так и покупателя (все документы за вас соберем), присутствие на сделке на всех этапах, юридическое сопровождение сделки продавца и покупателя (подготовка документов и консультирование). ГК Новосел выдает гарантийный сертификат на сделку.
    размещено: 08.04.2025 , обновлено: 5.12.2025

    2-к квартира, Грибоедова, 28

    • 47 м2
    • 1/4 этаж
    • Состояние: плохое
    5 440 000 ₽ (115700 ₽/м2)
    Объект № 191120. Продаётся уникальная двухкомнатная квартира на Химмаше. Высота потолков 3,2 м. Внутри квартиры нет несущих стен. Перекрытия ж/бетонные. Комнаты изолированные. Санузел совмещенный. Большая площадь квартиры плюс невысокая цена. Расположение дома очень удачное для офиса или магазина. Высокий пешеходный и автомобильный трафик. В шаговой доступности — школы, магазины, аптеки, детские сады, фитнес-клуб, бассейн, парк. До ближайшей остановки общественного транспорта – 2 минут пешком. Выгода при работе с ГК Новоселе: полная организационная поддержка, как продавца, так и покупателя (все документы за вас соберем), присутствие на сделке на всех этапах, юридическое сопровождение сделки продавца и покупателя (подготовка документов и консультирование). ГК Новосел выдает гарантийный сертификат на сделку. ***Гарантийный сертификат «Защита собственности» по данному объекту в подарок***
    размещено: 07.04.2025 , обновлено: 13.12.2025

Приоритет

Увеличивает просмотры в 3 раза

Ваше объявление показывается в списке выше обычных объявлений. подключить