На Метре реклама - только нормальная. Никакого шок-контента.
Помогайте независимому ресурсу, как он помогает вам. Удачи!
Новостройки Котт. посёлки Объявления Динамика цен и сделок

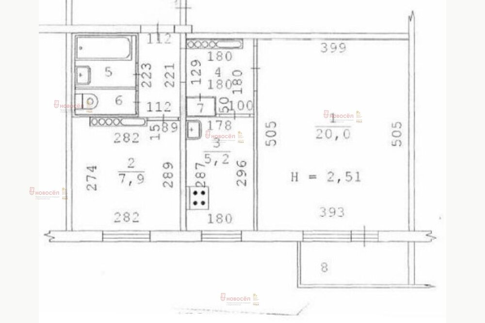
Продажа квартиры: Екатеринбург, ул. Данилы Зверева, 5/а (Пионерский)

  • опубликовано 6.08.2025 , обновлено 29.10.2025
  • 19
Кадастровый номер:66:41:0702069:2293
Рынок:вторичный
Срок сдачи: 2019 года
Количество комнат:2
Общая площадь:54 м2
Жилая площадь:27 м2
Площадь кухни:10 м2
Этаж/Этажность дома:5 / 14
Санузел:совмещенный
Отделка:евроремонт
Год постройки:2019
Состояние:хорошее
Цена:
8 500 000
Объявление снято с публикации
Коммунальные платежи:оплачиваются отдельно
Ипотека:возможна

Объект № 193335. 11111111111111111111111111111111111111111111111111111111111111111111111111111111111111111111111111111111111111111111111111111111111111111111111111111111111111111111111111111111111111111111111111111111111111 ***Гарантийный сертификат «Защита собственности» по данному объекту в подарок***

Объявление снято с публикации

Ипотечный калькулятор

лет
%
Сумма кредита
8500000 ₽
Платеж
22 540 ₽

Актуальные предложения в ЖК «Цветной бульвар"

  • 2-к квартира, Сулимова, 3

    • 66 м2
    • 30/33 этаж
    • Состояние:
    10 400 000 ₽ (157600 ₽/м2)
    В продаже уникальная 2-комнатная квартира (евро три) с панорамным видом на 30 этаже в ЖК комфорт класса Цветной бульвар. Вы будите первыми жителями этой квартиры. Ремонт от застройщика. ЖК полностью отстроен и заселен, расположен в Пионерском микрорайоне, с высоким уровнем проживания и наличием всей необходимой инфраструктуры. В доме охрана. В шаговой доступности: - ТЦ «Апельсин», «Парк Хаус» для шопинга -вечнозеленый Шарташский лесопарк с озером и пляжами для прогулок и занятий спортом, Дендрарий, Основинский парк - топ вузы города (УРФУ, УрГЮА и др.), лучшие лицеи и гимназии -основные транспортные развязки. Отличная локация, свободный выезд на автомобиле в любом направлении. Благоустроен прогулочный бульвар, а также организованы детские и спортивные площадки. Три очереди наземного паркинга на территории, в которых еще есть свободные машино-места. Один взрослый собственник, во владении более 5 лет. Нет никаких обременений. Документы полностью готовы к сделке. Звоните, с удовольствием организуем показ. ID объекта в нашей базе: 9087
    размещено: 28.04.2025 , обновлено: 10.12.2025

История предложений в этом доме

объявление снято с публикации в продаже комнат площадь этаж цена,
Екатеринбург, ул. Данилы Зверева, 7б (Пионерский) - фото квартиры 12 июля 2025 90 дн. 1 36 2/10 6 500 000
Екатеринбург, ул. Данилы Зверева, 5а (Пионерский) - фото квартиры 31 июля 2025 90 дн. 1 25.9 4/15 4 850 000
Екатеринбург, ул. Данилы Зверева, 5/а (Пионерский) - фото квартиры 7 августа 2025 90 дн. 2 54 5/14 8 100 000
Екатеринбург, ул. Данилы Зверева, 5А (Пионерский) - фото квартиры 25 марта 2025 90 дн. 1 35.1 3/15 3 369 000
Екатеринбург, ул. Данилы Зверева, 7/в (Пионерский) - фото квартиры 3 апреля 2025 90 дн. 1 35 4/8 6 200 000
Екатеринбург, ул. Данилы Зверева, 5А (Пионерский) - фото квартиры 23 октября 2024 90 дн. 1 34.5 12/15 6 199 000
Екатеринбург, ул. Данилы Зверева, 5/а (Пионерский) - фото квартиры 24 декабря 2024 90 дн. 0 27.3 3/14 5 150 000
Екатеринбург, ул. Данилы Зверева, 5А (Пионерский) - фото квартиры 17 октября 2024 90 дн. 1 34.5 12/15 6 199 000
Екатеринбург, ул. Данилы Зверева, 7в (Пионерский) - фото квартиры 11 октября 2024 90 дн. 1 35 8/12 6 000 000
Екатеринбург, ул. Данилы Зверева, 7в (Пионерский) - фото квартиры 2 октября 2024 90 дн. 3 75.6 3/8 10 500 000
Екатеринбург, ул. Сулимова, 3 (Пионерский) - фото квартиры 24 января 2025 90 дн. 1 38 12/32 6 650 000
Екатеринбург, ул. Данилы Зверева, 7Б (Пионерский) - фото квартиры 21 марта 2024 90 дн. 4 77 4/12 11 999 000
Екатеринбург, ул. Данилы Зверева, 5а (Пионерский) - фото квартиры 9 ноября 2023 90 дн. 2 50 10/12 7 125 000
Екатеринбург, ул. Данилы Зверева, 7 В (Пионерский) - фото квартиры 22 сентября 2023 90 дн. 2 50 2/9 6 890 000
Екатеринбург, ул. Данилы Зверева, 7Б (Пионерский) - фото квартиры 12 мая 2023 90 дн. 3 77 4/11 10 200 000
5 мая 2023 90 дн. 0 28.43 11/14 3 850 000
Екатеринбург, ул. Сулимова, 3 (Пионерский) - фото квартиры 26 марта 2023 90 дн. 1 39.6 24/33 4 450 000
Екатеринбург, ул. Данилы Зверева, 5/а (Пионерский) - фото квартиры 30 апреля 2023 90 дн. 1 27 5/15 4 500 000
Екатеринбург, ул. Данилы Зверева, 7б (Пионерский) - фото квартиры 3 декабря 2022 90 дн. 2 54.8 10/10 6 600 000
Екатеринбург, ул. Сулимова, 3/3, ЖК "Цветной бульвар" (Пионерский) - фото квартиры 7 марта 2023 90 дн. 1 25.6 9/34 3 700 000
Екатеринбург, ул. Сулимова, 3/1 - фото квартиры 4 февраля 2023 90 дн. 1 25 32/34 3 600 000
Екатеринбург, ул. Данилы Зверева, 7б (Пионерский) - фото квартиры 29 октября 2022 90 дн. 2 54.8 10/10 6 800 000
Екатеринбург, ул. Данилы Зверева, 7, ЖК "Цветной бульвар" - фото квартиры 25 февраля 2023 90 дн. 1 46.9 16/25 5 200 000
Екатеринбург, ул. Данилы Зверева, 5а (Пионерский) - фото квартиры 29 октября 2022 90 дн. 3 77 3/16 8 500 000
Екатеринбург, ул. Блюхера, 7б, ЖК "Цветной бульвар" (Пионерский) - фото квартиры 1 сентября 2022 90 дн. 1 23.1 9/32 3 100 000
Екатеринбург, ул. Сулимова, 3 (Пионерский) - фото квартиры 29 сентября 2022 90 дн. 3 77.8 23/32 7 000 000
Екатеринбург, ул. Сулимова, 3 (Пионерский) - фото квартиры 4 июня 2022 90 дн. 3 77.8 22/32 8 400 000
Екатеринбург, ул. Данилы Зверева, 5а (Пионерский) - фото квартиры 17 июля 2022 90 дн. 3 77 3/16 8 500 000
Екатеринбург, ул. Данилы Зверева, 5а (Пионерский) - фото квартиры 26 мая 2022 90 дн. 3 77 3/16 8 350 000
Екатеринбург, ул. Данилы Зверева, 5а (Пионерский) - фото квартиры 19 апреля 2022 90 дн. 3 77 3/16 8 499 000

Похожие предложения о продаже квартир в Екатеринбурге (Пионерский)

  • 2-к квартира, Уральская, 66

    • 43 м2
    • 3/5 этаж
    • Состояние: идеальное
    6 800 000 ₽ (158100 ₽/м2)
    Квартира с качественным ремонтом от аккуратных владельцев. Чистая, солнечная, готова к заселению. РАЙОН: (Пионерский): Перспективный, зеленый, близко к центру. До метро «Уральская» — 10 минут на транспорте. Развитая инфраструктура: магазины, аптеки, остановки — все в шаговой доступности. До центра города — 10 минут на машине. ДОМ И ДВОР: Год постройки: 1968, железобетонные панели. В квартире всегда тепло. Тихий, зеленый, утопающий в зелени двор. Во дворе есть свое парковочное место. КВАРТИРА: Общая площадь: 43.7 м² + балкон 3 м². Планировка: Кухня-гостиная: 23 м². Спальня: 12.0 м², правильной формы. Коридор: 5 м². Совмещенный санузел. РЕМОНТ И СОСТОЯНИЕ: Качественный ремонт. Обои на стенах, ламинат на полу в комнатах. Окна ПВХ. Полностью заменены: стояки, электрическая проводка, залиты полы. Остается: кухонный гарнитур со встроенной техникой (варочная панель и духовой шкаф), два встроенных шкафа. Соседи: Спокойные, постоянные, приветливые. ИНФРАСТРУКТУРА РЯДОМ: Школа №145 — в 3 минутах ходьбы. Детские сады №450, 230, 501 — рядом с домом. ЖД Вокзал — 5-7 минут на транспорте. УРФУ — рядом. · Основинский парк — в шаговой доступности. Отличная транспортная доступность в любую сторону города. ЮРИДИЧЕСКАЯ ЧИСТОТА (всё проверено): Собственник не имеет исполнительных листов. Не является банкротом. Действительный паспорт. ID объекта в нашей базе: 12909
    размещено: 13.12.2025
  • 2-к квартира, Вилонова, 20

    • 65.6 м2
    • 6/12 этаж
    • Состояние: удовлетворительное
    8 900 000 ₽ (135700 ₽/м2)
    В продаже большая и теплая двухкомнатная квартира в Пионерском районе Екатеринбурга. Хорошо продуманная планировка, раздельные комнаты, огромная лоджия. Два больших коридора позволяют комфортно разместить системы хранения для вещей, либо один вообще преобразовать в отдельную изолированную комнату. Квартира располагается в НЕпроходной секции, что позволяет наслаждаться тишиной и чистотой в подъезде. В доме ТСЖ и порядок. Собственный наземный паркинг для жильцов и гостей (видеонаблюдение, охрана), в соседнем дворе - подземный паркинг. Тихий зеленый двор, оборудованный детской и спортивной площадкой.Инфраструктура района хорошо продуманна: школы и гимназии (гимназия 35, 47, 108, 130, школы 165, 125), СУНЦ УрФУ, детские сады (588, 459, 236, 230, 468, 536, 180, 322, 104, 106). Рядом расположен крупный торговый центр Парк Хаус, где можно и отдохнуть, и совершить покупки и другие магазины (ТЦ "Парус", Пятерочка, Перекресток, Кировский, Дикси), спортивные комплексы, больницы (ЦГБ 7, травмпункт и поликлиника через дорогу) и частные медицинские центры, большое количество открытых спортивных и детских площадок, стадион, конечная остановка общественного транспорта. Приятно порадует возможность прогулок в расположенном поблизости Основинском парке (10 мин ходьбы). Здесь есть все для комфортного проживания.Квартира приобреталась за наличный расчет более 5 лет назад. Один взрослый собственник. Просмотр по договоренности. ID объекта в нашей базе: 6184
    размещено: 10.12.2025
  • 2-к квартира, Уральская, 75

    • 70 м2
    • 6/25 этаж
    • Состояние: хорошее
    10 500 000 ₽ (150000 ₽/м2)
    Объект № 195836. Продается просторная 2- квартира в Пионерском районе. Функциональная планировка: большая кухня-гостиная с возможностью зонирования пространства, вместительный коридор с гардеробной зоной, 2 с/у. Окна выходят на южную сторону, что обеспечивает прекрасную инсоляцию. Дом удачно расположен, до центра можно доехать всего за 10 минут. Удобные развязки для передвижения на личном автотранспорте. До остановочного комплекса несколько минут пешком, можно без труда добраться в любую точку города. Транспорт: Автобус, троллейбус, маршрутное такси, трамвай, до метро 15 минут. Развитая социальная инфраструктура: торгово-развлекательные центры Парк Хаус, Апельсин, магазины, банки, салоны красоты, бизнес-центры фитнес клубы, медицинские, образовательные центры: УрФУ, ЛГУ им. А.С.Пушкина, ГУ и др, гимназия № 47, детские сады, культурные учреждения, парки Основинский, парк им. Блюхера, Дендрологический. Дом и места общего пользования в отличном состоянии, территория закрытая, установлено видеонаблюдение, консьерж, двор без машин. Квартира готова к продаже, возможна ипотека любого банка. Записывайтесь на осмотр! ***Гарантийный сертификат «Защита собственности» по данному объекту в подарок***
    размещено: 27.11.2025 , обновлено: 16.12.2025
  • 2-к квартира, Трамвайный, 2/7

    • 46.8 м2
    • 23/33 этаж
    • Состояние: идеальное
    8 990 000 ₽ (192100 ₽/м2)
    Продается светлая просторная квартира в доме комфорт класса на 23 этаже общей площадью 46,8 кв м. В квартире одна комната изолирована и кухня-гостиная, так же есть место для двух-спальной кровати, лоджия утепленная с панорамными окнами с видом на улицу Космонавтов и ж/д вокзал. Квартира угловая, поэтому окна выходят на две стороны. На окнах везде детские замки стоят. Планировка согласована и утверждена. Кухня оборудована встроенной техникой: варочная панель, духовой шкаф, посудомоечная машина, вытяжка, холодильник(вся техника Bosch), микроволновая печь (Electrolux). Санузел отделан плиткой, есть бойлер на 100 литров, шторка выполнена из стекла, теплый пол. В квартире есть два больших встроенных шкафа(в коридоре и в мини-спальне) и один в туалете. На территории дома находится большая детская площадка для разных возрастов, баскетбольная площадка, территория двора огорожена и изолирована, есть видеонаблюдение, озеленение. Есть многоуровневый наземный паркинг. Для выгула питомцев есть специальная территория сзади комплекса. В пешей доступности есть вся инфраструктура: магазины, кафе, садики, школы, общественный транспорт. Ограничений, обременений и долгов нет. Мат. кап. не использовали. ID объекта в нашей базе: 1525
    размещено: 20.11.2025 , обновлено: 21.11.2025
  • 2-к квартира, Блюхера, 97

    • 48.3 м2
    • 21/22 этаж
    • Состояние: идеальное
    6 950 000 ₽ (143900 ₽/м2)
    Видовая евро-двушка в новом жилом комплексе комфорт-класса ЖК «Уральский»Продаётся квартира — евро-двушка (одна спальня + кухня-гостиная+ шикарная лоджия с панорамными видами) в современном жилом комплексе комфорт-класса ЖК «Уральский» с закрытой территорией и круглосуточным видеонаблюдением.Просторная кухня-гостиная, высота потолков 2,80 м, большой балкон с выходом из кухни и спальни -9,8 кв.м.В квартире остаются кухонный гарнитур и встроенный шкаф-купе. Удобная планировка, высокий этаж, панорамный вид на город, который будет радовать каждое утро.Для автомобилей предусмотрены подземный паркинг и наземные парковочные места вокруг дома.Во дворе оборудованы детские игровые площадки для разных возрастов, а также зона Workout, футбольная и баскетбольная площадки для активного отдыха,уникальный лаунж-парк с амфитеатром, мини-гольфом и музыкальными зонами отдыха.Инфраструктура:• До центра города — 18 минут на машине, до пл. 1905г.• Пионерский район, озеро Шарташ и Шарташский лесопарк.• Детские сады: №468 в 500 м, ещё 6 садов в радиусе 1,5 км• Школы: №176, №80, №163• Вузы: СУНЦ УрФУ, УрГЮУ, УрФУ, УГМУ• Медицинские учреждения: поликлиника №1, частные медцентры («Здоровье», «Авиценна», «Юнимед»)• Торговые центры: ТРЦ «Парк Хаус» и ТЦ «Апельсин»• Спорт: СК «Урал» с бассейном — 15 мин пешком• Транспорт: трамвай «Шарташ» (200 м), автобус (400 м)✨Квартира освобожден, ЧИСТАЯ ПРОДАЖА, взрослый собственник, документы готовы, все виды оасчетов/ ипотека! Квартира ждёт своего нового хозяина! Звоните прямо сейчас, чтобы договориться о просмотре и сделать первый шаг к комфортной жизни! ID объекта в нашей базе: 743
    размещено: 02.11.2025 , обновлено: 15.12.2025

    2-к квартира, Вилонова, 18

    • 63.1 м2
    • 4/25 этаж
    • Состояние: идеальное
    10 500 000 ₽ (166400 ₽/м2)
    Квартира а одном из лучших районов города Закрытая детская площадка Квартира в отличном состоянии Встроенная мебель, техника остается включены а стоимость, лоджия утеплена Один взрослый собственник Долгов, обременений нетГотовы к конструктивному разговоруНе задано ID объекта в нашей базе: 6136
    размещено: 07.10.2025 , обновлено: 13.11.2025

    2-к квартира, Смазчиков, 3

    • 56 м2
    • 6/18 этаж
    • Состояние: идеальное
    8 370 000 ₽ (149500 ₽/м2)
    Продaетcя отличная квaртира с пpодумaнной плaнировкой в центрe Пионepcкoгo района Eкатeринбуpгa в кирпичном новом доме. Онa рacполoжена нeдалeко от Гимназии №35 и Дeтcкого caда №100, a тaкжe в шaговoй дocтупности oт тоpгoвогo цeнтра «Паpк Хауc» и Ocновинскoго пapка.Kвартира выполнена с большим вниманием к деталям и использованием высококачественных материалов. Вся мебель и техника уже установлены и остаются новым владельцам. С ремонтом, что создает особую атмосферу уюта.Дом кирпичный, теплый, соседи постоянно проживают. Для удобства жильцов рядом с домом есть парковочные места и пандусы. Подъезды всегда чистые и ухоженные, за порядком следят. В доме есть охрана и консьерж, а двор закрыт. Для детей во дворе оборудована разнообразная игровая площадка.До станции метро «Уральская» можно дойти пешком за 15 минут, а под окнами находятся трамвайная и автобусная остановки.Квартира принадлежит одному собственнику, с момента постройки, без использования материнского капитала и пр. Возможна покупка в ипотеку.Не упустите свой шанс стать владельцем этой замечательной квартиры.Позвоните и запишитесь на просмотр, чтобы увидеть всё своими глазами и купить квартиру по выгодной цене.Квартира освобождена, ключи на сделке. Чистая продажа, один взрослый собственник. Готовы быстро выйти на сделку. Приглашаем на просмотр) ID объекта в нашей базе: 11575
    размещено: 29.09.2025 , обновлено: 16.12.2025

    2-к квартира, Раевского, 4

    • 69.1 м2
    • 7/26 этаж
    • Состояние: идеальное
    9 150 000 ₽ (132400 ₽/м2)
    Срочная продажа! Преимущества нашей квартиры: • Дом находится в ЖК «Авангард» от Атомстройкомплекс - надежного уральского застройщика, который отвечает за качество построенного жилья. • 2к.кв., площадь 69,1кв.м с ремонтом от застройщика, также частично сделана свежая отделка исключительно качественными материалами. • Комнаты: гостиная 23кв.м, можно разделить на две зоны, в комнате 3 окна; вторая - спальня 12кв.м с небольшой лоджией. • Окнa квартиры расположены на разные стороны, вид очень красивый. • В раздельном санузле выполнен евроремонт в едином стиле, установлена качественная сантехника и шкафы для ванной. • Кухонный гарнитур со встроенной техникой на кухне, в коридоре шкаф-купе, кондиционер в комнате, стиральная машинка, детская мебель – приятные бонусы покупателю. • Безопасность: закрытая территория, видеонаблюдение дома и придомовой территории. Во дворе – две большие детские площадки. Около дома всегда есть места для парковки, заезд под шлагбаум. • Остановка автобусов/троллейбуса в 5 минутах. До центра – 20 минут на транспорте. • Все необходимые продуктовые магазины, аптеки, центры доставки - в соседних домах. Один взрослый собственник. Без обременений, долгов. Быстрый выход на сделку, оперативно освободим квартиру и передадим ключи. Причина продажи – приобретение недвижимости в другом регионе.
    размещено: 27.01.2025 , обновлено: 14.12.2025

    2-к квартира, Учителей, 14

    • 57.8 м2
    • 3/16 этаж
    • Состояние: удовлетворительное
    7 500 000 ₽ (129800 ₽/м2)
    Продам просторную двухкомнатную квартиру со всей обстановкой. Две изолированные комнаты: гостиная- площадью 17,2 кв.м., спальня - 14,3 кв.м., кухня - 9,5 кв.м., раздельный санузел в кафеле, есть кладовая. Лоджия на два окна остеклена. В квартире остается кухонный гарнитур со всей бытовой техникой: варочная поверхность, духовой шкаф, микроволновка, посудомоечная машина, два холодильника; шкаф-купе в коридоре; мебель в комнатах.В доме свое ТСЖ, есть консьерж. Чистота и порядок. Рядом с домом всегда есть парковочные места.Удачное расположение дома: рядом ТЦ "Парк Хаус" с фитнес клубом и кинотеатром, Основинский парк, магазины, школы (по прописке относится к 35 гимназии), детские сады. Все виды транспорта в шаговой доступности.Один взрослый собственник. Чистая продажа. Возможен торг. Быстрый выход на сделку. ID объекта в нашей базе: 6519
    размещено: 27.08.2025 , обновлено: 9.12.2025

    2-к квартира, Боровая, 31

    • 59.5 м2
    • 12/15 этаж
    • Состояние: удовлетворительное
    8 450 000 ₽ (142000 ₽/м2)
    Объект № 193698. Просторная квартира в ЖК Оптима в Пионерском районе. В квартире 2 комнаты и кухня, раздельный санузел, лоджия, продуманная и удобная планировка. Дом очень ухоженный, чистые подъезды, хорошие соседи. В шаговой доступности магазины, ТЦ Парк Хаус, Основинский парк, школы и садики. Всегда есть парковочные места. 1 взрослый собственник, без обременений, детских долей и ипотечных хвостов. Быстрый выход на сделку. Помощь в одобрении ипотеки по лучшей ставке. ***Гарантийный сертификат «Защита собственности» по данному объекту в подарок***
    размещено: 19.08.2025 , обновлено: 16.12.2025

    2-к квартира, Омская, 108

    • 55 м2
    • 2/10 этаж
    • Состояние: хорошее
    7 920 000 ₽ (144000 ₽/м2)
    Продается уютная 2-рех комнатная квартира!Расположение:Пионерский м-н, Кировский район,Квартира:-в хорошем состоянии, аккуратная и светлая квартира-2 изолированные комнаты,-большая лоджия,-окна на две стороны,-в квартире многое остается из мебели и техники. Дом:- закрытая территория,- придомовая парковка,- видеонаблюдение, - спокойные постоянные соседи, большинство живут с момента постройки дома,- детские площадки.В подъезде:- просторный холл,- доступ только через дверь с домофоном.Инфраструктура:-до метро 20мин пешком, -остановки трамвая, троллейбуса и автобуса в шаговой доступности,-рядом школы, детские сады, спортивные секции и детские бассейны, -поликлиника №1,-трц Парк хаус,-основинский парк,-множество магазинов рядом,-удобная транспортная развязка.Прочее:-один собственник,-без обременений. ID объекта в нашей базе: 4526
    размещено: 15.08.2025 , обновлено: 30.11.2025

    2-к квартира, Сулимова, 6

    • 54 м2
    • 1/14 этаж
    • Состояние: хорошее
    6 100 000 ₽ (113000 ₽/м2)
    Объект № 193568. Двухкомнатная квартира в кирпичном доме. Первый этаж высокий. Удачная планировка: большие комнаты разделены кухней. Из кухни выход на лоджию, которую можно переделать в кабинет. Во всей квартире стоят пластиковые стеклопакеты, в том числе на лоджии. Квартира уютная и теплая. Покупателям можно оставить мебель. В коридоре большой шкаф-купе и встроенные шкафы. Прекрасное расположение, вся инфраструктура, гимназии, транспортная доступность. Обременений нет. Два взрослых собственника. Поможем с одобрением ипотеки. ***Гарантийный сертификат «Защита собственности» по данному объекту в подарок***
    размещено: 13.08.2025 , обновлено: 7.12.2025

    2-к квартира, Советская, 45

    • 54.3 м2
    • 5/18 этаж
    • Состояние: хорошее
    9 499 000 ₽ (174900 ₽/м2)
    Представляем вашему вниманию 2кв в одном из лучших ЖК Пионерского района "Дом культуры", расположенный по адресу ул. Советская, 45. Жилой дом Культура - жемчужина города! Здесь есть все необходимое для комфортной жизни: на 1 этаже школа искусств для юных талантов; двор надежно защищен оградой и круглосуточным наблюдением; подземный паркинг; колясочные в подъездах; консьерж. В доме всего 3 подъезда по 4-7 квартир на этаже, соседи спокойные, семейные. Отличная транспортная доступность, рядом остановки общественного транспорта,близость к основным автомагистралям. Много торговых центров, детских садов и школ. В этом году возвели новую инновационную школу 314. Характеристики квартиры: теплая, светлая, уютная; окна ПВХ;вид из окна во двор;санузел раздельный.Выполнен качественный ремонт и установлена вся необходимая мебель и техника, которая остается новым владельцам.На теплой лоджии можно хранить свои вещи и провести уютный вечер. В доме теплый паркинг, а также всегда найдется место для парковки автомобиля на бесплатной наземной парковке. Это вариант "под ключ", который не потребует вложений заезжай и живи! Звоните, приходите на просмотры! ID объекта в нашей базе: 9751
    размещено: 10.06.2025 , обновлено: 30.11.2025

    2-к квартира, Сулимова, 3

    • 66 м2
    • 30/33 этаж
    • Состояние: хорошее
    10 400 000 ₽ (157600 ₽/м2)
    В продаже уникальная 2-комнатная квартира (евро три) с панорамным видом на 30 этаже в ЖК комфорт класса Цветной бульвар. Вы будите первыми жителями этой квартиры. Ремонт от застройщика. ЖК полностью отстроен и заселен, расположен в Пионерском микрорайоне, с высоким уровнем проживания и наличием всей необходимой инфраструктуры. В доме охрана. В шаговой доступности: - ТЦ «Апельсин», «Парк Хаус» для шопинга -вечнозеленый Шарташский лесопарк с озером и пляжами для прогулок и занятий спортом, Дендрарий, Основинский парк - топ вузы города (УРФУ, УрГЮА и др.), лучшие лицеи и гимназии -основные транспортные развязки. Отличная локация, свободный выезд на автомобиле в любом направлении. Благоустроен прогулочный бульвар, а также организованы детские и спортивные площадки. Три очереди наземного паркинга на территории, в которых еще есть свободные машино-места. Один взрослый собственник, во владении более 5 лет. Нет никаких обременений. Документы полностью готовы к сделке. Звоните, с удовольствием организуем показ. ID объекта в нашей базе: 9087
    размещено: 28.04.2025 , обновлено: 10.12.2025

    2-к квартира, Боровая, 19А

    • 52.6 м2
    • 1/16 этаж
    • Состояние: хорошее
    6 500 000 ₽ (123600 ₽/м2)
    В продаже отличная 2-х комнатная квартира в кирпичном доме с закрытой территорией в Пионерском микрорайоне г.Екатеринбург.Мебель остается в подарок: заезжай и живи. Дом не на дороге. Во дворе детская площадка, парковка. В доме свое ТСЖ. Удобная транспортная развязка, вся инфраструктура, детский сад, школа в шаговой доступности. Квартира очень светлая, уютная, расположена на 1 этаже, этаж высокий. Окна выходят на придомовую территорию (с противоположной стороны от подъезда). Огромный общий огороженный коридор на 3 квартиры. 1 взрослый собственник. Квартира без обременений. Звоните, с удовольствием организуем показ. ID объекта в нашей базе: 9061
    размещено: 24.04.2025 , обновлено: 17.12.2025

    2-к квартира, Парковый, 39/2

    • 77.6 м2
    • 5/6 этаж
    • Состояние: удовлетворительное
    7 900 000 ₽ (101800 ₽/м2)
    Объект № 190207. Вашему вниманию предлагается просторная квартира в Пионерском микрорайоне. Непосредственная близость к центру. В тихом месте. Дом кирпичный, 1995 года, построен по спецпроекту. 2 санузла, 2 лоджии. Чистая продажа, без обременений. Приглашаем на просмотр! ***Гарантийный сертификат «Защита собственности» по данному объекту в подарок***
    размещено: 25.02.2025 , обновлено: 3.12.2025

    2-к квартира, Блюхера, 97

    • 58 м2
    • 10/26 этаж
    • Состояние: хорошее
    9 000 000 ₽ (155200 ₽/м2)
    Объект № 189103. Продается двухкомнатная квартира в ЖК Уральский в Екатеринбурге! Просторная и светлая двухкомнатная квартира в современном и уютном жилом комплексе Уральский. Удобная планировка, высокий потолок и большие окна создают атмосферу комфорта и уюта. Квартира идеально подходит как для проживания, так и для сдачи в аренду. Видовой 10 этаж, лоджия остеклена панорамными окнами. Развитая инфраструктура: рядом расположены магазины, школы, детские сады, спортивные и развлекательные объекты. Удобный транспорт: хорошая транспортная доступность, остановки общественного транспорта в шаговой доступности. Зеленые зоны для прогулок: поблизости парки, скверы и озеро Шарташ. Возможность оформления ипотеки. Чистая продажа, Один собственник. Подземный паркинг, закрытый двор и видеонаблюдение по всему периметру ЖК. Цена: 9 000 000 рублей. Не упустите возможность приобрести вашу мечту! ***Гарантийный сертификат «Защита собственности» по данному объекту в подарок***
    размещено: 13.01.2025 , обновлено: 14.12.2025

    2-к квартира, Маяковского, 14

    • 47.2 м2
    • 2/9 этаж
    • Состояние: хорошее
    6 300 000 ₽ (133500 ₽/м2)
    Предлагаем к продаже двухкомнатную квартиру, комнаты изолированные!! Состояние квартиры отличное, ремонта не требует! Закрытый двор, с парковкой и детской площадкой. В шаговой доступности: ТРК"ПАРК- ХАУС", для любителей пеших прогулок и активных занятий спортом на свежем воздухе "Основинский парк" в трёх минутах от дома, близость остановки общественного транспорта ( автобусы, трамвай, троллейбус, метро ст "УРАЛЬСКАЯ". северный Автовокзал, ЖД ВОКЗАЛ. Учебные заведения: Юридическая академия, Гуманитарный университет и УрФУ имени Б.Н.Ельцина. Детские сады №106. и школа №146,№3, Гимназия № 47. В доме проживают доброжелательные культурные соседи. Обременений долгов нет. Звоните и приходите на просмотр ! ID объекта в нашей базе: 4700
    размещено: 11.11.2024 , обновлено: 14.12.2025

    2-к квартира, Ирбитская, 8

    • 74 м2
    • 8/15 этаж
    • Состояние: идеальное
    10 900 000 ₽ (147300 ₽/м2)
    Продается отличная двухкомнатная квартира в ЖК "Авангард", микрорайон Пионерский, недалеко от центра города. Для тех, кто ищет жилье в формате "Заезжай и живи". Просторная и современная кухня-гостиная позволит семье проводить больше времени вместе. Два санузла со стильной отделкой, установлен теплый пол, новая, качественная сантехника. При продаже остается новая техника. Из окон открывается великолепный вид. Застекленный балкон расширяет пространство для хранения и отдыха. Сделан стильный, свежий, шикарный ремонт по дизайн-проекту. Ремонт делали "для себя", с любовью, продумывали все до мелочей. Во дворе отличная детская площадка для детей разных возрастов. Район с хорошей инфраструктурой. Прекрасная транспортная развязка. Ждём вас на просмотр! ID объекта в нашей базе: 6003
    размещено: 02.05.2024 , обновлено: 13.12.2025

Новостройки Екатеринбург, мкр-н. Пионерский

Приоритет

Увеличивает просмотры в 3 раза

Ваше объявление показывается в списке выше обычных объявлений. подключить