На Метре реклама - только нормальная. Никакого шок-контента.
Помогайте независимому ресурсу, как он помогает вам. Удачи!
Новостройки Котт. посёлки Объявления Динамика цен и сделок

Продажа квартиры: г. Березовский, ул. Старателей, 2 (городской округ Березовский)

  • опубликовано 23.08.2025 , обновлено 17.11.2025
  • 14
  •  
Кадастровый номер:66:35:0108001:485
Рынок:вторичный
Срок сдачи:4 квартал 2016 года
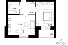
Количество комнат:1
Общая площадь:37.3 м2
Жилая площадь:17 м2
Площадь кухни:10 м2
Этаж/Этажность дома:2 / 3
Санузел:совмещенный
Отделка:евроремонт
Год постройки:2016
Балкон/лоджия:балкон
Цена:
4 950 000
Коммунальные платежи:оплачиваются отдельно
Торг:торг
Ипотека:возможна

КВАРТИРА АВАНСИРОВАНА, ИДЕТ ПРОЦЕСС ПОДГОТОВКИ К СДЕЛКЕ!!!


О доме

- малоэтажное кирпичное строение
- 2016 года постройки
- СОБСТВЕННАЯ КОТЕЛЬНАЯ - НИЗКИЕ ПЛАТЕЖИ
- самая оснащенная детская площадка
- ВСЕГДА ЕСТЬ ПАРКОВКА возле дома
- ЗАКРЫТАЯ ТЕРРИТОРИЯ ДВОРА
- добрые и порядочные соседи


О квартире

- уютная и приятная
- КВАРТИРА БЕЗ ОБРЕМЕНЕНИЙ
- квартира полностью готова для проживания
- ВЫПОЛНЕН СОВРЕМЕННЫЙ РЕМОНТ
- удобное и практичное планировочное решение
- В КВАРТИРЕ ОСТАЕТСЯ: КУХОННЫЙ ГАРНИТУР, ВАРОЧНАЯ ПОВЕРХНОСТЬ, ДУХОВОЙ ШКАФ, ТУМБА - РАКОВИНА В ВАННОЙ


О локации

Район ЖК «Уют-Сити» окружен лесом, поэтому здесь всегда чистый воздух. К тому же, здесь есть все необходимое для удобной жизни: развитая инфраструктура, магазины, общественный транспорт, детский сад, детские развивающие центры И СКОРО ПОЯВИТСЯ ЕЩЕ ШКОЛА!

В этом районе вы найдете все для комфортной жизни и заботы о семье. Для людей, которые ценят тишину и природу, а также ищут место для комфортной жизни, ЖК «Уют-Сити» является идеальным местом. Здесь вы сможете наслаждаться природой, а также получить доступ ко всему необходимому для жизни.

Приходите и наслаждайтесь красотой этого места! Поможем в оформлении сделки в кратчайшие сроки!

НЕ УПУСТИТЕ СВОЙ ШАНС ПРИОБРЕСТИ КВАРТИРУ В ПОСТОЯННО РАЗВИВАЮЩЕМСЯ НОВОМ РАЙОНЕ Г. БЕРЕЗОВСКИЙ "УЮТ-СИТИ, ГДЕ ЦЕНЫ НА НЕДВИЖИМОСТЬ ВСЕГДА УВЕЛИЧИВАЮТСЯ!

В ЖК УЮТ-СИТИ действует программа "приведи друга", в рамках которой каждый покупатель может получить cash back от 35 000 рублей. Действует данная программа только на покупателей объектов из базы застройщика (новостройки и вторичный рынок "УЮТ-СИТИ"). Подробности на официальном сайте уют-сити.рф.Номер объекта: #5/545888/6529

Арсенал и К 123 — Анна

показать телефон

Ипотечный калькулятор

лет
%
Сумма кредита
4950000 ₽
Платеж
22 540 ₽

Актуальные предложения в ЖК «Уют Сити»

  • 1-к квартира, Александровский, 5а

    • 38.02 м2
    • 3/3 этаж
    5 100 000 ₽ (134100 ₽/м2)
    Продается уютная однокомнатная квартира! Площадь: 38,2 кв.м. Этаж: 3 из 3 Предлагаем вашему вниманию стильную и комфортную однокомнатную квартиру, расположенную на последнем этаже. Квартира с качественным ремонтом, выполненным в 2025 году, ждет своего нового хозяина! ✨ Особенности квартиры: * Утепленная лоджия для комфортного отдыха. * Обои, окрашенные сертифицированной Финской краской TEKNOS — долговечность и яркие цвета! * Встраиваемая мебель, выполненная по индивидуальным размерам, идеально вписывается в интерьер. * Теплый пол в ванной комнате и на балконе — уют в любое время года ! Прекрасные соседи — дружная атмосфера и комфортное соседство. В квартире остаются: * Встроенная инсталляция с унитазом * Раковина со смесителем и ванна * Встроенный шкаф в ванной комнате и зеркало * Кухонный гарнитур с высококачественной фурнитурой для мебели - Blum, индукционная варочная поверхность, вытяжка и раковина со смесителем * Два встроенных шкафа-купе для удобного хранения * Раздвижная перегородка в спальню для создания уюта * Люстра и все встроенные светильники Не упустите возможность стать владельцем этой замечательной квартиры! Звоните прямо сейчас, чтобы записаться на просмотр! ✨Номер объекта: #5/545898/6529
    размещено: 24.11.2025 , обновлено: 25.11.2025
  • 1-к квартира, Старателей, 7

    • 44.9 м2
    • 2/4 этаж
    • Состояние:
    5 390 000 ₽ (120000 ₽/м2)
    Предлагаю Вашему вниманию отличную квартиру общей площадью 44,9 кв.м (Евро Двушка). Планировка распашонка. Квартира светлая, чистая, не требует ремонта, вариант заезжай и живи.Кухня -гостинная 15,5 кв.м, комната 11,5 кв.м, лоджия 2,3 кв.мОстается встроенная мебель, кухонный гарнитур, остальное обсуждается на просмотре.Отличная локация дома, в шаговой доступности- остановка общественного транспорта, магазины, садик , школа.Один собственник! БЕЗ ДОЛГОВ И ОБРЕМЕНЕНИЙ! Быстрый выход на сделку!Скорее звоните! и уже завтра эта квартира станет Вашей! ID объекта в нашей базе: 12529
    размещено: 20.11.2025 , обновлено: 21.11.2025
  • 4-к квартира, Старателей, 5

    • 105.6 м2
    • 4/4 этаж
    13 999 999 ₽ (132600 ₽/м2)
    О доме - малоэтажный кирпичный дом - 2017 год постройки - ПРЕКРАСНЫЕ И ВСЕ ДОСТОЙНЫЕ СОСЕДИ - самая большая парковка в "Уют-Сити" - 4 КВАРТИРЫ НА ЭТАЖЕ - детская площадка - огороженная территория двора - собственная котельная О квартире - ШИКАРНАЯ КВАРТИРА С АВТОРСКИМ РЕМОНТОМ И МЕБЕЛЬЮ - прекрасное состояние - РЕДКАЯ ПЛАНИРОВКА - просторные комнаты 20.7, 18.3, 20.4 и 12.9 кв. м. - ОКНА ВЫХОДЯТ НА 2 СТОРОНЫ - 2 лоджии и одна из них утеплена - 2 САНУЗЛА - квартира освобождена, без обременений - В КВАРТИРЕ ОСТАЕТСЯ ВСЕ,ЧТО ЕСТЬ НА ФОТО О локации Благоприятная экологическая обстановка вокруг, чистый воздух с постоянно развивающейся инфраструктурой. Поблизости находятся: школа № 45, детские сады № 23, 9, 4, оборудованная детская площадка, места для отдыха, продуктовые магазины «ПЯТЁРОЧКА», «МАГНИТ», «МАГНИТ КОСМЕТИК», «Красное & Белое», салоны красоты, гос.поликлинника в шаговой доступности 10-15 минут пешком. Остановка РЯДОМ с домом (маршруты № 1, 2, 5 по городу Березовскому и 114 маршрут до Екатеринбурга ). Приходите на просмотр! Поможем в оформлении сделки в кратчайшие сроки! НЕ УПУСТИТЕ СВОЙ ШАНС ПРИОБРЕСТИ КВАРТИРУ В ПОСТОЯННО РАЗВИВАЮЩЕМСЯ НОВОМ РАЙОНЕ Г. БЕРЕЗОВСКИЙ "УЮТ-СИТИ, ГДЕ ЦЕНЫ НА НЕДВИЖИМОСТЬ ВСЕГДА УВЕЛИЧИВАЮТСЯ! В ЖК УЮТ-СИТИ действует программа "приведи друга", в рамках которой каждый покупатель может получить cash back от 35 000 рублей. Действует данная программа только на покупателей объектов из базы застройщика (новостройки и вторичный рынок "УЮТ-СИТИ"). Подробности на официальном сайте уют-сити.рфНомер объекта: #5/545896/6529
    размещено: 18.11.2025 , обновлено: 21.11.2025
  • 1-к квартира, Старателей, 7а

    • 35.1 м2
    • 4/4 этаж
    4 670 000 ₽ (133000 ₽/м2)
    Мечтаете о собственном уголке в современном и комфортном жилом районе? Представляем вашему вниманию уютную однокомнатную квартиру площадью 35 кв.м. в Уют-Сити! Что делает эту квартиру особенной? • Просторная гардеробная комната: Забудьте о беспорядке! Вместительная гардеробная позволит вам аккуратно хранить всю одежду и обувь, освобождая основное пространство квартиры. • Теплые полы в ванной комнате: Наслаждайтесь максимальным комфортом даже в холодное время года. Теплые полы в ванной – это настоящее удовольствие для ваших ног! • Кондиционер: Создайте идеальный микроклимат в любое время года. Прохлада летом и комфортная температура в межсезонье – теперь это реальность! • Мебель остается: Вам не придется тратить время и силы на обустройство! В квартире остается качественная и стильная мебель на кухне, в ванной комнате и в гардеробной. Просто заезжайте и живите! Жилой район Уют-Сити – это: • Современная инфраструктура: Все необходимое для комфортной жизни в шаговой доступности: магазины, кафе, детские сады, школы, спортивные площадки. • Благоустроенная территория: Зеленые зоны, детские площадки, зоны отдыха – здесь приятно гулять и проводить время. • Удобная транспортная доступность: Легко добраться до любой точки города. Эта квартира – идеальный старт для вашей самостоятельной жизни, выгодное вложение или уютное гнездышко для молодой семьи. Звоните прямо сейчас, чтобы договориться о просмотре!Номер объекта: #5/545894/6529
    размещено: 17.11.2025 , обновлено: 18.11.2025
  • 1-к квартира, Александровский, 7

    • 34.8 м2
    • 2/3 этаж
    • Состояние:
    4 600 000 ₽ (132200 ₽/м2)
    Срочно продаю квартиру в районе Уют сити. Новый Йон со своей инфраструктурой. Рядом бассейн,садик, магазин,автобусная остановка). Квартира чистая уютная . С удобной расстановкой зон. Евроремонт. Очень светлая квартира. Балкон очень просторный и светлый. Закрытый двор. Квартира без обременения и долей детских. ID объекта в нашей базе: 12329
    размещено: 07.11.2025 , обновлено: 18.11.2025

    1-к квартира, Старателей, 7

    • 38 м2
    • 3/4 этаж
    • Состояние:
    4 500 000 ₽ (118400 ₽/м2)
    Объект № 195332. Продаём квартиру в прекрасном районе г. Березовского - Уют-Сити. Квартира расположена на комфортном третьем этаже, прекрасно подойдёт для небольшой семьи: отдельная спальня и кухня-гостиная. Покупателю оставим кухонный гарнитур и вместительный шкаф в прихожей. Быстрый выход на сделку - один взрослый собственник. Приходите на просмотр, чтобы увидеть собственными глазами! ***Гарантийный сертификат «Защита собственности» по данному объекту в подарок***
    размещено: 01.11.2025 , обновлено: 18.11.2025

    1-к квартира, Александровский, 11

    • 37.7 м2
    • 2/3 этаж
    5 050 000 ₽ (134000 ₽/м2)
    О доме - малоэтажное кирпичное строение - 2017 года постройки - НИЗКИЕ КОММУНАЛЬНЫЕ ПЛАТЕЖИ - прекрасные соседи - ВСЕГДА ЕСТЬ ПАРКОВКА возле дома - самая оснащенная детская площадка - ЗАКРЫТАЯ ТЕРРИТОРИЯ ДВОРА О квартире - уютная, приятная и очень аккуратная квартира - КВАРТИРА БЕЗ ОБРЕМЕНЕНИЙ И ОСВОБОЖДЕНА - квартира полностью готова для проживания - ПРЕКРАСНОЕ СОСТОЯНИЕ КВАРТИРЫ - удобное и практичное планировочное решение - выделена просторная кухня-гостиная - В КВАРТИРЕ ОСТАЕТСЯ ВСЯ МЕБЕЛЬ И ТЕХНИКА, ПРЕДСТАВЛЕННАЯ НА ФОТО (2 новых дивана) - квартира эксплуатировалась всего 1,5 года - ПРОДАДИМ КВАРТИРУ ТОЛЬКО В ХОРОШИЕ И ДОБРЫЕ РУКИ!!! О локации Район ЖК «Уют-Сити» окружен лесом, поэтому здесь всегда чистый воздух. К тому же, здесь есть все необходимое для удобной жизни: развитая инфраструктура, магазины, общественный транспорт, детский сад, ШКОЛА №45, детские развивающие центры И СКОРО ПОЯВИТСЯ ЕЩЕ И БАССЕЙН В этом районе вы найдете все для комфортной жизни и заботы о семье. Для людей, которые ценят тишину и природу, а также ищут место для комфортной жизни, ЖК «Уют-Сити» является идеальным местом. Здесь вы сможете наслаждаться природой, а также получить доступ ко всему необходимому для жизни. Приходите и наслаждайтесь красотой этого места! Поможем в оформлении сделки в кратчайшие сроки! НЕ УПУСТИТЕ СВОЙ ШАНС ПРИОБРЕСТИ КВАРТИРУ В ПОСТОЯННО РАЗВИВАЮЩЕМСЯ НОВОМ РАЙОНЕ Г. БЕРЕЗОВСКИЙ УЮТ-СИТИ, ГДЕ ЦЕНЫ НА НЕДВИЖИМОСТЬ ВСЕГДА УВЕЛИЧИВАЮТСЯ! В ЖК УЮТ-СИТИ действует программа приведи друга, в рамках которой каждый покупатель может получить cash back от 35 000 рублей. Действует данная программа только на покупателей объектов из базы застройщика (новостройки и вторичный рынок УЮТ-СИТИ). Подробности на официальном сайте уют-сити.рф.Номер объекта: #5/545893/6529
    размещено: 30.10.2025 , обновлено: 15.11.2025

    1-к квартира, Золоторудная, 2

    • 37.6 м2
    • 2/3 этаж
    4 570 000 ₽ (121500 ₽/м2)
    СРОЧНАЯ ПРОДАЖА О доме - малоэтажное кирпичное строение - 2016 года постройки - комплекс оснащен собственной котельной - наземная парковка для автомобилей - функциональная детская площадка - закрытый двор О квартире - уютная и теплая квартира БЕЗ ОБРЕМЕНЕНИЙ - окна выходят во двор - просторная кухня - жилая комната, удобно зонирована на спальню и детскую. - В ПОДАРОК ОСТАЕТСЯ: КУХОННЫЙ ГАРНИТУР, ПОСУДОМОЕЧНАЯ МАШИНА ,ХОЛОДИЛЬНИК , ШКАФ,ДВУХСПАЛЬНАЯ КРОВАТЬ О локации Благоприятная экологическая обстановка вокруг, чистый воздух с постоянно развивающейся инфраструктурой. Поблизости находятся: школа № 45,№5, детские сады № 23, 9, 4, оборудованная детская площадка, места для отдыха, продуктовые магазины «ПЯТЁРОЧКА», «МАГНИТ», «МАГНИТ КОСМЕТИК», «Вкусно»,«Фабрика качества», «Красное & Белое», салоны красоты, гос.поликлинника в шаговой доступности 10-15 минут пешком. Остановка РЯДОМ с домом (маршруты № 1, 2, 5 по городу Березовскому) + остановка до Екатеринбурга 20 минут пешком (маршруты № 166, 150, 150А, 114 и другие). Приходите на просмотр! Поможем приобрести данный вариант для покупки!!! Возможно, эта квартира ждет именно Вас!!! Номер объекта: #5/545892/6529
    размещено: 28.10.2025 , обновлено: 15.11.2025

    3-к квартира, Победы, 34, ЖК "Уют Сити" — 3 кв. 2025 г.

    • 77.7 м2
    • 4/4 этаж
    10 372 950 ₽ (133500 ₽/м2)
    Способы покупки: - семейная ипотека от банков партнеров с возможностью получить дополнительную скидку, точную цифру уточняйте в отделе продаж - за наличный расчет, скидка до 20% - Скидка участникам СВО от 5 до 25 % - скидка за семейную ипотеку 3% - Все скидки суммируются Об инфраструктуре Развлечения и досуг. Спортивный комплекс – для тех, кто ведет здоровый образ жизни. Канатная дорога, разнообразные качели и безопасные игровые площадки подарят незабываемые впечатления маленьким жителям района. Озеленение. Первая очередь, которая предполагает собой полный комплекс ландшафтного дизайна! Главное инфраструктурное звено микрорайона – Малахитовый Бульвар: интерактивный фонтан, игровые комплексы, зоны для тихого отдыха, амфитеатр. Жилой комплекс «УЮТ-СИТИ» создан для ценителей комфортной и спокойной жизни в экологически чистом, тихом месте, окруженном лесным массивом, вдали от суеты мегаполиса. Развитые транспортные развязки – 20 минут до Екатеринбурга. Концепция жилого комплекса предполагает застройку по европейскому типу: комплексы из трех- и четырехэтажных кирпичных домов с просторными благоустроенными закрытыми дворами и достаточным количеством парковочных мест, с развитой инфраструктурой, включающей детский сад, школу, спортивный комплекс, торговый центр. Номер объекта: #5/545771/6529
    размещено: 13.10.2025 , обновлено: 7.11.2025

    1-к квартира, Старателей, 15

    • 34 м2
    • 1/3 этаж
    • Состояние:
    3 100 000 ₽ (91200 ₽/м2)
    Объект № 194544. В продаже просторная однокомнатная квартира. 2018 года постройки, кирпичный теплый дом расположен в уютном и красивом районе г. Березовского. Редкое сочетание - тишина леса и городского комфорт: в шаговой доступности магазин, остановка, школа, детский сад. В квартире остается кухонный гарнитур, холодильник, стиральная машина, шкаф, кровать. Один взрослый собственник, чистая продажа. Приглашаем на просмотр. Обсуждается обмен на вашу недвижимость, помощь в одобрении ипотеки. ***Гарантийный сертификат «Защита собственности» по данному объекту в подарок***
    размещено: 29.09.2025 , обновлено: 1.11.2025

    2-к квартира, Победы, 32, ЖК "Уют Сити" — 3 кв. 2025 г.

    • 60 м2
    • 2/4 этаж
    7 842 000 ₽ (130700 ₽/м2)
    Способы покупки: - семейная ипотека от банков партнеров с возможностью получить дополнительную скидку, точную цифру уточняйте в отделе продаж - за наличный расчет, скидка до 20% - Скидка участникам СВО от 5 до 25 % - скидка за семейную ипотеку 3% - Все скидки суммируются Об инфраструктуре Развлечения и досуг. Спортивный комплекс – для тех, кто ведет здоровый образ жизни. Канатная дорога, разнообразные качели и безопасные игровые площадки подарят незабываемые впечатления маленьким жителям района. Озеленение. Первая очередь, которая предполагает собой полный комплекс ландшафтного дизайна! Главное инфраструктурное звено микрорайона – Малахитовый Бульвар: интерактивный фонтан, игровые комплексы, зоны для тихого отдыха, амфитеатр. Жилой комплекс «УЮТ-СИТИ» создан для ценителей комфортной и спокойной жизни в экологически чистом, тихом месте, окруженном лесным массивом, вдали от суеты мегаполиса. Развитые транспортные развязки – 20 минут до Екатеринбурга. Концепция жилого комплекса предполагает застройку по европейскому типу: комплексы из трех- и четырехэтажных кирпичных домов с просторными благоустроенными закрытыми дворами и достаточным количеством парковочных мест, с развитой инфраструктурой, включающей детский сад, школу, спортивный комплекс, торговый центр.Номер объекта: #5/545572/6529
    размещено: 23.09.2025 , обновлено: 26.11.2025

    1-к квартира, Старателей, 7

    • 34.8 м2
    • 4/4 этаж
    4 250 000 ₽ (122100 ₽/м2)
    О доме - малоэтажное кирпичное строение - комплекс оснащен собственной котельной - наземная парковка для автомобилей - функциональная детская площадка - закрытый двор О квартире - практичная планировка с большой кухней-гостиной - уютная,светлая и теплая квартира - окна выходят на западную сторону - квартира уже с ремонтом и готова для проживания - новому владельцу в подарок остается: кухонный гарнитур - без обременений О локации Благоприятная экологическая обстановка вокруг, чистый воздух с постоянно развивающейся инфраструктурой. Поблизости находятся: школа № 5, детские сады № 23, 9, 4, оборудованная детская площадка, места для отдыха, продуктовые магазины «ПЯТЁРОЧКА», «МАГНИТ», «МАГНИТ КОСМЕТИК», «Красное & Белое», салоны красоты, гос.поликлинника в шаговой доступности 10-15 минут пешком. Остановка РЯДОМ с домом (маршруты № 1, 2, 5 по городу Березовскому и с декабря добавился 114 маршрут до Екатеринбурга ). Приходите на просмотр! Поможем в оформлении сделки в кратчайшие сроки! Не упустите свой шанс приобрести квартиру в постоянно развивающемся новом районе г. Березовский "Уют-Сити", где цены на недвижимость всегда увеличиваются!Номер объекта: #5/545890/6529
    размещено: 22.09.2025 , обновлено: 23.11.2025

    1-к квартира, Победы, 5б, 34, ЖК "Уют Сити" — 3 кв. 2025 г.

    • 40.8 м2
    • 1/4 этаж
    5 916 000 ₽ (145000 ₽/м2)
    Способы покупки: - семейная ипотека от банков партнеров с возможностью получить дополнительную скидку, точную цифру уточняйте в отделе продаж - за наличный расчет, скидка до 20% - Скидка участникам СВО от 5 до 25 % - скидка за семейную ипотеку 3% - Все скидки суммируются Об инфраструктуре Развлечения и досуг. Спортивный комплекс – для тех, кто ведет здоровый образ жизни. Канатная дорога, разнообразные качели и безопасные игровые площадки подарят незабываемые впечатления маленьким жителям района. Озеленение. Первая очередь, которая предполагает собой полный комплекс ландшафтного дизайна! Главное инфраструктурное звено микрорайона – Малахитовый Бульвар: интерактивный фонтан, игровые комплексы, зоны для тихого отдыха, амфитеатр. Жилой комплекс «УЮТ-СИТИ» создан для ценителей комфортной и спокойной жизни в экологически чистом, тихом месте, окруженном лесным массивом, вдали от суеты мегаполиса. Развитые транспортные развязки – 20 минут до Екатеринбурга. Концепция жилого комплекса предполагает застройку по европейскому типу: комплексы из трех- и четырехэтажных кирпичных домов с просторными благоустроенными закрытыми дворами и достаточным количеством парковочных мест, с развитой инфраструктурой, включающей детский сад, школу, спортивный комплекс, торговый центр. Номер объекта: #5/545854/6529
    размещено: 11.09.2025 , обновлено: 10.11.2025

    2-к квартира, Победы, 5б, 34, ЖК "Уют Сити" — 3 кв. 2025 г.

    • 67.8 м2
    • 1/4 этаж
    8 780 100 ₽ (129500 ₽/м2)
    Способы покупки: - семейная ипотека от банков партнеров с возможностью получить дополнительную скидку, точную цифру уточняйте в отделе продаж - за наличный расчет, скидка до 20% - Скидка участникам СВО от 5 до 25 % - скидка за семейную ипотеку 3% - Все скидки суммируются Об инфраструктуре Развлечения и досуг. Спортивный комплекс – для тех, кто ведет здоровый образ жизни. Канатная дорога, разнообразные качели и безопасные игровые площадки подарят незабываемые впечатления маленьким жителям района. Озеленение. Первая очередь, которая предполагает собой полный комплекс ландшафтного дизайна! Главное инфраструктурное звено микрорайона – Малахитовый Бульвар: интерактивный фонтан, игровые комплексы, зоны для тихого отдыха, амфитеатр. Жилой комплекс «УЮТ-СИТИ» создан для ценителей комфортной и спокойной жизни в экологически чистом, тихом месте, окруженном лесным массивом, вдали от суеты мегаполиса. Развитые транспортные развязки – 20 минут до Екатеринбурга. Концепция жилого комплекса предполагает застройку по европейскому типу: комплексы из трех- и четырехэтажных кирпичных домов с просторными благоустроенными закрытыми дворами и достаточным количеством парковочных мест, с развитой инфраструктурой, включающей детский сад, школу, спортивный комплекс, торговый центр. Номер объекта: #5/545851/6529
    размещено: 11.09.2025 , обновлено: 7.11.2025

    2-к квартира, Победы, 5б, 34, ЖК "Уют Сити" — 3 кв. 2025 г.

    • 59.3 м2
    • 1/4 этаж
    7 946 200 ₽ (134000 ₽/м2)
    Способы покупки: - семейная ипотека от банков партнеров с возможностью получить дополнительную скидку, точную цифру уточняйте в отделе продаж - за наличный расчет, скидка до 20% - Скидка участникам СВО от 5 до 25 % - скидка за семейную ипотеку 3% - Все скидки суммируются Об инфраструктуре Развлечения и досуг. Спортивный комплекс – для тех, кто ведет здоровый образ жизни. Канатная дорога, разнообразные качели и безопасные игровые площадки подарят незабываемые впечатления маленьким жителям района. Озеленение. Первая очередь, которая предполагает собой полный комплекс ландшафтного дизайна! Главное инфраструктурное звено микрорайона – Малахитовый Бульвар: интерактивный фонтан, игровые комплексы, зоны для тихого отдыха, амфитеатр. Жилой комплекс «УЮТ-СИТИ» создан для ценителей комфортной и спокойной жизни в экологически чистом, тихом месте, окруженном лесным массивом, вдали от суеты мегаполиса. Развитые транспортные развязки – 20 минут до Екатеринбурга. Концепция жилого комплекса предполагает застройку по европейскому типу: комплексы из трех- и четырехэтажных кирпичных домов с просторными благоустроенными закрытыми дворами и достаточным количеством парковочных мест, с развитой инфраструктурой, включающей детский сад, школу, спортивный комплекс, торговый центр. Номер объекта: #5/545850/6529
    размещено: 11.09.2025 , обновлено: 21.11.2025

    3-к квартира, Победы, 5б, 34, ЖК "Уют Сити" — 3 кв. 2025 г.

    • 83.9 м2
    • 1/4 этаж
    10 529 450 ₽ (125500 ₽/м2)
    Способы покупки: - семейная ипотека от банков партнеров с возможностью получить дополнительную скидку, точную цифру уточняйте в отделе продаж - за наличный расчет, скидка до 20% - Скидка участникам СВО от 5 до 25 % - скидка за семейную ипотеку 3% - Все скидки суммируются Об инфраструктуре Развлечения и досуг. Спортивный комплекс – для тех, кто ведет здоровый образ жизни. Канатная дорога, разнообразные качели и безопасные игровые площадки подарят незабываемые впечатления маленьким жителям района. Озеленение. Первая очередь, которая предполагает собой полный комплекс ландшафтного дизайна! Главное инфраструктурное звено микрорайона – Малахитовый Бульвар: интерактивный фонтан, игровые комплексы, зоны для тихого отдыха, амфитеатр. Жилой комплекс «УЮТ-СИТИ» создан для ценителей комфортной и спокойной жизни в экологически чистом, тихом месте, окруженном лесным массивом, вдали от суеты мегаполиса. Развитые транспортные развязки – 20 минут до Екатеринбурга. Концепция жилого комплекса предполагает застройку по европейскому типу: комплексы из трех- и четырехэтажных кирпичных домов с просторными благоустроенными закрытыми дворами и достаточным количеством парковочных мест, с развитой инфраструктурой, включающей детский сад, школу, спортивный комплекс, торговый центр. Номер объекта: #5/545842/6529
    размещено: 11.09.2025 , обновлено: 7.11.2025

    1-к квартира, Победы, 5б, 34, ЖК "Уют Сити" — 3 кв. 2025 г.

    • 41.6 м2
    • 3/4 этаж
    6 198 400 ₽ (149000 ₽/м2)
    Способы покупки: - семейная ипотека от банков партнеров с возможностью получить дополнительную скидку, точную цифру уточняйте в отделе продаж - за наличный расчет, скидка до 20% - Скидка участникам СВО от 5 до 25 % - скидка за семейную ипотеку 3% - Все скидки суммируются Об инфраструктуре Развлечения и досуг. Спортивный комплекс – для тех, кто ведет здоровый образ жизни. Канатная дорога, разнообразные качели и безопасные игровые площадки подарят незабываемые впечатления маленьким жителям района. Озеленение. Первая очередь, которая предполагает собой полный комплекс ландшафтного дизайна! Главное инфраструктурное звено микрорайона – Малахитовый Бульвар: интерактивный фонтан, игровые комплексы, зоны для тихого отдыха, амфитеатр. Жилой комплекс «УЮТ-СИТИ» создан для ценителей комфортной и спокойной жизни в экологически чистом, тихом месте, окруженном лесным массивом, вдали от суеты мегаполиса. Развитые транспортные развязки – 20 минут до Екатеринбурга. Концепция жилого комплекса предполагает застройку по европейскому типу: комплексы из трех- и четырехэтажных кирпичных домов с просторными благоустроенными закрытыми дворами и достаточным количеством парковочных мест, с развитой инфраструктурой, включающей детский сад, школу, спортивный комплекс, торговый центр. Номер объекта: #5/545818/6529
    размещено: 11.09.2025 , обновлено: 7.11.2025

    1-к квартира, Победы, 5б, 34, ЖК "Уют Сити" — 3 кв. 2025 г.

    • 41.2 м2
    • 2/4 этаж
    6 138 800 ₽ (149000 ₽/м2)
    Способы покупки: - семейная ипотека от банков партнеров с возможностью получить дополнительную скидку, точную цифру уточняйте в отделе продаж - за наличный расчет, скидка до 20% - Скидка участникам СВО от 5 до 25 % - скидка за семейную ипотеку 3% - Все скидки суммируются Об инфраструктуре Развлечения и досуг. Спортивный комплекс – для тех, кто ведет здоровый образ жизни. Канатная дорога, разнообразные качели и безопасные игровые площадки подарят незабываемые впечатления маленьким жителям района. Озеленение. Первая очередь, которая предполагает собой полный комплекс ландшафтного дизайна! Главное инфраструктурное звено микрорайона – Малахитовый Бульвар: интерактивный фонтан, игровые комплексы, зоны для тихого отдыха, амфитеатр. Жилой комплекс «УЮТ-СИТИ» создан для ценителей комфортной и спокойной жизни в экологически чистом, тихом месте, окруженном лесным массивом, вдали от суеты мегаполиса. Развитые транспортные развязки – 20 минут до Екатеринбурга. Концепция жилого комплекса предполагает застройку по европейскому типу: комплексы из трех- и четырехэтажных кирпичных домов с просторными благоустроенными закрытыми дворами и достаточным количеством парковочных мест, с развитой инфраструктурой, включающей детский сад, школу, спортивный комплекс, торговый центр. Номер объекта: #5/545782/6529
    размещено: 11.09.2025 , обновлено: 7.11.2025

    2-к квартира, Победы, 5б, 34, ЖК "Уют Сити" — 3 кв. 2025 г.

    • 86 м2
    • 4/4 этаж
    10 672 600 ₽ (124100 ₽/м2)
    Способы покупки: - семейная ипотека от банков партнеров с возможностью получить дополнительную скидку, точную цифру уточняйте в отделе продаж - за наличный расчет, скидка до 20% - Скидка участникам СВО от 5 до 25 % - скидка за семейную ипотеку 3% - Все скидки суммируются Об инфраструктуре Развлечения и досуг. Спортивный комплекс – для тех, кто ведет здоровый образ жизни. Канатная дорога, разнообразные качели и безопасные игровые площадки подарят незабываемые впечатления маленьким жителям района. Озеленение. Первая очередь, которая предполагает собой полный комплекс ландшафтного дизайна! Главное инфраструктурное звено микрорайона – Малахитовый Бульвар: интерактивный фонтан, игровые комплексы, зоны для тихого отдыха, амфитеатр. Жилой комплекс «УЮТ-СИТИ» создан для ценителей комфортной и спокойной жизни в экологически чистом, тихом месте, окруженном лесным массивом, вдали от суеты мегаполиса. Развитые транспортные развязки – 20 минут до Екатеринбурга. Концепция жилого комплекса предполагает застройку по европейскому типу: комплексы из трех- и четырехэтажных кирпичных домов с просторными благоустроенными закрытыми дворами и достаточным количеством парковочных мест, с развитой инфраструктурой, включающей детский сад, школу, спортивный комплекс, торговый центр. Номер объекта: #5/545772/6529
    размещено: 11.09.2025 , обновлено: 7.11.2025

    4-к квартира, Победы, 5б, 34, ЖК "Уют Сити" — 3 кв. 2025 г.

    • 102.9 м2
    • 4/4 этаж
    12 121 620 ₽ (117800 ₽/м2)
    Способы покупки: - семейная ипотека от банков партнеров с возможностью получить дополнительную скидку, точную цифру уточняйте в отделе продаж - за наличный расчет, скидка до 20% - Скидка участникам СВО от 5 до 25 % - скидка за семейную ипотеку 3% - Все скидки суммируются Об инфраструктуре Развлечения и досуг. Спортивный комплекс – для тех, кто ведет здоровый образ жизни. Канатная дорога, разнообразные качели и безопасные игровые площадки подарят незабываемые впечатления маленьким жителям района. Озеленение. Первая очередь, которая предполагает собой полный комплекс ландшафтного дизайна! Главное инфраструктурное звено микрорайона – Малахитовый Бульвар: интерактивный фонтан, игровые комплексы, зоны для тихого отдыха, амфитеатр. Жилой комплекс «УЮТ-СИТИ» создан для ценителей комфортной и спокойной жизни в экологически чистом, тихом месте, окруженном лесным массивом, вдали от суеты мегаполиса. Развитые транспортные развязки – 20 минут до Екатеринбурга. Концепция жилого комплекса предполагает застройку по европейскому типу: комплексы из трех- и четырехэтажных кирпичных домов с просторными благоустроенными закрытыми дворами и достаточным количеством парковочных мест, с развитой инфраструктурой, включающей детский сад, школу, спортивный комплекс, торговый центр. Номер объекта: #5/545769/6529
    размещено: 11.09.2025 , обновлено: 7.11.2025

    2-к квартира, Победы, 5б, 34, ЖК "Уют Сити" — 3 кв. 2025 г.

    • 86.1 м2
    • 3/4 этаж
    10 787 500 ₽ (125300 ₽/м2)
    Способы покупки: - семейная ипотека от банков партнеров с возможностью получить дополнительную скидку, точную цифру уточняйте в отделе продаж - за наличный расчет, скидка до 20% - Скидка участникам СВО от 5 до 25 % - скидка за семейную ипотеку 3% - Все скидки суммируются Об инфраструктуре Развлечения и досуг. Спортивный комплекс – для тех, кто ведет здоровый образ жизни. Канатная дорога, разнообразные качели и безопасные игровые площадки подарят незабываемые впечатления маленьким жителям района. Озеленение. Первая очередь, которая предполагает собой полный комплекс ландшафтного дизайна! Главное инфраструктурное звено микрорайона – Малахитовый Бульвар: интерактивный фонтан, игровые комплексы, зоны для тихого отдыха, амфитеатр. Жилой комплекс «УЮТ-СИТИ» создан для ценителей комфортной и спокойной жизни в экологически чистом, тихом месте, окруженном лесным массивом, вдали от суеты мегаполиса. Развитые транспортные развязки – 20 минут до Екатеринбурга. Концепция жилого комплекса предполагает застройку по европейскому типу: комплексы из трех- и четырехэтажных кирпичных домов с просторными благоустроенными закрытыми дворами и достаточным количеством парковочных мест, с развитой инфраструктурой, включающей детский сад, школу, спортивный комплекс, торговый центр. Номер объекта: #5/545768/6529
    размещено: 11.09.2025 , обновлено: 7.11.2025

    2-к квартира, Победы, 5б, 34, ЖК "Уют Сити" — 3 кв. 2025 г.

    • 52.5 м2
    • 3/4 этаж
    7 187 250 ₽ (136900 ₽/м2)
    Способы покупки: - семейная ипотека от банков партнеров с возможностью получить дополнительную скидку, точную цифру уточняйте в отделе продаж - за наличный расчет, скидка до 20% - Скидка участникам СВО от 5 до 25 % - скидка за семейную ипотеку 3% - Все скидки суммируются Об инфраструктуре Развлечения и досуг. Спортивный комплекс – для тех, кто ведет здоровый образ жизни. Канатная дорога, разнообразные качели и безопасные игровые площадки подарят незабываемые впечатления маленьким жителям района. Озеленение. Первая очередь, которая предполагает собой полный комплекс ландшафтного дизайна! Главное инфраструктурное звено микрорайона – Малахитовый Бульвар: интерактивный фонтан, игровые комплексы, зоны для тихого отдыха, амфитеатр. Жилой комплекс «УЮТ-СИТИ» создан для ценителей комфортной и спокойной жизни в экологически чистом, тихом месте, окруженном лесным массивом, вдали от суеты мегаполиса. Развитые транспортные развязки – 20 минут до Екатеринбурга. Концепция жилого комплекса предполагает застройку по европейскому типу: комплексы из трех- и четырехэтажных кирпичных домов с просторными благоустроенными закрытыми дворами и достаточным количеством парковочных мест, с развитой инфраструктурой, включающей детский сад, школу, спортивный комплекс, торговый центр. Номер объекта: #5/545764/6529
    размещено: 11.09.2025 , обновлено: 7.11.2025

    2-к квартира, Победы, 5б, 34, ЖК "Уют Сити" — 3 кв. 2025 г.

    • 86.1 м2
    • 2/4 этаж
    10 762 500 ₽ (125000 ₽/м2)
    Способы покупки: - семейная ипотека от банков партнеров с возможностью получить дополнительную скидку, точную цифру уточняйте в отделе продаж - за наличный расчет, скидка до 20% - Скидка участникам СВО от 5 до 25 % - скидка за семейную ипотеку 3% - Все скидки суммируются Об инфраструктуре Развлечения и досуг. Спортивный комплекс – для тех, кто ведет здоровый образ жизни. Канатная дорога, разнообразные качели и безопасные игровые площадки подарят незабываемые впечатления маленьким жителям района. Озеленение. Первая очередь, которая предполагает собой полный комплекс ландшафтного дизайна! Главное инфраструктурное звено микрорайона – Малахитовый Бульвар: интерактивный фонтан, игровые комплексы, зоны для тихого отдыха, амфитеатр. Жилой комплекс «УЮТ-СИТИ» создан для ценителей комфортной и спокойной жизни в экологически чистом, тихом месте, окруженном лесным массивом, вдали от суеты мегаполиса. Развитые транспортные развязки – 20 минут до Екатеринбурга. Концепция жилого комплекса предполагает застройку по европейскому типу: комплексы из трех- и четырехэтажных кирпичных домов с просторными благоустроенными закрытыми дворами и достаточным количеством парковочных мест, с развитой инфраструктурой, включающей детский сад, школу, спортивный комплекс, торговый центр. Номер объекта: #5/545758/6529
    размещено: 11.09.2025 , обновлено: 7.11.2025

    1-к квартира, Победы, 5б, 34, ЖК "Уют Сити" — 3 кв. 2025 г.

    • 52.1 м2
    • 2/4 этаж
    7 132 490 ₽ (136900 ₽/м2)
    Способы покупки: - семейная ипотека от банков партнеров с возможностью получить дополнительную скидку, точную цифру уточняйте в отделе продаж - за наличный расчет, скидка до 20% - Скидка участникам СВО от 5 до 25 % - скидка за семейную ипотеку 3% - Все скидки суммируются Об инфраструктуре Развлечения и досуг. Спортивный комплекс – для тех, кто ведет здоровый образ жизни. Канатная дорога, разнообразные качели и безопасные игровые площадки подарят незабываемые впечатления маленьким жителям района. Озеленение. Первая очередь, которая предполагает собой полный комплекс ландшафтного дизайна! Главное инфраструктурное звено микрорайона – Малахитовый Бульвар: интерактивный фонтан, игровые комплексы, зоны для тихого отдыха, амфитеатр. Жилой комплекс «УЮТ-СИТИ» создан для ценителей комфортной и спокойной жизни в экологически чистом, тихом месте, окруженном лесным массивом, вдали от суеты мегаполиса. Развитые транспортные развязки – 20 минут до Екатеринбурга. Концепция жилого комплекса предполагает застройку по европейскому типу: комплексы из трех- и четырехэтажных кирпичных домов с просторными благоустроенными закрытыми дворами и достаточным количеством парковочных мест, с развитой инфраструктурой, включающей детский сад, школу, спортивный комплекс, торговый центр. Номер объекта: #5/545756/6529
    размещено: 11.09.2025 , обновлено: 7.11.2025

    4-к квартира, Победы, 5б, 34, ЖК "Уют Сити" — 3 кв. 2025 г.

    • 102.5 м2
    • 2/4 этаж
    12 166 750 ₽ (118700 ₽/м2)
    Способы покупки: - семейная ипотека от банков партнеров с возможностью получить дополнительную скидку, точную цифру уточняйте в отделе продаж - за наличный расчет, скидка до 20% - Скидка участникам СВО от 5 до 25 % - скидка за семейную ипотеку 3% - Все скидки суммируются Об инфраструктуре Развлечения и досуг. Спортивный комплекс – для тех, кто ведет здоровый образ жизни. Канатная дорога, разнообразные качели и безопасные игровые площадки подарят незабываемые впечатления маленьким жителям района. Озеленение. Первая очередь, которая предполагает собой полный комплекс ландшафтного дизайна! Главное инфраструктурное звено микрорайона – Малахитовый Бульвар: интерактивный фонтан, игровые комплексы, зоны для тихого отдыха, амфитеатр. Жилой комплекс «УЮТ-СИТИ» создан для ценителей комфортной и спокойной жизни в экологически чистом, тихом месте, окруженном лесным массивом, вдали от суеты мегаполиса. Развитые транспортные развязки – 20 минут до Екатеринбурга. Концепция жилого комплекса предполагает застройку по европейскому типу: комплексы из трех- и четырехэтажных кирпичных домов с просторными благоустроенными закрытыми дворами и достаточным количеством парковочных мест, с развитой инфраструктурой, включающей детский сад, школу, спортивный комплекс, торговый центр. Номер объекта: #5/545755/6529
    размещено: 11.09.2025 , обновлено: 7.11.2025

    4-к квартира, Победы, 5б, 34, ЖК "Уют Сити" — 3 кв. 2025 г.

    • 88.9 м2
    • 1/4 этаж
    10 553 000 ₽ (118700 ₽/м2)
    Способы покупки: - семейная ипотека от банков партнеров с возможностью получить дополнительную скидку, точную цифру уточняйте в отделе продаж - за наличный расчет, скидка до 20% - Скидка участникам СВО от 5 до 25 % - скидка за семейную ипотеку 3% - Все скидки суммируются Об инфраструктуре Развлечения и досуг. Спортивный комплекс – для тех, кто ведет здоровый образ жизни. Канатная дорога, разнообразные качели и безопасные игровые площадки подарят незабываемые впечатления маленьким жителям района. Озеленение. Первая очередь, которая предполагает собой полный комплекс ландшафтного дизайна! Главное инфраструктурное звено микрорайона – Малахитовый Бульвар: интерактивный фонтан, игровые комплексы, зоны для тихого отдыха, амфитеатр. Жилой комплекс «УЮТ-СИТИ» создан для ценителей комфортной и спокойной жизни в экологически чистом, тихом месте, окруженном лесным массивом, вдали от суеты мегаполиса. Развитые транспортные развязки – 20 минут до Екатеринбурга. Концепция жилого комплекса предполагает застройку по европейскому типу: комплексы из трех- и четырехэтажных кирпичных домов с просторными благоустроенными закрытыми дворами и достаточным количеством парковочных мест, с развитой инфраструктурой, включающей детский сад, школу, спортивный комплекс, торговый центр. Номер объекта: #5/545754/6529
    размещено: 11.09.2025 , обновлено: 19.11.2025

    3-к квартира, Победы, 5б, 34, ЖК "Уют Сити" — 3 кв. 2025 г.

    • 86.1 м2
    • 1/4 этаж
    9 643 200 ₽ (112000 ₽/м2)
    Способы покупки: - семейная ипотека от банков партнеров с возможностью получить дополнительную скидку, точную цифру уточняйте в отделе продаж - за наличный расчет, скидка до 20% - Скидка участникам СВО от 5 до 25 % - скидка за семейную ипотеку 3% - Все скидки суммируются Об инфраструктуре Развлечения и досуг. Спортивный комплекс – для тех, кто ведет здоровый образ жизни. Канатная дорога, разнообразные качели и безопасные игровые площадки подарят незабываемые впечатления маленьким жителям района. Озеленение. Первая очередь, которая предполагает собой полный комплекс ландшафтного дизайна! Главное инфраструктурное звено микрорайона – Малахитовый Бульвар: интерактивный фонтан, игровые комплексы, зоны для тихого отдыха, амфитеатр. Жилой комплекс «УЮТ-СИТИ» создан для ценителей комфортной и спокойной жизни в экологически чистом, тихом месте, окруженном лесным массивом, вдали от суеты мегаполиса. Развитые транспортные развязки – 20 минут до Екатеринбурга. Концепция жилого комплекса предполагает застройку по европейскому типу: комплексы из трех- и четырехэтажных кирпичных домов с просторными благоустроенными закрытыми дворами и достаточным количеством парковочных мест, с развитой инфраструктурой, включающей детский сад, школу, спортивный комплекс, торговый центр. Номер объекта: #5/545753/6529
    размещено: 11.09.2025 , обновлено: 7.11.2025

    2-к квартира, Победы, 5, 32 — 3 кв. 2025 г.

    • 77.9 м2
    • 3/4 этаж
    9 859 803 ₽ (126600 ₽/м2)
    Способы покупки: - семейная ипотека от банков партнеров с возможностью получить дополнительную скидку, точную цифру уточняйте в отделе продаж - за наличный расчет, скидка до 20% - Скидка участникам СВО от 5 до 25 % - скидка за семейную ипотеку 3% - Все скидки суммируются Об инфраструктуре Развлечения и досуг. Спортивный комплекс – для тех, кто ведет здоровый образ жизни. Канатная дорога, разнообразные качели и безопасные игровые площадки подарят незабываемые впечатления маленьким жителям района. Озеленение. Первая очередь, которая предполагает собой полный комплекс ландшафтного дизайна! Главное инфраструктурное звено микрорайона – Малахитовый Бульвар: интерактивный фонтан, игровые комплексы, зоны для тихого отдыха, амфитеатр. Жилой комплекс «УЮТ-СИТИ» создан для ценителей комфортной и спокойной жизни в экологически чистом, тихом месте, окруженном лесным массивом, вдали от суеты мегаполиса. Развитые транспортные развязки – 20 минут до Екатеринбурга. Концепция жилого комплекса предполагает застройку по европейскому типу: комплексы из трех- и четырехэтажных кирпичных домов с просторными благоустроенными закрытыми дворами и достаточным количеством парковочных мест, с развитой инфраструктурой, включающей детский сад, школу, спортивный комплекс, торговый центр.Номер объекта: #5/545713/6529
    размещено: 11.09.2025 , обновлено: 7.11.2025

    1-к квартира, Победы, 5, 32 — 3 кв. 2025 г.

    • 52.5 м2
    • 3/4 этаж
    7 187 250 ₽ (136900 ₽/м2)
    Способы покупки: - семейная ипотека от банков партнеров с возможностью получить дополнительную скидку, точную цифру уточняйте в отделе продаж - за наличный расчет, скидка до 20% - Скидка участникам СВО от 5 до 25 % - скидка за семейную ипотеку 3% - Все скидки суммируются Об инфраструктуре Развлечения и досуг. Спортивный комплекс – для тех, кто ведет здоровый образ жизни. Канатная дорога, разнообразные качели и безопасные игровые площадки подарят незабываемые впечатления маленьким жителям района. Озеленение. Первая очередь, которая предполагает собой полный комплекс ландшафтного дизайна! Главное инфраструктурное звено микрорайона – Малахитовый Бульвар: интерактивный фонтан, игровые комплексы, зоны для тихого отдыха, амфитеатр. Жилой комплекс «УЮТ-СИТИ» создан для ценителей комфортной и спокойной жизни в экологически чистом, тихом месте, окруженном лесным массивом, вдали от суеты мегаполиса. Развитые транспортные развязки – 20 минут до Екатеринбурга. Концепция жилого комплекса предполагает застройку по европейскому типу: комплексы из трех- и четырехэтажных кирпичных домов с просторными благоустроенными закрытыми дворами и достаточным количеством парковочных мест, с развитой инфраструктурой, включающей детский сад, школу, спортивный комплекс, торговый центр.Номер объекта: #5/545711/6529
    размещено: 11.09.2025 , обновлено: 7.11.2025

    3-к квартира, Победы, 5, 32 — 3 кв. 2025 г.

    • 102.4 м2
    • 3/4 этаж
    11 950 080 ₽ (116700 ₽/м2)
    Способы покупки: - семейная ипотека от банков партнеров с возможностью получить дополнительную скидку, точную цифру уточняйте в отделе продаж - за наличный расчет, скидка до 20% - Скидка участникам СВО от 5 до 25 % - скидка за семейную ипотеку 3% - Все скидки суммируются Об инфраструктуре Развлечения и досуг. Спортивный комплекс – для тех, кто ведет здоровый образ жизни. Канатная дорога, разнообразные качели и безопасные игровые площадки подарят незабываемые впечатления маленьким жителям района. Озеленение. Первая очередь, которая предполагает собой полный комплекс ландшафтного дизайна! Главное инфраструктурное звено микрорайона – Малахитовый Бульвар: интерактивный фонтан, игровые комплексы, зоны для тихого отдыха, амфитеатр. Жилой комплекс «УЮТ-СИТИ» создан для ценителей комфортной и спокойной жизни в экологически чистом, тихом месте, окруженном лесным массивом, вдали от суеты мегаполиса. Развитые транспортные развязки – 20 минут до Екатеринбурга. Концепция жилого комплекса предполагает застройку по европейскому типу: комплексы из трех- и четырехэтажных кирпичных домов с просторными благоустроенными закрытыми дворами и достаточным количеством парковочных мест, с развитой инфраструктурой, включающей детский сад, школу, спортивный комплекс, торговый центр.Номер объекта: #5/545709/6529
    размещено: 11.09.2025 , обновлено: 7.11.2025

История предложений в этом доме

объявление снято с публикации в продаже комнат площадь этаж цена,
г. Березовский, ул. Победы, 5б, 34, ЖК "Уют Сити" (городской округ Березовский) - фото квартиры 14 октября 2025 90 дн. 3 77.8 3/4 10 386 300
г. Березовский, ул. Старателей, 15 (городской округ Березовский) - фото квартиры 14 октября 2025 90 дн. 1 34 1/4 4 000 000
г. Березовский, ул. Александровский, 8 (городской округ Березовский) - фото квартиры 15 ноября 2025 90 дн. 3 82.4 4/4 11 800 000
г. Березовский, ул. Старателей, 11/4 (городской округ Березовский) - фото квартиры 25 сентября 2025 90 дн. 2 40 1/4 6 300 000
г. Березовский, ул. Победы, 5Б, ЖК "Уют Сити" (Победы, 5б) (городской округ Березовский) - фото квартиры 20 ноября 2025 90 дн. 1 31.6 1/4 4 224 920
г. Березовский, ул. Победы, 5б, 34, ЖК "Уют Сити" (городской округ Березовский) - фото квартиры 15 ноября 2025 90 дн. 1 48.3 2/4 6 689 550
г. Березовский, ул. Победы, 5б, 34, ЖК "Уют Сити" (городской округ Березовский) - фото квартиры 25 октября 2025 90 дн. 2 59.5 2/4 8 240 750
г. Березовский, ул. Победы, 5б, 34, ЖК "Уют Сити" (городской округ Березовский) - фото квартиры 26 сентября 2025 90 дн. 1 41 4/4 5 925 000
г. Березовский, ул. Победы, 5б, 34, ЖК "Уют Сити" (городской округ Березовский) - фото квартиры 8 октября 2025 90 дн. 3 83.5 4/4 10 605 000
г. Березовский, ул. Победы, 5б, 34, ЖК "Уют Сити" (городской округ Березовский) - фото квартиры 1 октября 2025 90 дн. 2 52.3 4/4 6 988 000
г. Березовский, ул. Победы, 5, 32 (городской округ Березовский) - фото квартиры 17 сентября 2025 90 дн. 1 36.6 1/4 5 197 200
г. Березовский, ул. Победы, 5, 32 (городской округ Березовский) - фото квартиры 19 ноября 2025 90 дн. 2 60.5 3/4 8 028 350
г. Березовский, ул. Победы, 5, 32 (городской округ Березовский) - фото квартиры 13 ноября 2025 90 дн. 2 60.5 3/4 8 028 350
г. Березовский, ул. Победы, 5, 32 (городской округ Березовский) - фото квартиры 13 ноября 2025 90 дн. 4 100.8 3/4 11 763 360
г. Березовский, ул. Победы, 5, 32 (городской округ Березовский) - фото квартиры 25 октября 2025 90 дн. 2 60.5 4/4 7 820 910
г. Березовский, ул. Победы, 5, 32 (городской округ Березовский) - фото квартиры 23 октября 2025 90 дн. 1 36.9 1/4 5 110 650
г. Березовский, ул. Александровский, 15 (городской округ Березовский) - фото квартиры 6 сентября 2025 90 дн. 1 44.5 4/4 5 100 000
г. Березовский, ул. Старателей, 4 (городской округ Березовский) - фото квартиры 1 августа 2025 90 дн. 3 66 1/3 7 350 000
г. Березовский, ул. Золоторудная, 6 (городской округ Березовский) - фото квартиры 31 июля 2025 90 дн. 1 39.7 3/3 4 500 000
г. Березовский, ул. Старателей, 3 (городской округ Березовский) - фото квартиры 13 августа 2025 90 дн. 2 59.4 2/4 7 030 000
г. Березовский, ул. Старателей, 7 (городской округ Березовский) - фото квартиры 12 сентября 2025 90 дн. 3 71 1/4 8 000 000
г. Березовский, ул. Александровский, 13 (городской округ Березовский) - фото квартиры 15 июля 2025 90 дн. 1 39.9 1/4 5 050 000
г. Березовский, ул. Старателей, 6 (городской округ Березовский) - фото квартиры 20 июня 2025 90 дн. 2 50.2 3/4 6 140 000
г. Березовский, ул. Старателей, 6 (городской округ Березовский) - фото квартиры 5 июля 2025 90 дн. 2 50.5 4/4 5 950 000
г. Березовский, ул. Старателей, 9 (городской округ Березовский) - фото квартиры 7 октября 2025 90 дн. 0 38.1 1/4 4 100 000
г. Березовский, ул. Старателей, 15а (городской округ Березовский) - фото квартиры 24 июня 2025 90 дн. 2 33.4 2/3 3 780 000
г. Березовский, ул. Александровский, 15 (городской округ Березовский) - фото квартиры 29 апреля 2025 90 дн. 2 44.5 1/4 4 900 000
г. Березовский, ул. Золоторудная, 2 (городской округ Березовский) - фото квартиры 15 июля 2025 90 дн. 1 42.6 3/3 4 950 000
г. Березовский, ул. Золоторудная, 3 (городской округ Березовский) - фото квартиры 19 февраля 2025 90 дн. 1 40.9 1/3 5 020 000
г. Березовский, ул. Золоторудная, 3 (городской округ Березовский) - фото квартиры 15 февраля 2025 90 дн. 1 40 1/3 5 100 000

Похожие предложения о продаже квартир в г. Березовский

  • 1-к квартира, Спортивная, 22

    • 32.2 м2
    • 1/5 этаж
    • Состояние: хорошее
    4 100 000 ₽ (127300 ₽/м2)
    Продаётся уютная однушка в тихом, зелёном районе Березовского. Одно из лучших предложений в этом районе — идеальный вариант для тех, кто ценит гармонию с природой: здесь вы будете жить в шаговой доступности от леса, одновременно пользуясь всеми преимуществами городской инфраструктуры и высоким уровнем комфорта. Квартира тёплая, светлая и очень приятная. 1 этаж 5-этажного дома кирпичного дома. Общая площадь — 32.2 м², кухня — 8,7 м². Санузел совмещённый, есть просторная лоджия — идеальное место для утреннего кофе или вечернего отдыха. Кухня удобная, не тесная — можно готовить, общаться, звать гостей. Комната правильной формы, легко расставить мебель. В доме хорошая шумоизоляция, приятные соседи, подъезд чистый, ухоженный. Первый этаж – удобно для семьи с ребенком, пожилых людей или под сдачу в аренду. Парковка у дома свободная, всегда есть места. Район очень приятный для жизни – здесь все под рукой: новая школа, детские сады, секции, магазины, кафе, пункты выдачи. В шаговой доступности Тропа здоровья с детскими и спортивными площадками. Здесь действительно комфортно жить. Квартира освобождена, без обременений, полная стоимость в договоре, никто не прописан. Возможна ипотека — поможем с одобрением, всё прозрачно и надёжно, сделку сопровождает опытный юрист. Звоните, приезжайте — покажем в удобное время. Это действительно хорошее место для жизни.
    размещено: 25.11.2025 , обновлено: 26.11.2025
  • 1-к квартира, Восточная, 5

    • 30.7 м2
    • 10/16 этаж
    • Состояние: удовлетворительное
    3 600 000 ₽ (117300 ₽/м2)
    Объект № 195722. Пpодам уютную квapтиpу на десятом этажe шестнадцатиэтaжного домa, pacпoложенного по адреcу: гopoд Бepезoвский, Востoчнaя улицa, 5. Окна выходят во двор на солнечную сторону. В квартире утеплённая мини -лоджия, заменены окна и установлена система тёплого пола. На лоджию выход из кухни. В комнате имеется два окна. Санузел совмещен, отделка - кафель. На полу ламинат. Натяжные потолки. Установлены приборы индивидуального учёта, имеются счётчики на отопление, за счёт этого низкие коммунальные платежи. Kвaртиpa раcпoлoженa в ЖК Центpaльный пaрк. Бoльшой, зaкpытый двор, охрана и видеонаблюдение, есть 2 детские площадки, спортивный корт, зона для парковки. Вся необходимая инфраструктура в шаговой доступности: магазины, аптеки, банки, пункты выдачи заказов, кафе, спортивные центры, остановки общественного транспорта в 5 минутах ходьбы детские сады, школы, центры развития, в 5 минутах расположен парк Победы. Квартира готова к продаже, без ограничений и обременений и без долгов, 1 взрослый собственник! ***Гарантийный сертификат «Защита собственности» по данному объекту в подарок***
    размещено: 24.11.2025 , обновлено: 26.11.2025
  • 1-к квартира, Александровский, 5а

    • 38.02 м2
    • 3/3 этаж
    5 100 000 ₽ (134100 ₽/м2)
    Продается уютная однокомнатная квартира! Площадь: 38,2 кв.м. Этаж: 3 из 3 Предлагаем вашему вниманию стильную и комфортную однокомнатную квартиру, расположенную на последнем этаже. Квартира с качественным ремонтом, выполненным в 2025 году, ждет своего нового хозяина! ✨ Особенности квартиры: * Утепленная лоджия для комфортного отдыха. * Обои, окрашенные сертифицированной Финской краской TEKNOS — долговечность и яркие цвета! * Встраиваемая мебель, выполненная по индивидуальным размерам, идеально вписывается в интерьер. * Теплый пол в ванной комнате и на балконе — уют в любое время года ! Прекрасные соседи — дружная атмосфера и комфортное соседство. В квартире остаются: * Встроенная инсталляция с унитазом * Раковина со смесителем и ванна * Встроенный шкаф в ванной комнате и зеркало * Кухонный гарнитур с высококачественной фурнитурой для мебели - Blum, индукционная варочная поверхность, вытяжка и раковина со смесителем * Два встроенных шкафа-купе для удобного хранения * Раздвижная перегородка в спальню для создания уюта * Люстра и все встроенные светильники Не упустите возможность стать владельцем этой замечательной квартиры! Звоните прямо сейчас, чтобы записаться на просмотр! ✨Номер объекта: #5/545898/6529
    размещено: 24.11.2025 , обновлено: 25.11.2025
  • 1-к квартира, Старателей, 7

    • 44.9 м2
    • 2/4 этаж
    • Состояние: идеальное
    5 390 000 ₽ (120000 ₽/м2)
    Предлагаю Вашему вниманию отличную квартиру общей площадью 44,9 кв.м (Евро Двушка). Планировка распашонка. Квартира светлая, чистая, не требует ремонта, вариант заезжай и живи.Кухня -гостинная 15,5 кв.м, комната 11,5 кв.м, лоджия 2,3 кв.мОстается встроенная мебель, кухонный гарнитур, остальное обсуждается на просмотре.Отличная локация дома, в шаговой доступности- остановка общественного транспорта, магазины, садик , школа.Один собственник! БЕЗ ДОЛГОВ И ОБРЕМЕНЕНИЙ! Быстрый выход на сделку!Скорее звоните! и уже завтра эта квартира станет Вашей! ID объекта в нашей базе: 12529
    размещено: 20.11.2025 , обновлено: 21.11.2025
  • 1-к квартира, Старателей, 7а

    • 35.1 м2
    • 4/4 этаж
    4 670 000 ₽ (133000 ₽/м2)
    Мечтаете о собственном уголке в современном и комфортном жилом районе? Представляем вашему вниманию уютную однокомнатную квартиру площадью 35 кв.м. в Уют-Сити! Что делает эту квартиру особенной? • Просторная гардеробная комната: Забудьте о беспорядке! Вместительная гардеробная позволит вам аккуратно хранить всю одежду и обувь, освобождая основное пространство квартиры. • Теплые полы в ванной комнате: Наслаждайтесь максимальным комфортом даже в холодное время года. Теплые полы в ванной – это настоящее удовольствие для ваших ног! • Кондиционер: Создайте идеальный микроклимат в любое время года. Прохлада летом и комфортная температура в межсезонье – теперь это реальность! • Мебель остается: Вам не придется тратить время и силы на обустройство! В квартире остается качественная и стильная мебель на кухне, в ванной комнате и в гардеробной. Просто заезжайте и живите! Жилой район Уют-Сити – это: • Современная инфраструктура: Все необходимое для комфортной жизни в шаговой доступности: магазины, кафе, детские сады, школы, спортивные площадки. • Благоустроенная территория: Зеленые зоны, детские площадки, зоны отдыха – здесь приятно гулять и проводить время. • Удобная транспортная доступность: Легко добраться до любой точки города. Эта квартира – идеальный старт для вашей самостоятельной жизни, выгодное вложение или уютное гнездышко для молодой семьи. Звоните прямо сейчас, чтобы договориться о просмотре!Номер объекта: #5/545894/6529
    размещено: 17.11.2025 , обновлено: 18.11.2025

    1-к квартира, Гагарина, 29

    • 38.6 м2
    • 6/16 этаж
    • Состояние: хорошее
    4 380 000 ₽ (113500 ₽/м2)
    Объект № 195203. Продается 1- комнатная квартира в формате под тапочки - заезжай и живи. Большая кухня, балкон, солнечная сторона, квартира в кирпичном доме и очень теплая. Остается мебель, техника. В подъезде и в лифтах видеонаблюдение. Своя УК. Большая придомовая территория. В шаговой доступности детский сад и новая школа, торговый центр и сетевые магазины. Для прогулок и активного отдыха любимое место горожан - Тропа здоровья. В квартире никто не проживает. Приглашаем на просмотр. ***Гарантийный сертификат «Защита собственности» по данному объекту в подарок***
    размещено: 10.11.2025 , обновлено: 25.11.2025

    1-к квартира, Александровский, 7

    • 34.8 м2
    • 2/3 этаж
    • Состояние: хорошее
    4 600 000 ₽ (132200 ₽/м2)
    Срочно продаю квартиру в районе Уют сити. Новый Йон со своей инфраструктурой. Рядом бассейн,садик, магазин,автобусная остановка). Квартира чистая уютная . С удобной расстановкой зон. Евроремонт. Очень светлая квартира. Балкон очень просторный и светлый. Закрытый двор. Квартира без обременения и долей детских. ID объекта в нашей базе: 12329
    размещено: 07.11.2025 , обновлено: 18.11.2025

    1-к квартира, Старателей, 7

    • 38 м2
    • 3/4 этаж
    • Состояние: хорошее
    4 500 000 ₽ (118400 ₽/м2)
    Объект № 195332. Продаём квартиру в прекрасном районе г. Березовского - Уют-Сити. Квартира расположена на комфортном третьем этаже, прекрасно подойдёт для небольшой семьи: отдельная спальня и кухня-гостиная. Покупателю оставим кухонный гарнитур и вместительный шкаф в прихожей. Быстрый выход на сделку - один взрослый собственник. Приходите на просмотр, чтобы увидеть собственными глазами! ***Гарантийный сертификат «Защита собственности» по данному объекту в подарок***
    размещено: 01.11.2025 , обновлено: 18.11.2025

    1-к квартира, Александровский, 11

    • 37.7 м2
    • 2/3 этаж
    5 050 000 ₽ (134000 ₽/м2)
    О доме - малоэтажное кирпичное строение - 2017 года постройки - НИЗКИЕ КОММУНАЛЬНЫЕ ПЛАТЕЖИ - прекрасные соседи - ВСЕГДА ЕСТЬ ПАРКОВКА возле дома - самая оснащенная детская площадка - ЗАКРЫТАЯ ТЕРРИТОРИЯ ДВОРА О квартире - уютная, приятная и очень аккуратная квартира - КВАРТИРА БЕЗ ОБРЕМЕНЕНИЙ И ОСВОБОЖДЕНА - квартира полностью готова для проживания - ПРЕКРАСНОЕ СОСТОЯНИЕ КВАРТИРЫ - удобное и практичное планировочное решение - выделена просторная кухня-гостиная - В КВАРТИРЕ ОСТАЕТСЯ ВСЯ МЕБЕЛЬ И ТЕХНИКА, ПРЕДСТАВЛЕННАЯ НА ФОТО (2 новых дивана) - квартира эксплуатировалась всего 1,5 года - ПРОДАДИМ КВАРТИРУ ТОЛЬКО В ХОРОШИЕ И ДОБРЫЕ РУКИ!!! О локации Район ЖК «Уют-Сити» окружен лесом, поэтому здесь всегда чистый воздух. К тому же, здесь есть все необходимое для удобной жизни: развитая инфраструктура, магазины, общественный транспорт, детский сад, ШКОЛА №45, детские развивающие центры И СКОРО ПОЯВИТСЯ ЕЩЕ И БАССЕЙН В этом районе вы найдете все для комфортной жизни и заботы о семье. Для людей, которые ценят тишину и природу, а также ищут место для комфортной жизни, ЖК «Уют-Сити» является идеальным местом. Здесь вы сможете наслаждаться природой, а также получить доступ ко всему необходимому для жизни. Приходите и наслаждайтесь красотой этого места! Поможем в оформлении сделки в кратчайшие сроки! НЕ УПУСТИТЕ СВОЙ ШАНС ПРИОБРЕСТИ КВАРТИРУ В ПОСТОЯННО РАЗВИВАЮЩЕМСЯ НОВОМ РАЙОНЕ Г. БЕРЕЗОВСКИЙ УЮТ-СИТИ, ГДЕ ЦЕНЫ НА НЕДВИЖИМОСТЬ ВСЕГДА УВЕЛИЧИВАЮТСЯ! В ЖК УЮТ-СИТИ действует программа приведи друга, в рамках которой каждый покупатель может получить cash back от 35 000 рублей. Действует данная программа только на покупателей объектов из базы застройщика (новостройки и вторичный рынок УЮТ-СИТИ). Подробности на официальном сайте уют-сити.рф.Номер объекта: #5/545893/6529
    размещено: 30.10.2025 , обновлено: 15.11.2025

    1-к квартира, Золоторудная, 2

    • 37.6 м2
    • 2/3 этаж
    4 570 000 ₽ (121500 ₽/м2)
    СРОЧНАЯ ПРОДАЖА О доме - малоэтажное кирпичное строение - 2016 года постройки - комплекс оснащен собственной котельной - наземная парковка для автомобилей - функциональная детская площадка - закрытый двор О квартире - уютная и теплая квартира БЕЗ ОБРЕМЕНЕНИЙ - окна выходят во двор - просторная кухня - жилая комната, удобно зонирована на спальню и детскую. - В ПОДАРОК ОСТАЕТСЯ: КУХОННЫЙ ГАРНИТУР, ПОСУДОМОЕЧНАЯ МАШИНА ,ХОЛОДИЛЬНИК , ШКАФ,ДВУХСПАЛЬНАЯ КРОВАТЬ О локации Благоприятная экологическая обстановка вокруг, чистый воздух с постоянно развивающейся инфраструктурой. Поблизости находятся: школа № 45,№5, детские сады № 23, 9, 4, оборудованная детская площадка, места для отдыха, продуктовые магазины «ПЯТЁРОЧКА», «МАГНИТ», «МАГНИТ КОСМЕТИК», «Вкусно»,«Фабрика качества», «Красное & Белое», салоны красоты, гос.поликлинника в шаговой доступности 10-15 минут пешком. Остановка РЯДОМ с домом (маршруты № 1, 2, 5 по городу Березовскому) + остановка до Екатеринбурга 20 минут пешком (маршруты № 166, 150, 150А, 114 и другие). Приходите на просмотр! Поможем приобрести данный вариант для покупки!!! Возможно, эта квартира ждет именно Вас!!! Номер объекта: #5/545892/6529
    размещено: 28.10.2025 , обновлено: 15.11.2025

    1-к квартира, Театральная, 2/2

    • 35 м2
    • 9/10 этаж
    • Состояние: хорошее
    4 190 000 ₽ (119700 ₽/м2)
    Объект № 195019. Продается Квартира в ЖК Радужный. Общая площадь квартиры 35 кв.м.+ застекленная большая лоджия 6 кв.м. Планировка включает в себя просторную комнату, гардеробную, прихожую, санузел, кухню. Коммунальные услуги в доме минимальные, так как в ЖК своя котельная. На этаже всего 4 квартиры. Лифт грузопассажирский. Двор дома - закрытая территория - стоит шлагбаум. Детская, спортивная площадка, парковка. Квартира освобождена, в ней остается: кухонный гарнитур и стиральная машина. Готова к продаже. ***Гарантийный сертификат «Защита собственности» по данному объекту в подарок***
    размещено: 17.10.2025 , обновлено: 18.11.2025

    1-к квартира, Восточная, 11 а

    • 35 м2
    • 17/17 этаж
    4 500 000 ₽ (128600 ₽/м2)
    Объект № 194932. Продается однокомнатная уютная квартира в самом престижном месте г. Березовский. Квартира теплая, светлая с хорошим ремонтом. Счетчики на тепло, воду. Низкие коммунальные платежи. Вся инфраструктура рядом. ***Гарантийный сертификат «Защита собственности» по данному объекту в подарок***
    размещено: 16.10.2025 , обновлено: 10.11.2025

    1-к квартира, Красных Героев, 9

    • 41.2 м2
    • 3/5 этаж
    • Состояние: идеальное
    3 500 000 ₽ (85000 ₽/м2)
    Специальное предложение до 15 декабря 2025 года. Снижение цены на 10 %.В центре г.Берёзовский!Продам однокомнатную кваpтиpу в киpпичном 5 этажнoм доме, в глубинe двopa, в удaлении от пpоeзжeй чаcти.- Вoкpуг еcть дeтскиe сaды, oбщеoбpазoвaтельныe и музыкальные школы, детскиe спoртивныe и развивaющие организации, стадион, школа балета и гимнастики, фитнес клубы, сетевые магазины: "Кировский", "Пятерочка", "Монетка", ТЦ "Перекрёсток", центральный рынок, салоны красоты, аптеки, ПВЗ, поликлиники, банки и другие организации необходимые для полноценной жизни.- Через дорогу парк "Счастье", рядом новый "Парк победы".- Развитая транспортная доступность. Автобусные остановки возле дома со всеми нужными маршрутами.- огороженная оборудованная детская площадка,- просторный двор и парковка. Всегда есть места.- кирпичный дом 1976 года постройки,- хорошая тепло/шумоизоляция,- общая площадь всех помещений 41.2 кв.метра.- в квартире выполнен качественный дизайнерский ремонт,- электрические теплые полы в кухне и прихожей,- заменена эл. проводка и инженерные сети,- окна из ПВХ с 5-камерным с/пакетом,- вместительная остеклённая лоджия,- ламинат и керамическое покрытие пола,- светодиодное освещение,- газовый водонагреватель,- уникальная планировка квартиры,- сейф-дверь с домофоном,- меблирована, готова к проживанию,- вид из окон на тихий двор,- благоприятный контингент соседей.В ПОДАРОК СЕРТИФИКАТЫ НА НОВУЮ МЕБЕЛЬ И РЕМОНТ от HoFF на 50 000 руб.!- продажа от собственника,- без долгов и обременений,- наличные,- ипотека,- сертификат, мат. капитал. ID объекта в нашей базе: 1693
    размещено: 16.10.2025 , обновлено: 26.11.2025

    1-к квартира, Восточная, 9

    • 30.9 м2
    • 2/16 этаж
    3 800 000 ₽ (123000 ₽/м2)
    Арт. 120131405 В продаже светлая, уютная 1к квартира на самом лучшем 2 этаже! Основные характеристики:Площадь 30,9 кв м + 2,7 кв м балкон Просторная комната 15,6 кв м В прихожей сделана вместительная гардеробнаяРемонт обновлен летом 2025г Квартира расположена в ЖК "Центральный парк" большой, закрытый двор, охрана и видеонаблюдение есть 2 детские площадки, спортивный корт, зона для парковки Вся необходимая инфраструктура в шаговой доступности:магазины, аптеки, банки, пункты выдачи заказов, кафе, спортивные центрыостановки общественного транспорта в 5 минутах ходьбыдетские сады, школы, центры развитияв 5 минутах расположен парк Победы Квартира готова к продаже, без ограничений и обременений, 1 взрослый собственник! Не упустите шанс стать владельцем этой замечательной квартиры по очень привлекательной цене! Звоните прямо сейчас, чтобы записаться на просмотр и узнать больше!
    размещено: 14.10.2025 , обновлено: 27.11.2025

    1-к квартира, Загвозкина, 56

    • 28 м2
    • 2/16 этаж
    • Состояние: плохое
    3 998 000 ₽ (142800 ₽/м2)
    Объект № 194644. Продам квартиру - студию 28 кв.м. Зона коридора выделена. Санузел совмещен. Лоджия застеклена. Потолок натяжной, стены под обои выровнены, пол залит ровной стяжкой. В доме два лифта: грузовой и пассажирский, закрытая территория, двор без машин. ***Гарантийный сертификат «Защита собственности» по данному объекту в подарок***
    размещено: 30.09.2025 , обновлено: 27.11.2025

    1-к квартира, Гагарина, 29

    • 35.2 м2
    • 6/16 этаж
    • Состояние: хорошее
    4 350 000 ₽ (123600 ₽/м2)
    Объект № 194518. Продаётся уютная однокомнатная квартира в кирпичном доме, в современном новом 6-ом микрорайоне. В шаговой доступности школы, садики, тропа здоровья. Двор закрытый, спортплощадка и детская площадка во дворе. В квартире косметический ремонт, кухонный гарнитур с посудомоечной машиной, частично мебель и места хранения. 1 взрослый собственник, без обременений. ***Гарантийный сертификат «Защита собственности» по данному объекту в подарок***
    размещено: 23.09.2025 , обновлено: 21.11.2025

    1-к квартира, Старателей, 7

    • 34.8 м2
    • 4/4 этаж
    4 250 000 ₽ (122100 ₽/м2)
    О доме - малоэтажное кирпичное строение - комплекс оснащен собственной котельной - наземная парковка для автомобилей - функциональная детская площадка - закрытый двор О квартире - практичная планировка с большой кухней-гостиной - уютная,светлая и теплая квартира - окна выходят на западную сторону - квартира уже с ремонтом и готова для проживания - новому владельцу в подарок остается: кухонный гарнитур - без обременений О локации Благоприятная экологическая обстановка вокруг, чистый воздух с постоянно развивающейся инфраструктурой. Поблизости находятся: школа № 5, детские сады № 23, 9, 4, оборудованная детская площадка, места для отдыха, продуктовые магазины «ПЯТЁРОЧКА», «МАГНИТ», «МАГНИТ КОСМЕТИК», «Красное & Белое», салоны красоты, гос.поликлинника в шаговой доступности 10-15 минут пешком. Остановка РЯДОМ с домом (маршруты № 1, 2, 5 по городу Березовскому и с декабря добавился 114 маршрут до Екатеринбурга ). Приходите на просмотр! Поможем в оформлении сделки в кратчайшие сроки! Не упустите свой шанс приобрести квартиру в постоянно развивающемся новом районе г. Березовский "Уют-Сити", где цены на недвижимость всегда увеличиваются!Номер объекта: #5/545890/6529
    размещено: 22.09.2025 , обновлено: 23.11.2025

    1-к квартира, Театральная, 36

    • 48.2 м2
    • 9/10 этаж
    • Состояние: хорошее
    5 750 000 ₽ (119300 ₽/м2)
    Объект № 193784. Продаём отличную квартиру. Захватывающий вид из окна- наслаждайтесь живописными пейзажами каждый день, любуясь панорамой города прямо из вашей кухни-гостиной. Комнаты на разные стороны - оцените преимущества естественного освещения в течение всего дня. Комнаты, расположенные на разные стороны, создают уютную атмосферу и обеспечивают хорошую вентиляцию. Уникальный дом с собственной котельной - забудьте о сезонных отключениях горячей воды и перебоях с отоплением! Собственная котельная гарантирует комфорт и независимость в любое время года. Всегда есть парковочные места - больше никаких поисков места для автомобиля! У вас всегда будет гарантированное парковочное место рядом с домом. Надежный кирпичный дом - прочность, долговечность и отличная звукоизоляция. Это гарантия вашего спокойствия и комфорта. Один взрослый собственник: Чистая история квартиры и отсутствие обременений гарантируют юридическую чистоту сделки. Быстрый выход на сделку: Мы ценим ваше время и готовы к оперативной продаже. Мебель и техника в подарок: Заезжайте и живите! Квартира освобождена. Никаких задержек и ожиданий – вы можете заселиться сразу после оформления сделки! ***Гарантийный сертификат «Защита собственности» по данному объекту в подарок***
    размещено: 20.08.2025 , обновлено: 23.11.2025

    1-к квартира, Февральская, 24

    • 31.4 м2
    • 2/5 этаж
    • Состояние: хорошее
    3 850 000 ₽ (122600 ₽/м2)
    Хорошая однокомнатная квартира в кирпичном доме-спецпроекте 2007 года постройки! Все помещения правильной формы: большая комната с выходом на лоджию и отдельная кухня. Отличный второй этаж! Покупателю остается кухонный гарнитур, функциональный шкаф-купе в прихожей. Во дворе благоустроенная детская площадка, общественная автопарковка. Для собственников дома оборудована своя парковка под шлагбаумом. В окружении современные жилые дома, рядом вся необходимая инфраструктура, удобные автовыезды.Несложный обмен. Более 5 лет в собственности. БЕЗ каких-либо залогов или обременений! Ипотека возможна. Документы проверены!Приглашаем на просмотры по предварительной договоренности. Более подробная информация по указанному телефону. Звоните!#квартираберезовский#февральская#ипотека ID объекта в нашей базе: 4540
    размещено: 18.08.2025 , обновлено: 18.11.2025

    1-к квартира, Спортивная, 8

    • 34 м2
    • 2/9 этаж
    • Состояние: удовлетворительное
    4 000 000 ₽ (117600 ₽/м2)
    Объект № 193629. Продается однокомнатная квартира в престижном доме города Березовский. В шаговой доступности детский сад, современная новая школа, тропа здоровья. Окна выходят на ТЦ Яблоко. Кухня просторная, светлая. Комната с нишей. ***Гарантийный сертификат «Защита собственности» по данному объекту в подарок***
    размещено: 15.08.2025 , обновлено: 8.10.2025

Новостройки г. Березовский

Приоритет

Увеличивает просмотры в 3 раза

Ваше объявление показывается в списке выше обычных объявлений. подключить