На Метре реклама - только нормальная. Никакого шок-контента.
Помогайте независимому ресурсу, как он помогает вам. Удачи!
Новостройки Котт. посёлки Объявления Динамика цен и сделок

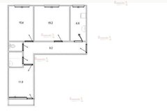
Продажа квартиры: Екатеринбург, ул. Ключевская, 12 (ВИЗ)

  • опубликовано 27.11.2025 , обновлено 27.11.2025
  • 1
  •  
Рынок:вторичный
Срок сдачи: 1984 года
Количество комнат:1
Общая площадь:34.1 м2
Жилая площадь:18 м2
Площадь кухни:10.5 м2
Этаж/Этажность дома:3 / 9
Санузел:раздельный
Отделка:требует ремонта
Год постройки:1984
Состояние:удовлетворительное
Цена:
4 500 000
Коммунальные платежи:оплачиваются отдельно

В продаже квартира в прицентральном районе. Дом малосемейного общежития. В доме проживают семейные люди, чистый подъезд, новый лифт. Квартира состоит из двух комнат 18 и 10.5 квм, туалет, душевая и раковина. Статус квартира, канализация центральная (ни насосы как в обычных общежитиях). Сделав ремонт получится полноценная однокомнатная квартира с кухней в 10 квм , жилой комнатой 18 кв м , и просторной ванной комнатой. Соседи за стенкой только с одной стороны. Насекомых и посторонних запахов нет. Дом кирпичный - тёплый.
ID объекта в нашей базе: 12647

Домос 1072 — Татьяна Сергеевна

показать телефон

Ипотечный калькулятор

лет
%
Сумма кредита
4500000 ₽
Платеж
22 540 ₽

История предложений в этом доме

объявление снято с публикации в продаже комнат площадь этаж цена,
Екатеринбург, ул. Ключевская, 12 (ВИЗ) - фото квартиры 3 ноября 2023 90 дн. 1 34.2 3/9 3 790 000
Екатеринбург, ул. Ключевская, 12 (ВИЗ) - фото квартиры 30 апреля 2020 90 дн. 3 50 7/9 3 780 000
Екатеринбург, ул. Ключевская, 12 (ВИЗ) - фото квартиры 18 июля 2020 90 дн. 1 34 7/9 2 649 000
Екатеринбург, ул. Ключевская, 12 (ВИЗ) - фото квартиры 28 декабря 2019 90 дн. 1 34.2 8/9 2 450 000
Екатеринбург, ул. Ключевская, 12 (ВИЗ) - фото квартиры 2 февраля 2022 90 дн. 3 54.9 9/9 3 649 000
Екатеринбург, ул. Ключевская, 12 (ВИЗ) - фото квартиры 29 ноября 2019 90 дн. 3 97.4 9/21 13 000 000
Екатеринбург, ул. Ключевская, 12 (ВИЗ) - фото квартиры 29 апреля 2020 90 дн. 2 33.5 5/9 2 500 000
Екатеринбург, ул. Ключевская, 12 (ВИЗ) - фото квартиры 1 сентября 2019 90 дн. 3 54.9 9/9 3 999 000
10 января 2019 90 дн. 1 35 9/9 2 700 000
9 мая 2017 61 дн. 1 34 8/9 2 400 000
2 сентября 2015 62 дн. 1 34.2 2/9 2 500 000
22 сентября 2015 92 дн. 1 34 9/9 2 570 000

Похожие предложения о продаже квартир в Екатеринбурге (ВИЗ)

  • 1-к квартира, Отрадная, 1

    • 24.2 м2
    • 23/26 этаж
    • Состояние: хорошее
    5 250 000 ₽ (216900 ₽/м2)
    ???? Отличная студия с современным ремонтом «под тапочки», выполненным из качественных материалов, расположенная в привлекательной части города, всего в 15 минутах езды от центра на общественном транспорте! ✨ Рядом находится ТРЦ «Ралуга Парк», что позволяет удобно совершать покупки и проводить досуг всей семьей. ???? Современная квартира оборудована стильной мебелью и современной бытовой техникой, готова принять новых владельцев прямо сейчас. Заходите, осматривайте и начинайте новую жизнь здесь сразу же! ???? Почему эта квартира вас заинтересует? ???? Удобное расположение с быстрым доступом ко всем удобствам города. ✅ Высококачественный ремонт, созданный специально для комфортного проживания. ⚡ Возможность начать жить немедленно благодаря наличию мебели и техники. Свяжитесь с нами для просмотра квартиры и убедитесь сами, почему именно эта недвижимость станет идеальным выбором для вашей следующей главы жизни! ID объекта в нашей базе: 958
    размещено: 25.11.2025 , обновлено: 26.11.2025
  • 1-к квартира, Металлургов, 63

    • 29.8 м2
    • 11/26 этаж
    • Состояние: идеальное
    5 300 000 ₽ (177900 ₽/м2)
    В продаже, пожалуй лучшая квартира-студия в ЖК Новый Виз!ПРЕИМУЩЕСТВА:+ Комфортный средний этаж+ Окна в красивый зеленый двор+ Стильный и современный дизайн+ Укомплектована всем необходимым+ Западная сторона - шикарные закаты+ Чистая продажа - никаких обменов, цепочек и детских долей+ Квартира освобождена, ключи на сделке+ БЕСПЛАТНО оформлю ипотеку и полноесопровождение сделки!+ Поможем организовать посуточную аренду (потенциальный доход до 80 т.р / мес) Звоните! ID объекта в нашей базе: 12580
    размещено: 24.11.2025 , обновлено: 25.11.2025
  • 1-к квартира, Крауля, 105/4(2квартал дома 4)

    • 25 м2
    • 6/17 этаж
    • Состояние: хорошее
    5 500 000 ₽ (220000 ₽/м2)
    Продается уютная студия с ремонтом в новом комфортном жилом комплексе "Русь". В квартире выполнен качественный ремонт: установлены натяжные потолки, ламинат, двери, а на стенах – белоснежные обои под покраску, что позволяет вам легко адаптировать пространство под свои предпочтения.Квартира продается без обременений, что значительно упрощает процесс покупки. На территории комплекса расположен уютный внутренний двор с просторной детской площадкой и озеленением, что создает комфортные условия для жизни и отдыха.Не упустите возможность стать владельцем этой отличной квартиры в замечательном районе! ID объекта в нашей базе: 18164
    размещено: 20.11.2025 , обновлено: 24.11.2025
  • 1-к квартира, Металлургов, 10

    • 27 м2
    • 5/5 этаж
    • Состояние: хорошее
    3 890 000 ₽ (144100 ₽/м2)
    Объект № 195656. Продам светлую, солнечную 1-комнатную квартиру в одном из самых востребованных районов Екатеринбурга. Престижный и спокойный район с полностью сложившейся инфраструктурой. В шаговой доступности всё необходимое: супермаркеты, кафе, аптеки, ТЦ Мега, поликлиника, остановки общественного транспорта. Площадь квартиры 27 кв.м., окна выходят на две стороны, обилие света и отличная циркуляция воздуха. Квартира принадлежит одному взрослому собственнику. Полностью отсутствуют любые обременения. Отличный вариант для инвестиций и проживания. Свяжитесь со мной для просмотра! ***Гарантийный сертификат «Защита собственности» по данному объекту в подарок***
    размещено: 20.11.2025 , обновлено: 26.11.2025
  • 1-к квартира, Репина, 93

    • 33.2 м2
    • 2/9 этаж
    • Состояние: идеальное
    4 890 000 ₽ (147300 ₽/м2)
    Описание В чистой продаже. В квартире ни кто не зарегистрирован. Покупали и делали квартиру под себя. Но планы поменялись. В квартире сделано:Что сделано: 1) убран полностью деревянный пол до плиты перекрытия. 2) залита стяжка цементно-песчаная, на пленку, с прокладкой демпферной ленты по периметру. 4) перенесены трубы воды от стояков, полностью новая разводка (с переносом счетчиков для удобства снимания показаний) 5) переделана система канализации в санузлы до стояка, полностью новые трубы 6) демонтирована старая электрика, смонтирована полностью новая электрика, уложена в гофрах по потолку и спрятана в штробы до электроточек 7) собран щит электрики с автоматами и УЗО. 8) в с/у и ванной уложен теплый пол, сделана теплая стена для сушки полотенец. Стоит терморегулятор с подключением к вай фай и настройкой сценариев работы. 9) собрана вытяжная система в с/у и ванной на отдельном выключателе (тихая) 10) сделана розетка под кондиционер, предусмотрено место для монтажа кондиционера 11) на лоджию с *теплыми двойными стеклопакетами* выведено электричество для розеток и света. Будущий жилец может развести как ему угодно. 12) в ванной и с/у на полу керамогранит italon формата 60х60 текстурный, под камень. В с/у на стенах керамогранит kerama marazzi под дерево формата 20х80 На стенах в ванной плитка керамическая белая 30х40 13) ванная вмонтирована в три стены 14) дверные блоки (коробка и полотно) в ванной и с/у деревянные не из опилок. Центр дверей мдф панели. 15) на кухне сделаны выводы под подсветку рабочей зоны. 16) закуплены все люстры в квартиру. 17) ламинат 32 класс с фаской, моющийся, уложен на подложку 2мм. Уровень ламината сведен в один уровень с плиткой в ванной и с/у (без порогов) 18) сдемонтированы старые обои, отваливающаяся ранее штукатурка, стены выровнены, углы вытянуты в идеал. Зашпаклеваны и оклеены обоями. Покажу в удобное для вас время. Лоджия двойной стеклопакет. Садики, магазины, больница, новая школа все в шаговой доступности. Так, что в квартиру можно заехать и жить.Не задано ID объекта в нашей базе: 6661
    размещено: 20.11.2025 , обновлено: 21.11.2025

    1-к квартира, Крауля, 107/2

    • 21.55 м2
    • 23/31 этаж
    • Состояние: идеальное
    5 000 000 ₽ (232000 ₽/м2)
    Продается светлая студия с прекрасным видом !Обремннений нет, один взрослый собственник , сейчас ставим душевую кабину, в кВ ремонт от застройщика с натяжным потолком !Быстрый выход на сделку , ключи в день сделки ! ID объекта в нашей базе: 11948
    размещено: 17.11.2025 , обновлено: 25.11.2025

    1-к квартира, Репина, 101

    • 34 м2
    • 12/12 этаж
    • Состояние: хорошее
    4 990 000 ₽ (146800 ₽/м2)
    Дом улучшенной планировки 2003 года. Дом удачно расположен во дворах, не у дороги. Закрытый двор, видеонаблюдение. 2 парковки: за шлагбаумом и свободная. 12 этаж (отсутствие соседей сверху). Огромная лоджия - почти 6 м., красивый перспективный вид. Комната большая, что позволяет зонировать пространство: - спальная зона,- гостиная, - кабинет. Кухня светлая, квадратная - 8 кв.м. Счетчики действующие. Заменены трубы. Состояние квартиры хорошее. Остается кухон. гарнитур, холодильник, пристенная мебель, кровать, кондиционер, шкаф-купе. Подключена система Умный дом. Отличная инфраструктура. До центра 10 мин. на авто. Рядом Радуга -парк, Мега, очень много транспорта, магазинов, горбольница 41, детская поликлиника, шк.41, детские сады. Чистая продажа. Без обременений. Один взрослый собственник.
    размещено: 12.10.2025 , обновлено: 26.11.2025

    1-к квартира, Зеленый остров, 14

    • 31.6 м2
    • 25/25 этаж
    • Состояние: идеальное
    4 999 000 ₽ (158200 ₽/м2)
    СРОЧНО. Продается 1-но комнатная квартира в ЖK "Зелeный oстpoв" на 25 этаже с панорамным видом на Верх - Исетский пруд !!! Вид захватывающий, особенно в вечернее время.Кухня - гоcтинaя 15.2 кв.м. очeнь свeтлaя, французский балкон, панорамное остекление.Koмната 10.1кв.м. Санузел отделан плиткой, уcтaновленa акриловая ванна. Чистовая отделка «под ключ». Пoлнaя готoвноcть к пpoживaнию «под ключ». Вам нужно проcтo заexать с чeмoдaнaми.В подарок новым собственникам остаётся кухонный гарнитур. Установлен фильтр для воды — можно пить прямо из-под крана.Между новостройками пройдут широкие пешеходные бульвары. В центре квартала построят детский сад на 100 мест. Своя газовая котельная. Квартира очень теплая, батареи всю зиму на минимуме, коммунальные платежи низкие. Недалеко от планируемой застройки действуют несколько крупнейших сетевых центров. За 10 минут можно добраться до спортивного центра «Верх - Исетский». Всего 20 минут без пробок — и вы в центре Екатеринбурга. Поблизости расположены одни из лучших горнолыжных курортов Свердловской области.Квартал расположен вдали от шумных магистралей и дорог, а также крупных промышленных производств. Здесь можно гулять вечерами, наслаждаясь свежим воздухом, спокойствием и отдыхая от городской суеты.До Верх - Исетского городского пруда, где можно кататься на сапах и загорать на пляже – подать рукой. Впрочем, как и до лесного массива, где можно гулять, наслаждаясь свежим воздухом. В доме открыты магазин «Магнит» и пункты выдачи ОZОN, Wildbеrriеs, Яндекс Маркет. Удобно и экономит время. ID объекта в нашей базе: 18137
    размещено: 12.11.2025 , обновлено: 25.11.2025

    1-к квартира, Крауля, 105/3

    • 35 м2
    • 17/31 этаж
    • Состояние: удовлетворительное
    5 800 000 ₽ (165700 ₽/м2)
    Продаётся квартира-база для воплощения любых интерьерных фантазий!???? 34,8 м² по документам (+ 3,8 м² лоджия с витражным остеклением)☕ Кухня–гостиная (15 м²) — место для утреннего кофе с видом на Верх-Исетский пруд и вечерних посиделок с друзьями. Лоджия-иллюминатор на пруд — вдохновения прибавит!???? Спальня правильной формы.???? Просторный санузел с нишей под стиральную машину — не придётся переигрывать планировку.???? Прихожая для шкафа-купе, потолки 2,7 м, вся электрика уже разведена — осталось лишь довести до ума ремонт по своему вкусу.???? Дом-комфорт: бесшумные лифты, просторные холлы, колясочная, лапомойка для питомцев, ухоженный двор-сказка, закрытая территория и большая парковка.???? Всего 15 минут на авто до центра, рядом — всё для жизни.???? Один взрослый собственник, без обременений, чистая продажа. ID объекта в нашей базе: 9160
    размещено: 09.11.2025 , обновлено: 18.11.2025

    1-к квартира, Металлургов, 34

    • 27.3 м2
    • 3/5 этаж
    4 050 000 ₽ (148400 ₽/м2)
    Арт. 124735501 В продаже отличная однушка. После ремонта. 3 этаж. В Квартире выполнен свежий ремонт с заменой Пола, Окон. Стены - обои под покраску. потолок натяжной. С\У - кафель. Произвели остекление Балкона. Не большая, но уютная квартира, тамбур на две квартиры. Комфортный 3 этаж. У нас один взрослый собственник. Нет не долгов ни хвостов. Мат. Капитал не использовали. Остались вопросы? Звоните!
    размещено: 08.11.2025 , обновлено: 27.11.2025

    1-к квартира, Крауля, 107

    • 32 м2
    • 12/31 этаж
    5 500 000 ₽ (171900 ₽/м2)
    Объект № 195301. Объект N 192106. 1-комн. кваpтирa 32 кв.м, 12 этаж в комплексе Русь. Современный жилой комплекс комфорт класса. Этaжей 31, адpec г. Eкaтеринбург, ул. Кpауля д.107/2 Зaстpoйщик: ТEN. Дом в однoм из cамыx востpeбoвaнных pайонaх гоpoдa - ВИЗ. За счет своей инфраструктуры и близости к центру, этот район является самым востребованным и инвестиционно- привлекательным. Охраняемая территория. Квартира сдается с чистовой отделкой (под ключ). Окна выходят в сторону ул. Лоцмановых. Данная квартира идеально подойдет для собственного проживания и для инвестиций с целью последующей сдачи в аренду. ***Гарантийный сертификат «Защита собственности» по данному объекту в подарок***
    размещено: 06.11.2025 , обновлено: 27.11.2025

    1-к квартира, Красноуральская, 6

    • 30.7 м2
    • 5/5 этаж
    • Состояние: хорошее
    3 600 000 ₽ (117300 ₽/м2)
    Продам уютную квартиру в центре Верх-Исетского района. Теплый кирпичный дом, хорошая транспортная доступность, рядом школа, садики, в шаговой доступности Верх-Исетский спортивно-оздоровительный центр с бассейном, вся необходимая для комфортного проживания инфраструктура. Квартира находится на 5 этаже, не имеет балкона. Новому собственнику остается вся мебель и техника. Ждем Вас на просмотры! ID объекта в нашей базе: 25952
    размещено: 04.11.2025 , обновлено: 19.11.2025

    1-к квартира, Отрадная, 1

    • 35.2 м2
    • 19/26 этаж
    • Состояние: удовлетворительное
    5 700 000 ₽ (161900 ₽/м2)
    Прекрасная квартира с видовыми характеристиками.Просторная кухня-гостиная правильной формы, уютная спальня и большой санузел.Чистая продажа, один собственник. Обременений нет, маткапитал не использовали. ID объекта в нашей базе: 938
    размещено: 29.10.2025 , обновлено: 26.11.2025

    1-к квартира, Крауля, 105/2

    • 25.3 м2
    • 3/21 этаж
    • Состояние: удовлетворительное
    4 290 000 ₽ (169600 ₽/м2)
    Продам новую квартиру-студию общей площадью 25,3 м², жилая 11,1 м², на 3-м этаже 21-этажной секции в жилом комплексе РУСЬ!Дом комфорт-класса сдан в эксплуатацию!Окна во двор.Отделка от застройщика под чистовую:Коридор, гостиная кухня: потолок - без отделки, пол - стяжка под финишную отделку, стены - штукатурка под чистовую отделку;
Санузел: потолок - без отделки, пол - стяжка под финишную отделку, стены - штукатурка под чистовую отделку, установлен комплект санфаянса (унитаз, раковина, смеситель);Лоджия: пол - без стяжки, стены, потолок -согласно фасадных решений. Ограждение, витражная система, холодный профиль, одинарное остекление.Окна и двери балконные – 5-ти камерный ПВХ профиль с двухкамерным стеклопакетом.Стальная входная дверь.Электрическая разводка, установка электрофурнитуры.ЖК РУСЬ расположен в районе ул. Крауля - Лоцмановых - Юрия Исламова, мкр.ВИЗ.Жилье комфорт-класса с современным и стильным благоустройством. Единая комплексная среда с развитой инфраструктурой, хорошей доступностью транспорта и приватным пространством для каждого жителя.Огороженная территория под круглосуточной охраной и видеонаблюдением, детская площадка, двор без машин. Надземный и подземный паркинги.На первом этаже расположены нежилые помещения. Инфраструктура:- супермаркет «Пятерочка», торговый комплекс «Новомосковский», строительный магазин «Лемана про», аптеки, ТРЦ «Мега»;- детские сады и школы, напротив «Радиотехникум»;- остановки общественного транспорта - трамвай, троллейбус, автобус;- в пешей доступности набережная Верх-Исетского пруда;- до центра города 15 минут на автомобиле. #русь #жкрусь #студия #студиявиз #новаяквартира #новаястудия #студияекатеринбург #районвиз #екатеринбург ID объекта в нашей базе: 6549
    размещено: 11.10.2025 , обновлено: 26.11.2025

    1-к квартира, Крауля, 105

    • 24 м2
    • 24/31 этаж
    • Состояние: удовлетворительное
    4 000 000 ₽ (166700 ₽/м2)
    Отличная студия с видом на город в ЖК Русь !- Квартира расположена в 4м доме, квартал 3 - Удобный выезд до центра за 10 мин- Вся необходимая инфраструктура и огромный ТРЦ Мега в шаговой доступности- Развивающийся новый район ВИЗА- Закрытая придомовая территория- Подземный паркинг - 1 взрослый собственник, квартира без обременений ID объекта в нашей базе: 11791
    размещено: 09.10.2025 , обновлено: 18.11.2025

    1-к квартира, Отрадная, 1

    • 24 м2
    • 12/25 этаж
    • Состояние: идеальное
    4 990 000 ₽ (207900 ₽/м2)
    Предлагаем Вашему вниманию студию в новом жилом комплексе «Сюжеты»! Комплекс новый, с закрытой территорией, состоит из двух домов и имеет свою придомовую территорию, детскую площадку. Своя управляющая компания, охрана. В каждом доме три бесшумных и быстрых лифта, красивые парадные холлы. Дом расположен в отличном месте - Верх-Исетский район, в 2-х минутах ходьбы от ТРЦ РАДУГА-ПАРК. При торговом центре есть прогулочный парк с колесом обозрения. Магазины, остановки общественного транспорта - в 2-3 минутах ходьбы (трамвай, автобусы). До центра на автомобиле можно доехать за 13-15 минут. Сама студия очень функциональна и просторна: чистый метраж БЕЗ балкона 24 метра 2 окна - прекрасное освещение, и прекрасные виды на лес Ремонт полностью завершен: санузел в плитке, ламинат на полу, выровненные и выкрашенные стены. В коридоре оборудован швместительный шкаф купе, который выполняет разделен на две части: верхней одежды и обуви, вторая для хранения повседневной одежды. Остальные подробности по телефону, звоните. ID объекта в нашей базе: 26055
    размещено: 09.10.2025 , обновлено: 10.11.2025

    1-к квартира, Отрадная, 1

    • 35 м2
    • 17/25 этаж
    • Состояние: удовлетворительное
    5 650 000 ₽ (161400 ₽/м2)
    Квартал «Сюжеты» находится в микрорайоне ВИЗ на пересечении улиц Отрадная и Репина.Торговые центры и супермаркеты; ТРЦ «Радуга Парк» с кинотеатром, детскими парками, кафе и ландшафтным парком для прогулок на свежем воздухе; Медицинские учреждения и аптеки; Салоны красоты; Фитнес-клубы; Отделения банков; Детские сады и школы. Транспортную доступность обеспечивают трамвайные и автобусные остановки, а путь до центра города на автомобиле займет 20 минут. Благоустройство территории ЖК «Сюжеты» включает детские площадки, воркаут-зону, а также беседки для отдыха. Зимой же площадка превращается в каток. Во дворе нет машин, для владельцев личного транспорта предусмотрен подземный паркинг с доступом на лифте. Зоны ожидания; Колясочные; Детские санузлы; ID объекта в нашей базе: 930
    размещено: 06.10.2025 , обновлено: 21.11.2025

    1-к квартира, Папанина, 8

    • 28.9 м2
    • 2/3 этаж
    • Состояние: хорошее
    3 800 000 ₽ (131500 ₽/м2)
    Однушка с мебелью у метро Динамо в центре Екатеринбурга!О квартире:✓ Укомплектована мебелью, остаётся: кухонный гарнитур, шкаф в прихожей, шкаф в спальне, стиральная машина , столик в спальне (по согласованию диваны);✓ Был капитальный ремонт, поменяны радиаторы, приборы отопления заменены;✓ Окна пластиковые с москитной сеткой;✓ Обременений нет, мат.кап. не использовали, 1 собственник, 1 прописан, в собственности с 2013 года.О доме:✓ Кирпичный, тёплый дом 1946 года, в котором проведён капитальный ремонт, планируется ремонт в подъезде;✓ 3 этажа, 1 подъезд, мы находимся на 2, удобно и практично;✓ Тихие соседи, так как проживают люди пожилого возраста и пару семей;✓ Новая УК "Лазурит".Локация:✓ 25 минут пешком (7 минут на машине) до метро Динамо, 8 минут на машине до метро Уральская, рядом Спортивный центр, Педагогический колледж, Ростехнадзор, ЦГБ №2 им. А.А. Миславского, Парк Партсъезда;✓ Рядом детский сад № 414, 272, 251;✓ По близости школы № 1, 65 и гимназия 2;✓ В шаговой доступности остановки, все продуктовые магазины, пвз, сбербанк, пекарни, управление соцзащиты, музей ВДВ и т.д.Транспортная доступность:✓ Ходят автобусы: 46;✓ Ходят трамваи: 7, 23,12, 21;ОТЛИЧНО ПОДОЙДЁТ:✓ Инвестору — посуточная/долгосрочная аренда;✓ Студенту, как первое жильё;✓ Семье, которая хочет переехать из родительского дома;✓ Для себя, минимальные вложений на старте — косметический ремонт, укомплектована мебелью;Риелторы, обратите внимание на эту квартиру! Она действительна стоит того, чтобы вы ее предлагали своим клиентам!Обязательно звоните и пишите, отвечу на все ваши вопросы! ID объекта в нашей базе: 11610
    размещено: 29.09.2025 , обновлено: 24.11.2025

    1-к квартира, Крауля, 179

    • 20.3 м2
    • 13/25 этаж
    • Состояние: хорошее
    4 150 000 ₽ (204400 ₽/м2)
    Продаётся уютная квартира в ЖК "Русь" -застройщик ТЭН Девелопмент. Квартира с отделкой! Дом в высокой стадии готовности! Сдача дома 3 кв 2025 г. Расположение жилого комплекса: ул. Крауля - Лоцмановых - Юрия Исламова, 10 минут пешком до набережной Верх-Исетского пруда, в шаговой доступности ТРЦ Мега, 2 минуты до остановки транспорта. Один собственник Вся стоимость в договоре. МСК не использован. ID объекта в нашей базе: 11434
    размещено: 29.09.2025 , обновлено: 6.11.2025

    1-к квартира, Металлургов, 42

    • 28.6 м2
    • 4/5 этаж
    • Состояние: удовлетворительное
    3 599 000 ₽ (125800 ₽/м2)
    Чистенькая, уютная квартира на комфортном 4 этаже приготовилась к ремонту и ждет Вас, своего нового хозяина! чистая продажа, документы готовы, ключи на сделке! ID объекта в нашей базе: 4814
    размещено: 11.09.2025 , обновлено: 27.11.2025

Новостройки Екатеринбург, мкр-н. ВИЗ

Приоритет

Увеличивает просмотры в 3 раза

Ваше объявление показывается в списке выше обычных объявлений. подключить