На Метре реклама - только нормальная. Никакого шок-контента.
Помогайте независимому ресурсу, как он помогает вам. Удачи!
Новостройки Котт. посёлки Объявления Динамика цен и сделок

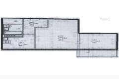
Продажа квартиры: Екатеринбург, ул. Софьи Перовской, 117 (Новая Сортировка)

  • опубликовано 8.12.2025 , обновлено 8.12.2025
  • 2
  •  
Кадастровый номер:66:41:0204039:666
Рынок:вторичный
Срок сдачи: 1978 года
Количество комнат:3
Общая площадь:64.3 м2
Жилая площадь:43 м2
Площадь кухни:6 м2
Этаж/Этажность дома:6 / 9
Санузел:раздельный
Отделка:косметический
Год постройки:1978
Состояние:удовлетворительное
Цена:
5 300 000
Коммунальные платежи:оплачиваются отдельно
Ипотека:возможна

Объект № 196218. Продаётся просторная и уютная 3-комнатная квартира на 6 этаже в тихом дворе. Все комнаты изолированные, окна выходят на разные стороны во двор, нет шума с оживленных улиц. Раздельный санузел. Установлены пластиковые окна и счётчики ХВС и ГВС.

Благоустроенный двор с детской площадкой. В пешей доступности (несколько минут): продуктовые супермаркеты, школа и детский сад, остановки общественного транспорта. ***Гарантийный сертификат «Защита собственности» по данному объекту в подарок***

Ипотечный калькулятор

лет
%
Сумма кредита
5300000 ₽
Платеж
22 540 ₽

Актуальные предложения в этом доме

  • 2-к квартира, Софьи Перовской, 117

    • 52.7 м2
    • 4/9 этаж
    • Состояние:
    3 990 000 ₽ (75700 ₽/м2)
    Предлагается к продаже двухкомнатная квартира в районе Новая Сортировка.Просторная квартира с двумя изолированными комнатами с площадью(52.7 кв.м) трехкомнатной квартиры!!!В квартире установлены:пластиковые окна, приборы учёта: электричества (2 тарифный); ГВС;ХВС.Застекленная полу/лоджия.Окна квартиры выходят во двор и на пешеходную улицу между домами. на разные стороны света.Спальная: Юго-запад.Гостиная: Юго-Восток.Во дворе детская и спортивная площадки.В доме сделан капитальный ремонт, новый пассажирский лифт.Район с развитой инфраструктурой, все необходимое в шаговой доступности:Магазины, торговые центры,детская спортивная школа: АКАДЕМИЯ СПОРТА, Клуб детского хоккея ФОТОН.Школы: № 148, № 149. Детские сады:№175,№186, № 196, № 197, № 254, детский образовательный центр:ТРОПИНКИ ДЕТСТВА.Удобная гео.локация: общественный транспорт в любую часть города.В доме проживают доброжелательные культурные соседи.Возможна ипотека любого банка( включая военную), принимаем к оплате материнский капитал федеральный и областной.Также любые действующие жилищные сертификаты. ID объекта в нашей базе: 17896
    размещено: 02.12.2025 , обновлено: 3.12.2025
  • 2-к квартира, Софьи Перовской, 117

    • 36.5 м2
    • 4/9 этаж
    • Состояние:
    3 570 000 ₽ (97800 ₽/м2)
    Объект № 193198. В продаже двухкомнатная квартира 36.5м2 в районе Новая Сортировка. Комнаты смежные. Установлены пластиковые окна, приборы учёта. Во дворе детская и спортивная площадки. В доме сделан капитальный ремонт, новый пассажирский лифт. Район с развитой инфраструктурой, все необходимое в шаговой доступности: магазины, торговые центры, школы (148,149), детские сады 175, 186, 196, 197, 254, детская спортивная школа: Академия спорта, Клуб детского хоккея Фотон. Удобная транспортная развязка: общественный транспорт в любую часть города. Квартира без обременений, быстрый выход на сделку. ***Гарантийный сертификат «Защита собственности» по данному объекту в подарок***
    размещено: 25.07.2025 , обновлено: 5.12.2025

История предложений в этом доме

объявление снято с публикации в продаже комнат площадь этаж цена,
6 декабря 2025 90 дн. 2 36.1 9/9 3 900 000
Екатеринбург, ул. Софьи Перовской, 117 (Новая Сортировка) - фото квартиры 3 декабря 2025 90 дн. 2 52.7 4/9 3 990 000
Екатеринбург, ул. Софьи Перовской, 117 (Новая Сортировка) - фото квартиры 3 августа 2025 90 дн. 2 52.7 4/9 3 999 999
Екатеринбург, ул. Софьи Перовской, 117 (Новая Сортировка) - фото квартиры 11 июня 2025 90 дн. 3 64.9 1/9 4 850 000
Екатеринбург, ул. Софьи Перовской, 117 (Новая Сортировка) - фото квартиры 19 июля 2025 90 дн. 2 52.7 4/9 3 999 999
Екатеринбург, ул. Софьи Перовской, 117 (Новая Сортировка) - фото квартиры 8 мая 2025 90 дн. 2 52.7 4/9 4 000 000
Екатеринбург, ул. Софьи Перовской, 117 (Новая Сортировка) - фото квартиры 1 апреля 2025 90 дн. 2 42.6 6/9 4 450 000
Екатеринбург, ул. Софьи Перовской, 117 (Новая Сортировка) - фото квартиры 11 апреля 2025 90 дн. 2 52.7 4/9 4 000 000
Екатеринбург, ул. Софьи Перовской, 117 (Новая Сортировка) - фото квартиры 3 мая 2024 90 дн. 2 43.4 5/9 4 700 000
Екатеринбург, ул. Софьи Перовской, 117 (Новая Сортировка) - фото квартиры 7 марта 2024 90 дн. 2 36.6 3/9 3 990 000
Екатеринбург, ул. Софьи Перовской, 117 (Новая Сортировка) - фото квартиры 20 октября 2023 90 дн. 2 43.3 5/9 4 550 000
Екатеринбург, ул. Софьи Перовской, 117 (Новая Сортировка) - фото квартиры 15 июня 2024 90 дн. 1 40.5 6/9 3 890 000
Екатеринбург, ул. Софьи Перовской, 117 (Новая Сортировка) - фото квартиры 20 сентября 2023 90 дн. 2 43.3 5/9 4 390 000
Екатеринбург, ул. Софьи Перовской, 117 (Новая Сортировка) - фото квартиры 23 мая 2023 90 дн. 2 48 1/9 3 950 000
Екатеринбург, ул. Софьи Перовской, 117 (Новая Сортировка) - фото квартиры 12 января 2024 90 дн. 2 36 7/9 3 600 000
Екатеринбург, ул. Софьи Перовской, 117 (Новая Сортировка) - фото квартиры 11 февраля 2023 90 дн. 3 64 7/9 4 900 000
Екатеринбург, ул. Софьи Перовской, 117 (Новая Сортировка) - фото квартиры 30 декабря 2022 90 дн. 2 41 9/9 3 490 000
Екатеринбург, ул. Софьи Перовской, 117 (Новая Сортировка) - фото квартиры 10 ноября 2022 90 дн. 2 36 2/9 3 550 000
Екатеринбург, ул. Софьи Перовской, 117 (Новая Сортировка) - фото квартиры 17 сентября 2022 90 дн. 3 59 9/9 4 100 000
4 июля 2022 90 дн. 2 35.8 3/9 3 100 000
Екатеринбург, ул. Софьи Перовской, 117 (Новая Сортировка) - фото квартиры 2 февраля 2022 90 дн. 2 43 1/9 3 070 000
Екатеринбург, ул. Софьи Перовской, 117 (Новая Сортировка) - фото квартиры 17 марта 2022 90 дн. 2 43 1/9 4 300 000
Екатеринбург, ул. Софьи Перовской, 117 (Новая Сортировка) - фото квартиры 27 января 2022 90 дн. 2 53 7/9 3 750 000
Екатеринбург, ул. Софьи Перовской, 117 (Новая Сортировка) - фото квартиры 15 декабря 2021 90 дн. 1 29 2/9 2 950 000
Екатеринбург, ул. Софьи Перовской, 117 (Новая Сортировка) - фото квартиры 15 декабря 2021 90 дн. 3 59 7/9 4 390 000
Екатеринбург, ул. Софьи Перовской, 117 (Новая Сортировка) - фото квартиры 11 ноября 2021 90 дн. 3 58 9/9 3 900 000
Екатеринбург, ул. Софьи Перовской, 117 (Новая Сортировка) - фото квартиры 4 ноября 2021 90 дн. 2 36 1/9 2 699 000
Екатеринбург, ул. Софьи Перовской, 117 (Новая Сортировка) - фото квартиры 11 ноября 2021 90 дн. 2 58 9/9 3 900 000
Екатеринбург, ул. Софьи Перовской, 117 (Новая Сортировка) - фото квартиры 25 ноября 2021 90 дн. 3 59 7/9 4 390 000
Екатеринбург, ул. Софьи Перовской, 117 (Новая Сортировка) - фото квартиры 10 августа 2021 90 дн. 3 58.2 3/9 3 600 000

Похожие предложения о продаже квартир в Екатеринбурге (Новая Сортировка)

  • 3-к квартира, Ольховская, 25

    • 60 м2
    • 6/9 этаж
    • Состояние: удовлетворительное
    6 690 000 ₽ (111500 ₽/м2)
    Продается замечательная трехкомнатная квартира улучшенной планировки, лоджия более шести метров, кухня около девяти квадратов, хороший коридор можно сделать вместительные шкафы купе, две квартиры отделены от остальных железным дверьми с отдними соседями, где можно оставлять обувь,коляски, велосипеды и т.д.Окна два на южную сторону и два окна на запад ,что в квартире очень тепло. Школа находится во дворе, дорогу переходить не надо и два детских сада рядом,у кого дети школьники меньше надо будет беспокоиться за них. В близи находится площадка Виз, остановка .Транспорта очень много,магазинов тоже.Таких квартир очень мало.Приходите на просмотр Вам очень понравиться!.Район Заречного и Новой Сортировки граничат ж.дорогой видно на фото, электропоезда на площадке Виз с двух сторон, квартира на уровне улучшенной планировки, транспорт трамвай ближе. Если заинтерисованы, ждем на просмотр.Ипотека возможна. ID объекта в нашей базе: 9297
    размещено: 01.12.2025 , обновлено: 1.12.2025
  • 3-к квартира, Пехотинцев, 17

    • 59 м2
    • 1/9 этаж
    • Состояние: хорошее
    4 600 000 ₽ (78000 ₽/м2)
    Квартира на первом этаже, окна пластик – выходят на две стороны, в одной из комнат новый радиатор отопления. ID объекта в нашей базе: 6657
    размещено: 16.11.2025 , обновлено: 28.11.2025
  • 3-к квартира, Ольховская, 27/1

    • 58.1 м2
    • 2/9 этаж
    • Состояние: плохое
    5 000 000 ₽ (86100 ₽/м2)
    Продается трёхкомнатная квартира, требующая капитального ремонта. Идеальная планировка для семьи с детьми. Дом расположен в спальном районе города Екатеринбурга. Практически во дворе дома находится детский сад, с другой стороны дома школа. Есть детская площадка и парковочные места для авто. Два взрослых собственника. ЕСТЬ ОБРЕМЕНЕНИЯ! Чистая продажа. ID объекта в нашей базе: 9184
    размещено: 13.11.2025 , обновлено: 1.12.2025
  • 3-к квартира, Ольховская, 23

    • 57 м2
    • 2/9 этаж
    • Состояние: хорошее
    6 500 000 ₽ (114000 ₽/м2)
    ???????? Продаётся уютное трёхкомнатное гнёздышко на Ольховской, 23! Ваш билет в комфортную жизнь! ????????Представьте себе квартиру, наполненную светом и теплом ☀️, где каждая комната дарит ощущение спокойствия и уюта! Это именно она — ваша будущая счастливая жилплощадь!Что манит и радует взгляд:✨Три изолированные комнаты — простор для каждого члена семьи! Никаких проходных зон, только личное пространство и комфорт для всех! ????️????️✨Светлая и невероятно тёплая — здесь всегда царит атмосфера домашнего очага, где приятно проводить вечера и встречать новый день! ????✨Просторная кухня — самое сердце дома, где так здорово собираться за завтраком, обсуждать новости и готовить любимые блюда всей семьёй! ????☕???? А вот и главный бонус — ИДЕАЛЬНАЯ локация!Всё,что нужно для счастливой и удобной жизни, — буквально в двух шагах от вашего порога! ????‍♀️✅· Школа и детский сад ???????? — учёба и развитие детей под самым носом! Спите спокойно, пока они самостоятельно и безопасно добираются до занятий.· Поликлиника ???????? — забота о здоровье семьи всегда рядом.· Магазины ???????? — все необходимые продукты и товары в минуте ходьбы.· Салон красоты ????‍♀️???? — всегда можно легко уделить время себе и выглядеть на все сто!· Остановки общественного транспорта ???????? — весь город у ваших ног! Добирайтесь до работы, центра или в гости без лишних хлопот!Это не просто квартира — это готовое решение для вашей семьи, где учтено всё для комфортной, насыщенной и спокойной жизни без долгих поездок и пробок.Ваша новая, беззаботная жизнь начинается прямо здесь — на Ольховской, 23! ????️Не раздумывайте! Ваше идеальное жильё ждёт вас!Звоните прямо сейчас, чтобы узнать все детали и записаться на просмотр!???????? ID объекта в нашей базе: 12373
    размещено: 10.11.2025 , обновлено: 26.11.2025

    3-к квартира, Автомагистральная, 5

    5 700 000 ₽ (95000 ₽/м2)
    ID в ИМЛС: 47322260 Продам 3-комн. квартира ( г Екатеринбург ул Автомагистральная 5). Дом: материал стен - панельный, вид дома - вторичка, этаж - 5, этажность - 9.
    размещено: 29.10.2025 , обновлено: 21.11.2025

    3-к квартира, Техническая, 26

    • 62.7 м2
    • 7/9 этаж
    • Состояние: хорошее
    6 600 000 ₽ (105300 ₽/м2)
    Продается просторная 3-комн квартира в самом центре Сортировки. Общая площадь 62,7кв.м, площадь кухни 9 кв.м., удобная планировка - все комнаты изолированы, санузел раздельный, окна выходят на разные стороны – на ул. Техническую и во двор (на гимназию 174). В квартире имеется вместительная кладовая. Во дворе есть детская площадка, всегда есть парковочные места. Район с развитой инфраструктурой – в шаговой доступности магазины, аптеки, поликлиники, школы № 83, 170, гимназия 174, дет.сады, рынок Таганский ряд и парк Таганская слобода. Удобная транспортная развязка. До центра города 15-20 минут на транспорте. Остановки транспорта (автобус, трамвай) сразу за домом. Один взрослый собственник, обременений нет. Разумный торг. ID объекта в нашей базе: 11759
    размещено: 01.10.2025 , обновлено: 30.11.2025

    3-к квартира, Седова, 23

    • 62 м2
    • 6/10 этаж
    • Состояние: удовлетворительное
    5 850 000 ₽ (94400 ₽/м2)
    3- комнатная 62 м на пр- т Седова КВАРТИРА в кирпичном доме. Отличная планировка: изолированные комнаты 17 м, 13 м, 11 м, кухня 8 м, санузел раздельный; лоджия 6 м. Окна выходят на восток и на запад ДОМ кирпичный 1988 г. постройки на 3 подъезда. Территория двора огорожена, въезд машин запрещен. Но вокруг дома всегда есть место для парковки. Во дворе школа и детский сад. МЕСТО- Новая Сортировка, 15 мин. езды до центра города, прекрасно развита инфраструктура района: магазины, садики, школы, кафе- рестораны, фитнес, парк, рынок "Таганский ряд". Остановка транспорта рядом Эта квартира- прекрасный вариант для семьи в развитом, удобном для жизни районе. Безопасность сделки по покупке квартиры гарантируется агентством Звоните! Помогу одобрить ипотеку и купить квартиру ID объекта в нашей базе: 11722
    размещено: 19.09.2025 , обновлено: 5.12.2025

    3-к квартира, Автомагистральная, 11

    • 58.4 м2
    • 1/9 этаж
    • Состояние: хорошее
    4 750 000 ₽ (81300 ₽/м2)
    Продается уютная трехкомнатная квартира. Высокий этаж, уютный двор, чистый подъезд. Рядом с домом школа и дошкольные учреждения, магазины, остановки транспорта, поликлиника детская и для взрослых. Обмен быстрый ( 3= 2+Д). ID объекта в нашей базе: 3715
    размещено: 11.09.2025 , обновлено: 5.12.2025

    3-к квартира, Пехотинцев, 17

    • 58.2 м2
    • 7/9 этаж
    • Состояние: идеальное
    5 000 000 ₽ (85900 ₽/м2)
    В продаже уютная трёхкомнатная квартира, общей площадью 58,2 кв.м., в городе Екатеринбург, которая имеет огромное количество достоинств:-Комфортный седьмой этаж-Окна выходят во двор, и на детскую площадку со стороны ул.Пехотинцев-Отличная планировка, все комнаты изолированные и кухня-Большая комната 15,3 кв.м., спальни 10,7 и 10,4 кв.м.-Просторная прихожая-Балкон (выход на ул. Пехотинцев)Функциональная планировка помещения сделает жизнь максимально комфортной:В квартире не требуется ремонт.-Ламинат на кухне, коридоре и в большой комнате, две спальни ДВП, но без скрипа-Стены покрыты обоями -Окна пластиковые-Раздельный санузел, что делает удобным для семей с детьми.-В санузле пластиковые панели-Ванна для релакса-Хорошие межкомнатные двери-Входная сейф-дверь-Дом в хорошем состоянии, заменены центральные трубы-Пассажирский лифт-Парковка наземная, обеспечивает удобное размещение автомобиля-Детская и спортивная площадка на территории Тихий и спокойный район, с прогулочными аллеями, мини парками, приятно гулять и отдыхать после трудового дня.Инфраструктура в шаговой доступности для комфортной жизни: средние школы: № 4, во дворе детский сад: № 94 , клиники, банки, аптеки, множество магазинов и торговых точек, Таганский ряд, ТРЦ Карнавал, гипермаркет «OBI». Рядом остановки общественного транспорта: автобусы, трамваи, что позволяет быстро добраться до центра города и другие районы. Отличные соседи.Материнский капитал не использовался. Обременение Т-банка. ID объекта в нашей базе: 8759
    размещено: 01.09.2025 , обновлено: 4.12.2025

    3-к квартира, Теплоходный, 11

    • 58 м2
    • 3/9 этаж
    • Состояние: хорошее
    4 950 000 ₽ (85300 ₽/м2)
    Объект № 193613. В продаже отличная трёхкомнатная квартира в районе Новой Сортировки! В подарок новым владельцам остаётся кухонный гарнитур. Один взрослый собственник, без долгов и без обременений, быстрый выход на сделку. ***Гарантийный сертификат «Защита собственности» по данному объекту в подарок***
    размещено: 12.08.2025 , обновлено: 10.11.2025

    3-к квартира, Софьи Перовской, 119

    • 58 м2
    • 1/9 этаж
    • Состояние: идеальное
    4 399 000 ₽ (75800 ₽/м2)
    Продаётся 3-комнатная квартира на 1 этаже в Екатеринбурге! ???? Адрес: ул. Софьи Перовской, д. 119, кв.???? Площадь: 58 м²???? Санузел: раздельный???? Этаж: 1 – идеально для коммерции или жизни с удобным доступом! Почему это отличный вариант?✔ Отличная локация – высокий трафик, потенциал для бизнеса (магазин, офис, кафе – ваша фантазия!).✔ Уникальный бонус – собственный погреб в городе! Да-да, вы не ослышались – теперь ваши соленья и варенья будут в шаговой доступности. ????✔ Чистая продажа – без обременений, быстрый выход на сделку (готовы оформить всё за 3 дня). Шутка в тему:«Погреб – это не просто место для хранения картошки, это ваша личная сокровищница! А если вдруг зомби-апокалипсис – у вас уже есть надёжный бункер.» ???? Звоните, пишите – покажем, расскажем, не разочаруем!???? Торопитесь – такие предложения «уходят» быстрее, чем горячие пирожки! ID объекта в нашей базе: 17613
    размещено: 08.07.2025 , обновлено: 11.11.2025

    3-к квартира, Автомагистральная, 21

    • 57.8 м2
    • 7/9 этаж
    • Состояние: хорошее
    5 700 000 ₽ (98600 ₽/м2)
    Продается просторная, светлая, трехкомнатная квартира в спальном районе. Общая площадь составляет 57.8 кв. м, жилая 37 кв. м, кухня 7 кв. м. На 7 этаже 9-этажного панельного дома 1976 года постройки. Окна выходят во двор. Квартира с косметическим ремонтом, в хорошем состоянии, готова к заселению. Просторные и светлые комнаты, современная планировка. Санузел раздельный, что удобно для большой семьи. Есть лоджия. В доме есть пассажирский лифт и пандус, что особенно удобно для семей с детьми и пожилых людей. Дом оборудован наземной парковкой. Двор ухоженный и зеленый, есть детская площадка. Развитая инфраструктура: рядом находятся школы, детские сады, клиники и магазины — все необходимое для комфортной жизни. До станции метро Уралмаш можно добраться на автомобиле всего за 15 минут, что позволяет быстро добраться до центра города и других районов. Отличная транспортная доступность делает эту квартиру еще более привлекательной. Квартира освобождена. 1 совершеннолетний собственник. В собственности более 5 лет.Остается мебель.Просмотр в удобное для вас время. Звоните. ID объекта в нашей базе: 9894
    размещено: 23.06.2025 , обновлено: 5.12.2025

    3-к квартира, Техническая, 26

    • 63.7 м2
    • 1/9 этаж
    • Состояние: удовлетворительное
    6 600 000 ₽ (103600 ₽/м2)
    Предлагаем вашему вниманию отличная 3х-комнатную квартиру рядом с ТЦ Пекин! ТЦ Таганский Ряд и ТЦ Ханой!!В квартире просторный коридор, изолированные комнаты и раздельный санузел.Есть вместительная кладовая-гардеробная комната для хранения зимних вещей.Установлены новые счетчики горячей и холодной воды, поменяны оба стояка: в санузле и на кухне.Окна квартиры выходят на обе стороны дома - во двор и на улицу Техническая.С одной стороны из них открывается вид на просторные дворы дома и школы , с другой - на основную улицу района.Рядом: школа 170 и гимназия 174 которая видна из окон., детский сад, магазины, стоматология, Сбербанк.Адрес прикреплен к школам 83, 170, 174, детскому саду 245.Придомовая территория оборудована парковочными местами и детской площадкой .Имеется своё парковочное место, что очень важно для автовладельцев.Есть огороженный тамбур - коридор на две квартиры с соседями.Вся инфраструктура в шаговой доступности. В час-пик на трамвае до центра города - 25 минут.Квартиру можно приобрести под магазин, под хлебничную, под косметический салон., очень удобное расположение в середине дома с выходом на улицу Техническую. Также с улицы Технической есть парковка для автомобилей.Готовы к диалогу, покажем в удобное время. ID объекта в нашей базе: 8173
    размещено: 23.05.2025 , обновлено: 1.12.2025

    3-к квартира, Пехотинцев, 13

    • 58.4 м2
    • 4/9 этаж
    • Состояние: идеальное
    6 500 000 ₽ (111300 ₽/м2)
    В чистой продаже. Квартира с капитальным ремонтом. Делали для себя. Продаем в связи с переездом. В квартире поменяно буквально все: окна,стояки,полы.Ремонт качественный на долгие года. В квартире остается все! Мебель,ковры, техника. Заезжай и живи. Забираются носильные вещи. Подъезд находится в середине дома. А это значит тишина и покой. Д.сад, школа в шаговой доступности, так же и как и магазины , аптека.Транспортная развязка представлена вся. Торг уместен. ID объекта в нашей базе: 6489
    размещено: 15.04.2025 , обновлено: 27.11.2025

    3-к квартира, Пехотинцев, 11

    • 64 м2
    • 9/9 этаж
    • Состояние: хорошее
    5 000 000 ₽ (78100 ₽/м2)
    Объект № 191023. Продам уникальную квартиру для большой семьи. 3 изолированных комнаты и кухня-гостиная, совмещенный санузел и удобная прихожая. Проведена перепланировка для комфортной жизни и уюта! Очень много света и пространства. Кухня-столовая объединена с гостиной. Окна квартиры выходят на разные стороны, открывается замечательный вид на окрестности. Проведен полный капитальный ремонт: поменяны окна на пластиковые, межкомнатные двери, входная сейф-дверь, сантехника и радиаторы отопления, залит пол. Проведено утепление стен, заложена система теплый пол, заменена электропроводка, разноуровневое освещение, увеличено количество выключателей и розеток, разноуровневые потолки. У дома большой двор, детская и спортивная площадка, стадион, много зелени. В шаговой доступности торговые центры, магазины, предприятия службы быта, школы и детские сады, взрослая и детская поликлиника, парк и детская площадка. Покупайте для себя! Вам понравится! У Вас будет 2 детских комнаты, спальня и зал для семейных вечеров и гостей. Возможен обмен на 1-2-комнатную квартиру. ***Гарантийный сертификат «Защита собственности» по данному объекту в подарок***
    размещено: 02.04.2025 , обновлено: 26.11.2025

    3-к квартира, Пехотинцев, 19

    • 64 м2
    • 2/9 этаж
    • Состояние: хорошее
    5 950 000 ₽ (93000 ₽/м2)
    Объект № 190902. Продаю 3-комнатную квартиру с тремя изолированными комнатами, балконом в одной из спальных комнат, кухней, широким коридором, раздельным туалетом и ванной комнатой. Будет интересна для покупки семьёй с детьми. В квартире чисто и комфортно. Район с развитой инфраструктурой в районе Новой Сортировки. Множество дошкольных учреждений, школа, Академия гимнастики, всё это возле дома. Магазины, остановка общественного транспорта в шаговой доступности. Достаточное количество паковочных мест во дворе дома. В подъезде сделан косметический ремонт, поменяны все стояки. Документы к сделке готовы. Квартиру меняем на две однокомнатные в этом же квартале. Если у вас тоже обмен и на большую квартиру, то обязательно звоните и возможно мы будем интересны друг другу! Приглашаем на просмотр всех, кто ищет хорошую трехкомнатную квартиру. ***Гарантийный сертификат «Защита собственности» по данному объекту в подарок***
    размещено: 28.03.2025 , обновлено: 5.12.2025

    3-к квартира, Софьи Перовской, 115

    • 64.4 м2
    • 5/9 этаж
    • Состояние: хорошее
    6 390 000 ₽ (99200 ₽/м2)
    Продаю отличную трехкомнатную квартиру, общей площадью 64,4 кв.м (с возможностью увеличения до 100 кв.м). Квартира в отличнейшем состоянии - чистая, теплая, светлая. Инженерные сети заменены (трубы ХВС, ГВС, канализация) так же установлены энергоэффективные пластиковые трехкамерные стеклопакеты, индивидуальные приборы учета на воду и электричество, благодаря чему оплата коммунальных счетов не нанесет урона вашему семейному бюджету. Подъезд идеально чистый, в нем никогда не бывает посторонних, на площадке минимальное количество квартир 4 – что лишь добавит комфорта и спокойствия. Придомовая территория огорожена забором, не проездная - что обеспечит вам дополнительную защиту и уверенность. Просторный и зеленый двор со “звонким пением птиц” весной и летом, игровыми детскими площадками порадует маленьких жителей дома и их родителей, а взрослые всегда найдут парковочные места. Удобно, в шаговой доступности остановки – общественного транспорта. Также рядом ТЦ “ Таганский ряд”, ТЦ “Пекин” школы № 148, № 149, № 166, детские сады № 186, № 254, № 196, № 197, №175, а так же множество супермаркетов, аптек и магазинов. Квартира не имеет ни каких обременений и долгов!!! Один взрослый собственник (НЕТ НИ КАКИХ ДЕТСКИХ ДОЛЕЙ!) – возможен быстрый выход на сделку!!! Приглашаю на просмотр, лучше увидеть все своими глазами! ВОЗМОЖНА ПОКУПКА СОСЕДНЕЙ ВТОРОЙ КВАРТИРЫ В СЕКЦИИ !!! ID объекта в нашей базе: 1415
    размещено: 18.03.2025 , обновлено: 4.11.2025

    3-к квартира, Таватуйская, 6

    • 62 м2
    • 1/9 этаж
    • Состояние: идеальное
    5 750 000 ₽ (92700 ₽/м2)
    Продается замечательная трехкомнатная квартира на 1 высоком этаже жилого дома. Площадь 62 метра. КВАРТИРА с удобной планировкой: Светлая, просторная. Все три комнаты раздельные, расположены на разные стороны. Сделан качественный ремонт, утепленный пол. Санузел раздельный. Имеется свой двухметровый подпол. Установлены приборы учета ХВС, ГВС, электроэнергии. Фактически прямо во дворе школа и детский садик. ДОМ: панельный 1992 года постройки, очень теплый. Звукоизоляция хорошая. На этаже мало квартир. РАЙОН: Железнодорожный, Сортировка. До центра легко добраться на машине за 15-20 минут, ходит большое количество трамваев и автобусов в любой конец города. Удобный выезд на ЕКАД и Серовский тракт. Район развит – очень хорошая инфраструктура. Рядом с домом много магазинов, детский садик и школа расположены фактически во дворе. Район спокойный, зеленый. Рядом новые дома. ЮРИДИЧЕСКАЯ ЧИСТОТА: Квартира юридически чистая. Два взрослых собственника. Документы готовы. ID объекта в нашей базе: 7627
    размещено: 13.03.2025 , обновлено: 6.12.2025

    3-к квартира, Пехотинцев, 12

    • 63.4 м2
    • 8/9 этаж
    • Состояние: хорошее
    6 000 000 ₽ (94600 ₽/м2)
    В продаже трехкомнатная квартиру 63.4 кв.м в районе Новой Сортировки. Вся инфраструктура в шаговой доступности: детские сады, школы (№166,№148,№4), взрослые и детские медицинские учреждения, аптеки, магазины, остановки общественного транспорта, во все направления города, ТРЦ «Карнавал», гипермаркет «OBI», парк отдыха . Во дворе дома расположен современный корт для занятий зимними видами спорта. Чистый подъезд, очень хорошие соседи. В квартире окна, которые выходят на разные стороны, все комнаты изолированные. В подарок новому собственнику остается кухонный гарнитур. Обременений нет, один собственник. Звоните в любое удобное для вас время. ID объекта в нашей базе: 816
    размещено: 07.03.2025 , обновлено: 10.11.2025

    3-к квартира, Софьи Перовской, 115

    • 65.6 м2
    • 7/9 этаж
    • Состояние: хорошее
    6 100 000 ₽ (93000 ₽/м2)
    ПРОДАЁТСЯ ОТЛИЧНАЯ 3х КОМНАТНАЯ КВАРТИРА!!!Светлая и уютная. Всё сделано для комфортной жизни. В квартире косметический ремонт. Окна пластиковые, натяжные потолки, в санузлах кафель. Окна выходят во двор и на улицу. Новым хозяевам остаётся кухонный гарнитур и системы хранения одежды. Остальное можно обсудить лично. ДВОР: закрытый. С детскими и спортивными площадками. Так же на территории двора своя автостоянка, на которой всегда есть места. РАЙОН: Новая Сортировка. В шаговой доступности остановки общественного транспорта, магазины, аптеки. В пяти минутах хотьбы от дома расположены три Школы: N 148; 149; 166 и детские сады: N 196; 197; 254. Так же поблизости расположены ТЦ «Пекин» и ТЦ «Таганский ряд». И оборудованный парк «Таганская слобода», с детскими площадками, аттракционами и беседками. ЮРИДИЧЕСКАЯ ЧИСТОТА: Квартира без долгов и обременений. Три взрослых собственника, быстрый выход на сделку. Ждём вас на просмотр. ID объекта в нашей базе: 8197
    размещено: 11.02.2025 , обновлено: 7.12.2025

Новостройки Екатеринбург, мкр-н. Новая Сортировка

Приоритет

Увеличивает просмотры в 3 раза

Ваше объявление показывается в списке выше обычных объявлений. подключить