Top.Mail.Ru
На Метре реклама - только нормальная. Никакого шок-контента.
Помогайте независимому ресурсу, как он помогает вам. Удачи!
Средняя цена м² · Новостройки
178 600 ₽/м²
↑ 6,88% за 12 мес.
Средняя цена м² · Вторичка
141 328 ₽/м²
↑ 11% за 12 мес.
Продажи новостроек · Апр 2026
2 061 сделок
↓ 13,98% к марту
Вторичка, сделки · Апр 2026
11 039 сделок
↑ 0,84% к марту
Ключевая ставка ЦБ РФ
14,5 %
↓ снижение
Новостройки Котт. посёлки Объявления Динамика цен и сделок

Продажа квартиры: Екатеринбург, ул. Декабристов, 27 (Парковый)

  • опубликовано 16.04.2026 , обновлено 30.05.2026
  • 23
  •  
Рынок:вторичный
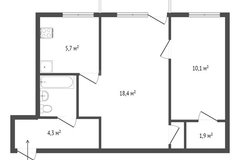
Количество комнат:1
Общая площадь:27.8 м2
Жилая площадь:17 м2
Площадь кухни:6 м2
Этаж/Этажность дома:2 / 5
Санузел:совмещенный
Состояние:хорошее
Мебель:есть
Цена:
4 770 000
Ипотека:Не подходит

Продается очень светлая уютная квартира, теплая, солнечная сторона. Окна выходят во двор, в квартире сделан косметический ремонт. Вся мебель и техника приобретена в прошлом феврале, чеки могу предъявить, в квартире практически никто после ремонта не жил.

В подарок остается кухонный гарнитур, Соседи очень тихие, двор имеет 2 въезда установлены ворота для заезда во двор, пульт имеется. Дом стоит буквой П имеет адрес декабристов 27, на карте стоит декабристов 27/Луначарского 127. В доме находится администрация района.

Выход из двора с одной стороны на площадь обороны, с другой стороны на метеогорку. С 2сторон остановка автобусы, маршрутки и трамваи прям 1 минута. 10 минут до центра на любом транспорте. Один собственник, документы готовы.
ID объекта в нашей базе: 10022

Макромир 465 — Анна Александровна

показать телефон

Ипотечный калькулятор

лет
%
Сумма кредита
4770000 ₽
Платеж
22 540 ₽

История предложений в этом доме

объявление снято с публикации в продаже комнат площадь этаж цена,
Екатеринбург, ул. Декабристов, 27 (Парковый) - фото квартиры 16 января 2025 90 дн. 1 27.8 1/5 4 500 000
Екатеринбург, ул. Декабристов, 27 (Парковый) - фото квартиры 2 ноября 2023 90 дн. 1 28.3 4/5 3 990 000
Екатеринбург, ул. Декабристов, 27 (Парковый) - фото квартиры 6 июля 2022 90 дн. 1 28 2/5 3 450 000
Екатеринбург, ул. Декабристов, 27 (Парковый) - фото квартиры 19 июля 2022 90 дн. 1 30 2/5 2 774 700
Екатеринбург, ул. Декабристов, 27 (Парковый) - фото квартиры 4 июня 2022 90 дн. 1 30 2/5 3 083 000
Екатеринбург, ул. Декабристов, 27 (Парковый) - фото квартиры 15 февраля 2022 90 дн. 1 30.6 5/5 4 300 000
Екатеринбург, ул. Декабристов, 27 (Парковый) - фото квартиры 7 апреля 2021 90 дн. 2 45.5 2/5 4 190 000
Екатеринбург, ул. Декабристов, 27 (Парковый) - фото квартиры 22 декабря 2020 90 дн. 2 44.5 3/5 4 350 000
Екатеринбург, ул. Декабристов, 27 (Парковый) - фото квартиры 27 мая 2020 90 дн. 2 44.5 2/5 4 150 000
Екатеринбург, ул. Декабристов, 27 (Парковый) - фото квартиры 15 декабря 2019 90 дн. 1 31 5/5 3 150 000
Екатеринбург, ул. Декабристов, 27 (Парковый) - фото квартиры 5 марта 2020 90 дн. 2 44.5 3/5 4 120 000
Екатеринбург, ул. Декабристов, 27 (Парковый) - фото квартиры 11 марта 2020 90 дн. 2 44.5 2/5 4 100 000
Екатеринбург, ул. Декабристов, 27 (Парковый) - фото квартиры 19 октября 2019 90 дн. 2 43 1/5 2 600 000

Похожие предложения о продаже квартир в Екатеринбурге (Парковый)

  • 1-к квартира, Большакова, 21

    • 33.6 м2
    • 1/9 этаж
    • Состояние: идеальное
    5 230 000 ₽ (155700 ₽/м2)
    СОВРЕМЕННЫЙ- РАЗВИТЫЙ -КОМФОРТНЫЙ Центрально-Спальный (тихий) район. Уютная, комфортная Однокомнатная кв-ра расположена на высоком 1-м этаже в 12эт. доме. НЕ ТРЕБУЕТ ДОПОЛНИТЕЛЬНЫХ ВЛОЖЕНИЙ. ЗАЕЗЖАЙ И ЖИВИ!!! Лоджия 8 кв.м,- стеклопакеты, утеплена! Поменяны стояки, есть счетчики, сделан ремонт! - уютная Кухня с ароматом домашних вкусностей - Для дружной семьи с детками и также получения доп. дохода с аренды. м-ро Геологическое,т-ц МЕГАМАРТ ,р-он Парковый -ЦПКО,Шарташский рынок - Уютная, очень теплая квартира! - Комнаты изолированные! - Тихие семейные соседи. - Развитая инфраструктура - все рядом - садик 558, 564, Дошколенок и тд. школ а во дворе, Высшие учебные заведения. Спорт комплекс, Бассейн, ФОК, Корт вело-роликовая дорожка , ЗАГС-РОДдом, Больница № 1. -ЕСТЬ ВСЁ - Ипотека возможна - ЮРИДИЧЕСКИ ЧИСТЫЙ ОБЪЕКТ . КВАРТИРА В СОБСТВЕННОСТИ БОЛЕЕ более 3-ти лет Приглашаем на просмотр!
    размещено: 25.05.2026 , обновлено: 28.05.2026
  • 1-к квартира, Восточная, 178

    • 39.1 м2
    • 6/9 этаж
    • Состояние: хорошее
    5 300 000 ₽ (135500 ₽/м2)
    Продаётся уютная 1-комнатная квартира в Екатеринбурге (Парковый район)Квартира расположена на 6 этаже 9-этажного кирпичного дома с лифтом. Общая площадь — 39,1 кв.м. Удобная планировка: просторная комната и большая кухня площадью 10 кв.м, что позволяет комфортно организовать пространство.Дополнительным преимуществом является застеклённая лоджия длиной 6 метров — отличное место для отдыха или хранения. Санузел раздельный.Квартира полностью готова к проживанию — вся мебель и техника, представленные на фотографиях, остаются новым владельцам.Во дворе предусмотрена бесплатная парковка для жильцов — всегда есть возможность удобно разместить автомобиль.Отличное расположение: рядом находится Парк имени Маяковского — идеальное место для прогулок и отдыха. В шаговой доступности трамвайные и автобусные остановки, до метро — всего 10 минут на трамвае. Поблизости есть детские сады, школы, магазины и кафе.Квартира будет доступна к продаже в начале июня 2026 года.Отличный вариант как для собственного проживания, так и для инвестиций! ID объекта в нашей базе: 12302
    размещено: 24.02.2026 , обновлено: 28.05.2026

Новостройки Екатеринбург, мкр-н. Парковый

Приоритет

Увеличивает просмотры в 3 раза

Ваше объявление показывается в списке выше обычных объявлений. подключить