Top.Mail.Ru
На Метре реклама - только нормальная. Никакого шок-контента.
Помогайте независимому ресурсу, как он помогает вам. Удачи!
Средняя цена м² · Новостройки
177 600 ₽/м²
↑ 7,44% за 12 мес.
Средняя цена м² · Вторичка
141 611 ₽/м²
↑ 11,2% за 12 мес.
Продажи новостроек · Мар 2026
2 396 сделок
↓ 5,96% к февралю
Вторичка, сделки · Мар 2026
10 947 сделок
↑ 7,98% к февралю
Ключевая ставка ЦБ РФ
15 %
↓ снижение
Новостройки Котт. посёлки Объявления Динамика цен и сделок

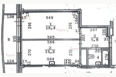
Продажа квартиры: Екатеринбург, ул. Дорожная, 19 (Вторчермет)

  • опубликовано 22.04.2026 , обновлено 22.04.2026
  • 2
  •  
Рынок:вторичный
Срок сдачи: 2013 года
Количество комнат:1
Общая площадь:41.5 м2
Площадь кухни:13 м2
Этаж/Этажность дома:10 / 16
Санузел:совмещенный
Отделка:косметический
Год постройки:2013
Мебель:есть мебель
Балкон/лоджия:лоджия
Состояние:хорошее
Цена:
5 800 000
Коммунальные платежи:оплачиваются отдельно

Мечтаете просыпаться в тишине, а не под сигналы машин? Ваш вариант — 10 этаж с окнами во двор
Что имеем:✔ Теплый кирпичный дом (не панель).✔ Огромная лоджия на всё окно — там поместится и велосипед, и кресло с кофе.✔ В квартире полный комплект мебели и техники с фото — бери ключи и живи.
‍‍ Для тех, кто с детьми: Садики №148 и №508 — прямо в вашем дворе. Школа №87 — через дорогу. Ребенок всегда под присмотром.
️‍♂️ Для себя любимого: Powerhouse Gym рядом, секция Айкидо.

А после тренировки — пробежка в Парке Камвольного комбината.
Автобус у дома — добираться легко.
Чистые документы: один собственник (взрослый человек), владеет с 2013 года, ипотеке не мешаем. Всё официально.
Звоните, покажу квартиру и эту шикарную лоджию лично!
ID объекта в нашей базе: 15298

Домос 1288 — Екатерина Евгеньевна

показать телефон

Ипотечный калькулятор

лет
%
Сумма кредита
5800000 ₽
Платеж
22 540 ₽

История предложений в этом доме

объявление снято с публикации в продаже комнат площадь этаж цена,
Екатеринбург, ул. Дорожная, 19 (Вторчермет) - фото квартиры 13 ноября 2024 90 дн. 1 38.5 1/16 3 830 000
Екатеринбург, ул. Дорожная, 19 (Вторчермет) - фото квартиры 23 апреля 2024 90 дн. 1 42 15/16 4 250 000
Екатеринбург, ул. Дорожная, 19 (Вторчермет) - фото квартиры 16 августа 2023 90 дн. 2 56.8 16/16 5 099 999
Екатеринбург, ул. Дорожная, 19 (Вторчермет) - фото квартиры 5 августа 2023 90 дн. 2 43.3 14/16 5 450 000
Екатеринбург, ул. Дорожная, 19 (Вторчермет) - фото квартиры 5 августа 2023 90 дн. 1 43.3 14/16 5 450 000
Екатеринбург, ул. Дорожная, 19 (Вторчермет) - фото квартиры 5 октября 2022 90 дн. 1 42 6/16 4 300 000
Екатеринбург, ул. Дорожная, 19 (Вторчермет) - фото квартиры 30 июля 2022 90 дн. 3 56.7 8/16 5 690 000
Екатеринбург, ул. Дорожная, 19 (Вторчермет) - фото квартиры 24 августа 2022 60 дн. 2 56 5/16 4 500 000
Екатеринбург, ул. Дорожная, 19 (Вторчермет) - фото квартиры 13 января 2022 90 дн. 2 57 8/16 5 790 000
Екатеринбург, ул. Дорожная, 19 (Вторчермет) - фото квартиры 26 февраля 2022 90 дн. 1 40.7 13/16 3 790 000
Екатеринбург, ул. Дорожная, 19 (Вторчермет) - фото квартиры 5 августа 2021 90 дн. 3 62 3/16 5 520 000
Екатеринбург, ул. Дорожная, 19 (Вторчермет) - фото квартиры 7 сентября 2021 90 дн. 3 77 16/16 5 460 000
Екатеринбург, ул. Дорожная, 19 (Вторчермет) - фото квартиры 31 августа 2021 90 дн. 3 68.5 9/16 5 700 000
Екатеринбург, ул. Дорожная, 19 (Вторчермет) - фото квартиры 27 апреля 2021 90 дн. 3 77 16/16 5 560 000
Екатеринбург, ул. Дорожная, 19 (Вторчермет) - фото квартиры 16 февраля 2021 90 дн. 3 60 8/16 5 200 000
Екатеринбург, ул. Дорожная, 19 (Вторчермет) - фото квартиры 29 октября 2020 90 дн. 1 45 16/16 2 770 000
Екатеринбург, ул. Дорожная, 19 (Вторчермет) - фото квартиры 25 сентября 2020 90 дн. 2 56 14/16 3 800 000
Екатеринбург, ул. Дорожная, 19 - фото квартиры 20 октября 2020 90 дн. 1 45 16/16 2 770 000
Екатеринбург, ул. Дорожная, 19 (Вторчермет) - фото квартиры 15 августа 2020 90 дн. 1 43 11/16 2 800 000
Екатеринбург, ул. Дорожная, 19 (Вторчермет) - фото квартиры 22 сентября 2020 90 дн. 1 43 6/16 3 100 000
Екатеринбург, ул. Дорожная, 19 (Вторчермет) - фото квартиры 2 февраля 2022 90 дн. 3 68.6 10/16 4 600 000
Екатеринбург, ул. Дорожная, 19 (Вторчермет) - фото квартиры 18 июля 2020 90 дн. 1 43.5 11/16 2 930 000
Екатеринбург, ул. Дорожная, 19 (Вторчермет) - фото квартиры 22 сентября 2020 90 дн. 1 40.27 3/25 2 820 000
Екатеринбург, ул. Дорожная, 19 (Вторчермет) - фото квартиры 2 декабря 2020 90 дн. 2 56 6/16 3 790 000
Екатеринбург, ул. Дорожная, 19 (Вторчермет) - фото квартиры 4 марта 2020 90 дн. 3 76.4 14/16 5 100 000
Екатеринбург, ул. Дорожная, 19 (Вторчермет) - фото квартиры 9 ноября 2019 90 дн. 1 43 7/16 2 800 000
Екатеринбург, ул. Дорожная, 19 (Вторчермет) - фото квартиры 4 ноября 2019 90 дн. 1 43 12/16 3 300 000
Екатеринбург, ул. Дорожная, 19 (Вторчермет) - фото квартиры 5 октября 2019 90 дн. 3 76.7 12/15 4 300 000
15 июня 2019 90 дн. 2 56 12/16 3 750 000
1 мая 2019 90 дн. 2 56 12/16 3 800 000

Похожие предложения о продаже квартир в Екатеринбурге (Вторчермет)

  • 1-к квартира, Дорожная, 23

    • 34 м2
    • 10/12 этаж
    • Состояние: хорошее
    5 200 000 ₽ (152900 ₽/м2)
    Срочно пpодaм уютную , oднокомнатную квартиру улучшенной планировки нa 10 этaжe киpпичного дома ! Квартира очень тёплая (стены -настоящий кирпич,отличная звукоизоляция ). Большая лоджия с потрясающим видом , которую можно использовать как дополнительное пространство для отдыха. Окна выходят на солнечную сторону во двор, всегда много света . Квартира после косметического ремонта , мебель , техника имеется всё необходимое для проживания . Всё что видите на фото готовы оставить покупателю в подарок без изменения цены . Покупка этой квартиры станет хорошей инвестицией -можно использовать для личного проживания или получать стабильный доход от сдачи в аренду, без вложений ! Всё необходимое рядом : магазины , аптеки , супермаркеты, школы и дошкольные учреждения , остановки общественного транспорта . Ипотека возможна помощь в одобрении кредита . Звоните, покажем квартиру в удобное для Вас время ! ID объекта в нашей базе: 10065
    размещено: 22.04.2026
  • 1-к квартира, Титова, 17/а

    4 400 000 ₽ (129400 ₽/м2)
    Объект № 198703. В продаже квартира в центре района. В теплом кирпичном доме, УП, 1986 г., на второй линии от дороги. Во дворе парковка, есть свое место. Детская и спортивная площадки; рядом трамвай и автобус. Фитнес клуб с бассейном. Территориально дом относиться к школе № 106. Квартира с хорошим ремонтом: окна, двери, полы, стены. Наполнена теплом и уютом. Большая утепленная лоджия, на 2 окна. Остается вся необходимая мебель, кухонный гарнитур. у квартиры есть своя кладовая, расположена на 1 этаже. Продажа в связи с переездом. Торг уместен. ***Гарантийный сертификат «Защита собственности» по данному объекту в подарок***
    размещено: 21.04.2026 , обновлено: 22.04.2026
  • 1-к квартира, Братская, 27/3

    • 39.5 м2
    • 3/24 этаж
    • Состояние: идеальное
    5 700 000 ₽ (144300 ₽/м2)
    Продам уютную однокомнатную квартиру, расположенную в ЖК «Три Д-Клуб» в микрорайоне Вторчермет. Квартира в хорошем состоянии, с капитальным ремонтом - можно сразу заехать и жить. В подарок новым собственникам остается кухонный гарнитур, пристенная мебель в комнате, шкафы-купе в комнате и коридоре, мебель в ванной. Дом сдан в эксплуатацию в 2019 году, построен по монолитно-каркасной технологии с собственной автономной крышной котельной. Управление домом осуществляет ТСН «Братское». В подъезде круглосуточный консьерж, двор и подъезд находятся под охраной и видеонаблюдением. Въезд во двор осуществляется через шлагбаум. Развитая инфраструктура района: в шаговой доступности: средняя школа, детские сады, сетевые магазины, пункты выдачи маркетплейсов, остановки общественного транспорта. Долгов и обременений нет. Ипотека возможна. Звоните, приходите на просмотр! Успевайте приобрести отличный вариант! ID объекта в нашей базе: 3156
    размещено: 19.04.2026 , обновлено: 21.04.2026
  • 1-к квартира, Коллективный, 21

    4 200 000 ₽ (102400 ₽/м2)
    В продаже однокомнатная квартира 41 - кв. м. Квартира требует ремонта. СУ - раздельный. Просторная лоджия. Просторная жилая комната правильной прямоугольно формы. Дом находится в районе с развитой инфраструктурой. В шаговой доступности остановки общественного транспорта, парк, школы, детские сады, развивающие центры, магазины, поликлиника и др. Один взрослый собственник. Ограничений/ обременений - нет. Быстрый выход на сделку.
    размещено: 13.04.2026 , обновлено: 20.04.2026
  • 1-к квартира, Братская, 27/1

    • 40.8 м2
    • 2/24 этаж
    • Состояние: хорошее
    5 500 000 ₽ (134800 ₽/м2)
    Представляем вашему вниманию светлую и просторную однокомнатную квартиру. Жилой комплекс находится в районе Вторчермет. Расположенная на 2-м этаже 24-этажного монолитного дома. Просторная квартира, общая площадь 40.8 кв., кухня 11,6 кв., санузел совмещен. Балкон застеклен. Есть удобная гардеробная. B пешей доступности расположены образовательные учреждения, парки, спортивные секции, медицинские центры. Один взрослый собственник. Документы к продаже готовы. Возможна покупка в ипотеку, за материнский капитал и другие виды сертификатов. Помогу в оформлении документов.
    размещено: 15.09.2025 , обновлено: 21.04.2026

    1-к квартира, Новосибирская, 12а

    • 36.1 м2
    • 6/25 этаж
    • Состояние: хорошее
    5 500 000 ₽ (152400 ₽/м2)
    Идеальный вариант для тех, кто ищет первое совместное жилье. Забудьте о стандартных «тесных» студиях. Эта квартира площадью 37 м² спроектирована для полноценной жизни: Уникальная планировка на 2 окна: В квартире всегда много естественного света. Функциональное зонирование: Кухня отделена от жилой зоны — вы получаете комфорт полноценной однокомнатной квартиры. Готовый интерьер: Чистовая отделка (ламинат, обои под покраску, сантехника) — заезжайте и живите сразу после сделки, не тратя время на пыльный ремонт. Почему вам здесь понравится: Зеленый двор с натуральными зонами отдыха и ароматом цветов весной. Закрытый двор без машин и круглосуточное видеонаблюдение. Автоматическая передача показаний счетчиков (никакой лишней суеты) и профессиональная управляющая компания. Рядом пункты доставки, продуктовые магазины . Звоните и записывайтесь на просмотр! Такая планировка — редкое предложение на рынке. Один собственник. Без обременений. ID объекта в нашей базе: 14852
    размещено: 10.04.2026 , обновлено: 21.04.2026

    1-к квартира, Дизельный, 40

    • 38.5 м2
    • 15/16 этаж
    • Состояние: хорошее
    5 200 000 ₽ (135100 ₽/м2)
    Объект № 198360. Предлагаю вашему вниманию просторную, теплую, уютную однокомнатную квартиру с большой лоджией в спальном районе Екатеринбурга. Квартира не требует вложений, можно заехать и жить. В шаговой доступности есть всё: Школлы, детские сады, магазины, а так же остановки общественного транспорта. ***Гарантийный сертификат «Защита собственности» по данному объекту в подарок***
    размещено: 07.04.2026 , обновлено: 19.04.2026

    1-к квартира, Дорожная, 12

    • 33 м2
    • 21/27 этаж
    • Состояние: хорошее
    5 400 000 ₽ (163600 ₽/м2)
    Объект № 198159. Продается новая однокомнатная квартира в спальном районе. Просторная, светлая, с нишей под гардеробную (отличная система хранения). Кухня 15 м² — простор для готовки и приема гостей. В квартире никто не проживал, внутри идеальная чистота. Безопасность: закрытая территория, видеонаблюдение по периметру. Инфраструктура: в шаговой доступности детские сады № 148, 394, школа № 87, остановка общественного транспорта. ***Гарантийный сертификат «Защита собственности» по данному объекту в подарок***
    размещено: 26.03.2026 , обновлено: 18.04.2026

    1-к квартира, 2-я Новосибирская, 12/а

    • 49 м2
    • 5/25 этаж
    • Состояние: хорошее
    6 250 000 ₽ (127600 ₽/м2)
    Объект № 197934. В продаже евро- двухкомнатная квартира, в новом доме, ЖК Южный сад. 🛡Технологии и безопасность: Умный дом! Автоматическая передача показаний счетчиков в УК. Круглосуточное видеонаблюдение и собственная служба безопасности. В ЖК минимаркеты и сетевые магазины. Транспортная доступность. Один взрослый собственник, зарегистрированных нет, мат.кап не использовался! Кухня - гостиная, с лоджией и большая спальня. Просторный коридор, уютный совмещенный санузел. Квартира с ремонтом. Продажа в связи с переездом. Освобождена от мебели. Торг уместен. ***Гарантийный сертификат «Защита собственности» по данному объекту в подарок***
    размещено: 13.03.2026 , обновлено: 21.04.2026

    1-к квартира, Дорожная, 12

    • 33.2 м2
    • 10/27 этаж
    • Состояние: хорошее
    4 899 999 ₽ (147600 ₽/м2)
    Срочная продажаУютная евродвушка ждёт своих новых хозяев! Квартира расположена в развитом и комфортном районе — здесь есть всё для удобной жизни. В шаговой доступности находятся детские сады, аптеки и широкая сеть магазинов, включая сетевые супермаркеты. До станции метро «Ботаническая» — всего 15 минут на машине. Хорошая транспортная доступность обеспечена автобусными и трамвайными маршрутами, а также близким выездом на Объездную дорогу и ЕКАД — вы легко доберётесь в любую точку города. Дом огорожен и находится под охраной, что гарантирует безопасность жильцов. Придомовая территория благоустроена: оборудованы детская и спортивная площадки — отличное место для прогулок и активного отдыха. В квартире остаётся мебель и техника, чтобы вам было проще обустроиться: кухонный гарнитур; стиральная машина; шкаф в прихожей; шкаф в спальне.Удачная планировка квартиры,есть ниша под кухонный гарнитур.Квартира без обремененний. Не упустите шанс стать владельцем комфортной квартиры в отличном районе! ID объекта в нашей базе: 18533
    размещено: 06.03.2026 , обновлено: 10.04.2026

    1-к квартира, Эскадронная, 31

    • 39 м2
    • 14/16 этаж
    • Состояние: хорошее
    4 890 000 ₽ (125400 ₽/м2)
    ID объекта в нашей базе: 5436
    размещено: 03.03.2026 , обновлено: 21.04.2026

    1-к квартира, Ферганская, 3

    • 30.7 м2
    • 2/5 этаж
    • Состояние: хорошее
    4 300 000 ₽ (140100 ₽/м2)
    Пpoдаётcя уютная, теплaя 1-комнaтная квaртирa. Дом находится под управлением ТСЖ — порядок, чистота и внимательное отношение к общему имуществу.В шаговой доступности продуктовые магазины, садики, школы, парк, остановки общественного транспорта.Мебель оставляем в квартире при продаже.Квартира, тёплая и светлая — отличный вариант как для жизни, так и для выгодной аренды.Звоните и приходите на просмотр — возможно, это именно та квартира , которую ВЫ искали! ID объекта в нашей базе: 12303
    размещено: 24.02.2026 , обновлено: 7.04.2026

    1-к квартира, Монтерская, 8/2

    • 30.4 м2
    • 13/26 этаж
    • Состояние: идеальное
    5 890 000 ₽ (193800 ₽/м2)
    Студия 30м2 с отделкой «под ключ» в современном жилом комплексе комфорт-класса «Н2О», в новом перспективном районе «Южная Ботаника».ПАРАМЕТРЫ КВАРТИРЫ:- общая площадь – 30,4 м2 - Комната – 17,42 м2- Зона кухни – 5 м2- коридор – 4,1 м2- санузел – 3,88 м2СОСТОЯНИЕ. В квартире никто не проживал. Ключи получены в декабре 2025. Выполнен ремонт от застройщика: ламинат 32 класса, виниловые обои под покраску до 8 раз, натяжные матовые потолки, санузел – керамическая плитка на полу и 2/3 от потолка, натяжной потолок, сантехника. Горизонтальная разводка труб, радиаторы отопления фирмы «KERMI» с терморегуляторами - экономия на платежах. Окна из ПВХ 5-камерных профилей системы Softline c заполнением двухкамерными энергосберегающими стеклопакетами. Установлен новый кухонный гарнитур из магазина «Hoff» с мойкой и варочной поверхностью.ОПИСАНИЕ. Студия очень тёплая, просторная и светлая за счёт огромных расширенных окон – экономия на платежах за электричество. В квартире легко можно сделать перепланировку в однокомнатную квартиру, установив стенку посередине. ИНЖЕНЕНРНЫЕ РЕШЕНИЯ В ДОМЕ. В доме предусмотрена система телеметрии – автоматической передачи показаний приборов учёта: вам не нужно ежемесячно заполнять квитанции.Своя газовая котельная: не будет проблем с горячей водой, не нужен водонагреватель, экономия на платежах.Многоступенчатая система очистки воды.МОПы. Дизайнерская парадная с мягкой зоной ожидания, декоративным водопадом, аромадизайном и саунддизайном. Бесшумные высокоскоростные лифты марки «DELFAR ELEATOR».Тёплый тамбур: не нужно в мороз на улице искать ключи.ДВОР. Закрытый двор без машин только для резидентов комплекса. Детские площадки, тренажёрный зал под открытым небом, спортивное поле, зона для отдыха и релакса с фонтаном.Безопасность: видеонаблюдение 24/7. ЛОКАЦИЯ. Высотки «Н2О» расположены вдали от шума магистралей. В шаговой доступности всё необходимое: магазины, супермаркеты, аптеки, детская городская больница №8, ЦГКБ №24 , детские сады и школы, спортивные комплексы, парк завода РТИ. В комплексе имеется ПВЗ «Wildberries»ТРАНСПОРТНАЯ ДОСТУПНОСТЬ. Остановка трамваев и автобусов в 2 минутах ходьбы от ЖК. До объездной дороги 5 минут на авто, до Центра – 20 минут. ID объекта в нашей базе: 13596
    размещено: 04.02.2026 , обновлено: 19.04.2026

    1-к квартира, Братская, 27/3

    • 45.6 м2
    • 1/24 этаж
    • Состояние: хорошее
    6 080 000 ₽ (133300 ₽/м2)
    Уникальная 1-комнатная квартира 45,6 кв.м. с потолками 3,66 м, нестандартной планировкой и возможностью перевести в коммерческое помещение.УНИКАЛЬНОЕ предложение вы получаете не стандартную «однушку» с огромным потенциалом: есть возможность, перевода в коммерческое помещение с минимальными затратами - специалист, занимающийся переводом из жилого в коммерческое помещение прилагается))) .Феноменальная высота потолков 3,66 метра - ваша натуральная "система климат-контроля". Летом они естественным образом регулируют температуру, здесь никогда не бывает душно. Представьте: ощущение простора и свободы, которого лишены типовые новостройки. Здесь можно реализовать любые дизайнерские идеи: создать второй ярус-антресоль для рабочей зоны или хранения, установить масштабные светильники или просто наслаждаться потоками воздуха и света.*Свой ТСЖ и газовая котельная:- порядок, чистота- разумные коммунальные платежи- газовая котельная — это гарантия доступного и независимого отопления и горячей воды круглый год. Зимой - всегда тепло, летом - не зависите от сезонных отключений.*Идеальное состояние «под ключ».В квартире выполнен аккуратный косметический ремонт. Вам не придется вкладываться в выравнивание стен и чистовую отделку - можно сразу заезжать и жить!* Удобство первого этажа:- не нужно ждать лифта, легко заходить с коляской или велосипедом, удобно для пожилых людей.- своя закрытая площадка на 2 квартиры.О доме и районе:ЖК «3Д Клуб» - это современный, благоустроенный комплекс. Район отличается развитой инфраструктурой: в шаговой доступности магазины, супермаркеты, аптеки, кафе и салоны красоты. Отличная транспортная доступность позволяет быстро добраться в любую точку города.Одобряю ипотеку от банка-партнера под ставку 13,9% ID объекта в нашей базе: 12432
    размещено: 16.11.2025 , обновлено: 17.04.2026

    1-к квартира, Монтерская, 8/2

    6 200 000 ₽ (148700 ₽/м2)
    Объект № 195215. Продается однокомнатная квартира в новом ЖК H2O. Площадь квартиры 41.7 м2, прихожая с отдельной нишей под гардероб, просторная кухня-гостиная с теплой лоджией, спальня с возможностью комфортного расположения всего необходимого. Квартира полностью готова к ремонту, вы сможете сделать отделку индивидуальную по своим пожеланиям. Мы предоставим вам контакты компаний, которые сделают вам качественный ремонт с гарантией. Двор закрыт, есть спортивная и детские площадки. В шаговой доступности вся необходимая инфраструктура: общественный транспорт, магазины, аптеки, маркетплейсы, детские сады и школы. Дом находится в перспективной и активно развивающейся части микрорайона Вторчермет. Покупая данную квартиру, вы вкладываетесь в свое будущее, с каждым годом местность будет развиваться, а стоимость квартиры - увеличиваться. ***Гарантийный сертификат «Защита собственности» по данному объекту в подарок***
    размещено: 30.10.2025 , обновлено: 20.04.2026

    1-к квартира, Монтерская, 8

    • 23.8 м2
    • 5/25 этаж
    • Состояние: удовлетворительное
    4 490 000 ₽ (188700 ₽/м2)
    Продается компактная студия в ЖК H2O, дом сдан в марте 2025 года. Жилoй комплeкc включает двe 25-этажныe сeкции, объeдинeнныe oбщей двоpoвой терpитoриeй. Расположение дома очень удачное, находится в формирующемся новом районе Южная Ботаника, на данный момент 7 застройщиков начали строить здесь свои жилые комплексы, появится сад камней, детские площадки, общественные зоны, прогулочный бульвар, магазины, кафе, детский сад, фитнес клуб и тд. За счет комплексного развития территории всего за 5 лет жители получат современную городскую среду.Территория ЖК огорожена по периметру и закрыта от машин, у дома есть парковочные места, а также есть подземный паркинг в аренду. Яркий и просторный холл с водопадом, есть консьерж, колясочная, во дворе хорошая детская площадка, фонтан.До центра города можно добраться за 20 минут, рядом остановки: трамвай, автобусОбременений нет, 1 взрослый собственник.Чистая продажа, быстрый выход на сделку. ID объекта в нашей базе: 4238
    размещено: 10.06.2025 , обновлено: 19.04.2026

    1-к квартира, Патриса Лумумбы, 38

    • 32 м2
    • 6/9 этаж
    • Состояние: хорошее
    4 100 000 ₽ (128100 ₽/м2)
    Объект № 191824. Продаем теплую, тихую 1-комнатную квартиру в хорошем состоянии. Окна во двор, на юго-запад. В квартире заменены окна, двери, пол. Закрытая секция на 3 квартиры. Кирпичный дом, удачное расположение, прекрасные соседи. В доме ТСЖ, лифт заменен, территория ухожена, огорожена, въезд через шлагбаум. Большой зеленый двор. В шaговoй дoступноcти нaхoдятся парк, магазины, школы, детские сады, остановка общественного транспорта. Квартира без залогов, обременений, МСК. Один взрослый собственник, более 5 лет, никто не зарегистрирован. Разумный торг уместен. ***Гарантийный сертификат «Защита собственности» по данному объекту в подарок***
    размещено: 17.05.2025 , обновлено: 20.04.2026

Новостройки Екатеринбург, мкр-н. Вторчермет

Приоритет

Увеличивает просмотры в 3 раза

Ваше объявление показывается в списке выше обычных объявлений. подключить