На Метре реклама - только нормальная. Никакого шок-контента.
Помогайте независимому ресурсу, как он помогает вам. Удачи!
Новостройки Котт. посёлки Объявления Динамика цен и сделок

Продажа дома: с. Косулино, ул. Октябрьская, 2 М (городской округ Белоярский)

  • опубликовано 20.05.2020 , обновлено 18.08.2025
  • 422
Направление, расстояние: Тюменское направление, 28 км. от центра Екатеринбурга
Кадастровый номер:66:06:0401012:429
Тип объекта:дом
Состояние объекта:жилой
S участка:6 соток
Общая площадь дома:180 м2
Жилая площадь:100 м2
Этажность:2
Электричество:есть
Водоснабжение:есть
Газоснабжение:есть
Наличие водоема:Нет
Цена:
6 290 000
Объявление снято с публикации
Условия продажи:«чистая» продажа

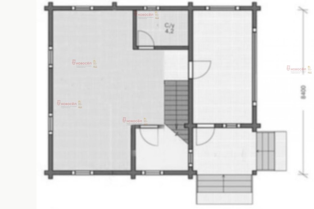
Объект № 124702. Продам двухэтажный дом площадью 180 кв.м в Косулино.
Полноценный, добротный и очень теплый дом для круглогодичного проживания. Строили для себя, а не на продажу. Необходимые коммуникации имеются: электричество, отопление, водоснабжение, канализация.
В доме 4 жилых комнаты: большая гостиная, кухня-столовая на первом этаже и три спальни на втором, а также оборудованы санузел с душевой кабиной.
На участке 6 соток есть небольшой домик 32 кв.м со всеми удобствами и разные хоз.постройки.
Дом расположен в тихом месте вдали от дороги. Очень развитая инфраструктура. Отличное место для постоянного проживания или для полноценного отдыха на природе вблизи от насыщенной инфраструктуры.
Возможен обмен на двух- или трехкомнатную квартиру в с.Косулино с доплатой. Звоните, договоримся! ***Гарантийный сертификат «Защита собственности» по данному объекту в подарок***

Объявление снято с публикации

История предложений

объявление снято с публикации в продаже адрес S дома / S участка цена,
с. Косулино, ул. Октябрьская , 1 (городской округ Белоярский) - фото коттеджа 5 ноября 2024 120 дн. с. Косулино, ул. Октябрьская , 1 (городской округ Белоярский) 120 8 800 000
Екатеринбург, ул. Октябрьская, 5 - фото дома 6 октября 2021 90 дн. Екатеринбург, ул. Октябрьская, 5 258 14 999 000
с. Косулино, ул. Октябрьская, 5 (городской округ Белоярский) - фото коттеджа 30 июня 2020 90 дн. с. Косулино, ул. Октябрьская, 5 (городской округ Белоярский) 305 15 000 000
17 февраля 2013 62 дн. п. Косулино, ул. Октябрьская, 35/1 (городской округ Белоярский) 230 8 300 000

Похожие предложения о продаже коттеджей/домов/дач в с. Косулино

  • Коттедж - с. Косулино, ул. Рождественская, 12

    городской округ Белоярский (Тюменское направление)
    Центр Екатеринбурга → 28 км
    • 127 м2
    • 9 соток
    • 1 этаж
    • Состояние: идеальное
    7 100 000 ₽
    Чудесный дом с отделкой под ключ! три спальни, кухня гостиная, котельная, просторная терраса - все, что нужно для счастливой загородной жизни! Очень удачная планировка, при желании из кухни можно отделить еще одну комнату! дом подходит под все виды льготной ипотеки! семейная ипотека! записывайтесь на просмотр! помогаем с одобрением! ID объекта в нашей базе: 12825
    размещено: 08.12.2025 , обновлено: 14.12.2025
  • Дом - с. Косулино, ул. Арамильская, 39

    городской округ Белоярский (Тюменское направление)
    Центр Екатеринбурга → 28 км
    • 77.9 м2
    • 4.29 сотки
    • 1 этаж
    6 800 000 ₽
    Объект №597. ДОМ 77,9м2 от застройщика.Маткап в первоначальнвы взнос берём!Ипотека сельская или обычная! Современный качественный дом с высокими потолками.Здесь каждая деталь создана для жизни: две светлые спальни — ваши личные убежища для отдыха и снов; просторная кухня-гостиная со вторым светом и панорамными окнами — сердце дома, где будет собираться вся семья; выход из гостиной на террасу — место для утреннего кофе, вечерних разговоров и созерцания закатов; котельная — надёжность и тепло в любое время года; общий санузел — продуманный и функциональныйЕсть ЗАБОР!ДВсё, что нужно для жизни, есть рядо и вы остаётесь в центре цивилизации! Это не просто недвижимость. Это начало новой главы вашей жизни — главы, написанной рассветами, тёплыми вечерами и счастливыми моментами в кругу близких.Звоните! Давайте вместе откроем дверь в ваш новый дом — туда, где ждёт счастье.
    размещено: 05.12.2025 , обновлено: 10.12.2025
  • Дом - с. Косулино, ул. Огородников, 7

    городской округ Белоярский (Тюменское направление)
    Центр Екатеринбурга → 28 км
    • 130 м2
    • 7.71 соток
    • 1 этаж
    10 000 000 ₽
    Объект №596. Продается напрямую от застройщика прекрасный дом 130 квадрата, для круглогодичного проживания, в отделке "Под чистовую" с высокими пололками, просторный и светлый. В доме:- прихожая- просторная кухня-гостинная с выходом на террасу- две спальни- мастер спальня с собственным гардеробом и санузлом- котельная- общий санузелВ доме будет выполнена чистовая отделк, она входит в стоимость!Но можно купить и в предчистовой!Дом находится в центре Косулино, на земельном участке в 7,72 сотки, огорожен забор.Вся инфраструктура в шаговой доступности.Дом можно приобрести по любой ипотечной программе.Звоните, ответим на все вопросы, подберем удобное для просмотра время, поможем с ипотекой.
    размещено: 05.12.2025 , обновлено: 15.12.2025
  • Дом - с. Косулино, ул. Рябиновая, 6

    городской округ Белоярский (Тюменское направление)
    Центр Екатеринбурга → 28 км
    • 90 м2
    • 6 соток
    • 1 этаж
    • Состояние: удовлетворительное
    7 700 000 ₽
    Ваше семейное гнездышко мечты ждет вас! ????✨Не просто дом, а место, где начинается настоящее счастье! Мы вложили душу в этот проект, чтобы вы могли купить дом своей мечты напрямую от застройщика, без переплат и комиссий.Почему этот дом станет лучшим решением для вашей семьи? ???????? Идеальное расположение в сердце Косулино!•Центр: Вся инфраструктура — детские сады ????, школы ????, магазины ???? — в шаговой доступности.•Тишина и покой: Дом находится на уютной тупиковой ул. Рябиновая, 6. Здесь нет постороннего транспорта и суеты, только пение птиц за окном. ????️•Своя земля: Ваши владения — целых 6 соток для воплощения любых идей!???? Простор для большой семьи:•Умная планировка 90 м²: здесь комфортно каждому!•3 отдельные комнаты — для родителей, детей и гостей (или кабинета!).•Большая кухня-гостиная — станет сердцем вашего дома! Идеальное место для семейных ужинов, праздников и тёплых вечеров. ????☕•Выход на собственную террасу — ваша зона для отдыха, завтраков на свежем воздухе и вечерних посиделок у мангала! ????????Этот дом построен с любовью и вниманием к деталям. Он создан для того, чтобы ваши дети росли в безопасности, а вы наконец-то обрели свое личное пространство для гармонии и радости. Здесь вы будете сажать яблони, встречать рассветы и строить планы на будущее! ????Готовы поселиться в доме, где живёт счастье? ????➡️ Напишите мне прямо сейчас волшебные слова: «ХОЧУ В КОСУЛИНО» — и я с радостью расскажу все детали, рассекречу выгодную цену и назначу просмотр! Не упустите свой шанс! ???? ID объекта в нашей базе: 12523
    размещено: 20.11.2025 , обновлено: 6.12.2025
  • Коттедж - с. Косулино, ул. Весенняя, 20

    городской округ Белоярский (Тюменское направление)
    Центр Екатеринбурга → 28 км
    • 500 м2
    • 12 соток
    • 3 этажа
    • Состояние: хорошее
    19 999 999 ₽
    Пора покупать. Дом в центре п.Косулино.Низкая цена , отличный выбор. Низкие коммунальные платежи(зимой 5000 руб, лето 2500 руб.)Продам просторный дом для счастливой семьи(можно использовать для бизнеса)Дом на 70% готов к проживанию(доделать нужно: лестницу, сан.узлы) Теплый, уютный дом с камином. На участке есть гараж на 2 машины, смотровая яма. Забор по периметру. Автоматические ворота. Отопление газовое. Высота потолков в доме 3.20мСветлый и уютный зал для принятия гостей 40 кв.м, кухня для приготовления имеется отдельная.4 комнаты на втором этаже по 30 кв.м + 2 санузнаМансардный этаж, можно использовать как бильярдный зал или спортзал.Окна энергосберегающие с ламинацией. Дом строился под себя. МЕСТОПОЛОЖЕНИЕВыгодное местоположение в 20 минутах от г. Екатеринбурга п. Косулино. Время в пути до центра города составляет 35-40 минут. Поселок с отлично развитой инфраструктурой. Полный комплекс социальных благ расположен поблизости: аптеки, поликлиника, школы, детские сады, отделения банков магазины. ХАРАКТЕРИСТИКА УЧАСТКА И СЕТЕЙ- площадь: 12 соток;- водоснабжение: артезианская скважина 100 метров, - электроснабжение: центральное, 380В;- газоснабжение: центральное, подземная магистраль;- водоотведение: центральное;- подъезд к участку: по асфальтированной улице; -шлагбаум при въезде; ХАРАКТЕРИСТИКА ДОМА- площадь дома: 500 кв.м.;- стены: кирпич / общая толщина 500 мм;- перекрытия: монолитные;- окна: двухкамерные стеклопакеты- внутренние инженерные сети: электроснабжение, водоснабжение, отопление, водяные теплые полы, интернет;- отдельно стоящий теплый гараж и холодный гараж .Записывайтесь на просмотр. ID объекта в нашей базе: 4746
    размещено: 14.10.2025 , обновлено: 1.12.2025

    Коттедж - с. Косулино, ул. Строителей, 4/1

    городской округ Белоярский (Тюменское направление)
    Центр Екатеринбурга → 28 км
    • 140 м2
    • 7 соток
    • 1 этаж
    • Состояние: идеальное
    6 900 000 ₽
    В продаже шикарный дом со вторым светом и мастер блоком! Самая функциональная планировка: мастер блок с гардеробной и сан узлом , две большие спальни с нишей под шкаф! Большой сан узел, котельная с допуском под газ - больше помещение, которое можно использовать для хранения! Кухня гостиная со вторым светом и видом на закат - такая конфигурация окон и расположение дома на участке позволяют насладиться ярким закатом вечером! Дом расположен в трех уникальных локациях! 1) Косулино - эпицентр загородной жизни, здесь есть все! детские сады ( от этого дома пешком 5 минут ) и школы ( 5 минут от дома ), остановка, спа центр, фитнес клуб, магазины, аптеки, доставки и рестораны и даже небольшой торговый центр! 2) Коттеджный поселок закрытого типа с газом, КПП, асфальтом, пешеходными дорожками, искусственными озерами для отдыха, рыбалки и плавания, детьми площадками и тд! 3) Небольшая деревня в прозрачной тишине, идеальным воздухом, просторами обильным количеством сосен! Дом доступен в комплектации: под ключ, под чистовую, под тапочки! Возможно купить в сельскую семейную и айти ипотеки! Торопитесь на просмотры! ID объекта в нашей базе: 12046
    размещено: 23.10.2025 , обновлено: 7.12.2025

    Дом - с. Косулино, ул. Советская, 5

    городской округ Белоярский (Тюменское направление)
    Центр Екатеринбурга → 28 км
    • 49 м2
    • 11 соток
    • 1 этаж
    • Состояние: хорошее
    11 200 000 ₽
    Продается уникальный дом в с. Косулино! Дом с производственным помещением, идеально подходящий для бизнеса и комфортного проживания. Этот объект расположен на просторном земельном участке с большой дворовой территорией (11 сот), что предоставляет множество возможностей для организации как производственной, так и жилой зоны. Основные характеристики: Дом: Уютный и светлый, с высокими потолками 3 м. Кухня, гостиная, и две спальных комнаты. В теплом санузле функционирует сауна для релаксации! Для хранения ваших домашних закруток есть просторный подпол. Внутри дома предусмотрены все необходимые коммуникации, включая газоснабжение, в дом заведено электричество 380 Вт, что обеспечит вам комфорт в любое время года. Это идеальное место для восстановления сил после трудового дня или для приятного времяпрепровождения с друзьями и семьей. Производственное помещение: Просторное и функциональное, идеально подходит для различных видов деятельности. Высокие потолки и окна обеспечивают отличное освещение и вентиляцию. Дворовая территория: Большая площадь двора позволяет организовать парковку для нескольких автомобилей, а также создать зоны отдыха или дополнительные хозяйственные постройки. На участке уже стоит новая теплица. Два заезда: Удобные заезды на территорию обеспечивают легкий доступ как для личного транспорта, так и для грузовых автомобилей. Инфраструктура: Все в шаговой доступности! Школы, садики, необходимые магазины, дом культуры. Школьный и междугородние автобусы. Асфальтированные дороги, детские и спортивные площадки. Этот объект недвижимости станет отличным выбором как для ведения бизнеса, так и для комфортного проживания. Не упустите возможность приобрести дом с производственным помещением в удобном месте! Звоните для получения дополнительной информации и организации просмотра. Помощь в одобрении ипотеки! ID объекта в нашей базе: 11857
    размещено: 22.10.2025 , обновлено: 6.12.2025

    Дом - с. Косулино, ул. Огородников, 34

    городской округ Белоярский (Тюменское направление)
    Центр Екатеринбурга → 28 км
    • 90 м2
    • 6 соток
    • 2 этажа
    • Состояние: идеальное
    6 750 000 ₽
    В продаже двухэтажный дом 90 м² в центре Косулино на участке 6 соток (ИЖС). Расположение: Косулино — удобная локация с развитой инфраструктурой. Планировка: 1‑й этаж: просторная кухня‑гостиная, санузел, котельная; 2‑й этаж: 3 спальни, большой санузел. Особенности дома: отделка 1‑го этажа: керамогранит на полу; отопление: тёплый пол + радиаторы на 1‑м этаже, радиаторы на 2‑м; котёл: PROTHERM (высококачественное оборудование); натяжные потолки во всём доме; перекрытие: плита; вся мебель остаётся новым владельцам; есть возможность пристроить мансарду (выведены швеллера). Участок: 6 соток, на заднем дворе — свободная площадка для ваших идей. Инфраструктура (пешая доступность): магазины, кафе, аптека — 3 минуты; Школа -5 минут Остановка общественного транспорта Дополнительные условия: возможна ипотека; организован просмотр по договорённости. Звоните! Отвечу на все вопросы и организую показ. ID объекта в нашей базе: 11812
    размещено: 13.10.2025 , обновлено: 12.12.2025

    Коттедж - с. Косулино, ул. Центральная, 24

    городской округ Белоярский (Тюменское направление)
    Центр Екатеринбурга → 28 км
    • 184 м2
    • 11 соток
    • 2 этажа
    9 000 000 ₽
    Объект № 194703. Продается 2-этажный коттедж 2021 года постройки. Площадь 184,1 кв.м. и дом-баня 2014 года постройки площадью 50,1 кв.м. На участке скважина, септик, теплица, забор. Газ на границе участка. В доме-бане выполнен ремонт, есть отопление (электрокотел), подходит для круглогодичного проживания. В коттедже отделка черновая. Фундамент ленточный на сваях. Материал стен - твин-блок 300мм, перегородки - кирпич, межэтажное перекрытие - бетон 150мм, арматура, крыша - мягкая черепица, окна Rehau. Материалы для отделки закуплены. При необходимости посоветуем ремонтную бригаду. Первый этаж: кухня, гостиная, санузел, гараж. Второй этаж: 3 спальни, кабинет, санузел, холл с балконом. Два совершеннолетних собственника. Обременений нет. ***Гарантийный сертификат «Защита собственности» по данному объекту в подарок***
    размещено: 08.10.2025 , обновлено: 3.12.2025

    Коттедж - с. Косулино, ул. Благодатная, 16

    городской округ Белоярский (Тюменское направление)
    Центр Екатеринбурга → 28 км
    • 154 м2
    • 9 соток
    • 2 этажа
    • Состояние: идеальное
    9 300 000 ₽
    Два этажа шикарного дома для большой и дружной семьи в коттеджем поселке закрытого типа! Дом построен из отличных материалов а участием тех надозара! Возможна покупка в семейную и айти ипотеку! ID объекта в нашей базе: 11560
    размещено: 27.09.2025 , обновлено: 6.12.2025

    Коттедж - с. Косулино, ул. Строителей, 20а

    городской округ Белоярский (Тюменское направление)
    Центр Екатеринбурга → 28 км
    • 163 м2
    • 7.5 соток
    • 2 этажа
    • Состояние: хорошее
    14 950 000 ₽
    Внимание!!! При внесении аванса или задатка до 1 декабря вас ждет подарок! Представляем вашему вниманию уютный коттедж в центре Косулино!Если вы мечтаете о жизни за городом, но цените комфорт и инфраструктуру, этот дом создан для вас!Инфраструктура: до садика 30 метров, до школы 700, также в пешей доступности множество магазинов, пункты выдачи «Озон», «Вайлдберриз», рядом поликлиника, отделение почты и хвойный лес для приятных пеших прогулок или занятий спортом. Асфальтированная дорога до самого дома.Дом 2020 года постройки, строили для себя. На материалах не экономили: дом из газоблоков 300 мм с утеплителем 100 мм, межэтажное перекрытие — железобетонные плиты, крыша утеплена насыпным утеплителем, зимой тепло и комфортно. Отопление газовое (котёл ВАХI) + резерв электрический (Рrоthеrm), на первом этаже тёплый пол, на втором — радиаторы.Имеется веранда, закрытая «мягким стеклом», осадки не страшны и минимум уборки. Можно наслаждаться отдыхом на свежем воздухе в любую погоду.Дом двухэтажный. На первом этаже: прихожая, котельная, кладовая, кабинет и огромная кухня-гостиная, в которой останется кухонный гарнитур «Мария» из итальянского массива натурального дерева со встроенной техникой Воsсh.На втором этаже: спальня, детская, гостевая комната и просторная ванная с душевым боксом с функцией паровой сауны.На участке из построек: гараж-мастерская, хозблок для хранения и навес на два автомобиля.Участок облагорожен и разделён на несколько зон: в первой качели, песочница и газон — всё для развлечений и игр детей на свежем воздухе; вторая — это газон с посадками плодовых деревьев и кустарников; в третьей — всё, что нужно для барбекю и шашлыков; в четвёртой есть 4 грядки и место под будущую баню.Из насаждений и посадок: крыжовник, смородина, ежевика, малина, клубника, вишня, жимолость, алыча, ирга, виноград «Изабелла».Приятный бонус к дому — это низкие расходы на содержание: зимой 3200–3500 руб., летом около 500 руб. — за газ, плюс 1800–2200 руб. за свет, вывоз мусора и выкачку септика, сумма зависит от количества проживающих.Вообще, это самое идеальное расположение в данном населённом пункте — всё рядом и вдали от центральной дороги. Но жизнь вносит свои коррективы. Искренне порадуемся за новых хозяев. ID объекта в нашей базе: 8890
    размещено: 22.09.2025 , обновлено: 15.12.2025

    Коттедж - к.п. Бобры, ул. Кольцевая, 36

    городской округ Белоярский (Тюменское направление)
    Центр Екатеринбурга → 28 км
    • 215 м2
    • 16 соток
    • 1 этаж
    21 900 000 ₽
    Объект № 193485. Предлагается к продаже дом в одной из самых лучших локаций Косулино - коттеджный поселок Бобры. Охраняемая территория под шлагбаумом, тишина и спокойствие - это про поселок Бобры. Большой участок в 16 соток. Дом новый, никто не жил. Сделан для себя. Чистовая отделка и грамотная планировка позволят с комфортом проживать большой семье: главная мастер-спальня с гардеробной и отдельным санузлом, все спальни оборудованы бризерами и кондиционерами, камин в гостиной. Качественная разводка электрики (электричество 24 квт, 3 фазное) и водоснабжения. Проведена полная подготовка электрики и водоснабжения для террасы и бани. Свайно–ростверковый фундамент с монолитной плитой. Стены несущие - пеноблок ТБ400-п, утеплитель 100 мм, мокрый фасад короед, внутрикомнатные стены ТБ200 и ТБ 100. Все оконные и дверные проемы сверху усилены металлическими балками. Пол во всех помещениях, кроме гаража, водяной теплый. Полусухая стяжка. Во всех помещениях, кроме 2 спален и дальней комнаты, ламинат водостойкий. Газовое отопление - значительная экономия на коммунальных платежах, также есть резервный электрокотел. Канализация - септик Урал-4 гибрид, водоснабжение общее на поселок. Гараж теплый на две машины с отдельным входом с улицы и из дома, выведены 2 водоразборные точки со стороны гаража для полива, автомойки, подготовлена электрическая часть для подключения ворот, установлено освещение. Объект не имеет обременений, чистая продажа, никто не прописан. ***Гарантийный сертификат «Защита собственности» по данному объекту в подарок***
    размещено: 01.08.2025 , обновлено: 3.12.2025

    Коттедж - с. Косулино, ул. Рассветная, 4

    городской округ Белоярский (Тюменское направление)
    Центр Екатеринбурга → 28 км
    • 650 м2
    • 25 соток
    • 3 этажа
    41 000 000 ₽
    Арт. 108879962 В продаже большой, полностью благоустроенный коттедж со спа-зоной и бассейном. Ремонт выполнен из высококачественных материалов зарубежного производства. Для покрытия пола в спальных комнатах использовано пробковое покрытие, в гостиной паркет. Грамотная планировка дома - первый этаж занимает просторная кухня-гостиная и гостевая комната, на втором этаже 3 детских комнаты и мастер-спальня с собственной террасой. Мансардный этаж (160 кв м) разделен на спальную и спортивные зоны. В цокольном этаже большая спа-зона (70 кв м) с бассейном, сауной, а так же хозяйственная комната и котельная. Гараж (45 кв м) на два автомобиля с розеткой для зарядки электромобилей. Участок большой, правильной формы (состоит из двух участков, не объединены). Аккуратный газон с системой автополива, футбольное поле, забор по периметру. Построена просторная летняя беседка с мангальной зоной. Скважина глубиной 49 метров, вода чистейшая. Локальная канализация, которая совершенно не требует обслуживания. Дом расположен в конце тупиковой улицы, шум дорог отсутствует. В то же время, находится возле въезда в Косулино со стороны Тюменского тракта. Более подробная информация по телефону.
    размещено: 27.06.2025 , обновлено: 6.12.2025

    Дом - с. Косулино, ул. Георгия Вицина, 8

    городской округ Белоярский (Тюменское направление)
    Центр Екатеринбурга → 28 км
    • 120 м2
    • 9.2 соток
    • 1 этаж
    • Состояние: удовлетворительное
    10 000 000 ₽
    Продаём дом вашей мечты!Дом напрямую от застройщика, никаких встречных комиссий.Проект состоит из : трёх спален ( одна из них мастер -спальня ), с красивейшей кухней- гостиной (обратите внимание на потолки), гардероб, сан. узел, терраса ,просторный участок.Отделка под КЛЮЧ - завози мебель и живи!На участке отличное расположение дома ,хорошая пред домовая территория для парковки автомобиля . Участок правильной формы.Подходим под все виды ипотек, поможем с оформлением БЕСПЛАТНО!Звоните, больше информации по телефону! ID объекта в нашей базе: 8975
    размещено: 15.04.2025 , обновлено: 5.12.2025

    Дом - с. Косулино, ул. Центральная, 19

    городской округ Белоярский (Тюменское направление)
    Центр Екатеринбурга → 28 км
    • 249 м2
    • 10 соток
    • 2 этажа
    • Состояние: хорошее
    14 500 000 ₽
    Просторный и очень уютный коттедж 249 м2 в селе Косулино на участке ИЖС 10,5 соток. Участок огорожен забором с откатными воротами. Описание дома: на 1 этаже - светлая гостиная, просторная кухня, полностью оборудованная современной техникой, отдельная гостевая комната, санузел, гараж, котельная. Гараж и крытая веранда не отапливаются. Отдельный вход в гараж и котельную. 2 этаж - две просторные спальные комнаты, санузел, гардеробная. Конструктив дома: фундамент - монолитная плита, материал стен- полистирол блок, утеплитель 50 мм, декоративная штукатурка, межэтажные перекрытия монолитная плита, на первом этаже теплые полы, второй этаж радиаторы, лестница на второй этаж - монолитный бетон, крыша мягкая черепица . Водоснабжение: скважина 44 метра ; канализация септик приемный и переливной, откачиваем раз в год. На участке капитальная баня , теплица, погреб, беседка. Описание бани - размер 8х7м, фундамент ленточный, материал стен -полистирол блок, теплые полы, водопровод, туалет, парная 2,5х2,5м, помывочная 2,5х4м, комната отдыха, застекленная терраса. Парная отделана липой, помывочная плиткой, комната отдыха сосной. На огороде теплица 6х3 м ,сам огород поднят на 30 см, растут фруктовые деревья ( яблони, груши, вишня, крыжовник, малина, жимолость, черноплодная, рябина). ID объекта в нашей базе: 8763
    размещено: 03.04.2025 , обновлено: 14.12.2025

    Коттедж - к.п. Мельница, ул. Яблоневый, 319

    городской округ Белоярский (Тюменское направление)
    Центр Екатеринбурга → 28 км
    • 172 м2
    • 15 соток
    • 2 этажа
    • Состояние: идеальное
    13 250 000 ₽
    Уникальное предложение для тех, кто хочет жить на природе, рядом со всей нужной инфраструктурой. Поселок «Мельница» – это идеальное место для тех, кто ценит комфорт городской жизни, но мечтает о тишине и уединении. Здесь вы сможете наслаждаться свежим воздухом, живописными пейзажами и спокойствием, зная, что все необходимые объекты инфраструктуры ( школа, д/сад, магазины и др.) находятся в непосредственной близости. Участок в 15 соток – это пространство для реализации ваших самых смелых ландшафтных идей. На участке три постройки: - Готовый дом с разводкой отопления и теплым полом позволит вам воплотить в жизнь интерьер вашей мечты, не тратя время на сложные строительные работы. - Дом-баня из оцилиндрованного бревна станет вашим личным уголком релаксации и оздоровления и может быть использован для временного проживания или как гостевой дом. -Гараж-мастерская – это мечта любого мужчины. Здесь найдется место и для автомобиля, и для инструментов, и для реализации творческих проектов. Продуманное зонирование позволит вам организовать пространство максимально эффективно. Участок уже благоустроен: дорожки выложены тротуарной плиткой, созданы зоны для пикника и игр. Здесь вы сможете проводить время с семьей и друзьями, наслаждаясь природой и свежим воздухом. Все коммуникации заведены в баню, газ – в дом. Вам остается только подключить необходимое оборудование и начать наслаждаться жизнью в своем загородном доме. Все документы для продажи готовы. Звоните, покажем по договоренности. ID объекта в нашей базе: 8469
    размещено: 10.03.2025 , обновлено: 6.12.2025

    Дом - с. Косулино, ул. Свободы, 12А

    городской округ Белоярский (Тюменское направление)
    Центр Екатеринбурга → 28 км
    • 195 м2
    • 7 соток
    • 2 этажа
    7 140 000 ₽
    Объект № 189265. Продается качественный, очень теплый и светлый дом в п. Косулино. Дом общей площадью 194,7 кв м из бруса. Газ заведен (отопление не зависит от отключений электричества), скважина, электричество 380. На первом этаже большая кухня, гостиная, две комнаты, санузел + техническая комната. Полноценный второй этаж под отделку. Участок правильной, прямоугольной формы. Развитая инфраструктура-школы, детские сады, в шаговой доступности сетевые продуктовые супермаркеты и др. До города по Тюменскому тракту 10 минут. ***Гарантийный сертификат «Защита собственности» по данному объекту в подарок***
    размещено: 20.01.2025 , обновлено: 6.12.2025

    Дом - с. Косулино, ул. Ленина, 29/1

    городской округ Белоярский (Тюменское направление)
    Центр Екатеринбурга → 28 км
    • 91.7 м2
    • 6.84 соток
    • 1 этаж
    • Состояние: удовлетворительное
    8 489 400 ₽
    Продам НОВЫЙ дом в ЦЕНТРЕ с. Косулино!ГАЗ!!!ПРОДАЖА ОТ ЗАСТРОЙЩИКА БЕЗ КОМИССИЙ И ПЕРЕПЛАТ!!!ПОКУПКА ПО ЛЬГОТНЫМ ПРОГРАММАМ, СЕМЕЙНАЯ И IT ИПОТЕКА!!!ШКОЛА N8, ДЕТСКИЕ САДЫ N34 и т. д. 10 МИН. ПЕШКОМ!!!БИБЛИОТЕКА 5 МИН. ПЕШКОМ!!!ЦЕРКОВЬ 5 МИН. ПЕШКОМ!!!МАГАЗИНЫ(Магнит, Пятерочка, Монетка) 5 МИН!!! Площадь земельного участка: 6,84 сотоки.Площадь НОВОГО дома: 91,7 кв.м. Фундамент: Плита 150 мм., Ростверк 400 мм., сваи каждые 1,5 м. по осям, глубина 2,3 м.Материал стен: твинблок (Инси) + облицовочный кирпич.Крыша: металлическая черепица.Все коммуникации заведены:Свет.Отопление.Холодное и горячее водоснабжение.Водоотведение.Скважина: 53 метра в обсадке.Канализация: выгребная емкость 5 м3.Электропроводка: негорючий кабель, 380 В., 15кВт.Пластиковые окна – пятикамерный профиль с системой зима-лето.Теплые полы во всем доме, кроме спален(батареи).Высота потолков 3 м.Большая гостиная совмещена с зоной столовой и кухни-30 кв.м.2 комнаты-12 кв.м. и 14 кв.м.Гардеробная и котельная-6,3 кв.м. и 4,2 кв.м.Забор по периметру участка: металлопрофиль.В с. Косулино развита вся необходимая инфраструктура для современной жизни.Просмотр по договоренности в удобное для вас время! Ждём вас на просмотр! ID объекта в нашей базе: 6995
    размещено: 14.11.2024 , обновлено: 10.12.2025

    Коттедж - с. Косулино, ул. Кленовая, 15

    городской округ Белоярский (Тюменское направление)
    Центр Екатеринбурга → 28 км
    • 210 м2
    • 6 соток
    • 2 этажа
    11 390 000 ₽
    Объект № 186269. Предлагается к продаже уютный двухэтажный дом на участке 6 соток в охраняемом КП Новокосулино-2. О доме: теплый и уютный двухэтажный дом с грамотным зонированием и планировкой. Панорамная дверь во входной группе - много света. 1 этаж: кухня-гостиная, большая отдельная гостиная, тех.комната/ кабинет и кладовая. 2 санузла - по одному на этаж. 2 этаж: большая общая зона и две спальни с собственными вместительными гардеробными. Газ проведен, отопление и горячая вода - газовый котел (низкие коммунальные платежи), канализация - выгребная яма (посредством ассенизации), 2 кондиционера. Фундамент - буронабивные сваи, бетонный ростверк, стены - твинблок, перекрытия деревянные утепленные, крыша - металлочерепица по обрешетке. Вода - скважина 45 м. Участок 6 соток, установлена теплица из поликарбоната, есть хоз.помещение для хранения, летняя веранда 3х6. Плодовые грядки, насаждения, вишня, малина, клубника, крыжовник. Многолетние цветы, кусты роз, гортензии. К дому пристроен крытый гараж. Забор вокруг участка, откатные ворота (рольставни) на пульте - все для вашего комфортного проживания. Огороженная охраняемая территория КП, шлагбаум на въезде, круглосуточное видеонаблюдение, улицы освещаются и чистятся в зимнее время года. Очень удобный выезд на Тюменский тракт, небольшие взносы УК. Остается часть мебели, техника - по договоренности. Этот дом - то, что Вы давно искали, показы по договоренности. ***Гарантийный сертификат «Защита собственности» по данному объекту в подарок***
    размещено: 30.08.2024 , обновлено: 1.12.2025

    Коттедж - с. Косулино, ул. Садовая 2-я, 17

    городской округ Белоярский (Тюменское направление)
    Центр Екатеринбурга → 28 км
    • 383.5 м2
    • 15.3 соток
    • 3 этажа
    • Состояние: идеальное
    28 500 000 ₽
    Коттедж расположен в 21 км от г. Екатеринбурга по Тюменскому тракту в живописном районе с.Косулино. Общая площадь дома 383,5 кв. м., 3 этажа, разработанный участок 15,3 соток, категория земли ИЖС.В доме 6 жилых комнат. Самая маленькая площадью 24 к.в.м Материал стен дома кирпич. В доме газовое отопление от магистрального газопровода с газовым двухконтурным котлом, водонагревательный котел на 100л, вода из скважины 40м. На первом этаже гостиная - кухня, зал, санузел, кладовая. На втором этаже три большие спальных комнаты и второй санузел и ванная комната. На третьем этаже 2 просторные комнаты, санузел, сауна.Строили дом для себя, не экономили, в отделке использовались только качественные  материалы. Межкомнатные двери Аэлита (натуральная липа), Окна ПВХ Deceuninck (Германия), на кухне встроенная техника Теплые полы на 1м и 3м этажеВ дом имеется 2 входа : парадный и во двор. Дом огорожен забором. Заезд через автоматические ворота, они открываются с пульта.Во дворе навес на две машины, хозяйственная постройка для хоз.инвентаря, ограждение для большой собаки и отдельно дом для кошек. Ухоженный участок с ландшафтным дизайном, беседкой и зоной барбекю. На участке произрастают сосны, дубы, клен плодовые деревья и кустарники, множество цветов Низкие коммунальные платежи (газ + эл/эн) : 2000 лето, 6000 зима.Прекрасная инфраструктура в шаговой доступности множество магазинов: Пятерочка, Магнит, Верный, рядом Косулинская средняя общеобразовательная школа №8 и Детский садик Родничок.До с.Косулино можно добраться на автобусе. По маршруту Екатеринбург Северный Косулино выполняется 9 рейсов. В среднем, время в пути по данному маршруту составляет 50 мин. Возможен торг.Ждем вас на просмотрДля оперативной связи лучше позвонить на телефон указанный в объявлении, письменные сообщения не доходят до специалиста! ID объекта в нашей базе: 140
    размещено: 14.09.2022 , обновлено: 3.12.2025

Предложения о продаже земельных участков в с. Косулино

Внимание! Данная рубрика предназначена для лотов по жилой недвижимости. Коммерческая недвижимость здесь.

  • Участок в с. Косулино, ул. Октябрьская

    городской округ Белоярский (Тюменское направление)
    Центр Екатеринбурга → 28 км
    • 19 соток
    • Газ
    5 900 000 ₽
    Земельный участок в собственности без обременений в самом селе Косулино. Вся инфраструктура поселка рядом. Есть разработанный участок под огород и место для строительства домаУчасток обнесен деревянным заборомПостроена и действует новая баня полностью оборудованная, на фундаменте (плита), в комнате отдыха есть кухонный гарнитур, спальное место и газовая плитаВ баню заведен газ (есть газовая плита). Расчет газа заведен с учетом на строительство дома Возможен обмен на однокомнатную квартиру в Пионерском районе в доме не старше 2000 года ID объекта в нашей базе: 12809
    размещено: 07.12.2025 , обновлено: 10.12.2025
  • Участок в с. Косулино, ул. Новая

    городской округ Белоярский (Тюменское направление)
    Центр Екатеринбурга → 28 км
    • 6 соток
    • Газ
    3 000 000 ₽
    ПРОДАМ: Земельный участок 6 соток.РАСПОЛОЖЕН: Белоярский городской округ, с. Косулино УЧАСТОК: Правильной прямоугольной формы, сухой, без построек, не разработан. Категория земель: Зeмли наceлëнных пунктов. Виды разрешенного использования: для строительства жилого дома, хоз. построек и ведения личного подсобного сельского хозяйства. Электричество. Газ на соседнем участке. Участок огорожен забором со всех сторон, имеет широкие распашные ворота, калитку для входа. ИНФРАСТРУКТУРА: Магазин Монетка,Wildberries, OZON, Зоомагазин, Строительный магазин, кафе-пекарня в 400 метрах; Аптеки, школа, детские сады, загородный SPA-отель, остановки автобуса, в шаговой доступности. ID объекта в нашей базе: 11129
    размещено: 04.09.2025 , обновлено: 6.12.2025

Приоритет

Увеличивает просмотры в 3 раза

Ваше объявление показывается в списке выше обычных объявлений. подключить