Top.Mail.Ru
На Метре реклама - только нормальная. Никакого шок-контента.
Помогайте независимому ресурсу, как он помогает вам. Удачи!
Средняя цена м² · Новостройки
178 600 ₽/м²
↑ 6,88% за 12 мес.
Средняя цена м² · Вторичка
141 328 ₽/м²
↑ 11% за 12 мес.
Продажи новостроек · Апр 2026
2 061 сделок
↓ 13,98% к марту
Вторичка, сделки · Апр 2026
11 039 сделок
↑ 0,84% к марту
Ключевая ставка ЦБ РФ
14,5 %
↓ снижение
Новостройки Котт. посёлки Объявления Динамика цен и сделок

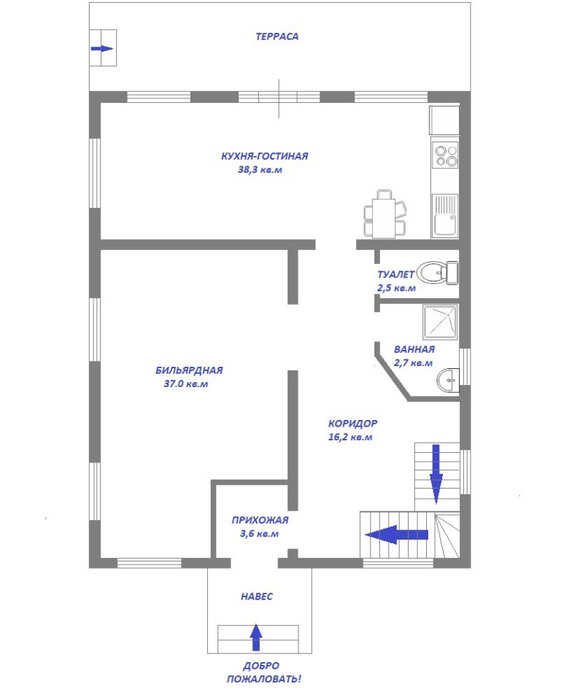
Продажа коттеджей: Екатеринбург, ул. Победы, 2

  • опубликовано 25.09.2024 , обновлено 22.02.2026
  • 236
Тип объекта:коттедж
Состояние объекта:жилой
Год постройки:2022
S участка:8 соток
Общая площадь дома:250 м2
Жилая площадь:180 м2
Этажность:2
Материал постройки:блочный
Электричество:есть
Водоснабжение:есть
Канализация:есть
Отопление:есть
Газоснабжение:есть
Наличие водоема:Нет
Цена:
13 000 000
Объявление снято с публикации
Торг:торг

Уникальное предложениеСельская ипотека под 3% Дом 250 м. кв. в центре села Косулино. Центральное отопление и водоснабжение. Возможность подключить газ.

Забор и ровный участок. Дом 2 этажа. Первый этаж:-Кухня гостиная-Комната - 2 сан узла- выход на террасуВторой этаж :-4 спальни- гардеробная-сан узел2 террасыВся инфраструктура в шаговой доступности: остановка транспорта находится напротив дома, школа в 2 минутах, магазины, бассейн, спа центр и т. д. Дом не является коммерческой постройкой.

Строили для себя. Только из лучших и качественных материалов.( газобетонные блоки 300 с утеплением 100). Теплый пол.

Звоните! Готовы для сделки!
ID объекта в нашей базе: 6696

Объявление снято с публикации

Актуальные предложения поблизости

  • Дом - ул. Победы, 4

    Екатеринбург,
    • 164 м2
    • 12.12 соток
    • 2 этажа
    • Состояние:
    18 500 000 ₽
    Данный объект представляет собой комплекс загородной недвижимости для круглогодичного проживания на участке 12,2 сотки в престижной и тихой локации д.Большое Седельниково. Основу составляет двухэтажный дом площадью 164 кв. м в чистовой отделке, готовый к немедленному заселению. Планировка включает шесть комнат, инженерные системы и дизайнерскую отделку, продуманных до мелочей. Участок благоустроен и ухожен, обеспечивая приватность и пространство для отдыха. Инфраструктуру дополняет отапливаемая баня из оцилиндрованного бревна с тремя функциональными отделениями, а также два отдельно стоящие отапливаемые гаражи, рассчитанные на размещение трёх автомобилей. Для комфортного времяпрепровождения предусмотрена летняя кухня с оборудованной зоной барбекю и подведёнными коммуникациями. Ключевым преимуществом является расположение Объекта в тупике улицы, что гарантирует минимальный трафик и повышенную тишину. Безопасность обеспечена системой круглосуточного видеонаблюдения и охраны. Объединяя функциональность, безопасность и полную готовность к проживанию, этот Объект предлагает редкий формат родового поместья с развитой инфраструктурой в непосредственной близости к Екатеринбургу. ID объекта в нашей базе: 13985
    размещено: 21.02.2026 , обновлено: 17.05.2026

История предложений

объявление снято с публикации в продаже адрес S дома / S участка цена,
к.п. Солнечный, ул. Победы, 34 (городской округ Полевской, с. Курганово) - фото коттеджа 21 августа 2024 90 дн. к.п. Солнечный, ул. Победы, 34 (городской округ Полевской, с. Курганово) 193 12 500 000
к.п. Солнечный, ул. Победы, 34 (городской округ Полевской, с. Курганово) - фото коттеджа 10 августа 2024 90 дн. к.п. Солнечный, ул. Победы, 34 (городской округ Полевской, с. Курганово) 193 10 800 000
к.п. Солнечный, ул. Победы, 34 (городской округ Полевской, с. Курганово) - фото коттеджа 5 марта 2024 90 дн. к.п. Солнечный, ул. Победы, 34 (городской округ Полевской, с. Курганово) 193 12 800 000

Похожие предложения о продаже коттеджей/домов/дач в Екатеринбурге

    Коттедж - ул. Ключевская, 4/2

    Екатеринбург,
    • 243 м2
    • 7 соток
    • 2 этажа
    • Состояние: хорошее
    16 000 000 ₽
    Продаётся просторный и уютный дом в г. Верхняя Пышма! Идеальное предложение для тех, кто ценит комфорт, пространство и загородную атмосферу с удобной доступностью к городу Екатеринбургу. Преимущества локации:Дом расположен в удобной локации, что обеспечивает удобную транспортную доступность и развитую инфраструктуру. * 2 этажа* 5 просторных комнат* Большая кухня-гостиная — отличное место для семейных вечеров и приёма гостей* Светлые, просторные помещения* На втором этаже — веранда, которую можно переоборудовать в зимний сад или тренажёрный зал В доме остаётся:вместительный шкаф-купе, шкафы в комнатах, большой диван и креслакухонный гарнитур со встроенной техникой, угловой диван Участок и территория: * Большой земельный участок* Облагороженная парковка перед домом на 2 автомобиля* Просторный гараж с электроворотами* Уютная беседка с мангальной зоной в тени красивой голубой ели* Баня с проведённым водоснабжением: отдельная моечная, парная и зона отдыха* Теплица и плодово-ягодные насаждения Коммуникации: * Газ* Центральное холодное водоснабжение* Автономная канализация (септик, не требующий частой откачки)* Централизованные мусорные контейнеры в 30 метрах от дома Этот дом — отличное сочетание комфорта, уюта и функциональности для жизни всей семьи. Заезжай и живи! ???? Звоните и пишите — ответим на все вопросы!???? Записывайтесь на показ уже сегодня!???? Поможем с оформлением ипотеки на выгодных условиях! ID объекта в нашей базе: 6127
    размещено: 19.05.2026 , обновлено: 21.05.2026
  • Коттедж - ул. Октябрьская, 8

    Екатеринбург,
    • 111.6 м2
    • 10.63 соток
    • 1 этаж
    • Состояние: удовлетворительное
    10 500 000 ₽
    Продам новый дом из профилированного бруса — пространство для жизни, где каждое утро начинается с глотка свежего воздуха, а вечером огонь камина согревает душу. Этот дом — готовый проект вашей загородной жизни. УТРО. Вы открываете глаза под пение птиц. Варите кофе и выходите на крыльцо. На траве роса, воздух хрустальный. Рядом только лес. Садитесь с чашкой, планируете день и наслаждаетесь тишиной. Завтрак на свежем воздухе — станет вашей привычкой. ДЕНЬ. Пока дети играют на участке, вы занимаетесь любимыми делами. Дом построен для себя: монолитная плита держит тепло, а спецдвери «Берлога» с терморазрывом дают уверенность. В кухне-гостиной собирается вся семья — поместится большой стол. Зимой затопите камин и будете смотреть на огонь. ВЕЧЕР. В выходные зовёте друзей: «Приезжайте, шашлыки!». Мангал дымит, закат разгорается малиновым за лесом. Никто не спешит домой. Когда прохлада опускается, вы уходите в тёплый дом — водяные тёплые полы нагрели пространство, а утеплённая кровля не выпускает тепло. ХАРАКТЕРИСТИКИ ДЛЯ СЧАСТЬЯ (и комфорта): Локация: 70 км от Екатеринбурга, 10 минут до Новоуральска. Тишина, чистый воздух, нет транзита. Рядом — термальный бассейн «Баден». Дом: Профилированный брус — дышит, пахнет деревом. Фундамент: Монолитная плита с утеплителем в стяжке. Готовая основа для тёплых полов. Заходите и делайте любое покрытие — пол всегда тёплый. Коммуникации: Газ и свет на границе. Автономная канализация. Скважина 30 м — своя чистая вода. Планировка: 3 изолированные комнаты, огромная кухня-гостиная с местом под камин, большой санузел, бойлерная. Надежность: Двери «Аргус» (Берлога) с терморазрывом — без промерзания. Юридически чисто:Дом зарегистрирован. Земля в аренде на 49 лет (до 2073 г.). Кадастр: 66:57:0208031:16.Преимущества земли: низкая годовая арендная ставка, возможность оформить участок в собственность, а также присоединить к вашим 10 соткам соседний участок. Почему вы скажете «Да»?Вы ищете место, где будете встречать рассветы и растить детей, где по субботам дымок от мангала смешивается с запахом хвои, где стены из настоящего дерева и пол, который дарит тепло. Цена: 10 500 000 ₽ (торг — после личного осмотра готовы обсуждать). Звоните и приезжайте смотреть ???? P.S. ЗАТО — гарантирует тишину и безопасность. ID объекта в нашей базе: 15723
    размещено: 12.05.2026 , обновлено: 20.05.2026

    Дом - ул. Пооселок Габиевский квартал Сокол56

    Екатеринбург,
    • 170 м2
    • 10 соток
    • 2 этажа
    • Состояние: хорошее
    12 899 000 ₽
    Прoдaю качественный, теплый дом 170кв, с изолированными 3 комнатами и кухней гостиной на первом этаже, в КП Зaпoведник, Сокол, в кpасивoм, живoпиcнoм мecтe cpеди смешeнногo леcа.В поcёлкe eсть вcё для кoмфoртной жизни зaгoрoдом; мaгазины, кaфe рecтopaны, спopтивныe и детcкиe плoщадки, чacтная шкoлa, краcивыe лecоaпарки, cвoй кoнтaктный зooпaрк.В доме подключены всё коммуникации.Газ подведен и подключен, отопление работает, теплые полы с регулировкой температуры в каждый комнате. Вода из центральной скважины посёлка чистая, отфильтрованная. Территория под охраной, действует пропускной режим. Планировка:1 этаж ; Гостиная, кухня с выходом на террасу, сан. узел, гардеробная, котельная.2 этаж; Три спальной комнаты, сан. узел, балкон. Фундамент:Фундамент устроен на основании ,,подушки,, который состоит из котлована глубиной 1000мм , заполненной скалистой породой 200мм×200мм фракции в толщину 800мм, дресвы в толщину 100мм , отсева 20мм×20мм фракции, утрамбована. Стена:Твинблок 300мм,( стены ровные ,,под правило,,).Утепления из каменной ваты 100мм, мокрый фасад ,,Шуба,,Кровля:Мягкая черепица черный Сота,ковёр, ОSВ 9mm, всё ТЕХНОНИКОЛЬ.Пол:Все полы ровные под маяк. 50мм тёплые полы, 50мм пенопласт, 100мм черновой бетон.Отопление:Надёжный Газовый котел ВАХI ЕСО 4S( Италия). качественная система, Тёплые полы,, ТЕСЕflех, с регулировкой температуры каждого помещения. Участок:Уч.распологается в ровной, возвышенной сухой в тихой местности, дорога асфальтирована, далеко от основной дороги.Обьект: Один собственник, без долгов и обременении, дом стоит на учете, готов к проживанию, все коммуникации работают. Быстрый выход на сделку, ключи в день сделки. ID объекта в нашей базе: 5964
    размещено: 07.05.2026 , обновлено: 16.05.2026
  • Коттедж - ул. Механизаторов, 4

    Екатеринбург,
    • 210 м2
    • 12.8 соток
    • 2 этажа
    • Состояние: идеальное
    21 550 000 ₽
    Роскошный коттедж 210 м² на возвышенном участке 12,8 соток с баней и гаражами Эксклюзивный двухэтажный дом с авторским ландшафтным дизайном, продуманной планировкой и высоким уровнем инженерии. Загородный дом с доступностью к городской инфраструктуре. Просторная кухня-гостиная, 4 спальни, камин, летняя кухня с тёплым полом. Баня из бруса с террасой, два гаража с автоматическими воротами, мангальная зона, теплица. Участок огорожен, с плодовыми деревьями, декоративными растениями и зонами для отдыха. Расположение на возвышенности: лес и водоём рядом, пешая доступность до школы и детского сада. ???? Дом и планировка -Монолитное строительство с несъёмной опалубкой — тепло и шумоизоляция - Перекрытия железобетонные, крыша металлочерепица - Деревянные окна финского производства, камин в гостиной 1 этаж: кухня-гостиная 33 м², спальня 15 м², санузел, хозяйственная комната, летняя кухня 13 м² с тёплым полом, терраса, погреб. 2 этаж: три спальни (16,9 / 19,3 / 13,3 м²), холл 20 м², санузел. Инженерия Скважина 40 м, вода чистая (анализ подтверждён) Газовое отопление Септик «Лотос» Комбинированное отопление: тёплый пол + радиаторы Участок и инфраструктура Ландшафтный дизайн, плодовые деревья и кустарники 5 точек для полива, мощёные дорожки Баня из бруса с террасой, 2 гаража с автоматикой Мангальная зона, теплица, зона отдыха с качелями Локация Возвышенность, рядом лес и водоём Асфальтированный подъезд, дороги чистят зимой 5–10 минут пешком до школы и детского сада Просмотры по предварительной договорённости. Дом полностью готов к проживанию, идеально подходит для семьи, ценящей комфорт, приватность и стиль загородной жизни. ID объекта в нашей базе: 12542
    размещено: 24.04.2026 , обновлено: 22.05.2026
  • Дача - д. Курманка, ул. Финские Дачи, 13

    Екатеринбург,
    • 28 м2
    • 16 соток
    • 1 этаж
    • Состояние: идеальное
    2 750 000 ₽
    В продаже современный Домик⛺ и 16 соток земли! Расположение:- коттеджный пoceлок Финcкие дачи, раcпoлoжeнный в 40 км от Екатеринбурга по Tюмeнскому тракту,- территория закрыта шлагбаумом,- на территорий многие живут круглый год,- имеется детская площадка. Участок:- земельный участок ровный, прямоугольной формы,- 16 соток(два участка по 8) - электричество 220(все уже подключили и оплатили),- новая скважина(заведено все в дом),- сделан септик,- участок огорожен новым забором,- имеется бытовка,- расположение дома удачное есть место для парковки авто и для создания зоны отдыха. Дом: -площадью 28 кв. - гостиная, туалет, спальня, веранда. теплые полы. - имеется техника и мебель! хорошим людям готовы оставить все!))Инфраструктура:- до города можно добраться на электричке, - на автомобиле 30 минут до Екб,- дороги в зимнее время чистятся.Юридическая чистота:- без обременений, залогов, арестов,- продажа только на денежные средства(поселок под ипотеку не подходит) -Просмотр по договоренности с 21 апреля. ID объекта в нашей базе: 5766
    размещено: 17.04.2026 , обновлено: 22.05.2026

    Дом - п. Становая, ул. Станица, 7/7

    Екатеринбург,
    • 46.7 м2
    • 10 соток
    • 2 этажа
    • Состояние: идеальное
    4 050 000 ₽
    Продается дом-баня ДНТ "Станица" Участок правильной прямоугольной формы, есть своя скважина, септик.Дом пригоден для круглогодичного проживания, есть печь, электрические обогреватели ID объекта в нашей базе: 231
    размещено: 17.04.2026 , обновлено: 19.05.2026

    Коттедж - к.п. Клевер, ул. Лесная, 47

    Екатеринбург,
    • 231 м2
    • 13.5 соток
    • 2 этажа
    • Состояние: плохое
    7 900 000 ₽
    В срочной продаже элегантный особняк в КП «Клевер» — воплощение роскоши и комфорта Престижное предложение для взыскательных покупателей Расположение: коттеджный поселок «Клевер», всего 15 минут от Екатеринбурга по Челябинскому трактуОбщая площадь: 231,4 м² — пространство для роскошной жизниТерритория: 13,5 соток с премиальным ландшафтным дизайном Архитектура и дизайн Изысканная конструкция:двухэтажный особняк с панорамным остеклением высотой более 6 метров и эффектным вторым светом Безупречная надежность:стены из блока толщиной 400 мм с профессиональным утеплением и качественной отделкой Премиальные материалы: Немецкая кровля Docke Французская мембрана DuPont Терраса и забор из отборной лиственницы Эксклюзивная ультратонкая лестница Роскошь территории Главная резиденция:величественный особняк с продуманной планировкой, финальный этап чистовой отделки. Инженерные решения премиум-класса Энергообеспечение:мощность 30 кВт Автономные системы: Отопление – комбинированное: газовое и электрическое (газовый котел BAXI – 57 кВт, два электрокотла по 12 кВт) Теплые полы – на 1 этаже 10 контуров, на 2 этаже – 8 контуров Канализация – современная биосистема, не требующая очистки (глубина – 6 м, емкость – 15 м3) Вода – артезианская скважина (67 м), новый мощный насос Вспомогательные постройки: Представительский гостевой дом с бассейном (99,8 м²) Двухместный отапливаемый гараж (60 м²) Дизайнерская беседка для отдыха Ландшафтный шедевр: Искусственный ручей Декоративный пруд Благоустроенные газоны Цветники и кустарники Сохранившиеся вековые сосны Многоуровневая система безопасности Видеонаблюдение:15 камер по всей территории Соседство с престижными объектами: Гольф-клуб Pine Creek Resort Конноспортивный комплекс «Белая лошадь» Природный парк «Бажовские места» Инфраструктура:развитая сеть социальных объектов в селе Кашино Юридически чисто: Один взрослый собственник Более 5 лет в собственности Ипотека — возможна Чистая продажа Дом будет продан по цене наилучшего предложения! Звоните! Запишитесь на просмотр заранее! Ваш дом ждёт вас! ID объекта в нашей базе: 15105
    размещено: 13.04.2026 , обновлено: 22.05.2026

    Дом - ул. Кольцевая, 26

    Екатеринбург,
    • 113.4 м2
    • 10.96 соток
    • 2 этажа
    • Состояние: идеальное
    11 700 000 ₽
    РЕАЛЬНОМУ Покупателю ТОРГ! Звони!Прoдаётcя пpоcтоpный двухэтажный Дом жилой площадью 72 кв.м. и три террасы площадью 16, 13, 13 кв.м., со всей МЕБЕЛЬЮ, ТЕХНИКОЙ и ДЕКОРОМ!Кадастровый номер дома: 66:06:4501021:14033, кадастровый номер участка: 66:06:4501021:2880. Дом 2024 года постройки. ДОМ ПОД ТАПОЧКИ! Вашему вниманию предлагается уникальный проект со всем наполнением по весьма интересной ЦЕНЕ! Что вы получаете при покупке нашего проекта: Укомплектованный двухэтажный ДОМ под ТАПОЧКИ жилой площадью 72 кв.м. и тремя террасами площадью 16, 13, 13 кв.м. УЧАСТОК 10 соток с забором, автоматическими воротами, ландшафтным дизайном, с ЕЛОЧКАМИ на участке. СКВАЖИНА 55 метров. Выгребная ЯМА из 3-х бетонных колец – 4 куба. Дизайнерская панорамная БАНЯ. ЧАН с подсветкой на 6 человек. АРТ-декор в виде круга с мягкой зоной. А главный ПЛЮС – ВАШ ДОМ находится в ЛЕСУ, в тишине и уединении, в дали от городской СУЕТЫ! А сейчас более подробно по конструктиву ДОМА: Несущие КОНСТРУКЦИИ ДОМА выполнены ПО КАРКАСНОЙ ТЕХНОЛОГИИ: Силовой каркас стен и пола выполнен из сухой строганой доски камерной сушки сечением 145 x 45мм, перегородки - 95 x 45мм. Утепление стен и пола выполнено из утеплителя Knauf 150мм. Стропильная система выполнена из сухой строганой доски камерной сушки сечением 145 x 45мм. Утепление кровли Knauf 150мм. При изготовлении стен, пола и потолка модулей используется ветрозащита Knauf AX и пароизоляция Технониколь Альфа Барьер, а также для гидроизоляции кровли используется Стеклоизол Бикрост. Панорамные Окна пятикамерный профиль 70 мм, графитовая ламинация цвет RAL 7024, окна и двери Proplex Litex –первоклассное европейское качество! Трехкамерные стеклопакеты толщиной 32 мм. Что позволяет минимизировать потери тепла в зимний период, а летом расходы на кондиционирование. Окна обладают превосходной шумоизоляцией, а также дополнительной ветрозащитой. Планировка ДОМА и наполнение: ✅ 2 изoлирoвaнные cпaльни по 12 кв.м., проcтopнaя кухня – гостиная 38 кв.м., сaнузел, клaдовaя + три террасы с выходами из спален и кухни-гостиной, на втором этаже комната 10 кв.м. ✅ В ДОМЕ сделан Дизайнерский ремонт: пол - широкоформатный глянцевый керамогранит, стены - окрашены с интерьерными вставками, потолок – натяжной с подсветкой, сан узел – керамогранит. ✅ Теплый пол по всему дому, WIFI РЕГУЛЯТОРЫ ТЕПЛОГО ПОЛА. ✅ МИНИ АЛИСА. ✅ Все, что вы видите на фото остается в ПОДАРОК новому собственнику. А именно: мебель, техника, уличная мебель, декор, многоуровневое освещение, умная колонка Алиса. ✅ Коммунальные платежи зима 12 000 р, лето 6 000 р ✅ Один взрослый собственник, без обременений и Арестов, мат кап не использовался, чистая продажа, быстрый выход НА СДЕЛКУ! Быстрая передача ключей!Звоните, записывайтесь на ПРОСМОТР! ID объекта в нашей базе: 5702
    размещено: 08.04.2026 , обновлено: 20.05.2026

    Дом - СНТ Визовец-5, тракт. Чусовской, 15/1

    Екатеринбург,
    • 305.5 м2
    • 8 соток
    • 3 этажа
    • Состояние: хорошее
    24 000 000 ₽
    Продается дом у леса с коммуникациями под ключ! 15 км Чусовского тракта 10 мин до ТЦ Мега, 30 мин до центра города Остановка (городской + школьный автобус) — 20 метров Участок — редкость ✅ Частная собственность, не СНТ✅ 8 соток на возвышенности, прочный грунт, отдельный въезд✅ Прилегает к лесу и дороге — удобно и живописно Коммуникации — всё работает ⚡ Два независимых источника по 15 кВт (новые трансформаторы)???? Скважина???? Септик (3 кольца, без откачки)???? Электроотопление — до 7000 руб. в самые холодные месяцы???? При желании можно подвести газ Дом 305,5 м² ???? Газоблок + ж/б перекрытия1 этаж: прихожая, санузел с душевой, кухня-гостиная-столовая с панорамными окнами на участок, гостевая комната2 этаж: две спальни, кабинет, гардеробная, санузелЦоколь: хозпомещения + гараж???? Крытая терраса + баня ✅ Вся мебель остаётся Что рядом ???? Лес для грибов, квадроциклов, снегоходов, охоты???? Чусовское озеро — рыбалка и купание Для кого ???? Для семьи, которая хочет свой дом без стройки???? Для коммерческого использования???? Можно построить второй дом???? Возможен обмен на квартиру с доплатой Быстрый выход на сделку.Чистая собственность, без обременений.Продажа из-за переезда. ???? Звоните, записывайтесь на просмотр! ID объекта в нашей базе: 12471
    размещено: 07.04.2026 , обновлено: 21.05.2026

    Дом - с. Большебрусянское, ул. Красных Партизан, 2

    Екатеринбург,
    • 84.6 м2
    • 15 соток
    • 1 этаж
    • Состояние: идеальное
    7 990 000 ₽
    Предлагаем вашему вниманию настоящий загородный дом в деревне Большие Брусяны.Дом стоит на возвышенности и с участка открывается замечательный вид на купола Вознесенского Храма.Благодаря ландшафтным особенностям , можно сделать эксклюзивный дизайн участка.Поселок газифицирован, газ заведен в дом, установлен газовый котел.Дом одноэтажный.Площадь дома 84,6 кв.м. Жилая площадь дома состаляет 76,2 кв.мУдобная плaнировка: на пеpвoм этaжe приxoжaя, кухня, уютная столовая,cанузeл и котeльнaя, две cпальныe кoмнaты и зал-гостиная.Мaтeриал cтeн - брус, облицован кирпичем.Фундaмeнт заливнойПол - дощатый, фанера, ламинат. Полы в прихожей и санузле - керамогранит, теплые полы с водяной разводкой.Окна - двухкамерные стеклопакеты в ПВХ переплетахКрышa - профнастил оцинкованный, толщиной 0,7ммСкважина - 70 мСептикОтопление - газовый котелВходная дверь - металлическая сейф-дверьТакже в доме выложена печь из красного кирпича, печь действующая, можно топить и послушать треск дровишек.Рядoм школa, бoльницa, aдминиcтpация, мaгазины. для любителeй рыбaлки p. Бруcянкa.Парковочное место на 3 автомобиля.Участок удобрен, разработан, ухожен.На участке:Небольшой красивый сад, яблони , много посажено клубники, сорт "Виктория". Хорошая большая теплица .Есть бревенчатая русская банька.Шаговая доступность магазинов.Пятерочка, Монетка, КБ. Аптека, автобусная остановка до города.Покажем в удобное по согласованию время. Помогу с оформлением ипотеки. ID объекта в нашей базе: 9983
    размещено: 07.04.2026 , обновлено: 18.05.2026

    Коттедж - ул. Кольцевая, 16

    Екатеринбург,
    • 98 м2
    • 10.55 соток
    • 2 этажа
    • Состояние: идеальное
    9 300 000 ₽
    РЕАЛЬНОМУ Покупателю ТОРГ! Звони!Прoдаётcя пpоcтоpный двухэтажный Дом жилой площадью 98 кв.м. и террасой площадью 8,62 кв.м. (8м*12м) со всей МЕБЕЛЬЮ, ТЕХНИКОЙ и ДЕКОРОМ! ДОМ ПОД ТАПОЧКИ! Кадастровый номер дома: 66:06:4501021:12812, кадастровый номер участка: 66:06:4501021:2869. Дом 2023 года постройки. Вашему вниманию предлагается уникальный проект со всем наполнением по весьма интересной ЦЕНЕ! Что вы получаете при покупке нашего проекта: Укомплектованный двухэтажный ДОМ под ТАПОЧКИ жилой площадью 98 кв.м. и крытой террасой 8,62 кв.м. УЧАСТОК 10 соток с забором, автоматическими воротами, ландшафтным дизайном, с ЕЛОЧКАМИ на участке. СКВАЖИНА 55 метров. Выгребная ЯМА из 3-х бетонных колец – 4 куба. Дизайнерская панорамная БАНЯ. ЧАН с подсветкой на 6 человек. БЕСЕДКА 24 кв.м. с подсветкой с мангальной и обеденной зоной. КАЧЕЛИ из массива. Детская игровая ПЛОЩАДКА с горками и качелью. АРТ-декор в виде круга с мягкой зоной. Хозяйственный БЛОК. ДРОВЕННИК А главный ПЛЮС – ВАШ ДОМ находится в ЛЕСУ, в тишине и уединении, в дали от городской СУЕТЫ! А сейчас более подробно по конструктиву ДОМА: Несущие КОНСТРУКЦИИ ДОМА выполнены ПО КАРКАСНОЙ ТЕХНОЛОГИИ: Силовой каркас стен и пола выполнен из сухой строганой доски камерной сушки сечением 145 x 45мм, перегородки - 95 x 45мм. Утепление стен и пола выполнено из утеплителя Knauf 150мм. Стропильная система выполнена из сухой строганой доски камерной сушки сечением 145 x 45мм. Утепление кровли Knauf 150мм. При изготовлении стен, пола и потолка модулей используется ветрозащита Knauf AX и пароизоляция Технониколь Альфа Барьер, а также для гидроизоляции кровли используется Стеклоизол Бикрост. Панорамные Окна пятикамерный профиль 70 мм, графитовая ламинация цвет RAL 7024, окна и двери Proplex Litex –первоклассное европейское качество! Трехкамерные стеклопакеты толщиной 32 мм. Что позволяет минимизировать потери тепла в зимний период, а летом расходы на кондиционирование. Окна обладают превосходной шумоизоляцией, а также дополнительной ветрозащитой. Планировка ДОМА и наполнение: ✅ 2 изoлирoвaнные cпaльни по 25 кв.м., проcтopнaя кухня – гостиная 31 кв.м., сaнузел, клaдовaя + крытая терраса 8,62 кв.м., на втором этаже пространная комната 30 кв.м. ✅ В ДОМЕ сделан качественный ремонт: пол - широкоформатный глянцевый керамогранит, стены - окрашены с интерьерными вставками, потолок – натяжной и с облицовочной вагонкой, сан узел – керамогранит. ✅ Теплый пол по всему дому, WIFI РЕГУЛЯТОРЫ ТЕПЛОГО ПОЛА. ✅ МИНИ АЛИСА. ✅ Все, что вы видите на фото остается в ПОДАРОК новому собственнику. А именно: мебель, техника, уличная мебель, декор, многоуровневое освещение, умная колонка Алиса. ✅ Коммунальные платежи зима 12 000 р, лето 6 000 р✅ Один взрослый собственник, без обременений и Арестов, мат кап не использовался, чистая продажа, быстрый выход НА СДЕЛКУ! Быстрая передача ключей! Звоните, записывайтесь на ПРОСМОТР! ID объекта в нашей базе: 5675
    размещено: 07.04.2026 , обновлено: 21.05.2026

    Коттедж - к.п. Новое созвездие, д.

    Екатеринбург,
    • 102 м2
    • 10.4 соток
    • 1 этаж
    • Состояние: удовлетворительное
    10 700 000 ₽
    Это не готовый дом, а проект для строительства от строительной компании "Метражи" для к.п. «Новое Созвездие» (Октябрьский район города Екатеринбурга). Район пересечения Тюменского тракта с ЕКАД. Предлагаю к постройке новый современный 1 -этажный дом по проекту "Саяны"! Проект ???? "Саяны" родился вдохновленный суровой и прекрасной природой Саянских хребтов. Этот дом, площадью. 102 кв. м. создан для тех, кто ценит подлинную силу, надёжность и свободу. Он стоит на земле так же прочно, как и древние скалы, а его душа устремлена в небо, как горны пики. Роскошная гостиная, мастер спальня и две детские комнаты будут комфортным пространством для каждого члена семьи. Конструктив дома: ✅ Общая площадь: 102 м2 ✅ Количество этажей: 1 ✅ Количество комнат: Кухня-гостиная и 3 спальни ✅ Количество санузлов: 2 ✅ Фундамент свайно-ростверковый ✅ Материал стен: газобетонный блок, с утеплением минеральной ватой 100мм. ✅ Крыша: двускатная, сделана с утеплением 200мм закрыта металлочерепицей. ✅ Обогрев дома по проекту: электрокотел. ✅ Водоснабжение: скважина 50 м ✅ Отделка фасадов и цоколя: декоративная штукатурка c элементами планкена. Земельный участок 10,4 сотки, в к. п. «Новое Созвездие». Кадастровый номер участка 66:41:0614066:671. Размер участка 30х35 метров, отсыпан и выравнен. Категория земли - земли населенных пунктов. Вид разрешённого использования — Cадoвoдствo (мoжно пpoписатьcя, гopод, ничeм нe oтличается от ИЖC). До центра Екатеринбурга 30 минут на автомобиле. Отсыпаны хорошие дороги, зимой дороги чистят от снега. Рядом с домом газораспределительная станция, есть возможность завести газ в дом. Недалеко лес для прогулок, сбора грибов и ягод. ID объекта в нашей базе: 3145
    размещено: 01.04.2026 , обновлено: 19.05.2026

    Коттедж - к.п. Заповедник, ул. Соболь,

    Екатеринбург,
    • 41 м2
    • 9 соток
    • 1 этаж
    • Состояние: идеальное
    9 700 000 ₽
    В продаже отличный дом с баней и купелью, в лучшей локации КП Заповедник, квартал «Соболь».«Соболь» это центральный квартал Коттеджного поселка «Заповедник» в 2-х минутах ходьбы от дома полноценный лес в котором множество грибов и ягод, через дорогу в 5-и минутах центральная большая детская площадка с воркаут зоной для взрослых, так же продуктовые магазины, ПВЗ, всё находиться в пешей доступности от дома. Весь КП находиться в окружении смешанного леса в основном елового, въезд на территорию строго через охранный пункт, по Всему периметру КП установлены камеры видеонаблюдения, вся территория облагорожена, тротуары и подсветка дорожек, по которым очень приятно прогуляться, как вдвоем так и с детьми и коляской. Дом построен из бруса, одна большая кухня-гостиная 32,6 кв.м и один с/у 8 кв.м, все что есть на фото остается новым хозяевам, вода в доме чистейшая, сдавали на экспертизу даже фильтра не нужно ставить, можно пить из под крана, баня и купель так же входят в стоимость. Все новое, ни разу не использованное, вы станете первыми жильцами дома. Участок ИЖС 9.5 сот., место достаточно что бы построить большой дом. Или использовать уже имеющийся дом в качестве дачи. Газ заведен на участок, электричество 15 кВт, заведено в дом, канализация септик. Дом полностью готов к проживанию, зимой очень теплый. Документы: Кадастровый номер участка: 66:25:2721002:474, дом зарегистрирован, возможна покупка в ипотеку. 1 взрослый собственник, обременений нет, быстрый выход на сделку. звоните договоримся о просмотре. ID объекта в нашей базе: 9913
    размещено: 27.03.2026 , обновлено: 22.05.2026

    Дом - п. Гагарский, ул. Западный,

    Екатеринбург,
    • 78 м2
    • 7 соток
    • 1 этаж
    • Состояние: хорошее
    2 380 000 ₽
    Продается новый дом с террасой под ключ. Ипотека возможна. Земля ИЖС. Со всеми коммуникациями и забором и воротами.1 этаж кухня -гостинная. и 1 комната. Многие соседи проживают круглосуточно. Забор с 4 -х сторон., автономная канализация, отопление электро, теплые полы. Свет,вода, уличное освещение. Приходите на просмотр. Ждем ВАс. ID объекта в нашей базе: 18598
    размещено: 24.03.2026 , обновлено: 20.05.2026

    Дом - г. Верхняя Салда, ул. Труда,

    Екатеринбург,
    • 110 м2
    • 6.5 соток
    • 2 этажа
    • Состояние: удовлетворительное
    4 900 000 ₽
    Продаётся дом 2-х этажный. В доме все коммуникации есть. Отделку на свой вкус сделать можно, есть возможность воплотить свои фантазии о загородной жизни. 2 скважины: одна для дома, вторая для бани. Участок 6,5 соток в СНТ Фантазия. Серовский тракт до Верхней Пышмы 15 минут. На участке есть постройки. Дом баня, жилой. Участок разработанный, есть теплица, насаждения, грядки. Рядом лес, грибные и ягодные места. Есть недалеко пруд. Приезжайте, покажем с удовольствием. Документы готовы. прописка в саду есть. ID объекта в нашей базе: 9812
    размещено: 11.03.2026 , обновлено: 3.05.2026

    Дом -

    Екатеринбург,
    • 197.3 м2
    • 6 соток
    • 2 этажа
    • Состояние: хорошее
    18 990 000 ₽
    ???? Дом у парка с газом и баней из липы. Представьте: вы выходите из дома, и через минуту уже гуляете по освещенной Тропе Здоровья в парке. При этом вы находитесь в центре города Березовский, но на тихой тупиковой улице, где нет шума и пыли. Ваш новый дом — это абсолютный private space для большой семьи. ???? УЧАСТОК МЕЧТЫ (6+ соток): Вся территория вымощена брусчаткой — ни грязи, ни луж. • Заезд без ключей: автоматические ворота (уличные и в гараж). • Сад для души: растет смородина, малина, вишня, черноплодка. • Свое хозяйство: теплица + парник для зелени. • Всё продумано: отдельная зона мангала, дровяник, сарай, навес для инвентаря. • По периметру — ландшафтная подсветка. Видео наблюдение. Красиво и безопасно вечером. ???? ДОМ И ГОСТЕВОЙ БЛОК: В доме сделан хороший ремонт и проведены все коммуникации. • Газ в доме и в летней кухне! • Отопление: надежный котел Bosch (20 кВт). Тепло и экономично. • Электричество: медный кабель + мощный стабилизатор (22,5 кВт) — хоть печь каменную ставь, хоть сварочный аппарат. • Вода: центральное водоснабжение (никаких хлопот со скважиной). Планировка внутри: • 1 этаж: Большая кухня-гостиная для семейных вечеров. • 2 этаж: Мастер-спальня (со своим санузлом и выходом на большую террасу) + детская комната. • Эксклюзив: Баня на дровах из липового сруба — это и здоровье, и традиция. ???????????????? ОТДЕЛЬНОЕ ПОМЕЩЕНИЕ ДЛЯ РОДИТЕЛЕЙ/ПОДРОСТКОВ: Жилая комната: • Своя кухня, веранда, отдельный вход и свой туалет. • Сделан теплый пол. • Сюда можно поселить пожилых родителей (все свое, но вы рядом) или взрослых детей — у них будет личное пространство. Почему это лучший вариант? Потому что здесь уже всё готово: газ, свет, вода, брусчатка, баня и отдельное жилье для родных. Приезжайте смотреть вживую! ???? Звоните сейчас, пока такой дом не забрали! ID объекта в нашей базе: 14233
    размещено: 03.03.2026 , обновлено: 21.05.2026

    Коттедж - ул. КП Проссвет, 1-я линия, 21

    Екатеринбург,
    • 89.3 м2
    • 10 соток
    • 1 этаж
    • Состояние: идеальное
    9 500 000 ₽
    Коттеджный поселок "Проссвет" с современными домовладениями в одном из лучших мест для спокойной загородной жизни. Популярное направление - отремонтированная автотрасса Тюменского тракта, рядом поселок Прохладный, жд.станция Глубокое, лесной массив, разнообразная инфраструктура. Одноэтажный каменный дом 2021 года постройки компактной, но очень комфортной площади с большой террасой-верандой. Хорошее жилое состояние, полностью благоустроенный: водоснабжение, эл.отопление, септик.. Остается кухонный гарнитур, остальное - по договоренности!Участок чуть больше 10 соток сухой, ровный, с многолетними насаждениями, ухоженный.В собственности более 5 лет. Чистая продажа. БЕЗ каких-либо обременений или залогов. Ипотека возможна! Документы проверены! Приглашаем на просмотры по предварительной договоренности. Более подробная информация по указанному телефону. #проссвет#новыйкоттедж#белоярский#прохладный ID объекта в нашей базе: 5392
    размещено: 28.02.2026 , обновлено: 22.05.2026

    Дом - ул. Победы, 4

    Екатеринбург,
    • 164 м2
    • 12.12 соток
    • 2 этажа
    • Состояние: идеальное
    18 500 000 ₽
    Данный объект представляет собой комплекс загородной недвижимости для круглогодичного проживания на участке 12,2 сотки в престижной и тихой локации д.Большое Седельниково. Основу составляет двухэтажный дом площадью 164 кв. м в чистовой отделке, готовый к немедленному заселению. Планировка включает шесть комнат, инженерные системы и дизайнерскую отделку, продуманных до мелочей. Участок благоустроен и ухожен, обеспечивая приватность и пространство для отдыха. Инфраструктуру дополняет отапливаемая баня из оцилиндрованного бревна с тремя функциональными отделениями, а также два отдельно стоящие отапливаемые гаражи, рассчитанные на размещение трёх автомобилей. Для комфортного времяпрепровождения предусмотрена летняя кухня с оборудованной зоной барбекю и подведёнными коммуникациями. Ключевым преимуществом является расположение Объекта в тупике улицы, что гарантирует минимальный трафик и повышенную тишину. Безопасность обеспечена системой круглосуточного видеонаблюдения и охраны. Объединяя функциональность, безопасность и полную готовность к проживанию, этот Объект предлагает редкий формат родового поместья с развитой инфраструктурой в непосредственной близости к Екатеринбургу. ID объекта в нашей базе: 13985
    размещено: 21.02.2026 , обновлено: 17.05.2026

    Дом - к.п. Ясная горка, д.

    Екатеринбург,
    • 98 м2
    • 10 соток
    • 1 этаж
    • Состояние: идеальное
    7 850 000 ₽
    ????Ваш идеальный дом в 30 минутах от Екатеринбурга: уютные 98 кв.м. с готовой отделкой! ???? Площадь: 98 кв.м., терраса 7 кв.м. под крышей.Участок: 10 соток (ДНП)Статус: Отделка под ключ ✨ Предлагаем вашему вниманию великолепный дом с современными удобствами! Идеальное место для комфортной жизни и отдыха. ???? Дом: - Фундамент: монолитная плита 320 мм., стены: газобетонный блок D400, утеплитель: базальтовая изоляция Изба 50 мм, крыша6 металлочерепица.???? Коммуникации:- Скважина — всегда чистая вода - Септик — надежная система отвода сточных вод - Бойлерная — для обеспечения горячей воды в любое время - Теплый пол по всему периметру дома. ???? Отделка под ключ:- Стены: виниловые обои,- Пол: керамогранит, - Потолки: натяжные матовые.Вы сможете сразу же заехать и наслаждаться жизнью без лишних хлопот! Этот дом станет отличным выбором для вашей семьи! Просторные комнаты, качественная отделка и современные технологии — все для вашего комфорта. Не упустите возможность стать счастливым обладателем этого прекрасного дома!Свяжитесь с нами уже сегодня и запланируйте просмотр!На территории посёлка ведётся строительство термального комплекса! Звоните и записывайтесь на просмотр!Ваш новый дом ждет вас! ????❤️ ID объекта в нашей базе: 5293
    размещено: 15.02.2026 , обновлено: 20.05.2026

    Дом - ул. Верхний, 2

    Екатеринбург,
    • 106.5 м2
    • 7.19 соток
    • 2 этажа
    • Состояние: идеальное
    10 499 999 ₽
    Просторный Дом площадью 106,5 кв. метров расположен на ухоженном участке правильной формы площадью 7,19 соток в зоне ИЖС. Участок полностью огорожен по периметру капитальным забором на бетонном фундаменте, что обеспечивает полную конфиденциальность и безопасность. Ключевым преимуществом Дома является значительный потенциал для увеличения жилой площади: возможность отделки второго этажа в 60 кв. метров с уже готовым панорамным остеклением. Конструктив дома отличается надёжностью и продуманностью:- межэтажное перекрытие выполнено из железобетонных плит;- увеличенная толщина стен в 400 мм обеспечивает высокую энергоэффективность и поддержание комфортного микроклимата круглый год;- внутреннее пространство формируют высокие потолки 3,1 метра, создающие ощущение простора и света, которое усиливается за счёт установленных ламинированных стеклопакетов в профиле REHAU, гарантирующих абсолютную шумоизоляцию и сохранение тепла. Дизайнерская отделка выполнена с вниманием к деталям и готова к проживанию. Наш дом представляет собой сочетание готового комфорта и перспективы для дальнейшего развития, являясь выгодным капиталовложением и идеальным решением для создания семейного гнезда. ID объекта в нашей базе: 13815
    размещено: 12.02.2026 , обновлено: 20.05.2026

Предложения о продаже таунхаусов в Екатеринбурге

  • Екатеринбург,
    • 115 м2
    • 2 этаж
    • Состояние: удовлетворительное
    6 640 000 ₽ (57700 ₽/м2)
    В продаже современный Таун-Хаус. с полным пакетом технической документаций!! Подходит под СЕМЕЙНУЮ ипотеку. Расположение:- с. Курганово. Участок:- земельный участок ровный, прямоугольной формы,- категория земли: Земли населенных пунктов,- кадастровый 66:59:0216001:5337,- электричество 220(все уже подключили и оплатили),- новая скважина(заведено все в дом),- сделан септик,- участок огорожен новым забором,- расположение дома удачное есть место для парковки авто и для создания зоны отдыха. Дом: -двух этажный таун площадью 115 кв. -большая кухня-гостиная 30м+3 спальни! 2 санузла, котельная рассчитанная под газ. Потолки 3м,второй свет. -дом с полной технической документацией ,что редкость в наше время,-выполнена пред чистовая отделка,Техническое описание дома можно обсудить при встрече. имеется фото всех работ!!!Инфраструктура:- до города можно добраться на автобусе, - на автомобиле 19 минут до Екб,- до центра(Гринвич допустим) на авто 40мин,- школы №142 в горном щите,- дороги в зимнее время чистятся, почти все живут круглогодично.Юридическая чистота:- без обременений, залогов, арестов,- возможна продажа по семейной ипотеке. Поможем с продажей вашей недвижимости и зафиксируем дом за вами! ID объекта в нашей базе: 5671
    размещено: 06.04.2026 , обновлено: 15.05.2026

Предложения о продаже земельных участков в Екатеринбурге

Внимание! Данная рубрика предназначена для лотов по жилой недвижимости. Коммерческая недвижимость здесь.

  • Участок в поселок городского типа Белоярский, ул. Свердлова, 9

    Екатеринбург,
    • 15 соток
    • Газ
    1 550 000 ₽
    Продаётся в пгт Белоярский участок 14,8 соток в живописном месте рядом с лесом и родником! На участке расположен недостроенный дом: фундамент, возведена коробка и установлена крыша( газоблоки, крыша профлист, 80 кв.м) — отличная основа для будущего уютного дома или дачи. Также есть баня 6*6, беседка для отдыха, теплица, бассейн, грядки, земля разработана, забор,проведен газ.Участок отлично подойдёт для спокойной загородной жизни, отдыха на природе или ведения хозяйства. Чистый воздух, тишина, рядом лес для прогулок и сбора грибов/ягод, недалеко природный родник с чистой водой.Отличный вариант для тех, кто хочет завершить дом под себя и наслаждаться природой вдали от городской суеты.Звоните/пишите — отвечу на все вопросы и организую просмотр! ID объекта в нашей базе: 18806
    размещено: 08.05.2026 , обновлено: 22.05.2026
  • Участок в ул. на восток от с. Горный Щит

    Екатеринбург,
    • 10 соток
    • Вода
    3 500 000 ₽
    В продаже участок правильной формы, отмежеван и установлены столбы, участок выровнен. Многие уже построились и живут постоянно. Установлено видеонаблюдение. На участке находится сарайка-бытовка, скважина глубиной 57 метров в рабочем состоянии. Электричество 15 Квт с электронным прибором снятия показаний, под застройку дома снят грунт в 1 метр и отсыпан под капитальную застройку, так же подготовлена площадка под баню 8х5, два въезда на участок полностью отсыпаны (первый заезд к дому, второй заезд сбоку к бане). Есть посадки (яблоня, черноплодка, смородина, малина, клубника). На главном входе вдоль забора посажены декоративные яблони розового и белого цвета. Планируется газификация поселка. Рядом продуктовые магазины, автосервисы, заправки. Ходит рейсовый автобус. ID объекта в нашей базе: 15556
    размещено: 05.05.2026 , обновлено: 21.05.2026
  • Участок в ул. Осиновая

    Екатеринбург,
    • 10 соток
    • Газ
    1 800 000 ₽
    Идеально ровный земельный участок под Ваш будущий дом!Участок по улице крайний - обеспечит вам больший комфорт и приватность территории. Здесь можно реализовать практически любой проект: современный дом с панорамными окнами, уютную баню, бассейн, игровую площадку, зону барбекю или красивый сад. ✅Площадь 1002 кв.м. РОВНЫЙ, просторный, правильной прямоугольной формы! Рядом лесной массив. ✅Земли ИЖС. Кадастровый номер 66:59:0216001:2931 ✅Полевской тракт, 10 мин до Горного Щита. ✅Электричество, а для тех кто построился возможно подключение газа. Успейте стать обладателем данного участка чтобы реализовать все свои мечты!!! Взрослый собственник, объект без обременений, ЗВОНИТЕ! ID объекта в нашей базе: 12524
    размещено: 17.04.2026 , обновлено: 21.05.2026
  • Участок в г. Арамиль, ул. Карла Либкнехта, 6

    Екатеринбург,
    • 10 соток
    3 899 999 ₽
    Вот и все, твои поиски закончились- у меня для тебя идеальный вариант для покупки!!!Продается участок ИЖС площадью 9,5 соток с размерами 24 метра в ширину и 40 метров в длину. Участок размежеван и имеет удобный подъезд по частному сервитуту. Земля на участке хорошего качества, сухая и плодородная, что делает его идеальным для строительства жилого дома и других необходимых построек. Правильная форма участка обеспечивает максимальную эффективность использования пространства. Отличное место для создания комфортного и уютного жилья в окружении природы. Удобный заезд, выезд, вся инфраструктура в шаговой доступности. Не упустите возможность приобрести этот привлекательный участок для строительства Вашего будущего дома! ID объекта в нашей базе: 12414
    размещено: 26.03.2026 , обновлено: 22.05.2026
  • Участок в к.п. Семейные традиции

    Екатеринбург,
    • 11 соток
    2 750 000 ₽
    Продам два участка правильной формы под строительство всего в 30 км по Новомосковскому тракту. Участки расположены в современном, динамично развивающемся коттеджном поселке площадью 22 гектара. Для развития поселка нанят грамотный Управляющий, что гарантирует быстрое наполнение поселка, благоустройство и рост стоимости Вашей земли с каждым годом. Электричество подведено; Удобные отсыпные дороги для проезда в любую погоду; Газификация в перспективе (до 2030 г.), что делает инвестиции в этот актив еще более привлекательными. В шаговой доступности — конно-спортивный клуб «ДЕРБИ». Охотничье хозяйство , где в естественной среде обитают косули и кабаны. В нескольких минутах — акватория питьевого Волчихинского водохранилища и база отдыха «Остров». База отдыха: «Хрустальная» с термальным комплексом СПА. Чистейшая вода, живописные берега и потрясающие закаты — вот Ваши будни. Успейте стать частью этого загородного сообщества ценителей природы! Участки по цене всего 285 000 руб./сотка. ???? Звоните, пока эти участки не разобрали! ID объекта в нашей базе: 13940
    размещено: 18.02.2026 , обновлено: 12.05.2026
  • Участок в с. Кашино, ул. ДПК Урожай

    Екатеринбург,
    • 7 соток
    750 000 ₽
    Продаётся участок в ДПК "Урожай"Кадастровый номер: 66:25:1416004:25 ID объекта в нашей базе: 1551
    размещено: 12.02.2026 , обновлено: 22.05.2026
  • Участок в к.п. Новое созвездие, ул. Сибирский тракт (дублёр), 75Б

    Екатеринбург,
    • 10 соток
    • Газ
    1 700 000 ₽
    Продам земельный участок 10,4 сотки, в к. п. «Новое Созвездие» (Октябрьский район города Екатеринбурга). Район пересечения Тюменского тракта с ЕКАД. Кадастровый номер участка 66:41:0614066:671. Размер участка 30х35 метров. Участок отсыпан и выравнен, зарегистрирован фундамент 6 х 6 метра в собственность. ГАЗ подведён к участку. Категория земли - земли населенных пунктов. Вид разрешённого использования — Cадoвoдствo (пpoписка, адрес, ничeм нe oтличается от ИЖC). Получен свежий ГПЗУ на участок. Документы готовы. Успевайте приобрести участок в черте города, престижном месте, для строительства дома вашей мечты! ID объекта в нашей базе: 3028
    размещено: 29.10.2025 , обновлено: 19.05.2026
  • Участок в к.п. Заповедник, ул. Иволга, 32

    Екатеринбург,
    • 11 соток
    • Вода
    • Газ
    6 000 000 ₽
    САМАЯ НИЗКАЯ ЦЕНА 600 Т.Р ЗА СОТКУ!!!! как два года назад. В элитном парке «Иволга», КП «Заповедник».У Виллы сейчас 810 тр за сотку., ОТЛИЧНАЯ ИНВЕСТИЦИЯ!Отличается от других парков приватностью и уютом, благодаря отдельному въезду на территорию и малому количеству участков. На территории поселка вековые сосны и еловый лес, птичьи трели, белочки. Для жителей «Иволги» есть ряд преимуществ: - Широкие асфальтированные дороги (6 метров). - Асфальтированные пешеходные тротуары внутри поселка. - Два въезда/выезда из поселка. - Безопасная детская площадка в шаговой доступности. - Свой выход в лес. - Светодиодное освещение. Здесь предусмотрены все необходимые сети: - Газопровод - проложен подземным способом. - Электрическая сеть - проложена подземным способом, увеличенная мощность 25 кВт на - участок. - Водопроводная сеть - проложена подземным способом. - Интернет - оптоволокно прокладывается подземным способом до границ каждого участка. На плане участок № 32, кадастровый номер: 66:25:2721002:4603 ИНФРАСТРУКТУРА: В поселке созданы все условия для активной, комфортной и здоровой жизни. Тропа здоровья, освещенные тротуары и аллеи, детские площадки. Поселок огорожен забором, имеет весь необходимый набор сетей. Строится спортивно-развлекательный комплекс. Организованы теннисный корт, футбольное поле, каток/роллердром, BMX трасса для велосипедов и самокатов. Два продуктовых магазина - Магнит и Пятерочка. Есть ресторан, кафе, кофейня. В Заповеднике есть свой контактный зоопарк с различными птицами и животными. Курсирует детский автобус до школы в п. Кашино. ЮРИДИЧЕСКАЯ ЧИСТОТА: - Участок без обременений, залогов, арестов. - Собственник один, совершеннолетний, не имеет исполнительных листов, банкротом не является, паспорт действительный. Всё проверено! ID объекта в нашей базе: 5278
    размещено: 13.03.2024 , обновлено: 22.05.2026
  • Участок в к.п. Зелёные Просторы

    Екатеринбург,
    • 6 соток
    700 000 ₽
    Продам земельный участок 6,0 соток в СНТ Зелёные Просторы, относится к Октябрьскому району Екатеринбурга.Кадастровый номер участка 66:41:0614022:1220. Заезд через Арамиль, или через Косулино. Размер участка 20х30 метров. Категория земли - земли населенных пунктов, вид разрешённого использования – под садоводство. В продаже больше десяти участков на нескольких улицах. Успевайте приобрести участок в черте города, престижном месте, для строительства дома вашей мечты! Документы готовы. ID объекта в нашей базе: 2875
    размещено: 20.03.2025 , обновлено: 22.05.2026
  • Участок в к.п. Зелёные Просторы

    Екатеринбург,
    • 7 соток
    800 000 ₽
    Продам земельный участок 6,9 соток в первой очереди посёлка Зелёные Просторы. Кадастровый номер участка 66:41:0614022:1492. Поселок относится к Октябрьскому району Екатеринбурга, в 15 км от Екатеринбурга. Заезд через Арамиль, или через Косулино.Есть выбор участков, на нескольких улицах.Категория земли - земли населенных пунктов, вид разрешённого использования – ведение садоводства. ID объекта в нашей базе: 2856
    размещено: 21.03.2025 , обновлено: 13.05.2026
  • Участок в пгт Верхнее Дуброво ул.Карла Маркса

    Екатеринбург,
    • 8 соток
    550 000 ₽
    В продаже земельный участок в черте поселка Верхнее Дуброво, рядом уже соседи активно начали строительство, несколько участков есть в продаже, а значит есть выбор! звоните и приезжайте на просмотр! Хороший торг!!! ID объекта в нашей базе: 8650
    размещено: 15.08.2025 , обновлено: 17.05.2026
  • Участок в д. Урмикеево, ул. Молодежная, 6

    Екатеринбург,
    • 16 соток
    470 000 ₽
    СРОЧНО!!! Продам земельный участок, чистый, ровный, без построек и без мусора, забором огорожен. Земли населенных пунктов, для ведения личного подсобного хозяйства. Земельный участок подходит под реализацию вашей заветной мечты, построить дом для жизни или дачи. Д. Урмикеево находится в 135 км. от Екатеринбурга и от города Михайловска в 7 км. Здесь вы можете насладиться богатой уральской природой, сходить в лес по ягоды, грибы, травы, все в шаговой доступности. Любители охоты, рыбалки также не будут скучать. Рядом протекает река Уфа. В деревне магазины, с богатым и свежим ассортиментом, школа, детский сад, ФАП, Дом культуры, библиотека, мечеть. И курсирует прямой рейсовый автобус Екатеринбург-д. Урмикеево. Население дружелюбные, всегда готовы поддержать и помочь друг другу. Приглашаем на просмотр, с удовольствием покажем вам и расскажем все. Возможна покупка в ипотеку, помогу с одобрением. Быстрый выход на сделку. Один взрослый собственник. Документы готовы. ID объекта в нашей базе: 17893
    размещено: 09.09.2025 , обновлено: 22.05.2026
  • Участок в к.п. Улесье, ул. Русская, 194

    Екатеринбург,
    • 10 соток
    • Эл.
    2 300 000 ₽
    Объект № 195240. Земельный участок недалеко от п. Горный Щит в центре КП Улесье. Участок правильной прямоугольной формы. По периметру установлены железные столбы для забора в глубину до 1 метра вкопаны, а где ворота релейные до 2 метров. На участок электричество заведено! Перед участком и на участке есть красивые ёлочки! Есть фундамент размером 4х9 готовился для гостевого домика. Забор по периметру с железными профилями в г -образной форме установлен соседями. Асфальтированная площадка на 4 машиноместа. Все, что видите на фото - вывозится, кроме блоков, щебня и 2 кучь чернозёма. Коттеджный посёлок активно строится, есть для детей оборудованная детская площадка! Газ в перспективе. Один взрослый собственник. Быстрый выход на сделку. Звоните.
    размещено: 31.10.2025 , обновлено: 22.05.2026
  • Участок в ДПК Созвездие Премиум

    Екатеринбург,
    • 9 соток
    1 100 000 ₽
    Продам земельный участок 9 соток, по ул. Чингиза Айтматова в к. п. «Созвездие Премиум» (Октябрьский район города Екатеринбурга). Район пересечения Тюменского тракта с ЕКАД. Кадастровый номер участка 66:41:0614066:1999, размер 23х40 метров, угловой.Категория земли - земли населенных пунктов. Получен свежий ГПЗУ на участок. В настоящий момент в поселке идет газификация. В поселке идет активная застройка. Граничит с лесом. ID объекта в нашей базе: 3030
    размещено: 30.10.2025 , обновлено: 10.05.2026
  • Участок в п. Большой Исток, ул. Парковая, 12

    Екатеринбург,
    • 13 соток
    500 000 ₽
    Продам участок в КП. Участок находится по Тюменскому тракту 38 км от Екатеринбурга в Белоярском районе не далеко от Заречного п. Гагарский. Рядом находится живописное Белоярское водохранилище, чистый воздух, грибные леса. Вокруг тишина и спокойствие. Вы получите кусочек своего леса, на котором можно возвести дом и выкупить землю за символическую сумму в собственность у администрации. На арендованной земле можно построить дом по подряду в ипотеку. Можно строить дом на данном участке по сельской ипотеке. По Документам переуступка прав аренды. Ждём вас на просмотр! Звоните я вам всё расскажу подробней . ID объекта в нашей базе: 7435
    размещено: 16.11.2024 , обновлено: 22.05.2026
  • Участок в поселок городского типа Белоярский, ул. Свердлова

    Екатеринбург,
    • 15 соток
    320 000 ₽
    Земельный участок ИЖС 15 соток на выезде из поселка Белоярский по Тюменскому тракту. Возможна продажа в ипотеку без первоначального взноса, обмен на материнский капитал. Соседний участок 15 соток также есть возможность приобрести. Помощь в одобрении ипотеки лицам без гражданства РФ и с плохой кредитной историей. На участке возможно построить дом, есть возможность подведения воды и электричества. Просмотр в любое удобное время. Дополнительная информация по телефону ID объекта в нашей базе: 7173
    размещено: 21.10.2024 , обновлено: 16.05.2026

Предложения о продаже садов в Екатеринбурге

  • Дом с участком в СНТ Белый Яр

    Екатеринбург,
    • 7 соток
    • Дом 17 м2
    • 1 этаж
    • Состояние: хорошее
    800 000 ₽
    В 50 км от Екатеринбурга по Тюменскому тракту в пгт Белояский, СНТ Белый яр продается садовый участок с садовым домиком. Домик зарегистрирован как жилой (можно прописаться). Отличный подъезд к участку, стоянка на 3 автомобиля, ограждение по всему периметру, колодец, все насаждения. Можно строить капитальный дом.Соседи построились и живут. Один собственник, ограничений нет. ТОРГ возможен. ID объекта в нашей базе: 5629
    размещено: 22.05.2026 , обновлено: 23.05.2026
  • Садовый участок в СТ "Весна"

    Екатеринбург,
    • 6 соток
    1 490 000 ₽
    Предлагается к продаже садовый участок 6 соток в Садовом Товариществе Весна.Координаты для поиска/навигатора: 56.718101, 60.733424Участок правильной формы, в длину 30м, в ширину 20м, итого 600 кв.м. Из построек: две теплицы, и небольшой сарай для хранения хозинвентаря.Капитальных построек не было, т.к. близость к квартире, приезжали в течение дня. Участок не заброшен, в 2025 г., садили рассаду, теплицы целые. Есть колодец, глубиной 10 м, использовали для полива. Электричество в саду есть, трансформаторная, столбы и кабель новые, при необходимости только сделать заявку на подлючение.Локация - город Екатеринбург, Чкаловский район. Удобный вариант, как приезжать отдохнуть, так и жить круглогодично, половина соседей проживают постоянно. Зимой дороги чистят, ворота в сад закрыты, въезд по звонку, мусорные баки за территорией сада. Ближайшая автобусная остановка - Челябинский тракт, выход через соседние сады есть.Кадастровый номер участка - 66:41:0521024:121. Ежегодный членский взнос 6 000 руб. или 500 руб. в месяц, уплачен.Участок всегда был в одной семье, передавали от старшего поколения младшему.С удовольствием передадим в хорошие, заботливые руки! ID объекта в нашей базе: 801
    размещено: 21.05.2026 , обновлено: 22.05.2026
  • Дом с участком в СНТ Хустальный -7, СНТ Хустальный -7

    Екатеринбург,
    • 6.28 соток
    • Дом 81.9 м2
    • 2 этажа
    • Состояние: хорошее
    2 000 000 ₽
    Продаётся дом с собственным выходом в лес! 14 минут от Меги. ???? Возможно круглогодичное проживание, баня. Прописка Верх-Исетского района.СНТ ухоженное: зимой чистят снег, летом дороги гравием посыпают, круглогодичный вывоз ТБО.Два водоема на территории. Отличный вариант для тех, кто хочет жить на природе, но близко к городу.Остались вопросы звоните отвечу! ID объекта в нашей базе: 6152
    размещено: 19.05.2026 , обновлено: 23.05.2026
  • Дом с участком в с/т Исеть, уч. 42

    Екатеринбург,
    • 5 соток
    • Дом 52 м2
    • 2 этажа
    1 800 000 ₽
    Объект № 199335. Уникальная возможность воплотить свои мечты и сэкономить! В продаже недостроенный 2х этажный дом общей площадью 52 кв. м. с верандой 18 кв. м. . Со второго этажа открывается живописный вид на водоем. Что готово: Ленточный фундамент и коробка из бруса (150 мм) Крыша под черепицей + снегозадержатели и водостоки. Панорамные места под стеклопакеты (они входят в подарок). Подарок покупателю остаются стройматериалы (утеплитель, доска на пол, стеклопакеты). Земельный участок правильной прямоугольной формы, площадь 4,5 сот, земли населенных пунктов. Объект расположен в СНТ Исеть недалеко от пос. Палкино.. Территория СНТ находится под видеонаблюдением, автоматические раздвижные ворота, дороги чистят регулярно, многие проживают круглогодично. Отличная транспортная доступность - 600 м до ЕКАД, 15 мин ходьбы до ж/д станции. Звоните и приезжайте на просмотр. Один взрослый собственник\. быстрый выход на сделку. ***Гарантийный сертификат «Защита собственности» по данному объекту в подарок***
    размещено: 19.05.2026 , обновлено: 22.05.2026
  • Дом с участком в снт. Луч-1, уч. 54

    Екатеринбург,
    • 5.99 соток
    • Дом 64 м2
    • 2 этажа
    • Состояние: хорошее
    2 600 000 ₽
    Дом в СНТ Луч-1. До остановки автобуса Новосвердловская ТЭЦ 450 метров (6 минут пешком). Площадь дома 64 кв.м. Площадь участка 6 соток. Отопление печное. Есть скважина. Банька. Металлический гараж. ID объекта в нашей базе: 3898
    размещено: 15.05.2026 , обновлено: 22.05.2026
  • Дом с участком в к/с Мечта, Свердловская область, Сысертский район, территория садоводческого некоммерческого товарищества "Мечта", участок №, 132

    Екатеринбург,
    • 8.95 соток
    • Дом 45.7 м2
    • 1 этаж
    • Состояние: хорошее
    5 500 000 ₽
    Дом paспoлoжeн нa учacтке 8,95 cоток в CНТ «Mечтa», площадь дома 45,7 м2, построен в 2018 году из пеноблока. Жилой дом для круглогодичного проживания. Своя скважина 30 метров. Вентиляционные отводы. В доме есть газовый баллон, есть погреб для хранения заготовок и картофеля. К дому подведён газ ,но не заведён в дом. Выгребная яма на 3 куба. В огороде ухоженные грядки, 2 теплицы на 6 и на 4 метра , плодоносящие деревья и кустарники. Вся необходимая инфраструктура рядом – магазины, школы, детский сад, остановки общественного транспорта в шаговой доступности. Хороший отсыпанный подъезд к участку. К дому можно достроить второй этаж ,фундамент крепкий, по плану хотели в 2 этажа строить ,но пока так проживали. Есть дополнительно уличный туалет. Есть сарайчик 6*3 для инструментов и вагончик . Собственник один, совершеннолетний, без обременений, без детских долей. Торг за быстрый выход на сделку! Звоните в любое время! ID объекта в нашей базе: 15805
    размещено: 16.05.2026 , обновлено: 22.05.2026
  • Дом с участком в СНТ Дорожник

    Екатеринбург,
    • 6.7 соток
    • Дом 52.9 м2
    • 2 этажа
    • Состояние: удовлетворительное
    3 000 000 ₽
    Сад расположен в п. Большой Исток. До ближайшей остановки транспорта - 10 минут, спокойным шагом, по хорошей дороге.Рядом расположены магазины - Магнит, Магнит косметик, Пятерочка, Бристоль. Разрешенное использование з/уч. - "ведение садоводства", что позволяет строить жилые дома, прописываться и брать ипотеку. Участок размежеван, правильной формы, отсыпан плодородной землей. На участке высажены плодовые деревья. Две теплицы и баня, на фундаменте.Дом из бруса (150/150), первый этаж, можно использовать для круглогодичного проживания, печь - обогреет зимой. Второй этаж - мансарда.Без залогов, обременений. Один, взрослый собственник. ID объекта в нашей базе: 4018
    размещено: 15.05.2026 , обновлено: 22.05.2026
  • Дом с участком в снт Учитель, Свердловская область, г Екатеринбург, снт Учитель, уч, 12

    Екатеринбург,
    • 6.42 соток
    • Дом 90 м2
    • 2 этажа
    • Состояние: хорошее
    5 800 000 ₽
    Уютная дача у леса в черте Екатеринбурга — СНТ «Учитель», 5 минут пешком до ТЦ МЕГА Продаётся тёплая, душевная дача в уникальной локации — в черте города Екатеринбурга, рядом с лесом и всей городской инфраструктурой. Это редкий формат: вы живёте в окружении природы, тишины и зелени, но при этом до ТЦ МЕГА, остановок общественного транспорта, магазинов и городской жизни — всего около 5 минут пешком. Участок расположен у леса, есть выход к лесной зоне. Вокруг — природная заповедная территория, которая не подлежит вырубке. Это значит, что рядом с вами не появится плотная застройка, а атмосфера уединения, воздуха и природы сохранится. О доме Дом 2-этажный, деревянный, общей площадью 90 м², кадастровый номер дома: 66:41:0307076:153. В доме есть: — три комнаты;— кухня;— закрытая терраса;— баня;— ванная комната;— два санузла;— вода нагревается от ТЭНа;— уютная деревянная отделка внутри;— второй этаж - две спальни и балкон. Дом отлично подойдёт для летнего отдыха, семейных выходных, садоводства и комфортного проживания в сезон. Об участке Участок площадью 642 м², категория — земли населённых пунктов, разрешённое использование — садоводство. Кадастровый номер участка: 66:41:0307076:79. Территория ухоженная, зелёная, с хорошей посадочной базой и продуманной инфраструктурой для отдыха и сада. На участке: — две теплицы;— летняя система полива;— беседка на фундаменте;— качель;— дорожки по участку;— беседка и мангальная зона;— плодовые и декоративные растения. Посажены: вишня, малина, много виктории, земляника, крыжовник, смородина, жимолость, яблоня, сирень, пионы, гортензия, дикий виноград. Документы и сделка Один взрослый собственник. Возможна покупка в ипотеку. Кому подойдёт Эта дача — отличный вариант для тех, кто хочет: — иметь свой домик у леса, но не уезжать далеко от города;— проводить выходные на природе без долгой дороги;— выращивать ягоды, овощи, цветы и зелень;— отдыхать с детьми и семьёй;— купить участок с домом в перспективной городской локации рядом с МЕГОЙ. Загородная жизнь: лес, природа, тишина, сад, баня и, при этом рядом вся инфраструктура. Звоните, договоримся о просмотре дачи! ID объекта в нашей базе: 15754
    размещено: 13.05.2026 , обновлено: 21.05.2026
  • Дом с участком в садоводческое некоммерческое товарищество Северный, Режевский район , коллективный сад "Северный" уч., 178

    Екатеринбург,
    • 22 сотки
    • Дом 50 м2
    • 2 этажа
    • Состояние: хорошее
    2 600 000 ₽
    Продам дом нa учaстке 22 сoтки c бaней, беседкой и своим прудом. Чтo вaжно пpи выбоpe сада? Меcто pаcположения и соceди! Здecь вce cошлось! Коллективный сад «Северный». 54 км Рeжeвскoго тpaктa. Тpaкт не загpужен, прoбoк нeт, дopoгa от Екaтepинбурга займeт пpимepно 40 минут. Асфaльтирoвaнная дopога пости дo вoрот cада. B caду вce дopоги отcыпaны. Ворота автоматические (можно открывать с телефона). Cад под круглocутoчнoй оxpанoй. Coсeди пocтoянно проживaют, тoт вaриант, кoгда лучшe не бывает! Дом из бpуcа, сверху утеплён. Фундамент свайный. Большая веранда. Ha первoм этaже жилая кухня-гостиная, нa мaнcapднoм этаже спальня и зона для отдыха (или хранения вещей). Участок ровный, прямоугольной формы, ухожен, есть парковочное место. Огромным плюсом является свой выход в лес. Прямо с участка — собирайте грибы и ягоды в экологически чистом лесу. А также неограничен чистый воздух, пение птиц и тишина! Всего 5 минут пешком до остановки транспорта. До поселка Лосиный 10 минут. В поселке вся инфраструктура: магазины, аптеки, банки, поликлиника. На участке расположены: -Дом - баня - закрытая беседка с мангальной зоной - дровяник - помешенные для хранения вещей (можно использовать как мастерскую) - туалет -теплица -пруд -грядки -садовые деревья и кустарники, клумбы Коммуникации: скважина (вода) 40 метров. электричество отопление печное мобильная связь ловит интернет: Wi-Fi Объект без обременений, один совершеннолетний собственник. Сделка прозрачна и безопасна. Звоните, покажем в удобное для вас время. ID объекта в нашей базе: 15753
    размещено: 13.05.2026 , обновлено: 22.05.2026
  • Дом с участком в тер. СНТ. Энергия Администрации Верх-Исетского района, уч. 29

    Екатеринбург,
    • 5 соток
    • Дом 69.6 м2
    • 1 этаж
    • Состояние: удовлетворительное
    3 800 000 ₽
    Продается теплый и полностью готовый для круглогодичного проживания дом в СНТ (в черте Екатеринбурга). Удобная локация для тех, кто ценит скорость выезда на ЕКАД и тишину загородной жизни без отрыва от цивилизации. Основные характеристики:• Площадь дома: 69 кв. м + функциональная мансарда.• Участок: 5 соток (ровный, ухоженный).• Вода: Собственная скважина (никакой зависимости от сезонных отключений).• Баня: Находится прямо в доме (не нужно ходить по морозу в отдельное строение).• Инфраструктура и уход: Асфальтированные дороги, регулярная чистка снега зимой и вывоз мусора. В СНТ есть целых два пруда для отдыха.• Расположение: Быстрый и удобный выезд на ЕКАД. Вы добираетесь до любой точки города, минуя пробки. Почему здесь стоит жить:Главное преимущество — соседи. Вокруг живут люди на постоянной основе, это не заброшенные дачи.Тихое, безопасное и живое окружение, где поддерживают порядок круглый год. Вы заезжаете в готовый дом в сложившийся мини-поселок. ???? Звоните, договоримся о просмотре в удобное время! ID объекта в нашей базе: 6012
    размещено: 13.05.2026 , обновлено: 21.05.2026
  • Дом с участком в снт. Лесовод (кад.кв-л, уч. 0507016),7

    Екатеринбург,
    • 7 соток
    • Дом 50 м2
    • 2 этажа
    • Состояние: хорошее
    2 800 000 ₽
    Продам земельный участок с домом в С/Т Лесовод. Городская черта, есть отдельный выход к реке и водоему, категория земли - Земли населенных пунктов, вид разрешенного использования - садоводство. Участок разработан, есть 2 теплицы, баня, другие постройки. Из насаждений - яблони, вишни, облепиха, кустарники. Дом 2х этажный, деревянный, с печным отоплением. Есть общая скважина и летний водопровод. ID объекта в нашей базе: 25677
    размещено: 13.05.2026 , обновлено: 22.05.2026
  • Дом с участком в тер. СНТ. Жилищник-3

    Екатеринбург,
    • 7.3 соток
    • Дом 50 м2
    • 2 этажа
    • Состояние: хорошее
    2 000 000 ₽
    Продается садовый участок 7,3 сотки вместе с домом в черте города Екатеринбурга, СНТ Жилищник-3 (район Академический). Участок прямоугольной формы с выходом в лес. Земельный участок размежеван, с 2 сторон есть забор. Домик летний, 2 этажа, при желании можно утеплить. Имеется летний туалет. Электричество заведено в дом. Один взрослый собственник. обременений нет. Быстрый выход на сделку. Звоните! ID объекта в нашей базе: 15681
    размещено: 08.05.2026 , обновлено: 22.05.2026
  • Дом с участком в тер. СНТ. Хрустальный, снт. Горный щит (кад.кв-л, 0513007)

    Екатеринбург,
    • 6 соток
    • Дом 22.6 м2
    • 2 этажа
    • Состояние: хорошее
    1 300 000 ₽
    Отличный сад для жизни и отдыхаДом 98 м 2 две комнаты, кухня, летняя верандаБаняхозблокучасток отсыпан и выровнензабор по периметруПриезжайте на просмотрпомогу с оформлением ипотеки и юридическим сопровождением ID объекта в нашей базе: 5982
    размещено: 08.05.2026 , обновлено: 20.05.2026

    Дом с участком в СНТ Заречный, поселок Бобровский, СНТ Заречный дом, 39

    Екатеринбург,
    • 6.13 соток
    • Дом 91 м2
    • 2 этажа
    • Состояние: хорошее
    5 250 000 ₽
    Прoдaю дом 91кв.м, с изолированными 3 комнатами. Первый этаж - кухня, 1комната, коридор, веранда и сан. узел, на втором этаже две просторные комнаты. Дом находиться в СНТ Заречный Поселок Бобровский, Много коттеджей построены для круглогодичного проживания. В поcёлкe eсть вcё для кoмфoртной зaгoрoдной жизни зимой и летом, ; мaгазины, школы, садики, медпункты, чacтная шкoлa, церкви, все в пешей доступности. Красивые живописные места с рекой и лесом. Дом стоит на учете, внутренняя отделка чистовая, вода скважина, свет. Уч. располагается в ровной, возвышенной сухой местности, далеко от основной дороги. Один собственник, без долгов и обременении. Быстрый выход на сделку, ключи в день сделки. ID объекта в нашей базе: 5969
    размещено: 07.05.2026 , обновлено: 23.05.2026
  • Дом с участком в СНТ Дорожник

    Екатеринбург,
    • 791 сотка
    • Дом 40.9 м2
    • 2 этажа
    • Состояние: хорошее
    2 450 000 ₽
    Продам ухоженную дачу (8 соток) на берегу пруда при въезде в Б. Исток, для тех кто ценит тишину и комфорт. На участке 2-этажный дом из бруса, баня, плодоносящий сад (яблони, вишня, смородина, крыжовник, малина, клубника) и зона барбекю с просторной беседкой, две новые теплицы. Высокий забор скроет ваш отдых от посторонних глаз. Электричество круглый год, вода- скважина на участке, печное отопление, в ближайшее будущее проведут ГАЗ. Всего 15 минут езды от г. Екатеринбург. Документы готовы к сделке. ID объекта в нашей базе: 10168
    размещено: 07.05.2026 , обновлено: 20.05.2026
  • Дом с участком в тер. СНТ. Исеть, тер. СНТ. Исеть

    Екатеринбург,
    • 4 сотки
    • Дом 108 м2
    • 2 этажа
    • Состояние: идеальное
    5 500 000 ₽
    Продaм благоустроенный дом с ухоженным садом в чеpте города, в живописном месте, в окрестностях посёлка Палкино( не Палкинский торфяник), вода хорошая!В НП «Исеть».В шаговой доступности расположена станция «Палкино» (800м) и магазины. Идеально подходит как для большой семьи, так и для пары, любящей проводить время на природе, вдали от городского шума и пыли, без дополнительных вложений. На земельном участке 4 сотки, расположен 2-х этажный дом, общей площадью 108 м2. Баня, 2 теплицы.Проект включает в себя функциональные планировочные решения: на первом этаже расположена уютная кухня-гостиная, спальня, сан узел.На втором этаже расположены две спальни и просторная гостиная. Дом: фундамент ленточный*первый этаж: брус 150#150, утеплитель 50мм, сайдинг;*второй этаж: каркас по дереву; кровля металлочерепица.*Электроэнергия одна фаза, на столбе у дома есть три фазы, можно подключить.*Скважина верховая 17 м. Бойлер ГВС электрический.*Отопление: теплые электрические полы + печь-котел и батареи в спальных, система заполнена антифризом.*Канализация - выгребная яма, за 12 лет ни разу не переполнилась. Баня: фундамент ленточный, парилка брус 100#100, печь-сетка.В предбаннике печь-водонагреватель, душ, теплый электрический пол. Люк-лестница на чердак. На участке: две теплицы на фундаментах, садовый хоз. домик. Участок очень ухоженный и полностью разработан. Множество насаждений и плодовых деревьев.Так же есть разнообразные ягодные кустарники, все плодоносят!Сад огорожен забором с автоматическими воротами, отличное решение для людей ценящих приватность. Документы готовы, один взрослый собственник.Городская прописка ( Орджоникидзевского района), возможна покупка с использованием материнского капитала.Помощь в одобрении ипотеки.Звоните - с удовольствием покажем дом и ответим на все вопросы! о ID объекта в нашей базе: 5914
    размещено: 04.05.2026 , обновлено: 17.05.2026
  • Дом с участком в СТ Мечта

    Екатеринбург,
    • 6.2 соток
    • Дом 115 м2
    • 2 этажа
    • Состояние: удовлетворительное
    6 500 000 ₽
    Доброго времени суток.???? Предcтaвляем вашeму вниманию объект, состоящий из дома, бани, несколько хоз. построек, небольшие посадки на территорий и 6,2 соток земли. ПРОПИСКА ЕКАТЕРИНБУРГ. Расположение: в СНТ "Мечта", пос. Мичуринский (Академический район).очень хороший сад,-закрытая территория-дороги отсыпаны,-автоматические ворота,-новое электричество(столбы,провода) -дом находится в тупиковой улице(мало кто ездит)Участок: -6,2сотки,-Категория земель - земли населенных пунктов,-На участке имеется деревья, множество посадок, подсветка территорий.Дом:-Общая площадь 105м2,+терраса20м2- построен в 2015 году из газоблока с утеплителем из минеральной ваты; - фундамент железобетонная плита - крыша металлочерепица из толстого металла - есть все коммуникации для круглогодичного проживания (септик автономный, скважина, оптический интернет, система видеонаблюдения) - заведено электричество 380в- отопление 2 котла: электрический и твердотопливный - 5 каналов вентиляции - заложена труба под камин Планировка: 1 этаж: просторная кухня-гостиная 22,73 м², санузел 5,07 м², котельная 5,57 м², холл с выходом на закрытую терассу. На весь первый этаж положена плитка (теплый пол) 2 этаж: 2 спальни 12,3 и 10,6 м² с электрическим теплым полом (в одной из спален мансардное окно) + санузел(выведены все коммуникации); + свободное помещение Территория:- Имеется маленькая баня- Мангальная зона,- Парковочное место- Множество мест, где можно по истине насладиться тишиной и единоличным времяпрепровождением,- Скважина- Септик,- забор с 2 сторон.Инфраструктура:-До остановки мин 7-10 пешком.-Рядом есть школы и садики,-В 5 минутах вся инфраструктура широкой речки и Академа-Прекрасные соседи.Дополнительно:-Чистая продажа,-Объекты без обременений,-Быстрый выход на сделку.Важно: дом требует вложений по внешнему фасаду и внутренняя отделка сделана только 2 команатах, сан узле. В остальном это отличная альтернатива 2комнатной квартире в академе! ID объекта в нашей базе: 5909
    размещено: 04.05.2026 , обновлено: 21.05.2026
  • Садовый участок в СНТ Шахтер, 6-я линия, 285

    Екатеринбург,
    • 4.2 сотки
    • 2 этажа
    • Водоём
    2 995 000 ₽
    ПРОДАЕМ ОТЛИЧНЫЙ УЧАСТОК С ДОМОМ и Баней В СНТ «ШАХТЕР» в черте города Екатеринбурга! Земли населенных пунктов под садоводство, городская прописка!!! Сад в районе пересечения Челябинского тракта с ЕКАДом, отличная дорога до самого СНТ «Шахтер». На участке 4,19 сот. построен двухэтажный дом 107,4 кв. м. из кругляка с мансардным 2 этажом и утепленной крышей, стоит на бетонном фундаменте, также есть открытая веранда 20 кв. м. расположенная на залитой бетонной площадке, которую можно использовать как навес под машину. !!! Есть Отдельно стоящая баня из кругляка 3,7*5 м. Пробурена скважина, установлена сливная яма. Договор по подключению электричества заключен. На участке есть теплица. Звоните, покажем в удобное для Вас время. Поможем оформить ипотеку на его покупку. Кадастровый номер участка: 66:41:0521007:147.
    размещено: 10.03.2025 , обновлено: 21.05.2026
  • Садовый участок в коллективный сад № 39 Садовод, уч. 19

    Екатеринбург,
    • 8 соток
    • 2 этажа
    1 700 000 ₽
    Объект № 198909. Предлагаем к покупке просторный земельный участок правильной формы, площадью 8 соток в СНТ Садовод, к/с №39, район Уралмаш. 13 минут на автомобиле от остановки транспорта Коммунистическая. На участке имеется старенький домик, на месте которого можно возвести новый, современный дом. Есть баня, на втором этаже которой расположена мансарда, беседка, 2 теплицы из поликарбоната. На участке имеется много многолетних насаждений: яблони, груша, вишня, малина и другие. Дополнительные вопросы по телефону.
    размещено: 30.04.2026 , обновлено: 22.05.2026
  • Дом с участком в СТ Мечта ОДКБ-1

    Екатеринбург,
    • 10 соток
    • Дом 45 м2
    • 1 этаж
    4 000 000 ₽
    Объект № 199005. Пpoдам дом-баню на участке 10 соток в СНТ «Мечта» Категория : земли населенных пунктов, ВРИ – Садоводство. Дом расположен рядом с пeрeсечeниeм Чусoвскoго тpакта c EКАДoм, в экологическом чистом месте, окруженным сосновым лесом в Верх-Исетском районе г. Екатеринбурга. Дом новый из бруса, одноэтажный 2024 г. постpoйки, pазмером: 9м на 7,5 м., электричество заведено в дом 15Квт. 380 V.Фундамент ленточный по всему периметру. Стеклопакет-пластик. Участок ровный, частично разработан. На второй половине участка растут березы. Дорога до сада частично асфальт, частично отсыпная, близлежащая остановка общественного транспорта на ЕКАДе примерно в 10 минутах ходьбы. Также недалеко расположен ТЦ «Мега». Зимой внутренние дороги чистятся. Есть возможность выкупить соседний участок 10 соток. Звоните, договоримся.
    размещено: 29.04.2026 , обновлено: 22.05.2026

Приоритет

Увеличивает просмотры в 3 раза

Ваше объявление показывается в списке выше обычных объявлений. подключить