Дом - д. Ключи (г.о. Сысертский), ул. Дальняя, 50
городской округ Сысертский
(Челябинское направление)
Центр Екатеринбурга → 57 км
Центр Екатеринбурга → 57 км
Объект №446.
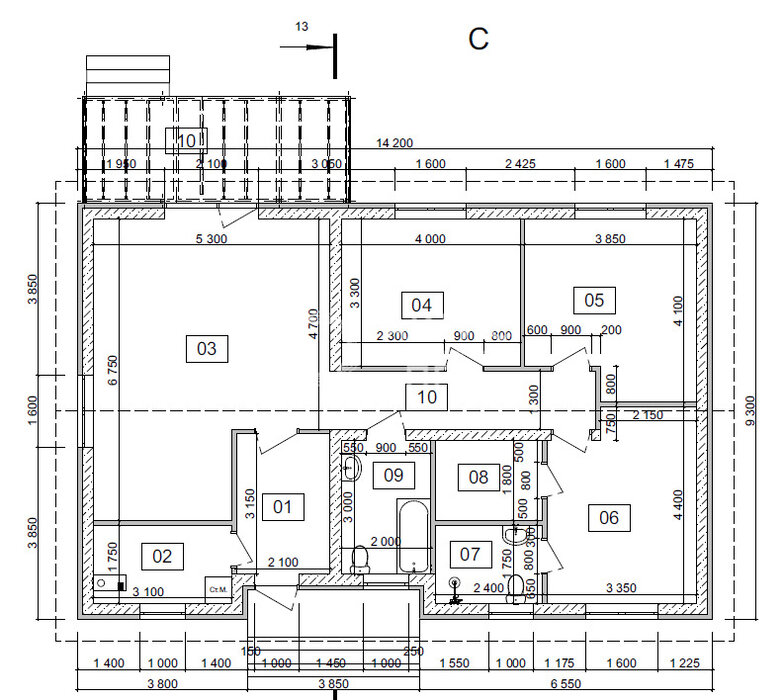
Продается напрямую от застройщика прекрасный дом 131,7 квадрата, для круглогодичного проживания, с чистовой отделкой (с ремонтом) с высокими потолками во всем доме, просторный и светлый. В доме:- прихожая- просторная кухня-гостинная с выходом на террасу- две спальни- мастер спальня с собственным гардеробом и санузлом- котельная- общий санузел- терраса Дом находится в д. Ключи 35 км. от Екатеринбурга, на земельном участке в 7,63 сотки, в окружении соснового леса. В самой деревне есть продуктовый магазин, шиномонтаж, пункт выдачи Озон, магазин Пятерочка. Ходят рейсовые и школьные автобусы, рядом г. Двуреченск.Дом можно приобрести по любой ипотечной программе.Звоните, ответим на все вопросы, подберем удобное для просмотра время, поможем с ипотекой.
размещено: 17.04.2026
















