Продажа квартиры: Екатеринбург, ул. Юмашева, 11 (ВИЗ)
- опубликовано 31.05.2017 , обновлено 20.10.2025
- 604
| Рынок: | вторичный |
| Количество комнат: | 3 |
| Из них изолированных: | 3 |
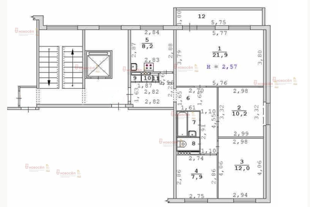
| Общая площадь: | 104 м2 |
| Жилая площадь: | 77 м2 |
| Площадь кухни: | 0.00 м2 |
| Этаж/Этажность дома: | 15 / 25 |
| Санузел: | несколько |
| Отделка: | под "чистовую" |
| Год постройки: | 2008 |
| Перепланировка: | нет |
| Балкон/лоджия: | 2 лоджии |
| Состояние: | удовлетворительное |
| Цена: | 10 000 000 ₽
|
Объявление снято с публикации | |
| Торг: | возможен |
| Условия продажи: | «чистая» продажа |
| Ипотека: | возможна |
Предлагается к продаже шикарная 3х комнатная квартира в доме бизнес-класса «Адмиральский» (1 очередь) c отличной планировкой!
Все комнаты просторные прямоугольной правильной формы, большая кухня- гостиная 34,5 кв. м. Квартира очень тихая: ремонты в квартирах больше не выдуться. На площадке всего три квартиры.
Квартира готова к чистовой отделке. Лоджии утеплены и заменены окна.
ЖК имеет отличную локацию.
Новый дом бизнес-класса расположен в тихом центре Екатеринбурга на берегу реки Исеть в нескольких кварталах от исторического и культурного центра города.
Жилой комплекс «Адмиральский» — это живое архитектурное решение, соединившее в себе новизну современных технологий и монументальность классики. Расположившись в нескольких минутах езды от центра города, комплекс остается скрытым от оживленных транспортных развязок.
В распоряжении жителей комплекса — уют и спокойствие благоустроенной набережной, зелень и свежий воздух Парка Дворца Молодежи, а также все возможности развитой инфраструктуры центральной части города.
На верхних этажах «Адмиральского» находятся просторные апартаменты, специально для ценителей роскошной панорамы, видов на исторический центр Екатеринбурга, Плотинку, набережную реки Исеть, театры и скверы.
Образцовая инфраструктура — это визитная карточка жилого комплекса «Адмиральский». Здесь предусмотрено все для комфортной жизни: большой собственный двор с детским городком и спортивными площадками, декоративные фонари, аккуратные газоны и цветочные клумбы, мощеные тротуары вдоль набережной Исети.
Инфраструктура комплекса соответствует требованиям жилья «Бизнес — класса»: банк, продуктовый супермаркет «Елисей», первый в городе испанский ресторан «Эль густо», Стоматологическая клиника, один из лучших в городе Фитнес-центр с бассейном, Центр Йоги, салон красоты, частный детский сад.
Важная составляющая комфорта — это трехуровневый подземный паркинг на 720 мест, из которого можно подняться к квартире на скоростном лифте. Помимо этого к услугам жителей комплекса Автомойка, и шинный отель.
Неотъемлемой составляющей настоящего дома бизнес-класса является высокий уровень безопасности и комфорта.
На всей территории жилого комплекса «Адмиральский», в том числе благоустроенной набережной, организована круглосуточная охрана, в доме создана служба консьержа, вход на территорию комплекса осуществляется через калитки, оснащенные системой допуска или центральный гостевой холл.
