На Метре реклама - только нормальная. Никакого шок-контента.
Помогайте независимому ресурсу, как он помогает вам. Удачи!
Новостройки Котт. посёлки Объявления Динамика цен и сделок

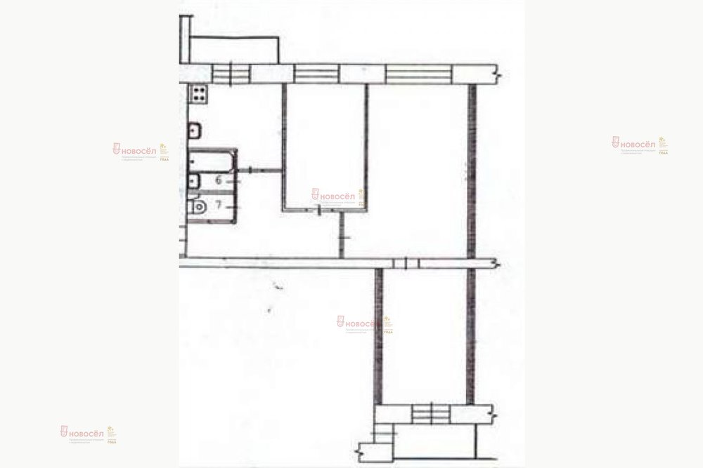
Продажа квартиры: Екатеринбург, ул. Индустрии, 29 (Уралмаш)

  • опубликовано 3.04.2019 , обновлено 21.10.2025
  • 385
Рынок:вторичный
Срок сдачи: 1977 года
Количество комнат:3
Из них изолированных:1
Общая площадь:60 м2
Жилая площадь:41 м2
Площадь кухни:7 м2
Этаж/Этажность дома:7 / 9
Санузел:раздельный
Отделка:евроремонт
Год постройки:1977
Состояние:хорошее
Цена:
3 800 000
Объявление снято с публикации
Условия продажи:«чистая» продажа
Ипотека:возможна

Объект № 107206. Предлагаю к продаже уютную, светлую, просторную квартиру на седьмом этаже. Окна выходят на разные стороны дома.
В квартире частично заменены стеклопакеты, радиаторы. Два балкона на разные стороны дома, застеклены. Установлены приборы учета воды. В 2017 году произведена замена стояков ГВС, ХВС и канализации во всем доме. С момента строительства дома, квартирой владеет одна семья, два взрослых собственника.
Недалеко располагаются несколько детских садов №155, 135, 129, 40, 228, 514, 422, 235, 213, 522, 3, общеобразовательные школы, гимназия 144, школа №68 с углубленным изучением отдельных предметов. В шаговой доступности остановки общественного транспорта - трамваи, троллейбусы, автобуса. Недалеко располагаются Парк Победы и Летний парк Уралмаш. ***Гарантийный сертификат «Защита собственности» по данному объекту в подарок***

Объявление снято с публикации

Ипотечный калькулятор

лет
%
Сумма кредита
3800000 ₽
Платеж
22 540 ₽

История предложений в этом доме

объявление снято с публикации в продаже комнат площадь этаж цена,
Екатеринбург, ул. Индустрии, 29 (Уралмаш) - фото квартиры 5 июня 2025 90 дн. 2 44.8 9/9 4 190 000
Екатеринбург, ул. Индустрии, 29 (Уралмаш) - фото квартиры 11 сентября 2024 90 дн. 3 61.3 2/9 4 900 000
Екатеринбург, ул. Индустрии, 29 (Уралмаш) - фото квартиры 20 января 2024 90 дн. 3 60 5/9 5 790 000
Екатеринбург, ул. Индустрии, 29 (Уралмаш) - фото квартиры 12 октября 2023 90 дн. 2 46 9/9 4 700 000
Екатеринбург, ул. Индустрии, 29 (Уралмаш) - фото квартиры 7 сентября 2023 90 дн. 1 33 6/9 3 900 000
Екатеринбург, ул. Индустрии, 29 (Уралмаш) - фото квартиры 10 января 2024 90 дн. 3 60 8/9 4 950 000
Екатеринбург, ул. Индустрии, 29 (Уралмаш) - фото квартиры 25 мая 2022 90 дн. 2 60 1/9 4 570 000
Екатеринбург, ул. Индустрии, 29 (Уралмаш) - фото квартиры 16 марта 2022 90 дн. 2 47 7/9 3 520 000
Екатеринбург, ул. Индустрии, 29 (Уралмаш) - фото квартиры 23 ноября 2021 90 дн. 3 61 4/9 4 000 000
Екатеринбург, ул. Индустрии, 29 (Уралмаш) - фото квартиры 29 сентября 2020 90 дн. 3 60 9/9 4 100 000
Екатеринбург, ул. Индустрии, 29 (Уралмаш) - фото квартиры 24 ноября 2020 90 дн. 2 45 8/9 3 100 000
5 декабря 2016 91 дн. 3 64 3/9 3 350 000

Похожие предложения о продаже квартир в Екатеринбурге (Уралмаш)

  • 3-к квартира, Новаторов, 9

    • 52 м2
    • 5/5 этаж
    • Состояние: хорошее
    4 590 000 ₽ (88300 ₽/м2)
    Объект № 195090. Продаётся просторная 3-комнатная квартира на Уралмаше. Идеальное сочетание уюта, комфорта и выгодной локации! Ваш новый дом — это место, где хочется жить. Простор и свет: удобная планировка, окна на разные стороны. Очень светло, чисто и уютно. Атмосфера спокойствия: тихий дом и спокойные соседи. Идеальный микроклимат: отличная вентиляция и остеклённый балкон для вашего комфорта в любое время года. Вся инфраструктура под рукой: развитая сеть магазинов, школ, поликлиник и кафе в шаговой доступности. Всего 10-15 минут неспешной ходьбы до метро. Чистая продажа! Один взрослый собственник. Не упустите шанс купить не просто квартиру, а дом с прекрасной атмосферой! ***Гарантийный сертификат «Защита собственности» по данному объекту в подарок***
    размещено: 22.10.2025 , обновлено: 30.11.2025
  • 3-к квартира, Коммунистическая, 6

    • 53.6 м2
    • 1/5 этаж
    • Состояние: плохое
    4 150 000 ₽ (77400 ₽/м2)
    Дом блочный, окна на две стороны, широкие подоконники Квартира теплая, но требует капитального ремонта. В шаговой доступности метро, остановки общественного транспорта, магазины, школы и детские сады. ID объекта в нашей базе: 6646
    размещено: 21.10.2025 , обновлено: 12.12.2025
  • 3-к квартира, Калинина, 11

    • 58.4 м2
    • 1/5 этаж
    • Состояние: плохое
    4 100 000 ₽ (70200 ₽/м2)
    В продаже трехкомнатная квартира 58 м.кв. Комнаты все изолированы. Квартира светлая, на две стороны. Во дворе детский сад. В 10 минутах ходьбы Метро Уралмаш и весь транспорт в другие районы города. Состояние квартиры под ремонт. Чистая продажа Один собственник с момента приватизации ID объекта в нашей базе: 6121
    размещено: 11.09.2025 , обновлено: 5.12.2025
  • 3-к квартира, Машиностроителей, 31

    • 56 м2
    • 5/5 этаж
    • Состояние: хорошее
    4 500 000 ₽ (80400 ₽/м2)
    Объект № 194168. Продам 3-комнатную квартиру в самом сердце Уралмаша. Квартира теплая, светлая. Кухня 8 кв. м, комнаты изолированные, что позволяет выделить каждому члену семьи свое пространство. Новым собственникам в подарок оставим всю бытовую технику и мебель. В подъезде выполнен ремонт, соседи все порядочные. Рядом с домом расположены: школа, детский сад, поликлиника №14, детская многопрофильная поликлиника №15, гипермаркет Лента, Храм. В шаговой доступности остановки общественного транспорта. ***Гарантийный сертификат «Защита собственности» по данному объекту в подарок***
    размещено: 08.09.2025 , обновлено: 29.10.2025
  • 3-к квартира, Кузнецова, 7

    • 86 м2
    • 15/27 этаж
    • Состояние: удовлетворительное
    4 000 000 ₽ (46500 ₽/м2)
    Объект № 191032. Продам 1/3 долю в трёхкомнатной квартире на 15 этаже. ЖК Северное сияние. В подъезде два грузовых и два пассажирских лифта, закрытый двор. Магазины, больницы, общественный транспорт, школы, садики и другая инфраструктура в шаговой доступности. Звоните, вся информация по телефону. ***Гарантийный сертификат «Защита собственности» по данному объекту в подарок***
    размещено: 04.04.2025 , обновлено: 11.12.2025

    3-к квартира, Лукиных, 8

    • 56 м2
    • 5/5 этаж
    • Состояние: хорошее
    4 900 000 ₽ (87500 ₽/м2)
    Объект № 190135. Продам комфортную трехкомнатную квартиру в одном из самых востребованных районов г. Екатеринбурга - Уралмаш! Комнаты выходят на разные стороны света, отличная освещенность и вентиляция. Удобная планировка с двумя кладовками. Рядом развитая инфраструктура: магазины, супермаркеты, школы, университет РГППУ, Академия Искусств, Юр. колледж, Диагностический центр, фитнес зал, аптеки. Квартира готова к продаже, никто не зарегистрирован. Приглашаю вас на просмотр! ***Гарантийный сертификат «Защита собственности» по данному объекту в подарок***
    размещено: 26.02.2025 , обновлено: 9.12.2025

    3-к квартира, Хмелева, 6

    • 50.9 м2
    • 1/4 этаж
    • Состояние: удовлетворительное
    4 690 000 ₽ (92100 ₽/м2)
    Продается 3 комнатная квартира на Уралмаше, рядом с Бульваром Культуры. Квартира идеально подойдет для семьи с детьми. Высокий первый этаж Рядом детский сад и школы, ТЦ Лента, Храм. В районе развязка транспортная развязка: автобусы, троллейбусы, трамваи до метро 15 минут пешком или 1 остановка на транспорте. В доме сделан капитальный ремонт-фасад, крыша, коммуникации, трубы. В квартире установлены стеклопакеты. Без долгов, обременений и детских долей. Освобождена. ID объекта в нашей базе: 10628
    размещено: 09.01.2025 , обновлено: 3.11.2025

Новостройки Екатеринбург, мкр-н. Уралмаш

Приоритет

Увеличивает просмотры в 3 раза

Ваше объявление показывается в списке выше обычных объявлений. подключить