На Метре реклама - только нормальная. Никакого шок-контента.
Помогайте независимому ресурсу, как он помогает вам. Удачи!
Новостройки Котт. посёлки Объявления Динамика цен и сделок

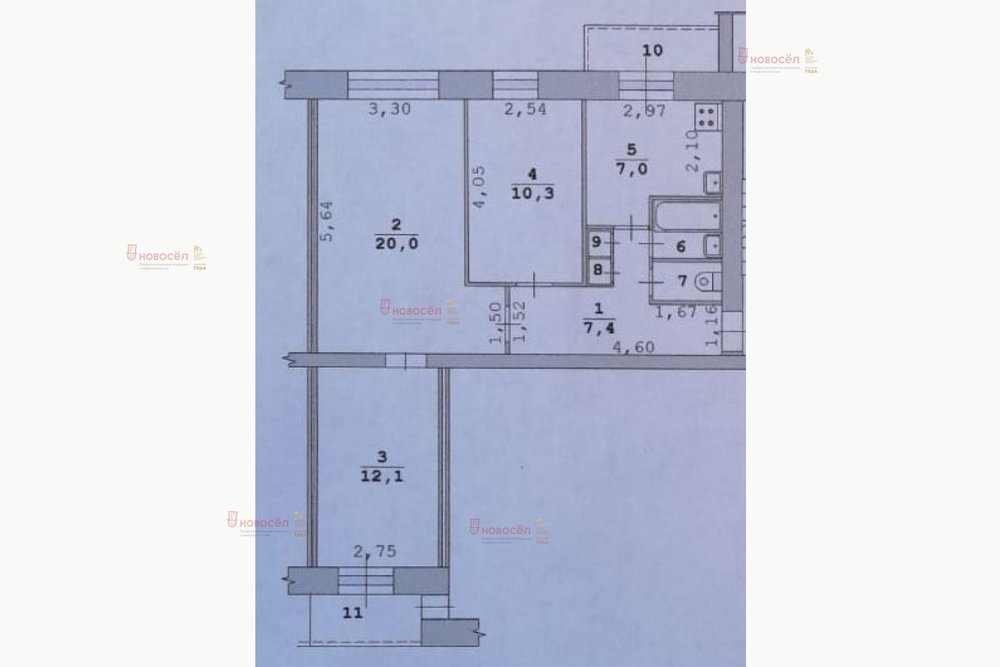
Продажа квартиры: Екатеринбург, ул. Индустрии, 29 (Уралмаш)

  • опубликовано 8.11.2021 , обновлено 16.06.2025
  • 30
Кадастровый номер:66:41:0106111:2674
Рынок:вторичный
Срок сдачи: 1977 года
Количество комнат:3
Общая площадь:61 м2
Жилая площадь:39 м2
Площадь кухни:7 м2
Этаж/Этажность дома:4 / 9
Санузел:раздельный
Отделка:евроремонт
Год постройки:1977
Состояние:хорошее
Цена:
4 000 000
Объявление снято с публикации
Коммунальные платежи:оплачиваются отдельно
Ипотека:возможна

Объект № 150228. Предлагаю вашему вниманию отличную трехкомнатную квартиру в тихом месте с отличной транспортной доступностью на Уралмаше.
Отличная сейф-дверь. Во всей квартире окна поменяны на пластиковые стеклопакеты. Сети ХВС и ГВС и полностью поменяны. В квартире 2 балкона!
Без залогов и обременений! Двое взрослых собственников. Квартира в чистой продаже, уже никто не проживает. ***Гарантийный сертификат «Защита собственности» по данному объекту в подарок***

Объявление снято с публикации

Ипотечный калькулятор

лет
%
Сумма кредита
4000000 ₽
Платеж
22 540 ₽

История предложений в этом доме

объявление снято с публикации в продаже комнат площадь этаж цена,
Екатеринбург, ул. Индустрии, 29 (Уралмаш) - фото квартиры 5 июня 2025 90 дн. 2 44.8 9/9 4 190 000
Екатеринбург, ул. Индустрии, 29 (Уралмаш) - фото квартиры 11 сентября 2024 90 дн. 3 61.3 2/9 4 900 000
Екатеринбург, ул. Индустрии, 29 (Уралмаш) - фото квартиры 20 января 2024 90 дн. 3 60 5/9 5 790 000
Екатеринбург, ул. Индустрии, 29 (Уралмаш) - фото квартиры 12 октября 2023 90 дн. 2 46 9/9 4 700 000
Екатеринбург, ул. Индустрии, 29 (Уралмаш) - фото квартиры 7 сентября 2023 90 дн. 1 33 6/9 3 900 000
Екатеринбург, ул. Индустрии, 29 (Уралмаш) - фото квартиры 10 января 2024 90 дн. 3 60 8/9 4 950 000
Екатеринбург, ул. Индустрии, 29 (Уралмаш) - фото квартиры 25 мая 2022 90 дн. 2 60 1/9 4 570 000
Екатеринбург, ул. Индустрии, 29 (Уралмаш) - фото квартиры 16 марта 2022 90 дн. 2 47 7/9 3 520 000
Екатеринбург, ул. Индустрии, 29 (Уралмаш) - фото квартиры 29 сентября 2020 90 дн. 3 60 9/9 4 100 000
Екатеринбург, ул. Индустрии, 29 (Уралмаш) - фото квартиры 24 ноября 2020 90 дн. 2 45 8/9 3 100 000
Екатеринбург, ул. Индустрии, 29 (Уралмаш) - фото квартиры 29 декабря 2019 90 дн. 3 60 7/9 3 800 000
5 декабря 2016 91 дн. 3 64 3/9 3 350 000

Похожие предложения о продаже квартир в Екатеринбурге (Уралмаш)

  • 3-к квартира, Новаторов, 9

    • 52 м2
    • 5/5 этаж
    • Состояние: хорошее
    4 590 000 ₽ (88300 ₽/м2)
    Объект № 195090. Продаётся просторная 3-комнатная квартира на Уралмаше. Идеальное сочетание уюта, комфорта и выгодной локации! Ваш новый дом — это место, где хочется жить. Простор и свет: удобная планировка, окна на разные стороны. Очень светло, чисто и уютно. Атмосфера спокойствия: тихий дом и спокойные соседи. Идеальный микроклимат: отличная вентиляция и остеклённый балкон для вашего комфорта в любое время года. Вся инфраструктура под рукой: развитая сеть магазинов, школ, поликлиник и кафе в шаговой доступности. Всего 10-15 минут неспешной ходьбы до метро. Чистая продажа! Один взрослый собственник. Не упустите шанс купить не просто квартиру, а дом с прекрасной атмосферой! ***Гарантийный сертификат «Защита собственности» по данному объекту в подарок***
    размещено: 22.10.2025 , обновлено: 30.11.2025
  • 3-к квартира, Коммунистическая, 6

    • 53.6 м2
    • 1/5 этаж
    • Состояние: плохое
    4 150 000 ₽ (77400 ₽/м2)
    Дом блочный, окна на две стороны, широкие подоконники Квартира теплая, но требует капитального ремонта. В шаговой доступности метро, остановки общественного транспорта, магазины, школы и детские сады. ID объекта в нашей базе: 6646
    размещено: 21.10.2025 , обновлено: 12.12.2025
  • 3-к квартира, 22-го Партсъезда, 16а

    • 57.4 м2
    • 4/5 этаж
    • Состояние: хорошее
    4 950 000 ₽ (86200 ₽/м2)
    ???? Найдено ваше будущее гнёздышко! Продаётся светлая и уютная квартира в отличном районе! ????Представляем к продаже замечательную квартиру, в которую просто влюбляешься с порога! Это не просто квадратные метры, это место, где уже живёт уют и вас ждёт настоящее счастье!О квартире ????:· Простор и свет: Квартира очень светлая, солнышко здесь частый гость! ☀· Планировка: Практичная и удобная! Вас ждёт изолированная кухня и три (!) отдельные комнаты. Простор для семьи, гостей или кабинета — полёт фантазии безграничен!· Ремонт: Чистый, свежий и готовый к новоселью. Можно заезжать и жить!· Санузел: Совмещённый, аккуратный и ухоженный.· Лоджия: Есть уютная не застеклённая лоджия — ваша маленькая летняя терраса для утреннего кофе или вечерних посиделок! ????Огромный плюс — локация! ???? Ул. 22 Партсъезда, 16аВам больше не придётся тратить часы на дорогу до самых нужных мест! Всё — в шаговой доступности:· ???? Магазины — буквально под рукой, за продуктами и не только!· ???? Детский садик — в двух шагах, идеально для молодых семей.· ???? Школа — рядом, ваш ребёнок сможет добираться самостоятельно и без проблем.Эта квартира — идеальный выбор для тех, кто ищет комфорт, уют и развитую инфраструктуру!Не упустите свой шанс обрести дом мечты! ???? Звоните, чтобы назначить просмотр и лично ощутить эту прекрасную атмосферу! ID объекта в нашей базе: 11918
    размещено: 16.10.2025 , обновлено: 5.12.2025
  • 3-к квартира, Ильича, 8

    • 72 м2
    • 1/4 этаж
    • Состояние: хорошее
    4 950 000 ₽ (68800 ₽/м2)
    Квартира в удачной локации микрорайона Уралмаш. Высокие потолки. Удачная планировка. Тихий спокойный двор. ID объекта в нашей базе: 6128
    размещено: 22.09.2025 , обновлено: 1.12.2025
  • 3-к квартира, Черноярская, 22

    • 53.4 м2
    • 4/4 этаж
    • Состояние: хорошее
    4 950 000 ₽ (92700 ₽/м2)
    В продаже светлая и уютная 3-х комнатная квартира!В квартире сделан ремонт, установлены новые, качественные стеклопакеты на окна, идеально выровненные потолки в комнатах, установлены новые межкомнатные двери. Квартира чистая и уютная. Одна комната изолирована, две комнаты смежные. Кухня правильной формы, вмещает все необходимое. Окна выходят на тихую улицу с отличным видом. Тихий двор с оборудованной детской площадкой и озеленением. Развитая инфраструктура: рядом детские сады, школы, магазины, торговый центр "Веер молл" и др. В шаговой доступности остановки транспорта в т.ч. МЕТРО. Чистая продажа, один взрослый собственник!!! Без обременений!!! Документы готовы к сделке!!! ID объекта в нашей базе: 11718
    размещено: 18.09.2025 , обновлено: 1.12.2025

    3-к квартира, Калинина, 11

    • 58.4 м2
    • 1/5 этаж
    • Состояние: плохое
    4 100 000 ₽ (70200 ₽/м2)
    В продаже трехкомнатная квартира 58 м.кв. Комнаты все изолированы. Квартира светлая, на две стороны. Во дворе детский сад. В 10 минутах ходьбы Метро Уралмаш и весь транспорт в другие районы города. Состояние квартиры под ремонт. Чистая продажа Один собственник с момента приватизации ID объекта в нашей базе: 6121
    размещено: 11.09.2025 , обновлено: 5.12.2025

    3-к квартира, Машиностроителей, 31

    • 56 м2
    • 5/5 этаж
    • Состояние: хорошее
    4 500 000 ₽ (80400 ₽/м2)
    Объект № 194168. Продам 3-комнатную квартиру в самом сердце Уралмаша. Квартира теплая, светлая. Кухня 8 кв. м, комнаты изолированные, что позволяет выделить каждому члену семьи свое пространство. Новым собственникам в подарок оставим всю бытовую технику и мебель. В подъезде выполнен ремонт, соседи все порядочные. Рядом с домом расположены: школа, детский сад, поликлиника №14, детская многопрофильная поликлиника №15, гипермаркет Лента, Храм. В шаговой доступности остановки общественного транспорта. ***Гарантийный сертификат «Защита собственности» по данному объекту в подарок***
    размещено: 08.09.2025 , обновлено: 29.10.2025

    3-к квартира, Космонавтов, 43Б

    • 55.7 м2
    • 1/5 этаж
    • Состояние: удовлетворительное
    4 990 000 ₽ (89600 ₽/м2)
    Продаётся уютная 3-к квартира до станции метро пр. Космонавтов 1 минута!Преимущества квартиры:- Высокий первый этаж - Удачная планировка- Наличие окон на две стороны- Остается часть мебели (по договоренности)- Рядом вся необходимая инфраструктура, в пешей доступности (школа 128, 138, большое количество детских садов, продуктовые магазины: пятерочка, к/б, монетка и др., остановки общественного транспорта и метро, пункты выдачи в/б, озон, яндекс маркет и др.)Записывайтесь на просмотр ID объекта в нашей базе: 11602
    размещено: 07.08.2025 , обновлено: 8.11.2025

    3-к квартира, Кузнецова, 7

    • 86 м2
    • 15/27 этаж
    • Состояние: удовлетворительное
    4 000 000 ₽ (46500 ₽/м2)
    Объект № 191032. Продам 1/3 долю в трёхкомнатной квартире на 15 этаже. ЖК Северное сияние. В подъезде два грузовых и два пассажирских лифта, закрытый двор. Магазины, больницы, общественный транспорт, школы, садики и другая инфраструктура в шаговой доступности. Звоните, вся информация по телефону. ***Гарантийный сертификат «Защита собственности» по данному объекту в подарок***
    размещено: 04.04.2025 , обновлено: 11.12.2025

    3-к квартира, Лукиных, 8

    • 56 м2
    • 5/5 этаж
    • Состояние: хорошее
    4 900 000 ₽ (87500 ₽/м2)
    Объект № 190135. Продам комфортную трехкомнатную квартиру в одном из самых востребованных районов г. Екатеринбурга - Уралмаш! Комнаты выходят на разные стороны света, отличная освещенность и вентиляция. Удобная планировка с двумя кладовками. Рядом развитая инфраструктура: магазины, супермаркеты, школы, университет РГППУ, Академия Искусств, Юр. колледж, Диагностический центр, фитнес зал, аптеки. Квартира готова к продаже, никто не зарегистрирован. Приглашаю вас на просмотр! ***Гарантийный сертификат «Защита собственности» по данному объекту в подарок***
    размещено: 26.02.2025 , обновлено: 9.12.2025

    3-к квартира, Хмелева, 6

    • 50.9 м2
    • 1/4 этаж
    • Состояние: удовлетворительное
    4 690 000 ₽ (92100 ₽/м2)
    Продается 3 комнатная квартира на Уралмаше, рядом с Бульваром Культуры. Квартира идеально подойдет для семьи с детьми. Высокий первый этаж Рядом детский сад и школы, ТЦ Лента, Храм. В районе развязка транспортная развязка: автобусы, троллейбусы, трамваи до метро 15 минут пешком или 1 остановка на транспорте. В доме сделан капитальный ремонт-фасад, крыша, коммуникации, трубы. В квартире установлены стеклопакеты. Без долгов, обременений и детских долей. Освобождена. ID объекта в нашей базе: 10628
    размещено: 09.01.2025 , обновлено: 3.11.2025

Новостройки Екатеринбург, мкр-н. Уралмаш

Приоритет

Увеличивает просмотры в 3 раза

Ваше объявление показывается в списке выше обычных объявлений. подключить