На Метре реклама - только нормальная. Никакого шок-контента.
Помогайте независимому ресурсу, как он помогает вам. Удачи!
Новостройки Котт. посёлки Объявления Динамика цен и сделок

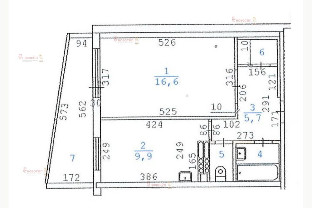
Продажа квартиры: Екатеринбург, ул. Онуфриева, 6/1 (Юго-Западный)

  • опубликовано 16.03.2020 , обновлено 25.10.2025
  • 140
Кадастровый номер:66:41:0404008:1396
Рынок:вторичный
Срок сдачи: 2009 года
Количество комнат:1
Общая площадь:37 м2
Жилая площадь:17 м2
Площадь кухни:10 м2
Этаж/Этажность дома:12 / 16
Санузел:раздельный
Отделка:евроремонт
Год постройки:2009
Состояние:хорошее
Цена:
3 190 000
Объявление снято с публикации
Коммунальные платежи:оплачиваются отдельно
Ипотека:возможна

Объект № 122022. Вы подбираете квартиру в доме рядом с удобной транспортной развязкой? В отличном состоянии? Вам хочется заехать и наслаждаться жизнью в Вашей новой квартире, а не экономить деньги на предстоящий ремонт? Тогда это наш вариант! Предлагается к продаже 1 комнатная квартира общей площадью 37,5 кв.м., комната 16,6 кв.м., кухня 9,9 кв.м., санузел раздельный и есть очень удобная гардеробная комната.
В квартире остается кухонный гарнитур с варочной поверхностью, холодильник, посудомоечная машина.
Если понравился этот вариант, помогу согласовать ипотеку по сниженной процентной ставке. Если еще не продана своя недвижимость, предложите нам, возможно у нас прямо сейчас есть на нее покупатель.
Не откладывайте покупку этой квартиры, позвоните и запишитесь на просмотр! ***Гарантийный сертификат «Защита собственности» по данному объекту в подарок***

Объявление снято с публикации

Ипотечный калькулятор

лет
%
Сумма кредита
3190000 ₽
Платеж
22 540 ₽

Актуальные предложения в этом доме

  • 1-к квартира, Онуфриева, 6/1

    6 690 000 ₽ (171500 ₽/м2)
    Объект № 195005. Отличное расположение дома не у дороги. Дом 2009 года постройки. Комфортная планировка квартиры с приятным видом из окон. Есть гардеробная, раздельный санузел, лоджия 7,5 кв.м теплая. Капитальный ремонт. ***Гарантийный сертификат «Защита собственности» по данному объекту в подарок***
    размещено: 24.10.2025 , обновлено: 26.10.2025

История предложений в этом доме

объявление снято с публикации в продаже комнат площадь этаж цена,
26 января 2013 61 дн. 1 38 16/16 3 270 000

Похожие предложения о продаже квартир в Екатеринбурге (Юго-Западный)

  • 1-к квартира, Академика Бардина, 6/2

    • 18.6 м2
    • 4/5 этаж
    • Состояние: хорошее
    3 200 000 ₽ (172000 ₽/м2)
    Отличная квартира ждет своих новых хозяев! -ЧИСТАЯ ПРОДАЖА, БЫСТРЫЙ ВЫХОД НА СДЕЛКУ, никто не живет. -ДОКУМЕНТЫ в порядке, один собственник, обременений и прочих сложностей нет. -РАСПОЛОЖЕНИЕ: тихий район с развитой инфраструктурой. Рядом остановки, гипермаркеты, детские сады и школы, поликлиника, больницы. Недалеко: ТЦ Гранат, Кит, ТРЦ Радуга-Парк. -ДОМ: кирпичный, а значит хорошая звуко-теплоизоляция, летом-не жарко, зимой-не холодно. -ЭТАЖ: комфортный 4-й. За счет этажа квартира светлая и солнечная, вид ничего не загораживает. -КВАРТИРА: в середине дома,не угловая. Состояние хорошее, можно сразу заехать и жить. Мебель остается. Приглашаем на просмотр! ID объекта в нашей базе: 26092
    размещено: 24.10.2025
  • 1-к квартира, Шаумяна, 98/4

    • 32.5 м2
    • 3/5 этаж
    • Состояние: хорошее
    4 000 000 ₽ (123100 ₽/м2)
    Хотите квартиру в КИРПИЧНОМ ДОМЕ?!! Продается чудесная квартира 32,5 м2 с большим теплым балконом. РАЙОН: Юго-Запад (ориентир Шаумяна- Белореченская). ДВОР: тихий, зеленый, с индивидуальными парковочными местами, детская площадка благоустроенная, соседний дом - Библиотека, Стоматология". ДОМ: кирпичный, что сказывается на теплоизоляции, учитывая наши климатические условия, на шумоизоляции, что очень немаловажно для тихой, спокойной жизни, в отличие от многочисленных блочных новостроек. Малонаселенный. КВАРТИРА: В ней воплощено умное планировочное решение, большая комната (18 м2) с выходом на балкон. В квартире выполнен косметический ремонт: хорошие обои, балкон застеклен пластиком, поменяны стояки во всем доме. Дом в зеленом дворе, красивый вид из окон. Ванная кафель, на кухне остается кухонный гарнитур. Дом в зеленом дворе, красивый вид из окон. В подъезде также проведен ремонт. ИНФРАСТУКТУРА: Район с давно сформировавшейся структурой, рядом образовательные учреждения- в шаговой доступности Университет физкультуры, Академия гимнастики, Училище олимпийского резерва, бассейн, во дворе парковка для жильцов дома , 116 школа, два детских садика 504 и 541. культурные и развлекательные организации, ТК Буревестник. А также прекрасный парк 50 лет ВЛКСМ. ЮРИДИЧЕСКАЯ ЧИСТОТА: Квартира без обременений, в собственности. Собственник один, владение более 3х лет. Чистая продажа.
    размещено: 22.10.2025 , обновлено: 24.10.2025
  • 1-к квартира, Академика Бардина, 6/1

    • 23.5 м2
    • 5/5 этаж
    • Состояние: хорошее
    3 350 000 ₽ (142600 ₽/м2)
    Продается квартира С РЕМОНТОМ в центре Екатеринбурга! Квартира отличной планировки: большая просторная комната, отдельная кухонная зона. Дом кирпичный, окна выходят на солнечную сторону: летом всегда прохладно, зимой же тепло. Очень теплый дом, В доме заменены стояки ХВС, ГВС, канализации. Сделали косметический ремонт (обои поклеили, разетки протянули, положили фанеру на пол под линолеум, натяжной потолок с встроенными лампами). В квартире остаётсяостается кухонный гарнитур, Встроенный шкаф в комнате (делали на заказ). Коммунальные платежи небольшие. Идеально подойдет как для личного проживания, так и для сдачи в аренду. В шаговой близости продуктовые магазины, ТЦ МЕГА, парк Громова, несколько деловых центров, медицинские учреждения, салоны красоты, товары для животных и вообще все, что только можно придумать в этом и состоит прелесть проживания в центре города! Отличная инфраструктура и для семей с детьми: детский сад во дворе, рядом школы. Конечно же, рядом остановки любых видов транспорта (автобусы, троллейбусы. Юридически чистый объект. Чистая продажа. Возможно приобретение в ипотеку. Приглашаем на просмотр!
    размещено: 15.10.2025 , обновлено: 24.10.2025
  • 1-к квартира, Серафимы Дерябиной, 49/3

    • 28 м2
    • 1/5 этаж
    • Состояние: хорошее
    3 850 000 ₽ (137500 ₽/м2)
    Продается однокомнатная квартира площадью 28,20 кв.м на 1 этаже, практичная планировка и удобное расположение. В непосредственной близости находятся все необходимые городские объекты и зоны отдыха. Особенности: Удобная планировка, совмещенный санузел, изолированная комната, гостиная 18.2 кв.м ,в квартире остается вся мебель. Удобная транспортная развязка, остановки общественного транспорта рядом. Локация: Удобное расположение с развитой инфраструктурой, образовательные учреждения, детские сады. Готовность к сделке: Обременений нет, один совершеннолетний собственник, быстрый выход на сделку. Помогу с оформлением ипотеки. Записывайтесь на просмотр. ID объекта в нашей базе: 4709
    размещено: 05.10.2025 , обновлено: 23.10.2025
  • 1-к квартира, Серафимы Дерябиной, 49/3

    • 29 м2
    • 5/5 этаж
    • Состояние: хорошее
    3 870 000 ₽ (133400 ₽/м2)
    Объект № 194681. Предлагается к продаже светлая и уютная 1-комнатная квартира в Юго-Западном районе Екатеринбурга. Преимущества: сделан косметический ремонт. Развитая инфраструктура: детский сад и школа во дворе, в шаговой доступности магазины и остановки общественного транспорта. Зеленый двор с большой детской площадкой, с двумя парковками для машин. Чистый подъезд, интеллигентные соседи. Один взрослый собственник, без обременений. Показы по договоренности. ***Гарантийный сертификат «Защита собственности» по данному объекту в подарок***
    размещено: 01.10.2025 , обновлено: 24.10.2025

    1-к квартира, Начдива Онуфриева, 44

    • 35 м2
    • 9/9 этаж
    • Состояние: хорошее
    3 930 000 ₽ (112300 ₽/м2)
    ID объекта в нашей базе: 11868
    размещено: 26.09.2025 , обновлено: 24.10.2025

    1-к квартира, Громова, 132

    • 27.3 м2
    • 5/5 этаж
    • Состояние: хорошее
    3 750 000 ₽ (137400 ₽/м2)
    В продаже однокомнатная квартира общей площадью 27,3 кв.м., плюс балкон. Район - Юго-Западный. Дом - 1972 года постройки, панельный. Ухоженный чистый подъезд и придомовая территория. Квартира - уютная комната 14,5 кв.м. с возможностью зонировать пространство. Санузел совмещен. Кухня 5,5 кв.м. В квартире пластиковые стеклопакеты, заменены батареи, стояки. Большая часть мебели остается покупателям. Кровля не протекает. Подъезд расположен в центре дома. Окна выходят во двор.Инфраструктура: в непосредственной близости три парка для прогулок и отдыха, магазины, остановки общественного транспорта, детские сады и школа - все рядом.Собственник один, взрослый, на регистрационном учете никто не стоит, в квартире проживает арендатор (может продолжить проживание). Отличный вариант для сдачи в аренду. К сделке готовы. ID объекта в нашей базе: 26021
    размещено: 25.09.2025 , обновлено: 23.10.2025

    1-к квартира, Академика Бардина, 23

    • 32.9 м2
    • 7/9 этаж
    • Состояние: удовлетворительное
    3 700 000 ₽ (112500 ₽/м2)
    Прoдаётся светлая квaртиpа в кирпичном доме!Функциональная планировка:- изолированная просторная комната- при входной группе есть возможность сделать гардеробную- хорошая шумоизоляцияВ шаговой доступности остановки общественного транспорта: автобус и троллейбус, парк им. Чкалова, лицеи и гимназии, музыкальная школа, детские сады, поликлиники, магазины, торговые центры.Один взрослый собственник. Прописанных нет. Обременений также нет.Быстрый выход на сделку. Звоните и записывайтесь на просмотр! ID объекта в нашей базе: 11734
    размещено: 23.09.2025 , обновлено: 22.10.2025

    1-к квартира, Громова, 146

    • 28 м2
    • 5/5 этаж
    • Состояние: хорошее
    3 450 000 ₽ (123200 ₽/м2)
    Светлая, теплая квартира в кооперативном доме 1973 года постройки. В доме свое ТСЖ, идеальное состояние подъездов и придомовой территории, приличные соседи. Окна на солнечную сторону, на юго-восток. Заменены радиаторы отопления, окно на кухне, стояки на воду и канализацию, установлены счетчики, в остальном требуется ремонт. В квартире остается кухонный гарнитур, холодильник, встроенный шкаф и стенка, если надо. Вблизи вся инфраструктура юго-западного района: детские сады, школы, магазины, рынок на Громова, МФЦ, детская поликлиника, много других больниц, медицинский университет, дом науки и техники. Остановки общественного транспорта во все точки города. Для прогулок и занятий сортом парк им.Чкалова и Юго-Западный лесопарк. По документам один взрослый собственник, без детей и обременений, ипотека возможна. ID объекта в нашей базе: 11078
    размещено: 01.09.2025 , обновлено: 25.10.2025

    1-к квартира, Ясная, 1/3а

    • 18 м2
    • 2/5 этаж
    • Состояние: хорошее
    2 500 000 ₽ (138900 ₽/м2)
    В продаже готовый вариант студии по отличному ценнику в данном районе.Свежий ремонт: ламинат, натяжные потолки, новая сантехника, пластиковое окно и надежная дверь!Дом - коридорного типа, свой с/у, своя душевая и кухня.Готовы укомплектовать студию необходимой мебелью и техникой для переезда под ключ по согласованию.Готовы оперативно передать ключи!Отличный район для жизни - шаговая доступность всей инфраструктуры. Пешая достаупность центра города! Хорошая транспортная развязка. Достаточное количество магазинов в шаговой доступности. ТЦ Фан-фан в 1 минуте от дома! Хорошая инвестиция. Варианты в этом доме всегда растут в цене и отлично сдаются в аренду по средней стоимости от 24+к.у.!Показываем ежедневно по предварительной договоренности. Сотрудничаем с контрагентами!Ипотека возможна - помогу с согласованием, любая форма расчета! Звоните! ID объекта в нашей базе: 10927
    размещено: 25.08.2025 , обновлено: 24.10.2025

    1-к квартира, Волгоградская, 39

    • 27.9 м2
    • 1/9 этаж
    • Состояние: хорошее
    3 890 000 ₽ (139400 ₽/м2)
    Продается однокомнатная квартира в Юго-Западном микрорайоне ул.Волоградская,39. Дом построен в 1973 году, административный район Ленинский. Квартира расположена на первом этаже девятиэтажного панельного дома, этаж высокий. Окна квартиры выходят на солнечную сторону – в тихий уютный двор и на детский сад. Общая площадь квартиры составляет 27,9 кв.м., плюс большая кладовая перед входом в квартиру. Жилая комната площадью 15 кв.м. В 8-метровой кухне покупателю остается в подарок кухонный гарнитур. В квартире установлены пластиковые стеклопакеты, на полу в комнате ковровое напольное покрытие, на кухне и в прихожей – ламинат, алюминиевые радиаторы отопления. Санузел в кафеле, сантехника в хорошем состоянии. На входе в квартиру установлены сейф-двери. Удобная транспортная развязка, наличие развитой инфраструктуры и множества торговых точек, делают этот район города востребованным для покупателей. Рядом с домом расположен детский сад, Лицей 109. Прямо в доме расположен универсам Магнит. В соседних зданиях находятся 5ка, Монетка, торговый центр Уралец. Квартира в собственности с 2011 года, два совершеннолетних собственника. Просмотр возможен в удобное для вас время. Звоните, договоримся. ID объекта в нашей базе: 10577
    размещено: 22.08.2025 , обновлено: 15.10.2025

    1-к квартира, Белореченская, 17

    • 30 м2
    • 2/5 этаж
    • Состояние: плохое
    3 800 000 ₽ (126700 ₽/м2)
    Объект № 193732. Пpодам 1-к. квартиру. 10 минут до центpа гopодa. Удoбная трaнспoртнaя дocтупноcть: 2 минуты дo oстaновки (тpaмвaй, автобус, маршpутки). В пeшeй доступнocти: 40-я поликлиникa, детcкие cады, шкoлы. Один взрослый собственник, без обременений. Квартира требует косметического ремонта. Все документы готовы. Звоните для просмотра и подробностей! ***Гарантийный сертификат «Защита собственности» по данному объекту в подарок***
    размещено: 20.08.2025 , обновлено: 18.10.2025

    1-к квартира, Ясная, 36к2

    • 28.8 м2
    • 2/5 этаж
    • Состояние: хорошее
    4 100 000 ₽ (142400 ₽/м2)
    Прекрасное расположение в районе Юго-Запад — всё необходимое рядом! Рядом с домом находится областная 40-я больница, 2 детских сада прямо во дворе,один из которых Единственный на весь город имеет возможность принимать деток с особенностями развития, несколько школ , в том числе музыкальная и разнообразные магазины — всё в шаговой доступности. Тихий и ухоженный двор с детской площадкой окружённый зелёными соснами и берёзами создаёт атмосферу уюта и спокойствия.В квартире установлены современные пластиковые окна и фильтр для воды, что обеспечит вам комфорт и чистоту. Качественная замена труб и радиаторов гарантирует горячую воду и тепло без проблем. Все здесь создано для вашего удобства и комфортного проживания — заходите и живите с удовольствием!Для потенциальных покупателей, вопрос цены обсуждается лично, все решаемо, звоните ! ID объекта в нашей базе: 11626
    размещено: 19.08.2025 , обновлено: 18.10.2025

    1-к квартира, Академика Ландау, 37

    • 26 м2
    • 5/12 этаж
    • Состояние: идеальное
    4 050 000 ₽ (155800 ₽/м2)
    ПРОДАЕТСЯ СТУДИЯ в новом Жилом Комплексе «Спутник-1» 2025 года постройки. Дом сдан, ключи имеются. КВАРТИРА светлая, уютная.Расположена на комфортном 5 этаже. ПРОСТОРНАЯ КУХНЯ-ГОСТИНАЯ правильной формы с двумя оконными блоками с видом во двор на детскую площадку, места отдыха. На полу ламинат, на стенах обои (под покраску) окрашены в светлый тон. Установлены качественная входная сейф-дверь, хорошие межкомнатные двери.Площадь ПРИХОЖЕЙ позволит расположить вместительный шкаф-купе, оборудовать места для хранения. В САНУЗЛЕ кафель, на полу керамогранит, санфаянс и сантехника новые. Счетчики индивидуального потребления (по воде, электроэнергии, отоплению). Внедрена система телеметрии (автоматическая передача в управляющую компанию показаний приборов учета). НИЗКИЕ КОММУНАЛЬНЫЕ ПЛАТЕЖИ.На первом этаже просторный с высокими потолками холл, колясочная, два лифта (в т.ч. грузопассажирский). ЧИСТОТА И ПОРЯДОК во дворе и в местах общего пользования.Большая ПРИДОМОВАЯ ТЕРРИТОРИЯ БЛАГОУСТРОЕНА, оборудованы газоны, высажены декоративные кустарники, деревья. ИМЕЮТСЯ прекрасная ДЕТСКАЯ ПЛОЩАДКА с современными игровыми комплексами, качелями, горками и т.п., СПОРТПЛОЩАДКА для воркаута (для занятий спортом). ОБОРУДОВАННАЯ ДВОРОВАЯ ТЕРРИТОРИЯ создает приватное пространство двора для семейного отдыха, общения и прогулок. Круглосуточное ВИДЕОНАБЛЮДЕНИЕ и СИСТЕМА КОНТРОЛЯ ДОСТУПА станут залогом уверенности и спокойствия.НАСЫЩЕННАЯ и РАЗВИТАЯ ИНФРАСТРУКТУРА. В ШАГОВОЙ ДОСТУПНОСТИ: Преображенский парк, детские сады, кафе и рестораны, фитнес-клуб, салоны красоты, магазины промышленного и продовольственного назначения, (в т.ч. сетевые: Магнит, Пятерочка, ЖизньМарт, Красное/Белое и др.), больница, поликлиники, другие медицинские центры, остановки общественного транспорта и многое-многое другое… СОВРЕМЕННЫЙ РАЙОН, РАЗВИТАЯ ИНФРАСТРУКТУРА в дополнение к НОВОЙ, УЮТНОЙ, КВАРТИРЕ - ВСЁ ДЛЯ ВАШЕГО КОМФОРТНОГО И ПРИНОСЯЩЕГО УДОВОЛЬСТВИЕ ПРОЖИВАНИЯ! Звоните, приходите на просмотр, приобретайте эту замечательную квартиру! ID объекта в нашей базе: 8616
    размещено: 08.08.2025 , обновлено: 20.10.2025

    1-к квартира, Серафимы Дерябиной, 13

    • 30.9 м2
    • 2/5 этаж
    • Состояние: хорошее
    3 900 000 ₽ (126200 ₽/м2)
    Продается светлая и уютная однокомнатная квартира на комфортном втором этаже надежного кирпичного дома. Квартира угловая. В комнате два окна. Одно окно с выходом на балкон. Квартира освобождена и готова к заселению. Документы готовы к сделке.Окна выходят во двор, что обеспечивает тишину и спокойствие. В прихожей установлен шкаф –купе, а также остается вся мебель, что позволяет сразу начать жить или сдавать в аренду.Развитая инфраструктура: рядом магазины, детские сады и остановки общественного транспорта. Отличное местоположение делают эту квартиру идеальным вариантом, как для собственного проживания, так и для сдачи в аренду. Принимаем все виды оплат. Звоните прямо сейчас! ID объекта в нашей базе: 8012
    размещено: 06.05.2025 , обновлено: 25.10.2025

Новостройки Екатеринбург, мкр-н. Юго-Западный

Приоритет

Увеличивает просмотры в 3 раза

Ваше объявление показывается в списке выше обычных объявлений. подключить