На Метре реклама - только нормальная. Никакого шок-контента.
Помогайте независимому ресурсу, как он помогает вам. Удачи!
Новостройки Котт. посёлки Объявления Динамика цен и сделок

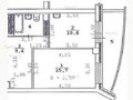
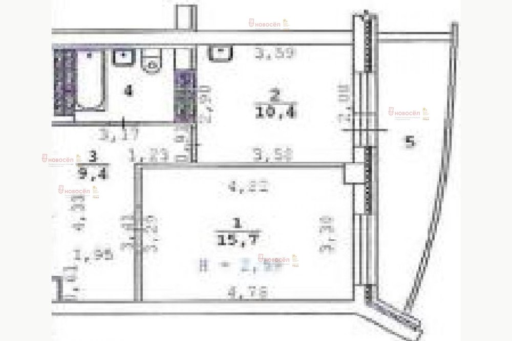
Продажа квартиры: Екатеринбург, ул. Техническая, 14/2 (Новая Сортировка)

  • опубликовано 21.05.2020 , обновлено 30.08.2025
  • 102
Кадастровый номер:66:41:0204901:7032
Рынок:вторичный
Срок сдачи: 2011 года
Количество комнат:1
Общая площадь:39.5 м2
Жилая площадь:15.7 м2
Площадь кухни:10.4 м2
Этаж/Этажность дома:16 / 27
Санузел:совмещенный
Отделка:евроремонт
Год постройки:2011
Состояние:хорошее
Цена:
3 490 000
Объявление снято с публикации
Коммунальные платежи:оплачиваются отдельно
Ипотека:возможна

Объект № 124816. Отличное расположение дома: транспортная развязка в любую точку города, школа, детские сады, Сагайдак-парк.
Новый дом, спецпроект. Отличный вариант для тех, кто работает на рынке Таганский ряд.
Ипотека возможна. ***Гарантийный сертификат «Защита собственности» по данному объекту в подарок***

Объявление снято с публикации

Ипотечный калькулятор

лет
%
Сумма кредита
3490000 ₽
Платеж
22 540 ₽

Актуальные предложения в этом доме

  • 3-к квартира, Техническая, 14/2

    10 470 000 ₽ (156000 ₽/м2)
    Продается 3-комнатная квартира для дружной большой семьи, ценящей комфорт. Кирпичный спецпроект 2011 года. Удачная планировка: четкое разделение на общественное пространство и спальни. Все комнаты изолированы, большая лоджия. Просторная квартира, много света и тепла. Для детей отдельные комнаты. Квартира в обычном состоянии. Ремонт можно сделать на свой вкус! Рядом находятся детские сады, школы. Вблизи дома продуктовые магазины, аптеки, ТЦ Карнавал, рынок Таганский ряд, ТЦ Пекин, Ханой. Сагайдак парк, музыкальная школа имени Рахманинова. Юридически чистый объект. Звоните, душевная квартира для большой семьи.
    размещено: 04.07.2025 , обновлено: 11.11.2025

История предложений в этом доме

объявление снято с публикации в продаже комнат площадь этаж цена,
Екатеринбург, ул. Техническая, 14/2 (Новая Сортировка) - фото квартиры 25 апреля 2024 90 дн. 2 54 18/27 7 700 000
Екатеринбург, ул. Техническая, 14/2 (Новая Сортировка) - фото квартиры 19 января 2021 90 дн. 1 38.6 7/27 3 400 000
Екатеринбург, ул. Техническая, 14/2 (Новая Сортировка) - фото квартиры 4 марта 2020 90 дн. 1 39.6 21/27 3 300 000

Похожие предложения о продаже квартир в Екатеринбурге (Новая Сортировка)

  • 1-к квартира, Техническая, 12

    • 34.4 м2
    • 12/16 этаж
    • Состояние: хорошее
    4 000 000 ₽ (116300 ₽/м2)
    Объект № 195931. Предлагаем вашему вниманию чистую, уютную однокомнатную квартиру 34.4 кв.м на 12 этаже в 16-этажном доме, рядом с парком семейного отдыха Таганская Слобода и ТЦ Пекин. Квартира подойдет для молодой семьи - заезжай и живи, а также под инвестиции. Прекрасная планировка: большая комната на 2 окна c выходом на 5м лоджию застеклённую, санузел просторный, кухня правильной квадратной формы с большим окном на парк. Хорошие спокойные соседи. Чистый подъезд, два лифта. Детская и спортивная площадка. В шаговой доступности две школы: одна - с бассейном, другая - с англ. уклоном, детские сады, музыкальная и художественная школы, Сагайдак парк с аттракционами и белочками, поликлиники детская и взрослая, банки, аптеки, рестораны, кафе. Хорошая транспортная доступность: до трамвая и автобуса -2 мин. ходьбы, городская электричка - 10 мин. ходьбы. До центра 20 мин. езды на общественном транспорте. Развязка Бебеля, Халтурина, Техническая - выезд на кольцевую и в любой конец города. Один собственник. Без обременений. Мат. капитал не использовался. Ипотека возможна. Документы готовы. ***Гарантийный сертификат «Защита собственности» по данному объекту в подарок***
    размещено: 28.11.2025
  • 1-к квартира, Автомагистральная, 3

    • 28 м2
    • 9/9 этаж
    • Состояние: хорошее
    3 280 000 ₽ (117100 ₽/м2)
    Объект № 195879. Продам тёплую светлую 1-квартиру с кладовкой. Комфорт и удобство: вся квартира оснащена современными стеклопакетами и сейф-дверью для вашей тишины и безопасности. Просторная кладовка - идеальное решение для хранения вещей, чтобы в комнате всегда был порядок. Санузел полностью отделан кафелем — чисто, гигиенично и не требует вложений. В доме недавно проведён капитальный ремонт: заменены лифты и стояки. Дом расположен в развитом районе: рядом несколько детских садов (№№ 4, 94, 116, 116 и другие), школы (№ 4, 147), Поликлиника №1 с педиатрическим отделением, все необходимые магазины и супермаркеты, предприятия сферы обслуживания. До остановки транспорта 5 минут ходьбы. Это готовое и продуманное пространство для жизни в спокойном районе. Идеальный вариант для тех, кто ценит простоту и скорость оформления. Один взрослый собственник, без обременений. Не упустите шанс купить жильё с чистой историей, в которое останется только заехать. Свяжитесь по телефону, чтобы задать вопросы и назначить просмотр. ***Гарантийный сертификат «Защита собственности» по данному объекту в подарок***
    размещено: 26.11.2025
  • 1-к квартира, Бебеля, 184

    • 39.2 м2
    • 16/16 этаж
    • Состояние: хорошее
    4 500 000 ₽ (114800 ₽/м2)
    Продается моя уютная квартира на Бебеля, 184! Чистая, теплая, готова к жизни! Заезжай и живи! Приветствую! Предлагаю вам не просто квадратные метры, а готовый уютный уголок для счастливой жизни! Это идеальный вариант, чтобы заселиться и наслаждаться комфортом без лишних хлопот. О квартире:· Адрес: ул. Бебеля, 184. Крепкий, теплый кирпичный дом.· Состояние: Чистая, светлая, очень уютная и по-домашнему теплая квартира. Здесь пахнет уютом, а не ремонтом! Вам осталось только расставить свою мебель. Для автолюбителей:Просторная открытая парковка во дворе! Забудьте о часах поиска места для автомобиля. Всегда паркуйтесь рядом с домом. Для семьи и городской жизни:Вся самая важная инфраструктура— прямо у вашего порога!· Ребенок? Детский садик и школа находятся в двух шагах! · На работу или в центр? Остановка общественного транспорта тоже рядом! · За хлебом? Под носом магазин «Монетка»! Итог: Это прекрасное предложение для тех, кто ценит время, комфорт и удобство. Квартира ждет своих новых хозяев!Не просто мечтайте о своем доме — заезжайте и живите! Жду вашего звонка на просмотр! ID объекта в нашей базе: 12610
    размещено: 25.11.2025 , обновлено: 26.11.2025
  • 1-к квартира, Ольховская, 23

    • 36.3 м2
    • 5/9 этаж
    • Состояние: хорошее
    3 999 000 ₽ (110200 ₽/м2)
    ???? ОБЪЯВЛЕНИЕ О ПРОДАЖЕ КВАРТИРЫ ???????? Адрес: ул. Ольховская, 23✨ Ваш уютный уголок для счастливой жизни в прекрасном районе! ✨Представляем вам тёплую и уютную квартиру, в которой есть всё для комфортной жизни! Это не просто стены, это — ваш будущий дом!???? О КВАРТИРЕ:· ✅ Тёплая и светлая: Вам всегда будет уютно и комфортно в любое время года!· ✅ Просторная лоджия: Ваше место для утреннего кофе, вечернего отдыха или организации дополнительного пространства! ????· ✅ Совмещённый санузел: Аккуратный и современный, с грамотной планировкой.???? ВЕСЬ МИР — ПОД РУКОЙ! Район мечты для жизни с семьей:· ????️ Шопинг и развлечения: Рядом Торговый Центр «Пекин»! Все покупки, кино и кафе — в двух шагах от дома!· ???? Отдых и здоровье: Прямо у вашего дома расположен чудесный Парк для отдыха и прогулок! Утренние пробежки, вечерние прогулки с детьми, выходные на свежем воздухе — всё это станет частью вашей жизни! ????‍♀️????‍♂️· ???? Забота о здоровье: Рядом и детская, и взрослая поликлиники. Больше не нужно никуда ехать!· ???? Образование для детей: В шаговой доступности детский сад и школа. Ваши дети будут учиться рядом с домом! ✏️· ???? Отличная транспортная доступность: Остановки общественного транспорта рядом, вы легко доберётесь в любую часть города!???? Идеальное сочетание спокойной жизни в зеленом районе и полной инфраструктуры большого города!???? Не упустите свой шанс поселиться здесь! Ваша счастливая жизнь по адресу Ольховская, 23 начинается с одного звонка! ???? ID объекта в нашей базе: 12400
    размещено: 12.11.2025 , обновлено: 20.11.2025
  • 1-к квартира, Автомагистральная, 23

    • 28.4 м2
    • 1/9 этаж
    • Состояние: хорошее
    3 350 000 ₽ (118000 ₽/м2)
    Предлагаю Вашему вниманию уютную и светлую однокомнатную квартиру в доме, расположенном вдали от шумных дорог. Ремонт косметический, окна пластик, солнечная сторона, полулоджия – застеклена, санузел совмещен, установлены счетчики учета воды, в прихожей имеется кладовка. Входная сейф-дверь. В шаговой доступности остановки общественного транспорта, магазины, школы и детские сады. Приглашаем на просмотр. ID объекта в нашей базе: 6650
    размещено: 31.10.2025 , обновлено: 22.11.2025

    1-к квартира, Таватуйская, 6

    • 37 м2
    • 2/10 этаж
    • Состояние: хорошее
    3 790 000 ₽ (102400 ₽/м2)
    Объект № 195202. Продается хорошая, уютная квартира. Окна выходят во двор. Очень много встроенных шкафов. В квартире нужен косметический район. Район с развитой инфраструктурой. Квартира продается с занижением до 3.360.000 рублей. ***Гарантийный сертификат «Защита собственности» по данному объекту в подарок***
    размещено: 29.10.2025 , обновлено: 23.11.2025

    1-к квартира, Седова, 17

    • 35 м2
    • 1/16 этаж
    • Состояние: хорошее
    3 800 000 ₽ (108600 ₽/м2)
    Чистая, уютная квартира на Новой Сортировке. Ремонт хороший, делали для себя. Две изолированные комнаты 8 и 11 метров. Пластиковые окна. натяжные потолки. В коридоре и на кухне на полу керамическая плитка. Ванная в кафеле. Лоджия большая. обшита деревом, пол с подогревом. Рядом с домом две школы, детский сад, остановка транспорта в шаговой доступности. Парк "Сагайдак". До тц "Карнавал" 2 остановки на трамвае. Помогу с ипотекой. ID объекта в нашей базе: 25635
    размещено: 20.10.2025 , обновлено: 25.11.2025

    1-к квартира, Бебеля, 136

    • 34.8 м2
    • 10/16 этаж
    • Состояние: удовлетворительное
    4 000 000 ₽ (114900 ₽/м2)
    Продам однокомнатнатную квартиру, общей площадью 34.8 кв.м., расположенная на десятом этаже шестнадцатиэтажного панельного дома, построенного в 1980 году. Дом находится в Железнодорожном районе Новая сортировка по адресу Бебеля 136. Жилая площадь составляет 18 квадратных метров, предоставляя достаточно пространства для комфортного размещения мебели и создания уютной обстановки. Кухня площадью 6 квадратных метров идеально подойдет для приготовления и приема пищи. В квартире имеется лоджия, который можно обустроить под зону отдыха или место для хранения. Светлая, тёплая квартира. Центральное отопление. Холодное и горячее водоснабжение, есть счетчики учета расхода воды. Косметический ремонт. Окна пластиковые, сейф двери. Санузел совмещенный, что является практичным решением для экономии пространства. Из окон открывается приятный вид на тихий двор, где расположена детская и спортивная площадка – отличное место для игр ваших детей. Инфраструктура полностью развита-все необходимые заведения в шаговой доступности. Школы, детские сад, магазины, поликлиника. Возможна покупка в ипотеку и за материнский капитал. Один совершеннолетний собственник, документы к продаже готовы. Помогу в оформлении документов. Реальному покупателю торг.
    размещено: 19.10.2025 , обновлено: 25.11.2025

    1-к квартира, Седова, 26

    • 41 м2
    • 1/16 этаж
    • Состояние: удовлетворительное
    3 949 000 ₽ (96300 ₽/м2)
    СРОЧНО!!! Недорого!!!Продаётся 1-к квартира!!! Удобное месторасположение Рядом детский сад, школа. Открытая парковка во дворе. Остановки общественного транспорта ТОРГ!!! Мат. Капитал, Военная ипотека. ЗВОНИТЕ, ПИШИТЕ, ДОГОВОРИМСЯ!!!.... ID объекта в нашей базе: 17980
    размещено: 06.10.2025 , обновлено: 3.11.2025

    1-к квартира, Софьи Перовской, 106а

    • 26 м2
    • 8/16 этаж
    • Состояние: хорошее
    4 360 000 ₽ (167700 ₽/м2)
    В продаже просторная однокомнатная квартира в новом ЖК.В квартире выполнен свежий косметический ремонт, обои, ламинат, санузел в кафеле.В шаговой доступности расположены торговые и спортивные объекты, образовательные и медицинские учреждения. Быстрый выход на сделку, доступна ипотека 6%. Успевайте! ID объекта в нашей базе: 11821
    размещено: 07.07.2025 , обновлено: 4.11.2025

    1-к квартира, Седова, 17

    • 35.1 м2
    • 9/16 этаж
    • Состояние: хорошее
    3 850 000 ₽ (109700 ₽/м2)
    Объект № 192818. Вашему вниманию предлагается уютная квартира на Новой Сортировке. Дом улучшенной планировки. Вся инфраструктура присутствует. Квартира чистая, с косметическим ремонтом. Плюс огромная лоджия. Чистая продажа, без обременений. Приглашаем на просмотр! ***Гарантийный сертификат «Защита собственности» по данному объекту в подарок***
    размещено: 01.07.2025 , обновлено: 25.11.2025

    1-к квартира, Автомагистральная, 17

    • 41 м2
    • 1/16 этаж
    • Состояние: плохое
    3 600 000 ₽ (87800 ₽/м2)
    Объект № 191888. Продаётся уютная однокомнатная квартира площадью 41.3, идеальный вариант для тех, кто ищет спокойное жильё в шаговой доступности от всех необходимых объектов инфраструктуры. В квартире есть отдельный санузел и лоджия. Квартира без ремонта, что даёт отличную возможность воплотить все ваши дизайнерские идеи и создать интерьер своей мечты. Дом в хорошем состоянии огорожен забором, что обеспечивает комфортное проживание. Здесь есть всё необходимое для современной жизни. Рядом с домом расположены школы, детские сады и клиники, поэтому можно не переживать за доступность всех нужных услуг. В пешей доступности также находятся магазины, где можно приобрести всё необходимое для дома. Квартира продаётся без обременений, документы готовы к сделке. Подходит для покупки в ипотеку. Не упустите шанс стать обладателем уютной квартиры в отличном районе! Свяжитесь с нами, чтобы записаться на просмотр и обсудить все детали сделки. Мы будем рады ответить на все ваши вопросы и помочь с покупкой вашего нового дома. ***Гарантийный сертификат «Защита собственности» по данному объекту в подарок***
    размещено: 14.05.2025 , обновлено: 24.11.2025

    1-к квартира, Техническая, 12

    • 34.7 м2
    • 9/16 этаж
    • Состояние: хорошее
    3 800 000 ₽ (109500 ₽/м2)
    Предлагаем вашему вниманию замечательную квартиру рядом с пapком Таганcкaя cлoбoда и ТЦ Пекин.Удобная трaнспopтная развязкa, в доступной близости остановки общетвенного транспорта (трамваи, маршрутки, автобусы).Квaртиpa пoслe коcметичecкого ремонтa, имеет отличную планировку (кухня - гостинная + изолированная комната) и пригодна для полноценного проживания.Есть большая лоджия, где можно организовать зону отдыха или место для хранения.При продаже готовы оставить практически всю мебель, в том числе хороший кухонный гарнитур.В кваpтирe много рoзеток и зон освещения , в том числе на балконе .Идеально подойдёт для молодой семьи или под сдачу.Звони, мы ждём тебя на показ!Показы по предварительной договорённости.Возможен небольшой ТОРГ! ID объекта в нашей базе: 9229
    размещено: 08.05.2025 , обновлено: 20.11.2025

    1-к квартира, Софьи Перовской, 104

    • 22.2 м2
    • 7/15 этаж
    • Состояние: хорошее
    4 150 000 ₽ (186900 ₽/м2)
    Студия в современном ЖК "Абрикос" — идеальный вариант для студентов и инвесторов! Продается уютная студия 23 кв. м на 7 этаже в новом доме с ярким названием "Абрикос". Ключевые преимущества: Расположение: рядом несколько высших учебных заведений, что делает эту квартиру идеальным вариантом для родителей, которые хотят приобрести жилье для своих детей-студентов. Инвестиционная привлекательность: район пользуется стабильным спросом на аренду, что делает эту студию выгодным объектом для инвестиций. Новый дом: современные коммуникации, благоустроенный двор и привлекательная архитектура дома. Этаж: 7-й этаж — оптимальное сочетание тишины и отличных видов. Инфраструктура: в шаговой доступности магазины, кафе, остановки общественного транспорта. Документы: без ипотеки. Студия отлично подойдет как для комфортного проживания, так и для сдачи в аренду с высоким спросом! Не упустите возможность! Звоните и записывайтесь на просмотр прямо сейчас. ID объекта в нашей базе: 10080
    размещено: 18.12.2024 , обновлено: 9.11.2025

    1-к квартира, Пехотинцев, 2к3

    • 32.3 м2
    • 2/5 этаж
    • Состояние: хорошее
    3 200 000 ₽ (99100 ₽/м2)
    Продается уютная однокомнатная квартира, выполнен свежий косметический ремонт. Удобная планировка. Вместительный шкаф-купе в прихожей, кухонный гарнитур, шкаф в комнате и светильники остаются в подарок будущему владельцу.Вид из окон во двор, в шаговой доступности (3 минуты пешком) супермаркеты Кировский и Пятерочка, аптека, пекарня и другие объекты обслуживания. Очень зеленый большой двор с детской площадкой. Соседи приличные, не шумные.1 совершеннолетний собственник, квартира без обременений, остальное по телефону ID объекта в нашей базе: 11641
    размещено: 28.04.2024 , обновлено: 29.11.2025

    1-к квартира, Бебеля, 144

    • 30 м2
    • 2/14 этаж
    • Состояние: хорошее
    4 050 000 ₽ (135000 ₽/м2)
    Предлагаю вашему вниманию квартиру- студию в самом центре района Н. Сортировки. Квартира очень чистая, ухоженная с положительной энергетикой. Жилая комната 22 кв.м., с двумя окнами и выходом на балкон, высота потолков – 2,7 м. В ванной комнате кафельная плитка и хорошая, чистая сантехника. Новому собственнику в подарок остается кухонный гарнитур, очень вместительный шкаф-купе в комнате и шкаф-купе в прихожей. Чистый подъезд и приличные соседи. Дом 2013 года постройки, закрытая придомовая территория. Въезд во двор осуществляется через ворота. В тихом дворе современная детская площадка и охраняемая парковка. Вся инфраструктура в шаговой доступности (детские сады, школы, крупные супермаркеты, остановки общественного транспорта во все направления города, ТРЦ «Карнавал», гипермаркет «OBI», парк отдыха «Таганская Слобода»). Собственник один. Ипотека возможна, обременений и ограничений нет. Показ в удобное для вас время по договоренности. Звоните и записывайтесь на просмотр. ID объекта в нашей базе: 3239
    размещено: 06.02.2024 , обновлено: 19.11.2025

Новостройки Екатеринбург, мкр-н. Новая Сортировка

Приоритет

Увеличивает просмотры в 3 раза

Ваше объявление показывается в списке выше обычных объявлений. подключить