На Метре реклама - только нормальная. Никакого шок-контента.
Помогайте независимому ресурсу, как он помогает вам. Удачи!
Новостройки Котт. посёлки Объявления Динамика цен и сделок

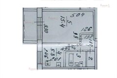
Продажа квартиры: Екатеринбург, ул. Бакинских комиссаров, 114 (Уралмаш)

  • опубликовано 19.08.2020 , обновлено 5.01.2026
  • 193
Рынок:вторичный
Количество комнат:3
Общая площадь:58.3 м2
Площадь кухни:7 м2
Этаж/Этажность дома:9 / 9
Балкон/лоджия:лоджия
Состояние:хорошее
Цена:
3 600 000
Объявление снято с публикации
Коммунальные платежи:оплачиваются отдельно
Ипотека:возможна

Продам квартиру стандартной планировки. Все комнаты изолированы. Окна пластик. Санузел кафель. В двух комнатах натяжной потолок. Один взрослый собственник. Ипотека возможна. Никто не прописан, быстрый выход на сделку.
ID объекта в нашей базе: 1862

Объявление снято с публикации

Ипотечный калькулятор

лет
%
Сумма кредита
3600000 ₽
Платеж
22 540 ₽

Актуальные предложения в этом доме

  • 1-к квартира, Бакинских комиссаров, 114

    • 28 м2
    • 5/9 этаж
    • Состояние:
    4 100 000 ₽ (146400 ₽/м2)
    Объект № 196631. В продаже отличная однокомнатная квартира не требующая вложений! Инфраструктура: крупный торговый центр, магазины, детские сады и школа. Остановки транспорта. Один взрослый собственник. Быстрый выход на сделку. Торг ***Гарантийный сертификат «Защита собственности» по данному объекту в подарок***
    размещено: 05.01.2026 , обновлено: 8.01.2026

История предложений в этом доме

объявление снято с публикации в продаже комнат площадь этаж цена,
Екатеринбург, ул. Бакинских комиссаров, 114 (Уралмаш) - фото квартиры 30 декабря 2022 90 дн. 2 42.5 3/9 3 600 000
Екатеринбург, ул. Бакинских комиссаров, 114 (Уралмаш) - фото квартиры 3 декабря 2022 90 дн. 2 42.5 3/9 3 690 000
Екатеринбург, ул. Бакинских комиссаров, 114 (Уралмаш) - фото квартиры 18 ноября 2022 90 дн. 2 44 2/9 5 250 000
29 октября 2022 90 дн. 3 57 1/9 4 400 000
Екатеринбург, ул. Бакинских комиссаров, 114 (Уралмаш) - фото квартиры 14 декабря 2021 90 дн. 3 57 2/9 4 700 000
Екатеринбург, ул. Бакинских комиссаров, 114 (Уралмаш) - фото квартиры 3 февраля 2021 90 дн. 2 43 6/9 2 900 000
Екатеринбург, ул. Бакинских комиссаров, 114 (Уралмаш) - фото квартиры 18 сентября 2020 90 дн. 3 58 7/9 4 000 000
Екатеринбург, ул. Бакинских Комиссаров, 114 (Уралмаш) - фото квартиры 15 января 2020 90 дн. 4 64 9/9 3 700 000
Екатеринбург, ул. Бакинских Комиссаров, 114 (Уралмаш) - фото квартиры 5 октября 2019 90 дн. 2 36 3/9 2 500 000
15 августа 2018 92 дн. 4 64 1/9 3 690 000
26 сентября 2017 62 дн. 3 57.8 3/9 3 130 000
7 февраля 2016 62 дн. 2 37 1/9 2 480 000
2 июня 2014 61 дн. 2 43 3/9 3 200 000

Похожие предложения о продаже квартир в Екатеринбурге (Уралмаш)

  • 3-к квартира, Новаторов, 9

    • 52 м2
    • 5/5 этаж
    • Состояние: хорошее
    4 590 000 ₽ (88300 ₽/м2)
    Объект № 195090. Продаётся просторная 3-комнатная квартира на Уралмаше. Идеальное сочетание уюта, комфорта и выгодной локации! Ваш новый дом — это место, где хочется жить. Простор и свет: удобная планировка, окна на разные стороны. Очень светло, чисто и уютно. Атмосфера спокойствия: тихий дом и спокойные соседи. Идеальный микроклимат: отличная вентиляция и остеклённый балкон для вашего комфорта в любое время года. Вся инфраструктура под рукой: развитая сеть магазинов, школ, поликлиник и кафе в шаговой доступности. Всего 10-15 минут неспешной ходьбы до метро. Чистая продажа! Один взрослый собственник. Не упустите шанс купить не просто квартиру, а дом с прекрасной атмосферой! ***Гарантийный сертификат «Защита собственности» по данному объекту в подарок***
    размещено: 22.10.2025 , обновлено: 30.11.2025
  • 3-к квартира, Коммунистическая, 6

    • 53.6 м2
    • 1/5 этаж
    • Состояние: плохое
    4 100 000 ₽ (76500 ₽/м2)
    Дом блочный, окна на две стороны, широкие подоконники Квартира теплая, но требует капитального ремонта. В шаговой доступности метро, остановки общественного транспорта, магазины, школы и детские сады. ID объекта в нашей базе: 6646
    размещено: 21.10.2025 , обновлено: 4.01.2026
  • 3-к квартира, Машиностроителей, 31

    • 56 м2
    • 5/5 этаж
    • Состояние: хорошее
    4 500 000 ₽ (80400 ₽/м2)
    Объект № 194168. Продам 3-комнатную квартиру в самом сердце Уралмаша. Квартира теплая, светлая. Кухня 8 кв. м, комнаты изолированные, что позволяет выделить каждому члену семьи свое пространство. Новым собственникам в подарок оставим всю бытовую технику и мебель. В подъезде выполнен ремонт, соседи все порядочные. Рядом с домом расположены: школа, детский сад, поликлиника №14, детская многопрофильная поликлиника №15, гипермаркет Лента, Храм. В шаговой доступности остановки общественного транспорта. ***Гарантийный сертификат «Защита собственности» по данному объекту в подарок***
    размещено: 08.09.2025 , обновлено: 22.12.2025
  • 3-к квартира, Кузнецова, 7

    • 86 м2
    • 15/27 этаж
    • Состояние: удовлетворительное
    4 000 000 ₽ (46500 ₽/м2)
    Объект № 191032. Продам 1/3 долю в трёхкомнатной квартире на 15 этаже. ЖК Северное сияние. В подъезде два грузовых и два пассажирских лифта, закрытый двор. Магазины, больницы, общественный транспорт, школы, садики и другая инфраструктура в шаговой доступности. Звоните, вся информация по телефону. ***Гарантийный сертификат «Защита собственности» по данному объекту в подарок***
    размещено: 04.04.2025 , обновлено: 8.01.2026

Новостройки Екатеринбург, мкр-н. Уралмаш

Приоритет

Увеличивает просмотры в 3 раза

Ваше объявление показывается в списке выше обычных объявлений. подключить