На Метре реклама - только нормальная. Никакого шок-контента.
Помогайте независимому ресурсу, как он помогает вам. Удачи!
Новостройки Котт. посёлки Объявления Динамика цен и сделок

Продажа квартиры: Екатеринбург, ул. 40-летия Комсомола, 26 (ЖБИ)

  • опубликовано 12.09.2020 , обновлено 30.06.2025
  • 98
Рынок:вторичный
Срок сдачи: 1975 года
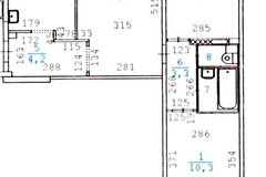
Количество комнат:2
Общая площадь:58.4 м2
Жилая площадь:36.8 м2
Площадь кухни:7 м2
Этаж/Этажность дома:3 / 9
Год постройки:1975
Балкон/лоджия:лоджия
Состояние:хорошее
Цена:
3 250 000
Объявление снято с публикации
Коммунальные платежи:оплачиваются отдельно
Ипотека:возможна

Предлагаем к продаже квартиру. Около подъезда своя парковка, в двух шагах от дома два продуктовых магазина (Кировский, Магнит), две школы напротив дома, новая облагороженная детская площадка,чистый подъезд, работающий лифт, 2 минуты до остановки автобусов и маршруток, 8 минут до трамвайного кольца. Приглашаем на просмотр!
ID объекта в нашей базе: 2930

Объявление снято с публикации

Ипотечный калькулятор

лет
%
Сумма кредита
3250000 ₽
Платеж
22 540 ₽

Актуальные предложения в этом доме

  • 3-к квартира, 40-летия Комсомола, 26

    • 58.1 м2
    • 8/9 этаж
    • Состояние:
    6 900 000 ₽ (118800 ₽/м2)
    Продается уютная 3х комнатная квартира в мкр-не ЖБИ.Инфраструктура района:Школа № 151 (во дворе), детские сады № 144, 313, 469, лесопарк "Каменные палатки", продуктовые магазины в пешей доступности, ТЦ "Гулливер", ТЦ "КомсоМолл" (Баденленд).Рядом с домом расположены остановки общественного транспорта: конечная остановка трамвая (9 минут пешком),остановка автобуса (4 минуты пешком).Дом расположен далеко от дороги, нет шума и пыли.Квартира:Произведена согласованная перепланировка: увеличена площадь кухни, гостиная, две изолированные спальни, сан.узел раздельный. Качественный ремонт:1). Замена пола на деревянном основании: новые деревянные лаги на винтовых опорах, фанера 20 мм, ламинат;2). По внешнему периметру утепление стен по бетонному основанию шириной 1 метр под полом базальтовой плитой;3). Заменена полностью электропроводка на медную;4). Заменены трубы и стояки водоснабжения, канализации на полипропиленовые и ПВХ. Счетчики учета установлены в коробах с лючками (удобно обслуживать и списывать показания);5). Приборы отопления все биметаллические с запорной арматурой (кранами);6). Электроводонагреватели на ванную 100 литров на кухню 30 литров (используются в период отключений или опрессовок);7). Отремонтированы наружные меж панельные швы фасада;8). Заменены окна и балконная дверь на пластиковые;9). Заменены входные двери в квартиру;10). Пластиковое остекление балкона, потолок и стены обшиты рейкой, пол деревянный, электрическое освещение;11). Во всех помещениях квартиры натяжные потолки;12). Гидроизоляция пола в ванной комнате.Остаётся кухонный гарнитур с бытовой техникой, мягкая и корпусная мебель.Закрытый тамбур на две квартиры с вместительной кладовкой, окна квартиры расположены на разные стороны, в квартире всегда светло.Квартира физически освобождена, документы готовы, "чистая продажа", в собственности более 20 лет, два совершеннолетних собственника, без обременений и арестов.Просмотр в удобное время, по предварительной договоренности. ID объекта в нашей базе: 3767
    размещено: 10.12.2025 , обновлено: 12.12.2025

История предложений в этом доме

объявление снято с публикации в продаже комнат площадь этаж цена,
Екатеринбург, ул. 40-летия Комсомола, 26 (ЖБИ) - фото квартиры 11 декабря 2025 90 дн. 3 58.1 8/9 6 900 000
Екатеринбург, ул. 40-летия Комсомола, 26 (ЖБИ) - фото квартиры 7 октября 2025 90 дн. 3 58.5 6/9 5 390 000
Екатеринбург, ул. 40-летия Комсомола, 26 (ЖБИ) - фото квартиры 17 октября 2025 90 дн. 3 58.2 4/9 5 100 000
Екатеринбург, ул. 40-летия Комсомола, 26 (ЖБИ) - фото квартиры 27 августа 2025 90 дн. 3 63 4/9 6 700 000
Екатеринбург, ул. 40-летия Комсомола, 26 (ЖБИ) - фото квартиры 21 ноября 2024 90 дн. 2 43 2/9 3 600 000
Екатеринбург, ул. 40-летия Комсомола, 26 (ЖБИ) - фото квартиры 17 марта 2024 90 дн. 2 43.7 9/9 4 550 000
Екатеринбург, ул. 40-летия Комсомола, 26 (ЖБИ) - фото квартиры 28 января 2024 90 дн. 3 57.6 9/9 5 490 000
Екатеринбург, ул. 40-летия Комсомола, 26 (ЖБИ) - фото квартиры 21 июля 2023 90 дн. 3 58 1/9 5 080 000
Екатеринбург, ул. 40-летия Комсомола, 26 (ЖБИ) - фото квартиры 2 марта 2023 90 дн. 3 58 2/9 5 500 000
Екатеринбург, ул. 40-летия Комсомола, 26 (ЖБИ) - фото квартиры 2 марта 2023 90 дн. 3 58 2/9 5 270 000
Екатеринбург, ул. 40-летия Комсомола, 26 (ЖБИ) - фото квартиры 5 апреля 2023 90 дн. 2 36 3/9 3 600 000
Екатеринбург, ул. 40-летия Комсомола, 26 (ЖБИ) - фото квартиры 14 февраля 2023 90 дн. 3 58 2/9 5 340 000
Екатеринбург, ул. 40-летия Комсомола, 26 (ЖБИ) - фото квартиры 10 января 2023 90 дн. 3 58 2/9 5 350 000
Екатеринбург, ул. 40-летия Комсомола, 26 (ЖБИ) - фото квартиры 18 января 2023 90 дн. 2 42 3/9 3 650 000
Екатеринбург, ул. 40-летия Комсомола, 26 (ЖБИ) - фото квартиры 30 ноября 2022 90 дн. 3 58 2/9 5 200 000
Екатеринбург, ул. 40-летия Комсомола, 26 (ЖБИ) - фото квартиры 24 сентября 2022 90 дн. 3 58 2/9 5 350 000
Екатеринбург, ул. 40-летия Комсомола, 26 (ЖБИ) - фото квартиры 29 июля 2022 90 дн. 3 58 4/9 4 700 000
Екатеринбург, ул. 40-летия Комсомола, 26 (ЖБИ) - фото квартиры 15 июля 2022 90 дн. 3 58 4/9 4 130 000
Екатеринбург, ул. 40-летия Комсомола, 26 (ЖБИ) - фото квартиры 16 июня 2022 90 дн. 3 58 4/9 4 230 000
9 февраля 2023 90 дн. 2 43 3/9 3 500 000
Екатеринбург, ул. 40-летия Комсомола, 26 (ЖБИ) - фото квартиры 27 апреля 2022 90 дн. 3 58 4/9 4 280 000
Екатеринбург, ул. 40-летия Комсомола, 26 (ЖБИ) - фото квартиры 11 марта 2022 90 дн. 2 43 5/9 3 500 000
Екатеринбург, ул. 40-летия Комсомола, 26 (ЖБИ) - фото квартиры 27 января 2022 90 дн. 2 36 5/9 3 300 000
Екатеринбург, ул. 40-летия Комсомола, 26 (ЖБИ) - фото квартиры 4 декабря 2021 90 дн. 3 58.3 2/9 5 300 000
Екатеринбург, ул. 40-летия Комсомола, 26 (ЖБИ) - фото квартиры 7 октября 2021 90 дн. 2 43 6/9 5 240 000
Екатеринбург, ул. 40-летия Комсомола, 26 (ЖБИ) - фото квартиры 12 июня 2021 90 дн. 3 58.1 4/9 4 500 000
Екатеринбург, ул. 40-летия Комсомола, 26 (ЖБИ) - фото квартиры 1 мая 2021 90 дн. 2 43 2/9 3 200 000
Екатеринбург, ул. 40-летия Комсомола, 26 (ЖБИ) - фото квартиры 15 сентября 2021 90 дн. 1 30 5/9 3 000 000
Екатеринбург, ул. 40-летия Комсомола, 26 (ЖБИ) - фото квартиры 13 января 2021 90 дн. 2 42 2/9 3 780 000
Екатеринбург, ул. 40-летия Комсомола, 26 (ЖБИ) - фото квартиры 12 декабря 2020 90 дн. 2 43 4/9 3 499 000

Похожие предложения о продаже квартир в Екатеринбурге (ЖБИ)

  • 2-к квартира, Бетонщиков, 6

    • 38.6 м2
    • 1/3 этаж
    • Состояние: хорошее
    3 300 000 ₽ (85500 ₽/м2)
    В продаже две комфортные комнаты 24,2 кв.м и 14,4 м.кв в трехкомнатной квартире. Двор тихий, спокойный, есть детская площадка. Место для парковки всегда найдется. Транспорт, школы, садики, магазины в пешей доступности. Ждем на просмотр. Торг уместен. ID объекта в нашей базе: 9893
    размещено: 23.06.2025 , обновлено: 11.12.2025
  • 2-к квартира, Панельная, 17к1

    • 24 м2
    • 4/5 этаж
    • Состояние: хорошее
    2 920 000 ₽ (121700 ₽/м2)
    Продаём уютную небольшую двухкомнатную квартиру на ЖБИ. В малосемейном доме. Не Общежитие! Площадь квартиры = 24 кв.м. Квартира в хорошем состоянии: окна пластиковые, санузел свой в квартире, стоят счетчики ХВС и ГВС. Квартира тёплая, дом кирпичный. Отличное местоположение - рядом остановки общественного транспорта (трамвай и автобус), магазины и торговые центры (Лента, Монетка, Пятёрочка, Кировский), ТРЦ Комсомолл, детская и взрослая поликлиники. Во дворе - школа № 151 и детская школа искусств им. Н.А. Римского-Корсакова. Инфраструктура района очень развита: школы и детские сады рядом с домом. Много бесплатных кружков для детей. Главная достопримечательность района - лесопарковая зона и озеро Шарташ! Можно совершать вечерние прогулки, спортивные пробежки, отдохнуть на природе в выходные, не уезжая далеко за город! Ждём вас на просмотр! Ипотека возможна (если необходимо, помогу в оформлении ипотеки)! ID объекта в нашей базе: 11113
    размещено: 03.09.2025 , обновлено: 5.12.2025

Новостройки Екатеринбург, мкр-н. ЖБИ

Приоритет

Увеличивает просмотры в 3 раза

Ваше объявление показывается в списке выше обычных объявлений. подключить