На Метре реклама - только нормальная. Никакого шок-контента.
Помогайте независимому ресурсу, как он помогает вам. Удачи!
Новостройки Котт. посёлки Объявления Динамика цен и сделок

Продажа квартиры: Екатеринбург, ул. 40-летия Комсомола, 26 (ЖБИ)

  • опубликовано 23.09.2022 , обновлено 22.11.2025
  • 44
Рынок:вторичный
Количество комнат:3
Общая площадь:58 м2
Жилая площадь:36 м2
Площадь кухни:6 м2
Этаж/Этажность дома:2 / 9
Санузел:раздельный
Отделка:евроремонт
Мебель:есть мебель
Балкон/лоджия:лоджия
Состояние:идеальное
Цена:
5 200 000
Объявление снято с публикации
Коммунальные платежи:оплачиваются отдельно
Ипотека:возможна

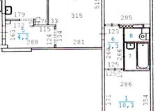
Продается 3-комнатная квартира, с ремонтом и частично с мебелью. Три изолированные комнатные, раздельные ванна и туалет, полулоджия. Все окна выходят во двор. Перепланировок в квартире не было.
Прямо рядом с домом две школы, несколько детских садиков, спортивная площадка, футбольное поле. Остановка транспорта. Удобный выезд на Сибирский тракт, на Егоршинский подход, на Калину. Чистая продажа, никаких обременений, один взрослый собственник.
ID объекта в нашей базе: 2630

Объявление снято с публикации

Ипотечный калькулятор

лет
%
Сумма кредита
5200000 ₽
Платеж
22 540 ₽

Актуальные предложения в этом доме

  • 3-к квартира, 40-летия Комсомола, 26

    • 58.1 м2
    • 8/9 этаж
    • Состояние:
    6 900 000 ₽ (118800 ₽/м2)
    Продается уютная 3х комнатная квартира в мкр-не ЖБИ.Инфраструктура района:Школа № 151 (во дворе), детские сады № 144, 313, 469, лесопарк "Каменные палатки", продуктовые магазины в пешей доступности, ТЦ "Гулливер", ТЦ "КомсоМолл" (Баденленд).Рядом с домом расположены остановки общественного транспорта: конечная остановка трамвая (9 минут пешком),остановка автобуса (4 минуты пешком).Дом расположен далеко от дороги, нет шума и пыли.Квартира:Произведена согласованная перепланировка: увеличена площадь кухни, гостиная, две изолированные спальни, сан.узел раздельный. Качественный ремонт:1). Замена пола на деревянном основании: новые деревянные лаги на винтовых опорах, фанера 20 мм, ламинат;2). По внешнему периметру утепление стен по бетонному основанию шириной 1 метр под полом базальтовой плитой;3). Заменена полностью электропроводка на медную;4). Заменены трубы и стояки водоснабжения, канализации на полипропиленовые и ПВХ. Счетчики учета установлены в коробах с лючками (удобно обслуживать и списывать показания);5). Приборы отопления все биметаллические с запорной арматурой (кранами);6). Электроводонагреватели на ванную 100 литров на кухню 30 литров (используются в период отключений или опрессовок);7). Отремонтированы наружные меж панельные швы фасада;8). Заменены окна и балконная дверь на пластиковые;9). Заменены входные двери в квартиру;10). Пластиковое остекление балкона, потолок и стены обшиты рейкой, пол деревянный, электрическое освещение;11). Во всех помещениях квартиры натяжные потолки;12). Гидроизоляция пола в ванной комнате.Остаётся кухонный гарнитур с бытовой техникой, мягкая и корпусная мебель.Закрытый тамбур на две квартиры с вместительной кладовкой, окна квартиры расположены на разные стороны, в квартире всегда светло.Квартира физически освобождена, документы готовы, "чистая продажа", в собственности более 20 лет, два совершеннолетних собственника, без обременений и арестов.Просмотр в удобное время, по предварительной договоренности. ID объекта в нашей базе: 3767
    размещено: 22.11.2025 , обновлено: 26.11.2025

История предложений в этом доме

объявление снято с публикации в продаже комнат площадь этаж цена,
Екатеринбург, ул. 40-летия Комсомола, 26 (ЖБИ) - фото квартиры 7 октября 2025 90 дн. 3 58.5 6/9 5 390 000
Екатеринбург, ул. 40-летия Комсомола, 26 (ЖБИ) - фото квартиры 17 октября 2025 90 дн. 3 58.2 4/9 5 100 000
Екатеринбург, ул. 40-летия Комсомола, 26 (ЖБИ) - фото квартиры 27 августа 2025 90 дн. 3 63 4/9 6 700 000
Екатеринбург, ул. 40-летия Комсомола, 26 (ЖБИ) - фото квартиры 21 ноября 2024 90 дн. 2 43 2/9 3 600 000
Екатеринбург, ул. 40-летия Комсомола, 26 (ЖБИ) - фото квартиры 17 марта 2024 90 дн. 2 43.7 9/9 4 550 000
Екатеринбург, ул. 40-летия Комсомола, 26 (ЖБИ) - фото квартиры 28 января 2024 90 дн. 3 57.6 9/9 5 490 000
Екатеринбург, ул. 40-летия Комсомола, 26 (ЖБИ) - фото квартиры 21 июля 2023 90 дн. 3 58 1/9 5 080 000
Екатеринбург, ул. 40-летия Комсомола, 26 (ЖБИ) - фото квартиры 2 марта 2023 90 дн. 3 58 2/9 5 500 000
Екатеринбург, ул. 40-летия Комсомола, 26 (ЖБИ) - фото квартиры 2 марта 2023 90 дн. 3 58 2/9 5 270 000
Екатеринбург, ул. 40-летия Комсомола, 26 (ЖБИ) - фото квартиры 5 апреля 2023 90 дн. 2 36 3/9 3 600 000
Екатеринбург, ул. 40-летия Комсомола, 26 (ЖБИ) - фото квартиры 14 февраля 2023 90 дн. 3 58 2/9 5 340 000
Екатеринбург, ул. 40-летия Комсомола, 26 (ЖБИ) - фото квартиры 10 января 2023 90 дн. 3 58 2/9 5 350 000
Екатеринбург, ул. 40-летия Комсомола, 26 (ЖБИ) - фото квартиры 18 января 2023 90 дн. 2 42 3/9 3 650 000
Екатеринбург, ул. 40-летия Комсомола, 26 (ЖБИ) - фото квартиры 24 сентября 2022 90 дн. 3 58 2/9 5 350 000
Екатеринбург, ул. 40-летия Комсомола, 26 (ЖБИ) - фото квартиры 29 июля 2022 90 дн. 3 58 4/9 4 700 000
Екатеринбург, ул. 40-летия Комсомола, 26 (ЖБИ) - фото квартиры 15 июля 2022 90 дн. 3 58 4/9 4 130 000
Екатеринбург, ул. 40-летия Комсомола, 26 (ЖБИ) - фото квартиры 16 июня 2022 90 дн. 3 58 4/9 4 230 000
9 февраля 2023 90 дн. 2 43 3/9 3 500 000
Екатеринбург, ул. 40-летия Комсомола, 26 (ЖБИ) - фото квартиры 27 апреля 2022 90 дн. 3 58 4/9 4 280 000
Екатеринбург, ул. 40-летия Комсомола, 26 (ЖБИ) - фото квартиры 11 марта 2022 90 дн. 2 43 5/9 3 500 000
Екатеринбург, ул. 40-летия Комсомола, 26 (ЖБИ) - фото квартиры 27 января 2022 90 дн. 2 36 5/9 3 300 000
Екатеринбург, ул. 40-летия Комсомола, 26 (ЖБИ) - фото квартиры 4 декабря 2021 90 дн. 3 58.3 2/9 5 300 000
Екатеринбург, ул. 40-летия Комсомола, 26 (ЖБИ) - фото квартиры 7 октября 2021 90 дн. 2 43 6/9 5 240 000
Екатеринбург, ул. 40-летия Комсомола, 26 (ЖБИ) - фото квартиры 12 июня 2021 90 дн. 3 58.1 4/9 4 500 000
Екатеринбург, ул. 40-летия Комсомола, 26 (ЖБИ) - фото квартиры 1 мая 2021 90 дн. 2 43 2/9 3 200 000
Екатеринбург, ул. 40-летия Комсомола, 26 (ЖБИ) - фото квартиры 15 сентября 2021 90 дн. 1 30 5/9 3 000 000
Екатеринбург, ул. 40-летия Комсомола, 26 (ЖБИ) - фото квартиры 13 января 2021 90 дн. 2 42 2/9 3 780 000
Екатеринбург, ул. 40-летия Комсомола, 26 (ЖБИ) - фото квартиры 12 декабря 2020 90 дн. 2 43 4/9 3 499 000
Екатеринбург, ул. 40-летия Комсомола, 26 (ЖБИ) - фото квартиры 1 января 2021 90 дн. 2 42.6 4/9 3 740 000
22 сентября 2020 90 дн. 2 58.4 3/9 3 250 000

Похожие предложения о продаже квартир в Екатеринбурге (ЖБИ)

  • 3-к квартира, Сиреневый, 1

    • 58 м2
    • 7/9 этаж
    • Состояние: хорошее
    6 490 000 ₽ (111900 ₽/м2)
    В продаже квартира в самом центре ЖБИ. Квартира, где всё сделано с умом и на качество! Уважаемые покупатели! Если вы устали от бесконечного поиска и хотите найти квартиру, где капитальные вложения уже сделаны, а рядом ждёт живописный парк города — это объявление для вас. Срочная продажа – это ваш шанс заключить сделку, о которой вы мечтали! Пять преимуществ, которые Вы получаете: Благодаря толстым стенам с хорошей звукоизоляцией и установке качественной сейф-двери с замком, защищенным от взлома, вы забудете о шуме соседей и будете чувствовать себя абсолютно безопасно. В этой квартире не просто косметика ! Здесь выполнены капитальные работы, которые сэкономят вам сотни тысяч: заменены стояки, выровнены стены, застеклена лоджия, заменены радиаторы отопления и главное – сделан насыпной пол Knauf по всей жилой площади квартиры! Это гарантирует идеальную основу и теплоизоляцию на десятилетия. Квартира находится в центральной части района, в окружении развитой инфраструктуры (школа №164, детские сады №41 и №313, магазины, кафе, аптеки, поликлиника и удобная транспортная развязка), но при этом в шаговой доступности от Шарташского лесопарка! Ваши выходные — это прогулки, велосипед и свежий воздух. Хорошая изолированная планировка и близость к учебным заведениям делает эту квартиру прекрасным арендным бизнесом для инвестора, уютным гнёздышком для молодой семьи и надежным стартом для молодежи. Бонус для реального покупателя. Кухонный гарнитур и плита остаются в квартире. (Остальная мебель и техника обсуждается индивидуально.) Ваше преимущество – возможность доработать под себя: Да, ванная комната и санузел требуют ремонта. Подготовлены дверные проемы для установки межкомнатных дверей. Это возможность создать дизайн своей мечты с нуля и сэкономить при покупке, делая ремонт под свой вкус и бюджет. Квартира ТЕПЛАЯ, УЮТНАЯ, с отличной планировкой. СРОЧНО! Собственник готов к диалогу и конструктивному торгу с реальным покупателем! Не откладывайте звонок! Звоните прямо сейчас! Организую показ в удобное для вас время. ID объекта в нашей базе: 26093
    размещено: 26.11.2025 , обновлено: 27.11.2025
  • 3-к квартира, Сыромолотова, 7

    • 64 м2
    • 8/9 этаж
    • Состояние: хорошее
    6 180 000 ₽ (96600 ₽/м2)
    Продается квартира в районе ЖБИ с 3 изолированными комнатами, отдельной кухней, изолированным санузлом. Сделан косметический ремонт, ванная- кафель, счетчики на воду, электричество, лоджия – остекленена. Поменяны стояки водоснабжения, канализации.Чистый подъезд, новый лифт, хорошие соседи на этаже. Отгорожена секция на 4 квартиры - общий большой коридор, в котором можно хранить велосипеды и многое другое. При продаже остается кухонный гарнитур и большая часть обстановки. Во дворе садик, Гимназия № 45 в соседнем доме, рядом КОСК , лесопарк и озеро Шарташ. Хорошая УК, чисто. Красивая придомовая территория с цветами, газоном, клумбами.Покажем в удобное для Вас время, поможем с ипотекой. Все магазины рядом, поликлиники, КОР, остановки общественного транспорта, Шарташский лесопарк шаговой доступности. Уральский Дом Недвижимости гарантирует юридическую чистоту сделки, нет ограничений, обременений, квартира освобождена, быстрый выход на сделку, помощь в одобрении ипотеки. Звоните, мы обязательно договоримся.
    размещено: 20.10.2025 , обновлено: 22.11.2025
  • 3-к квартира, Сиреневый, 21

    • 58.6 м2
    • 7/9 этаж
    • Состояние: удовлетворительное
    5 475 000 ₽ (93400 ₽/м2)
    Предлагаем вашему вниманию квартиру , которая станет отличным вариантом для тех, кто ценит комфорт и практичность.Основные преимущества:• Просторная планировка• Три изолированные комнаты• Удобная кухня• Раздельный санузел• Приличные размеры прихожей• Дом стоит в глубине двора в дали от шума дорог???? Особенности квартиры:• Установлены пластиковые окна• Проведена замена коммуникаций???? Требуется ремонт - это ваша возможность:• Реализовать любые дизайнерские решения• Сделать современный ремонт по своему вкусу• Вложить средства в улучшение именно так, как вы мечтаетеРазвитая инфраструктура:• Школы и детские сады во дворе дома, ребенку не нужно будет переходить дорогу.• Магазины, пункты выдачи и аптеки, в соседних домах• Удобная транспортная развязка, до центра города 20 минут на общественном транспорте• Парк с озером, для прогулок и семейных пикниковПриятным бонусом станет возможность сразу начать ремонт, ключи готовы передать в день сделки, квартира освобождена!Не упустите шанс стать владельцем квартиры, которую можно превратить в свой идеальный дом! Звоните прямо сейчас, чтобы договориться о просмотре!P.S. Возможен торг. ID объекта в нашей базе: 8486
    размещено: 17.07.2025 , обновлено: 26.11.2025
  • 3-к квартира, Сиреневый, 21

    • 58.9 м2
    • 7/9 этаж
    • Состояние: плохое
    5 499 000 ₽ (93400 ₽/м2)
    Объект № 194280. Продам 3- квартиру с изолированными комнатами. В квартире косметический ремонт, окна пластик, установлена сейф- дверь, санузел раздельный в кафеле. Балкон застеклен. В подъезде сделан косметический ремонт, лифт поменян. В шаговой доступности вся инфраструктура: магазины, школа, остановки общественного транспорта, детский сад во дворе. Собственники совершеннолетние. Без долгов и обременений. Быстрый выход на сделку. ***Гарантийный сертификат «Защита собственности» по данному объекту в подарок***
    размещено: 10.09.2025 , обновлено: 21.11.2025
  • 3-к квартира, Сиреневый, 1

    • 57.4 м2
    • 8/9 этаж
    • Состояние: хорошее
    6 400 000 ₽ (111500 ₽/м2)
    В продаже 3-комнаятная квартиры для большой дружной семьи в мкр. ЖБИ!ХAРАКTEРИСТИKИ BAШЕЙ БУДУЩEЙ КВAPТИPЫ:- 2 изолированные спальни (10,2 м2; 11 м2);- кухня гостиная 17.5 м2, перепланировка согласована;- раздельный сан.узел;- подъезд после ремонта;ИНФРАСТРУКТУРА:- в шаговой доступности: школа 164, детские сады №41, №313, поликлиника, аптеки, магазины, ТЦ Кировский;- удобная транспортная развязка; Звоните! Не откладывайте свой звонок на завтра, ведь завтра ее может купить уже кто-то другой! РАДЫ ПОМОЧЬ РЕШИТЬ ЛЮБОЙ ВОПРОС С НЕДВИЖИМОСТЬЮ! ID объекта в нашей базе: 11649
    размещено: 29.08.2025 , обновлено: 12.11.2025

    3-к квартира, Сыромолотова, 21

    • 66.2 м2
    • 9/9 этаж
    • Состояние: хорошее
    6 000 000 ₽ (90600 ₽/м2)
    Трехкомнатная квартира улучшенной планировки с удобной планировкой, изолированными комнатами (17,3; 12,9;12.4 кв.м). Косметический ремонт, закрытый тамбур на две квартиры. Окна на разные стороны -в квартире всегда светло. На этаже есть своя вместительная кладовка. Дом удачно расположен, нет шума от дороги. В шаговой доступности магазины «Монетка», «Пятерочка», «Кировский», несколько детских садов, гимназия № 176, детская поликлиника, остановки автобуса и трамвая. Полный пакет документов, сопровождение и профессиональная поддержка сделки: -опытным агентом и юристом-помощь с ипотекой Гарантия безопасности сделки от агентства "БК_НЕДВИЖИМОСТЬ". ID объекта в нашей базе: 3088
    размещено: 26.06.2025 , обновлено: 25.11.2025

    3-к квартира, Сыромолотова, 14

    • 61.8 м2
    • 7/9 этаж
    • Состояние: хорошее
    6 100 000 ₽ (98700 ₽/м2)
    Уютная и светлая квартира на ЖБИ!Предлагаем вашему вниманию прекрасную квартиру, расположенную на территории жилого комплекса ЖБИ. Это идеальное предложение для тех, кто ценит комфорт и удобство городской жизни.▌ Особенности квартиры:- Косметический ремонт: Квартира готова к заселению, вам не придется тратить время и средства на дополнительные работы.- Застекленная лоджия: Дополнительное пространство для отдыха и хранения вещей.- Один собственник: Простота оформления документов и отсутствие юридических проблем.- Чистая продажа: Никаких обременений и скрытых обязательств.▌ Инфраструктура района:Район обладает развитой инфраструктурой, обеспечивающей комфортное проживание:- Магазины: "Монетка", "Пятерочка", "Кировский" — все необходимое рядом с домом.- Образовательные учреждения: Несколько детских садов и гимназия №176 для вашего ребенка.- Медицинские услуги: Детская поликлиника в пешей доступности.▌ Почему стоит выбрать именно эту квартиру?Эта квартира идеально подойдет для семьи, ценящей уют и комфорт. Благодаря удачному расположению, вы сможете наслаждаться спокойствием района, при этом имея быстрый доступ ко всем необходимым объектам инфраструктуры.Не упустите шанс стать владельцем прекрасной квартиры на ЖБИ! ID объекта в нашей базе: 6133
    размещено: 03.06.2024 , обновлено: 11.11.2025

Новостройки Екатеринбург, мкр-н. ЖБИ

Приоритет

Увеличивает просмотры в 3 раза

Ваше объявление показывается в списке выше обычных объявлений. подключить