На Метре реклама - только нормальная. Никакого шок-контента.
Помогайте независимому ресурсу, как он помогает вам. Удачи!
Новостройки Котт. посёлки Объявления Динамика цен и сделок

Продажа квартиры: Екатеринбург, ул. Сиреневый, 7 (ЖБИ)

  • опубликовано 17.02.2026 , обновлено 17.02.2026
  • 3
  •  
Рынок:вторичный
Срок сдачи: 1980 года
Количество комнат:3
Общая площадь:58.1 м2
Жилая площадь:41 м2
Площадь кухни:8.7 м2
Этаж/Этажность дома:9 / 9
Санузел:раздельный
Отделка:требует ремонта
Год постройки:1980
Балкон/лоджия:лоджия
Состояние:удовлетворительное
Цена:
6 500 000
Коммунальные платежи:оплачиваются отдельно
Условия продажи:«чистая» продажа
Ипотека:возможна

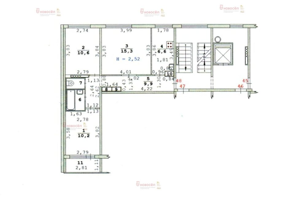
Продается квартира на 9 этаже, лифт ходит до 9 этажа. Комнаты на разные стороны. Необычная планировка, большая лоджия. ванная с санузлом раздельно. Заменена входная дверь, стоят пластиковые окна. Взрослые собственники, без обременений.
ID объекта в нашей базе: 9712

Макромир 455 — Ольга Андреевна

показать телефон

Ипотечный калькулятор

лет
%
Сумма кредита
6500000 ₽
Платеж
22 540 ₽

История предложений в этом доме

объявление снято с публикации в продаже комнат площадь этаж цена,
Екатеринбург, ул. Сиреневый, 7 (ЖБИ) - фото квартиры 10 августа 2025 90 дн. 1 28.3 6/12 3 200 000
Екатеринбург, ул. Сиреневый, 7 (ЖБИ) - фото квартиры 23 апреля 2024 90 дн. 3 58 1/9 5 500 000
Екатеринбург, ул. Сиреневый, 7 (ЖБИ) - фото квартиры 20 октября 2023 90 дн. 1 35 5/12 3 750 000
Екатеринбург, ул. Сиреневый, 7 (ЖБИ) - фото квартиры 22 июля 2023 90 дн. 2 37 7/9 3 800 000
Екатеринбург, ул. Сиреневый, 7 (ЖБИ) - фото квартиры 6 ноября 2022 90 дн. 2 42.8 8/9 3 940 000
Екатеринбург, ул. Сиреневый, 7 (ЖБИ) - фото квартиры 1 ноября 2022 90 дн. 2 42.8 8/9 3 800 000
Екатеринбург, ул. Сиреневый, 7 (ЖБИ) - фото квартиры 6 января 2023 90 дн. 3 58.5 6/12 5 800 000
Екатеринбург, ул. Сиреневый, 7 (ЖБИ) - фото квартиры 3 марта 2023 90 дн. 2 37 7/9 3 530 000
Екатеринбург, ул. Сиреневый, 7 (ЖБИ) - фото квартиры 5 октября 2022 90 дн. 3 57.5 7/9 4 200 000
Екатеринбург, ул. Сиреневый, 7 (ЖБИ) - фото квартиры 13 августа 2022 90 дн. 2 43 7/9 4 100 000
Екатеринбург, ул. Сиреневый, 7 (ЖБИ) - фото квартиры 22 ноября 2021 90 дн. 2 42.5 3/9 3 999 000
Екатеринбург, ул. Сиреневый, 7 (ЖБИ) - фото квартиры 7 августа 2021 90 дн. 2 44 2/9 3 980 000
Екатеринбург, ул. Сиреневый, 7 (ЖБИ) - фото квартиры 1 февраля 2022 90 дн. 2 42 5/9 3 750 000
Екатеринбург, ул. Сиреневый, 7 (ЖБИ) - фото квартиры 28 мая 2021 90 дн. 2 47.7 6/12 3 850 000
Екатеринбург, ул. Сиреневый, 7 (ЖБИ) - фото квартиры 11 марта 2021 90 дн. 3 65 9/9 3 800 000
Екатеринбург, ул. Сиреневый, 7 (ЖБИ) - фото квартиры 20 февраля 2021 90 дн. 1 30 5/9 2 550 000
Екатеринбург, ул. Сиреневый, 7 (ЖБИ) - фото квартиры 6 октября 2020 90 дн. 2 43 3/9 3 295 000
Екатеринбург, ул. Сиреневый, 7 (ЖБИ) - фото квартиры 6 октября 2020 90 дн. 2 36 6/9 3 300 000
Екатеринбург, ул. Сиреневый, 7 (ЖБИ) - фото квартиры 13 марта 2020 90 дн. 3 57.8 9/9 3 300 000
Екатеринбург, ул. Сиреневый, 7 (ЖБИ) - фото квартиры 27 сентября 2019 90 дн. 3 57.9 8/9 3 600 000
Екатеринбург, ул. Сиреневый, 7 (ЖБИ) - фото квартиры 17 июля 2019 90 дн. 3 57.9 9/9 3 800 000
30 мая 2019 90 дн. 1 35.4 6/12 2 420 000
18 апреля 2019 90 дн. 2 43 1/9 2 750 000
30 марта 2019 90 дн. 2 43 1/9 2 400 000
18 декабря 2018 90 дн. 2 48 6/12 3 135 000
22 ноября 2018 90 дн. 2 48 6/12 3 100 000

Похожие предложения о продаже квартир в Екатеринбурге (ЖБИ)

  • 3-к квартира, Новгородцевой, 3б

    • 74.5 м2
    • 5/16 этаж
    • Состояние: идеальное
    6 700 000 ₽ (89900 ₽/м2)
    Продаётся уютная 3к квартира в спальном районе города. Квартира расположена на пятом этаже. Окна квартиры выходят во двор, обеспечивая тишину и спокойствие, без шума городских улиц. Квартира расположена в районе с развитой транспортной и бытовой инфраструктурой. Вблизи школы, детские сады и вузы. В пешей доступности – лесопарк с озером «Шарташ». Квартира без обременений и ипотек, один взрослый собственник. Чистая продажа, ипотека возможна. ID объекта в нашей базе: 3545
    размещено: 15.02.2026 , обновлено: 17.02.2026
  • 3-к квартира, Сыромолотова, 13 А

    • 67 м2
    • 2/5 этаж
    • Состояние: удовлетворительное
    6 500 000 ₽ (97000 ₽/м2)
    СРОЧНО ПРОДАМ! Хорошая трехкомнатная квартира 67 кв.м. Просторная прихожая и кухня. Планировка функциональная. Три изолированных комнаты, раздельный санузел. Окна на разные стороны!В доме нет газа! плита электрическая!Безопасно!Единственный дом с такими планировками квартир в этом районе! Квартира в жилом состоянии, без посторонних запахов и насекомых. Один взрослый собственник, без детских долей. Просмотр организую, звоните, договоримся. ID объекта в нашей базе: 26296
    размещено: 10.02.2026 , обновлено: 16.02.2026
  • 3-к квартира, Высоцкого, 30

    • 64 м2
    • 8/9 этаж
    • Состояние: удовлетворительное
    6 380 000 ₽ (99700 ₽/м2)
    Объект № 197019. В продаже классический вариант трехкомнатной квартиры улучшенной планировки. Состояние квартиры позволяет переехать и жить сразу после покупки, локально можно сделать освежающий ремонт. Большая открытая лоджия с отличным видом. Район с развитой инфраструктурой, поблизости парк. Документы в идеальном состоянии, квартира в одних руках более 20 лет. Продажа связана с покупкой меньшей квартиры. Оперативно проведу показ. ***Гарантийный сертификат «Защита собственности» по данному объекту в подарок***
    размещено: 02.02.2026 , обновлено: 17.02.2026
  • 3-к квартира, Сыромолотова, 7

    • 63.6 м2
    • 2/9 этаж
    • Состояние: хорошее
    6 650 000 ₽ (104600 ₽/м2)
    Объект № 196868. Продается просторная, теплая 3- комнатная квартира в микрорайоне ЖБИ. Функциональная планировка, светлые и уютные комнаты, раздельный санузел и ванная комната обеспечат максимум уюта и комфорта. Квартира не требует вложений - можно завести мебель заехать и жить. Дом в районе с очень развитой инфраструктурой. В шаговой доступности детские и спортивные площадки, Шарташский парк, магазины, детские сады, школы, детская поликлиника, аптеки. Удобная транспортная доступность: трамвайные и автобусные остановки рядом с домом. Квартира полностью готова к продаже. Звоните, отвечу на все интересующие вас вопросы. ***Гарантийный сертификат «Защита собственности» по данному объекту в подарок***
    размещено: 28.01.2026 , обновлено: 6.02.2026
  • 3-к квартира, Новгородцевой, 3б

    • 66.9 м2
    • 9/16 этаж
    • Состояние: хорошее
    6 300 000 ₽ (94200 ₽/м2)
    Продаётся уютная трёхкомнатная квартира в отличном районе! Ул. Новгородцевой, 3бПредлагаем вашему вниманию замечательную, светлую и тёплую трёхкомнатную квартиру, которая станет идеальным домом для вашей семьи. Это не просто квадратные метры, а готовое пространство для комфортной жизни.О квартире:· Просторная планировка: Три изолированные комнаты позволяют удобно обустроить и спальню для родителей, и детские, и кабинет или гостевую комнату.· Светлая и солнечная· По-настоящему тёплая: Квартира имеет хорошее утепление, качественные окна, что гарантирует уют и минимальные затраты на отопление в холодное время года.· Удобная кухня: Отдельная кухня, где можно собраться всей семьей за завтраком или ужином.· Раздельный санузел: Большое преимущество для семьи — ванная комната и туалет разделены, что добавляет бытового комфорта.· Состояние: Квартира находится в хорошем состоянии, готова к проживанию.Квартира имеет 2 просторные лоджии, с оборудованными местами для хранения.О доме и локации:Жилой дом расположен в развитом и спокойном районе с отлично налаженной инфраструктурой. Всё необходимое — в шаговой доступности:· Транспорт: Рядом находится автобусная остановка, что обеспечивает быструю и удобную связь с другими районами города.· Магазины и услуги: В пешей доступности супермаркеты, продуктовые магазины, аптеки и другие объекты первой необходимости.· Для семьи с детьми: Рядом расположены детский сад и школа, поэтому дорога на учёбу будет безопасной и недолгой.· Отдых и спорт: Поблизости есть ухоженный парк или сквер — идеальное место для прогулок с детьми, утренних пробежек или отдыха на свежем воздухе.Идеально для: Семьи с детьми, пары, желающей жильё с потенциалом, или тех, кто ценит тихий зелёный район с развитой инфраструктурой.Этот дом сочетает в себе умиротворение жилого района и все преимущества городской жизни. Чтобы оценить его атмосферу и планировку — звоните, чтобы договориться о просмотре! ID объекта в нашей базе: 13294
    размещено: 19.01.2026 , обновлено: 14.02.2026

    3-к квартира, Сиреневый, 4/3

    • 67.1 м2
    • 2/16 этаж
    • Состояние: идеальное
    8 100 000 ₽ (120700 ₽/м2)
    ????Продается просторная 3 комнатная квартира на 2 этаже. ????За квартирой документально закреплено парковочное место???? О КВАРТИРЕ: - С удобной планировкой: отдельная кухня, соединенная с лоджией, благодаря которой места стало значительно больше. 3 изолированные комнаты, раздельный санузел с большой ванной, можно комфортно расположить стиральную машинку и сушилку.- качественный ремонт, меньше года назад полностью сделана кухня: поменяна проводка, выведена в отдельный рубильник на автомате, новый кухонный гарнитур, на лоджии теплый пол.- в квартире остаются куxонный гарнитуp и два встроенных шкaфа- Всего 2 квартиры в закрытой секции и 5 квартир на этаже???? О ДОМЕ:- В доме имеется консьерж, - В 2022 году заменены лифты. - Территория огорожена от посторонних, во дворе хорошая детская площадка!- Собственное парковочное место во дворе- Отличная локация: в центре микрорайона, рядом с Кировским. Вся необходимая инфраструктура в шаговой доступности: магазины, детские сады, школы, трамвайные и автобусные остановки, 7я поликлиника, Шарташский парк с озером, в котором есть все условия для проведения разнообразного досуга!ПРО ДОКУМЕНТЫ:- Квартира без обременений, обмен на 4к квартиру, встречный вариант подобран, приказ опеки получен.- При необходимости поможем с оформлением ипотеки! ???? С радостью ждем вашего звонка для записи на просмотр квартиры! ID объекта в нашей базе: 3525
    размещено: 18.12.2025 , обновлено: 12.02.2026

    3-к квартира, Новгородцевой, 17

    • 65 м2
    • 6/9 этаж
    • Состояние: хорошее
    6 300 000 ₽ (96900 ₽/м2)
    Объект № 195106. Продам просторную, функциональную трехкомнатную квартиру, площадью 65 метров на 6 этаже. Здесь есть место для каждого. Три изолированные комнаты - можно организовать и детскую, и кабинет, и спальню для родителей. Никаких проходных зон, только личное пространство для всех. Шестой этаж - золотая середина: выше уличного шума, но без крайностей последних этажей. Отличный вид на зелёный двор, максимум света и воздуха. Большая лоджия - дополнительная комната: можно устроить зимний сад, зону отдыха или мастерскую. Лоджия уже застеклена — можно использовать круглый год. Ремонт и готовность: выполнен аккуратный косметический ремонт, в санузле плитка, установлены счётчики (ХВС, ГВС, электроэнергия). Осталось лишь завезти свои вещи. В подъезде мало соседей - тихо и спокойно. Тихий двор- парк и вся инфраструктура рядом: дом стоит в глубине квартала, вокруг детские площадки, зелёные зоны, свободная парковка. В шаговой доступности - школы, сады, поликлиника, магазины (включая круглосуточные), аптеки и кафе. Отличная транспортная доступность: до центра 15–20 минут на машине, удобный выезд на ЕКАД и Тюменский тракт. Юридическая чистота, все документы готовы. Эта квартира - не просто метры, а готовое решение для комфортной жизни семьи в развитом районе. Звоните, чтобы увидеть всё своими глазами и оценить атмосферу уюта и простора! ***Гарантийный сертификат «Защита собственности» по данному объекту в подарок***
    размещено: 12.12.2025 , обновлено: 11.02.2026

    3-к квартира, Сиреневый, 1

    • 58 м2
    • 7/9 этаж
    • Состояние: хорошее
    6 450 000 ₽ (111200 ₽/м2)
    В продаже квартира в самом центре ЖБИ. Квартира, где всё сделано с умом и на качество! Уважаемые покупатели! Если вы устали от бесконечного поиска и хотите найти квартиру, где капитальные вложения уже сделаны, а рядом ждёт живописный парк города — это объявление для вас. Срочная продажа – это ваш шанс заключить сделку, о которой вы мечтали! Пять преимуществ, которые Вы получаете: Благодаря толстым стенам с хорошей звукоизоляцией и установке качественной сейф-двери с замком, защищенным от взлома, вы забудете о шуме соседей и будете чувствовать себя абсолютно безопасно. В этой квартире не просто косметика ! Здесь выполнены капитальные работы, которые сэкономят вам сотни тысяч: заменены стояки, выровнены стены, застеклена лоджия, заменены радиаторы отопления и главное – сделан насыпной пол Knauf по всей жилой площади квартиры! Это гарантирует идеальную основу и теплоизоляцию на десятилетия. Квартира находится в центральной части района, в окружении развитой инфраструктуры (школа №164, детские сады №41 и №313, магазины, кафе, аптеки, поликлиника и удобная транспортная развязка), но при этом в шаговой доступности от Шарташского лесопарка! Ваши выходные — это прогулки, велосипед и свежий воздух. Хорошая изолированная планировка и близость к учебным заведениям делает эту квартиру прекрасным арендным бизнесом для инвестора, уютным гнёздышком для молодой семьи и надежным стартом для молодежи. Бонус для реального покупателя. Кухонный гарнитур и плита остаются в квартире. (Остальная мебель и техника обсуждается индивидуально.) Ваше преимущество – возможность доработать под себя: Да, ванная комната и санузел требуют ремонта. Подготовлены дверные проемы для установки межкомнатных дверей. Это возможность создать дизайн своей мечты с нуля и сэкономить при покупке, делая ремонт под свой вкус и бюджет. Квартира ТЕПЛАЯ, УЮТНАЯ, с отличной планировкой. СРОЧНО! Собственник готов к диалогу и конструктивному торгу с реальным покупателем! Не откладывайте звонок! Звоните прямо сейчас! Организую показ в удобное для вас время. ID объекта в нашей базе: 26093
    размещено: 26.11.2025 , обновлено: 15.02.2026

Новостройки Екатеринбург, мкр-н. ЖБИ

Приоритет

Увеличивает просмотры в 3 раза

Ваше объявление показывается в списке выше обычных объявлений. подключить