На Метре реклама - только нормальная. Никакого шок-контента.
Помогайте независимому ресурсу, как он помогает вам. Удачи!
Новостройки Котт. посёлки Объявления Динамика цен и сделок

Продажа квартиры: Екатеринбург, ул. Профсоюзная, 59 (Химмаш)

  • опубликовано 8.02.2021 , обновлено 20.10.2025
  • 28
Кадастровый номер:66:41:0509029:1810
Рынок:вторичный
Срок сдачи: 1969 года
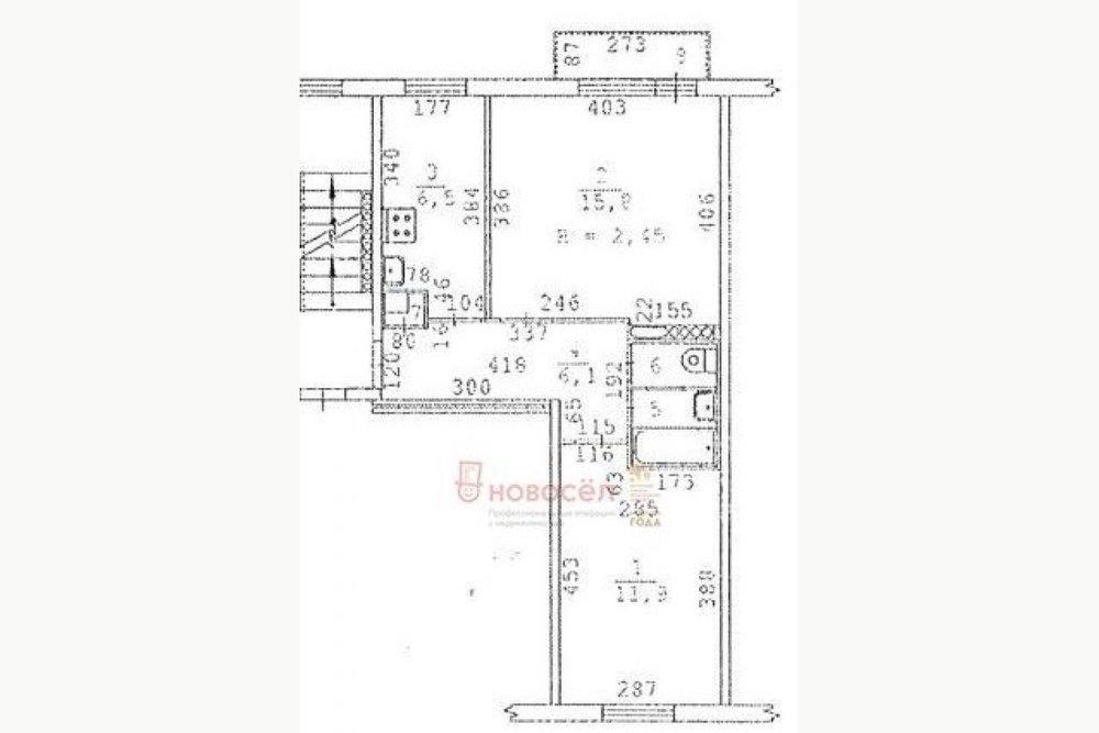
Количество комнат:2
Общая площадь:43 м2
Жилая площадь:28 м2
Площадь кухни:7 м2
Этаж/Этажность дома:5 / 5
Санузел:раздельный
Отделка:косметический
Год постройки:1969
Состояние:удовлетворительное
Цена:
2 580 000
Объявление снято с публикации
Коммунальные платежи:оплачиваются отдельно
Ипотека:возможна

Объект № 136821. Квартира расположена в хорошем месте района с развитой инфраструктурой, все в шаговой доступности, много магазинов.
Планировка квартиры очень удачная комнаты на разные стороны.
Возможны любые варианты расчетов. Так же рассмотрим обмен на меньшую. ***Гарантийный сертификат «Защита собственности» по данному объекту в подарок***

Объявление снято с публикации

Ипотечный калькулятор

лет
%
Сумма кредита
2580000 ₽
Платеж
22 540 ₽

Актуальные предложения в этом доме

  • 3-к квартира, Профсоюзная, 59

    • 54 м2
    • 2/5 этаж
    • Состояние:
    4 199 000 ₽ (77800 ₽/м2)
    СРОЧНО ТОРГ !!!! Представляем вашему вниманию просторную и уютную 3-комнатную квартиру, идеальное пространство для комфортного проживания вашей семьи! ????Простор и свет: Квартира обладает продуманным пространством, каждая комната имеет свое предназначение и обеспечивает максимум комфорта и удобства. ✨Интерьер и дизайн: Просторная гостиная станет местом семейных вечеров и встреч с друзьями, две изолированные спальни подарят каждому жильцу личное пространство, а функциональная кухня позволит насладиться приготовлением любимых блюд. ????Расположение: Удачное расположение дома позволяет быстро добраться до всех необходимых объектов инфраструктуры: школы, детские сады, магазины, зоны отдыха и развлечения. ⚡️Инфраструктура: Рядом расположены современные торговые центры, спортивные площадки, парки и скверы, создающие атмосферу спокойствия и гармонии вокруг вашего нового жилища. ☀️Освещение: Благодаря удачной планировке квартира получает много естественного света, создавая ощущение тепла и уюта даже в прохладные дни. ????Дополнительные преимущества: Наличие балкона открывает прекрасные виды и создает дополнительное пространство для отдыха и релаксации. Станьте обладателем прекрасного жилья, которое подарит вам радость каждого дня и обеспечит комфортное проживание долгие годы! ID объекта в нашей базе: 18033
    размещено: 20.10.2025

История предложений в этом доме

объявление снято с публикации в продаже комнат площадь этаж цена,
Екатеринбург, ул. Профсоюзная, 59 (Химмаш) - фото квартиры 5 апреля 2022 90 дн. 2 44 1/5 2 292 255
Екатеринбург, ул. Профсоюзная, 59 (Химмаш) - фото квартиры 8 июня 2021 90 дн. 2 43 1/5 3 200 000
Екатеринбург, ул. Профсоюзная, 59 (Химмаш) - фото квартиры 3 июля 2021 90 дн. 2 43.7 3/5 3 180 000
Екатеринбург, ул. Профсоюзная, 59 (Химмаш) - фото квартиры 30 сентября 2020 90 дн. 2 44 1/5 2 900 000
Екатеринбург, ул. Профсоюзная, 59 (Химмаш) - фото квартиры 6 октября 2020 90 дн. 2 44 1/5 2 199 000
Екатеринбург, ул. Профсоюзная, 59 (Химмаш) - фото квартиры 2 февраля 2022 90 дн. 2 44 1/5 2 200 000
Екатеринбург, ул. Профсоюзная, 59 (Химмаш) - фото квартиры 6 февраля 2020 90 дн. 1 33 1/5 1 800 000
Екатеринбург, ул. Профсоюзная, 59 (Химмаш) - фото квартиры 30 октября 2019 90 дн. 2 43 5/5 2 750 000
Екатеринбург, ул. Профсоюзная, 59 (Химмаш) - фото квартиры 10 июля 2019 90 дн. 2 41 1/5 2 550 000
Екатеринбург, ул. Профсоюзная, 59 (Химмаш) - фото квартиры 3 августа 2019 90 дн. 3 56 5/5 2 999 000
26 марта 2019 90 дн. 2 41.4 2/5 3 050 000
27 февраля 2019 90 дн. 3 53 5/5 3 050 000
3 августа 2018 92 дн. 3 54 5/5 2 900 000
12 декабря 2015 61 дн. 2 44 1/5 2 180 000

Похожие предложения о продаже квартир в Екатеринбурге (Химмаш)

  • 2-к квартира, Бородина, 4/б

    • 42.2 м2
    • 5/5 этаж
    • Состояние: удовлетворительное
    3 300 000 ₽ (78200 ₽/м2)
    Объект № 194646. Продаётся двухкомнатная квартира в тихом центре микрорайона Химмаш. Дом теплый, кирпичный, шикарный вид из окон. В квартире остается вся мебель. Окна пластиковые во всех помещениях, включая балкон. В шаговой доступности от дома вся необходимая инфраструктура: поликлиника, детские сады и школы, сетевые магазины, остановки общественного транспорта. Один взрослый собственник. ***Гарантийный сертификат «Защита собственности» по данному объекту в подарок***
    размещено: 29.09.2025 , обновлено: 16.10.2025
  • 2-к квартира, Революции, 27

    • 30 м2
    • 1/1 этаж
    • Состояние: хорошее
    2 600 000 ₽ (86700 ₽/м2)
    В продаже 2-х комнатнaя кваpтирa в доме, построенном на 4 квартиры в районе Химмаш, по адресу: ул. Революции, д. 27 ???? Квартира очень теплая (стены кирпичные) ???????? В пешей доступности школы N 105 и 132, детские сады N 424, 427, 426, 277 и др. ???? Остановки общественного транспорта: троллейбус, автобус. Развитая инфраструктура: магазины все рядом ???? 10 минут ходьбы до Нижне-Исетского водохранилища ????‍????‍????‍????Спокойные соседи ???? Два совершеннолетних собственника, мат. капитал не использовался, квартира не в ипотеке. Звоните, с удовольствием отвечу на Ваши вопросы и приглашаю на просмотр! ID объекта в нашей базе: 11661
    размещено: 02.09.2025 , обновлено: 18.10.2025
  • 2-к квартира, Инженерная, 17

    • 43 м2
    • 1/3 этаж
    • Состояние: плохое
    3 150 000 ₽ (73300 ₽/м2)
    Объект № 193263. Продаётся уникальная двухкомнатная квартира на Химмаше. Комнаты изолированные. Санузел совмещенный. Большая площадь квартиры плюс невысокая цена. Выгодные вложения в арендный бизнес, есть арендаторы. В шаговой доступности школы, магазины, аптеки, детские сады, фитнес-клуб, бассейн, парк. До ближайшей остановки общественного транспорта 7 минут пешком. Выгода при работе с ГК Новоселе: полная организационная поддержка, как продавца, так и покупателя (все документы за вас соберем), присутствие на сделке на всех этапах, юридическое сопровождение сделки продавца и покупателя (подготовка документов и консультирование). ГК Новосел выдает гарантийный сертификат на сделку. ***Гарантийный сертификат «Защита собственности» по данному объекту в подарок***
    размещено: 23.07.2025 , обновлено: 8.10.2025
  • 2-к квартира, Академика Губкина, 81

    • 42.1 м2
    • 1/5 этаж
    • Состояние: хорошее
    3 050 000 ₽ (72400 ₽/м2)
    Предлагается к продаже уютная 2-комнатная квартира в микрорайоне Химмаш по отличной цене! Квартира расположена на первом этаже , дом теплый , кирпичный. Удобная планировка квартиры позволит воплотить в жизнь все свои дизайнерские желания. Тихий, зеленый район, комфортное расположение квартиры. Вся инфраструктура в шаговой доступности: 2 школы, садики, сетевые магазины, поликлиника, бассейн. До станции метро "Ботаническая" можно добраться за 13 минут на автомобиле, что позволяет быстро перемещаться по городу. Квартира без долгов и обременений. Звоните и приходите на просмотр. ID объекта в нашей базе: 25830
    размещено: 11.07.2025 , обновлено: 9.10.2025

Приоритет

Увеличивает просмотры в 3 раза

Ваше объявление показывается в списке выше обычных объявлений. подключить