На Метре реклама - только нормальная. Никакого шок-контента.
Помогайте независимому ресурсу, как он помогает вам. Удачи!
Новостройки Котт. посёлки Объявления Динамика цен и сделок

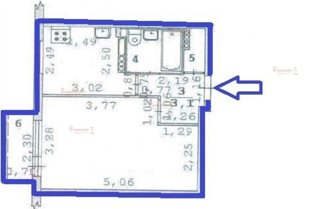
Продажа квартиры: Екатеринбург, ул. Инженерная, 11 (Химмаш)

  • опубликовано 23.03.2021 , обновлено 24.09.2025
  • 85
Рынок:вторичный
Срок сдачи: 1970 года
Количество комнат:1
Общая площадь:34.5 м2
Жилая площадь:19.9 м2
Площадь кухни:6 м2
Этаж/Этажность дома:3 / 5
Санузел:совмещенный
Отделка:косметический
Год постройки:1970
Состояние:удовлетворительное
Цена:
2 200 000
Объявление снято с публикации
Коммунальные платежи:оплачиваются отдельно

Объект № 136586. Продам однокомнатную квартиру. Первый этаж, но высокий. Окна выходят на пешеходную зону, дом окружен придомовыми зелеными территориями.
В квартире установлены счетчики на воду, двухтарифный счетчик на электрику, пластиковые стеклопакеты, заменены разводка труб в санузле и стояк канализации (пластик).
Рядом несколько садиков, общеобразовательная школа 105, 132 , стоматология, поликлиника. Магазины Магнит, Пятерочка, Кировский. Во дворе парковка, детская площадка. До метро ехать 20минут. Общественный маршрутный транспорт и троллейбус.
Один взрослый собственник, квартира без обременений, документы готовы. ***Гарантийный сертификат «Защита собственности» по данному объекту в подарок***

Объявление снято с публикации

Ипотечный калькулятор

лет
%
Сумма кредита
2200000 ₽
Платеж
22 540 ₽

Актуальные предложения в этом доме

  • 1-к квартира, Инженерная, 11

    • 30.6 м2
    • 2/5 этаж
    • Состояние:
    2 650 000 ₽ (86600 ₽/м2)
    Продается уютная однокомнатная квартира площадью 30.6 квадратных метров на втором этаже пятиэтажного кирпичного дома, расположенного по адресу: Екатеринбург, Химмаш м-н, улица Инженерная, 11. Дом построен в 1970 году и окружен зелеными насаждениями, создающими приятную атмосферу для жизни.Квартира имеет жилую площадь 17.4 квадратных метра и функциональную кухню площадью 6 квадратных метров, где можно удобно разместить все необходимое для приготовления пищи. Санузел совмещен, что является удобством для экономии пространства.Расположение квартиры позволяет быстро добраться до основных городских магистралей, а также насладиться прогулками по окрестностям. Рядом расположены магазины «Продукты», «Кировский» и супермаркет, что значительно упрощает процесс покупок и экономит ваше время.Это отличное предложение для тех, кто ценит комфорт, тишину и природу рядом с домом. Приглашаем вас ознакомиться с квартирой и убедиться во всех ее преимуществах лично! Если Вам понравилась эта квартира, а на ее приобретение не хватает средств, мы для Вас в кратчайшие сроки одобрим ипотеку, за счет партнерской программы ставки по кредиту ниже!!! Если Вы хотите обменять свою недвижимость, предложите ее нашему Агентству, возможно сейчас на нее есть покупатель!!! Срочно!!! Торг!!! ID объекта в нашей базе: 17117
    размещено: 07.03.2025 , обновлено: 23.10.2025

История предложений в этом доме

объявление снято с публикации в продаже комнат площадь этаж цена,
Екатеринбург, ул. Инженерная, 11 (Химмаш) - фото квартиры 21 ноября 2024 90 дн. 1 30.6 2/5 2 750 000
Екатеринбург, ул. Инженерная, 11 (Химмаш) - фото квартиры 22 мая 2024 90 дн. 2 44.1 5/5 2 749 000
Екатеринбург, ул. Инженерная, 11 (Химмаш) - фото квартиры 4 мая 2024 90 дн. 2 44.1 5/5 2 849 000
Екатеринбург, ул. Инженерная, 11 (Химмаш) - фото квартиры 20 июня 2023 90 дн. 2 45.3 1/5 3 500 000
Екатеринбург, ул. Инженерная, 11 (Химмаш) - фото квартиры 25 мая 2023 90 дн. 2 45.3 1/5 2 800 000
Екатеринбург, ул. Инженерная, 11 (Химмаш) - фото квартиры 10 июня 2023 90 дн. 1 30 2/5 2 270 000
Екатеринбург, ул. Инженерная, 11 (Химмаш) - фото квартиры 3 мая 2023 90 дн. 1 30 2/5 2 299 000
Екатеринбург, ул. Инженерная, 11 (Химмаш) - фото квартиры 15 февраля 2023 90 дн. 2 45.3 1/5 3 000 000
Екатеринбург, ул. Инженерная, 11 (Химмаш) - фото квартиры 4 февраля 2023 90 дн. 2 45.3 1/5 3 200 000
12 мая 2022 90 дн. 1 30 3/5 2 400 000
Екатеринбург, ул. Инженерная, 11 (Химмаш) - фото квартиры 9 июня 2022 90 дн. 1 34 1/5 2 650 000
Екатеринбург, ул. Инженерная, 11 (Химмаш) - фото квартиры 1 июля 2021 90 дн. 1 34.5 1/5 2 090 000
Екатеринбург, ул. Инженерная, 11 (Химмаш) - фото квартиры 13 февраля 2021 90 дн. 2 42.7 2/5 3 500 000
Екатеринбург, ул. Инженерная, 11 (Химмаш) - фото квартиры 4 апреля 2020 90 дн. 2 45.7 1/5 2 100 000
Екатеринбург, ул. Инженерная, 11 (Химмаш) - фото квартиры 27 мая 2020 90 дн. 2 44.9 3/5 1 800 000
Екатеринбург, ул. Инженерная, 11 (Химмаш) - фото квартиры 18 марта 2020 90 дн. 2 44 3/5 1 850 000
Екатеринбург, ул. Инженерная, 11 (Химмаш) - фото квартиры 20 февраля 2020 90 дн. 2 45.7 1/5 2 100 000
Екатеринбург, ул. Инженерная, 11 (Химмаш) - фото квартиры 5 октября 2019 90 дн. 1 30 2/5 2 330 000
12 февраля 2017 62 дн. 2 44 4/5 2 500 000

Похожие предложения о продаже квартир в Екатеринбурге (Химмаш)

  • 1-к квартира, Бородина, 4

    • 30 м2
    • 5/5 этаж
    • Состояние: хорошее
    2 850 000 ₽ (95000 ₽/м2)
    Квартира освобождена, можно сразу заехать и жить. Рядом 2 школы и 2 детских сада. Квартира светлая и тёплая. Кровлю отремонтировали в 2023 году. В квартире установлены: сейф-дверь, новые стеклопакеты с ключами, полностью сменена проводка на медную. Быстрый выход на сделку, документы готовы. 1 взрослый собственник. ID объекта в нашей базе: 11103
    размещено: 02.09.2025 , обновлено: 2.10.2025
  • 1-к квартира, Бородина, 7

    • 33.4 м2
    • 4/5 этаж
    • Состояние: удовлетворительное
    2 800 000 ₽ (83800 ₽/м2)
    ID объекта в нашей базе: 3523
    размещено: 18.08.2025 , обновлено: 5.10.2025
  • 1-к квартира, Инженерная, 11

    • 30.6 м2
    • 2/5 этаж
    • Состояние: удовлетворительное
    2 650 000 ₽ (86600 ₽/м2)
    Продается уютная однокомнатная квартира площадью 30.6 квадратных метров на втором этаже пятиэтажного кирпичного дома, расположенного по адресу: Екатеринбург, Химмаш м-н, улица Инженерная, 11. Дом построен в 1970 году и окружен зелеными насаждениями, создающими приятную атмосферу для жизни.Квартира имеет жилую площадь 17.4 квадратных метра и функциональную кухню площадью 6 квадратных метров, где можно удобно разместить все необходимое для приготовления пищи. Санузел совмещен, что является удобством для экономии пространства.Расположение квартиры позволяет быстро добраться до основных городских магистралей, а также насладиться прогулками по окрестностям. Рядом расположены магазины «Продукты», «Кировский» и супермаркет, что значительно упрощает процесс покупок и экономит ваше время.Это отличное предложение для тех, кто ценит комфорт, тишину и природу рядом с домом. Приглашаем вас ознакомиться с квартирой и убедиться во всех ее преимуществах лично! Если Вам понравилась эта квартира, а на ее приобретение не хватает средств, мы для Вас в кратчайшие сроки одобрим ипотеку, за счет партнерской программы ставки по кредиту ниже!!! Если Вы хотите обменять свою недвижимость, предложите ее нашему Агентству, возможно сейчас на нее есть покупатель!!! Срочно!!! Торг!!! ID объекта в нашей базе: 17117
    размещено: 07.03.2025 , обновлено: 23.10.2025

Приоритет

Увеличивает просмотры в 3 раза

Ваше объявление показывается в списке выше обычных объявлений. подключить