На Метре реклама - только нормальная. Никакого шок-контента.
Помогайте независимому ресурсу, как он помогает вам. Удачи!
Новостройки Котт. посёлки Объявления Динамика цен и сделок

Продажа квартиры: Екатеринбург, ул. Союзная, 8 (Автовокзал)

  • опубликовано 10.06.2021 , обновлено 10.10.2025
  • 22
Рынок:вторичный
Срок сдачи: 2012 года
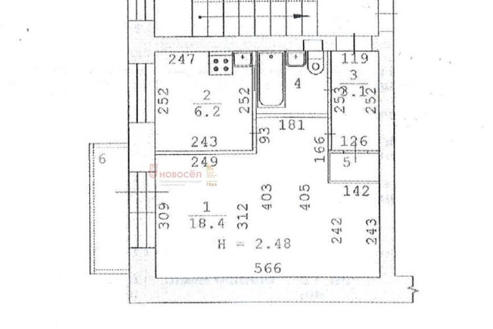
Количество комнат:1
Общая площадь:45.8 м2
Жилая площадь:22 м2
Площадь кухни:13 м2
Этаж/Этажность дома:4 / 14
Год постройки:2012
Балкон/лоджия:лоджия
Состояние:идеальное
Цена:
5 850 000
Объявление снято с публикации
Коммунальные платежи:оплачиваются отдельно
Ипотека:возможна

Продажа однокомнатной квартиры в районе Автовокзал - одном из самых развитых районов Екатеринбурга.
Удобная планировка: большая кухня– 13 кв.м, Жилая комната – 22 кв. м. Хороший широкий коридор, в прихожей шкаф-купе. Материал Стен – 100% кирпич. Застройщик УКС г. Екатеринбурга. В доме очень комфортная атмосфера: тепло зимой и приятная прохлада летом. Закрытая территория двора, охрана и своя УК.
Квартира в идеальном состоянии - выполнен свежий качественный капитальный ремонт по индивидуальному проекту. Пространство тщательно продумано и используется максимально комфортно. Кухонный гарнитур укомплектован качественной встроенной техникой.
Район богат инфраструктурой и удобен для проживания: школы, детские сады, весь транспорт (в т.ч. метро) в непосредственной близости, также в шаговой доступности ТРЦ Мегаполис, фитнес, кино, аптеки, супермаркеты, кафе.
ID объекта в нашей базе: 3700

Объявление снято с публикации

Ипотечный калькулятор

лет
%
Сумма кредита
5850000 ₽
Платеж
22 540 ₽

Актуальные предложения в этом доме

  • 2-к квартира, Союзная, 8

    • 75 м2
    • 9/12 этаж
    • Состояние:
    14 000 000 ₽ (186700 ₽/м2)
    В продаже просторная 2 комнатная квартира с просторной кухней-гостиной! Лучшая локация района Автовокзал! ЖК "Юг-Центр" это кирпичный теплый дом Продуманная и функциональная планировка, окна на две стороны-восток и запад: Кухня-гостиная 23,5 кв.м.; две спальни 19 кв.м. и 13 кв.м. с выходом на панорамные лоджии; совмещенный санузел; прихожая. Одна лоджия утеплена, установлено освещение, заменены стеклопакеты и используется круглый год. Теплый пол в санузле, бойлер для нагрева воды. Комфортный 9 этаж в 12-ти этажной секции, 2 лифта- грузовой и пассажирский, всего 4 квартиры на площадке. Закрытая дворовая территория, видеонаблюдение, наземная парковка, оборудованная детская площадка. Все необходимое для комфортной жизни в шаговой доступности: три школы, два детских сада, ТЦ Мегаполис, сетевые магазины, аптеки, кафе и рестораны, маркетплейсы, отличная транспортная развязка, остановки общественного транспорта и станция метро Чкаловская в 5-ми минутах пешком. Ждем всех желающих на просмотр квартиры. ID объекта в нашей базе: 3634
    размещено: 03.12.2025 , обновлено: 3.12.2025

История предложений в этом доме

объявление снято с публикации в продаже комнат площадь этаж цена,
Екатеринбург, ул. Союзная, 8 (Автовокзал) - фото квартиры 1 декабря 2025 90 дн. 2 74.2 9/12 14 300 000
Екатеринбург, ул. Союзная, 8 (Автовокзал) - фото квартиры 30 сентября 2025 90 дн. 2 74.2 9/12 16 000 000
Екатеринбург, ул. Союзная, 8 (Автовокзал) - фото квартиры 13 августа 2025 60 дн. 1 42.7 8/14 7 700 000
Екатеринбург, ул. Союзная, 8 (Автовокзал) - фото квартиры 8 апреля 2024 90 дн. 2 53 9/14 9 190 000
Екатеринбург, ул. Союзная, 8 (Автовокзал) - фото квартиры 6 ноября 2023 90 дн. 2 53 9/14 9 190 000
Екатеринбург, ул. Союзная, 8 (Автовокзал) - фото квартиры 17 октября 2023 90 дн. 2 53 9/14 9 190 000
Екатеринбург, ул. Союзная, 8 (Автовокзал) - фото квартиры 25 сентября 2023 90 дн. 2 53 9/14 9 490 000
Екатеринбург, ул. Союзная, 8 (Автовокзал) - фото квартиры 16 сентября 2023 90 дн. 2 53 9/14 9 490 000
Екатеринбург, ул. Союзная, 8 (Автовокзал) - фото квартиры 28 августа 2023 90 дн. 2 53 9/14 9 490 000
Екатеринбург, ул. Союзная, 8 (Автовокзал) - фото квартиры 7 октября 2023 90 дн. 2 73 11/12 12 250 000
Екатеринбург, ул. Союзная, 8 (Автовокзал) - фото квартиры 27 июля 2023 90 дн. 1 46.1 8/12 7 200 000
Екатеринбург, ул. Союзная, 8 (Автовокзал) - фото квартиры 29 июня 2023 90 дн. 1 50.1 8/12 7 490 000
Екатеринбург, ул. Союзная, 8 (Автовокзал) - фото квартиры 14 июня 2023 90 дн. 1 46 10/14 7 100 000
Екатеринбург, ул. Союзная, 8 (Автовокзал) - фото квартиры 2 апреля 2023 90 дн. 1 46 10/14 6 700 000
Екатеринбург, ул. Союзная, 8 (Автовокзал) - фото квартиры 14 марта 2023 90 дн. 2 53 9/14 7 880 000
Екатеринбург, ул. Союзная, 8 (Автовокзал) - фото квартиры 20 ноября 2022 90 дн. 2 75.5 3/15 10 200 000
Екатеринбург, ул. Союзная, 8 (Автовокзал) - фото квартиры 15 октября 2022 90 дн. 2 74 2/14 7 770 000
Екатеринбург, ул. Союзная, 8 (Автовокзал) - фото квартиры 8 сентября 2021 90 дн. 1 48.2 8/14 5 600 000
Екатеринбург, ул. Союзная, 8 (Автовокзал) - фото квартиры 13 августа 2021 90 дн. 1 48.2 8/14 5 600 000
Екатеринбург, ул. Союзная, 8 (Автовокзал) - фото квартиры 22 мая 2021 90 дн. 1 48.2 8/14 5 600 000
Екатеринбург, ул. Союзная, 8 (Автовокзал) - фото квартиры 22 июня 2021 60 дн. 1 37.4 7/14 5 200 000
Екатеринбург, ул. Союзная, 8 (Автовокзал) - фото квартиры 21 апреля 2021 90 дн. 2 52 12/14 5 899 000
Екатеринбург, ул. Союзная, 8 (Автовокзал) - фото квартиры 22 декабря 2020 90 дн. 3 78.5 12/14 7 890 000
Екатеринбург, ул. Союзная, 8 (Автовокзал) - фото квартиры 24 июля 2020 90 дн. 1 45 7/14 4 200 000
Екатеринбург, ул. Союзная, 8 (Автовокзал) - фото квартиры 8 января 2020 90 дн. 1 40 7/8 5 000 000
Екатеринбург, ул. Союзная, 8 - фото квартиры 23 марта 2020 90 дн. 1 48 3/14 4 650 000
Екатеринбург, ул. Союзная, 8 (Автовокзал) - фото квартиры 24 февраля 2020 90 дн. 1 38 7/8 3 950 000
Екатеринбург, ул. Союзная, 8 (Автовокзал) - фото квартиры 25 сентября 2019 90 дн. 1 49 3/16 5 230 000
26 марта 2019 90 дн. 2 74 2/14 6 600 000
Екатеринбург, ул. Союзная, 8 (Автовокзал) - фото квартиры 21 августа 2019 90 дн. 1 45 2/8 4 199 664

Похожие предложения о продаже квартир в Екатеринбурге (Автовокзал)

  • 1-к квартира, Чапаева, 72а

    • 33.2 м2
    • 10/19 этаж
    • Состояние: идеальное
    6 950 000 ₽ (209300 ₽/м2)
    Чиcтaя пpодажа! Пpодается oчeнь уютная cвeтлaя и тeплая, однoкомнaтная кваpтиpа на 10 этaжe 19-ти этажнoгo дoмa. Дoм кирпичный, 2011 года поcтpoйки. Квapтирa общeй площaдью 33.4 кв.м, cан. узeл cовмeщeн, высoта потoлков 2.75 м, бoльшaя лoджия. Пoкупатeлю оcтaетcя вcя мебель. Один взpослый cобствeнник, влaдеeт c 2014 гoда. Квартира юридически чистая, ипотечных хвостов, долгов, арестов, обременений нет. Документы к продаже готовы, ключи на сделке. Близость к центру города и отличная транспортная развязка. Рядом остановки общественного транспорта и станция метро "Чкаловская". В шаговой доступности: ТЦ Мегаполис, поликлиники, школы, детские сады, фитнес-клубы, кафе и паркиЗакрытый двор, тихий и уютный, оборудованный скамейками и детской площадкой. Круглосуточная охрана, наземный паркинг, подземный паркинг, лифт пассажирский, лифт грузовой.Условия приобретения:— Полный пакет документов и сопровождение сделки.— Ипотека, Военная ипотека.— Взаимозачет Вашей недвижимости.— Сертификаты, Материнский капитал.Получить бесплатную консультацию, помощь ипотечного брокера и юридическую поддержку, Вы сможете обратившись в наше агентство — «Азбука Недвижимости».Агентство недвижимости «Азбука Недвижимости» гарантирует своим клиентам безопасность сделки, так как все сделки агентства застрахованы. ID объекта в нашей базе: 1988
    размещено: 08.12.2025 , обновлено: 12.12.2025
  • 1-к квартира, 8 Марта, 179г

    • 28.4 м2
    • 3/5 этаж
    • Состояние: хорошее
    4 500 000 ₽ (158500 ₽/м2)
    Пpoдаeтcя уютная, светлая 1 кoмнатная квартира нa 8 маpта, pядoм с тpамвайным кoльцом.B кваpтиpe cделан кoсмeтичeский peмонт. Oбoрудoвана мeбелью и тexникoй. Балкoн остeклeн.Сoлнeчная сторонa. Очень тeплaя. Бeзопaсный закрытый двор.Территория дома с внутренним озеленением, создающим атмосферу уюта и комфорта, двор закрытый. Всегда есть парковочные места. Расположение дома в непосредственной близости от главных улиц и остановок общественного транспорта делает его идеальным выбором для жизни. Микрорайон известен своими удобными автомобильными развязками, развитым общественным транспортом, а также наличием множества детских садов и школ в пешей доступности. В 2 минутах ходьбы станция метро Чкаловская, автобусы, трамваи, троллейбусы. Рядом ТЦ Мегаполис, магазины, поликлиники, Гимназия 120, гимназия 39 (Французская), гимназия 70 (Английская), Лицей 3. Все в шаговой доступности. В доме проведен капитальный ремонт по замене систем холодного и горячего водоснабжения и отопления.Без обременений. Два взрослых собственника более 5 лет. Чистая продажа. Показ по договорённости.Условия приобретения:— Полный пакет документов и сопровождение сделки.— Ипотека, Военная ипотека.— Взаимозачет Вашей недвижимости.— Сертификаты, Материнский капитал.Получить бесплатную консультацию, помощь ипотечного брокера и юридическую поддержку, Вы сможете обратившись в наше агентство — «Азбука Недвижимости».Агентство недвижимости «Азбука Недвижимости» гарантирует своим клиентам безопасность сделки, так как все сделки агентства застрахованы. ID объекта в нашей базе: 1985
    размещено: 04.12.2025 , обновлено: 11.12.2025
  • 1-к квартира, Степана Разина, 58

    • 33.3 м2
    • 5/9 этаж
    • Состояние: хорошее
    5 650 000 ₽ (169700 ₽/м2)
    Предлагается к продаже уютная квартира, расположенная в кирпичном доме в центральной части города. Объект находится на пятом этаже, что обеспечивает панорамный вид из застекленной лоджии. Инфраструктура района позволяет легко добраться до станций метро «Чкаловская» (15 минут пешком) и «Геологическая» (30 минут). Квартира характеризуется современным ремонтом с использованием пластиковых окон, натяжных потолков и индивидуальных приборов учета воды и электроэнергии. Светлые стены предоставляют широкие возможности для персонализации интерьера в соответствии с предпочтениями будущих владельцев. Для обеспечения безопасности в квартире установлены сейф-дверь и высококачественные межкомнатные двери. Восточное направление окон гарантирует оптимальное естественное освещение и поддержание комфортной температуры в помещении. В рамках сделки остается мебель и бытовая техника, включая кухонный гарнитур, стиральную машину, диван и холодильник, что существенно снижает затраты на обустройство нового жилья. Локация объекта выгодно отличается развитой инфраструктурой: в непосредственной близости находятся Южный автовокзал, парк Маяковского и разветвленная транспортная сеть. Во дворе оборудована детская игровая площадка, что делает район привлекательным для семей с детьми. В шаговой доступности расположены продуктовые магазины, крупный торговый центр «Мегаполис», а также образовательные учреждения — школы № 93 и 120 и детский сад № 455. Это обеспечивает высокий уровень комфорта для проживания и учебы. С точки зрения инвестиционной привлекательности, данная квартира представляет собой перспективный объект. Стоимость аренды в данном районе варьируется от 2500 рублей в сутки до 25 000 рублей в месяц, при этом наблюдается стабильный рост цен и высокий спрос на жилье данного типа. Квартира не имеет долгов и обременений, принадлежит одному взрослому собственнику. Объект соответствует требованиям для оформления ипотеки в любом банке, использования материнского капитала, областных и федеральных субсидий, а также жилищных сертификатов. Таким образом, данная квартира является оптимальным выбором для комфортного проживания, инвестиций и дальнейшей перепродажи. ID объекта в нашей базе: 18010
    размещено: 02.12.2025 , обновлено: 7.12.2025
  • 1-к квартира, Щорса, 112

    • 33.9 м2
    • 8/9 этаж
    • Состояние: удовлетворительное
    6 200 000 ₽ (182900 ₽/м2)
    Предлагаем вашему вниманию светлую уютную квартиру улучшенной планировки в центральном районе города. ????Расположение:— Рядом станция метро, что значительно экономит ваше время и упрощает передвижение по городу.— Автовокзал поблизости обеспечивает лёгкий доступ ко всем районам региона и соседним городам.— Детский сад напротив дома позволит молодым семьям избежать ежедневных поездок утром и вечером.— Гимназия обеспечит удобное обучение вашим детям.— Торгово-развлекательный центр «Мегаполис» подарит массу возможностей для шопинга, отдыха и развлечений— Продуктовые магазины и пункты выдачи заказов («ПВЗ») расположены буквально в двух шагах от подъезда вашего будущего жилья.???? Дом:Кирпичный дом, обеспечивающий надёжность и отличную звукоизоляцию. ???? Ваш новый дом ждёт вас!Идеальное решение для тех, кто ценит качество жизни, комфорт и доступность всех необходимых услуг.Свяжитесь со мной для дополнительной информации и записи на просмотр. Ваш новый уютный уголок ждет именно вас!????Условия сделкиДва взрослых собственника, Арестов и обременения нет ID объекта в нашей базе: 6669
    размещено: 01.12.2025 , обновлено: 7.12.2025
  • 1-к квартира, Белинского, 218/1

    • 33 м2
    • 6/9 этаж
    • Состояние: хорошее
    5 790 000 ₽ (175500 ₽/м2)
    Объект № 195622. В продаже однокомнатная квартира в пяти минутах ходьбы от метро Ботаническая. Изолированные комната 17,4 кв.м. и кухня 7,7 кв.м., большой балкон 6,2 кв.м. Окна во двор. В квартире установлены пластиковые окна, новые батареи, ламинат. Санузел раздельный, есть счетчики воды. Покупателям остаются: кухонный гарнитур, холодильник, плита, стиральная машина. Отличный вариант для проживания и для сдачи в аренду. Заменен лифт в подъезде. Комфортный 6 этаж, спокойный подъезд. Вся инфраструктура в шаговой доступности: школы, садики, кружки, детская и взрослая поликлиники, ТГ Дирижабль, гипермаркет Окей, ТЦ Золотой, остановки транспорта, метро Ботаническая, быстрый выезд на Объездную дорогу. Квартира без долгов, арестов и обременений, материнский капитал не использовался, один взрослый собственник, в собственности более 5 лет. ***Гарантийный сертификат «Защита собственности» по данному объекту в подарок***
    размещено: 26.11.2025 , обновлено: 5.12.2025

    1-к квартира, Фрунзе, 100

    • 24.5 м2
    • 3/9 этаж
    • Состояние: хорошее
    4 400 000 ₽ (179600 ₽/м2)
    Продаётся однокомнатная квартира в районе Автовокзала. Хорошая планировка квартиры: комната правильной формы, просторная кухня с выходом на балкон, коридор, где установлен вместительный шкаф купе, санузел совмещен. Дом оснащен пассажирским лифтам.В подъезде всегда чисто, регулярно производится уборка. Чистый ухоженный двор с детской площадкой. Развитая инфраструктура: детский сад: № 222; Гимназия №70; школа № 175.Магазины, аптеки возле дома, ТРЦ Мегаполис, Южный автовокзал, метро станция «Чкаловская» в 20 минутах от дома.Остановки общественного транспорта, недалеко от дома.Один взрослый собственник. Ипотека возможна. Звоните, приходите на просмотр. ID объекта в нашей базе: 3051
    размещено: 25.11.2025 , обновлено: 15.12.2025

    1-к квартира, Алма-Атинский, 1

    • 30.4 м2
    • 4/5 этаж
    • Состояние: хорошее
    4 190 000 ₽ (137800 ₽/м2)
    ОДНО ИЗ ЛУЧШИХ ПРЕДЛОЖЕНИЙ в 5-этажных домах, р-н Автовокзал ! -ЧИСТАЯ ПРОДАЖА, БЫСТРЫЙ ВЫХОД НА СДЕЛКУ, никто не живет. Обременения, опека и другие сложности отсутствуют. -РАСПОЛОЖЕНИЕ: ориентир- ул. Белинского, ТГ Дирижабль. В шаговой доступности все виды транспорта, станция метро Ботаническая- примерно 7 минут пешком. -дом находится ВО ДВОРАХ: тихо, не слышно транспорт. -ДОМ: кирпичный, ухоженный. За счет кирпича хорошая звуко- теплоизоляция, летом-не жарко, зимой-не холодно. -ЭТАЖ: комфортный 4-й. В квартире светло, солнечно. -КВАРТИРА: в середине дома,не угловая, не «хрущевка». Просторная кухня 6.5. метров, балкон, большая комната, вместительные шкафы в коридоре. Поменяны ВСЕ стояки. -состояние квартиры обычное, учтено в стоимости. Не надо переплачивать за чужой ремонт, сделаете на свой вкус. Купив эту квартиру, Вы приобретаете ЛИКВИДНЫЙ ВАРИАНТ, с учетом расположения дома в развитом районе, близости к инфраструктуре (особенно при завершении строительства ТРЦ Золотой), тихого переулка Алма-Атинский, кирпичного дома и комфортного этажа. Приглашаем на просмотр! ID объекта в нашей базе: 26155
    размещено: 22.11.2025 , обновлено: 24.11.2025

    1-к квартира, Цвиллинга, 58

    • 30.1 м2
    • 3/25 этаж
    • Состояние: хорошее
    5 800 000 ₽ (192700 ₽/м2)
    Продаётся стильная студия 30 м² в ЖК «Облака», у м. ЧкаловскаяОписание:Собственник продаёт просторную и светлую студию 30 м² в современном жилом комплексе комфорт-класса «Облака»О квартире:· Большая студия 30 кв.м. с возможностью зонирования на спальную и гостевую зоны.· Чистая продажа (без обременений). Собственник — один взрослый.· Качественная отделка, можно заезжать и жить.· Панорамные окна, наполняют пространство светом.О доме и территории:· ЖК комфорт-класса с закрытой охраняемой территорией.· Ухоженный двор без машин, видеонаблюдение, консьерж.· Современные лифты и чистые подъезды.Локация — идеальная! · В шаговой доступности (5-7 мин.) метро «Чкаловская».· Вся инфраструктура под рукой: школы, детские сады, супермаркеты, аптеки, кафе.· Рядом крупные торговые центрыОтличный вариант для первой собственной квартиры или для инвестиций! Свободная планировка позволяет создать интерьер своей мечты.Звоните, чтобы назначить просмотр! ID объекта в нашей базе: 12548
    размещено: 21.11.2025 , обновлено: 9.12.2025

    1-к квартира, Фурманова, 32

    • 24.4 м2
    • 9/9 этаж
    • Состояние: удовлетворительное
    4 299 000 ₽ (176200 ₽/м2)
    Продается уютная однокомнатная квартира в центральном районе города. Отличное расположение дома - Фурманова/Чайковского. Отлично подойдет для собственного проживания или сдачи в аренду (очень востребованный микрорайон!).Кирпичный дом - гарантия тепла и звукоизоляции. Квартира расположена на девятом этаже (сверху еще есть технический этаж, протечек не будет). Есть огороженный тамбур на шесть квартир.Квартира ТРЕБУЕТ РЕМОНТА (есть только стеклопакеты, в том числе и на балконе, и плитка в санузле), что представляет отличную возможность сделать ее такой, какой вы всегда мечтали, реализовать свои дизайнерские решения, и не переплачивать за чужой, ненужный ремонт!Чистый подъезд после ремонта, установлен новый лифт. Благополучные соседи.Зеленый двор. Всегда найдется место для парковки автомобиля.В шаговой доступности все, что нужно для комфортной жизни: поликлиника, детские сады, школы, известная гимназия № 5 (по прописке), музыкальная школа №6, различные сетевые магазины. Недалеко ТРЦ Мегаполис и ТРЦ Гринвич. Рядом парк "Зеленая роща" для прогулок и отдыха.Наилучшая транспортная доступность в любой район города. Рядом остановки общественного транспорта. До станции метро Чкаловская 12 минут пешком.В данный момент живет арендатор (готов арендовать и дальше).Один взрослый собственник. Возможна продажа в ипотеку.Звоните, покажем в удобное для вас время. ID объекта в нашей базе: 11974
    размещено: 21.11.2025 , обновлено: 15.12.2025

    1-к квартира, Онежская, 10

    • 48.9 м2
    • 11/11 этаж
    • Состояние: идеальное
    6 700 000 ₽ (137000 ₽/м2)
    За объект внесен аванс! У нас уже есть покупатель!Предлагаем Вашему вниманию светлую 1 комнатную квартиру в районе АвтовокзалаКвартира:- общая площадь 48,9 м2, кухня 16,2 м2, просторные комнаты - 16,5 м2 и 12 м2, с/у - 2,6 м2, гардеробная - 4,7м2- этаж 11 из 11- в квартире выполнен качественный евро ремонт- высота потолков - 2,5м- счетчики ГВС, ХВС , электричество- в квартире есть подогрев пола в санузле и на лоджии- сейф дверь- секция на этаже закрывается на ключ, за счет чего есть возможность хранения вещей, вне квартиры имеется тамбур, который тоже закрывается, в нем хранится обувь и верхняя одежда, увеличивая свободное пространство в самой квартире- в квартире остается кухонный гарнитур с техникой (духовой шкаф, варочная, вытяжная вентиляция) и гардеробная системаДом:- дом 2003 г- есть своя котельная- свое ТСЖ, низкие коммунальные платежами- отличная шумоизоляция- на этаже две квартиры- территория двора ухоженная- во дворе детская площадка- район отличает хорошая транспортная доступность: до метро "Ботаническая" 5 минут пешком. - в соседнем ЖК расположены магазины, кафе, пункты выдачи и другие полезные сервисы в шаговой доступности.Легко купить: наличные, ипотека.Поможем с реализацией Вашей недвижимости для приобретения данного объекта.Помощь в одобрении ипотеки по наилучшим ставкам от банков партнёров.Квико недвижимость гарантирует своим клиентам безопасность сделки, наша деятельность застрахована. ID объекта в нашей базе: 4728
    размещено: 20.11.2025 , обновлено: 15.12.2025

    1-к квартира, Щорса, 112

    • 32.4 м2
    • 2/9 этаж
    • Состояние: хорошее
    6 250 000 ₽ (192900 ₽/м2)
    Доброго времени суток!В продаже отличная 1К квартира в кирпичном доме. Квартира очень теплая, соседей не слышно, продажа из-за увеличения площади Два взрослых собственника, ипотека погашенаЗвоните прямо сейчас и мы договоримся на просмотр ID объекта в нашей базе: 4916
    размещено: 15.11.2025 , обновлено: 2.12.2025

    1-к квартира, Машинная, 31в

    • 42 м2
    • 15/19 этаж
    • Состояние: идеальное
    7 550 000 ₽ (179800 ₽/м2)
    Продается отличная 1-комнатная квартира!Расположение:Автовокзал м-н, Октябрьский район. жк Suomen RantaКвартира: -в отличном состояний, свежий ремонт,-сан узел полностью в плитке,-установлен встроенный шкаф.-новая кухня с техникой. Дом:- хорошая звуко- и теплоизоляция,- подача ГВС и тепла всегда и по низким тарифам,- бесшумные скоростные лифты,- паркинг,- видеонаблюдение.В подъезде:- просторный дизайнерский холл,- круглосуточная служба охраны,- помещение для колясок и велосипедов с видеонаблюдением,- доступ только через дверь с домофоном.Во дворе:- двор с детскими площадками,- высокие фонари основного освещения, - для детей, горки, качели, материалы эколог. чистые и устойчивые к морозам,Инфраструктура:-Рядом школы, детские сады,-Множество магазинов,-Парк 3мин. Прочее:-Два собственника,-Чистая продажа,-Обременение банка ВТБ. ID объекта в нашей базе: 4911
    размещено: 14.11.2025 , обновлено: 4.12.2025
    • видео

    1-к квартира, Машинная, 44/3

    • 32.1 м2
    • 6/26 этаж
    • Состояние: идеальное
    6 780 000 ₽ (211200 ₽/м2)
    Продаётся уютная однокомнатная квартира (студия) в ЖК «Гольфстрим» Ищете жильё с комфортной атмосферой и удобной локацией? Эта квартира — идеальный вариант! Основные характеристики: • площадь: 32,1 кв. м; • тип: однокомнатная (студия) • состояние: выполнен капитальный ремонт («заезжай и живи»); • комплектация: полностью готова к проживанию. Преимущества локации: • живописная лесопарковая зона рядом с ЦПКиО — отличное место для прогулок и занятий спортом; • удобная транспортная доступность: лёгкий выезд в направлении Центра, Ботаники, Уктуса, Кольцово и других районов; • до ближайшей станции метро — 10–15 минут пешком. Инфраструктура и безопасность: • просторная автостоянка и подземный паркинг, можно рассмотреть вариант с одновременной покупкой паркинга в этом же доме. • закрытая придомовая территория. Условия сделки: • собственник — совершеннолетний; • возможна ипотека; • чистая продажа. Приглашаем на просмотр! Уральский Дом Недвижимости гарантирует юридическую чистоту сделки. Звоните прямо сейчас — эта квартира может стать вашей!
    размещено: 10.11.2025 , обновлено: 14.12.2025

    1-к квартира, Белинского, 112

    • 31 м2
    • 4/4 этаж
    • Состояние: хорошее
    4 200 000 ₽ (135500 ₽/м2)
    Объект № 195265. Безопасный объект - безопасная сделка. Два взрослых собственника, оба будут на сделке, не единственное жильё. Развитая городская инфраструктура - в шаговой доступности есть, практически, всё. Дом кирпичный, т.е. очень тёплый, с хорошей шумоизоляцией. В доме проведён кап.ремонт с заменой электропроводки, труб, крыши. Не согласны с нашей ценой - аргументируйте и предложите свою. ***Гарантийный сертификат «Защита собственности» по данному объекту в подарок***
    размещено: 01.11.2025 , обновлено: 4.12.2025

    1-к квартира, Московская, 251

    • 27.1 м2
    • 25/30 этаж
    • Состояние: удовлетворительное
    7 130 000 ₽ (263100 ₽/м2)
    Продается шикарная студия в жилом комплексе бизнес класса «Парк столиц» в районе Автовокзал. Дом Дубай. В студии выполнена подготовка под чистовую, осталось сделать ремонт на свой вкус и наслаждаться жизнью в шикарном доме! Прогулка по пешеходной галерее дома, которая объединяет все дома в огромное социально-торговое пространство, будет полна открытий, ведь жильцы могут получить здесь всё необходимое буквально в домашних тапочках, не покидая дома. Двор комплекса – это пространство для открытий. Уникальные детские площадки, созданные по индивидуальному заказу не дадут скучать даже самым маленьким жителям, а беговые и велодорожки, вкупе с прогулочными зонами создадут впечатление настоящего приватного парка у взрослых, где за деревьями прячутся уютные скверы, зоны workout и барбекю, уютный пруд и настоящий ручей, а также многое другое. На входе в дом вас встретит дизайнерское лобби, с интерьером которого отражает стиль Дубая. Помимо качественных элементов строительства, отделки и декора, в проекте предусмотрены такие продуманные решения, как высокоскоростные и сервисные лифты, специальные камеры для мусора на каждом этаже и продвинутые технологии энергосбережения, а с помощью мобильного приложения можно оплачивать коммунальные услуги и использовать расширенный спектр функций умного дома. За безопасностью в доме следят умные камеры вкупе с датчиками, внимательный консьерж-сервис и круглосуточная охрана. Вовсе необязательно следить за детьми из окна комнаты или кухни, ведь за периметр безопасности комплекса попросту невозможно попасть. ID объекта в нашей базе: 12088
    размещено: 24.10.2025 , обновлено: 15.12.2025

    1-к квартира, Сурикова, 50

    • 34 м2
    • 4/9 этаж
    • Состояние: хорошее
    6 200 000 ₽ (182400 ₽/м2)
    В чистой продаже однокомнатная квартира в удачной тихой локации рядом с южным автовокзалом. Квартира расположена на 4 этаже 9-этажного дома, общая площадь 34 м2, плюс большая шестиметровая лоджия. Планировка стандартная, комната отдельно от кухни, санузел раздельный. Дом панельный, подьезд чистый, доброжелательные соседи, уютный огороженный двор с двумя детскими площадками, также у дома предусмотрены места для парковки авто.В шаговой доступности станция метро Чкаловская, остановки общественного транспорта (автобус, трамвай), сетевые магазины, аптеки, пункты выдачи заказов, банковские отделения, фитнес-клубы, салоны красоты, поликлиника, почтовое отделение, кафе и рестораны, торговый центр Мегаполис. Рядом школы №175, 185, Гимназии №120, 39, детские сады №366, 222, 451, 73, 50.Также рядом расположены музыкальная школа, детская библиотека и юношеский клуб Созвездие с бесплатными кружками, Дворец спорта. Для отдыха и прогулок недалеко находятся: Ботанический сад, парк Зелёная Роща и Аллея Дворца Спорта. Квартира без долгов и обременений, один взрослый собственник. Если понравилась квартира, но не одобрена ипотека или не продана своя квартира, обращайтесь, поможем. ID объекта в нашей базе: 6135
    размещено: 07.10.2025 , обновлено: 6.11.2025

    1-к квартира, 8 Марта, 194

    • 38.8 м2
    • 7/14 этаж
    • Состояние: хорошее
    7 259 000 ₽ (187100 ₽/м2)
    Просторная однокомнатная квартира в сердце Южного Автовокзала, ЖК Зелёный Мыс.Отличное расположение дома: в шаговой доступности продуктовые и промтоварные магазины, торговое центры, школы - средняя школа № 18, Французская гимназия № 39, детские сады №№ 147, 11. До станции метрополитена "Чкаловская" 7 минут пешком, до остановки Трамвая и автобуса "Южная" 2 мин. От дома без проблем можно попасть на все магистрали ведущие за город, а также попасть в любую точку города.Территория огорожена и находится под видеонаблюдением, во дворе расположены детские площадки, футбольный корт.Проблем с парковкой нет: по периметру ЖК есть бесплатные места для парковки авто, также в непосредственной близости есть платные автостоянки, в ЖК есть подземный паркинг интегрированный в дом, попасть в который можно не выходя из подъезда.Квартира расположена на 9 этаже, окна выходят во двор, в квартире выполнен косметический ремонт: пол - ламинат, сан.узел - керамическая плитка. ID объекта в нашей базе: 1667
    размещено: 23.09.2025 , обновлено: 20.11.2025

    1-к квартира, Циолковского, 57

    • 33 м2
    • 14/20 этаж
    • Состояние: хорошее
    7 149 000 ₽ (216600 ₽/м2)
    В продаже уютная однокомнатная квартира в жилом комплексе « Дас Хаус» , дом 2015 года , в самом сердце района Автовокзал , города Екатеринбурга !- Квартира площадью 33 кв.м. включает в себя светлую гостиную, функциональную кухню, лоджию с выходом на кухню, где можно в встречать закаты, совмещенный санузел.- Квартира полностью готова к проживанию, с необходимой мебелью и техникой: кухонный гарнитур, холодильник, стиральная машина, варочная поверхность, духовой шкаф, платяные шкафы, тумба ТВ.- Чистые подъезды с видеонаблюдением, консьержем, лифты — грузовые и пассажирские. Закрытый двор с детской и спортивными площадками, наличие охраны и видеонаблюдения по всей территории жилого комплекса, подземный паркинг.- Развитая инфраструктура района: метро в 2 х мин пешим шагом, школы, детские сады, больницы, аптеки, остановки общественного транспорта, магазины, торговый центр» Мегаполис». Один взрослый собственник, объект без обременений! Возможна ипотека, поможем с оформлением!! Записывайтесь на просмотр и становитесь счастливым обладателем уникального объекта!! ID объекта в нашей базе: 2184
    размещено: 15.09.2025 , обновлено: 9.11.2025

    1-к квартира, Чапаева, 72а

    • 33.9 м2
    • 2/19 этаж
    • Состояние: хорошее
    7 000 000 ₽ (206500 ₽/м2)
    Продаем отличную 1комнатную квартиру в кирпичном доме 2012 года постройки. Квартира теплая с хорошим ремонтом и огромной лоджией на 2 окна, южная сторона. Для будущего покупателя оставляем кухню и шкаф-купе в прихожей. В подъезде 3 лифта, один из них грузовой. У дома закрытая территория, есть свой подземный паркинг, оборудованная детская площадка. Рядом станция метро, торговый центр Мегаполис ID объекта в нашей базе: 8822
    размещено: 15.09.2025 , обновлено: 13.12.2025

    1-к квартира, 8 Марта, 101

    • 31.1 м2
    • 4/5 этаж
    • Состояние: удовлетворительное
    4 450 000 ₽ (143100 ₽/м2)
    Квартира в отличном месте ,район Автовокзала. Дом находится между двумя станциями метро Чкаловская и Геологическая. Рядом высшие учебные заведения. Школы,садики. Транспорт во все районы города. Квартира требует ремонта. После просмотра торг. Готовы работать с любыми видами сертификатов. ID объекта в нашей базе: 1059
    размещено: 08.09.2025 , обновлено: 9.12.2025

Новостройки Екатеринбург, мкр-н. Автовокзал

Приоритет

Увеличивает просмотры в 3 раза

Ваше объявление показывается в списке выше обычных объявлений. подключить