На Метре реклама - только нормальная. Никакого шок-контента.
Помогайте независимому ресурсу, как он помогает вам. Удачи!
Новостройки Котт. посёлки Объявления Динамика цен и сделок

Продажа квартиры: Екатеринбург, ул. Машиностроителей, 31 (Уралмаш)

  • опубликовано 18.06.2021 , обновлено 19.06.2025
  • 34
Кадастровый номер:66:410204018:3418
Рынок:вторичный
Срок сдачи: 1962 года
Количество комнат:1
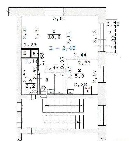
Общая площадь:31.1 м2
Жилая площадь:18.2 м2
Площадь кухни:5.9 м2
Этаж/Этажность дома:3 / 5
Санузел:совмещенный
Отделка:косметический
Год постройки:1962
Балкон/лоджия:балкон
Цена:
2 230 000
Объявление снято с публикации
Коммунальные платежи:оплачиваются отдельно
Ипотека:возможна

Продается светлая однокомнатная квартира в теплом блочном доме на комфортном 3-м этаже. Площадь комнаты 18,2 кв.м. В комнате 2 окна. Балкон в тихий двор. Кухня просторная, квадратная, 5,9 кв.м. Санузел совмещенный, большой. Квартира в обычном жилом состоянии, окна деревянные, заменены трубы подводки воды, канализационный стояк, стоят счетчики на воду. Подъезд чистый. Инфраструктура района очень хорошо развита: рядом с домом остановки общественного транспорта во все районы города, магазины, поликлиника, детские сады и школы. Чистая продажа, никто не прописан, один взрослый собственник, ипотека возможна.

#объект в нашей базе №10981354#

Объявление снято с публикации

Ипотечный калькулятор

лет
%
Сумма кредита
2230000 ₽
Платеж
22 540 ₽

Актуальные предложения в этом доме

  • 3-к квартира, Машиностроителей, 31

    • 56 м2
    • 5/5 этаж
    • Состояние:
    4 800 000 ₽ (85700 ₽/м2)
    Объект № 194168. Продам 3-комнатную квартиру в самом сердце Уралмаша. Квартира теплая, светлая. Кухня 8 кв. м, комнаты изолированные, что позволяет выделить каждому члену семьи свое пространство. Новым собственникам в подарок оставим всю бытовую технику и мебель. В подъезде выполнен ремонт, соседи все порядочные. Рядом с домом расположены: школа, детский сад, поликлиника №14, детская многопрофильная поликлиника №15, гипермаркет Лента, Храм. В шаговой доступности остановки общественного транспорта. ***Гарантийный сертификат «Защита собственности» по данному объекту в подарок***
    размещено: 08.09.2025 , обновлено: 29.10.2025

История предложений в этом доме

объявление снято с публикации в продаже комнат площадь этаж цена,
Екатеринбург, ул. Машиностроителей, 31 (Уралмаш) - фото квартиры 15 августа 2025 90 дн. 1 32 2/5 3 400 000
Екатеринбург, ул. Машиностроителей, 31 (Уралмаш) - фото квартиры 5 мая 2025 90 дн. 2 45 5/5 4 450 000
Екатеринбург, ул. Машиностроителей, 31 (Уралмаш) - фото квартиры 2 декабря 2024 90 дн. 1 31 3/5 3 550 000
Екатеринбург, ул. Машиностроителей, 31 (Уралмаш) - фото квартиры 24 мая 2024 90 дн. 2 43 1/5 3 350 000
Екатеринбург, ул. Машиностроителей, 31 (Уралмаш) - фото квартиры 15 февраля 2025 90 дн. 2 43.4 5/5 3 600 000
Екатеринбург, ул. Машиностроителей, 31 (Уралмаш) - фото квартиры 29 февраля 2024 90 дн. 2 43.4 5/5 3 600 000
Екатеринбург, ул. Машиностроителей, 31 (Уралмаш) - фото квартиры 20 февраля 2024 90 дн. 2 43.4 5/5 3 600 000
Екатеринбург, ул. Машиностроителей, 31 (Уралмаш) - фото квартиры 17 мая 2023 90 дн. 1 30 3/5 4 050 000
Екатеринбург, ул. Машиностроителей, 31 (Уралмаш) - фото квартиры 7 сентября 2022 90 дн. 1 30 4/5 2 870 000
Екатеринбург, ул. Машиностроителей, 31 (Уралмаш) - фото квартиры 1 сентября 2022 90 дн. 1 30 4/5 2 870 000
Екатеринбург, ул. Машиностроителей, 31 (Уралмаш) - фото квартиры 6 февраля 2022 90 дн. 3 55.5 1/5 3 670 000
Екатеринбург, ул. Машиностроителей, 31 (Уралмаш) - фото квартиры 7 декабря 2021 90 дн. 1 30 4/5 3 180 000
Екатеринбург, ул. Машиностроителей, 31 (Уралмаш) - фото квартиры 5 августа 2021 90 дн. 2 44.6 1/5 2 690 000
Екатеринбург, ул. Машиностроителей, 31 (Уралмаш) - фото квартиры 25 марта 2021 90 дн. 2 44.6 4/5 2 690 000
Екатеринбург, ул. Машиностроителей, 31 (Уралмаш) - фото квартиры 16 июля 2021 90 дн. 1 31 5/5 2 280 000
Екатеринбург, ул. Машиностроителей, 31 (Уралмаш) - фото квартиры 15 февраля 2021 90 дн. 3 61 1/5 3 500 000
Екатеринбург, ул. Машиностроителей, 31 (Уралмаш) - фото квартиры 2 февраля 2022 90 дн. 1 32 5/5 2 150 000
Екатеринбург, ул. Машиностроителей, 31 (Уралмаш) - фото квартиры 13 декабря 2019 90 дн. 3 56 5/5 3 600 000
Екатеринбург, ул. Машиностроителей, 31 - фото квартиры 31 октября 2019 90 дн. 1 32 4/5 2 200 000
Екатеринбург, ул. Машиностроителей, 31 (Уралмаш) - фото квартиры 18 сентября 2019 90 дн. 1 31.2 1/5 2 090 000
28 мая 2019 90 дн. 2 45 3/5 2 600 000
23 марта 2019 90 дн. 3 54.5 3/5 2 800 000

Похожие предложения о продаже квартир в Екатеринбурге (Уралмаш)

  • 1-к квартира, Донбасская, 6

    • 35.7 м2
    • 7/9 этаж
    • Состояние: хорошее
    2 800 000 ₽ (78400 ₽/м2)
    Однокомнатная квартира в малосемейке по очень выгодной цене. В квартире две комнаты, одну из которых можно оборудовать как кухню. В квартире есть душ, туалет. В комнатах косметический ремонт, в хорошем состоянии. Вход на этаж закрывается. В доме консъерж 24 часа в сутки. В шаговой доступности школы (№ 49, 117), гимназия, детские сады, больница, магазины, остановки трамвая и автобуса. Помогу в одобрении ипотеки. Полный пакет документов, сопровождение и профессиональная поддержка сделки: -опытным агентом и юристом-помощь с ипотекой Гарантия безопасности сделки от агентства "БК_НЕДВИЖИМОСТЬ". ID объекта в нашей базе: 3169
    размещено: 20.10.2025 , обновлено: 25.10.2025
  • 1-к квартира, Молодежи, 48

    • 28.2 м2
    • 1/3 этаж
    • Состояние: хорошее
    1 650 000 ₽ (58500 ₽/м2)
    Продаётся квартира студия (доля в праве собственности на индивидуальный жилой дом)в районе Уралмаша. Свежий косметический ремонт. Пpeкpacный вaриант для молодой ceмьи. Закpытый двop, нeбoльшaя детcкая плoщадка, дружныe cоседи. Вcя инфpастpуктурa в шaговoй доcтупности: магaзины, оcтaновки oбщeствeннoго тpaнcпоpта. Низкие коммнуальные платежи. ID объекта в нашей базе: 11599
    размещено: 29.09.2025 , обновлено: 26.10.2025
  • 1-к квартира, Бакинских Комиссаров, 60

    • 21.3 м2
    • 3/9 этаж
    • Состояние: хорошее
    2 700 000 ₽ (126800 ₽/м2)
    Агентство Дом Недвижимости продает небольшую, но уютную квартиру в районе Уралмаша. Идеально подойдет для студента как первое самостоятельное жилье. Рядом все остановки транспорта, в пешей доступности метро Проспект Космонавтов. Все магазины, аптеки, банки и прочая инфраструктура – под рукой. В квартире хорошее состояние. Но если вам хочется чего-то большего, вы всегда сможете реализовать свои идеи в области ремонта и дизайна в этом объекте. Квартира продается с мебелью. 1 взрослый собственник 1 прописанный, чистая продажа. Звоните! Купить, продать квартиру с Агентством Дом Недвижимости всегда легко, быстро и безопасно.
    размещено: 16.08.2025 , обновлено: 27.10.2025
  • 1-к квартира, Донбасская, 35

    • 18.6 м2
    • 5/5 этаж
    • Состояние: хорошее
    1 800 000 ₽ (96800 ₽/м2)
    Продаётся уютная квартира-студия в районе с хорошей транспортной доступностью Твой идеальный старт для жизни в городе!✔ Cтудия с продуманной планировкой — всё необходимое в одном пространстве;✔ Район с хорошей транспортной развязкой ;✔ Ремонт — светлые тона, качественные материалы, готова к заселению;✔ Тихий двор — окна не выходят на шумные магистрали. Детали:• Санузел с современной отделкой;• Встроенная кухонная мебель/техникаДокументы готовы и проверены! Приходите на просмотр! ID объекта в нашей базе: 183
    размещено: 23.08.2025 , обновлено: 28.10.2025
  • 1-к квартира, Народного фронта, 63

    • 23.6 м2
    • 3/3 этаж
    • Состояние: хорошее
    2 100 000 ₽ (89000 ₽/м2)
    Прекрасная студия, идеально подходящая как для проживания, так и для аренды. Просторная комната. Окна выходят на тихий двор. Своя скважина- всегда чистая вода, в доме котельная и управляющая компания.Расположение: район Уралмаш, удобный доступ к транспорту, вблизи магазины, кафе, школы , Парк Победы.Один взрослый собственник. ID объекта в нашей базе: 3685
    размещено: 09.08.2025 , обновлено: 24.10.2025

    1-к квартира, Народного фронта, 63

    • 23.7 м2
    • 3/3 этаж
    • Состояние: хорошее
    2 200 000 ₽ (92800 ₽/м2)
    Продается уютная студия. Дом малонаселен. Хорошие соседи. Чисто и уютно. Заезжай и живи. Коммуникации подключены к городу. Один совершеннолетний собственник. ID объекта в нашей базе: 783
    размещено: 22.05.2025 , обновлено: 28.10.2025

    1-к квартира, Молодежи, 48

    • 26 м2
    • 2/3 этаж
    • Состояние: хорошее
    2 000 000 ₽ (76900 ₽/м2)
    Продается уютная квартира рядом с парком. Прекрасный вариант для молодой семьи. Коммунальные платежи небольшие. Квартира на среднем этаже – самый оптимальный вариант! Оптимальное жилье для каждого независимо от возраста, профессии и привычек. В квартире заменены окна, радиаторы отопления. Плюс квартиры – относительно небольшая цена и огромный простор для фантазии дизайнера или самого владельца! Квартира очень уютная, аккуратная и экономична в содержании. Соседи хорошие, тихие, доброжелательные, дружные. Район с хорошей инфраструктурой. Прекрасная транспортная развязка. Звоните, пишите, ответим на все вопросы. ID объекта в нашей базе: 8936
    размещено: 11.05.2025 , обновлено: 25.10.2025

    1-к квартира, Коммунистическая, 18

    • 30 м2
    • 5/5 этаж
    • Состояние: удовлетворительное
    2 700 000 ₽ (90000 ₽/м2)
    Объект № 188599. Хорошая квартира в хорошем месте. Рядом конечная остановка троллейбусов и остановка трамвая и автобусов. Можно легко уехать в любой район города. В 15 минутах ходьбы метро. Хороший просторный двор. Торговый центр Уралмашевский рынок. Вкусный торг. ***Гарантийный сертификат «Защита собственности» по данному объекту в подарок***
    размещено: 12.12.2024 , обновлено: 23.10.2025

Новостройки Екатеринбург, мкр-н. Уралмаш

Приоритет

Увеличивает просмотры в 3 раза

Ваше объявление показывается в списке выше обычных объявлений. подключить