На Метре реклама - только нормальная. Никакого шок-контента.
Помогайте независимому ресурсу, как он помогает вам. Удачи!
Новостройки Котт. посёлки Объявления Динамика цен и сделок

Продажа квартиры: Екатеринбург, ул. Машиностроителей, 31 (Уралмаш)

  • опубликовано 19.04.2024 , обновлено 28.08.2025
  • 36
Кадастровый номер:66:41:0204018:3328
Рынок:вторичный
Срок сдачи: 1962 года
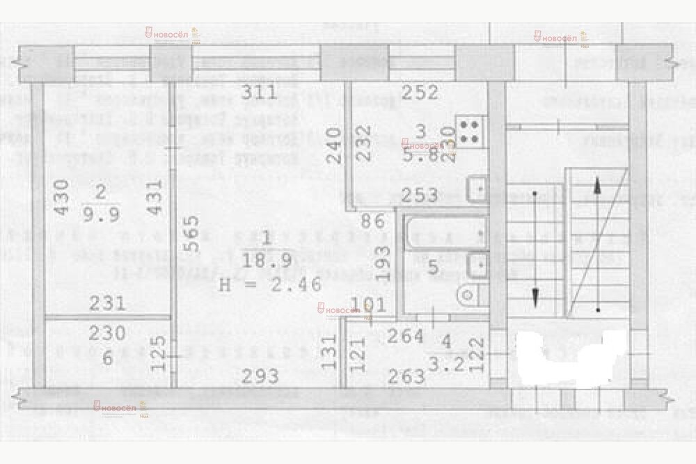
Количество комнат:2
Общая площадь:43 м2
Жилая площадь:30 м2
Площадь кухни:6 м2
Этаж/Этажность дома:1 / 5
Санузел:раздельный
Год постройки:1962
Состояние:плохое
Цена:
3 350 000
Объявление снято с публикации
Коммунальные платежи:оплачиваются отдельно
Ипотека:возможна

Объект № 182419. Продается бюджетная полноценная 2-комнатная квартира требующая ремонта. Окна выходят во двор.
Очень удобное расположение дома - рядом ТЦ, парк, магазины, школа, д/сад, до остановок 3 минуты. Удобные транспортные развязки (автобусы, троллейбусы, трамваи, маршрутки - все рядом).
С парковкой у дома проблем нет. Подъезд чистый, соседи хорошие.
Документы в порядке. Один собственник. Чистая продажа. ***Гарантийный сертификат «Защита собственности» по данному объекту в подарок***

Объявление снято с публикации

Ипотечный калькулятор

лет
%
Сумма кредита
3350000 ₽
Платеж
22 540 ₽

Актуальные предложения в этом доме

  • 3-к квартира, Машиностроителей, 31

    • 56 м2
    • 5/5 этаж
    • Состояние:
    4 800 000 ₽ (85700 ₽/м2)
    Объект № 194168. Продам 3-комнатную квартиру в самом сердце Уралмаша. Квартира теплая, светлая. Кухня 8 кв. м, комнаты изолированные, что позволяет выделить каждому члену семьи свое пространство. Новым собственникам в подарок оставим всю бытовую технику и мебель. В подъезде выполнен ремонт, соседи все порядочные. Рядом с домом расположены: школа, детский сад, поликлиника №14, детская многопрофильная поликлиника №15, гипермаркет Лента, Храм. В шаговой доступности остановки общественного транспорта. ***Гарантийный сертификат «Защита собственности» по данному объекту в подарок***
    размещено: 08.09.2025 , обновлено: 29.10.2025

История предложений в этом доме

объявление снято с публикации в продаже комнат площадь этаж цена,
Екатеринбург, ул. Машиностроителей, 31 (Уралмаш) - фото квартиры 15 августа 2025 90 дн. 1 32 2/5 3 400 000
Екатеринбург, ул. Машиностроителей, 31 (Уралмаш) - фото квартиры 5 мая 2025 90 дн. 2 45 5/5 4 450 000
Екатеринбург, ул. Машиностроителей, 31 (Уралмаш) - фото квартиры 2 декабря 2024 90 дн. 1 31 3/5 3 550 000
Екатеринбург, ул. Машиностроителей, 31 (Уралмаш) - фото квартиры 15 февраля 2025 90 дн. 2 43.4 5/5 3 600 000
Екатеринбург, ул. Машиностроителей, 31 (Уралмаш) - фото квартиры 29 февраля 2024 90 дн. 2 43.4 5/5 3 600 000
Екатеринбург, ул. Машиностроителей, 31 (Уралмаш) - фото квартиры 20 февраля 2024 90 дн. 2 43.4 5/5 3 600 000
Екатеринбург, ул. Машиностроителей, 31 (Уралмаш) - фото квартиры 17 мая 2023 90 дн. 1 30 3/5 4 050 000
Екатеринбург, ул. Машиностроителей, 31 (Уралмаш) - фото квартиры 7 сентября 2022 90 дн. 1 30 4/5 2 870 000
Екатеринбург, ул. Машиностроителей, 31 (Уралмаш) - фото квартиры 1 сентября 2022 90 дн. 1 30 4/5 2 870 000
Екатеринбург, ул. Машиностроителей, 31 (Уралмаш) - фото квартиры 6 февраля 2022 90 дн. 3 55.5 1/5 3 670 000
Екатеринбург, ул. Машиностроителей, 31 (Уралмаш) - фото квартиры 7 декабря 2021 90 дн. 1 30 4/5 3 180 000
Екатеринбург, ул. Машиностроителей, 31 (Уралмаш) - фото квартиры 17 августа 2021 90 дн. 1 31.1 3/5 2 230 000
Екатеринбург, ул. Машиностроителей, 31 (Уралмаш) - фото квартиры 5 августа 2021 90 дн. 2 44.6 1/5 2 690 000
Екатеринбург, ул. Машиностроителей, 31 (Уралмаш) - фото квартиры 25 марта 2021 90 дн. 2 44.6 4/5 2 690 000
Екатеринбург, ул. Машиностроителей, 31 (Уралмаш) - фото квартиры 16 июля 2021 90 дн. 1 31 5/5 2 280 000
Екатеринбург, ул. Машиностроителей, 31 (Уралмаш) - фото квартиры 15 февраля 2021 90 дн. 3 61 1/5 3 500 000
Екатеринбург, ул. Машиностроителей, 31 (Уралмаш) - фото квартиры 2 февраля 2022 90 дн. 1 32 5/5 2 150 000
Екатеринбург, ул. Машиностроителей, 31 (Уралмаш) - фото квартиры 13 декабря 2019 90 дн. 3 56 5/5 3 600 000
Екатеринбург, ул. Машиностроителей, 31 - фото квартиры 31 октября 2019 90 дн. 1 32 4/5 2 200 000
Екатеринбург, ул. Машиностроителей, 31 (Уралмаш) - фото квартиры 18 сентября 2019 90 дн. 1 31.2 1/5 2 090 000
28 мая 2019 90 дн. 2 45 3/5 2 600 000
23 марта 2019 90 дн. 3 54.5 3/5 2 800 000

Похожие предложения о продаже квартир в Екатеринбурге (Уралмаш)

  • 2-к квартира, Восстания, 110

    • 42.8 м2
    • 1/9 этаж
    • Состояние: удовлетворительное
    4 350 000 ₽ (101600 ₽/м2)
    Квартира в 15 минутах ходьбы от метро! Привлекательна для жизни и как инвестиционный объект, для сдачи в аренду. Комфортный первый этаж – очень удобно для семей с колясками, велосипедами, а также для пожилых людей. ДОМ. Дом теплый. Подъезд чистый, после ремонта. Во дворе дома парковка, детская площадка. Соседи порядочные. КВАРТИРА. В квартире состояние хорошее. Окна пластиковые, натяжной потолок в комнатах, ламинат. Сан.узел в плитке. Остается пара шкафов-купе. Перегородка между кухней и залом немного перенесена в пользу увеличения площади кухни. ИНФРАСТРУКТУРА. Магазины: супермаркеты на любой вкус. Транспорт: метро «Проспект Космонавтов» - 15 минут ходьбы, трамвай – 7 минут ходьбы, автобусы и троллейбусы во все направления от метро. Во дворе дома находятся школа СОШ №27 и детский сады №153. Для вас вся инфраструктура Орджоникидзевского района! СИТУАЦИЯ. Обмен. Документы в порядке. Один совершеннолетний собственник. В собственности более 5 лет. ПРОСМОТР. Показываем по предварительной договоренности. Записывайтесь на просмотр ID объекта в нашей базе: 834
    размещено: 29.10.2025
  • 2-к квартира, Медицинский, 3

    • 43 м2
    • 5/5 этаж
    • Состояние: хорошее
    3 990 000 ₽ (92800 ₽/м2)
    Объект № 195138. Продается светлая двухкомнатная квартира. Отличный вид из окна, две большие комнаты. В доме поменяна крыша. Рядом с домом школа, и хорошая парковка для автомобилей. Один собственник, материнский капитал не использовался, документы проверены. Приглашаем на просмотр. ***Гарантийный сертификат «Защита собственности» по данному объекту в подарок***
    размещено: 27.10.2025 , обновлено: 28.10.2025
  • 2-к квартира, Машиностроителей, 59

    • 44 м2
    • 2/5 этаж
    • Состояние: удовлетворительное
    3 600 000 ₽ (81800 ₽/м2)
    Продаем Двухкомнатную квартиру в кирпичном доме второй этаж балкон. Квартира подготовлена под капитальный ремонт. Везде установлены пластиковые окна и качественная сейф дверь. Обои сняты. Отличный вариант кто планирует сделать ремонт по себя. ID объекта в нашей базе: 4806
    размещено: 27.10.2025
  • 2-к квартира, Космонавтов, 29

    • 43.3 м2
    • 2/5 этаж
    • Состояние: удовлетворительное
    4 180 000 ₽ (96500 ₽/м2)
    Продается квартира, комнаты изолированы, чистая продажа, один взрослый собственник. Без долгов и обременений. Дом находится во дворе. Развита инфраструктура, в шаговой доступности остановки транспорта, до МЕТРО 5 минут. ID объекта в нашей базе: 3657
    размещено: 22.10.2025 , обновлено: 29.10.2025
  • 2-к квартира, Лукиных, 4

    • 43.1 м2
    • 5/5 этаж
    • Состояние: плохое
    3 300 000 ₽ (76600 ₽/м2)
    Двушка у Парка Победы. Требует ремонта. Комнаты вагончиком. Есть балкон. Санузел совмещенный. Дешево! Один собственник. Освобождена. Быстрый выход на сделку. ID объекта в нашей базе: 18041
    размещено: 22.10.2025 , обновлено: 28.10.2025

    2-к квартира, Коммунистическая, 14

    • 46.1 м2
    • 1/5 этаж
    • Состояние: хорошее
    4 200 000 ₽ (91100 ₽/м2)
    Продается двухкомнатная квартира, расположенная на 1 этаже. В квартире сделана перепланировка, объединена кухня с гостиной, узаконена. У дома отличная локация, рядом остановка троллейбуса, метро и трамвай в 10 мин пешком. В шаговой доступности расположены школы и детские сады, магазины, аптеки. ID объекта в нашей базе: 3484
    размещено: 17.10.2025 , обновлено: 24.10.2025

    2-к квартира, Восстания, 110

    • 42.8 м2
    • 1/9 этаж
    • Состояние: удовлетворительное
    4 350 000 ₽ (101600 ₽/м2)
    Квартира в 15 минутах ходьбы от метро! Привлекательна для жизни и как инвестиционный объект, для сдачи в аренду. Комфортный первый этаж – очень удобно для семей с колясками, велосипедами, а также для пожилых людей. ДОМ. Дом теплый. Подъезд чистый, после ремонта. Во дворе дома парковка, детская площадка. Соседи порядочные. КВАРТИРА. В квартире состояние хорошее. Окна пластиковые, натяжной потолок в комнатах, ламинат. Сан.узел в плитке. Остается пара шкафов-купе. Перегородка между кухней и залом немного перенесена в пользу увеличения площади кухни. ИНФРАСТРУКТУРА. Магазины: супермаркеты на любой вкус. Транспорт: метро «Проспект Космонавтов» - 15 минут ходьбы, трамвай – 7 минут ходьбы, автобусы и троллейбусы во все направления от метро. Во дворе дома находятся школа СОШ №27 и детский сады №153. Для вас вся инфраструктура Орджоникидзевского района! СИТУАЦИЯ. Обмен. Документы в порядке. Один совершеннолетний собственник. В собственности более 5 лет. ПРОСМОТР. Показываем по предварительной договоренности. Записывайтесь на просмотр. ID объекта в нашей базе: 834
    размещено: 14.10.2025 , обновлено: 20.10.2025

    2-к квартира, Республиканская, 3

    • 45.1 м2
    • 3/5 этаж
    • Состояние: удовлетворительное
    4 000 000 ₽ (88700 ₽/м2)
    Описание: В продаже двухкомнатная квартира микрорайон Уралмаш, общей площадью 45 кв метров на 3 этаже пятиэтажного дома. Комнаты изолированы, объединен санузел, имеется застекленный балкон. Окна выходят во двор, где растут сосны, квартира теплая и светлая Натяжные потолки, на полу ламинат, окна и входная группа на балкон пластиковые, в кухне поклеены новые обои. Подарок: Новым собственника остаются: кухонный гарнитур с варочной поверхностью и вытяжкой, два шкафа-купе, стол, тумбочки. Дом с огороженной территорией, двор чистый и тихий. Подъезд чистый, жильцы за ним ухаживают, можно оставить коляски и самокаты. Проблем с парковкой нет! Расположение: в 5 минутах ходьбы Парк Победы, где можно гулять круглый год, имеется хорошая лыжная база. Остановка общественного транспорта в 5 минутах ходьбы. Важно: Два взрослых собственника, в собственности более 5 лет, долгов и обременений нет, средства МСК не использовались, чистая продажа, быстрый выход на сделку. Торг уместен. ID объекта в нашей базе: 11808
    размещено: 13.10.2025 , обновлено: 24.10.2025

    2-к квартира, Ломоносова, 28

    • 39.9 м2
    • 1/4 этаж
    • Состояние: хорошее
    3 850 000 ₽ (96500 ₽/м2)
    Продаётся тёплая двухкомнатная квартира в кирпичном доме. Состояние квартиры хорошее. В шаговой доступности от дома школы, детские сады, магазины, остановки транспорта и прочая, необходимая для комфортной жизни инфраструктура. Квартира без обременений, без перепланировок. Собственник один взрослый. ID объекта в нашей базе: 25941
    размещено: 04.10.2025 , обновлено: 29.10.2025

    2-к квартира, Машиностроителей, 73

    • 42 м2
    • 1/5 этаж
    • Состояние: удовлетворительное
    3 700 000 ₽ (88100 ₽/м2)
    Объект № 194706. Продается 2-комнатная квартира с изолированными комнатами. Теплая, с плиткой в с/у и ламинатом на полу, стеклопакеты. Развита инфраструктура: школы, садики, остановки транспорта в шаговой доступности. Звоните! ***Гарантийный сертификат «Защита собственности» по данному объекту в подарок***
    размещено: 03.10.2025 , обновлено: 23.10.2025

    2-к квартира, Бакинских комиссаров, 116

    • 42.9 м2
    • 6/9 этаж
    4 300 000 ₽ (100200 ₽/м2)
    Арт. 118190668 В Продаже 2-к квартира под ремонт! Ваш шанс создать идеальное пространство в вашем цвете. При этом не тратить деньги за чужой ремонт. Это отличный вариант для тех, кто хочет воплотить свои идеи и создать жилье своей мечты Основные характеристики:Площадь 42,9 кв мЭтаж 62 изолированные комнаты Почему стоит обратить внимание именно на эту квартиру?Свобода выбора: вы сами выбираете материалы, стиль, планировку, которые подойдут именно вамРасположение: Тихий, спокойный район, где в шаговой доступности вся необходимая инфраструктура - магазины, остановки, несколько школ, детских садов, крупный ТРЦ Veer Moll, недалеко станция метро, а значит и до центра города можно быстро добратьсяТакже это отличный вариант для инвестиций, вложившись в ремонт можно значительно увеличить стоимость квартиры Не упустите шанс стать владельцем квартиры, где каждую деталь вы можете создать сами! Звоните прямо сейчас, чтобы записаться на просмотр и обсудить детали! Ваш дом ждет вас!
    размещено: 29.09.2025 , обновлено: 28.10.2025

    2-к квартира, Культуры, 10

    • 44.3 м2
    • 3/6 этаж
    • Состояние: плохое
    3 940 000 ₽ (88900 ₽/м2)
    Объект № 194507. Продам 2-комнатную квартиру, расположенную в самом сердце Уралмаша. Окна на светлую сторону (ул. Красных Партизан). Квартира требует капитального ремонта. Частично заменены окна на пластиковые. Документы готовы. Ипотека возможна. Приглашаю на просмотр! ***Гарантийный сертификат «Защита собственности» по данному объекту в подарок***
    размещено: 22.09.2025 , обновлено: 23.10.2025

    2-к квартира, Социалистическая, 3а

    • 44.4 м2
    • 5/5 этаж
    • Состояние: хорошее
    3 800 000 ₽ (85600 ₽/м2)
    Уралмаш — это исторический район-завод, рожденный в советское время как город-спутник знаменитого Уралмашзавода. Это район с сильным духом, своей атмосферой и развитой, независимой инфраструктурой. Здесь есть всё необходимое для жизни. Инфраструктура района: Транспортная доступность, по проспекту Космонавтов и улице Машиностроителей проходит большое количество автобусов, трамваев (маршруты 2, 8, 14, 16, 22, 24, 28) и маршрутных такси. До центра (пл. 1905 года) можно добраться за 20-30 минут без пробок.Метро: Станция «Уралмаш» — это конечная станция первой линии. Это огромный плюс, так как утром можно сесть в пустой вагон и доехать до центра быстро и с комфортом.Выезд из города: Рядом проходит проспект Космонавтов, который переходит в Московский тракт — главную выездную магистраль в сторону Перми, что удобно для автомобилистов.Крупные торговые центры, супермаркеты («Ашан», «Перекрёсток», «Лента»), магазины одежды, электроники, мебели и т.д.· Рынки где можно купить свежие продукты, одежду и всё что угодно.· Магазины шаговой доступности.· Кафе и рестораны. Детские сады: Большое количество муниципальных и частных детских садов.· Школы: В районе несколько десятков школ, включая гимназии и лицеи с хорошей репутацией.· Дополнительное образование: Дворцы творчества, спортивные школы (например, знаменитая школа хоккея «Спартаковец»), художественные и музыкальные школы.· Поликлиники: Взрослые и детские поликлиники, а также множество частных медицинских центров и клиник. Центральный парк культуры и отдыха имени Лаврова: Главное место для отдыха. Есть прогулочные аллеи, летние эстрады, зимой — каток.· Спортивные объективы: Стадион «Уралмаш», ледовый дворец «Кристалл», бассейны, множество современных спортивных площадок во дворах.· Скверы: Благоустроенный сквер у ДК Уралмаш, сквер Победы. Дворец культуры им. Окунева (ДК Уралмаш): Архитектурный символ района. Здесь проходят концерты, выставки, работают кружки и студии.· Кинотеатр «Заря»: Современный кинотеатр.Уралмаш — это не просто спальный район, а настоящий город в городе со своим характером. Он идеально подходит для людей, которые ценят удобство, доступность и хорошую транспортную связь без переплаты за центральное расположение.Звоните! ID объекта в нашей базе: 11422
    размещено: 21.09.2025 , обновлено: 25.10.2025

    2-к квартира, Победы, 28

    • 44.5 м2
    • 5/5 этаж
    • Состояние: удовлетворительное
    4 100 000 ₽ (92100 ₽/м2)
    Продам двух комнатную квартиру в центре Уралмаша. Теплая, светлая квартира с удобной планировкой, окна выходят на обе стороны. Комнаты смежные, но при желании легко переделать в раздельные. У нас прекрасные соседи, чистый подъезд, зеленый двор. Хорошая транспортная развязка, до метро пр. Космонавтов пешком 7 минут. Множество точек быта: от аптек, супермаркетов до зоомагазинов. По прописке лицей №100, школа «Арт-Этюд», хорошие детские сады с ясельными группами. Один совершеннолетний собственник, в квартире никто не прописан. Чистая продажа, быстрый выход на сделку. ID объекта в нашей базе: 17907
    размещено: 12.09.2025 , обновлено: 21.10.2025

    2-к квартира, Избирателей, 15

    • 43.9 м2
    • 3/5 этаж
    • Состояние: удовлетворительное
    3 900 000 ₽ (88800 ₽/м2)
    В продаже двухкомнатная квартира в тихом спальном месте района Уралмаш. До станции метро Космонавтов 10-15 минут ходьбы. Квартира расположена на 3 этаже, имеет удачную планировку: окна выходят на разные стороны, везде тихая улица, есть балкон, 2 кладовки. Квартира требует ремонта. Есть свое парковочное место возле дома, напротив окон, также вокруг дома всегда есть, где припарковаться. В доме установлен домофон, детская площадка. Чистый подъезд, только сделан ремонт, порядочные и спокойные соседи. Преимущество нашей квартиры это удачная локация: рядом с домом много детских садов № 165, 203, 406, 411, 382, 319, 460, в шаговой доступности школы-лицеи № 100, 128, ДЮСШ, фитнес-клуб, много магазинов, развитая транспортная сеть. Квартира в обременении не состоит, один совершеннолетний собственник, МСК не использован. Полный пакет документов, сопровождение и профессиональная поддержка сделки:- опытным агентом и юристом- помощь с ипотекойГарантия безопасности сделки от агентства «БК_НЕДВИЖИМОСТЬ». Все предложения по торгу обсуждаем при просмотре квартиры. Ждем всех желающих на просмотр. ID объекта в нашей базе: 3124
    размещено: 13.08.2025 , обновлено: 21.10.2025

    2-к квартира, Коммунистическая, 6

    • 46 м2
    • 1/5 этаж
    • Состояние: плохое
    3 900 000 ₽ (84800 ₽/м2)
    Объект № 193659. Продается 2-комнатная квартира с окнами во двор, комнаты смежные (есть возможность их изолировать). Квартира требует ремонта. Дом расположен на тихой улице. Напротив дома школа №178, детский сад № 319. До станции метро Проспект Космонавтов 15 минут. Квартира в чистой продаже, один взрослый собственник, никто не прописан в квартире, быстрый выход на сделку. ***Гарантийный сертификат «Защита собственности» по данному объекту в подарок***
    размещено: 12.08.2025 , обновлено: 23.10.2025

    2-к квартира, 40-летия Октября, 13

    • 42.4 м2
    • 5/5 этаж
    • Состояние: хорошее
    4 200 000 ₽ (99100 ₽/м2)
    Предлагается к продаже двухкомнатная квартира, где вас ждет атмосфера уюта и комфорта. Просторные, наполненные светом комнаты правильной формы позволяют легко и функционально расставить мебель. Санузел порадует вас свежим, стильным ремонтом, выполненным в приятной цветовой гамме. На светлой и чистой кухне установлены современные пластиковые окна. В гостиной предусмотрена ниша, идеально подходящая для размещения дивана. В квартире остается диван, кресла, кровать и кухонный гарнитур, но по вашему желанию мы готовы освободить пространство. Квартира юридически чиста, без каких-либо обременений, и находится в собственности одного человека. Мы готовы рассмотреть покупателей с ипотекой и различными формами сертификатов. Расположение дома – это еще одно преимущество! Все необходимое для комфортной жизни находится в шаговой доступности: магазины, школы, детские сады, а также удобная транспортная развязка. Не упустите свой шанс! Позвоните нам сегодня, чтобы договориться о просмотре и оценить все достоинства этой замечательной квартиры. ID объекта в нашей базе: 10406
    размещено: 24.07.2025 , обновлено: 26.10.2025

    2-к квартира, Фестивальная, 20

    • 45 м2
    • 3/5 этаж
    • Состояние: хорошее
    4 200 000 ₽ (93300 ₽/м2)
    Объект № 193063. Продается аккуратная квартира в развитом районе города. Рядом остановка транспорта, магазины, школы, детские сады. В квартире сделан ремонт. Кухонный гарнитур входит в стоимость. Звоните, показы по предварительной договоренности. ***Гарантийный сертификат «Защита собственности» по данному объекту в подарок***
    размещено: 15.07.2025 , обновлено: 8.10.2025

    2-к квартира, Победы, 11

    • 42.5 м2
    • 5/5 этаж
    • Состояние: плохое
    4 200 000 ₽ (98800 ₽/м2)
    В продаже двухкомнатная квартира площадью 42,5 м.кв. Окна выходят на север во двор с детской площадкой.ДОМ: 1967 года постройки, материал стен: блоки. В любое время года в квартире очень тепло.КВАРТИРА: Требуется капитальный ремонт. В квартире заменены стеклопакеты, установлена сейф-дверь. Установлены счетчики холодного, горячего водоснабжения, двухтарифный счетчик электрической энергии. ИНФРАСТРУКТУРА: У дома выгодное географическое положение. Рядом остановка троллейбусов, автобусов, трамваев, а так же в шаговой доступности станция метро Уралмаш. Рядом несколько детских садов частных и муниципальных, школы ,торгово-развлекательных центров.ЮРИДИЧЕСКАЯ ЧИСТОТА: Квартира без обременений, залогов, арестов. Один взрослый собственник. Полная стоимость в договоре. Квартира освобождена. Просмотры по договоренности. ID объекта в нашей базе: 8407
    размещено: 02.07.2025 , обновлено: 20.10.2025

    2-к квартира, Донбасская, 25

    4 350 000 ₽ (101200 ₽/м2)
    В квартире сделан капитальный ремонт.-Заменены полы -Электрика (проводка заменена полностью от счетчика и до последней розетки с алюминиевой трухи на хороший медный провод)Вся электрика проложена с умом. Выключатели на уровне руки, розетки в нужных местах. В общем сделано на совесть.-Выровнены все стены (обои клеить одно удовольствие, все углы ровные)-Радиаторы отопления поменяны на энергоэффективные биметаллические увеличенной площади. Квартира ОЧЕНЬ ТЕПЛАЯ.-Заменены стояки ГВС, ХВС, канализации и отопления. Пластиковые окна, балкон застеклен.Во дворе всегда есть места для стоянки а/м, даже если приезжаешь после 21.00В трех шагах за домом лесной массив, в котором приятно прогуляться и летним вечером и зимним морозным днем, отдохнув от городской суеты и покормив белок.Продается или меняется на 3-х или 4х комнатную квартиру. Дом прошел полностью капитальный ремонт .Готовы работать с любыми видами сертификатов. ID объекта в нашей базе: 1022
    размещено: 28.06.2025 , обновлено: 18.10.2025

Новостройки Екатеринбург, мкр-н. Уралмаш

Приоритет

Увеличивает просмотры в 3 раза

Ваше объявление показывается в списке выше обычных объявлений. подключить