Top.Mail.Ru
На Метре реклама - только нормальная. Никакого шок-контента.
Помогайте независимому ресурсу, как он помогает вам. Удачи!
Средняя цена м² · Новостройки
178 600 ₽/м²
↑ 6,88% за 12 мес.
Средняя цена м² · Вторичка
141 328 ₽/м²
↑ 11% за 12 мес.
Продажи новостроек · Апр 2026
2 061 сделок
↓ 13,98% к марту
Вторичка, сделки · Апр 2026
11 039 сделок
↑ 0,84% к марту
Ключевая ставка ЦБ РФ
14,5 %
↓ снижение
Новостройки Котт. посёлки Объявления Динамика цен и сделок

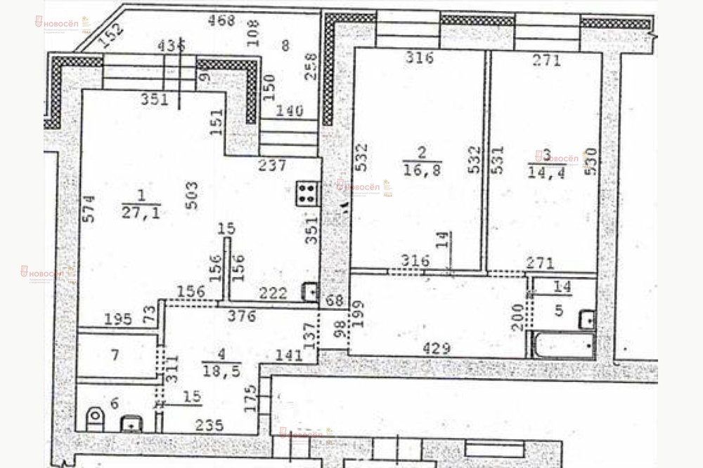
Продажа квартиры: Екатеринбург, ул. Шварца, 14 (Ботанический)

  • опубликовано 7.10.2021 , обновлено 14.03.2026
  • 50
Кадастровый номер:66:41:0501075:909
Рынок:вторичный
Количество комнат:3
Общая площадь:84 м2
Жилая площадь:50 м2
Площадь кухни:8 м2
Этаж/Этажность дома:5 / 16
Санузел:раздельный
Год постройки:2004
Цена:
8 840 000
Объявление снято с публикации
Тип сделки:«чистая» продажа
Ипотека:Не подходит

Объект № 148934. Продадим просторную трехкомнатную квартиру в Ботаническом районе Екатеринбурга. На 5 этаже.

Очень тёплый кирпичный дом с отличным ТСЖ и прекрасными соседями. Перед домом расположена бесплатная парковка за шлагбаумом для жильцов дома. За домом находится большая платная парковка.
В шаговой доступности два гипермаркета Мегамарт и Окей, поликлиника, ст. метро Ботаническая, ТЦ Дирижабль.

Напротив дома расположен парк Южный.
У квартиры один собственник, который владеет ей более 5 лет. Сделан капитальный ремонт, есть большая кладовка / гардеробная, встроенный шкаф в коридоре. Большая кухня и прихожая, просторные санузлы, хорошая сантехника.

Заезжай и живи.
Помогу оформить ипотеку под выгодный процент. ***Гарантийный сертификат «Защита собственности» по данному объекту в подарок***

Объявление снято с публикации

Ипотечный калькулятор

лет
%
Сумма кредита
8840000 ₽
Платеж
22 540 ₽

Актуальные предложения в этом доме

  • 1-к квартира, Шварца, 14

    • 41 м2
    • 11/16 этаж
    • Состояние:
    7 050 000 ₽ (172000 ₽/м2)
    Объект № 198532. Предлагаем к покупке квартиру в самом центре Ботанического района. Напротив дома- Метро. Дом полностью кирпичный с широкими стенами и подоконниками Шикарная ,большая лоджия- остеклена. Квартира видовая , солнечная . Никто в квартире не зарегистрирован. Без обременений . ***Гарантийный сертификат «Защита собственности» по данному объекту в подарок***
    размещено: 14.04.2026 , обновлено: 27.05.2026

История предложений в этом доме

объявление снято с публикации в продаже комнат площадь этаж цена,
Екатеринбург, ул. Шварца, 14 (Ботанический) - фото квартиры 28 марта 2026 90 дн. 1 41 11/16 7 190 000
Екатеринбург, ул. Шварца, 14 (Ботанический) - фото квартиры 3 июля 2024 90 дн. 3 79.2 7/16 10 499 555
Екатеринбург, ул. Шварца, 14 (Ботанический) - фото квартиры 13 февраля 2024 90 дн. 1 43.7 16/16 8 800 000
Екатеринбург, ул. Шварца, 14 (Ботанический) - фото квартиры 20 марта 2024 90 дн. 3 79.2 7/16 10 299 000
Екатеринбург, ул. Шварца, 14 (Ботанический) - фото квартиры 23 апреля 2024 90 дн. 3 85 3/16 9 900 000
31 марта 2022 90 дн. 2 65 14/16 7 500 000
Екатеринбург, ул. Шварца, 14 (Ботанический) - фото квартиры 12 августа 2020 90 дн. 2 62 15/16 6 100 000
Екатеринбург, ул. Шварца, 14 (Ботанический) - фото квартиры 2 февраля 2022 90 дн. 2 63 15/16 5 850 000
Екатеринбург, ул. Шварца, 14 (Ботанический) - фото квартиры 2 февраля 2022 90 дн. 2 64.1 11/16 5 250 000
Екатеринбург, ул. Шварца, 14 (Ботанический) - фото квартиры 12 февраля 2020 90 дн. 3 83 10/14 8 150 000
Екатеринбург, ул. Шварца, 14 (Ботанический) - фото квартиры 15 марта 2020 90 дн. 1 42.9 9/16 3 800 000
Екатеринбург, ул. Шварца, 14 (Ботанический) - фото квартиры 29 ноября 2019 90 дн. 2 53 15/16 5 950 000
Екатеринбург, ул. Шварца, 14 (Ботанический) - фото квартиры 8 января 2020 90 дн. 1 43 13/16 3 900 000
Екатеринбург, ул. Шварца, 14 (Ботанический) - фото квартиры 13 ноября 2019 90 дн. 3 75.7 13/16 6 850 000
Екатеринбург, ул. Шварца, 14 (Ботанический) - фото квартиры 30 октября 2019 90 дн. 1 42.8 13/16 4 000 000
30 апреля 2019 90 дн. 3 78 5/16 6 690 000

Похожие предложения о продаже квартир в Екатеринбурге (Ботанический)

  • 3-к квартира, б-р. Самоцветный, 6

    • 63.4 м2
    • 1/9 этаж
    • Состояние: идеальное
    8 500 000 ₽ (134100 ₽/м2)
    ???? Пространство и комфорт для всей семьи:Квартира с раздельными комнатами — идеальная планировка для семьи с детьми или тех, кто ценит личное пространство.???? Въезжай и живи:В квартире хороший, качественный ремонт, выполненный со вкусом.Так же есть просторная лоджия, а под ней большая кладовка.???? Особый бонус — «высокий первый этаж». Этот этаж даёт преимущества первого (легко добираться, безопасно для детей и пожилых) — окна расположены высоко от земли, что обеспечивает приватность.????️ Закрытый двор - в любое время есть свободные парковочные места. ???? Транспортный рай:Шикарная локация! Дом находится в пешей доступности от метро. До центра города — считанные минуты, при этом вы живёте в одном из самых зелёных и престижных районов Екатеринбурга.???? Для тех, кто думает о будущем детей:Школы, сады, развивающие центры — всё в шаговой доступности. Ребёнок может посещать кружки и занятия без долгих дорог и переездов через весь город.✨ Это район с идеальной экологией (рядом парк, лес), развитой инфраструктурой (ТЦ, рестораны, спорт-клубы) и спокойной атмосферой. Здесь хочется гулять, растить детей и возвращаться домой с работы.???? Звоните и записывайтесь на просмотр!Такое сочетание: удачное расположение + хороший ремонт + продуманная планировка — редкость на рынке. Успейте стать хозяином этой квартиры! Все документы проверены, 2 взрослых собственника, быстрый выход на сделку! ID объекта в нашей базе: 18853
    размещено: 21.05.2026 , обновлено: 26.05.2026
  • 3-к квартира, Родонитовая, 15

    • 64.4 м2
    • 7/10 этаж
    • Состояние: хорошее
    8 599 000 ₽ (133500 ₽/м2)
    В продаже теплая семейная квартира улучшенной планировки на пешеходной аллее района Ботаники. В квартире для вас полностью выровнен и залит новый пол с гидро/ шумоизоляцией под качественным ламинатом, а также теплые полы в санузлах и возможностью установить водонагреватель. Счетчики ГВС, ХВС установлены. Выровнены стены, окна -пластик. Новые межкомнатные двери, входная - сейф-дверь. Продолжение оформления квартиры - на ваше усмотрение и фантазию! В 2025г заменили стояки в доме, планируются новые лифты. В шаговой доступности детская и взрослая поликлиника №8, детские сады, школы, гимназии, большой парк Южный. ТЦ Ботаника-молл, Окей, Дирижабль. До метро 5 минут пешком. Два взрослых собственника. Есть остаток ипотеки. Звоните, приезжайте смотреть!
    размещено: 15.05.2026 , обновлено: 24.05.2026
  • 3-к квартира, Самоцветный, 6

    • 62.8 м2
    • 4/9 этаж
    • Состояние: хорошее
    8 200 000 ₽ (130600 ₽/м2)
    Квартира в районе, где действительно удобно жить! Светлая, ухоженная, с приятной атмосферой — из тех вариантов, где не хочется ничего переделывать «сразу после покупки». Окна выходят во двор — в квартире тихо и спокойно. Большая лоджия, установлены стеклопакеты. Комфортный 4 этаж. В доме заменены стояки и лифт. Подьезд всегда чистый. Большой зелёный двор, современная закрытая детская площадка с кортом. Во дворе два детских сада, рядом школы и лицей. Район живой, семейный, здесь всё рядом и всё по-настоящему комфортно. Через дорогу от дома ТЦ Ботаника Молл, недалеко ТЦ Дирижабль, О’КЕЙ, детская и взрослая поликлиники. Рядом бульвары для прогулок, кафе, магазины, аптеки, салоны красоты, множество детских секций. Удобный транспорт в любую часть города: метро, трамваи, автобусы.Квартира без обременений, один собственник. Показы по согласованию.Звоните, отвечу на все вопросы! ID объекта в нашей базе: 12561
    размещено: 07.05.2026 , обновлено: 26.05.2026
  • 3-к квартира, Родонитовая, 21

    • 63 м2
    • 7/10 этаж
    • Состояние: хорошее
    10 200 000 ₽ (161900 ₽/м2)
    Продается уютная 3х комнатная квартира в одном из самых востребованных районов города Екатеринбурга -Ботаника. Большие, просторные, изолированные комнаты правильной формы. Отличный вариант для большой семьи, который не требует вложений можно заехать и жить. Мебель и техника остается новым покупателям. Не сдавалась в аренду. Спокойные соседи, тихий двор без сквозного проезда. Развитая инфраструктура есть все необходимое в шаговой доступности поликлиники, супермаркеты и торговые центры. Рядом крупный ТРЦ Дирижабль, а также кафе, аптеки и банки. Для детей детские сады и школы №200, №32, гимназия177 и лицей " Полифорум" 180 — ребёнку не нужно ездить Спальный район без промзон с удобной транспортной доступностью станция метро "Ботаническая", городская электричка, трамвай, троллейбус, автобус. Квартира более 5ти лет в собственности. Без обременений. Приглашаем вас на просмотр! ID объекта в нашей базе: 14753
    размещено: 05.05.2026 , обновлено: 28.05.2026
  • 3-к квартира, 8 Марта, 204Г

    • 54.3 м2
    • 3/25 этаж
    • Состояние: идеальное
    6 750 000 ₽ (124300 ₽/м2)
    Продаётся 1/2 доля в двухкомнатной квартире в Ботаническом районе Екатеринбурга.Квартира расположена в спокойном, развитом районе со всей необходимой инфраструктурой рядом. В шаговой доступности магазины, торговые центры «Ботаника Молл» и «Мегаполис», остановки общественного транспорта — около 5 минут пешком. До станций метро «Чкаловская» и «Ботаническая» — 7–10 минут. Рядом детские сады, школы, детская и взрослая поликлиники.Порядок пользования долей определён решением суда.В пользование закреплена комната 12,1 м².В совместном пользовании: просторная кухня-гостиная с качественным кухонным гарнитуром и большой лоджией, санузел, коридор.Квартира подойдёт для проживания или как инвестиционный вариант.Документы готовы к сделке. Подробности — по телефону. ID объекта в нашей базе: 12562
    размещено: 29.04.2026 , обновлено: 29.05.2026

    3-к квартира, Тбилисский, 17

    • 63.2 м2
    • 9/10 этаж
    • Состояние: хорошее
    8 700 000 ₽ (137700 ₽/м2)
    Предлагаем к продаже квартиру улучшенной планировки. Комнаты изолированные, 17,11.4 и 11.6 кв.м., выход на лоджию их большой комнаты, сан. узел раздельный. Окна выходят на две стороны. При необходимости в квартире покупателю возможно оставить всю мебель и технику. Чистый подъезд, новый лифт, спокойные доброжелательные соседи. Вся инфраструктура представлена (магазины, школы, садики), все в шаговой доступности. Чистая продажа. Право собственности более пяти лет, покупалась без кредитов и соц. программ. Ждем на показ. Торг ID объекта в нашей базе: 4900
    размещено: 25.04.2026 , обновлено: 14.05.2026

    3-к квартира, Академика Шварца, 10/2

    • 63.4 м2
    • 1/10 этаж
    • Состояние: хорошее
    8 800 000 ₽ (138800 ₽/м2)
    Продаётся уютная 3-комнатная квартира в одном из самых комфортных районов Екатеринбурга — Ботаника. Квартира с продуманной и функциональной планировкой: просторная кухня-гостинная, изолированные комнаты, удобный коридор с кладовой и достаточно мест для хранения. Отлично подойдёт как для семьи с детьми, так и для тех, кто ценит пространство и комфорт. В квартире выполнен аккуратный ремонт, всё поддерживается в хорошем состоянии — можно заехать и жить без дополнительных вложений. Вся мебель остаётся новым владельцам, что значительно экономит время и бюджет на обустройство. Район Ботаника славится развитой инфраструктурой: в шаговой доступности магазины, школы, детские сады, торговые центры, остановки общественного транспорта и метро. Удобная транспортная развязка позволяет быстро добраться в любую часть города. Чистый подъезд, спокойные соседи, благоустроенная придомовая территория. Отличный вариант для комфортной жизни или выгодной инвестиции! Один взрослый собственник, прописанных нет!Звоните и договоримся на просмотр в удобное для вас время! ID объекта в нашей базе: 18758
    размещено: 24.04.2026 , обновлено: 29.05.2026

    3-к квартира, Родонитовая, 23

    • 63.5 м2
    • 10/10 этаж
    • Состояние: удовлетворительное
    8 370 000 ₽ (131800 ₽/м2)
    Продается отличная, просторная, уютная 3-х комнатная квартира в центре района "БОТАНИКА". Квартира расположена на 10 этаже, окна выходят во двор и на улицу. Сделан ремонт. Кухня объединена с комнатой, есть отдельное помещение для стиральной машины и хозяйственных мелочей. Лоджия застеклена. Имеется закрытый тамбур в подъезде. Остается максимум мебели, вся встроенная мебель. Квартира очень уютная. Приглашаем вас на просмотр. ID объекта в нашей базе: 18482
    размещено: 20.02.2026 , обновлено: 24.05.2026

    3-к квартира, Тбилисский, 13/2

    • 63 м2
    • 8/10 этаж
    • Состояние: хорошее
    8 300 000 ₽ (131700 ₽/м2)
    - Дом расположен внутри квартала, поэтому в квартире очень тихо и спокойно, приятный вид из окон- Дом 1991 года, всего 2 подъезда, 4 квартиры на площадке, в подъездах сделан ремонт, поменяны трубы ХВС и ГВС, установлены счетчики- Рядом с домом метро и все виды транспорта- Свое ТСЖ, поэтому низкие коммунальные платежи, все вопросы быстро решаются- Установлен новый лифт- Во дворе расположены 2 детских садика и гимназия №177, также рядом лицей №180 и школа №200.- В соседнем доме расположена Пятерочка, через дорогу Магнит- В следующем году планируют запустить ТРЦ Золотой, буквально в 2 минутах ходьбы- 2 взрослых собственника, без обременений, быстрый выход на сделку. ID объекта в нашей базе: 13810
    размещено: 12.02.2026 , обновлено: 18.05.2026

    3-к квартира, Академика Шварца, 18/2

    • 64 м2
    • 9/10 этаж
    • Состояние: хорошее
    9 100 000 ₽ (142200 ₽/м2)
    Продам уютную теплую просторную 3комнатную квартиру улучшенной планировки в 10 мин ходьбы от станции метро Ботаническая. Вся развитая инфраструктура под рукой, садики, школы, детские центры развития и доп образования, магазины, пункты выдачи, салоны сервисов и услуг.Все комнаты изолированные, раздельный санузел, кладовка, большая кухня, просторная лоджия, оборудованная системами хранения. Новому собственнику остается кухонный гарнитур со встроенной техникой ,система хранения в коридоре. Другая мебель необходимая вам мебель - по согласованию. Квартира юридически чистая, в залоге по ипотеке у сбербанка, продавцы проверены. Доля несовершеннолетнего выделена в феврале 2026г. Встречный вариант подобран и авансирован. Любая форма оплаты: ипотека, мат кап. Помощь в одобрении и сопровождении ипотеки. Реальному покупателю - торг. ID объекта в нашей базе: 1543
    размещено: 07.02.2026 , обновлено: 14.05.2026

    3-к квартира, Родонитовая, 23

    8 300 000 ₽ (128700 ₽/м2)
    Арт. 129613598 Продам трехкомнатную квартиру. Состояние и планировка на фото. 4 этаж. На въезде во двор шлагбаум, есть возможность парковать авто во дворе. Локация удобная, инфраструктура развита, в шаговой доступности есть все необходимое для комфортного проживания. Ипотека возможна. Просмотры по-договоренности.
    размещено: 05.02.2026 , обновлено: 27.05.2026

    3-к квартира, Родонитовая, 36

    • 79 м2
    • 9/12 этаж
    • Состояние: идеальное
    10 300 000 ₽ (130400 ₽/м2)
    Продается просторная 3-х комнатная квартира в Ботническом районеИдеальный вариант для семьи с детьми - в шаговой доступности несколько детских садов, лицей 180, гимназия 177, школа № 200.Рядом остановка общественного транспорта (автобусы, троллейбусы), метро и городская электричка - 10 минут пешком.Вся необходимая инфраструктура - магазины, фитнес-залы, пункты выдачи маркетплейсов.В доме поменяны лифты, сделан ремонт подъездов.Остается, кухня, шкафы-купе в коридоре и комнате.Рассмотрим варианты обмена на 1-комнатную с доплатой.Один взрослый собственник, обременений нет.Разумный торг ID объекта в нашей базе: 24395
    размещено: 03.07.2024 , обновлено: 29.05.2026

Новостройки Екатеринбург, мкр-н. Ботанический

Приоритет

Увеличивает просмотры в 3 раза

Ваше объявление показывается в списке выше обычных объявлений. подключить