На Метре реклама - только нормальная. Никакого шок-контента.
Помогайте независимому ресурсу, как он помогает вам. Удачи!
Новостройки Котт. посёлки Объявления Динамика цен и сделок

Продажа квартиры: Екатеринбург, ул. Тверитина, 13 (Парковый)

  • опубликовано 15.10.2021 , обновлено 25.11.2025
  • 55
Рынок:вторичный
Срок сдачи: 1980 года
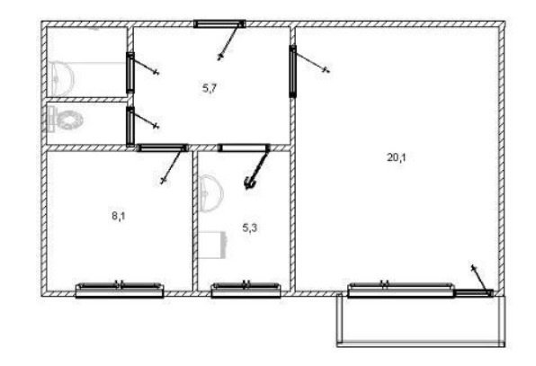
Количество комнат:2
Общая площадь:42.5 м2
Жилая площадь:28 м2
Площадь кухни:6 м2
Этаж/Этажность дома:4 / 9
Год постройки:1980
Балкон/лоджия:лоджия
Состояние:плохое
Цена:
4 000 000
Объявление снято с публикации
Коммунальные платежи:оплачиваются отдельно
Торг:торг
Ипотека:возможна

Продам двухкомнатную квартиру в доме 1980 года постройки.
Подъезд чистый, лифт меняли.
В квартире поменяны окна на пластиковые и стояки. В остальном требуется капитальный ремонт.
Перепланировок не было.
Один взрослый собственник.
Ипотека возможна.
Обмен подобран.
Во дворе дома находится детский сад и школа.
Рядом с домом остановки общественного транспорта.
СРОЧНО!!!
ТОРГ!!!
ID объекта в нашей базе: 2234

Объявление снято с публикации

Ипотечный калькулятор

лет
%
Сумма кредита
4000000 ₽
Платеж
22 540 ₽

Актуальные предложения в этом доме

  • 2-к квартира, Тверитина, 13

    • 43.5 м2
    • 2/9 этаж
    • Состояние:
    5 880 000 ₽ (135200 ₽/м2)
    Продаётся уютная двухкомнатная квартира площадью 43.5 квадратных метров на втором этаже девятиэтажного панельного дома, расположенного в центре Екатеринбурга по адресу улица Тверитина, 13. Жилая площадь составляет 26.3 квадратных метров, а кухня занимает приятные 6 квадратных метров. Квартира после косметического ремонта, что позволит новым владельцам сразу же обустроиться без дополнительных вложений.Совмещённый санузел добавляет удобства в повседневное использование пространства. Из окон открывается тихий вид во двор, где расположены детская и спортивная площадки – идеальное место для отдыха и игр детей.Расположение дома предлагает комфортную пешеходную доступность до станции метро Геологическая всего за 28 минут прогулки. Рядом находятся образовательные учреждения, такие как гимназия №40 и средняя школа №62, а также детские сады Швабе-Эрудит и другой детский сад, что особенно удобно для семей с детьми.Для заботы о здоровье жителей поблизости работают аптеки Гармония и ещё одна аптека. Безопасность и удобство проживания обеспечиваются наличием парковки во дворе дома.Этот вариант идеально подойдёт тем, кто ценит спокойствие и уединённость собственного жилья в сочетании с развитой инфраструктурой района и близостью к центру города. Приглашаем вас оценить все преимущества данной квартиры лично! ID объекта в нашей базе: 4897
    размещено: 10.11.2025 , обновлено: 14.12.2025

История предложений в этом доме

объявление снято с публикации в продаже комнат площадь этаж цена,
Екатеринбург, ул. Тверитина, 13 (Парковый) - фото квартиры 1 апреля 2025 90 дн. 3 58.3 7/9 6 650 000
Екатеринбург, ул. Тверитина, 13 (Парковый) - фото квартиры 26 января 2023 90 дн. 2 43 7/9 4 500 000
Екатеринбург, ул. Тверитина, 13 (Парковый) - фото квартиры 3 декабря 2021 90 дн. 2 42.5 4/9 3 700 000
Екатеринбург, ул. Тверитина, 13 (Парковый) - фото квартиры 19 октября 2021 90 дн. 3 58 2/9 5 100 000
Екатеринбург, ул. Тверитина, 13 (Парковый) - фото квартиры 12 октября 2021 90 дн. 2 43 4/9 3 800 000
Екатеринбург, ул. Тверитина, 13 (Парковый) - фото квартиры 22 апреля 2021 90 дн. 3 58 5/9 5 200 000
Екатеринбург, ул. Тверитина, 13 (Парковый) - фото квартиры 16 февраля 2021 90 дн. 1 27.7 3/9 2 790 000
Екатеринбург, ул. Тверитина, 13 (Парковый) - фото квартиры 31 октября 2020 90 дн. 2 42 3/9 3 500 000
Екатеринбург, ул. Тверитина, 13 (Парковый) - фото квартиры 29 ноября 2019 90 дн. 1 27 8/9 2 850 000
Екатеринбург, ул. Тверитина, 13 (Парковый) - фото квартиры 6 марта 2020 90 дн. 1 27 8/9 2 800 000
23 сентября 2018 92 дн. 3 55 2/9 3 400 000
6 июля 2013 122 дн. 3 57.5 5/9 4 000 000

Похожие предложения о продаже квартир в Екатеринбурге (Парковый)

  • 2-к квартира, Луначарского, 225

    • 42.8 м2
    • 5/9 этаж
    • Состояние: хорошее
    5 000 000 ₽ (116800 ₽/м2)
    Продаётся светлая 2-комнатная квартира на ул. Луначарского, 225! ????Идеальный вариант для семьи! Уютная, правильная и очень светлая квартира в отличном районе.✨ О квартире:· Просторная планировка: Две отдельные комнаты и изолированная кухня. Есть где разместиться каждому! ✅· Много солнца: Квартира действительно очень светлая, создаёт радостное настроение.· Удобства: Совмещённый санузел (аккуратный и функциональный).· Отличный этаж: 5 этаж из 9 — идеальная золотая середина! Невысоко, если вдруг лифт, но и не шумно с улицы. Вид из окон приятный.???? Район мечты для жизни с детьми:· В шаговой доступности детский сад ???? и школа ????. Утром можно не торопиться!· Рядом магазины ???? и вся необходимая инфраструктура. Всё под рукой.· Развитый, обжитый микрорайон с зелёными дворами.???? Итог:Это тёплый и готовый дом,где уже всё есть для комфортной жизни. Не нужно никуда далеко ездить — садик, школа и магазины рядом. Светлая и уютная квартира ждёт своих новых хозяев!Звоните, чтобы посмотреть и влюбиться! ???? ID объекта в нашей базе: 12802
    размещено: 05.12.2025 , обновлено: 18.12.2025
  • 2-к квартира, Луначарского, 225

    • 36.5 м2
    • 4/9 этаж
    • Состояние: удовлетворительное
    4 789 000 ₽ (131200 ₽/м2)
    Квартира для Вас- Покупатель с руками и головой!! Все готово для воплощения ваших дизайнерских планов! Локация- отменная, этаж- комфортный (даже если сломался лифт), двор - зеленый, транспорт- рядом, магазины, школы. детские сады, парк Маяковского! Обременений нет, в собственности более 10 лет( не оспоришь), в ипотеку- пожалуйста, материнский капитал не использовали, никто не прописан, на сделку - быстро, ключи- в день сделки! Все помогу, расскажу, выведу на сделку! Жду на просмотр! ID объекта в нашей базе: 4832
    размещено: 12.11.2025 , обновлено: 13.12.2025
  • 2-к квартира, Восточная, 230

    • 41 м2
    • 2/5 этаж
    • Состояние: хорошее
    4 980 000 ₽ (121500 ₽/м2)
    Объект № 182165. Продам 2-комнатную квартиру в центре Екатеринбурга на улице Восточной. Уютная, теплая квартира. Сделан ремонт, поменяны все трубы, канализация и батареи. Потолки натяжные, застекленный балкон. В шаговой доступности остановки общественного транспорта, школа, детский сад, ЦПКиО, аптека, Магнит Экстра. Хорошая транспортная развязка. Ухоженный двор, подъезд в хорошем состоянии. Документы готовы. Возможна ипотека. ***Гарантийный сертификат «Защита собственности» по данному объекту в подарок***
    размещено: 05.04.2024 , обновлено: 26.12.2025

Новостройки Екатеринбург, мкр-н. Парковый

Приоритет

Увеличивает просмотры в 3 раза

Ваше объявление показывается в списке выше обычных объявлений. подключить