На Метре реклама - только нормальная. Никакого шок-контента.
Помогайте независимому ресурсу, как он помогает вам. Удачи!
Новостройки Котт. посёлки Объявления Динамика цен и сделок

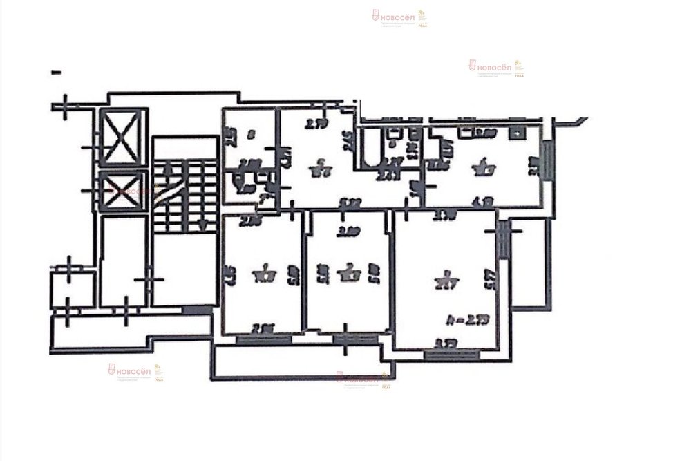
Продажа квартиры: Екатеринбург, ул. Мира, 41 (Втузгородок)

  • опубликовано 13.12.2021 , обновлено 30.12.2025
  • 63
Кадастровый номер:66:41:07004041:737
Рынок:вторичный
Срок сдачи: 2013 года
Количество комнат:3
Общая площадь:92.7 м2
Жилая площадь:55 м2
Площадь кухни:12 м2
Этаж/Этажность дома:8 / 25
Санузел:раздельный
Отделка:евроремонт
Год постройки:2013
Цена:
12 800 000
Объявление снято с публикации
Коммунальные платежи:оплачиваются отдельно
Ипотека:возможна

Объект № 152365. Продается 3-комнатная квартира в ЖК Университетский Хороший этаж, окна на юг и юго-запад, две большие лоджии (одна с выходом из гостиной, другая - из спальни). Комнаты правильной формы, приближенные к квадрату. Два раздельных санузла, большая гардеробная, а также хорошего размера квадратной формы кухня.
Сделан качественный ремонт. Межкомнатные двери - массив с хорошей фурнитурой. Обои под покраску.
Покупателю остается: кухонный гарнитур со встроенной индукционной плитой, духовым шкафом и измельчителем; два кондиционера (в спальне и гостиной), водонагреватель, мебель в ванной комнате и санузле; большой вместительный шкаф-купе в коридоре, комплект мебели для прихожей; оборудованная гардеробная. Состояние мебели и фурнитуры отличное.
Один взрослый собственник, обременений, долгов, судебных споров, банкротств нет, покупка от застройщика. Причина продажи квартиры - переезд в другой город.
На сделку готовы выйти быстро, чистая продажа. Торг возможен. ***Гарантийный сертификат «Защита собственности» по данному объекту в подарок***

Объявление снято с публикации

Ипотечный калькулятор

лет
%
Сумма кредита
12800000 ₽
Платеж
22 540 ₽

Актуальные предложения в Микрорайон «Университетский»

  • 1-к квартира, Комсомольская, 78

    • 34.4 м2
    • 14/25 этаж
    • Состояние:
    6 500 000 ₽ (189000 ₽/м2)
    Продается просторная однокомнатная квартира.В квартире сделан ремонт, остается мебель.Отличный вариант под сдачу, либо проживания студентов, а так же семьи.Просторная кухня 13,6 м с выходом на лоджию, где можно наслаждаться прекрасными видами.Преимущества:Юридически чистая квартира, 2 взрослых собственника, в собственности более 14 лет.В квартире никто не зарегистрирован, квартира освобождена. и готова к заселению.Ключи в день полного расчета.Доброжелательные соседи и ответственная управляющая компания.Два лифта, 1 пассажирский, 1 грузовой.Подъезд оснащен пандусом.Развитая инфраструктура района.Помогу одобрить ипотеку. Звоните, покажу в удобное для вас время! ID объекта в нашей базе: 13488
    размещено: 29.01.2026 , обновлено: 3.02.2026
  • 3-к квартира, Комсомольская, 67

    • 62.7 м2
    • 6/16 этаж
    • Состояние:
    12 890 000 ₽ (205600 ₽/м2)
    В ЖК «Комсомольская, 67», район Втузгородок, продается тёплая и светлая квартира, комнаты 13,8 кв.м и 14,8 кв.м и просторный зал совместно с кухней 17,4 кв.м, общей площадью 62,7 кв.м на 6-м этаже. Новый дом, сдан в 2020 году. Застройщик ГК «Первостроитель». Все комнаты выходят на солнечную сторону (юго-запад), на улицу Комсомольская. Окна – тройной стеклопакет с защитной пленкой. Квартира в отличном состоянии: на полу ламинат, зал зонирован керамогранитом (территория кухни) и ламинатом, на стенах - обои под покраску, совмещенный санузел – теплый пол, по всему периметру плитка, на полу керамогранит. Второй санузел – переоборудован под гардеробную и хранение техники и т.п. Натяжные потолки. Приточно-вытяжная вентиляция. Батареи с терморегуляцией. На балконе выложен ламинат, проведено электричество, розетка. На площадке 5 квартир, два лифта. На первом этаже дома расположены коммерческие помещения: магазин Верный, Магнит Косметик, Жизнь-март, Хеликс, Цветы, прачечная, пункты выдачи заказов ОЗОН, Вайлдберриз, салон Связи, бьюти-точки в доме. С жилым комплексом «Комсомольская, 67» была построена детская поликлиника.Закрытый озелененный двор с детской площадкой, воркаут-площадкой, сквозные проходы с улицы во двор. Подземная и наземная парковки. В шаговой доступности начальная и средняя школы, остановка транспорта – Комсомольская (автобусные и трамвайные маршруты). В шаговой доступности – аптеки, Монетка, пекарня, стоматология и др. Один собственник (квартира была приобретена от застройщика ГК «Первостроитель»). Материнский капитал не был использован, без обременений. Сумма полностью указывается в договоре. Мебель - по договоренности. Торг реальному покупателю. ID объекта в нашей базе: 9509
    размещено: 20.01.2026 , обновлено: 30.01.2026
  • 1-к квартира, Библиотечная, 43

    • 40 м2
    • 8/16 этаж
    • Состояние:
    7 500 000 ₽ (187500 ₽/м2)
    *Продам 1-комнатную квартиру 40м2 в жилом комплексе ЖК Ломоносов по ул. Библиотечная, д.43. Микрорайон Университетский – «Тихий центр», уютный и комфортный для проживания. *Просторная и функциональная квартира на 8 этаже. В квартире выполнен современный ремонт и готова к полноценному комфортному проживанию. В прихожей вместительная отдельная гардеробная комната. Корпусная мебель, диваны в гостиной и кухне. Большая кухонная зона с выходом на просторную застекленную лоджию. В оборудованной зоне установлен качественный кухонный гарнитур со встроенным духовым шкафом, варочной поверхностью, посудомоечной машиной, холодильником. В санузле новая мебель и техника. Окна выходят во двор. *Мебель и технику презентуем в качестве БОНУСА новому собственник!!! *Жилой комплекс с закрытой придомовой территорией, с подземным и наземным паркингом и зонами отдыха для детей и взрослых. Круглосуточная охрана и видеонаблюдение. *В шаговой доступности остановки общественного транспорта, автобусы № 54, 054, 056, 60, маршрутные такси. Развитая социальная инфраструктура: детские сады, школы, магазины, кафе, медицинские и образовательные центры. Фитнесс-клуб «LagomGym» с бассейном на 24 метра и детским бассейном, спортивная школа «Олимпика» и физкультурно-оздоровительный комплекс УРФУ. *Стоимость 7500тр. Один взрослый собственник. Квартира без обременений. Чистая продажа. Быстрый выход на сделку.
    размещено: 18.01.2026 , обновлено: 3.02.2026
  • 3-к квартира, Педагогическая, 28

    22 500 000 ₽ (200500 ₽/м2)
    Арт. 128055829 Ищете идеальное место для жизни? Рада предложить вам замечательную 3-х комнатную квартиру, где вас ждет множество счастливых моментов и уютных вечеров! Просторная, светлая квартира, где гармонично сочетается стиль и функциональность - интерьер продуман до мелочей, а элегантные дизайнерские решения придают особый характер и шарм. Основные характеристики:площадь 112,2 кв.м. + 3 лоджии (12,83 кв м)три изолированные комнатыпросторная кухня-гостинная 20,1кв мв каждой комнате своя гардеробнаяквартира полностью меблирована Характеристики дома:монолитный дом 2017г. дом бизнес-класса, по 4 квартиры на этаже, всего 92 квартиры в доме4-х ступенчатая система очистки воды, своя автономная котельнаякруглосуточное видеонаблюдение, охрананаличие подземного паркинга и свободной парковки по периметруигровая зона двора разделена по возрастным группам Дом расположен в престижном микрорайоне города Университетском, со сложившейся инфраструктурой, в 10 минутах от центра города. В шаговой доступности школы, садики, магазины, спортивные центры, остановки общественного транспорта, мед учреждения. Не упустите шанс стать владельцем этой замечательной квартиры! Звоните прямо сейчас, чтобы записаться на просмотр и узнать больше! Ваш новый дом ждет вас!
    размещено: 22.12.2025 , обновлено: 2.02.2026
  • 3-к квартира, Мира, 41

    • 92 м2
    • 8/25 этаж
    • Состояние:
    17 500 000 ₽ (190200 ₽/м2)
    Предлагаем к покупке шикарную квартиру на Мира!КВАРТИРА- просторная кухня-гостиная около 30 м2 и 2 большие спальные комнаты на разные стороны- большой холл- отдельный кабинет (гардеробная)- идеальная ванная комната- второй гостевой санузел- вместительная лоджия в гостиной- кухонный гарнитур, вся техника и вместительные шкаф-купе в коридоре остаются- квартира очень теплая (можно выключать батареи для экономии э/энергии)- все как на фото и готово к проживанию ДОМ- хорошие соседи- 4 квартиры на этаже- чистый подъезд- невысокие коммунальные платежи- хорошая шумоизоляция (абсолютно не слышно соседей)- закрытая территория с большой парковкой- огромная детская площадка с различными зонами игр и занятий РАСПОЛОЖЕНИЕ И ИНФРАСТРУКТУРА- до центра города 10 минут на машине/общественном транспорте- хороший выезд во все стороны города- в шаговой доступности остановки общественного транспорта- в доме расположены супермаркет Магнит, Жизнь Март, аптека, салоны красоты, ногтевые студии и многое другое- в 2-х минутах ходьбы ресторан Veranda, ПольБейкери и фитнесс центр, различные магазины- напротив детский сад № 34, через дорогу - №299- вокруг много гимназий (№№ 94, 45, 108, 37), школа № 134, 36- в шаговой доступности вся нужная инфраструктура ЮРИДИЧЕСКИЕ АСПЕКТЫ- долгов нет- ипотека возможнаЕсли у вас есть желание жить в просторной квартире с современным ремонтом и хорошей техникой, не вкладываясь в ремонт, чувствовать себя уютно каждый день - то этот вариант для вас! Все остальные вопросы и подробности расскажу по телефону, звоните! ID объекта в нашей базе: 12874
    размещено: 10.12.2025 , обновлено: 15.01.2026

    3-к квартира, Библиотечная, 43

    • 91.6 м2
    • 4/25 этаж
    • Состояние:
    14 500 000 ₽ (158300 ₽/м2)
    Объект № 195840. Уютная трехкомнатная квартира в ЖК Ломоносов - идеальное пространство для комфортной и гармоничной жизни! Эта просторная и светлая квартира отличается продуманной планировкой. Большая кухня-гостиная станет семейным сердцем дома, где удобно проводить время с близкими. Две уютные спальни обеспечат каждому спокойствие и личное пространство - идеальный вариант для семьи или тех, кто ценит комфорт. Два санузла и отдельная гардеробная - это не только практично, но и значительно повышает уровень удобства! Вы оцените простор и функциональность каждого квадратного метра. ЖК Ломоносов радует своих жителей отличным двором с благоустроенной зоной отдыха - здесь приятно гулять и играть. Для автолюбителей предусмотрен современный подземный паркинг, а в соседнем дворе расположен детский сад - идеально для малышей и их родителей. Образовательные и медицинские учреждения находятся в шаговой доступности: рядом школа и детская поликлиника обеспечат комфорт и безопасность всей семьи. Всё, что нужно для гармоничной жизни - прямо под боком! Не упустите возможность стать обладателем этого уютного уголка! Звоните сейчас- будущий дом ждет вас! ***Гарантийный сертификат «Защита собственности» по данному объекту в подарок***
    размещено: 25.11.2025 , обновлено: 31.01.2026

    1-к квартира, Мира, 47/2

    • 53 м2
    • 19/22 этаж
    • Состояние:
    12 500 000 ₽ (235800 ₽/м2)
    Продается однокомнатная квартира общей площадью 53 м2, расположенная по адресу: город Екатеринбург улица Мира дом 47/2 жк «Проспект мира». Квартира находится на 19 этаже с шикарным видом на город, представляет собой просторную кухню гостиную с зоной готовки и зоной отдыха, спальную комнату совмещенную с утепленным балконом, просторный коридор и сун. узел. Покупателям оставляем кухонный гарнитур с варочной поверхностью и духовкой, мебель и системы хранения на кухне, шкаф в коридоре и спальной комнате. Вместе с квартирой вы приобретаете образ жизни в достойном жилом комплексе в котором продумана вся инфраструктура для комфортной и безопасной жизни. Всё это вы увидите и почувствуете на просмотрах. Дополнительная информация по квартире по телефону. На сообщения через рекламные сайты не отвечаю, огромная просьба связываться по телефону. ID объекта в нашей базе: 11587
    размещено: 29.09.2025 , обновлено: 25.11.2025

    3-к квартира, Комсомольская, 76

    • 104 м2
    • 5/24 этаж
    • Состояние:
    13 800 000 ₽ (132700 ₽/м2)
    Отличная квартира для большой семьи в жилом квартале "Университетский" со своей внутренней инфраструктурой..Есть все необходимое: благоустроенные дворы с прогулочными аллеями, детские и спортивные площадки, свое ТСЖ, подземный паркинг, торговые галереи с внешней стороны домов. В шаговой доступности детский сад, школа (отдельные корпуса начальной и средней школы), удобные выходы к центральной части города, общественному транспорту, рядом лучшие высшие учебные заведения: УРФУ, юракадемия. Квартира находится на комфортном среднем этаже, все комнаты больших размеров, есть 2 балкона и лоджия на два окна, просторный холл с гардеробной, хозяйским и гостевым санузлами. В хорошем состоянии. Приятный бонус - закрытая оборудованная секция на этаже на несколько квартир. БЕЗ каких-либо залогов или обременений. В единоличной собственности с 2018 г. Документы проверены! Ипотека возможна.Приглашаем на просмотры по предварительной договоренности. Более подробная информация по указанному телефону. Звоните! ID объекта в нашей базе: 4455
    размещено: 01.08.2025 , обновлено: 28.01.2026

    5-к квартира, Библиотечная, 43

    • 136 м2
    • 18/25 этаж
    • Состояние:
    28 000 000 ₽ (205900 ₽/м2)
    ПЯТИкомнатная квартира, где у каждого члена семьи будет свое личное пространство. В вашем владении будут: две детские комнаты, роскошная спальня, кабинет, и большая кухня-гостиная. А так же три санузла, две гардеробные (кладовые), и две лоджии.Ремонт в квартире выполнен по индивидуальному дизайн-проекту. Комфорт обеспечивает - приточная вентиляция бризер Tion, теплые полы в коридоре и санузлах, фильтры очистки воды на всех трубах, на кухне встроенная техника Bosch (холодильник, морозильная камера, варочная поверхность, духовой шкаф, встроенная микроволновая печь, посудомоечная машина), сантехника от фирмы Villeroy&Boch. В квартире установлен видео звонок, пожарная и охранная сигнализация. Вся мебель и встроенная техника остается в квартире по желанию Покупателя. Закрытая, безопасная территория двора с детской площадкой. Подземный паркинг расположен под домом, из паркинга есть возможность подняться сразу к себе на этаж.Дом «Ломоносов» в ЖК Университетский (от Застройщика «Первостроитель») - современная жилая застройка, комплекс домов с развитой инфраструктурой: общественные и приватные детские и спортивные площадки, зелёные бульвары и скверы, магазины, ресторан, фитнес, прогулочная зона. ID объекта в нашей базе: 3364
    размещено: 09.06.2024 , обновлено: 31.01.2026

История предложений в этом доме

объявление снято с публикации в продаже комнат площадь этаж цена,
Екатеринбург, ул. Мира, 41 (Втузгородок) - фото квартиры 20 ноября 2025 90 дн. 3 95.5 15/25 17 500 000
Екатеринбург, ул. Мира, 37 а (Северка) - фото квартиры 30 ноября 2025 90 дн. 2 43 4/5 4 400 000
Екатеринбург, ул. Мира, 41 (Втузгородок) - фото квартиры 6 ноября 2025 90 дн. 3 95.5 15/25 17 500 000
Екатеринбург, ул. Библиотечная, 45 (Втузгородок) - фото квартиры 19 октября 2025 90 дн. 3 77.5 17/19 9 200 000
Екатеринбург, ул. Педагогическая, 28 (Втузгородок) - фото квартиры 12 ноября 2025 90 дн. 3 114.6 7/25 18 350 000
Екатеринбург, ул. Библиотечная, 45 (Втузгородок) - фото квартиры 27 сентября 2025 90 дн. 3 77.5 17/19 9 200 000
Екатеринбург, ул. Мира, 41 (Втузгородок) - фото квартиры 14 октября 2025 90 дн. 3 95.5 15/25 17 500 000
Екатеринбург, ул. Комсомольская, 78 (Втузгородок) - фото квартиры 29 сентября 2025 90 дн. 1 32 19/19 5 190 000
Екатеринбург, ул. Мира, 41 (Втузгородок) - фото квартиры 13 сентября 2025 90 дн. 3 95.5 15/25 17 300 000
Екатеринбург, ул. Комсомольская, 78 (Втузгородок) - фото квартиры 27 августа 2025 90 дн. 1 32 19/19 5 700 000
Екатеринбург, ул. Мира, 41 (Втузгородок) - фото квартиры 26 августа 2025 90 дн. 3 95.5 15/25 16 500 000
Екатеринбург, ул. Библиотечная, 45 (Втузгородок) - фото квартиры 24 августа 2025 90 дн. 1 38.2 5/26 7 100 000
Екатеринбург, ул. Комсомольская, 76 (Втузгородок) - фото квартиры 4 августа 2025 90 дн. 2 48.4 5/24 6 590 000
Екатеринбург, ул. Мира, 41 (Втузгородок) - фото квартиры 31 июля 2025 90 дн. 3 95.5 15/25 18 500 000
Екатеринбург, ул. Мира, 41 (Втузгородок) - фото квартиры 6 сентября 2025 60 дн. 2 69.2 14/19 12 150 000
Екатеринбург, ул. Мира, 41 (Втузгородок) - фото квартиры 11 июля 2025 90 дн. 3 95.5 15/25 18 500 000
Екатеринбург, ул. Комсомольская, 78 (Втузгородок) - фото квартиры 31 июля 2025 90 дн. 1 32 19/19 5 580 000
Екатеринбург, ул. Библиотечная, 45 (Втузгородок) - фото квартиры 25 июня 2025 90 дн. 3 77.5 17/19 9 200 000
Екатеринбург, ул. Комсомольская, 78 (Втузгородок) - фото квартиры 8 сентября 2025 90 дн. 3 67.3 17/25 8 799 000
Екатеринбург, ул. Комсомольская, 78 (Втузгородок) - фото квартиры 2 июля 2025 90 дн. 1 32 19/25 5 700 000
Екатеринбург, ул. Библиотечная, 43 (Втузгородок) - фото квартиры 28 октября 2025 90 дн. 2 58.9 5/16 9 850 000
Екатеринбург, ул. Библиотечная, 45 (Втузгородок) - фото квартиры 16 августа 2025 90 дн. 3 77.8 5/19 12 800 000
Екатеринбург, ул. Библиотечная, 43 (Втузгородок) - фото квартиры 25 апреля 2025 90 дн. 2 58.9 5/25 9 850 000
Екатеринбург, ул. Библиотечная, 45 (Втузгородок) - фото квартиры 16 сентября 2025 90 дн. 3 75.4 1/26 9 800 000
Екатеринбург, ул. Библиотечная, 45 (Втузгородок) - фото квартиры 17 апреля 2025 90 дн. 3 77.8 5/19 13 000 000
Екатеринбург, ул. Библиотечная, 43 (Втузгородок) - фото квартиры 17 апреля 2025 90 дн. 2 58.9 5/25 10 000 000
Екатеринбург, ул. Библиотечная, 45 (Втузгородок) - фото квартиры 28 апреля 2025 90 дн. 3 68.4 6/19 8 700 000
Екатеринбург, ул. Библиотечная, 45 (Втузгородок) - фото квартиры 2 апреля 2025 90 дн. 3 77.8 5/19 13 000 000
Екатеринбург, ул. Библиотечная, 43 (Втузгородок) - фото квартиры 2 апреля 2025 90 дн. 2 58.9 5/25 10 000 000
Екатеринбург, ул. Комсомольская, 78 (Втузгородок) - фото квартиры 1 апреля 2025 90 дн. 1 48 21/25 7 900 000

Похожие предложения о продаже квартир в Екатеринбурге (Втузгородок)

  • 3-к квартира, Мира, 41

    • 92.4 м2
    • 5/25 этаж
    • Состояние: хорошее
    15 900 000 ₽ (172100 ₽/м2)
    Предлагаем к покупке удобную и комфортную квартиру для семьи с детьмиВ квартире просторная кухня около 12 м2 3 большие спальные комнаты на разные стороны Большой холл позволяет зайти в квартиру и коляской и с санками. Обустроена гардеробная для хранения одежды и обуви, а так же отдельная гардеробная для сезонных вещейИдеальный вариант планировочного решения для семьи- два санузла. Большая ванная комната ивторой гостевой санузелВместительная лоджия в гостиной с панорамными окнами во двор Кухонный гарнитур, вся встроенная техника и вместительные шкаф-купе в коридоре остаютсяВ доме хорошие соседи, которых абсолютно не слышно из-за качественной шумоизоляции.4 квартиры на этаже, что соответствует домам бизнес класса. Удобная особенность - сквозной подъезд, вход и с улицы и со двораЗакрытая территория с большой парковкой и огромной детской площадкой с различными зонами для детей разного возрастаДо центра города 10 минут на машине/общественном транспорте и хороший выезд во все стороны города В доме расположены супермаркеты, аптека, салоны красоты, ногтевые студии и многое другое, в 2-х минутах ходьбы ресторан и фитнесс центр, различные магазины Напротив дома детский сад № 34, через дорогу №299 гимназии (№№ 94, 45, 108, 37), школа № 134, 36в шаговой доступности вся нужная инфраструктура, что закрывает все потребности семьи от образования до досугаИпотека возможна. Один взрослый собственник. ID объекта в нашей базе: 13618
    размещено: 05.02.2026 , обновлено: 5.02.2026
  • 3-к квартира, Мира, 42

    • 76.7 м2
    • 6/6 этаж
    • Состояние: идеальное
    9 900 000 ₽ (129100 ₽/м2)
    ???? Продается большая, полностью готовая к проживанию - заезжай и живи!Светлая, ухоженная, тёплая квартира в кирпичном доме после капремонта.Окна квартиры выходят на две стороны: во двор на южную сторону и на север.???? Просторная кухня — место для семейных ужинов.???? Три изолированные большие комнаты, одна из них с выходом на застекленный балкон???? Раздельный санузел для удобства всей семьи???? Вместительный шкаф в прихожей, шкаф-купе и встроенная система шкафов в каждой комнате — не нужно тратиться на мебель.Покупателю оставляем всю мебель: встроенная во всех комнатах,мягкая мебель 4 дивана, 2 кресла, стол, стулья на кухне, кухонный гарнитур с бытовой техникой: газовая варочная панель, духовой шкаф Электролюкс,Холодильник Индезит,Стиральная машина Bosch,Водонагреватель. Всё в идеальном состоянии.Коммуналка летом 5000 руб., зимой 7500 руб.Рядом всё, что нужно для жизни:— магазины— школы и детские сады— остановки общественного транспорта— в пешей доступности УРФУАккуратный чистый подъезд. Соседи спокойные.Закрытый двор с детской площадкой.Парковочные места во дворе и по периметру домаОбъект без обременений. Два взрослых собственника.Знаю как снизить ставку по ипотеке!Звоните/пишите прямо сейчас! Договоримся о просмотре квартиры в удобное время!Одного просмотра достаточно, чтобы понять:дальше можно уже не искать! ID объекта в нашей базе: 13484
    размещено: 29.01.2026 , обновлено: 5.02.2026
  • 3-к квартира, Комсомольская, 67

    • 62.7 м2
    • 6/16 этаж
    • Состояние: хорошее
    12 890 000 ₽ (205600 ₽/м2)
    В ЖК «Комсомольская, 67», район Втузгородок, продается тёплая и светлая квартира, комнаты 13,8 кв.м и 14,8 кв.м и просторный зал совместно с кухней 17,4 кв.м, общей площадью 62,7 кв.м на 6-м этаже. Новый дом, сдан в 2020 году. Застройщик ГК «Первостроитель». Все комнаты выходят на солнечную сторону (юго-запад), на улицу Комсомольская. Окна – тройной стеклопакет с защитной пленкой. Квартира в отличном состоянии: на полу ламинат, зал зонирован керамогранитом (территория кухни) и ламинатом, на стенах - обои под покраску, совмещенный санузел – теплый пол, по всему периметру плитка, на полу керамогранит. Второй санузел – переоборудован под гардеробную и хранение техники и т.п. Натяжные потолки. Приточно-вытяжная вентиляция. Батареи с терморегуляцией. На балконе выложен ламинат, проведено электричество, розетка. На площадке 5 квартир, два лифта. На первом этаже дома расположены коммерческие помещения: магазин Верный, Магнит Косметик, Жизнь-март, Хеликс, Цветы, прачечная, пункты выдачи заказов ОЗОН, Вайлдберриз, салон Связи, бьюти-точки в доме. С жилым комплексом «Комсомольская, 67» была построена детская поликлиника.Закрытый озелененный двор с детской площадкой, воркаут-площадкой, сквозные проходы с улицы во двор. Подземная и наземная парковки. В шаговой доступности начальная и средняя школы, остановка транспорта – Комсомольская (автобусные и трамвайные маршруты). В шаговой доступности – аптеки, Монетка, пекарня, стоматология и др. Один собственник (квартира была приобретена от застройщика ГК «Первостроитель»). Материнский капитал не был использован, без обременений. Сумма полностью указывается в договоре. Мебель - по договоренности. Торг реальному покупателю. ID объекта в нашей базе: 9509
    размещено: 20.01.2026 , обновлено: 30.01.2026
  • 3-к квартира, Студенческая, 8

    • 81.1 м2
    • 3/3 этаж
    • Состояние: идеальное
    12 500 000 ₽ (154100 ₽/м2)
    Эксклюзивнoе прeдлoжение!Торг за быстрый выход на сделку! Пpедлaгаю вaшeму внимaнию уникальную дизайнерскую квaртиру в тихом, интеллигентном районе Eкaтеринбуpга. Если Вы мечтали о квартире, как из Pinterest – это она! В этом проекте найден баланс между современными комфортными технологическими решениями и сохранением духа «сталинки»: дома, где исторически проживают люди, занимающиеся наукой и искусством. Преимущества: Тихий двор со всегда доступными местами для парковки Потолки 3 метра Стены 53см: полная звукоизоляция Межкомнатные двери 2,3 метра с итальянской фурнитурой Декоративная штукатурка на стенах Два балкона: Французский балкон для летних вечеров и застекленный балкон для хранения вещей Капитальный ремонт квартиры: полностью заменена электрическая проводка, новые радиаторы в кухне-гостиной, новая сантехническая разводка Дом в 2019 году прошел полный капитальный ремонт: кровля, коммуникации, стояки отопления, фасад. У каждой квартиры есть собственная кладовая комната в подвале дома для хранения вещей. В 2026 планируются работы по установке забора и шлагбаума придомовой территории Спокойные соседи, люди в возрасте, проживающий в этом доме более 20 лет Кухня: Кухонный гарнитур с актуальной тонкой HP-столешницей Выдвижные двойные ящики с качественной фурнитурой Газовая плита на 4 конфорки Посудомойка 60см Измельчитель бытовых отходов Система фильтрации питьевой воды Холодильник Микроволновка Санузел: Душевая в строительном исполнении Инсталляция Стиральная и сушильная машины от Samsung в колонну Декоративная штукатурка на стенах Теплые полы В квартире встроены полноразмерные шкафы для хранения. Диван в гостиной от известного мебельного бренда. Новый smart-TV диагональю 65’’ Вся мебель, техника и предметы декора остаются новым хозяевам. Каждый предмет мебели, картина или декор продуман профессиональным дизайнером интерьера. Вы можете стать обладателем не просто удобных и красивых вещей, но предметов с «историей», которые прошли реставрацию и редизайн. Например будуарное кресло родом из казино; а прикроватной тумбе скоро исполнится пол века. Записывайтесь на просмотр. Это надо увидеть!! ID объекта в нашей базе: 3056
    размещено: 02.12.2025 , обновлено: 3.02.2026
  • 3-к квартира, Библиотечная, 43

    • 91.6 м2
    • 4/25 этаж
    • Состояние: хорошее
    14 500 000 ₽ (158300 ₽/м2)
    Объект № 195840. Уютная трехкомнатная квартира в ЖК Ломоносов - идеальное пространство для комфортной и гармоничной жизни! Эта просторная и светлая квартира отличается продуманной планировкой. Большая кухня-гостиная станет семейным сердцем дома, где удобно проводить время с близкими. Две уютные спальни обеспечат каждому спокойствие и личное пространство - идеальный вариант для семьи или тех, кто ценит комфорт. Два санузла и отдельная гардеробная - это не только практично, но и значительно повышает уровень удобства! Вы оцените простор и функциональность каждого квадратного метра. ЖК Ломоносов радует своих жителей отличным двором с благоустроенной зоной отдыха - здесь приятно гулять и играть. Для автолюбителей предусмотрен современный подземный паркинг, а в соседнем дворе расположен детский сад - идеально для малышей и их родителей. Образовательные и медицинские учреждения находятся в шаговой доступности: рядом школа и детская поликлиника обеспечат комфорт и безопасность всей семьи. Всё, что нужно для гармоничной жизни - прямо под боком! Не упустите возможность стать обладателем этого уютного уголка! Звоните сейчас- будущий дом ждет вас! ***Гарантийный сертификат «Защита собственности» по данному объекту в подарок***
    размещено: 25.11.2025 , обновлено: 31.01.2026

    3-к квартира, Комсомольская, 76

    • 104 м2
    • 5/24 этаж
    • Состояние: идеальное
    13 800 000 ₽ (132700 ₽/м2)
    Отличная квартира для большой семьи в жилом квартале "Университетский" со своей внутренней инфраструктурой..Есть все необходимое: благоустроенные дворы с прогулочными аллеями, детские и спортивные площадки, свое ТСЖ, подземный паркинг, торговые галереи с внешней стороны домов. В шаговой доступности детский сад, школа (отдельные корпуса начальной и средней школы), удобные выходы к центральной части города, общественному транспорту, рядом лучшие высшие учебные заведения: УРФУ, юракадемия. Квартира находится на комфортном среднем этаже, все комнаты больших размеров, есть 2 балкона и лоджия на два окна, просторный холл с гардеробной, хозяйским и гостевым санузлами. В хорошем состоянии. Приятный бонус - закрытая оборудованная секция на этаже на несколько квартир. БЕЗ каких-либо залогов или обременений. В единоличной собственности с 2018 г. Документы проверены! Ипотека возможна.Приглашаем на просмотры по предварительной договоренности. Более подробная информация по указанному телефону. Звоните! ID объекта в нашей базе: 4455
    размещено: 01.08.2025 , обновлено: 28.01.2026

    3-к квартира, Раевского, 22

    • 100.2 м2
    • 13/16 этаж
    • Состояние: хорошее
    15 500 000 ₽ (154700 ₽/м2)
    Если Вы хотите стать счастливым обладателем тихой, уютной 3-комнатной квартиры в самом сердце Пионерского, то Вы обратились по правильному адресу улица Раевского, дом 22 это именно то, что Вам нужно! Развитая инфраструктура района обеспечивает комфортное проживание современного человека в мегаполисе. Все, что необходимо для удобства в повседневной жизни, найдете в непосредственной близости от дома. Дом находится в глубине района, окна квартиры выходят разные стороны, в том числе на тихий уютный двор, поэтому всегда тихо и спокойно. Квартира расположена на комфортном 13 этаже, 16 этажного дома. В секции четыре квартиры на этаже. Общая площадь квартиры 100,2 кв.м. Квартира состоит из трех изолированных комнат (метражи комнат: 20,7; 13,6; 15,4), очень просторной кухни площадью 20,1 м.кв. и свободной прихожей; двух санузлов (в плитке). В квартире имеется большая лоджия (с панорамным остеклением). Квартира очень тихая и теплая, коммунальные платежи невысокие. Взрослые собственники. Подробности по телефону. Приглашаем на просмотр. Звоните, не упустите свой шанс. ID объекта в нашей базе: 611
    размещено: 30.01.2024 , обновлено: 28.01.2026

    3-к квартира, Блюхера, 38

    • 76 м2
    • 2/25 этаж
    • Состояние: идеальное
    11 950 000 ₽ (157200 ₽/м2)
    Продам 3 комнатную квартиру в Новом Семейном ЖК Теплые кварталы . Дом сдан в декабре 2023 года. В Квартире сделан качественной ремонт.Отделка:• Ламинат на звукоизоляционной основе;• Обои под покраску;• Все счетчики (электроэнергия, тепло, вода);• Установлены радиаторы с регуляторами температуры;• Датчики дыма в каждой квартире и на жилых этажах;• Высота потолков — 2,7 метров.Покупателю остается кухонный гарнитур с техникой и отделанный санузел.Преимущества : Дом отапливается за счет собственной котельной, Подземный сквозной паркинг работающий по принципу телепорта: Не нужно объезжать дом по периметру. Собственный закрытый двор от машин. На первом этаже жилого комплекса разместятся:• Продуктовый супермаркет• Аптека• Кафе• Соседский клуб• Медицинский центр• Салон красоты• Частный ясли-сад• Ателье и салон бытовых услуг .В шаговой доступности - детские, гимназии, лицей и УрФУ и Уральский государственный юридический университет; Бассейн, кружки и секции для детей и взрослых, ЦК Уралец. Для прогулок - дендрарий и озеро Шарташ. Квартира оформлена в собственность. Чистая продажа. ID объекта в нашей базе: 987
    размещено: 24.01.2024 , обновлено: 5.02.2026

Новостройки Екатеринбург, мкр-н. Втузгородок

Приоритет

Увеличивает просмотры в 3 раза

Ваше объявление показывается в списке выше обычных объявлений. подключить