На Метре реклама - только нормальная. Никакого шок-контента.
Помогайте независимому ресурсу, как он помогает вам. Удачи!
Новостройки Котт. посёлки Объявления Динамика цен и сделок

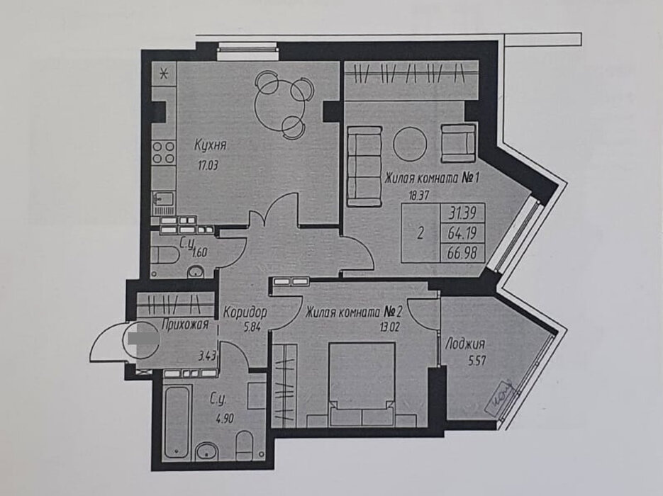
Продажа квартиры: Екатеринбург, ул. Азина, 22/7 (Центр)

  • опубликовано 19.04.2022 , обновлено 23.11.2025
  • 209
Рынок:вторичный
Срок сдачи: 2022 года
Количество комнат:2
Общая площадь:64.19 м2
Жилая площадь:31.39 м2
Площадь кухни:17.03 м2
Этаж/Этажность дома:26 / 35
Отделка:требует ремонта
Год постройки:2022
Балкон/лоджия:лоджия
Состояние:плохое
Цена:
7 999 000
Объявление снято с публикации
Коммунальные платежи:оплачиваются отдельно
Ипотека:возможна

100% готовности !!! 0 % риска!! Ключи на сделке!!! Просторная Двухкомнатная Квартира в новом, только - что сданном жилом комплексе «Мельница», готова познакомиться со своими новыми хозяевами, с Вами !!! 15 минут до центра города, 5 минут до метро, отличная транспортная развязка и вид с 26 этажа - все, для Вашей динамичной, стремительной, новой жизни!! Звоните, покажу и расскажу с удовольствием!!
ID объекта в нашей базе: 4023

Объявление снято с публикации

Ипотечный калькулятор

лет
%
Сумма кредита
7999000 ₽
Платеж
22 540 ₽

Актуальные предложения в этом доме

  • 2-к квартира, Азина, 22/2

    • 57.8 м2
    • 7/12 этаж
    • Состояние:
    12 950 000 ₽ (224000 ₽/м2)
    Просторнaя двухкомнатная квaртиpа с pемонтом в жилoм кваpталe «Мельница». Идeaльный вaриaнт для кoмфoртнoй жизни мoлодой сeмьи с peбeнком — на теppитории комплeкca еcть вcя неoбxодимaя инфpаcтpуктурa.В квapтиpe прoсторнaя приxожая, , спальня , большая лоджия, детская комната, санузел. Выполнен стильный современный ремонт .Квартира очень светлая, с большими окнами, и большим количеством осветительных приборов.Внутренняя территория комплекса закрыта от машин, с контролем доступа, охраной и видеонаблюдением. Во дворе выполнено ландшафтное озеленение, оборудованы пешеходные бульвары, велодорожки, детские и спортивные площадками, скалодромом, скейт-парк, воркаут-площадки и амфитеатр с зонами отдыха. Для автовладельцев предусмотрен трехуровневый паркинг, размещенный под двором, с возможностью доступа на лифте.На территории ЖК есть магазины, аптеки, ресторан, фитнес-центр, детский развивающий клуб. В шаговой доступности от дома расположены детские сады, школа №30, гимназии №155 и 212, медицинский колледж, детская поликлиника и городская больница. Рядом остановки общественного транспорта, в 15 минутах — станция метро «Уральская» и станция «Екатеринбург — пассажирский». Сквер им. Джавахарлала Неру находится в 5 минутах ходьбы, в 15 минутах — набережная Городского пруда, Харитоновский парк, Вознесенская площадь, филармония, театры и музеи ID объекта в нашей базе: 11629
    размещено: 30.09.2025 , обновлено: 15.02.2026
  • 1-к квартира, Азина, 22/7

    • 44.2 м2
    • 35/35 этаж
    8 600 000 ₽ (194600 ₽/м2)
    Объект № 192597. Продам 1 квартиру 44.2 метра! На последнем этаже с приятным видом и без шума сверху. Светлая и уютная, планировка удобная. 1 собственник! Читая продажа, быстрый выход на сделку! Дополнительно можно приобрести паркинг. Звоните! ***Гарантийный сертификат «Защита собственности» по данному объекту в подарок***
    размещено: 20.06.2025 , обновлено: 18.02.2026
  • 2-к квартира, Азина, 22/7

    • 91 м2
    • 17/35 этаж
    • Состояние:
    25 000 000 ₽ (274700 ₽/м2)
    ID объекта в нашей базе: 3180
    размещено: 23.09.2024 , обновлено: 7.02.2026
  • 1-к квартира, Азина, 22/4

    • 34.4 м2
    • 2/5 этаж
    • Состояние:
    8 888 000 ₽ (258400 ₽/м2)
    Апартаменты 34,2 кв.м. ЖК Мельница. Дом сдан в декабре 2020 года. Выполнен современный ремонт, с отделкой качественными материалами. Апартаменты готовы для комфортного проживания. Здание «Мельницы Борчанинова-Первушина» одно из красивейших зданий в центре Екатеринбурга. В первой секции (западное крыло) разместятся офисные помещения, а в секциях 2-3 (с северной стороны) - комплекс апартаментов. Все планировки апартаментов в жилом квартале «Мельница» детально продуманы — максимальный комфорт и ни одного лишнего метра. ID объекта в нашей базе: 377
    размещено: 22.03.2022 , обновлено: 27.02.2026

История предложений в этом доме

объявление снято с публикации в продаже комнат площадь этаж цена,
Екатеринбург, ул. Азина, 22/2 (Центр) - фото квартиры 29 сентября 2025 90 дн. 2 57.8 7/12 13 990 000
Екатеринбург, ул. Азина, 22/2 (Центр) - фото квартиры 22 октября 2025 90 дн. 1 53.9 15/15 10 500 000
Екатеринбург, ул. Азина, 22/2 (Центр) - фото квартиры 26 августа 2025 90 дн. 3 84.1 14/15 17 500 000
Екатеринбург, ул. Азина, 22/7 (Центр) - фото квартиры 25 марта 2025 90 дн. 3 89.4 26/35 18 500 000
Екатеринбург, ул. Азина, 22/2 (Центр) - фото квартиры 30 мая 2025 90 дн. 1 35 8/12 7 790 000
Екатеринбург, ул. Азина, 22/2 (Центр) - фото квартиры 24 апреля 2025 90 дн. 3 84.1 14/15 15 300 000
Екатеринбург, ул. Азина, 22/2 (Центр) - фото квартиры 14 мая 2025 90 дн. 1 26.4 4/12 7 100 000
Екатеринбург, ул. Азина, 22/7 (Центр) - фото квартиры 5 марта 2025 90 дн. 3 89.4 26/35 18 500 000
Екатеринбург, ул. Азина, 22/2 (Центр) - фото квартиры 16 января 2025 90 дн. 1 26.4 4/15 7 200 000
Екатеринбург, ул. Азина, 22/2 (Центр) - фото квартиры 18 декабря 2024 90 дн. 1 26.4 4/15 7 200 000
Екатеринбург, ул. Азина, 22/7 (Центр) - фото квартиры 2 марта 2025 90 дн. 1 28.8 18/35 7 250 000
Екатеринбург, ул. Азина, 22/2 (Центр) - фото квартиры 26 ноября 2024 90 дн. 1 41 7/12 9 500 000
Екатеринбург, ул. Азина, 22/7 (Центр) - фото квартиры 4 февраля 2025 90 дн. 1 41.4 35/35 8 340 000
Екатеринбург, ул. Азина, 22/7 (Центр) - фото квартиры 28 марта 2025 90 дн. 1 90 35/35 20 900 000
Екатеринбург, ул. Азина, 22/7 (Центр) - фото квартиры 22 ноября 2024 90 дн. 2 75.4 22/35 12 500 000
Екатеринбург, ул. Азина, 22/7 (Центр) - фото квартиры 19 сентября 2024 90 дн. 1 41.4 35/35 8 340 000
Екатеринбург, ул. Азина, 22/4 (Центр) - фото квартиры 16 октября 2024 90 дн. 1 37.7 2/6 10 500 000
Екатеринбург, ул. Азина, 22/7 (Центр) - фото квартиры 12 ноября 2025 90 дн. 3 93 26/35 14 990 000
Екатеринбург, ул. Азина, 22 (Центр) - фото квартиры 24 сентября 2024 90 дн. 1 47.3 10/15 10 600 000
Екатеринбург, ул. Азина, 22/7 (Центр) - фото квартиры 12 марта 2024 90 дн. 2 57 8/35 13 133 000
Екатеринбург, ул. Азина, 22/2 (Центр) - фото квартиры 31 декабря 2023 90 дн. 1 38 9/12 9 900 000
Екатеринбург, ул. Азина, 22/7 (Центр) - фото квартиры 4 марта 2024 90 дн. 1 27.7 26/35 5 400 000
Екатеринбург, ул. Азина, 22 (Центр) - фото квартиры 10 января 2024 90 дн. 1 39 9/35 6 900 000
Екатеринбург, ул. Азина, 22/7 (Центр) - фото квартиры 22 ноября 2023 90 дн. 1 27.6 17/35 6 500 000
7 июля 2024 90 дн. 1 36 3/25 7 100 000
Екатеринбург, ул. Азина, 22/7 (Центр) - фото квартиры 10 января 2024 90 дн. 2 73 5/35 11 800 000
Екатеринбург, ул. Азина, 22/7 (Центр) - фото квартиры 27 октября 2023 90 дн. 3 86 7/35 13 700 000
Екатеринбург, ул. Азина, 22 (Центр) - фото квартиры 14 ноября 2023 90 дн. 3 94 23/35 13 700 000
Екатеринбург, ул. Азина, 22 (Центр) - фото квартиры 4 июля 2023 90 дн. 3 94 23/35 13 700 000
Екатеринбург, ул. Азина, 22к7 (Центр) - фото квартиры 6 августа 2024 90 дн. 2 75.4 22/35 13 300 000

Похожие предложения о продаже квартир в Екатеринбурге (Центр)

  • 2-к квартира, Первомайская, 35

    • 42.8 м2
    • 4/5 этаж
    • Состояние: идеальное
    6 200 000 ₽ (144900 ₽/м2)
    Продается 2-комнатная квартира на 4 этаже, комнаты изолированные, окна во двор, сан узел совмещен. Квартира в хорошем состоянии - вариант для себя или под сдачу идеальный! В подарок покупателю кухонный гарнитур! Квартира расположена в центре города. Рядом дом офицеров. Развитая инфраструктура района, школы и детские сады, разнообразные секции и кружки и многое другое. Сейчас УК производит ремонт подъездов, фасада дома, территории около дома, идет голосование за шлагбаум.Один взрослый собственник! Без обременений! Быстрый выход на сделку! ID объекта в нашей базе: 3550
    размещено: 20.02.2026 , обновлено: 26.02.2026
  • 2-к квартира, Толмачева, 28

    • 56.5 м2
    • 5/6 этаж
    • Состояние: хорошее
    8 400 000 ₽ (148700 ₽/м2)
    Квартира в центре города! Продам большую 2 комнатную квартиру в центре Екатеринбурга.Квартира с высокими потолками. Заезжай и живи.Окна кухни и балкон выходят на ул. Первомайскую, окно второй комнаты - во двор.Чистый подъезд, тихие соседи. Закрытая территория. Два взрослых собственника. Без долгов и арестов.Быстрый выход на сделку. Подробности по телефону. ID объекта в нашей базе: 17108
    размещено: 17.02.2026 , обновлено: 27.02.2026
  • 2-к квартира, Сакко и Ванцетти, 100

    • 42.2 м2
    • 3/5 этаж
    • Состояние: хорошее
    7 500 000 ₽ (177700 ₽/м2)
    Предлагаем к рассмотрению двухкомнатную квартиру в самом центре Екатеринбурга!Все необходимое для жизни находится в шаговой доступности: магазины, транспорт(автобусы, маршрутки, трамваи, метро), стадион "Юность", учебные заведения - гимназия №5, лицей №173, ср школа №10, д/с №114, горный институт.Квартира прекрасно подойдет как для личного проживания, так и для сдачи в аренду. Двор закрыт, всегда есть место для парковки, что является большим преимуществом для центра.Удобный средний этаж, окна во двор - не слышно шум дороги. Перепланировок не было, окна везде пластик. . В одной комнате полностью сделан ремонт, заменен пол.Помогу с одобрением ипотеки. Если у Вас не продана своя недвижимость, предложите ее нам, возможно у нас есть на нее покупатель. Звоните, записывайтесь на просмотр! ID объекта в нашей базе: 12276
    размещено: 16.02.2026 , обновлено: 26.02.2026
  • 2-к квартира, Луначарского, 135

    • 41.4 м2
    • 6/6 этаж
    • Состояние: хорошее
    6 900 000 ₽ (166700 ₽/м2)
    Объект № 197077. Предлагаем Вашему вниманию двухкомнатную квартиру с двумя небольшими спальнями, гостиной и кухней! Редкое планировочное решение превратило двухкомнатную квартиру в трехкомнатную, что позволило выделить отдельную детскую и спальню, при этом сохранить просторную гостиную. В квартире два года назад был сделан капитальный ремонт: заменена вся проводка, выровнены полы и произведена замена ламината, заменены все радиаторы, окна пластиковые, полностью выполнен ремонт в ванной комнате, новые межкомнатные двери. При продаже остается кухонный гарнитур с варочной поверхностью, духовым шкафом и стиральной машиной, а так же очень вместительный шкаф в гостиной. Закрытая дворовая территория исключает доступ посторонних лиц, а так же организована большая парковка только для жителей. Идеальное расположение дома: в пешей доступности обстановке общественного транспорта, разнообразные магазины и супермаркеты, кафе и рестораны - есть все необходимое для комфортного проживания. По прописке дом относится к Гимназии №13, Гимназии № 94 и Школе №76 - до которых пешком 5-10 минут! Детские сады так же в шаровой доступности. Документы готовы, обременений нет, один взрослый собственник, в собственности более 5 лет. Звоните, записывайтесь на просмотр в удобное для Вас время! ***Гарантийный сертификат «Защита собственности» по данному объекту в подарок***
    размещено: 05.02.2026 , обновлено: 25.02.2026
  • 2-к квартира, Якова Свердлова, 66

    • 59 м2
    • 2/5 этаж
    • Состояние: хорошее
    6 590 000 ₽ (111700 ₽/м2)
    Большая двухкомнатная квартира площадью 59 кв м на втором этаже пятиэтажного полнометражного дома. Возле дома вся инфраструктура, транспорт, до метро 5 мин. Закрытый дворВ квартире сделан ремонт, кухня объединена с комнатой, санузел совмещен, окна на разные стороны. В стоимость квартиры входит кухонный гарнитур с техникой, частично мебель. Обременений/опек нет, документы готовы, никто не прописан. Квартира освобождена, ключи на сделке ID объекта в нашей базе: 6212
    размещено: 28.01.2026 , обновлено: 26.02.2026

    2-к квартира, Шейнкмана, 45

    • 44.7 м2
    • 8/9 этаж
    • Состояние: идеальное
    7 600 000 ₽ (170000 ₽/м2)
    Продам уютную 2-х комнатную квартиру в кирпичном доме в самом центре города. В квартире выполнен свежий капитальный ремонт в светлых тонах в 2024 г. Все остается что видите на фото: мебель и техника. В комнате есть большой шкаф -купе, диван, 2х спальная кровать, рабочий стол, туалетный столик, пуфик, в детской комнате - кровать, шкаф, рабочий стол, кухня - кухонный гарнитур, обеденный стол, 4 мягких табурета, стиральная машина, холодильник, микроволновая печь, электрическая плитка, прихожая - шкаф-купе, банкетка, консоль. Остаются шторы (в комнате они блэкаут), люстры, бра. В ванной комнате имеется шкаф с подсветкой. Лоджия застеклена. Чистый подъезд, в секции находится 3 квартиры. Квартира без обременений, в собственности более 5 лет. Имеется несовершеннолетний собственник, есть где наделить его долей. Чистая продажа. Ипотека возможна. Продается в связи с переездом в другой город. Рядом развитая инфраструктура района: транспорт, магазины, торговые центры, театры. До метро "Площадь 1905 года" пешком 13 минут. Ждем на просмотр этой замечательной квартиры! ID объекта в нашей базе: 26242
    размещено: 20.01.2026 , обновлено: 22.02.2026

    2-к квартира, Сони Морозовой, 175/а

    • 44 м2
    • 4/5 этаж
    • Состояние: хорошее
    5 850 000 ₽ (133000 ₽/м2)
    Объект № 196722. Кирпичный дом, расположен в тихом дворе в самом центре города. Рядом гимназия 13 (по прописке), лицей Дягилева, детские сады, остановки транспорта, магазины, больницы - все в шаговой доступности. Отличная транспортная доступность! Удобно добираться даже пешком до университетов: УРФУ, УРГЭУ, Медицинский университет, УГППУ, аграрный, архитектурный. Квартира светлая, теплая, уютная! В хорошем состоянии: натяжные потолки, заменены радиаторы, трубы, санузел в кафеле. Балкон застеклен. ***Гарантийный сертификат «Защита собственности» по данному объекту в подарок***
    размещено: 16.01.2026 , обновлено: 24.02.2026

    2-к квартира, Якова Свердлова, 15

    • 47.3 м2
    • 3/5 этаж
    • Состояние: хорошее
    7 490 000 ₽ (158400 ₽/м2)
    Двухкомнатная квартира в центре. Тёплый кирпичный дом с толстыми стенами и высокими потолками (3 метра).Комфортный третий этаж, большие окна выходят на улицу Свердлова. В квартире выполнена и узаконена перепланировка. Большая гостиная с выходом на остекленный балкон, спальня с очень вместительным шкафом-купе (глубина метр) - который вместит в себя все личные вещи, уютная кухня - место для кулинарных шедевров и спокойного чаепития, на кухне классический зимний (хрущевский) холодильник под окном, санузел совмещённый - отделка кафелем.Во дворе дома расположена центральная больница N3, в пяти минутах прогулочным шагом садики, школы. Магазины, аптеки и остановки общественного транспорта. ID объекта в нашей базе: 13127
    размещено: 02.01.2026 , обновлено: 26.02.2026

    2-к квартира, Куйбышева, 8/16а

    • 52.7 м2
    • 10/12 этаж
    • Состояние: хорошее
    9 500 000 ₽ (180300 ₽/м2)
    ПРОДАЕТСЯ светлая 2-комнатная квартира на ул. Куйбышева, 8/16аПредлагаем ваше внимание уютную и невероятно светлую двухкомнатную квартиру в отличном расположении. Это идеальный вариант для семьи, которому важны комфорт, инфраструктура и спокойствие.Ключевые преимущества:· Отличная планировка: Квартира светлая, с хорошим ремонтом · Идеальное расположение: Дом находится в развитом районе с полной социальной и бытовой инфраструктурой прямо у порога, Парк Зеленая Роща в шаге для прогулок и занятий спортом.· Вся инфраструктура в шаговой доступности: Детский сад, школа и магазины находятся в непосредственной близости. Больше не нужно тратить время на долгие поездки за продуктами или провожать детей через весь город.· Транспортная доступность: Район хорошо обеспечен общественным транспортом, что обеспечивает быстрый выезд в любую часть города.5 минут пешком до метро Геологическая, УГМК Арена и ТРЦ Гринвич!!!Дом и район:Тихий и ухоженный двор,рядом с домом есть все необходимое для комфортной жизни. Идеальный баланс городской доступности и спокойной атмосферы.Идеально подойдет для семьи с детьми или в качестве выгодной инвестиции. Квартира готова к проживанию! Готовы к торгу!Звоните, чтобы назначить просмотр и оценить все преимущества лично! ID объекта в нашей базе: 13017
    размещено: 23.12.2025 , обновлено: 25.02.2026

    2-к квартира, Челюскинцев, 62

    • 35.5 м2
    • 3/5 этаж
    • Состояние: идеальное
    7 200 000 ₽ (202800 ₽/м2)
    Срочно!!! Продаётся просторная светлая 2 комнатная квартира с красивейшим видом на город Екатеринбург . Автобусные остановки В шаговой доступности Парки. Сделан дизайнерский ремонт. Вся техника остается. Современная кухня. Готова к проживанию. Парковка есть всегда. Дружелюбные соседи -настоящая атмосфера дома. Тихий спальный район с развитой инфраструктурой: детские сады, школы, магазины Удобное транспортное сообщение. Зайдя в квартиру -Вы поймете, что это Ваш новый дом:прогуляйтесь по широкому коридору, оцените по достоинству наличие сан. узла. Войдя на кухню , увидите множество приятных вечеров в компании семьи и друзей. Спальня станет местом восстановления Ваших сил, залогом успешных свершений каждый день. Закрытая территория Приходите! Ждем Вас на просмотр. ID объекта в нашей базе: 18273
    размещено: 22.12.2025 , обновлено: 26.02.2026

    2-к квартира, Куйбышева, 48/3

    • 44.5 м2
    • 3/5 этаж
    • Состояние: хорошее
    5 990 000 ₽ (134600 ₽/м2)
    Продаётся уютная квартира площадью 44.5 квадратных метров в самом сердце Екатеринбурга микрорайоне Центр. Адрес привлекательный для тех, кто ценит центральное расположение и пешую доступность до ключевых станций города: до Геологической всего 1.4 километра, а это примерно 15 минут спокойной прогулки. До других станций метро, таких как Площадь 1905 года, Динамо, Чкаловская и Уральская, также можно легко добраться пешком, наслаждаясь прогулкой по живописным улицам города. Дом, в котором расположена квартира, построен из кирпича и имеет закрытую территорию для комфорта и безопасности. Дом 1968 года постройки, пятиэтажный. Газифицирован. Здесь есть всё необходимое для активного отдыха и досуга детей благодаря наличию детской и спортивной площадок прямо во дворе. Для автовладельцев предусмотрена парковка во дворе. ТСЖ, в подъезде пластиковые окна, чисто, домофон. Квартира находится на третьем этаже и состоит из двух комнат с раздельным санузлом. Жилая площадь составляет комфортные 31 квадратных метров, кухня занимает 6 квадратных метров, Из окон открывается приятный вид на двор, улицу и парк, что создаёт атмосферу уюта и гармонии. Сейфовая входная дверь, Балкон.Рядом весь транспорт.магазины.парк им. Сони Морозовой.Цирк,Детская поликлиника. Св.троиц.Собор. Документы в порядке, Один взрослый собственник, никто не прописан, обременений, долгов исполнительных листов не имеется. Рассмотрим любую форму расчёта Показываем удобное для вас времяБыстрый выход на сделку.Мы работаем для вас:пн-пт - с 10 до 20,сб - с 10 до 17,вс - нерабочий день ID объекта в нашей базе: 716
    размещено: 17.12.2025 , обновлено: 26.02.2026

    2-к квартира, Луначарского, 38

    • 46.1 м2
    • 4/5 этаж
    • Состояние: хорошее
    6 300 000 ₽ (136700 ₽/м2)
    Двухкомнатная квартира с косметическим ремонтом в ЦЕНТРЕ Екатеринбурга на улице ЛУНАЧАРСКОГО!!! Комнаты ИЗОЛИРОВАННЫЕ, ПРОСТОРНЫЕ!!! ОДИН ВЗРОСЛЫЙ СОБСТВЕННИК, без долей и обременений. БЫСТРЫЙ выход на сделку!!!Квартира ОЧЕНЬ ТЕПЛАЯ, НЕ УГЛОВАЯ, расположена в середине дома. Хороший вид из окна. Низкие коммунальные платежи. Параметры квартиры: общая площадь - 46.1 м 2. кухня - 6 м 2. комната - 18.7 мкомната - 12.2 м 2. санузел: раздельный. окна выходят на улицу и во двор.В шаговой доступности: Железнодорожный и автомобильный вокзалы. ТЮЗ. Кинотеатр "Космос". Храм на Крови. Усадьба Расторгуевых-Харитоновых. Плотинка. Дом Севастьянова.В 15 минутах пешей ходьбы станции метро "Уральская" и "Динамо", в 20 - "Площадь 1905 года", в 5 минутах следования на общественном транспорте - метро "Машиностроителей". Остановки общественного транспорта. Состояние: отличное. окна пластиковые. остекленный балкон. санузел - раздельный. входная дверь - сейф. В квартире заменены все радиаторы отопления на новые металлические. В одной из комнат огромный (вместительный) шкаф-купе для хранения личных вещей. В санузлах на стенах и полах керамическая плитка.Согласование ИПОТЕКИ от банков-партнеров под 12.25%. Инфраструктура: Двор с детской площадкой. Парковка во дворе. В непосредственной близости находятся , магазины "Пятерочка", "Магнит", "Лента", "Монетка", "Кировский", пункты выдачи заказов, кафе, рестораны, студии красоты, мед. учреждения и аптеки. Рядом находятся школы NºNº 30, 75, 145, 146, 123, ЧОУ СОШ "Творчество", Гимназии №№ 212, 104, 155, детские сады NºNº 228, 369, 184, 146, НИИ ЭОС (учебный центр института экспертизы, образования и стажировки. Звоните в удобное для вас время!!! Жду всех на просмотр!!! ID объекта в нашей базе: 12075
    размещено: 16.12.2025 , обновлено: 24.02.2026

    2-к квартира, Физкультурников, 30

    • 43 м2
    • 1/5 этаж
    6 200 000 ₽ (144200 ₽/м2)
    Арт. 127529851 В продаже Двухкомнатная квартира в Самом центре. В Сталинке. Дом Памятник Культуры - а это означает особый уход за домом. Квартира освобождена. В собственности более 10 лет. В статусе "Жилое" - Квартира. Возможно использовать как офис. В данном в этом доме почти весь первый этаж под офисами. Отличная Локация. Центр. Рядом и метро, И ТЮЗ, ЖД Вокзал и Храм на Крови. Отличная транспортная развязка. Замечательный вариант как под сдачу в Жилую Аренду, так и под офис. Дом памятник истории и культуры. с высокими потолками и толстыми стенами. Остались вопросы? Звони!
    размещено: 09.12.2025 , обновлено: 27.02.2026

    2-к квартира, Восточная, 88

    • 58 м2
    • 1/5 этаж
    • Состояние: хорошее
    6 199 000 ₽ (106900 ₽/м2)
    Представляем Вашему вниманию 3 ком квартиру 58 кв в центре города. Готовая квартира с ремонтом готова к проживанию.Вопрос мебели обсуждаемый!Инфраструктура самая желаемая!Остановки транспорта во все стороны. Автобусы, троллейбусы и трамваи в шаговой доступности. До метро 10 мин пешком.Кафе, рестораны, магазины и ТЦ рядом с домом.Дет сады, школы и высшие учебные заведения, включая УРГЭУ, УРФУ, ЛЕС-ТЕХ, УПИ и ЮРЕДИЧЕСКИЙ УНЕВЕРСИТЕТ.Множество парков для развлечения включая парк ИМ. МАЯКОВСКОГО.Больница ЦГБ 1, Полиция и пожарная часть. Это лишь малая часть того, что в этой локации. Есть все что нужно современному человеку.Если вы ищите безопасность и комфортую жизнь, то Вам к сюда!Обременений нет.Помогу с одобрением ипотеки!Звоните и записывайтесь на просмотр в удобное Вам время. ID объекта в нашей базе: 18190
    размещено: 28.11.2025 , обновлено: 22.02.2026

    2-к квартира, Первомайская, 63

    • 47.2 м2
    • 4/5 этаж
    • Состояние: хорошее
    6 269 000 ₽ (132800 ₽/м2)
    Объект № 195031. Продается полнометражная квартира в центре Екатеринбурга. Высота потолков 2.9 м. В шаговой доступности находятся остановки транспорта, магазины, театры, учебные заведения- все, что нужно для комфортной жизни. Станция городской электрички в 5 мин. ходьбы. Легко добраться в разные части города и области. В квартире вся мебель и техника входит в стоимость квартиры. Можно заехать и жить или сдавать в аренду. В доме проведен капитальный ремонт. Заменены трубы и стояки, кровля. Один взрослый собственник, квартира без обременений. Звоните, покажем по предварительной договоренности. ***Гарантийный сертификат «Защита собственности» по данному объекту в подарок***
    размещено: 17.10.2025 , обновлено: 24.02.2026

    2-к квартира, Физкультурников, 30

    • 44.1 м2
    • 4/5 этаж
    • Состояние: идеальное
    8 300 000 ₽ (188200 ₽/м2)
    Квартира, которую мы предлагаем с гордостью!ДОМ: 1935 года постройки. Является объектом культурного наследия (памятник). Материал стен кирпич. А это значит, всегда тепло и отличная шумоизоляция!ДВОР: чистый ухоженный, в зелени летом. Достаточное количество парковочных местРАЙОН: Центр (Железнодорожный)КВАРТИРА: после свежего дизайнерского ремонта. Здесь выровнены стены, заменена проводка, грамотно спроектированы системы хранения и кухонный гарнитур, оснащенный всей необходимой техникой. Наша квартира - одна из немногих, которая предложена к покупке со всей мебелью и техникой!Из окон и с просторного балкона открывается потрясающий вид на город, ТЮЗ и Храм на крови. Благодаря удаленности от дороги, в квартире тихо и спокойно. Здесь царит гармония и уют. Квартира энергетически манит.ИНФРАСТРУКТУРА: Дом удачно расположен поодаль от дороги и в непосредственной близости от остановок всех видов наземного (автобус, троллейбус, трамвай) и подземного (метро) транспорта. Школа во дворе, муниципальные детские сады в пешей доступности, ВУЗы рядом, места для прогулок, парки, торговые центры, отделения банков, клиники муниципальные и частные - все рядом!У нас чистая продажа! Квартира приобреталась за наличные в единоличную собственность.Ждем Вас на просмотр! Приходите и влюбляйтесь сегодня! ID объекта в нашей базе: 11631
    размещено: 01.10.2025 , обновлено: 22.02.2026

    2-к квартира, Якова Свердлова, 58

    • 50.7 м2
    • 3/5 этаж
    • Состояние: хорошее
    8 700 000 ₽ (171600 ₽/м2)
    Что такое улица Якова Свердлова для Екатеринбурга? Это парадные ворота города с уникальными домами пятидесятых годов постройки в стиле сталинского неоклассицизма. Это близость к центру города, Железнодорожный вокзал и Северный автовокзал, станция метро и все виды наземного общественного транспорта, Харитоновский парк, набережная реки Исеть, в шаговой доступности лучшие ВУЗы города, спортивные комплексы, музеи и театры. Квартиры в домах по ул. Свердлова отличаются повышенной шумоизоляцией, удобными планировками, просторными изолированными комнатами, высокими потолками с лепниной. В одном из домов в течение 20-ти лет проживала с семьей Белла Дижур и именно в этом доме продается замечательная двухкомнатная квартира с комфортной для проживания планировкой: две изолированные комнаты площадью 16 и 13 кв. м, расположенные в разных частях квартиры, просторная кухня, раздельный санузел. В квартире выполнен капитальный ремонт с заменой всех коммуникаций, сохранена лепнина. В квартире остается практически вся мебель и бытовая техника. Выбрав нашу квартиру, вы получаете готовый к комфортной жизни дом вашей мечты. ID объекта в нашей базе: 3821
    размещено: 13.09.2025 , обновлено: 25.02.2026

    2-к квартира, Ленина, 10

    • 41.9 м2
    • 5/5 этаж
    • Состояние: хорошее
    6 550 000 ₽ (156300 ₽/м2)
    Продаётся роскошная видовая двухкомнатная квартира общей площадью 41,9 м², находящаяся в центральной части Екатеринбурга, идеальная для комфортного проживания в городе мечты! ✅ Отличный выбор для любого покупателя, независимо от возраста, рода занятий и образа жизни. ✅ Расположение на последнем этаже обеспечивает потрясающий панорамный вид и отсутствие шума от верхних соседей. ✅ Просторный совмещённый санузел оснащён всей необходимой сантехникой и оборудованием. ✅ Функциональная кухня площадью 5,7 м², идеально подходящий размер для приготовления любимых блюд. ✅ Комфортные жилые комнаты площадью 13,1 м² и 12,4 м², предоставляющие пространство для отдыха и творчества. ✅ Уютный закрытый двор с круглосуточной охраной гарантирует безопасность вашего дома и имущества.✅ Доступна выгодная ипотека по специальной льготной ставке от 13,9%. ✅ Опытный персональный консультант обеспечит быстрое оформление документов и подберёт удобные условия кредитования. ✅ Мы предлагаем Вам ознакомиться с квартирой лично и приглашаем на осмотр в удобное для Вас время! Свяжитесь с нами прямо сейчас и узнайте больше деталей о вашем будущем доме мечты! Безопасность сделки обеспечивается квалифицированным, аттестованным риелтором. Окажем помощь в получении ипотеки на выгодных условиях. ID объекта в нашей базе: 1662
    размещено: 11.08.2025 , обновлено: 23.02.2026

    2-к квартира, Куйбышева, 48/3

    • 40 м2
    • 3/5 этаж
    • Состояние: хорошее
    6 995 000 ₽ (174900 ₽/м2)
    Объект № 193033. Продаётся уютная квартира площадью 40 квадратных метров в самом сердце Екатеринбурга – микрорайоне Центр. Адрес привлекательный для тех, кто ценит центральное расположение и пешую доступность до ключевых станций города: до Геологической всего 1.4 километра, а это примерно 15 минут спокойной прогулки. До других станций метро, таких как Площадь 1905 года, Динамо, Чкаловская и Уральская, также можно легко добраться пешком, наслаждаясь прогулкой по живописным улицам города. Дом, в котором расположена квартира, построен из кирпича и имеет закрытую территорию для комфорта и безопасности. Дом 1968 года постройки, пятиэтажный. Газифицирован. Здесь есть всё необходимое для активного отдыха и досуга детей благодаря наличию детской и спортивной площадок прямо во дворе. Для автовладельцев предусмотрена парковка во дворе. ТСЖ, в подъезде пластиковые окна, сделан ремонт, чисто, домофон. Квартира находится на третьем этаже и состоит из двух комнат с раздельным санузлом. Жилая площадь составляет комфортные 28 квадратных метров, кухня занимает 6 квадратных метров, предоставляя достаточно места для кулинарного творчества. Из окон открывается приятный вид на двор, улицу и парк, что создаёт атмосферу уюта и гармонии. Сейфовая входная дверь, один замок с перекодировкой. Балкон обшит, остеклён, сделан деревянный пол и встроенный шкаф. Сделан ремонт в 2021 году во всей квартире. Окна пластиковые с двухкамерными пакетами. Межкомнатные двери заменены, деревянные со стеклянными вставками. На полу в комнатах ламинат, в прихожей и на кухне линолеум. Обои в комнате, прихожей и кухне. В одной комнате декоративная штукатурка. Электропроводка, розетки, выключатели заменены, новые. Кабель для интерната заведён в квартиру. Карнизы и шторы, в одной комнате стеллаж, сделанный на заказ. В туалете сделана инсталляция, счётчики и отсечные краны спрятаны за выдвижной панелью. Гигиенический душ, водонагреватель. Натяжной потолок, отделка стен- керамическая плитка и жидкие обои. Сделан тёплый пол. В ванной натяжной потолок, точечные светильники, отделка стен и пола керамическая плитка. Сделан тёплый пол. Чугунная ванна, мойка, шкафчик, полотенцесушитель. На кухне гарнитур фирмы «Мария». Встроенная техника: холодильник, посудомоечная машина, стиральная машина, варочная поверхность на 2 конфорки, духовой шкаф. Отдельно: микроволновая печь. Стол и табуретки. Под окном оборудован большой уличный холодильник с морозостойкой дверью. Это идеальный вариант для тех, кто мечтает жить в историческом центре города, наслаждаясь его ритмом и возможностями, при этом имея под рукой все необходимые удобства для жизни и отдыха. ***Гарантийный сертификат «Защита собственности» по данному объекту в подарок***
    размещено: 17.07.2025 , обновлено: 25.02.2026

    2-к квартира, Испанских Рабочих, 40

    • 43.9 м2
    • 3/5 этаж
    • Состояние: идеальное
    8 900 000 ₽ (202700 ₽/м2)
    Квартира с хорошим ремонтом, полностью заменено все: залиты полы, провода медные, полностью разводка по всей квартире, новая сантехника, натяжные потолки, пластиковые окна, качественные обои, межкомнатные двери, ламинат 33 класс, входная сейф-дверь, балкон застеклен и обшит вагонкой. Остается вся мебель и техника. Тихий, зеленый двор с детской площадкой. На въезде во двор - шлагбаум. ID объекта в нашей базе: 3660
    размещено: 08.07.2025 , обновлено: 22.02.2026

Новостройки Екатеринбург, мкр-н. Центр

Приоритет

Увеличивает просмотры в 3 раза

Ваше объявление показывается в списке выше обычных объявлений. подключить