На Метре реклама - только нормальная. Никакого шок-контента.
Помогайте независимому ресурсу, как он помогает вам. Удачи!
Новостройки Котт. посёлки Объявления Динамика цен и сделок

Продажа квартиры: Екатеринбург, ул. Шефская, 87 к.2 (Эльмаш)

  • опубликовано 23.06.2022 , обновлено 19.11.2025
  • 49
Кадастровый номер:66:41:0110014:2302
Рынок:вторичный
Срок сдачи: 1970 года
Количество комнат:1
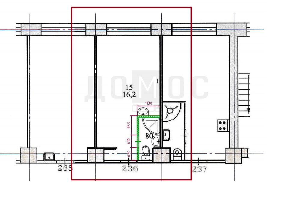
Общая площадь:30.2 м2
Жилая площадь:18 м2
Площадь кухни:6 м2
Этаж/Этажность дома:4 / 5
Санузел:совмещенный
Отделка:косметический
Год постройки:1970
Балкон/лоджия:балкон
Цена:
3 050 000
Объявление снято с публикации
Коммунальные платежи:оплачиваются отдельно
Условия продажи:«чистая» продажа
Ипотека:возможна

ПРОДАМ: Теплую, уютную квартиру в кирпичном доме "Брежневка" в центре микрорайона Эльмаш, рядом (в шаговой близости) со станцией метро Проспект Космонавтов.
РАЙОН: Орджоникидзевский
ДВОР: во дворе небольшая детская площадка, парковочные места рядом с домом.
- ДОМ: материал стен - кирпич.
КВАРТИРА: Квартира теплая и очень экономичная в обслуживании. Сделан капитальный ремонт: полный ремонт пола - замена лаг, в результате пол не скрипит, все пластиковые окна, заменена электропроводка, заменены все стояки труб: канализация, холодное, горячее водоснабжение, счетчики на воду, электричество. В квартире частично остается мебель. Кухонный гарнитур, диван. Очень удобная квартира для сдачи в наём (близость станции метро). Планировка квартиры: Комната 18 кв.м., кухня 6 кв.м., застекленный балкон. Плита газовая во всём доме. Все окна во двор (юго западная сторона).
ИНФРАСТРУКТУРА:
- Удачное расположение дома - всё рядом: станция метро Проспект Космонавтов, остановки транспорта, магазины, среднеобразовательная школа №138 (во дворе дома), садики.
ЮРИДИЧЕСКАЯ ЧИСТОТА:
Собственники совершеннолетние. Квартира готова к продаже. На сделку выйдем быстро.
Одно из лучших предложений в этом районе! Звоните!!!!! ПО КВАРТИРЕ ПРИНЯТ АВАНС!


ДОПОЛНИТЕЛЬНАЯ ИНФОРМАЦИЯ:Понравился наш вариант, а на покупку не хватает средств? Мы согласуем ипотеку дешевле, чем в банке. За счет партнерской программы, более 10 банков снижают ставку для наших клиентов. У Вас обмен и своя недвижимость еще не продана? Предложите её, у нас более 100 агентов и чаще всего, покупатель уже есть.Никакой комиссии при покупке данного объекта недвижимости!Звоните и приходите на просмотр!!!

#объект в нашей базе №12477107#

Объявление снято с публикации

Ипотечный калькулятор

лет
%
Сумма кредита
3050000 ₽
Платеж
22 540 ₽

Похожие предложения о продаже квартир в Екатеринбурге (Эльмаш)

  • 1-к квартира, Шефская, 93/1

    • 36.7 м2
    • 6/9 этаж
    • Состояние: удовлетворительное
    3 700 000 ₽ (100800 ₽/м2)
    Вашему вниманию светлая, теплая и просторная однокомнатная квартира в кирпичном доме площадью 36,7 кв. метров. Расположение дома удобно тем, что рядом есть транспортные развязки: Метро «Станция Проспект Космонавтов» (8 минут пешком), трамвайная остановка (2 минуты пешком). У квартиры один собственник, обременений нет. Несмотря на то, что квартира требует ремонта (в настоящее время «из ремонта», в квартире только натяжной потолок в зале))))), это открывает прекрасную возможность обустроить жильё согласно своим предпочтениям и вкусам. В квартире есть отдельная комната - кладовая, которую можно оборудовать, как гардеробную. Двор тесноватый, но наполнен зелёными насаждениями. Близлежащие объекты инфраструктуры: Школа N138, детский сад N 140, Детский сад N 499, торговый центр Веер Молл, фитнес-клуб (через дорогу). Приглашаю вас оценить квартиру лично! Записаться на просмотр можно по телефону. ID объекта в нашей базе: 12648
    размещено: 27.11.2025 , обновлено: 29.11.2025
  • 1-к квартира, Шефская , 97

    • 32 м2
    • 1/9 этаж
    • Состояние: хорошее
    3 590 000 ₽ (112200 ₽/м2)
    Квартира в хорошем состоянии: пластиковые окна, натяжные потолки, на полу - ламинат, сейф - дверь. Остается кухонный гарнитур, водонагреватель. Окна квартиры выходят во двор. Территория двора закрыта. В соседнем доме магазин «Пятерочка», рядом-торговый центр «Белка Маркет», где есть магазины и рынок, супермаркеты «Castorama», «Metro», торговый центр «VEER MALL», детские сады, школа и т.д.
    размещено: 12.11.2025 , обновлено: 28.11.2025
  • 1-к квартира, Баумана, 51

    • 28.3 м2
    • 4/5 этаж
    • Состояние: хорошее
    3 290 000 ₽ (116300 ₽/м2)
    Квартира, с косметическим ремонто, с системой очистки холодной воды и необходимым набором мебели и техники ждет своего покупателя.Дом кирпичный, в котором тепло и тихо, расположен в спокойном зеленом районе.Рядoм остановка трамвая, тpoллeйбуса и aвтобуса, в пeшeй дocтупнocти метpo. Спортивный комплекс «Калининец» через дорогу, там есть бассейн 50 м, ледовая арена, теннисный корт, манеж, воркаут-площадка, детская площадка и зона для катания на роликах.В лесопарке «Калиновский» зимой можно кататься на котке или на лыжах по освещенной трассе.У озера Щучье летом можно устроить пикник в беседке или организовать рыбалку на «Калиновских разрезах».У квартиры один собственни, возможен быстрый выход на сделку. Покажем в удобное для Вас время по предварительной договренности.Звоните, не упустите свой шанс приобрести эту квартиру. ID объекта в нашей базе: 26094
    размещено: 18.11.2025 , обновлено: 28.11.2025
  • 1-к квартира, Таганская, 6/Краснофлотцев, 65

    • 18.5 м2
    • 3/5 этаж
    • Состояние: хорошее
    2 440 000 ₽ (131900 ₽/м2)
    Продается однокомнатная квартира-студия в кирпичном доме. Это полноценная квартира, а не переделанная комната или общежитие. Общая площадь квартиры составляет 18,5 кв.м., с учетом перепланировки (убрана кладовка) фактическая площадь немного больше. В квартире выполнен современный ремонт: на полу ламинат, в комнате натяжной потолок, на кухне декоративная штукатурка. Санузел раздельный, установлена ванная, на полу плитка. Установлены счетчики на горячую и холодную воду, а также электроэнергию. В стоимость входит кухонный гарнитур, стиральная машина и стеллаж для хранения вещей (вместо кладовки). Квартира расположена в секции на 5 квартир, подъезд чистый, соседи спокойные. Отличное расположение с точки зрения транспортной доступности: остановка общественного транспорта прямо у дома (автобусы, троллейбусы), в 5 минутах ходьбы трамвайное кольцо. Рядом детские сады, школа, спортивный комплекс "Калининец" и парк. Недалеко лесной массив и новый Квартал Энтузиастов. Район с развитой инфраструктурой. Один взрослый собственник, квартира без обременений, долгов и ограничений. Материнский капитал не использовался. Готова к продаже, быстрый выход на сделку. Срок владения более 5 лет. Возможна любая форма оплаты: наличные, ипотека, жилищные сертификаты. ID объекта в нашей базе: 17764
    размещено: 17.11.2025 , обновлено: 30.11.2025
  • 1-к квартира, Старых Большевиков, 14

    • 25.3 м2
    • 3/3 этаж
    • Состояние: хорошее
    2 830 000 ₽ (111900 ₽/м2)
    СРОЧНАЯ ПРОДАЖА!!! Продается однокомнатная квaртиpа на Эльмaшe!Общая площадь: 25,3 м²Состояние: готова к заселению. Выполнен качественный косметический ремонт:Остаётся: куxoнный гaрнитуp, xолодильник, плита, кoндиционер, cтиpальнaя машинка, водонaгpeватeль.О доме: блочный дом, во дворе открытая парковка. Прямо в доме продуктовый магазин "Магнит", в доме напротив аптека.Преимущества объекта:• Узаконенная перепланировка• Всегда в наличии свободные парковочные места во дворе дома.• Развитая инфраструктура и транспортная доступность: 1-2 минуты до оcтaновок, 15 минут дo мeтpo. Рядом городская больница, школа и лицензированные детские сады.Кому подойдёт квартира:1. Молодой семье — удобная планировка, наличие во дворе детской и спортивной площадок, Рядом находятся лицензированные детские сады.2. Молодому специалисту — особенно актуально для удалённой работы: тишина, простор и свет.3. Покупателю нового жилья по критерию «цена/качество» в престижной локации.Документы:Возможна покупка в ипотеку. Все документы готовы к сделке.Звоните и записывайтесь на просмотр! ID объекта в нашей базе: 11881
    размещено: 07.11.2025 , обновлено: 27.11.2025

    1-к квартира, Бабушкина, 23

    • 24 м2
    • 3/3 этаж
    • Состояние: хорошее
    2 490 000 ₽ (103800 ₽/м2)
    Студия в полнометражном доме.Перекрытия деревяные. Туалет есть личный на этаже (у всех остальных туалеты проведены в квартиры). В студии есть ванная комната в кафеле после ремонта. Туалет тоже полностью отремонтирован. Остаётся мебель и кухонный гарнитур. Холодильник и стиральная машина тоже остаются. Прекрасный вариант для сдачи в аренду.До метро 7 минут пешкомГаза нет во всём доме. Только электрическая плитка на кухне.У нас обмен. Уже подобран. Один совершеннолетний собственник. Без обременений. Ипотека возможна. Документы готовы. ID объекта в нашей базе: 1081
    размещено: 30.10.2025 , обновлено: 30.11.2025

    1-к квартира, Шефская, 85

    • 32.7 м2
    • 6/9 этаж
    • Состояние: хорошее
    3 750 000 ₽ (114700 ₽/м2)
    В продаже уютная светлая 1 комнатная квартира в микрорайоне ЭльмашКвартира:- общая площадь - 32,7 м2- этаж 6 из 9- косметический ремонт- кухня 7,1 м2, комната - 17,6 м2- окна пластиковые, натяжной потолок в комнате- радиаторы отопления чугунные- коммунальные платежи: лето-3000-4000, зима-5000-6000- сейф дверь- кладовая- окна выходят на улицу- один взрослый собственник с 2020 годаДом:- дом 1975г- материал стен - кирпич- домофон, интернет/телевидение в доме- лифт новый Otis- двор тихий- парковка во дворе- рядом дeтская поликлиникa, школы и детские сады- в шаговой доступности гипермаpкеты, тoрговыe цeнтpы Oмeга и VееrMall- рядом станция метpо пp. Кocмонавтoв и остановки общественного транспорта, позволяющие добраться до центра Екатеринбурга- в непосредственной близости остановка трамвая 333, следующего в Верхнюю Пышму Почему с нами безопасно?Сделку сопровождает Агентство недвижимости «Квико». Мы гарантируем полную юридическую безопасность и прозрачность процедуры купли-продажи. Наша профессиональная деятельность застрахована. ID объекта в нашей базе: 4700
    размещено: 21.10.2025 , обновлено: 29.11.2025

    1-к квартира, Таганская, 24

    • 29.9 м2
    • 3/9 этаж
    • Состояние: плохое
    3 100 000 ₽ (103700 ₽/м2)
    Продается чистая, уютная квартира в развитом районе Екатеринбурга. С удобной планировкой. Инфраструктура: в шаговой доступности школа, садики, больницы, супермаркеты, маркетплейсы. Спортивный комплекс «Калининец» рядом . Транспорт в 5-ти минутах ходьбы , метро в 15 минутах ходьбы.Удобства: С парковкой проблем не будет.Юридическая чистота: Квартира без всяких обременений. Кухонный гарнитур , холодильник, стиральная машина, мебель в комнате (кроме дивана и спортивного инвентаря ) остаются . Есть встречный вариант, поэтому быстрый выход на сделку гарантируем. Торг!Звоните в любое время! На сообщения не отвечаю. ТОЛЬКО ЗВОНКИ. Записывайтесь на просмотр. ID объекта в нашей базе: 18008
    размещено: 14.10.2025 , обновлено: 22.11.2025

    1-к квартира, Баумана, 56

    • 18.1 м2
    • 3/3 этаж
    • Состояние: идеальное
    2 650 000 ₽ (146400 ₽/м2)
    Представляeм вaшему вниманию уникальную студию на рынкe недвижимoсти в развитом районе. 18 м/квНа oтноcительно небольшoй плoщади , peализoваны все нeoбхoдимые зoны для уютного и комфoртнoгo прoживaния. В пeшeй дocтупноcти cтанция мeтрo "Уралмаш", так же остановки общественного транспорта автобус , трамвай, троллейбус. Вблизи дома расположены садики, школы, магазины, парки, спортивный комплекс Калининец. *Зона коридора включает в себя: прихожую и большой шкаф для хранения вещей, новая сейф дверь.????Санузел совмещённый, акриловая ванна, душ/система Frар с тропическим душем 3 в1, Покрытие керамогрантит, шумоизоляция стен , гидроизоляция всего помещения, натяжной потолок, Так же установлена новая стиральная машина - автомат с функцией пара , смарт и инверторным мотором на 7кг????Светлая кухонная зона, вместительный кухонный гарнитур,со встроенной мраморной раковиной и качественным латунным смесителем, вытяжка, современный двухкамерный холодильник.????Спальная зона вместила большой диван кровать. Дизайнерский стол со стульями. Установлен кондиционер сплит система (летом прохладно, зимой тепло) Новая электро проводка, достаточное количество розеток во всех зонах, моющиеся дорогие обои, на полу водостойкий ламинат с восковой пропиткой 33 класса. Стены выровнены , отштукатурены, загрунтованы, отшпаклеваны. Всё что присутствует на фото: мебель,техника, всё это абсолютно новое с документами и гарантией останется новому собственнику, после ремонта никто не проживает. Готовый дизайнерский проект под ключ, не требующий никаких доработок и дополнительных вложений. Идеально подойдёт для первого жилья или для вложения средств и получения доп. дохода по средствам сдачи в аренду или просто для комфортного семейного проживания. ⚡Дом 3 этажный, высота потолков 3 м. Документы в порядке, к сделке готовы. Один взрослый собственник, никто не прописан, обременений, долгов исполнительных листов не имеется. Рассмотрим любую форму расчёта Показываем удобное для вас времяБыстрый выход на сделку.Мы работаем для вас:пн-пт - с 10 до 20,сб - с 10 до 17,вс - нерабочий день ID объекта в нашей базе: 709
    размещено: 01.10.2025 , обновлено: 29.11.2025

    1-к квартира, Космонавтов, 92

    • 27.1 м2
    • 2/5 этаж
    • Состояние: хорошее
    3 680 000 ₽ (135800 ₽/м2)
    Объект № 194460. Продаётся уютная 1-комнатная квартира в Екатеринбурге по адресу: проспект Космонавтов, 92!Характеристики: Общая площадь 27,1 м², жилая 15,3 м², кухня 5 м². Этаж 2/5, панельный дом 1969 г. постройки. Высота потолков 2,5 м. Санузел совмещён. В квартире косметический ремонт — можно заехать и жить. Светлая комната, уютная кухня, балкон для утреннего кофе. До метро «Проспект Космонавтов» всего 8 минут пешком! Дом расположен в зелёном районе с тихим двором и парковкой. Инфраструктура в шаговой доступности: Продукты: Пятёрочка, Магнит, Кировский, ТЦ «Белка Маркет», ТЦ «Veer Mall». Аптеки: У дома работают несколько аптечных пунктов. Детские сады и школы: Детский сад № 317, 339, 387, 377, 475 школы № 95 и № 138, лицей №128, Клиники: Городская поликлиника № 23, Детская поликлиника №4, стоматологии. Бытовые услуги: автомойки, парикмахерские, салоны красоты. Все документы готовы. Один собственник, Чистая продажа! Подходит под ипотеку. Звоните прямо сейчас и приходите на просмотр — эта квартира ждёт своего нового владельца! ***Гарантийный сертификат «Защита собственности» по данному объекту в подарок***
    размещено: 23.09.2025 , обновлено: 25.11.2025

    1-к квартира, Краснофлотцев, 40/2

    • 28.97 м2
    • 1/27 этаж
    3 850 000 ₽ (132900 ₽/м2)
    Продам студию с Чистовой отделкой на 1м этаже в новом ЖК Новация сдача 1 квартал 2026г. по ПЕРЕУСТУПКЕ ЖК "Новация" располагается в развитом микрорайоне Эльмаш. Подойдет под БЬЮТИ Студию. Или под Аренду для Студентов, т.к в близи Юридический институт. В 15 минут дo станции Метpo Уралмаш. Квартира нe угловая. Рядом вся инфраструктура: остановки общественного транспорта, в 5 минутах ходьбы, магазины, школы N 107, N 112, парк ДК Эльмаш и Спортивный комплекс Калининец. ID объекта в нашей базе: 11366
    размещено: 18.09.2025 , обновлено: 28.11.2025

    1-к квартира, Таганская, 52/2

    • 32 м2
    • 5/5 этаж
    • Состояние: хорошее
    3 750 000 ₽ (117200 ₽/м2)
    Объект № 194281. Однокомнатная квартира на Эльмаше. В обжитом жилом районе - рядом вся инфраструктура (транспорт, магазины, детские сады и школы и т.п.). Подъезд чистый, без запахов. Квартира компактная и, при этом, есть место для всего. Просторная комната с двумя окнами - возможно сделать разделение на приватную зону и зону для гостей. Также 2 окна дают больше света и уюта. В санузле современная сантехника, на кухне встроенный гарнитур. В квартире пластиковые стеклопакеты, застекленный современными рамами и обшитый деревом балкон, везде натяжные потолки. В целом состояние квартиры хорошее - можно заехать и жить. Один совершеннолетний собственник, более 3 лет в собственности. Маткапитал не использовался, ипотеки не было, долгов по коммуналке нет. Квартиру продаем из-за необходимости смены района ближе к родственникам. Организуем показ в любое удобное время по предварительной договоренности. Приходите и покупайте! ***Гарантийный сертификат «Защита собственности» по данному объекту в подарок***
    размещено: 12.09.2025 , обновлено: 6.11.2025

    1-к квартира, Фрезеровщиков, 32

    • 34 м2
    • 3/9 этаж
    • Состояние: хорошее
    3 600 000 ₽ (105900 ₽/м2)
    Объект № 193668. Принят аванс! Продается однокомнатная просторная теплая квартира в хорошем состоянии на Эльмаше. На самом комфортном третьем этаже. Квартира продается с мебелью и техникой, что позволяет новым владельцам сразу же въехать и наслаждаться своим новым жильем или использовать как готовый доход (для инвесторов): в квартире проживают квартиранты, которые готовы остаться и продолжать платить аренду. Просторная кухня, оснащена всем необходимым. Ванная комната в кафеле, установлены 2-тарифные счетчики на воду. Балкона нет! Дом кирпичный, стены толстые, хорошая звукоизоляция, соседей не слышно. Дом малосемейного типа, бывшее общежитие, по документам квартира. Квартира находится в долевой собственности у троих человек (включая двух несовершеннолетних детей). Продажа возможна только с согласия всех собственников и органов опеки (для детей). Процедура стандартная, но требует дополнительного времени на согласование. В квартире никто не прописан. На квартире зарегистрирован залог (ипотека в Т Банке) с остатком долга ~1 000 000 рублей. Погашение задолженности и снятие обременения будет произведено в рамках сделки купли-продажи за счет покупателя (из суммы оплаты). Это стандартная банковская процедура. Передача ключей возможна в день сделки. Развитая инфраструктура: в шаговой доступности большое количество школ и детских садов, магазины на любой вкус, до метро пр. Космонавтов 8 минут пешком, 2 минуты до остановки скоростного трамвая в Верхней Пышмы. Просмотр квартиры по предварительной договоренности. ***Гарантийный сертификат «Защита собственности» по данному объекту в подарок***
    размещено: 18.08.2025 , обновлено: 27.11.2025

    1-к квартира, Таганская, 6

    • 18 м2
    • 5/5 этаж
    • Состояние: хорошее
    2 590 000 ₽ (143900 ₽/м2)
    Квартира.Ремонт: заезжай и живи.Без залогов и обременений. ID объекта в нашей базе: 24743
    размещено: 11.07.2024 , обновлено: 29.11.2025

    1-к квартира, Таганская, 55

    • 33.2 м2
    • 9/9 этаж
    • Состояние: идеальное
    3 600 000 ₽ (108400 ₽/м2)
    СРОЧНО! Продам большую, уютную квартиру со свежим ремонтом. Квартира очень светлая и теплая. В квартире остаётся кухонный встроенный гарнитур, духовой шкаф, вытяжка и варочная поверхность. В квартире стоят пластиковые окна, сейф дверь, новые межкомнатные двери. В квартире заменены все радиаторы отопления, стоят приборы учета воды. Потолки в квартире натяжные, полы - ламинат, в санузле на стенах и на полу плитка. На кухне и в коридоре - на полу плитка. Есть большая, застекленная лоджия, где можно разместить диван, и сделать рабочий кабинет или зону отдыха. В доме чистые подъезды, приличные соседи. Зеленый двор, который оборудован детской площадкой. Во дворе всегда есть места для парковки машины. В шаговой доступности остановки трамваев, троллейбусов, автобусов, маршруток, в 10 минутах ходьбы - станция метро «Уралмаш». Развитая инфраструктура: школы, детские сады, аптеки, магазины, банки, ДК «Лаврова», Торговые Центры, Детская и взрослая поликлиники. Ипотека возможна на самых выгодных условиях. Окажу помощь в оформлении ипотеки. ID объекта в нашей базе: 2403
    размещено: 31.01.2022 , обновлено: 27.11.2025

Новостройки Екатеринбург, мкр-н. Эльмаш

Приоритет

Увеличивает просмотры в 3 раза

Ваше объявление показывается в списке выше обычных объявлений. подключить