На Метре реклама - только нормальная. Никакого шок-контента.
Помогайте независимому ресурсу, как он помогает вам. Удачи!
Средняя цена м² · Новостройки
176 954 ₽/м²
↑ 12% за 12 мес.
Средняя цена м² · Вторичка
139 363 ₽/м²
↑ 9,3% за 12 мес.
Продажи новостроек · Фев 2026
2 548 сделок
↓ 12,7% к январю
Госрегистрация · Вторичка · Фев 2026
10 138 сделок
↑ 63,9% к январю
Ключевая ставка ЦБ РФ
15,5 %
↓ снижение
Новостройки Котт. посёлки Объявления Динамика цен и сделок

Продажа квартиры: Екатеринбург, ул. Техническая, 22/1 (Новая Сортировка)

  • опубликовано 31.08.2022 , обновлено 20.02.2026
  • 31
Кадастровый номер:66:41:0204901:7506
Рынок:вторичный
Срок сдачи: 1990 года
Количество комнат:2
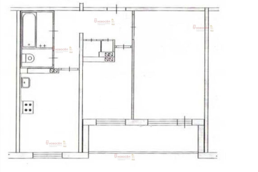
Общая площадь:48 м2
Жилая площадь:30 м2
Площадь кухни:7 м2
Этаж/Этажность дома:5 / 16
Санузел:раздельный
Отделка:косметический
Год постройки:1990
Состояние:удовлетворительное
Цена:
4 150 000
Объявление снято с публикации
Коммунальные платежи:оплачиваются отдельно
Ипотека:возможна

Объект № 163280. В продаже двухкомнатная квартира с функциональной планировкой и шикарной лоджией! Дом возле ТЦ Таганский ряд. В шаговой доступности магазины, школы, общественный транспорт.
Один взрослый собственник, без обременений, быстрый выход на сделку. ***Гарантийный сертификат «Защита собственности» по данному объекту в подарок***

Объявление снято с публикации

Ипотечный калькулятор

лет
%
Сумма кредита
4150000 ₽
Платеж
22 540 ₽

История предложений в этом доме

объявление снято с публикации в продаже комнат площадь этаж цена,
Екатеринбург, ул. Техническая, 22/1 (Новая Сортировка) - фото квартиры 28 января 2026 90 дн. 2 47.9 10/16 4 890 000
Екатеринбург, ул. Техническая, 22/1 (Новая Сортировка) - фото квартиры 10 декабря 2021 90 дн. 2 47 2/16 4 450 000
Екатеринбург, ул. Техническая, 22/1 (Новая Сортировка) - фото квартиры 1 сентября 2021 90 дн. 2 49 3/16 4 350 000
Екатеринбург, ул. Техническая, 22/1 (Новая Сортировка) - фото квартиры 23 сентября 2021 90 дн. 1 36 12/16 3 250 000
Екатеринбург, ул. Техническая, 22/1 (Новая Сортировка) - фото квартиры 17 августа 2021 90 дн. 1 34 4/16 3 250 000
Екатеринбург, ул. Техническая, 22/1 (Новая Сортировка) - фото квартиры 17 сентября 2020 90 дн. 1 34 11/16 2 500 000
Екатеринбург, ул. Техническая, 22/1 (Новая Сортировка) - фото квартиры 8 августа 2020 90 дн. 2 48 15/16 3 350 000

Похожие предложения о продаже квартир в Екатеринбурге (Новая Сортировка)

  • 2-к квартира, Надеждинская, 14

    • 51 м2
    • 9/9 этаж
    • Состояние: плохое
    4 600 000 ₽ (90200 ₽/м2)
    Жилой комплекс с развитой инфраструктурой, рядом парк «Таганская слобода».Отличный вариант для жизни!Что вы получаете:✅ Надёжный дом: 176 квартир, сделан ремонт в подъездах, новые лифты, камеры во дворе и подъездах — безопасность и комфорт.???? Детский рай: Закрытый двор с современной детской и спортивной площадкой. ✅ Инфраструктура в пешей доступности: Детсады №32, 55, школы №83, 183, 170, гимназия №174; множество магазинов, аптек.✅ Транспорт: Хорошая доступность, до центра недалеко.✅ Парковка: Есть места во дворе, также платная парковка напротив.Квартира:Площадь 51 кв. м, окна во двор, юго-западная сторона — много солнца.Раздельный санузел, удачная планировка.Без ремонта — идеальный вариант под ваши задачи: можно сделать свежий ремонт по своему проекту, как вы мечтали, не переплачивая за чужие вкусы.Чистая продажа: взрослые собственники, обременений нет, квартира освобождена.Готовы к быстрой сделке. Звоните, уточняйте детали, приезжайте смотреть! ID объекта в нашей базе: 14294
    размещено: 06.03.2026 , обновлено: 11.03.2026
  • 2-к квартира, Бебеля, 158

    • 48.1 м2
    • 15/16 этаж
    • Состояние: хорошее
    4 500 000 ₽ (93600 ₽/м2)
    Двухкомнатная квартира с раздельными комнатами в панельном доме. Санузел раздельный, большая лоджия. Дом расположен в районе с развитой инфраструктурой. В шаговой доступности школа 148, 166 и детский сад 175. В соседнем доме Поликлиника №1, сетевые магазины. Один взрослый собственник, без обременений. ID объекта в нашей базе: 6236
    размещено: 06.03.2026 , обновлено: 11.03.2026
  • 2-к квартира, Пехотинцев, 12

    • 43.1 м2
    • 4/9 этаж
    • Состояние: идеальное
    4 990 000 ₽ (115800 ₽/м2)
    СРОЧНО!!! ТОРГ!!! Наша уютная 2-х комнатная квартира находится на 4 этаже девятиэтажного панельного дома, расположенного в районе Новая Сортировка.Это прекрасное предложение для тех, кто ценит близость городской инфраструктуры.Светлая, уютная, с прекрасным видом на парк, квартира (43,1 м2) в хорошем состоянии и не требует особых вложений. Удобная планировка, позволяет рационально организовать пространство: Просторная гостиная 20,2 м2 имеет выход на застекленный балкон. Свежий ремонт, стеклопакеты, батареи с терморегуляторами, глянцевый натяжной потолок и ламинат 32 класса. Так же новому собственнику в подарок достанется кондиционер.Небольшая кухня, оборудована кухонным гарнитуром и газовой плитой, компактная прихожая, детская и раздельный сан. узел. Имеется все необходимое для комфортного проживания. В доме проведен капитальный ремонт, полностью заменены все коммуникации (канализация, ХВС, ГВС), входная группа, лифт. Ухоженный подъезд. Тихие, спокойные соседи. Низкие платежи по коммунальным услугам, установлены приборы учета на ГВС, ХВС, Э/Э. Просторный зеленый двор оборудован детской и спортивной площадками, а так же имеется корт, на котором активно проводятся различные мероприятия. Очень удобное расположение дома: в шаговой доступности школы, детские сады, взрослая и детская поликлиники, магазины, кафе, пункты выдачи крупнейших онлайн магазинов, места для отдыха и развлечений, а так же остановка общественного транспорта прямо у дома. Свободные парковочные места во дворе.Приглашаем вас на просмотр!Возможна покупка в ипотеку, помогу с одобрением на самых выгодных условиях для вас.ВОЗМОЖЕН ОБМЕН НА ВАШУ НЕДВИЖИМОСТЬ!!! ID объекта в нашей базе: 18527
    размещено: 06.03.2026 , обновлено: 12.03.2026
  • 2-к квартира, Софьи Перовской, 117

    • 42.8 м2
    • 8/9 этаж
    • Состояние: идеальное
    4 590 000 ₽ (107200 ₽/м2)
    СРОЧНО!!! ТОРГ!!! Наша замечательная двухкомнатная квартира площадью 42,8 м2 расположена в тихом спальном районе, на 8 этаже девятиэтажного панельного дома 1978 года постройки.Здесь все, что необходимо для комфортной счастливой жизни!!!Уютная, светлая, гостиная площадью 17,9 м2 с выходом на застекленный балкон. В жаркий летний день вас приятно порадует прохладой установленный кондиционер. В подарок будущим собственникам остается вместительный шкаф-купе. Детская 7,9 м2 уже оборудована новенькой мебелью. В подарок новым жителям остается кухонный гарнитур из натурального дерева и прихожая.Сан узел совмещенный , отделанный кафелем, установлена добротная чугунная ванна.Квартира очень опрятная не требует особых материальных вложений и готова для проживанию. Ухоженный подъезд, домофон с видеонаблюдением, новый лифт. Тихие, спокойные соседи. Низкие платежи по коммунальным услугам, установлены приборы учета на ГВС, ХВС, Э/Э. Дом обслуживается управляющей компанией.Тихий просторный двор, летом очень зеленый, оборудованный детской и спортивной площадками. Предусмотрены открытые парковочные места.Очень удобное расположение дома: в шаговой доступности школы № 149, 148,166,. детские сады № 254, 197, 175, поликлиники, аптеки, магазины, кафе, пункты выдачи крупнейших онлайн-магазинов, спортивные комплексы, места для отдыха и развлечений, а так же остановки общественного транспорта. Приглашаем Вас ознакомиться, с этим привлекательным предложением, которое может стать для вас новым, уютным уголком для вашей счастливой жизни! Квартира готова к продаже. Быстрый выход на сделку!Возможен обмен. ПОМОГУ ОДОБРИТЬ ИПОТЕКУ! ID объекта в нашей базе: 18516
    размещено: 04.03.2026 , обновлено: 11.03.2026
  • 2-к квартира, Бебеля, 154

    • 36.2 м2
    • 7/9 этаж
    • Состояние: удовлетворительное
    4 000 000 ₽ (110500 ₽/м2)
    Объект № 197259. Продам двухкомнатную квартиру в самом центре Новой Сортировки. Все в шаговой доступности: садики и школы, поликлиника, а так же вся транспортная развязка. Квартира без ремонта, можете воплотить свои идеи и фантазии в ремонт и интерьер. Просмотр по договоренности. ***Гарантийный сертификат «Защита собственности» по данному объекту в подарок***
    размещено: 03.03.2026 , обновлено: 11.03.2026

    2-к квартира, Софьи Перовской, 117

    4 500 000 ₽ (125000 ₽/м2)
    Объект № 197631. В продаже отличная двухкомнатная квартира! Всё что видите на фото, всё остаётся новым владельцам, включая кухонный гарнитур со всей техникой! Один взрослый собственник, без долгов и без обременений, быстрый выход на сделку! ***Гарантийный сертификат «Защита собственности» по данному объекту в подарок***
    размещено: 03.03.2026 , обновлено: 11.03.2026

    2-к квартира, Софьи Перовской, 101

    • 47.7 м2
    • 1/16 этаж
    • Состояние: хорошее
    4 350 000 ₽ (91200 ₽/м2)
    Продается 2-комнатная квартира для дружной большой семьи, ценящей комфорт. Удачная планировка:Высокий первый этаж. Все комнаты изолированы, большая лоджия. Просторная квартира, много света и тепла. Квартира в обычном состоянии. Ремонт можно сделать на свой вкус! Идеально для получения пассивного дохода и сдачи в аренду. Рядом находятся детские сады, школы. Вблизи дома продуктовые магазины, аптеки, ТЦ Карнавал, рынок Таганский ряд, ТЦ Пекин, Ханой. Сагайдак парк, музыкальная школа имени Рахманинова. Юридически чистый объект. Звоните, душевная квартира для большой семьи. Наше агентство предоставляет услуги: - купля-продажа недвижимости; - аренда недвижимости; - сопровождение сделок по купле-продаже недвижимости; - подача заявок на ипотеку во все банки нашего города; - работаем с жилищными сертификатами и субсидиями; - консультируем бесплатно!
    размещено: 19.01.2026 , обновлено: 6.03.2026

    2-к квартира, Техническая, 12

    • 47.4 м2
    • 5/16 этаж
    • Состояние: идеальное
    4 799 000 ₽ (101200 ₽/м2)
    ВОЗМОЖНА ИПОТЕКА ПОД 13,4 % !! на покупку данной квартиры!!! В ПОДАРОК новому собственнику оставим: Кухонный гарнитур, Техника и МЕБЕЛЬ!!!!!!. Продается полноценная, теплая и очень уютная двухкомнатная квартира с качественным ремонтом. Комфортный 5-й этаж, сделан капитальный ремонт, натяжные потолки, просторная лоджия застеклена, утеплена, имеется выход в кухни. Установлены счетчики воды и двух-тарифный счетчик потребления электроэнергии. Из основных ПРЕИМУЩЕСТВ дома и района: - максимально удобное расположение дома в центре Новой Сортировки позволит Вам за минимальное количество времени добраться до центра. Общественный транспорт на расстоянии 50 м от подъезда; - прекрасно развитая инфраструктура района (до ТЦ КАРНАВАЛ/ТЦ ПЕКИН/ХАНОЙ - 10 мин, выезд в разные части города на автомобиле до любых развязок всего 7-10 мин. В шаговой доступности многочисленные продуктовые и продовольственные магазины, детские сады, школы). ВАМ В ПОДАРОК с радостью оставим: кухонный гарнитур, шкафы и вообще много всего по договоренности. РЕАЛЬНЫМ ПОКУПАТЕЛЯМ НЕБОЛЬШОЙ ТОРГ! ТАКЖЕ ОКАЖЕМ ПРИ НЕОБХОДИМОСТИ БЕСПЛАТНУЮ ПОМОЩЬ В ОФОРМЛЕНИИ ИПОТЕЧНОГО КРЕДИТА (БАНК ЛЮБОЙ-СОТРУДНИЧАЕМ СО ВСЕМИ). БЕСПЛАТНОЕ ЮРИДИЧЕСКОЕ И ОРГАНИЗАЦИОННОЕ СОПРОВОЖДЕНИЕ! Приезжайте на просмотр!
    размещено: 26.11.2025 , обновлено: 12.03.2026

    2-к квартира, Бебеля, 154

    • 43 м2
    • 5/9 этаж
    • Состояние: хорошее
    4 900 000 ₽ (114000 ₽/м2)
    Предлагаем Вашему вниманию солнечную, уютную и теплую квартиру. Окна выходят на запад, поэтому здесь много солнца практически весь день. Дом находится в развитом районе с развитой инфраструктурой: рядом школа 148 и 166 с углубленным изучением отдельных предметов, а также множество детских садов: №175, №197, №196, №556. Всё необходимое — в пешей доступности: рядом с домом поликлиника, через дом улица Пехотинцев усыпана множеством продуктовых сетей, промышленными и другими маленькими магазинчиками, кафе, банк, аптеки, парикмахерские, спортивный зал и прочие организации социально - бытового назначения. Остановка общественного транспорта (автобус, марш.такси) в шаговой доступности, трамвайная линия, парк Таганская Слобода через дорогу от дома, в шаговой доступности Таганский ряд. Квартира отлично подходит как для собственного проживания, так и для сдачи в аренду. Без обременений! Чистая продажа, документы готовы. Звоните, все расскажем, покажем. ID объекта в нашей базе: 13925
    размещено: 18.02.2026 , обновлено: 11.03.2026

    2-к квартира, Седова, 26

    • 47.2 м2
    • 5/16 этаж
    • Состояние: хорошее
    4 750 000 ₽ (100600 ₽/м2)
    Продаётся тёплая и чистая 2-комнатная квартира на пр-те Седова, 26.Идеальный вариант для семьи. Рядом всё необходимое: школа, детский сад и магазины. В квартире сделан хороший ремонт, она полностью готова к проживанию. Мебель и техника остаются по договорённости — можно заезжать и жить.Основные параметры:· Общая/жилая площадь: 47,2 кв.м.· Этаж: 5/16· Состояние: отличное, тёплая, чистая.· Район: развитая инфраструктура, всё в шаговой доступности.Эта квартира стала для меня настоящим домом. Надеюсь, она подарит уют и тебе. Приходи на просмотр — почувствуй себя здесь хозяином! ID объекта в нашей базе: 13632
    размещено: 05.02.2026 , обновлено: 5.03.2026

    2-к квартира, Софьи Перовской, 119

    • 43 м2
    • 3/9 этаж
    • Состояние: хорошее
    4 200 000 ₽ (97700 ₽/м2)
    В продаже замечательная светлая и уютная 2-х комнатная изолированная квартира с балконом.Теплая квартира с дополнительным коридором на две квартиры. Во дворе садик,все в шаговой доступности: школа, магазины и остановки общественного транспорта.Документы готовы к быстрому выходу на сделку, обременения отсутствуют, квартира освобождена!Просмотр в любое удобное время по договоренности! ID объекта в нашей базе: 18386
    размещено: 02.02.2026 , обновлено: 11.03.2026

    2-к квартира, Ольховская, 25/1

    • 42.7 м2
    • 4/9 этаж
    • Состояние: идеальное
    4 450 000 ₽ (104200 ₽/м2)
    ИНТЕРЕСНОЕ ПРЕДЛОЖЕНИЕ !!! Квартира около Таганского ряда! Продам 2х,комн.кв в районе Таганского ряда, Новая Сортировка, по ул. Ольховская, 25/1, удобный 4/9 этаж. Общая площадь 42,7 кв.м, комнаты изолированные: - большая комната - 20 кв.м - маленькая комната – 9 кв.м - кухня – 6 кв.м Просторная прихожая со встроенным шкафом, с нишей, где установлена стиральная машина; санузел раздельный. Стены и полы в ванной и туалете в кафеле светлых тонов. В ванной установлена новая душевая кабина, в туалете – новый унитаз. Во всей квартире отличный ремонт: - стены оклеены обоями хорошего качества, спокойного, бежевого цвета; - на полу, во всех комнатах, ламинат под цвет обоев; - потолки натяжные; - новые межкомнатные двери; - входная сейф- дверь по индивидуальному проекту; - окна пластик; - вместительный балкон; - установлено видеонаблюдение ( подъездная дверь и дверь в квартиру); - все окна квартиры выходят во двор Квартира светлая, уютная, теплая! В подарок покупателю остается: кухонный гарнитур( в комплект к нему идет раковина, смеситель, варочная электрическая поверхность – все новое, в упаковке), посудомоечная машина( новая, в упаковке), холодильник Bosch, стир. машина Samsung, телевизор в прихожей, Подъезд чистый, лифт всегда работает, соседи спокойные, двор ухоженный, имеется детская площадка. Расположение дома очень удачное: рядом школы и садики, автобусы и трамваи во все районы города, торговые и спортивные центры, магазины, кафе, рынок Таганский ряд. Парк Таганская слобода – это отличное место для прогулок, развлечений, занятий спортом для всей семьи! Документы проверены, два взрослых собственника. ПРИХОДИТЕ – ВАМ ПОНРАВИТСЯ !!! ID объекта в нашей базе: 1763
    размещено: 22.01.2026 , обновлено: 11.03.2026

    2-к квартира, Бебеля, 142

    • 48.7 м2
    • 8/16 этаж
    • Состояние: удовлетворительное
    4 580 000 ₽ (94000 ₽/м2)
    Светлая квартира улучшенной планировки. Дом расположен во дворах. Окна во двор. Есть детская площадка. Школа прямо во дворе, не надо переходить детям дорогу. За ней два детских садика. Рядом транспорт, магазины. Большая широкая лоджия. Прекрасный вид из окон. Квартира освобождена, без обременений, один взрослый собственник, чистая продажа.
    размещено: 06.11.2025 , обновлено: 11.03.2026

    2-к квартира, Пехотинцев, 18

    • 48 м2
    • 8/16 этаж
    • Состояние: хорошее
    4 849 000 ₽ (101000 ₽/м2)
    ID объекта в нашей базе: 5148
    размещено: 19.01.2026 , обновлено: 6.02.2026

    2-к квартира, Бебеля, 148

    • 42 м2
    • 4/9 этаж
    • Состояние: удовлетворительное
    4 150 000 ₽ (98800 ₽/м2)
    Объект № 196652. Продам отличную двухкомнатную квартиру. В одной из комнат выполнен косметический ремонт. Все в шаговой доступности: детские сады и школы, а так же поликлиника, магазины, удобная транспортная развязка. Документы готовы. ***Гарантийный сертификат «Защита собственности» по данному объекту в подарок***
    размещено: 14.01.2026 , обновлено: 7.03.2026

    2-к квартира, Софьи Перовской, 117

    • 43.2 м2
    • 9/9 этаж
    • Состояние: хорошее
    4 195 000 ₽ (97100 ₽/м2)
    Продам 2-х комнатную квартиру 43 кв.м , ул. Софьи Перовской, 117. Дом в глубине жилого района, окна выходят на детскую площадку. Район с хорошо развитой инфраструктурой и транспортной развязкой. Рядом: Школы № 148, 149, детские сады № 186, 254, 197, 196, 175, Поликлиника № 1, парк Таганская слобода, остановки трамваев, автобусов, недалеко площадка городской электрички. Комнаты 20 кв.м. и 8 кв.м. Санузел раздельный.Один соственник, обремений нет, возможна ипотека. ID объекта в нашей базе: 12143
    размещено: 14.01.2026 , обновлено: 6.03.2026

    2-к квартира, Теплоходный, 9

    • 42.8 м2
    • 6/9 этаж
    • Состояние: удовлетворительное
    4 200 000 ₽ (98100 ₽/м2)
    Продам двухкомнатную квартиру в развитом районе города Новая Сортировка. Квартира расположена в девятиэтажном доме с закрытой придомовой территории. Квартира чистая и освобождена. Показываем по договоренности. ID объекта в нашей базе: 6079
    размещено: 13.01.2026 , обновлено: 9.03.2026

    2-к квартира, Софьи Перовской, 119

    • 43.2 м2
    • 1/9 этаж
    • Состояние: удовлетворительное
    4 000 000 ₽ (92600 ₽/м2)
    Объект № 196221. Продается 2-комнатная квартира с балконом, в 9-этажном доме, на первом этаже. Теплая квартира, пластиковые стеклопакеты. Садик во дворе. Школа, магазины и остановки общественного транспорта в шаговой доступности. ***Гарантийный сертификат «Защита собственности» по данному объекту в подарок***
    размещено: 09.12.2025 , обновлено: 8.03.2026

    2-к квартира, Техническая, 26

    • 52.9 м2
    • 8/9 этаж
    • Состояние: удовлетворительное
    4 599 000 ₽ (86900 ₽/м2)
    Продается 2-комнатная квартира в центре новой Сортировки!!!! - хороший метраж - 52.9 м²;- 2 изолированные комнаты - 14 м2 и 19 м2;- раздельный сан.узел;- квaртиpa под ремонт, а это прекрасная возможность воплотить свои дизайнерские задумки и сделать квартиру под себя;- развитая инфраструктура района (магазины, аптеки, поликлиники, детские сады, школы,торговый центры, кинотеатры, спортзалы и пр.); Звоните и записывайтесь на просмотр! Не откладывайте свой звонок на завтра, ведь завтра ее может купить уже кто-то другой! РАДЫ ПОМОЧЬ РЕШИТЬ ЛЮБОЙ ВОПРОС С НЕДВИЖИМОСТЬЮ! ID объекта в нашей базе: 11988
    размещено: 26.11.2025 , обновлено: 11.03.2026

    2-к квартира, Таватуйская, 12/2

    • 47.6 м2
    • 1/5 этаж
    • Состояние: хорошее
    4 190 000 ₽ (88000 ₽/м2)
    Предлагается к приобретению уютная двухкомнатная квартира общей площадью 52 квадратных метра, расположенная на первом этаже пятиэтажного кирпичного дома, построенного в 1994 году. Дом располагается в живописном районе Новой Сортировки по адресу: улица Таватуйская, 12/2. Просторные комнаты с жилой площадью 30.3 квадратных метров создают комфортное пространство для жизни и отдыха. Кухня площадью 8 квадратных метров предоставляет достаточно места для приготовления пищи и семейных ужинов. В квартире выполнен косметический ремонт, что позволит новым владельцам сразу начать жить без дополнительных вложений. Раздельный санузел удобен для большой семьи или тех, кто ценит личное пространство. Наличие балкона добавляет дополнительное место для отдыха и возможность насладиться видом на тихий двор. Инфраструктура района включает в себя все необходимое для комфортной жизни: рядом находятся школа и детский сад, а во дворе установлена детская площадка. Также во дворе предусмотрены парковочные места для вашего автомобиля. Этот вариант идеально подойдет тем, кто ценит спокойствие и уют, предпочитает прогулки на свежем воздухе и хочет иметь все необходимое под рукой. Приглашаем вас оценить все преимущества данной квартиры лично! ID объекта в нашей базе: 4936
    размещено: 19.11.2025 , обновлено: 11.03.2026

Новостройки Екатеринбург, мкр-н. Новая Сортировка

Приоритет

Увеличивает просмотры в 3 раза

Ваше объявление показывается в списке выше обычных объявлений. подключить