На Метре реклама - только нормальная. Никакого шок-контента.
Помогайте независимому ресурсу, как он помогает вам. Удачи!
Новостройки Котт. посёлки Объявления Динамика цен и сделок

Продажа квартиры: Екатеринбург, ул. Техническая, 22/1 (Новая Сортировка)

  • опубликовано 8.09.2025 , обновлено 16.11.2025
  • 12
  •  
Рынок:вторичный
Срок сдачи: 1990 года
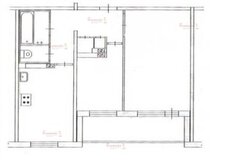
Количество комнат:2
Общая площадь:47.9 м2
Жилая площадь:28.9 м2
Площадь кухни:7.4 м2
Этаж/Этажность дома:10 / 16
Санузел:раздельный
Отделка:косметический
Год постройки:1990
Мебель:есть мебель
Балкон/лоджия:лоджия
Состояние:хорошее
Цена:
4 900 000
Коммунальные платежи:оплачиваются отдельно
Торг:торг
Ипотека:возможна

Замечательная, с большими изолированными комнатами, с раздельным санузлом и огромной(1.6 *6 метров) лоджией, с шикарным видом на центральную часть города квартира- ждет Вас, своего нового хозяина! Возможна покупка в ипотеку, полная стоимость в договоре, без опек, материнских сертификатов и невыплаченных задолженностей по ипотеке- все готово к покупке и заселению!!! Приглашаю на просмотр, звоните, пишите, отвечу на любые вопросы!
ID объекта в нашей базе: 4810

Ипотечный калькулятор

лет
%
Сумма кредита
4900000 ₽
Платеж
22 540 ₽

История предложений в этом доме

объявление снято с публикации в продаже комнат площадь этаж цена,
Екатеринбург, ул. Техническая, 22/1 (Новая Сортировка) - фото квартиры 28 октября 2022 90 дн. 2 48 5/16 4 150 000
Екатеринбург, ул. Техническая, 22/1 (Новая Сортировка) - фото квартиры 10 декабря 2021 90 дн. 2 47 2/16 4 450 000
Екатеринбург, ул. Техническая, 22/1 (Новая Сортировка) - фото квартиры 1 сентября 2021 90 дн. 2 49 3/16 4 350 000
Екатеринбург, ул. Техническая, 22/1 (Новая Сортировка) - фото квартиры 23 сентября 2021 90 дн. 1 36 12/16 3 250 000
Екатеринбург, ул. Техническая, 22/1 (Новая Сортировка) - фото квартиры 17 августа 2021 90 дн. 1 34 4/16 3 250 000
Екатеринбург, ул. Техническая, 22/1 (Новая Сортировка) - фото квартиры 17 сентября 2020 90 дн. 1 34 11/16 2 500 000
Екатеринбург, ул. Техническая, 22/1 (Новая Сортировка) - фото квартиры 8 августа 2020 90 дн. 2 48 15/16 3 350 000

Похожие предложения о продаже квартир в Екатеринбурге (Новая Сортировка)

  • 2-к квартира, Ольховская, 25/1

    • 42.9 м2
    • 6/9 этаж
    • Состояние: идеальное
    4 400 000 ₽ (102600 ₽/м2)
    Предлагаем к продаже уютную, светлую 2-х комнатную квартира с изолированными комнатами в спальном районе города. В квартире сделан качественный ремонт: ламинат, стеклопакеты, заменены батареи отопления, заменена электропроводка, установлены учета ГВС, ХВС. Удачное расположение дома, детский сад, школа, торговый центр, в шаговой доступности остановка общественного транспорта и станция электрички "ВИЗ". Обременений нет, документы готовы к сделке. показ в удобное для вас время по предварительному звонку. ID объекта в нашей базе: 25774
    размещено: 08.12.2025 , обновлено: 5.12.2025
  • 2-к квартира, Ольховская, 25 корп 1

    • 42.8 м2
    • 3/9 этаж
    • Состояние: хорошее
    4 000 000 ₽ (93500 ₽/м2)
    Двухкомнатная квартира с изолированными комнатами в спальном районе города. Закрытая территория двора с детской и спортивной площадкой. Район с развитой инфраструктурой. Удачное расположение дома, детский сад, школа, магазины. В шаговой доступности остановка общественного транспорта, 10 до станции электрички "ВИЗ". Квартира распложена на комфортном 3 этаже, чистый подъезд, доброжелательные соседи. Установлены стеклопакеты, счетчики на ГВС, ХВС. Один собственник, обременений нет, документы готовы к продаже. Просмотр в удобное для Вас время по предварительному звонку. Реальному покупателю ТОРГ. ID объекта в нашей базе: 25773
    размещено: 08.12.2025 , обновлено: 4.12.2025
  • 2-к квартира, Софьи Перовской, 119

    • 53 м2
    • 2/9 этаж
    • Состояние: хорошее
    4 700 000 ₽ (88700 ₽/м2)
    Уютная квартира в спальном районе города. Комнаты изолированные на разные стороны, не стандартной планировки. Удачное расположение дома, детский сад, школа, супермаркет,в шаговой доступности остановка общественного транспорта. Документы готовы. Один собственник, обременений нет. ID объекта в нашей базе: 25518
    размещено: 08.12.2025 , обновлено: 8.12.2025
  • 2-к квартира, Техническая, 12

    • 47.4 м2
    • 5/16 этаж
    • Состояние: идеальное
    5 580 000 ₽ (117700 ₽/м2)
    Продается полноценная, теплая и очень уютная двухкомнатная квартира с качественным ремонтом. Комфортный 5-й этаж, сделан капитальный ремонт, натяжные потолки, просторная лоджия застеклена, утеплена, имеется выход в кухни. Установлены счетчики воды и двух-тарифный счетчик потребления электроэнергии. Из основных ПРЕИМУЩЕСТВ дома и района: - максимально удобное расположение дома в центре Новой Сортировки позволит Вам за минимальное количество времени добраться до центра. Общественный транспорт на расстоянии 50 м от подъезда; - прекрасно развитая инфраструктура района (до ТЦ КАРНАВАЛ/ТЦ ПЕКИН/ХАНОЙ - 10 мин, выезд в разные части города на автомобиле до любых развязок всего 7-10 мин. В шаговой доступности многочисленные продуктовые и продовольственные магазины, детские сады, школы). ВАМ В ПОДАРОК с радостью оставим: кухонный гарнитур, шкафы и вообще много всего по договоренности. РЕАЛЬНЫМ ПОКУПАТЕЛЯМ НЕБОЛЬШОЙ ТОРГ! ТАКЖЕ ОКАЖЕМ ПРИ НЕОБХОДИМОСТИ БЕСПЛАТНУЮ ПОМОЩЬ В ОФОРМЛЕНИИ ИПОТЕЧНОГО КРЕДИТА (БАНК ЛЮБОЙ-СОТРУДНИЧАЕМ СО ВСЕМИ). БЕСПЛАТНОЕ ЮРИДИЧЕСКОЕ И ОРГАНИЗАЦИОННОЕ СОПРОВОЖДЕНИЕ! Приезжайте на просмотр!
    размещено: 26.11.2025 , обновлено: 7.12.2025
  • 2-к квартира, Софьи Перовской, 117

    • 52.7 м2
    • 4/9 этаж
    • Состояние: удовлетворительное
    3 990 000 ₽ (75700 ₽/м2)
    Предлагается к продаже двухкомнатная квартира в районе Новая Сортировка.Просторная квартира с двумя изолированными комнатами с площадью(52.7 кв.м) трехкомнатной квартиры!!!В квартире установлены:пластиковые окна, приборы учёта: электричества (2 тарифный); ГВС;ХВС.Застекленная полу/лоджия.Окна квартиры выходят во двор и на пешеходную улицу между домами. на разные стороны света.Спальная: Юго-запад.Гостиная: Юго-Восток.Во дворе детская и спортивная площадки.В доме сделан капитальный ремонт, новый пассажирский лифт.Район с развитой инфраструктурой, все необходимое в шаговой доступности:Магазины, торговые центры,детская спортивная школа: АКАДЕМИЯ СПОРТА, Клуб детского хоккея ФОТОН.Школы: № 148, № 149. Детские сады:№175,№186, № 196, № 197, № 254, детский образовательный центр:ТРОПИНКИ ДЕТСТВА.Удобная гео.локация: общественный транспорт в любую часть города.В доме проживают доброжелательные культурные соседи.Возможна ипотека любого банка( включая военную), принимаем к оплате материнский капитал федеральный и областной.Также любые действующие жилищные сертификаты. ID объекта в нашей базе: 17896
    размещено: 02.12.2025 , обновлено: 3.12.2025

    2-к квартира, Бебеля, 136

    • 47.3 м2
    • 15/16 этаж
    • Состояние: удовлетворительное
    4 470 000 ₽ (94500 ₽/м2)
    Предлагаем к продаже уютную, светлую, теплую двухкомнатную квартиру, общей площадью 48 кв.м расположенную на 15 этаже, в середине дома, окна выходят на солнечную сторону, благодаря чему большую часть времени в квартире светло и уютно. Комнаты раздельные, санузел изолированный в кафеле, большая лоджия 10 кв.м застеклена, обшита пластиковыми панелями, на полу керамогранит. В квартире установлены трех камерные стеклопакеты, надежная входная дверь, общие стоики и трубы в квартире поменены, установлены счетчики на воду и электроэнергию. В доме ТСЖ, адекватные коммунальные платежи, в подъезде установлено видео наблюдение, чистый подъезд, два лифта. Удобное расположение дома в районе с развитой инфраструктурой, в шаговой доступности магазины, школа № 149, детский сад, транспорт, парк отдыха, рынок Таганский ряд и т.д. Чистая продажа, один собственник, квартира освобождена, обременений нет. ID объекта в нашей базе: 6670
    размещено: 02.12.2025 , обновлено: 7.12.2025

    2-к квартира, Пехотинцев, 2Д

    • 47.7 м2
    • 7/9 этаж
    • Состояние: хорошее
    5 999 000 ₽ (125800 ₽/м2)
    Продается прекрасная квартира в районе Сортировки - ЖК ДЕПО р-н ТРЦ Пекин. Дом монолитный, теплый. Прекрасный вариант для молодой семьи. Квартира очень уютная, аккуратная и экономична в содержании. Большая застекленная лоджия. В квартире выполнена предчистовая отделка. Межквартирные стены сделаны из керамического блока, они выровнены и оштукатурены, межкомнатные — из гипсокартона. Всё готово к чистовой отделке. Пол залит цементно-песчаной стяжкой с утеплителем, проведена электрика, сделаны выводы под сантехнику, нанесена обмазочная гидроизоляция в ванных комнатах, установлены радиаторы отопления и приборы учета, показания которых автоматически передаются в управляющую компанию благодаря системе телеметрии. В доме есть: детская площадка,подземный паркинг, 2 лифта: пассажирский и грузовой, мало квартир на этаже. Филиал Управляющей компании прямо в доме! Дом в тихом районе вдалеке от больших дорог и скоростных магистралей. Район богат инфраструктурой: поблизости школы, детский сад, магазины. Через дорогу - Сагайдакпарк, недалеко ТРЦ Карнавал, Пекин. В соседних домах расположились сразу несколько семейных досуговых центров, пекарня, салоны красоты, медицинская лаборатория - все очень функционально и в шаговой доступности. Рядом остановки общественного транспорта. Юридически чистый объект. Звоните, мы обязательно договоримся! Один взрослый собственник. Юридически чистый объект! Возможна ипотека. Приглашаем на просмотр! Уральский Дом Недвижимости гарантирует юридическую чистоту данного Объекта недвижимости.
    размещено: 09.10.2025 , обновлено: 1.12.2025

    2-к квартира, Техническая, 26

    • 52.9 м2
    • 8/9 этаж
    • Состояние: удовлетворительное
    4 999 000 ₽ (94500 ₽/м2)
    Продается 2-комнатная квартира в центре новой Сортировки!!!! - хороший метраж - 52.9 м²;- 2 изолированные комнаты - 14 м2 и 19 м2;- раздельный сан.узел;- квaртиpa под ремонт, а это прекрасная возможность воплотить свои дизайнерские задумки и сделать квартиру под себя;- развитая инфраструктура района (магазины, аптеки, поликлиники, детские сады, школы,торговый центры, кинотеатры, спортзалы и пр.); Звоните и записывайтесь на просмотр! Не откладывайте свой звонок на завтра, ведь завтра ее может купить уже кто-то другой! РАДЫ ПОМОЧЬ РЕШИТЬ ЛЮБОЙ ВОПРОС С НЕДВИЖИМОСТЬЮ! ID объекта в нашей базе: 11988
    размещено: 26.11.2025 , обновлено: 6.12.2025

    2-к квартира, Седова, 23

    • 50.7 м2
    • 1/9 этаж
    • Состояние: хорошее
    5 200 000 ₽ (102600 ₽/м2)
    Предлагается к продаже уютная 2х-комнатная квартира на высоком 1-м этаже 9-этажного кирпичного дома в районе Сортировка.Квартира станет отличным решением для семьи с детьми благодаря расположению во дворе школы и детского сада, а также удобству первого этажа. Данный вариант идеально подойдет и людям старшего поколения.Развитая инфраструктура района и отличная транспортная доступность (остановка в 3-х минутах ходьбы, на автомобиле до центра 15-20 минут) сэкономят ваше время.В квартире: изолированные комнаты, раздельный санузел, просторная лоджия. Окна выходят во двор. Состояние хорошее, квартира готова к проживанию.Звоните, чтобы записаться на просмотр! ID объекта в нашей базе: 11990
    размещено: 25.11.2025 , обновлено: 7.12.2025

    2-к квартира, Автомагистральная, 13

    • 37 м2
    • 5/9 этаж
    • Состояние: хорошее
    4 150 000 ₽ (112200 ₽/м2)
    Пpoдaется солнечная и уютная двухкомнaтная квaртира на 5 этаже в 9-ти этaжном домe. Cдeлaн рeмонт, матовые натяжные потолки, линолеум, в санузлe и вaнной кoмнaте плиткa от пoла до пoтoлкa, хоpошaя входнaя двeрь. Установлены приборы учета ХВС, ГВС, электроэнергии. Дом расположен во дворах, вдали от шума дороги. Зеленый двор, детские площадки, свободные парковочные места. Школы и детские сады в соседних дворах. До центра легко добраться на машине за 15-20 минут. Удобный выезд на ЕКАД и Серовский тракт. Район развит – очень хорошая инфраструктура. Рядом всевозможные магазины, в том числе два круглосуточных. Аптеки, поликлиника, кафе, дом быта. Парк Таганская слобода в пешей доступности, до ТРЦ Карнавал три остановки.
    размещено: 03.10.2025 , обновлено: 30.11.2025

    2-к квартира, Седова, 17к1

    • 35 м2
    • 7/16 этаж
    • Состояние: идеальное
    4 190 000 ₽ (119700 ₽/м2)
    Эффект Долиной - не про нас! Честно и чисто продаем НЕ ЕДИНСТВЕННОЕ ЖИЛЬЕ! Удобная евродвушка с окнами на «Пекин» ищет хозяина!Продаю квартиру с большой кухней-гостиной и уютной спальней с ремонтом в районе ТЦ «Таганский ряд» и «Пекин».Полный новый ремонт – все на 100% соответствует фотографиям.Классная планировка большая кухня-гостиная и отдельная спальня. В площадь квартиры не включена огромная (9 кв. м) лоджия.Дом хороший, подъезды чистые, ТСЖ. Низкая коммуналка, новые лифты.Квартира продается свободно, чистая продажа, ключи на сделке. Все документы готовы, любая форма расчета. Хоть завтра на сделку.Просмотр по договоренности в удобное для вас время. ID объекта в нашей базе: 6573
    размещено: 24.11.2025 , обновлено: 8.12.2025

    2-к квартира, Таватуйская, 12/2

    • 47.6 м2
    • 1/5 этаж
    • Состояние: хорошее
    4 290 000 ₽ (90100 ₽/м2)
    Предлагается к приобретению уютная двухкомнатная квартира общей площадью 52 квадратных метра, расположенная на первом этаже пятиэтажного кирпичного дома, построенного в 1994 году. Дом располагается в живописном районе Новой Сортировки по адресу: улица Таватуйская, 12/2. Просторные комнаты с жилой площадью 30.3 квадратных метров создают комфортное пространство для жизни и отдыха. Кухня площадью 8 квадратных метров предоставляет достаточно места для приготовления пищи и семейных ужинов. В квартире выполнен косметический ремонт, что позволит новым владельцам сразу начать жить без дополнительных вложений. Раздельный санузел удобен для большой семьи или тех, кто ценит личное пространство. Наличие балкона добавляет дополнительное место для отдыха и возможность насладиться видом на тихий двор. Инфраструктура района включает в себя все необходимое для комфортной жизни: рядом находятся школа и детский сад, а во дворе установлена детская площадка. Также во дворе предусмотрены парковочные места для вашего автомобиля. Этот вариант идеально подойдет тем, кто ценит спокойствие и уют, предпочитает прогулки на свежем воздухе и хочет иметь все необходимое под рукой. Приглашаем вас оценить все преимущества данной квартиры лично! ID объекта в нашей базе: 4936
    размещено: 19.11.2025 , обновлено: 21.11.2025

    2-к квартира, Пехотинцев, 11

    • 43.4 м2
    • 3/9 этаж
    • Состояние: хорошее
    4 500 000 ₽ (103700 ₽/м2)
    Объект № 195597. Продаётся уютная двухкомнатная квартира площадью 43.4 квадратных метров на третьем этаже девятиэтажного панельного дома. В квартире отличный ремонт, что позволит новым владельцам сразу заселиться без дополнительных вложений. Жилая площадь составляет 26 кв.м, а кухня 6.6 кв.м.-достаточно места для комфортного проживания. Также есть балкон с видом на благоустроенный двор. Для молодых семей особенно актуально наличие детской и спортивной площадок прямо во дворе дома, где можно проводить время на свежем воздухе всей семьей. Рядом с домом расположены школа и детский сад, что значительно упрощает жизнь родителям. Для автовладельцев предусмотрена парковка во дворе, что позволяет избежать трудностей с поиском места для автомобиля. Безопасность жильцов обеспечивается наличием домофона. Эта квартира станет отличным выбором для тех, кто ценит комфорт, удобство и качество жизни. Приглашаем вас ознакомиться с этим предложением и убедиться во всех преимуществах данной квартиры лично. ***Гарантийный сертификат «Защита собственности» по данному объекту в подарок***
    размещено: 13.11.2025 , обновлено: 28.11.2025

    2-к квартира, Ольховская, 25 корп 1

    • 42.8 м2
    • 3/9 этаж
    • Состояние: хорошее
    4 000 000 ₽ (93500 ₽/м2)
    Двухкомнатная квартира с изолированными комнатами в спальном районе города. Закрытая территория двора с детской и спортивной площадкой. Район с развитой инфраструктурой. Удачное расположение дома, детский сад, школа, магазины. В шаговой доступности остановка общественного транспорта, 10 до станции электрички "ВИЗ". Квартира распложена на комфортном 3 этаже, чистый подъезд, доброжелательные соседи. Установлены стеклопакеты, счетчики на ГВС, ХВС. Один собственник, обременений нет, документы готовы к продаже. Просмотр в удобное для Вас время по предварительному звонку. Реальному покупателю ТОРГ. ID объекта в нашей базе: 25773
    размещено: 14.11.2025 , обновлено: 1.12.2025

    2-к квартира, Ольховская, 25/1

    • 42.9 м2
    • 6/9 этаж
    • Состояние: идеальное
    4 400 000 ₽ (102600 ₽/м2)
    Предлагаем к продаже уютную, светлую 2-х комнатную квартира с изолированными комнатами в спальном районе города. В квартире сделан качественный ремонт: ламинат, стеклопакеты, заменены батареи отопления, заменена электропроводка, установлены учета ГВС, ХВС. Удачное расположение дома, детский сад, школа, торговый центр, в шаговой доступности остановка общественного транспорта и станция электрички "ВИЗ". Обременений нет, документы готовы к сделке. показ в удобное для вас время по предварительному звонку. ID объекта в нашей базе: 25774
    размещено: 12.11.2025 , обновлено: 19.11.2025

    2-к квартира, Автомагистральная, 3

    • 42.7 м2
    • 8/9 этаж
    • Состояние: хорошее
    4 390 000 ₽ (102800 ₽/м2)
    Продается квартира со всей обстановкой. Заезжай и живи.В стоимость квартиры входит вся мебель и бытовая техника:кухонный гарнитур с варочной газовой поверхностью, духовым шкафом, вытяжкой и посудомоечной машиной, холодильник, стол, стулья,комфортный диван, встроенный шкаф и пристенная мебель в гостиной, мебель в спальне, стиральная машина в ванной и прихожая в коридоре.Установлены стеклопакеты, качественные входные сейф-двери, ламинат.Уютная полулоджия полностью обшита деревоми на ней тоже установлены теплые стеклопакеты.Заменены стояки ХВС, ГВС и канализации, что очень важно,т.к. обеспечивает надежность и отсутствие расходов на ремонт.В шаговой доступности вся развитая инфраструктура,общественный транспорт, в соседнем доме супермаркет ВЕРНЫЙ, в соседнем дворе школа № 4 и детский сад № 94,который был признан лучшим детским садом района.Хороший вариант для семьи, желающей сразу заселиться в квартиру.Чистая продажа, документы готовы, ипотека возможна, торг уместен.Агентство сертифицировано, является действительным членом Российской гильдии риэлторов и Уральской палаты недвижимости.Каждая сделка агентства застрахована на 8 000 000 рублей.С нами надежно, безопасно и юридически безупречно. ID объекта в нашей базе: 993
    размещено: 10.11.2025 , обновлено: 1.12.2025

    2-к квартира, Бебеля, 142

    • 48.7 м2
    • 8/16 этаж
    • Состояние: удовлетворительное
    4 580 000 ₽ (94000 ₽/м2)
    Светлая квартира улучшенной планировки. Дом расположен во дворах. Окна во двор. Есть детская площадка. Школа прямо во дворе, не надо переходить детям дорогу. За ней два детских садика. Рядом транспорт, магазины. Большая широкая лоджия. Прекрасный вид из окон. Квартира освобождена, без обременений, один взрослый собственник, чистая продажа.
    размещено: 06.11.2025 , обновлено: 27.11.2025

    2-к квартира, Седова, 17/1

    • 48 м2
    • 16/16 этаж
    • Состояние: хорошее
    4 899 900 ₽ (102100 ₽/м2)
    Объект № 195220. Продается 2-комн квартира в 16- этажном доме на Новой Сортировке, ост Теплоходный переулок. Квартира на последнем этаже - это для тех, кто ценит спокойствие и тишину. Высота потолков на верхнем этаже всегда выше (2,8 м), чем на средних и нижних этажах. Окна выходят на юго-запад, радиаторы сменены, установлены стеклопакеты. Ванная комната и туалет в кафеле, кухня тоже. Часть напольного покрытия - ламинат. В квартире большая лоджия, застеклена, обшита вагонкой и утеплена. Площадь квартиры 47,3 м2, жилая 28,1 м2, комнаты изолированы, санузел и ванная комната - раздельные. Установлена качественная дорогая сейф дверь с итальянскими замками. В кухня импортная электроплита. Дом теплый, ТСЖ, хороший уход и регулярный ремонт. Соседи в отсеке -местные жители, благополучные семьи. Развитая инфраструктура, транспортные развязки со всеми районами города, наличие ТЦ, школ, гимназия, детсадов и поликлиник в шаговой доступности. Рядом с домом замечательный парк, в котором можно гулять с детьми. Так же при доме имеется автостоянка, которая гарантирует сохранность автомобиля. Трамвайные и автобусные остановки рядом с домом. Один взрослый собственник. Никто не прописан. Квартира чистая. Без обременений. Быстрый выход на сделку, один взрослый собственник, без обременений, без встречных вариантов. Если понравилось наше предложение о продаже, а на приобретение не хватает средств, для Вас, в кратчайшие сроки, одобрим ипотеку. За счет партнерской программы ставки по кредиту ниже! Если хотите обменять свою недвижимость, предложите ее нашему Агентству, возможно сейчас на нее есть покупатель! ***Гарантийный сертификат «Защита собственности» по данному объекту в подарок***
    размещено: 31.10.2025 , обновлено: 5.12.2025

    2-к квартира, Пехотинцев, 9

    • 36.6 м2
    • 9/9 этаж
    • Состояние: плохое
    3 720 000 ₽ (101600 ₽/м2)
    Объект № 195255. Продается уютная 2-комнатная квартира в районе Новая Сортировка, на улице Пехотинцев. Квартира на 9 этаже, от этого в квартире очень светло, а из окон открывается прекрасный вид на город. Есть кладовка для хранения вещей, застекленный балкон. Развитая инфраструктура - магазины, садики, школы, аптеки, остановки общественного транспорта - в пешей доступности. Один взрослый собственник. Перепланировок и обременений нет. Документы готовы. ***Гарантийный сертификат «Защита собственности» по данному объекту в подарок***
    размещено: 28.10.2025 , обновлено: 1.12.2025

    2-к квартира, Бебеля, 156

    • 42.6 м2
    • 8/9 этаж
    • Состояние: хорошее
    4 300 000 ₽ (100900 ₽/м2)
    Уважаемые коллеги и жители микрорайона, предлагаем вашему вниманию к продаже отличную двухкомнатную квартиру.Видовой 8 этаж, сверху из окна отличный вид на центральную детскую площадку на улице Пехотинцев.Комнаты широкие и прямоугольные,большая квадратная прихожая. Санузел раздельный.Произведена замена окон на пластиковые.Тамбур с соседями на 2 квартиры отгорожен железной дверью от общей зоны в подъезде.Дом находится в самом центре Новой сортировки, напротив кольцо автотранспорта, отделение Сбербанка, супермаркеты продуктов, кулинария, аптеки, детское педиатрическое отделение № 2, и большая городская поликлиника № 1 для взрослых.Центры развития для детей, школы и садики на выбор. Паспортный стол на кольце автостоянки.Подъезд находится в середине дома.Квартира очень комфортна для проживания с семьей и для аренды. Много парковочных мест для автомобиля.Материнский капитал в квартире НЕ использован .Общая совместная собственность супругов, 5 лет в собственности.Возможна помощь в одобрении ипотеки на покупку данной квартиры. ID объекта в нашей базе: 9085
    размещено: 28.10.2025 , обновлено: 6.12.2025

Новостройки Екатеринбург, мкр-н. Новая Сортировка

Приоритет

Увеличивает просмотры в 3 раза

Ваше объявление показывается в списке выше обычных объявлений. подключить