На Метре реклама - только нормальная. Никакого шок-контента.
Помогайте независимому ресурсу, как он помогает вам. Удачи!
Новостройки Котт. посёлки Объявления Динамика цен и сделок

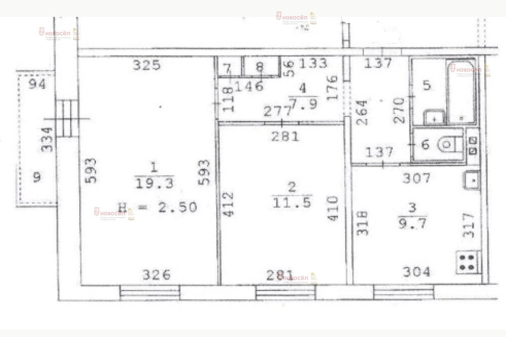
Продажа квартиры: Екатеринбург, ул. Ангарская, 62 (Старая Сортировка)

  • опубликовано 10.11.2022 , обновлено 28.12.2025
  • 44
Рынок:вторичный
Срок сдачи: 1976 года
Количество комнат:2
Общая площадь:43.2 м2
Жилая площадь:29 м2
Площадь кухни:7 м2
Этаж/Этажность дома:4 / 5
Санузел:совмещенный
Отделка:косметический
Год постройки:1976
Мебель:есть мебель
Балкон/лоджия:балкон
Состояние:хорошее
Цена:
4 200 000
Объявление снято с публикации
Коммунальные платежи:оплачиваются отдельно
Торг:торг

Продаем светлую чистую квартиру с хорошим ремонтом на четвертом этаже пятиэтажного дома.Квартира-распашонка. Комнаты на разные стороны света, посередине кухня.Новому собственнику в подарок три встроенных шкафа, кухонный гарнитур с техникой, стриальная машинка и диванСовершеннолетние собственники. Обременений нет. Быстрый выход на сделку.
ID объекта в нашей базе: 7399

Объявление снято с публикации

Ипотечный калькулятор

лет
%
Сумма кредита
4200000 ₽
Платеж
22 540 ₽

История предложений в этом доме

объявление снято с публикации в продаже комнат площадь этаж цена,
Екатеринбург, ул. Ангарская, 62 (Старая Сортировка) - фото квартиры 15 февраля 2025 90 дн. 2 44 3/5 3 799 999
Екатеринбург, ул. Ангарская, 62 (Старая Сортировка) - фото квартиры 4 февраля 2025 90 дн. 2 44 5/5 2 990 000
Екатеринбург, ул. Ангарская, 62 (Старая Сортировка) - фото квартиры 15 января 2025 90 дн. 1 28.9 4/5 3 499 999
Екатеринбург, ул. Ангарская, 62 (Старая Сортировка) - фото квартиры 23 сентября 2023 90 дн. 2 44 4/5 3 700 000
Екатеринбург, ул. Ангарская, 62 (Старая Сортировка) - фото квартиры 24 июня 2023 90 дн. 2 43.2 1/5 3 090 000
Екатеринбург, ул. Ангарская, 62 (Старая Сортировка) - фото квартиры 7 апреля 2023 90 дн. 1 28.8 5/5 2 500 000
Екатеринбург, ул. Ангарская, 62 (Старая Сортировка) - фото квартиры 14 марта 2023 90 дн. 2 42 1/5 3 800 000
Екатеринбург, ул. Ангарская, 62 (Старая Сортировка) - фото квартиры 2 апреля 2023 90 дн. 2 42.9 5/5 3 750 000
Екатеринбург, ул. Ангарская, 62 (Старая Сортировка) - фото квартиры 3 марта 2023 90 дн. 2 42.9 5/5 3 380 000
Екатеринбург, ул. Ангарская, 62 (Старая Сортировка) - фото квартиры 12 декабря 2022 90 дн. 2 44.4 5/5 3 100 000
Екатеринбург, ул. Ангарская, 62 (Старая Сортировка) - фото квартиры 11 ноября 2022 90 дн. 2 43.2 4/5 3 500 000
Екатеринбург, ул. Ангарская, 62 (Старая Сортировка) - фото квартиры 11 декабря 2021 90 дн. 1 45 5/5 2 800 000
Екатеринбург, ул. Ангарская, 62 (Старая Сортировка) - фото квартиры 16 марта 2021 90 дн. 2 44.7 5/5 2 350 000
Екатеринбург, ул. Ангарская, 62 (Старая Сортировка) - фото квартиры 2 февраля 2022 90 дн. 2 45 2/5 2 650 000
Екатеринбург, ул. Ангарская, 62 (Старая Сортировка) - фото квартиры 12 сентября 2020 90 дн. 3 59 2/5 4 490 000
Екатеринбург, ул. Ангарская, 62 (Старая Сортировка) - фото квартиры 11 августа 2020 90 дн. 2 44.5 2/5 2 720 000
Екатеринбург, ул. Ангарская, 62 (Старая Сортировка) - фото квартиры 4 июня 2020 90 дн. 2 45 3/5 2 480 000
Екатеринбург, ул. Ангарская, 62 (Старая Сортировка) - фото квартиры 3 октября 2020 90 дн. 2 36 1/5 2 300 000
Екатеринбург, ул. Ангарская, 62 (Старая Сортировка) - фото квартиры 24 августа 2019 90 дн. 2 36.6 2/5 2 600 000

Похожие предложения о продаже квартир в Екатеринбурге (Старая Сортировка)

  • 2-к квартира, Кунарская, 6

    • 44.7 м2
    • 1/5 этаж
    • Состояние: удовлетворительное
    3 600 000 ₽ (80500 ₽/м2)
    Объект № 196730. Продам отличную 2х-комнатную тёплую, солнечную, уютную квартиру. Мкрн Старая Сортировка! Район с развитой инфраструктурой. Рядом: частный детский сад, в 3х минутах пешком от дома расположена 129 Школа и 131 Детский сад, семейная клиника, парк Локомотив в пешей доступности, фитнес зал в 10-ти минутах от дома, есть спорт площадка, каток. Рядом есть рынок маленький. Все необходимое магазины, аптеки, автосервисы, заправка. Строится аллея. Удобная транспортная развязка. В шаговой доступности автобусная и трамвайная остановки. В 15 минутах езды ТЦ Карнавал, рынок Таганский ряд. О квартире: квартира на высоком первом этаже - видно на фото, санузел совмещенный в кафеле, комнаты смежные, натяжные потолки, пластиковые окна. Требуется косметический ремонт, установлена новая сейф дверь. Детская площадка, открытый двор, наземный паркинг, без лифта, косметический ремонт дома, также имеются: телефон, интернет, кабельное телевидение, счетчики холодной и горячей воды, домофон, железная дверь. Звоните прямо сейчас. ***Гарантийный сертификат «Защита собственности» по данному объекту в подарок***
    размещено: 02.02.2026 , обновлено: 3.02.2026

    2-к квартира, Седова, 44/а

    • 40.9 м2
    • 4/5 этаж
    • Состояние: хорошее
    4 300 000 ₽ (105100 ₽/м2)
    Объект № 196831. Продается уютная, светлая двухкомнатная квартира с изолированными комнатами в развитом районе. Квартира в хорошем состоянии, был сделан качественный косметический ремонт - заезжай и живи. Покупателю остается кухонный гарнитур с техникой. Во дворе дома школа, в шаговой доступности детский сад и парк для прогулок. Для удобства: рядом торговый центр со всеми необходимыми магазинами. Для активного образа жизни: вблизи находится фитнес-клуб. ***Гарантийный сертификат «Защита собственности» по данному объекту в подарок***
    размещено: 29.01.2026 , обновлено: 2.02.2026
  • 2-к квартира, Соликамская, 7

    • 52.1 м2
    • 2/9 этаж
    • Состояние: хорошее
    4 890 000 ₽ (93900 ₽/м2)
    Продаётся уютная двухкомнатная квартира площадью 52.1 квадратных метра на втором этаже девятиэтажного панельного дома, расположенного по адресу: город Екатеринбург, микрорайон Старая Сортировка, Соликамская улица, дом 7. Жилая площадь составляет 31.6 квадратных метров, что предоставляет достаточно пространства для комфортного размещения мебели и создания удобного интерьера. Кухня площадью 8.2 квадратных метров станет прекрасным местом для приготовления вкусных блюд и семейных ужинов. Из окон открывается приятный вид на тихий двор, где расположена детская площадка – идеальное место для игр ваших детей. Также во дворе предусмотрена парковка, что значительно упрощает вопрос стоянки автомобиля. В квартире выполнен косметический ремонт, благодаря чему новым владельцам не потребуется вкладывать дополнительные средства и время в предварительные подготовительные работы. Комфортное проживание обеспечивается также наличием проведённого газа. Район обладает развитой инфраструктурой: в шаговой доступности находятся школа, парк для прогулок на свежем воздухе, фитнес-центры для поддержания здоровья и формы, а также торговые центры, предлагающие широкий выбор товаров и услуг. Для маленьких жителей района рядом расположены детские сады и образовательные центры, такие как Фолэнг и Семицветик. Этот вариант жилья подойдет тем, кто ценит спокойствие и уединённость, при этом имея всё необходимое для жизни в непосредственной близости от дома. Приглашаем вас ознакомиться с квартирой, которая может стать вашим новым домом и принести много счастливых моментов вашей семье. Один собственник. ID объекта в нашей базе: 4931
    размещено: 23.01.2026 , обновлено: 1.02.2026
  • 2-к квартира, Техническая , 40

    • 44 м2
    • 2/4 этаж
    • Состояние: хорошее
    3 800 000 ₽ (86400 ₽/м2)
    Уютная двухкомнатная хрущевка-распашонка в хорошем месте Старой сортировки. Рядом остановки трамвая и автобуса (до центра тридцать минут), много больших и маленьких магазинов, аптека. Школа и детский садик внутри квартала, недалеко рынок Таганский ряд. Квартира теплая, светлая, окна выходят во двор. Установлены пластиковые стеклопакеты, сейф дверь, натяжные потолки,застеклен балкон. Сделан ремонт в санузле. Чистая продажа. Один взрослый собственник. Ни кто не прописан.
    размещено: 18.12.2025 , обновлено: 24.01.2026
  • 2-к квартира, Расточная, 29

    • 42 м2
    • 1/4 этаж
    • Состояние: удовлетворительное
    3 550 000 ₽ (84500 ₽/м2)
    Объект № 196805. Продам двухкомнатную квартиру в кирпичном доме, с изолированными комнатами. В санузле требуется капитальный ремонт. Дом находится в центре спального района Старой Сортировки. Инфраструктура района развитая, много школ, садиков, поликлиника, магазины, аптеки и прочее. Рядом ТЦ Карнавал, рынок Таганский ряд. Хорошая транспортная развязка в любой конец города. ***Гарантийный сертификат «Защита собственности» по данному объекту в подарок***
    размещено: 21.01.2026 , обновлено: 30.01.2026

    2-к квартира, Ватутина, 15

    • 55.7 м2
    • 14/14 этаж
    • Состояние: удовлетворительное
    5 390 000 ₽ (96800 ₽/м2)
    В развитом районе города Екатеринбург, в Железнодорожном районе , по ул. Ватутина, д.15, продается 2-х комнатная квартира , с изолированными комнатами площадью 55,7 м2 в кирпичном доме !В доме консьерж, поддерживают чистоту и порядок .Квартира расположена на 14 крайнем этаже ! Над вами нет соседей, всего 4 квартиры на этаже, очень тихо , не слышно соседей совсем , и это огромный плюс !????2 изолированные просторные комнаты, гостиная 20,9 м2 и спальня 13,6 м2 с выходом на большую лоджию 7м2, с которой открываются шикарные виды на город и набережную .????Кухня 8.1 м2 дает возможность оборудовать комфортно кухню, для проведения времени за столом всей семьей .????2 раздельных санузла , также является огромным плюсом для семьи .В шаговой доступности вся необходимая инфраструктура: школы , детские сады , торговые центры, РЖД медицина , частные клиники , сквер Ватутина и парк РЖД, автобусные остановки и не только !Один взрослый собственник!Приглашаем на просмотр! ID объекта в нашей базе: 13327
    размещено: 20.01.2026 , обновлено: 30.01.2026

    2-к квартира, Кунарская, 14/1

    • 56.8 м2
    • 2/19 этаж
    • Состояние: хорошее
    4 850 000 ₽ (85400 ₽/м2)
    Продается просторная, очень тёплая двухкомнатная квартира!Классическая, удобная планировка: изолированные комнаты и кухня.ЦЕНА: 4 850 000 рублей. РАСПОЛОЖЕНИЕ И ИНФРАСТРУКТУРА (ВСЁ ПОД РУКОЙ!):- Есть рядом с домом свое место парковки.- Остановки транспорта, магазины в шаговой доступности.- Школа и детский сад — рядом.- Большой плюс для семей с детьми: во дворе есть закрытая детская площадка, огороженная от машин! Ваши дети могут играть в безопасности.КВАРТИРА БУДЕТ ПРОДАНА ПОСЛЕ ПОКАЗОВ 25.01 (ВОСКРЕСЕНЬЕ) и 27.01 (ВТОРНИК) ПО НАИЛУЧШЕМУ ПРЕДЛОЖЕНИЮ. ЗВОНИТЕ, ЗАПИСЫВАЙТЕСЬ НА ПРОСМОТР! СОБСТВЕННОСТЬ: Все чисто! Один взрослый собственник. Никаких долгов, обременений и скрытых рисков.ПОМОЩЬ: Поможем с оформлением ипотеки на выгодных условиях! ID объекта в нашей базе: 13308
    размещено: 19.01.2026 , обновлено: 31.01.2026

    2-к квартира, Билимбаевская, 34/4

    • 47 м2
    • 2/12 этаж
    • Состояние: хорошее
    4 600 000 ₽ (97900 ₽/м2)
    Объект № 196646. В продаже отличная двухкомнатная квартира улучшенной планировки на Старой Сортировке. Просторные изолированные комнаты, большая застекленная лоджия. Один взрослый собственник, без долгов и без обременений. Возможен торг. ***Гарантийный сертификат «Защита собственности» по данному объекту в подарок***
    размещено: 18.01.2026 , обновлено: 29.01.2026

    2-к квартира, Техническая, 47а

    • 40.7 м2
    • 1/5 этаж
    • Состояние: хорошее
    4 200 000 ₽ (103200 ₽/м2)
    Предлагается к продаже просторная и уютная двухкомнатная квартира, расположенная в благоприятном районе города. Объект обладает рядом преимуществ, среди которых:- Светлые комнаты, обеспечивающие комфортное проживание в течение всего дня благодаря удачному расположению окон.- Хорошее состояние помещения: косметический ремонт, качественные пластиковые окна.- Раздельные комнаты, позволяющие удобно организовать пространство для семьи или пары.- Современная инфраструктура района включает школы, детские сады, магазины («Яблоко», «Перекресток», «Пятерочка», «Магнит»), рестораны («Сушкофф», «Япона Мама») и офисы крупных банков (ВТБ, УБРиР, Сбербанк).- Наличие детской площадки, открытого двора, удобной транспортной доступности (остановка трамвая у дома, близость к крупным транспортным магистралям – Серовскому тракту и Екатеринбургской кольцевой автодороге (ЕКАД)).- Дополнительные удобства для жителей включают качественную звукоизоляцию, чистый подъезд, дружелюбных соседей и современную металлическую дверь повышенной надежности.- Для семей с детьми предусмотрены спортивные объекты: хоккейный корт и зона отдыха с возможностью занятия спортом круглый год.Преимущества покупки квартиры:- Просторная жилая площадь с хорошей инсоляцией.- Благоприятная экологическая обстановка вблизи парка и стадиона.- Возможность быстрой продажи, отсутствие обременений и наличие единственного собственника.- Выгодное расположение объекта позволяет быстро добраться до важных городских объектов инфраструктуры.Приобретение данной недвижимости станет отличным решением для тех, кто ценит комфортные условия проживания, развитую инфраструктуру и хорошие перспективы роста стоимости жилья. ТОРГ возможен. ID объекта в нашей базе: 9497
    размещено: 13.01.2026 , обновлено: 21.01.2026

    2-к квартира, Техническая, 43

    • 44.9 м2
    • 2/5 этаж
    • Состояние: хорошее
    3 970 000 ₽ (88400 ₽/м2)
    Уютная и теплая квартира на втором этаже. Подъезд чистый, спокойные соседи. Дом расположен в тихом дворе в районе с максимально развитой инфраструктурой. В шаговой доступности остановки общественного транспорта. Без обременений. Без перепланировок. Один взрослый собственник. В собственности более 5 лет. Ипотека возможна. ID объекта в нашей базе: 3622
    размещено: 12.01.2026 , обновлено: 28.01.2026

    2-к квартира, Техническая, 68

    • 48.4 м2
    • 2/10 этаж
    • Состояние: хорошее
    4 700 000 ₽ (97100 ₽/м2)
    Объект № 196414. В продаже двухкомнатная квартира улучшенной планировки на Старой Сортировке в кирпичном доме. Удачная планировка: просторные изолированные комнаты на 2 стороны, раздельный санузел, большая застекленная лоджия с ларем для хранения. Квартира на комфортном втором этаже, площадь 48,4 кв.м. Дом находится вблизи парка Локомотив, рядом РЖД Лицей №3, школы №50, №83, №2, множество детских садов, детская поликлиника, Многопрофильный медицинский центр РЖД-Медицина, рядом остановка трамвая. Квартира освобождена, в чистой продаже, без долгов и обременений. Звоните, записывайтесь на просмотр, возможна ипотека, любые сертификаты. ***Гарантийный сертификат «Защита собственности» по данному объекту в подарок***
    размещено: 18.12.2025 , обновлено: 22.01.2026

    2-к квартира, Таватуйская, 19

    • 53 м2
    • 8/9 этаж
    • Состояние: хорошее
    5 300 000 ₽ (100000 ₽/м2)
    Объект № 192629. Продается интересный вариант классной квартиры в самом центре мкр. Ст. Сортировка! Квартира просторная с положительной энергетикой, уютная, теплая и светлая! Сделан косметический ремонт. Окна установлены пластиковые, просторный балкон! Отличный вид из окна во двор. Встроенные вместительные шкафы-купе- в комнате огромный шкаф-купе на всю стену и в коридоре! Санузел и ванная раздельные, был проведен капитальный ремонт: на стенах и полу-кафель, потолок натяжной. Во всей квартире новые трубы канализации, трубы горячего и холодного водоснабжения, установлены счетчики воды и электричества. Тамбур на две квартиры, есть место для хранения вещей. Заезжай и живи, для жизни есть все! Замечательное расположение все рядом: остановки общественного транспорта, магазины, школы, детские садики. Документы к продаже готовы полностью. Ипотеку приветствуем! Торг разумный рассматриваем! Чистая продажа - не обмен, ключи на сделке. ***Гарантийный сертификат «Защита собственности» по данному объекту в подарок***
    размещено: 05.12.2025 , обновлено: 25.01.2026

    2-к квартира, Ангарская, 42

    • 51.2 м2
    • 9/9 этаж
    • Состояние: хорошее
    4 800 000 ₽ (93800 ₽/м2)
    ПРОДАМ квартиру район: Старая Сортировка г. Екатеринбург. Квартира двухкомнатная, общая площадь- 51,2 кв. м., комната- 17,2 кв.м., спальная-11,0 кв.м., кухня- 9 кв.м, 9 этаж, лифт. Квартира светлая, очень теплая, в квартире остается: прихожая, 2 шкафа, комод, кухонный гарнитур со встроенной техникой, Ванная и сан. узел раздельные, отделка кафелем, просторная прихожая. Дом блочный, 9 этажей, улучшенной планировки, 2, 7 м. потолки. Зеленый двор. Рядом детский сад №46; школа №122 с углубленным изучением предметов, В шаговой доступности (13 минут пешком) Стадион Локомотив для занятия спортом. Магазины: Пятерочка, Магнит, Бристоль и др. 11 минут до трамвайной остановки, 5 минут до автобусной остановки, очень удачное расположение дома. ИПОТЕКА ВОЗМОЖНА. Ждем ВАС на просмотр! ID объекта в нашей базе: 1734
    размещено: 02.12.2025 , обновлено: 1.01.2026

    2-к квартира, Билимбаевская, 41

    • 44 м2
    • 8/9 этаж
    • Состояние: хорошее
    4 180 000 ₽ (95000 ₽/м2)
    Продается уютная квартира!Расположение:Железнодорожный район,Квартира:-в хорошем состоянии, аккуратная и светлая квартира-2 изолированные комнаты,-изолированная кухня с выходом на балкон,-в квартире был сделан ремонт вскрывались даже полы,-новая сейф дверь.Дом:- придомовая парковка,- спокойные постоянные соседи, - детские площадки.В подъезде:- доступ только через дверь с домофоном.Инфраструктура:-до центра 35мин, -остановки трамвая, и автобуса в шаговой доступности,-рядом школы, детские сады, спортивные секции,-множество магазинов рядом,-удобная транспортная развязка.Прочее:-5 собственников (есть дети),-без обременений,-чистая продажа! ID объекта в нашей базе: 4929
    размещено: 18.11.2025 , обновлено: 2.02.2026

    2-к квартира, Маневровая, 17/а

    • 46 м2
    • 5/5 этаж
    • Состояние: хорошее
    3 800 000 ₽ (82600 ₽/м2)
    Объект № 195487. Продаётся уютная квартира с отличным ремонтом в доме улучшенной планировки. Готовьтесь жить, а не делать ремонт! Плюсы квартиры: Улучшенная планировка. Просторные комнаты, удобное зонирование. Отличный ремонт: Всё чисто и готово к проживанию. Раздельный санузел: Удобство для всей семьи. Большая лоджия - отличное место для отдыха или хранения. Можно заезжать и жить- никаких хлопот! Всё покажу в удобное для вас время. Звоните, чтобы узнать подробности и договориться о просмотре! ***Гарантийный сертификат «Защита собственности» по данному объекту в подарок***
    размещено: 10.11.2025 , обновлено: 27.01.2026

    2-к квартира, Билимбаевская, 33

    • 50.7 м2
    • 5/9 этаж
    • Состояние: удовлетворительное
    4 200 000 ₽ (82800 ₽/м2)
    Продается квартира. 2 совершеннолетних собственника, в собственности больше 5 лет.Район с развитой инфраструктурой. В шаговой доступности есть все необходимое: разнообразные магазины, аптеки, пункты выдачи заказов, медицинские учреждения, детские сады, школы, разные варианты кружков и секций для детей, спортивный комплекс Локомотив, парк Семь ключей, большой выбор мест для проведения досуга. Хорошая транспортная развязка. Есть лыжная база отдыха.Проcторный двор с детскими площадками. Открытая парковка во дворе. Идеальный вариант для проживания небольшой семьи или под сдачу в аренду.Звоните, покажем в удобное время. ID объекта в нашей базе: 12120
    размещено: 27.10.2025 , обновлено: 15.01.2026

    2-к квартира, Ангарская, 46

    • 43 м2
    • 8/9 этаж
    • Состояние: удовлетворительное
    3 670 000 ₽ (85300 ₽/м2)
    Объект № 195155. ВНЕСЁН АВАНС! Продаётся уютная двухкомнатная квартира площадью 43.5 квадратных метров на восьмом этаже девятиэтажного панельного дома, расположенного по адресу: город Екатеринбург, микрорайон Старая Сортировка, Ангарская улица, дом 46. Жилая площадь составляет комфортные 26 квадратных метров, а кухня занимает 7 квадратных метров, предоставляя достаточно места для кулинарного творчества и семейных ужинов. Сделан косметический ремонт, заменена вся проводка. Совмещённый санузел обеспечивает дополнительное удобство для жильцов. Из окон открывается приятный вид на тихий двор, где расположены детская площадка, а также, во дворе, есть детский садик – для родителей с детками это очень удобно. Новым собственникам оставим в подарок кухонный гарнитур. Для автовладельцев предусмотрена удобная парковка во дворе дома. Рядом с домом имеются школа, детский сад, торговый центр, парк и фитнес-клуб, что делает расположение особенно привлекательным для семей с детьми и всех, кто ценит комфорт и доступность необходимых объектов инфраструктуры без необходимости долгих перемещений. Этот дом, построенный в 1980 году, сочетает в себе преимущества спокойного района и удобства городской жизни. Здесь вы найдёте гармонию и спокойствие после насыщенного дня, наслаждаясь каждым моментом в своём новом жилище. Записывайтесь на просмотр в любое удобное для Вас время. ***Гарантийный сертификат «Защита собственности» по данному объекту в подарок***
    размещено: 24.10.2025 , обновлено: 2.02.2026

    2-к квартира, Техническая, 46

    4 080 000 ₽ (91900 ₽/м2)
    Арт. 123041795 Предлагается к продаже светлая и очень тёплая двухкомнатная квартира на пятом этаже кирпичного дома, построенного в 1962 году в Железнодорожном районе, Сортировка. Новым собственникам остается вся встроенная мебель, кухонный гарнитур, плита. Можно заехать и жить, предусмотрена удобная отдельная гардеробная. Рядом с домом предусмотрены парковочные места для автомобилей, расположена детская площадка. Развитая инфраструктура: рядом находятся детский сад, музыкальная школа, образовательные учреждения (школы № 50, № 83, № 170, № 174), аптеки, магазины, супермаркеты, банки. В шаговой доступности расположены остановки общественного транспорта. Взрослые собственники, долгов и обременений нет, материнский капитал не использовался, в собственности более 5 лет. Полный пакет документов, быстрый выход на сделку.
    размещено: 23.10.2025 , обновлено: 5.01.2026

    2-к квартира, Сортировочная, 12

    • 45 м2
    • 1/5 этаж
    • Состояние: хорошее
    4 100 000 ₽ (91100 ₽/м2)
    Объект № 194757. Продам 2-комн. квартиру на 1 этаже, с коммерческим потенциалом! Квартира с хорошим ремонтом, пластиковые окна, ламинат, светлая, теплая, продается с мебелью. Развитая инфраструктура, оживленный транспортный трафик. Один взрослый собственник, объект без обременений, арестов. Быстрый выход на сделку! ***Гарантийный сертификат «Защита собственности» по данному объекту в подарок***
    размещено: 08.10.2025 , обновлено: 3.12.2025

    2-к квартира, Билимбаевская, 18

    • 44.6 м2
    • 3/5 этаж
    • Состояние: идеальное
    4 090 000 ₽ (91700 ₽/м2)
    Продается 2комнатная квартира, площадь 44,6 кв.мРайон Старая СортировкаКомнаты изолированные.Санузел совмещенный.Окна пластиковые, сейф-дверь, балкон застеклен.Соседи все порядочные.В доме заменены все коммуникации, Новая проводка и щитки, в квартире заменена проводка на кухне.Полная замена стояков водоснабжения и канализации.Два взрослых собственника.Чистая продажа. Без обременений. Кухня остаётся. Развитая инфраструктура: рядом магазин, школа, детский сад. Хорошая транспортная доступность, у дома автобусная остановка. ID объекта в нашей базе: 1905
    размещено: 19.09.2025 , обновлено: 28.01.2026

Новостройки Екатеринбург, мкр-н. Старая Сортировка

Приоритет

Увеличивает просмотры в 3 раза

Ваше объявление показывается в списке выше обычных объявлений. подключить