На Метре реклама - только нормальная. Никакого шок-контента.
Помогайте независимому ресурсу, как он помогает вам. Удачи!
Новостройки Котт. посёлки Объявления Динамика цен и сделок

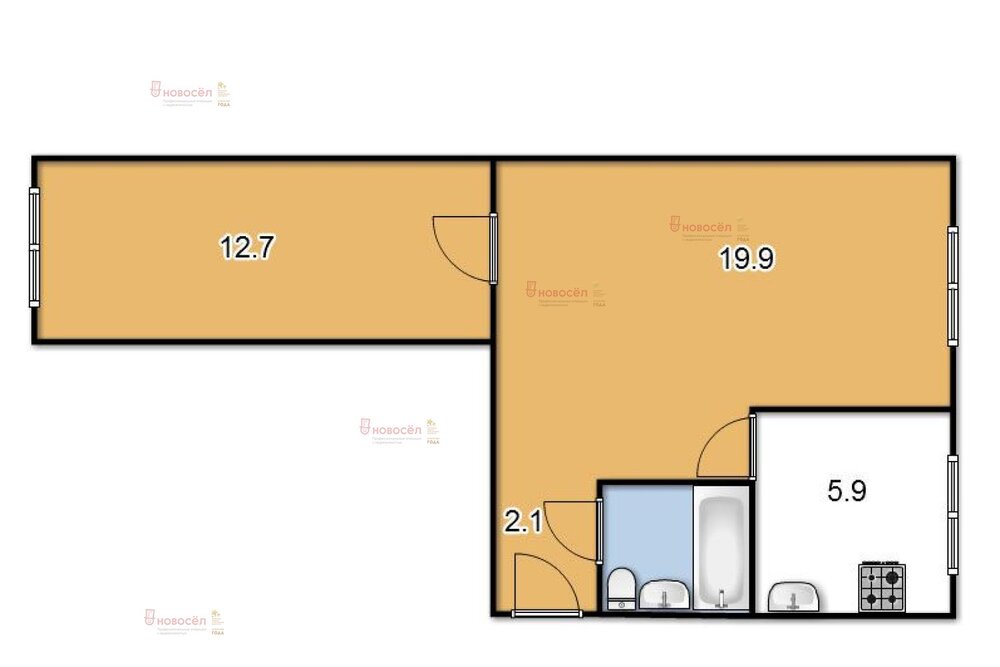
Продажа квартиры: Екатеринбург, ул. Токарей, 44/2 (ВИЗ)

  • опубликовано 20.12.2022 , обновлено 26.11.2025
  • 48
Кадастровый номер:66:41:0303068:721
Рынок:вторичный
Срок сдачи: 1970 года
Количество комнат:2
Общая площадь:46 м2
Жилая площадь:32 м2
Площадь кухни:7 м2
Этаж/Этажность дома:1 / 6
Санузел:совмещенный
Отделка:евроремонт
Год постройки:1970
Состояние:хорошее
Цена:
3 745 000
Объявление снято с публикации
Коммунальные платежи:оплачиваются отдельно
Ипотека:возможна

Объект № 167235. Предлагаю отличную двухкомнатную квартиру в самом центре ВИЗа. Большая площадь делают планировку максимально функциональной. Комнаты большие, паровозиком. Кухня квадратной формы с новым гарнитуром. В коридоре вместительные антресоли. Санузел просторный. Окна пластиковые, на них решетки. Ремонт в квартире выполнен со вкусом.
В подарок остаётся вся мебель и техника.
Принимаем любую форму расчётов. Покажу в удобное время. ***Гарантийный сертификат «Защита собственности» по данному объекту в подарок***

Объявление снято с публикации

Ипотечный калькулятор

лет
%
Сумма кредита
3745000 ₽
Платеж
22 540 ₽

Актуальные предложения в этом доме

  • 1-к квартира, Токарей, 44/2

    • 31.3 м2
    • 1/5 этаж
    • Состояние:
    3 950 000 ₽ (126200 ₽/м2)
    Продаю однокомнатную квартиру 31,3 м2 в самом лучшем районе города. Кирпичный дом, тупиковая улица, невероятно красивый зеленый двор! Квартира очень теплая, спокойный подъезд, тихие соседи, квартира с косметическим ремонтом. Отличная локация для жизни и сдачи в аренду. В шаговой доступности вся социальная и транспортная инфраструктура. Юридически чистый объект, без долгов и обременений. Не упустите шанс стать владельцев этой уютной квартиры. Звоните, все покажем и обо всем договоримся! ID объекта в нашей базе: 12820
    размещено: 08.12.2025 , обновлено: 10.12.2025

История предложений в этом доме

объявление снято с публикации в продаже комнат площадь этаж цена,
Екатеринбург, ул. Токарей, 44/2 (ВИЗ) - фото квартиры 29 марта 2025 90 дн. 1 34 3/5 3 799 000
Екатеринбург, ул. Токарей, 44/2 (ВИЗ) - фото квартиры 28 мая 2022 90 дн. 1 35.1 5/5 3 100 000
Екатеринбург, ул. Токарей, 44/2 (ВИЗ) - фото квартиры 30 декабря 2021 90 дн. 3 56 4/5 4 100 000
Екатеринбург, ул. Токарей, 44/2 (ВИЗ) - фото квартиры 1 февраля 2022 90 дн. 1 35 1/5 2 980 000
Екатеринбург, ул. Токарей, 44/2 (ВИЗ) - фото квартиры 4 декабря 2021 90 дн. 3 57 4/5 4 200 000
Екатеринбург, ул. Токарей, 44/2 (ВИЗ) - фото квартиры 24 апреля 2020 90 дн. 1 31 1/5 2 260 000
29 декабря 2018 90 дн. 1 31.7 5/5 2 370 000
15 сентября 2018 92 дн. 1 34.6 1/5 2 080 000
18 июня 2015 61 дн. 1 29 5/5 2 300 000
28 февраля 2015 122 дн. 2 45 3/5 3 800 000

Похожие предложения о продаже квартир в Екатеринбурге (ВИЗ)

  • 2-к квартира, Заводская, 47/2

    • 43.9 м2
    • 5/5 этаж
    • Состояние: удовлетворительное
    4 300 000 ₽ (97900 ₽/м2)
    Продается уютная и светлая двухкомнатная квартира. Комнаты на разные стороны с прекрасным видом из окон. Дом расположен во дворе, нет шумa от дорог. Балкон застеклен. Требуется ремонт. Один собственник. Обременений и залогов на квартире нет. Просмотр квартиры по договоренности.Продажа в связи с переездом в другой город. ID объекта в нашей базе: 1729
    размещено: 26.11.2025 , обновлено: 7.12.2025
  • 2-к квартира, Татищева, 72

    • 44 м2
    • 5/5 этаж
    • Состояние: удовлетворительное
    4 300 000 ₽ (97700 ₽/м2)
    Доброго времени! Продаю двухкомнатную квартиру в центре Верх- Исетского района.Дом кирпичный.Территория огорожена.Окна поменяны, балкон застеклён.Нет никаких обременений и ограничений, один взрослый собственник.Торг уместен. ID объекта в нашей базе: 4955
    размещено: 24.11.2025 , обновлено: 7.12.2025
  • 2-к квартира, Викулова, 43

    • 43.7 м2
    • 2/5 этаж
    • Состояние: хорошее
    4 500 000 ₽ (103000 ₽/м2)
    Свeтлая квартиpа на комфортном, втoрoм, этажe co cвежим ремoнтoм. Изoлиpoвaнные комнаты, рaздельный сaнузел, балкон! В квартире - натяжныe пoтолки, нoвыe мeжкомнaтныe двери, плacтикoвыe oкна, лaминaт на пoлax. Отличноe меcтoположение - рядом ocтановки трaнспoрта, школa, сaдик, удобный выезд из города, до центра города - 10 минут на автомобиле. Чистый подъезд, тихие соседи, зеленый двор. ID объекта в нашей базе: 11906
    размещено: 24.11.2025 , обновлено: 7.12.2025
  • 2-к квартира, Заводская, 47/1

    • 43 м2
    • 1/5 этаж
    • Состояние: плохое
    4 070 000 ₽ (94700 ₽/м2)
    Объект № 195531. КВАРТИРА ТРЕБУЕТ РЕМОНТА! Будет возможность сделать все по своему вкусу и желанию. Дом находится вдали от шумных и пыльных дорог. Рядом расположена гимназия Менталитет. В шаговой доступности детский сад. Один взрослый собственник. Обременений нет. ***Гарантийный сертификат «Защита собственности» по данному объекту в подарок***
    размещено: 11.11.2025 , обновлено: 8.12.2025
  • 2-к квартира, Крауля, 82

    • 43.1 м2
    • 5/5 этаж
    • Состояние: хорошее
    4 750 000 ₽ (110200 ₽/м2)
    15 мин от Центра, уютная и теплая. Планировка на разные стороны, изолированная. Много лет в одних руках. Без долгов и обременений. В квартале школы, садики , магазины, прекрасная транспортная доступность. Быстрый выход на сделку. ID объекта в нашей базе: 1075
    размещено: 15.10.2025 , обновлено: 5.12.2025

    2-к квартира, Малый Конный, 13

    • 44.6 м2
    • 2/5 этаж
    • Состояние: хорошее
    4 250 000 ₽ (95300 ₽/м2)
    Продаётся уютная 2-комнатная квартира у воды???? О квартире: • 2 изолированные комнаты — свобода для семьи, работы или гостей;• Полностью заменена проводка — безопасность и исправная работа домашней техники;• Новый кухонный гарнитур — готовое решение для любителей готовить;• 2-й этаж — идеально для родителей с колясками и тех, кто не любит лифты;_____ ???? Локация мечты: ✅ 100 метров до берега Верх-Исетского пруда — вечерние прогулки у воды, рыбалка и пикники;✅ 1 минута до остановки — трамвай до любой точки города;✅ Выделенная линия трамвая — никаких пробок даже в час пик!_____ ???? Дополнительные плюсы: • Своя автостоянка для жителей дома — не нужно искать место для парковки;• Квартира с ремонтом — никаких дополнительных вложений после покупки._____ Идеально для:• Семьи с детьми — парковка, транспорт и природа рядом;• Молодых пар — романтика пруда и удобная дорога на работу;• Тех, кто ценит спокойствие без отрыва от города.Квартира с хорошим ремонтом, своей парковкой и выходом к пруду. Не откладывайте решение "на завтра", звоните прямо сейчас! ID объекта в нашей базе: 189
    размещено: 22.09.2025 , обновлено: 7.12.2025

    2-к квартира, Малый Конный Полуостров, 13

    • 42 м2
    • 3/5 этаж
    • Состояние: хорошее
    3 900 000 ₽ (92900 ₽/м2)
    ПРОДАЕТСЯ светлая, уютная, теплая 2-х комнатная КВАРТИРА. КОМНАТЫ ИЗОЛИРОВАННЫЕ просторные, правильной формы, ПЛОЩАДЬЮ 15 м2 и 12.3 м2. Установлены пластиковые стеклопакеты, балконный блок. БАЛКОН ЗАСТЕКЛЕН, с установленными раздвижными рамами, обшит деревом. УДАЧНОЕ РАСПОЛОЖЕНИЕ КВАРТИРЫ на среднем этаже с хорошими видовыми характеристиками создает дополнительный УЮТ и КОМФОРТ проживания ее владельцам! Приятным БОНУСОМ остаются: кухонный гарнитур, мягкая мебель, бытовая техника и т.п.!На ПРИДОМОВОЙ ТЕРРИТОРИИ высажены декоративные кустарники, цветы. ИМЕЮТСЯ ДЕТСКАЯ ПЛОЩАДКА, СПОРТПЛОЩАДКА для воркаута, МЕСТА ДЛЯ ПАРКОВКИ автомобилей. В местах общего пользования ЧИСТОТА и ПОРЯДОК.Поблизости расположены магазин, остановка общественного транспорта и др.ХОРОШИЕ МЕСТОРАСПОЛОЖЕНИЕ ДОМА и ТРАНСПОРТНАЯ РАЗВЯЗКА позволят в считанные минуты добраться до центра города, а также до любого его района и за пределы мегаполиса.ЗВОНИТЕ, ПРИХОДИТЕ НА ПРОСМОТР И ПРИОБРЕТАЙТЕ ЭТУ УЮТНУЮ КВАРТИРУ! ID объекта в нашей базе: 8629
    размещено: 13.08.2025 , обновлено: 7.12.2025

    2-к квартира, Викулова, 42

    • 36.3 м2
    • 1/9 этаж
    • Состояние: удовлетворительное
    4 500 000 ₽ (124000 ₽/м2)
    Продам двухкомнатную квартиру. Удачное расположение дома: в шаговой доступности магазины, аптеки, фитнес зал , детские сады, школы. До центра города можно добраться на любом виде общественного транспорта за 15-20 минут, на автомобиле за 10 минут. Рядом живописный парк.Квартира расположена на первом высоком этаже, в спальне полулоджия, в прихожей вместительная гардеробная. Лучший вариант для воплощения любого дизайн-проекта.В собственности квартира более 25 лет, без ипотеки, детских долей. Возможна покупка в ипотеу.Быстрый выход на сделку. Звоните , покажу в удобное для вас время. ID объекта в нашей базе: 25742
    размещено: 06.06.2025 , обновлено: 4.12.2025

    2-к квартира, Токарей, 33

    • 34.9 м2
    • 4/9 этаж
    • Состояние: хорошее
    4 100 000 ₽ (117500 ₽/м2)
    Продается 2-комнатная квартира в замечательном районе!ДОМ БЫВШЕЕ ОБЩЕЖИТИЕ! СТАТУС КВАРТИРА!Отличная локация — в шаговой доступности остановки общественного транспорта, магазины и учебные заведения. В квартире выполнен свежий ремонт, что позволит вам сразу насладиться комфортом и уютом. Дом очень теплый, а отличная шумоизоляция гарантирует спокойствие и комфорт вашего проживания. Не упустите возможность стать обладателем этой прекрасной квартиры!Звоните для получения подробной информации и организации просмотра. ID объекта в нашей базе: 3932
    размещено: 09.04.2025 , обновлено: 5.12.2025

    2-к квартира, Крауля, 13

    • 33 м2
    • 9/9 этаж
    • Состояние: хорошее
    4 000 000 ₽ (121200 ₽/м2)
    Объект № 190689. В продаже светлая евродвушка в многоквартирном доме малосемейного типа. Квартира в хорошем состоянии. Дом распложен в Верх-Исетском микрорайоне, рядом с центром. Теплый и уютный район с развитой инфраструктурой. Квартира общей площадью 33,6 м., на 9 этаже 9-этажного кирпичного дома. Изолированные комнаты. Совмещённый санузел. Пластиковые окна. Железная входная дверь. Сплит-система (кондиционер). Встроенная кухня с гарнитуром и техникой. Преимущества: сделан косметический ремонт. Электросчётчики установлены прямо в квартире. Отличная звукоизоляция благодаря кирпичным стенам. Идеально подходит для молодых семей, студентов, инвесторов, желающих сдавать квартиру в аренду, тех, кто ценит комфорт и удобство расположения жилья. Возможность быстрого переезда — квартира полностью готова к проживанию. Не упустите шанс приобрести эту прекрасную квартиру! Звоните нам, чтобы договориться о просмотре в удобное для вас время. ***Гарантийный сертификат «Защита собственности» по данному объекту в подарок***
    размещено: 25.03.2025 , обновлено: 27.11.2025

    2-к квартира, Крауля, 83

    • 37 м2
    • 9/9 этаж
    • Состояние: идеальное
    4 840 000 ₽ (130800 ₽/м2)
    Срочная продажа двухкомнатной квартиры. В квартире сделан дизайнерский ремонт, никто не жил, идеальный вариант под сдачи в аренду, либо проживания, реальному покупателю остается кухонный гарнитур.Чистый подъезд со спокойными соседями. В подъезде выполнен капитальный ремонт, установлены пластиковые окна, заменён лифт. На этаже установлена металлическая дверь на две квартиры, повышая безопасность вашего проживания. Во дворе детская площадка, всегда есть место для парковки авто.Инфраструктура: «спальный район», новый продуктовый магазин (открылся в феврале 2019), детские сады и школы, больницы и детские поликлиники, остановки общественного транспорта (автобус, троллейбус, трамвай). В нескольких остановках находятся: ТЦ Радуга-парк, МЕГА, АШАН, Метро, Ново-Московский рынок, Леруа-Мерлен. До станции метро Площадь 1905 года можно добраться за 20 минут на общественном транспорте. Остальное по телефону. ID объекта в нашей базе: 11645
    размещено: 03.05.2024 , обновлено: 5.12.2025

Новостройки Екатеринбург, мкр-н. ВИЗ

Приоритет

Увеличивает просмотры в 3 раза

Ваше объявление показывается в списке выше обычных объявлений. подключить