Top.Mail.Ru
На Метре реклама - только нормальная. Никакого шок-контента.
Помогайте независимому ресурсу, как он помогает вам. Удачи!
Средняя цена м² · Новостройки
178 767 ₽/м²
↑ 8,1% за 12 мес.
Средняя цена м² · Вторичка
140 468 ₽/м²
↑ 10,65% за 12 мес.
Продажи новостроек · Фев 2026
2 548 сделок
↓ 12,7% к январю
Вторичка, сделки · Фев 2026
10 138 сделок
↑ 63,9% к январю
Ключевая ставка ЦБ РФ
15 %
↓ снижение
Новостройки Котт. посёлки Объявления Динамика цен и сделок

Продажа квартиры: Екатеринбург, ул. Стачек, 44 (Эльмаш)

  • опубликовано 26.12.2022 , обновлено 19.02.2026
  • 45
Рынок:вторичный
Срок сдачи: 1971 года
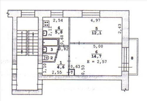
Количество комнат:2
Общая площадь:42 м2
Жилая площадь:27 м2
Площадь кухни:6 м2
Этаж/Этажность дома:4 / 5
Санузел:раздельный
Отделка:требует ремонта
Год постройки:1971
Балкон/лоджия:балкон
Состояние:удовлетворительное
Цена:
3 400 000
Объявление снято с публикации
Коммунальные платежи:оплачиваются отдельно

Кирпичный дом удачно расположен вблизи ул. Космонавтов. Удобные автовыезды. В шаговой доступности вся инфраструктура: от хороших образовательных учреждений, больших магазинов до самого разнообразного общественного транспорта, включая станции метро))Планировка правильной формы, раздельная ванная и с/у.

Квартира без перепланировок, готова к ремонту! Комфортный средний этаж. Чистая продажа. Ипотека возможна.

Без каких-либо залогов или обременений. Возможен быстрый выход на сделку. Приглашаем на просмотры по предварительной договоренности.

Звоните!
ID объекта в нашей базе: 5538

Объявление снято с публикации

Ипотечный калькулятор

лет
%
Сумма кредита
3400000 ₽
Платеж
22 540 ₽

Актуальные предложения в этом доме

  • 3-к квартира, Стачек, 44

    • 58.1 м2
    • 1/5 этаж
    • Состояние:
    5 600 000 ₽ (96400 ₽/м2)
    Продам чистую уютную квартиру в центре Эльмаша на 1 этаже. Дом 71 года, кирпич. Во дворе детская площадка. Прекрасная локация- вся инфраструктура ( и школы и лицеи и садики и транспорт с магазинами - все под боком.Сделан ремонт- Заезжай и живи,По запросу за доп плату готовы оставить всю мебель. ID объекта в нашей базе: 14889
    размещено: 03.04.2026 , обновлено: 3.04.2026

История предложений в этом доме

объявление снято с публикации в продаже комнат площадь этаж цена,
Екатеринбург, ул. Стачек, 44 (Эльмаш) - фото квартиры 7 октября 2024 90 дн. 3 61.5 4/5 6 250 000
Екатеринбург, ул. Стачек, 44 (Эльмаш) - фото квартиры 2 апреля 2023 90 дн. 2 44.6 5/5 3 600 000
Екатеринбург, ул. Стачек, 44 (Эльмаш) - фото квартиры 2 февраля 2022 90 дн. 3 58.3 4/5 3 680 000
Екатеринбург, ул. Стачек, 44 (Эльмаш) - фото квартиры 20 ноября 2021 90 дн. 1 30.4 1/5 2 650 000
Екатеринбург, ул. Стачек, 44 (Эльмаш) - фото квартиры 6 декабря 2019 90 дн. 1 30 3/5 2 100 000
Екатеринбург, ул. Стачек, 44 (Эльмаш) - фото квартиры 27 января 2020 90 дн. 1 30.4 1/5 2 400 000
27 сентября 2015 123 дн. 3 63 4/5 3 699 000
2 февраля 2012 62 дн. 3 61 5/5 3 100 000

Похожие предложения о продаже квартир в Екатеринбурге (Эльмаш)

  • 2-к квартира, Кобозева, 114

    • 49.8 м2
    • 3/3 этаж
    • Состояние: плохое
    4 199 000 ₽ (84300 ₽/м2)
    Объект № 198271. Продам просторную 2 комнатную квартиру, комнаты изолированы на разные стороны, высокие потолки. В квартире требуется ремонт, что позволяет обустроить жильё полностью под свои предпочтения. В доме поменяны стояки. Вся инфраструктура в шаговой доступности: школа, детский сад, магазины. Один совершеннолетний собственник. ***Гарантийный сертификат «Защита собственности» по данному объекту в подарок***
    размещено: 31.03.2026 , обновлено: 3.04.2026
  • 2-к квартира, Лобкова, 20

    • 43.4 м2
    • 1/1 этаж
    • Состояние: хорошее
    3 900 000 ₽ (89900 ₽/м2)
    Продается уютная двухкомнатная квартира в малоэтажном кирпичном доме в самом центре района. Вас порадует большая, почти квадратная кухня – идеальное место для кулинарных шедевров и уютных семейных вечеров. Квартира в хорошем состоянии: косметический ремонт с натяжными потолками в комнатах и стильным подвесным декором на кухне. Раздельный санузел полностью в плитке, оборудован современной душевой. Все коммуникации скрыты, но легко доступны для обслуживания. Установлены счетчики на все ресурсы, а современные немецкие окна ПВХ и надежная сейф-дверь обеспечат комфорт и безопасность. В подарок остаются: вместительный угловой шкаф в спальне, шкаф-купе в прихожей, а также кухонный гарнитур со встроенной техникой (варочная панель, духовой шкаф, вытяжка) и раковина с тумбой в санузле. Дом отличается идеальной чистотой подъездов и тихим, спокойным двором. Доброжелательные соседи и минимум автомобилей создают атмосферу уюта. Всегда есть свободные парковочные места. Район с развитой инфраструктурой: школы, детские сады, поликлиники – все в шаговой доступности. Всего 17 минут пешком до метро "Уралмаш" и "Проспект Космонавтов". Магазины, аптеки и сервисы также рядом. Для отдыха – живописный Эльмашевский парк. Отличная транспортная доступность: остановки общественного транспорта и удобная развязка позволят быстро добраться в любую точку города. Квартира в одной семье с 2021 года. Обмен подобран. Не упустите свой шанс! Запишитесь на просмотр – вам точно понравится! ID объекта в нашей базе: 18578
    размещено: 31.03.2026 , обновлено: 3.04.2026
  • 2-к квартира, Кобозева, 14

    • 44.8 м2
    • 4/5 этаж
    • Состояние: удовлетворительное
    4 400 000 ₽ (98200 ₽/м2)
    Продаётся уютная двухкомнатная квартира на четвёртом этаже кирпичного дома, построенного в 1971 году. Комнаты смежные, что удобно для семей с детьми. Из окон открывается вид в тихий зеленый двор, а также есть балкон, где можно наслаждаться свежим воздухом. Во дворе имеется детская площадка, открытая парковка, что делает проживание здесь комфортным. Квартира требует ремонта, что даёт возможность оформить её по своему вкусу. Раздельный санузел добавляет удобства в повседневной жизни. Остановка и магазины в шаговой доступности. В помощи с продажей не нуждаюсь!
    размещено: 07.03.2026 , обновлено: 3.04.2026
  • 2-к квартира, Замятина, 38/2

    • 22.5 м2
    • 1/5 этаж
    • Состояние: хорошее
    2 700 000 ₽ (120000 ₽/м2)
    Вашему вниманию предлагается к продаже компактная 2- х комнатная квартира в спальном районе города - на Эльмаше.В квартире был сделан ремонт: установлена новая сейф-дверь окна заменены на ПВХ отремонтирован сан.узел - положен кафель, заменены трубы, установлены счетчики в комнатах стены оклеили светлыми обоями на полу везде постелен линолеум(кроме сан.узлов) установлен натяжной потолок выведены трубы для установки раковины в кухонной зоне в прихожей установлен вместительный шкаф-купе, который остается в подарок новым хозяевам. ИНФРАСТРУКТУРА: в районе нахождения дома в пешей доступности находятся несколько детских садов ( 76, 554), школы (114,112), ДВС "Калининец", магазины: Пятёрочка, Монетка, КрасноБелое, Кировский, Магнит, много кафе, салонов красоты. А самое главное за окном - ЛЕС и чистый воздух!!! Рядом находятся калиновские разрезы, где есть рыбалка, а зимой катаются с горки.ТРАНСПОРТ: маршрутки 053, 059, 08, 09, 16.ЮРИДИЧЕСКАЯ СТОРОНА: один совершеннолетний собственник, обременений, ограничений нет, более 5 лет в собственности.Квартира очень теплая - окна выходят на юг!Квартира освобождена, ключи отдаем в день окончательного расчета!Показ квартиры по предварительной договоренности.ЗВОНИТЕ! И мы покажем ))) ID объекта в нашей базе: 25927
    размещено: 11.02.2026 , обновлено: 1.04.2026
  • 2-к квартира, Кобозева, 116

    • 40 м2
    • 1/4 этаж
    • Состояние: хорошее
    4 000 000 ₽ (100000 ₽/м2)
    Эльмаш, продаётся уютная, тёплая квартира в кирпичном доме на 1 этаже (этаж высокий).Поспешите прийти и посмотреть, пока цены ещё остаются адекватными, торг обсуждается.В квартире сделан ремонт, электрика, сантехника, стены, мебель, санузел.Соседи добропорядочные, в подъезде всегда чисто, посторонних запахов нет.Инфраструктура:Школа № 114Детский сад № 76Калиновский лесной парк. СтадионАптекиПродуктовые магазиныТранспортКвартира без обременений, 1 взрослый собственник, долгов нет, ИП нет. не банкрот, чистая продажа, быстрый выход на сделку.Записывайтесь на просмотр.При необходимости согласуем для вас ипотеку или поможем продать ваш объект, если он ещё не продан. ID объекта в нашей базе: 26241
    размещено: 19.01.2026 , обновлено: 1.04.2026

    2-к квартира, Энтузиастов, 30А

    • 35 м2
    • 2/2 этаж
    • Состояние: хорошее
    3 000 000 ₽ (85700 ₽/м2)
    Внесен аванс. Продается 2 комнатная квартира. Комнаты очень удобные, прямоугольной формы, чисты и светлые. Продаем в связи с расширением. ID объекта в нашей базе: 11875
    размещено: 27.10.2025 , обновлено: 2.04.2026

    2-к квартира, Энтузиастов, 32

    • 45 м2
    • 1/2 этаж
    • Состояние: хорошее
    3 700 000 ₽ (82200 ₽/м2)
    Продается 2 комнатная квартира на Энтузиастов 32 в Сталинке. Окна на 2 стороны. Высокие потолки. Комнаты 18 и 12 кв.м., кухня-9 кв.м. Потолки 3 метра. В квартире частично сделан ремонт: стеклопакеты в большой комнате на 2 окна, натяжной потолок, на полу линолеум, трубы меняли в 2023 году. Санузел в кафеле. Подъезд чистый, аккуратный- после ремонта. Дом расположен в уютном квартале, в окружении новостроек. Рядом остановки транспорта, школы, детские сады, ТЦ. Рядом Эльмашевский парк для прогулок и занятий спортом. Просторная двухкомнатная квартира по цене однокомнатной. Дом теплый. Этаж высокий. Возможно использовать под коммерцию. ID объекта в нашей базе: 11860
    размещено: 27.10.2025 , обновлено: 2.04.2026

    2-к квартира, Лобкова, 40

    • 40.8 м2
    • 1/5 этаж
    • Состояние: хорошее
    4 300 000 ₽ (105400 ₽/м2)
    Продаем 2х квартиру в центре р-на " Эльмаш" Высокий первый этаж. В квартире сделана перепланировка.В собственности у одного человека с 1974г с момента сдачи дома.В подарок оставляем кухню с техникой. Быстрый выход на сделку.документы готовы.рассмотрим МК и ипотеку. Рядом с домом остановка трамвая " Донская" В шаговой доступности трамвайное кольцо "Эльмаш" автобусы,троллейбус,Все магазины,почта ,отдел Сбербанка ,аптеки,садики и школы ,Стадион " Калининец" музыкальная и художественная школа - все рядом!. Покажем в удобное для вас время. Квартира освобождена.Быстрый выход на сделку.Мы работаем для вас:пн-пт - с 10 до 20,сб - с 10 до 17,вс - нерабочий день ID объекта в нашей базе: 696
    размещено: 24.02.2025 , обновлено: 24.03.2026

    2-к квартира, Лобкова, 36

    • 42 м2
    • 3/5 этаж
    • Состояние: удовлетворительное
    4 300 000 ₽ (102400 ₽/м2)
    Уютная 2-комн.кварт. в теплом кирпичном доме. Комнаты изолированные, окна смотрят на разные стороны, сан/узел раздельный. Удобное местоположение дома, остановка транспорта рядом. На окнах стеклопакеты, балкон застеклен. Квартира без залогов и обременений. Торг возможен после просмотра. ID объекта в нашей базе: 912
    размещено: 20.11.2024 , обновлено: 24.03.2026

Новостройки Екатеринбург, мкр-н. Эльмаш

Приоритет

Увеличивает просмотры в 3 раза

Ваше объявление показывается в списке выше обычных объявлений. подключить