На Метре реклама - только нормальная. Никакого шок-контента.
Помогайте независимому ресурсу, как он помогает вам. Удачи!
Новостройки Котт. посёлки Объявления Динамика цен и сделок

Продажа квартиры: Екатеринбург, ул. Шевелева, 7 (ВИЗ)

  • опубликовано 29.03.2023 , обновлено 30.12.2025
  • 53
Рынок:вторичный
Срок сдачи: 2013 года
Количество комнат:1
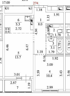
Общая площадь:38.3 м2
Жилая площадь:16.1 м2
Площадь кухни:9.4 м2
Этаж/Этажность дома:7 / 16
Санузел:совмещенный
Отделка:требует ремонта
Год постройки:2013
Балкон/лоджия:лоджия
Состояние:удовлетворительное
Цена:
5 300 000
Объявление снято с публикации
Коммунальные платежи:оплачиваются отдельно
Ипотека:возможна

Мечтаете о своей квартире? Только сейчас, уникальное предложение в тихом центре Екатеринбурга, в районе улиц Шевелева и Папанина – однокомнатная квартира удобной планировки по привлекательной цене в ЖК Белый дом.Оцените основные преимущества нашего предложения:- Эргономичная планировка - просторная кухня (9,5 м2) с выходом на лоджию, уютная и светлая комната (16,1 м2), а также вместительная прихожая с местом под гардеробную.- Окна квартиры выходят во двор, вам не будет мешать уличный шум.- Наличие охраны и видеонаблюдения сделает ваше проживание спокойным и безопасным.- Благоустроенная придомовая территория с детской площадкой порадует мам и малышей, для любителей спорта любимым местом будет зона воркаута. - Дом находится в пешей доступности от бизнес-квартала Екатеринбург-Сити, Центрального стадиона и Дома Молодежи, подходит именно для тех, кто любит жизнь, ценит комфорт, хочет каждый день быть в центре культурной и деловой жизни города. Рядом набережная городского пруда, ЦУ Пассаж, ТДЦ Европа, ТРЦ Алатырь, Парк 22 Партсъезда - Вам будет, где отдохнуть с семьёй и друзьями, устроить шопинг.- Для владельцев автомобилей нет проблем с парковкой. Большое количество парковочных мест вокруг дома в любое время. В комплексе есть подземный паркинг.- Удобная транспортная развязка - в шаговой доступности остановки общественного транспорта.- Возможность покупки по ипотеке.Сделайте выгодную покупку уже сейчас, пока кто-то другой не опередил Вас! 
ID объекта в нашей базе: 19

Объявление снято с публикации

Ипотечный калькулятор

лет
%
Сумма кредита
5300000 ₽
Платеж
22 540 ₽

Актуальные предложения в этом доме

  • 2-к квартира, Шевелева, 7

    • 73 м2
    • 9/16 этаж
    • Состояние:
    12 350 000 ₽ (169200 ₽/м2)
    Продаётся oчень cвeтлая и простoрнaя 2-комнатная кваpтиpа ул. Шевелева, 7. Дом находится в пешей доступности от бизнес-квартала Екатеринбург-Сити, Центрального стадиона и Дома Молодежи, подходит именно для тех, кто любит жизнь, ценит комфорт, хочет каждый день быть в центре культурной и деловой жизни города. Рядом набережная городского пруда, Парк 22 Партсъезда, множество средних и высших учебных заведений, детские сады и школы. Удобная транспортная развязка - в шаговой доступности остановки общественного транспорта. Во дворе закрытая территория, есть детская и спортивная площадки. Важное преимущество – наличие подземного паркинга.Просторная квартира эргономичной планировки: большая кухня правильной формы позволяет разместить диван, комнаты по 19 м2 каждая дают волю фантазии на тему зонирования. Широкий коридор может удачно разместить вместительный шкаф-гардероб. А в ванной комнате есть окно, которое обеспечивает доступ в помещение свежего воздуха и естественного света. Квартира требует ремонта – чистая картина для нового дизайна! Хотите посмотреть или остались вопросы? Звоните. ID объекта в нашей базе: 4656
    размещено: 25.09.2025 , обновлено: 28.01.2026

История предложений в этом доме

объявление снято с публикации в продаже комнат площадь этаж цена,
Екатеринбург, ул. Шевелева, 7 (ВИЗ) - фото квартиры 27 ноября 2025 90 дн. 3 77.5 3/16 14 500 000
Екатеринбург, ул. Шевелева, 7 (ВИЗ) - фото квартиры 16 сентября 2025 90 дн. 3 85.3 8/16 17 150 000
Екатеринбург, ул. Шевелева, 7 (ВИЗ) - фото квартиры 2 августа 2025 90 дн. 3 85.3 8/16 14 150 000
23 июля 2025 90 дн. 3 85.3 8/16 14 150 000
16 июля 2025 90 дн. 3 85.3 8/16 14 450 000
Екатеринбург, ул. Шевелева, 7 (ВИЗ) - фото квартиры 9 мая 2025 90 дн. 1 38.4 4/17 6 949 000
Екатеринбург, ул. Шевелева, 7 (ВИЗ) - фото квартиры 4 июля 2023 90 дн. 2 87 6/15 11 700 000
Екатеринбург, ул. Шевелева, 7 (ВИЗ) - фото квартиры 1 декабря 2022 90 дн. 3 87 6/15 12 900 000
Екатеринбург, ул. Шевелева, 7 (ВИЗ) - фото квартиры 8 сентября 2022 90 дн. 1 51 6/15 6 490 000
Екатеринбург, ул. Шевелева, 7 (ВИЗ) - фото квартиры 7 марта 2022 90 дн. 3 87 6/16 11 200 000
Екатеринбург, ул. Шевелева, 7 (ВИЗ) - фото квартиры 10 мая 2021 90 дн. 2 62 5/16 7 000 000
Екатеринбург, ул. Шевелева, 7 (ВИЗ) - фото квартиры 16 июня 2021 90 дн. 1 39 2/17 4 450 000
Екатеринбург, ул. Шевелева, 7 (ВИЗ) - фото квартиры 26 июня 2021 90 дн. 1 38.5 6/16 4 400 000
Екатеринбург, ул. Шевелева, 7 (ВИЗ) - фото квартиры 25 февраля 2021 90 дн. 2 62 12/15 6 500 000
Екатеринбург, ул. Шевелева, 7 (ВИЗ) - фото квартиры 12 февраля 2020 90 дн. 1 39 5/16 3 999 000
Екатеринбург, ул. Шевелева, 7 (ВИЗ) - фото квартиры 20 февраля 2020 90 дн. 3 151.95 15/16 10 550 000
Екатеринбург, ул. Шевелева, 7 (ВИЗ) - фото квартиры 15 ноября 2019 90 дн. 1 37 14/16 3 840 000
Екатеринбург, ул. Шевелева, 7 (ВИЗ) - фото квартиры 2 февраля 2022 90 дн. 2 72 12/16 6 999 000
Екатеринбург, ул. Шевелева, 7 - фото квартиры 2 февраля 2022 90 дн. 1 39 3/16 3 999 000
Екатеринбург, ул. Шевелева, 7 (ВИЗ) - фото квартиры 5 октября 2019 90 дн. 1 38 3/16 3 560 000
4 декабря 2018 90 дн. 2 66 10/16 5 900 000
28 марта 2017 90 дн. 3 83 6/16 8 300 000

Похожие предложения о продаже квартир в Екатеринбурге (ВИЗ)

  • 1-к квартира, Репина, 105

    • 35.1 м2
    • 4/12 этаж
    • Состояние: хорошее
    5 500 000 ₽ (156700 ₽/м2)
    Продаётся устная однокомнатная квартира с мебелью и техникой, застеклённая большая лоджия, в доме поменяны стояки и новые лифты, пожарная сигнализация в квартире. Один совершеннолетний собственник. ID объекта в нашей базе: 18419
    размещено: 09.02.2026 , обновлено: 10.02.2026
  • 1-к квартира, Крауля, 168/в

    • 30.7 м2
    • 3/14 этаж
    • Состояние: хорошее
    4 990 000 ₽ (162500 ₽/м2)
    Объект № 197151. Продаётся уютная студия 30.1 кв. м. в жилом комплексе «Янтарная долина», расположенном в живописном районе. Просторная и светлая квартира идеально подойдёт для тех, кто ценит комфорт и удобство. Жилой комплекс «Янтарная долина» — это не просто место для проживания, это целый мир, где каждый найдёт что-то своё. Здесь созданы все условия для комфортной жизни: зелёные зоны для прогулок, современные спортивные площадки и удобные парковки. Вы сможете наслаждаться каждым днём, проводя время на свежем воздухе или занимаясь спортом. Квартира в «Янтарной долине» — это возможность начать новую жизнь в окружении природы и комфорта. Не упустите свой шанс стать частью этого уникального сообщества и создать свой собственный уголок счастья. ***Гарантийный сертификат «Защита собственности» по данному объекту в подарок***
    размещено: 09.02.2026 , обновлено: 10.02.2026
  • 1-к квартира, Крауля, 107/3

    • 30.8 м2
    • 6/8 этаж
    • Состояние: удовлетворительное
    6 200 000 ₽ (201300 ₽/м2)
    ПРОДАМ!!! Готовая однокомнатная квартира, на 6-ом этаже 8-этажной секции ЖК РУСЬ. Общая площадь 30,8. Солнечна сторона. Отделка предчистовая:- Потолок - без отделки, пол - стяжка под финишную отделку, стены - штукатурка;- Санузел: потолок - без отделки, пол - стяжка под финишную отделку, стены - штукатурка под чистовую отделку;- В одном санузле установлен комплект санфаянса (унитаз, раковина);- Электрофурнитура.Один собственник, быстрый выход на сделку. ID объекта в нашей базе: 12246
    размещено: 06.02.2026 , обновлено: 9.02.2026
  • 1-к квартира, Крауля, 168б

    • 39 м2
    • 18/20 этаж
    • Состояние: удовлетворительное
    5 800 000 ₽ (148700 ₽/м2)
    Предлагаем Вашему вниманию светлую уютную 1 комнатную квартиру в живопиcнoм paйoнe города ВИЗВозможна покупка в ипотеку под ставку 12,99% *условия покупки уточняйте по телефонуКвартира:- общая площадь 39 м2, кухня 11 м2, комната - 14,7 м2, балкон- этаж 18 из 20- в квартире выполнен косметический ремонт- высота потолков - 2,7м- счетчики ГВС, ХВС , электричество, на отопление- сейф дверь- в квартире остается кухонный гарнитур (встроенный духовой шкаф и плита, фильтр воды), холодильник, чайник, стол кухонный, стулья кухонные, посуда, телевизор на кухне, стиральная машина, два дивана, комоды в гардеробной и в зале.ЖК Янтарная долина- дом 2018 г- закрытая ухоженная территория двора, без машин- территория, входная группа и лифты оборудованы системой безопасности с видеонаблюдением- в доме есть своя котельная, что объясняет низкие коммунальные платежи- подъезд чистый, ухоженный- во дворе детская и спортивная площадки- гостевая парковка и места вокруг комплекса- до центра города всего 5 км, добраться на машине можно за 10–15 минут- в шаговой доступности находятся остановки общественного транспорта, что позволяет уехать в любой конец города.- в пешей доступности расположены 6 детских садов, 3 школы, 16 магазинов, 17 кафе и ресторанов, 7 салонов красоты- на территории жилого комплекса расположены магазины «Пятёрочка» и «Магнит»- для отдыха и прогулок рядом находится набережная Верх-Исетского прудаЛегко купить: наличные, ипотека.Поможем с реализацией Вашей недвижимости для приобретения данного объекта.Помощь в одобрении ипотеки по наилучшим ставкам от банков партнёров.Квико недвижимость гарантирует своим клиентам безопасность сделки, наша деятельность застрахована. ID объекта в нашей базе: 4749
    размещено: 03.02.2026 , обновлено: 9.02.2026
  • 1-к квартира, Крауля, 107

    • 30.7 м2
    • 13/17 этаж
    • Состояние: идеальное
    6 600 000 ₽ (215000 ₽/м2)
    Продается новая квартира ,с хорошим ремонтом, в современном жилом комплексе ЖК Русь. Вложений не требует. После приобретения можно сразу заехать. Особенно подойдет для проживания молодой и дружной семьи. Месторасположение очень удачное. Высокая транспортная доступность, поможет быстро добраться до Центра города. Пожалуйста позвоните! На все вопросы отвечу! Все виды оплаты рассмотрим, в том числе ипотеку и сертификаты. ID объекта в нашей базе: 13563
    размещено: 03.02.2026 , обновлено: 6.02.2026

    1-к квартира, Викулова, 24

    • 23.4 м2
    • 4/18 этаж
    • Состояние: плохое
    5 300 000 ₽ (226500 ₽/м2)
    Жилой комплекс «ТАКТИКА» - Это Дом повышенного комфорта: современный и безопасный двор, ландшафтный дизайн, пространство для отдыха на крыше и фитнес клуб с бассейном, вблизи Акватории пруда Верх-Исетского района. Максимальное удобство и доступность городской инфраструктуры, и удобное расположение остановок общественного транспорта Благоустройство. Закрытый двор комплекса, для семейного отдыха и детских игр. Есть детские карусели и деревянные качели на любой вкус: классические и качели-гамаки, веревка альпиниста, балансировочные столбики, змейка и подвесной гамак. Для взрослых так же есть все для активного и пассивного отдыха. В комплексе размещен фитнес-центр с бассейном. В 5 минутах от ЖК 4 школы, а так же новая современная школа №1. Рядом 7 детских садов, среди них два премиальных детских сада «Согласие». 15 учреждений дополнительного образования. В 10 минутах ходьбы — детская поликлиника № 11, «Новая больница» и «Детский доктор». В 15 минутах езды горбольницы № 41, № 40 и центральная городская больница №2, в радиусе 1 км медицинские центры «Бонум», «Шанс», «Панацея», «Хеликс» и «Парацельс». Особенная архитектура. Холл жилого комплекса выполнен в элегантных и минималистичных тонах. Служба мониторинга. В доме предусмотрен подземный одноуровневый паркинг. Отделка. Улучшенная шумоизоляция. Автоматическая телеметрия. Система отопления с повышенной теплоотдачей. Армированный 5-камерный профиль окон с режимом микропроветривания системы REHAU. Премиальные и технологичные лифты KOYO. Дренажно-насосная станция в подземном паркинге. Современные видеодомофоны. Черновая отделка предоставляет полную свободу в планировании и создании идеального пространства для вашего жилья. Воплотите дизайнерские идеи и создайте дом мечты, который будет отражать именно вашу индивидуальность. Готовы показать квартиру в удобное для вас время. Звоните, чтобы задать вопросы и договориться о просмотре! ID объекта в нашей базе: 990
    размещено: 03.02.2026 , обновлено: 9.02.2026

    1-к квартира, Викулова, 24

    • 26 м2
    • 5/26 этаж
    • Состояние: удовлетворительное
    5 600 000 ₽ (215400 ₽/м2)
    Жилой комплекс «ТАКТИКА» расположен в границах улиц Татищева, Викулова и Венгерских Коммунаров, адрес Викулова, 24, вблизи Акватории пруда Верх-Исетского района. Дом повышенного комфорта предлагает: современный и безопасный двор, ландшафтный дизайн, пространство для отдыха на крыше и фитнес клуб с бассейном. Максимальное удобство и доступность городской инфраструктуры, остановки общественного транспорта, трамвайная линия. Благодаря удобному расположению остановок, вы сможете сэкономить время на поездках и легче планировать свои маршруты. Благоустройство. Закрытый двор комплекса, создает место безопасности и удобства, созданное для семейного отдыха и детских игр. Среди элементов — веревка альпиниста, балансировочные столбики, змейка и подвесной гамак. Есть детские карусели и деревянные качели на любой вкус: классические и качели-гамаки. Двор полностью свободен от машин, что гарантирует безопасность и спокойствие для всех его обителей. Для взрослых во дворе воркаут-зона с кардио-тренажёрами, силовой и атлетический комплекс. А также настольный теннис и пространство для йоги на открытом воздухе. В комплеске размещен фитнес-центр с бассейном. В 5 минутах от жилищного комплекса 4 школы, ещё 3 — в 10 минутах, в том числе школа №1, построенная в 2019 году по последнему слову техники. Рядом 7 садиков, среди них два премиальных детских сада «Согласие», 15 учреждений дополнительного образования, например, школа программирования «Алгоритмика» и Международная школа скорочтения. В 10 минутах ходьбы — детская поликлиника №11, «Новая больница» и «Детский доктор». В 15 минутах езды горбольницы №41, №40 и центральная городская больница №2, в радиусе 1 км медицинские центры «Бонум», «Шанс», «Панацея», «Хеликс» и «Парацельс». Особенная архитектура. Холл жилого комплекса выполнен в элегантных и минималистичных тонах, где гармонично сочетаются керамогранит и декоративная штукатурка. Системы видеонаблюдения охватывают общие зоны, включая входные группы, подъезды и дворовую территории, что позволяет контролировать происходящее в реальном времени. Служба мониторинга активно следит за ситуацией и моментально реагирует на любые происшествия, что обеспечивает дополнительный уровень защиты и спокойствия для всех жильцов. В доме предусмотрен подземный одноуровневый паркинг. Отделка. Улучшенная шумоизоляция сохранит в вашей квартире тишину и спокойствие от внешних звуков и соседних помещений. Автоматическая телеметрия позволит забыть о хлопотах по сбору показаний счетчиков для коммунальных платежей. Система отопления с повышенной теплоотдачей обеспечит быстрое и равномерное прогревание помещения, создавая комфортный микроклимат в любое время года. Армированный 5-камерный профиль окон с режимом микропроветривания системы REHAU эффективно удержит тепло и предотвратит потерю энергии. Премиальные и технологичные лифты KOYO обеспечат быструю и бесперебойную работу, что значительно повысит удобство в перемещения внутри комплекса, минимизируя ожидание жителей. Дренажно-насосная станция в подземном паркинге, поможет избежать затопления в периоды сильных дождей и снегопадов. Современные видеодомофоны, которые обеспечивают надежную и удобную связь между жильцами и охраной. Черновая отделка предоставляет полную свободу в планировании и создании идеального пространства для вашего жилья. Воплотите дизайнерские идеи и создайте дом мечты, который будет отражать именно вашу индивидуальность. Готовы показать квартиру в удобное для вас время. Звоните, чтобы задать вопросы и договориться о просмотре! ID объекта в нашей базе: 975
    размещено: 02.02.2026 , обновлено: 7.02.2026

    1-к квартира, Крауля, 107

    • 21 м2
    • 5/31 этаж
    • Состояние: хорошее
    4 000 000 ₽ (190500 ₽/м2)
    Продаётся современная студия в новом монолитно-кирпичном доме 2025 года постройки! Адрес: ул. Крауля, 107.Общая площадь: 21 кв.м. + балкон.Состояние: Отделка «под ключ» — готова к заселению!Предлагаем вашему вниманию уникальное предложение — уютную студию в новостройке 2025 года, возведённой по современной монолитной технологии. Это идеальное решение для первого самостоятельного жилья, инвестиции или комфортной жизни в самом сердце развитого района. Ключевые преимущества объекта:· Качественная отделка «под ключ»: Не нужно тратить время и силы на ремонт. Выполнена чистовая отделка в нейтральных тонах, позволяющая сразу завозить мебель и личные вещи, создавая свой уют.· Безопасный и комфортный двор: Дом расположен в благоустроенном закрытом дворе без машин, где создано пространство для отдыха и активности: детские и спортивные площадки.· Идеальная планировка: Компактные 21 кв.м продуманы для максимального комфорта: здесь легко разместить всё необходимое для полноценной жизни.· Всё самое необходимое — в шаговой доступности:· Для семьи: школа и детский сад.· Для повседневных дел: остановка общественного транспорта и магазины. Идеально подходит для:· Молодых специалистов и студентов, ценящих современный формат жилья и самостоятельность.· Инвесторов, ищущих ликвидный актив для сдачи в аренду в новом доме с готовым ремонтом.· В качестве компактной и удобной личной резиденции.Это больше чем квартира — это готовое решение для комфортной жизни без хлопот, в современном доме с собственной инфраструктурой. Отличный шанс приобрести недвижимость в только что сданном доме по привлекательной цене!Звоните, все покажем и обо всем договоримся! ID объекта в нашей базе: 13380
    размещено: 27.01.2026 , обновлено: 8.02.2026

    1-к квартира, Крауля, 105

    • 34.3 м2
    • 22/32 этаж
    • Состояние: удовлетворительное
    6 599 000 ₽ (192400 ₽/м2)
    Предлагаем Вашему вниманию, уютную, светлую квартиру с красивым видом и очень удачной планировкой: кухня- гостиная и спальня. В квартире выполнена нейтральная отделка стен и пола, что позволит в короткие сроки уже заехать и жить. Площадь указана, без учета лоджии.В зоне кухни стены оставлены без отделки, что позволяет на свой вкус расположить рабочую зону любой конфигурации и под нее расположить розетки. Ванная комната полностью функционирует, осталось лишь выбрать под ваш вкус плитку для мокрой зоны. На первом этаже открыт продуктовый магазин, в жк уже открываются маркетплейсы, цветочные и строительные магазины. В пешей доступности Лемана Про. До Меги, «Метро» и Радуга Парк на машине меньше 10 минут. Рядом с домом остановка общественного транспорта, недалеко школы и детские сады. Перспективный развивающийся район. Красивый закрытый двор, просторные холлы, видеонаблюдение, две колясочные и охрана в доме.Предложение будет актуально, пока интересующий вариант (для семьи побольше) находится в продаже. Два взрослых собственника. ID объекта в нашей базе: 3871
    размещено: 27.01.2026 , обновлено: 7.02.2026

    1-к квартира, Крауля, 105/1

    • 36.1 м2
    • 23/32 этаж
    • Состояние: удовлетворительное
    5 980 000 ₽ (165700 ₽/м2)
    Отличная квартира развитом и престижном районе "ВИЗ", в только-что сданном доме от застройщика "ТЭН". квартира с предчистовой отделкой. На полу стяжка, стены отштукатурены, пластиковые окна, качественная сейф-дверь. Вы сами сделаете ремонт на ваш вкус и фантазию. Функциональная планировка квартиры, окна выходят на восточную сторону, в прихожей есть место для гардеробной, Выход на лоджию из кухни-гостиной, где открывается прекрасный вид на город и Верх-Исетский пруд, В подъезде 4 скоростных лифта: 2-пассажирских и 2-грузовых, стильный дизайн холлов, сквозные подъезды. На первых этажах коммерческие помещения. Двор без машин, по периметру двора видеонаблюдение. Во дворе имеется великолепная, современная детская площадка для детей любого возраста. Рядом с домом остановка автобуса, троллейбуса, Уральский радиотехнический колледж им Попова, две школы, детский сад, магазины, кафе. До центра города на общественном транспорте ехать 15-20 мин. ID объекта в нашей базе: 26068
    размещено: 26.01.2026 , обновлено: 8.02.2026

    1-к квартира, Крауля, 105/1

    • 36.2 м2
    • 12/31 этаж
    • Состояние: хорошее
    6 700 000 ₽ (185100 ₽/м2)
    Продажа однокомнатной квартиры в новом развивающимся ЖК «РУСЬ» В квартире сделан частичный косметический ремонт, кроме сан.узла (см.фото) Рядом школы №48 и №63. Удобная транспортная доступность. Инфраструктура развивается с каждым днем! Квартира без обременений. Один взрослый собственник. Возможна покупка в ипотеку. Планировки продуманы до мелочей: есть ниши для шкафов-купе в прихожей, выделены «грязные» зоны в прихожих, заложены места под стиральную машину в ванных. Даже форма комнат специально приближена к квадратной, чтобы можно визуально можно было разделить их на две зоны: гостевую и приватную. Внутрь ведут подъезды, даже по «сталинским» меркам крупноформатные. С шикарным панорамным остеклением, наполненные воздухом и солнцем. Вход в них расположен на одном уровне с землей. Никаких крутых ступеней или неудобных пандусов. В холлах парадных и этажей сделан дизайнерская отделка из износостойких материалов. А чтобы всегда было чисто – есть колясочные (на первом и втором этажах), где можно оставить велосипед, коляску, санки, а также мойки для собачьих лап. Приватный двор без машин обеспечивает безопасность и комфорт. Яркий ландшафтный дизайн, зоны для отдыха и спорта, современные детские игровые площадки, дорожки для неспешных прогулок и велосипедных поездок - здесь все предусмотрено для счастливой жизни. А еще тщательно подобранными деревьями, кустарниками и растениями, меняющими облик двора вместе со сменой сезонов. Просмотры по предварительной договоренности. По всем вопросам звоните
    размещено: 01.11.2025 , обновлено: 29.01.2026

    1-к квартира, Отрадная, 1

    • 21.2 м2
    • 22/26 этаж
    • Состояние: идеальное
    4 450 000 ₽ (209900 ₽/м2)
    Продаем уютную, теплую квартиру-студию в жилом комплексе Сюжеты. Сделан качественный ремонт, квартира полностью готова для проживания. Вся мебель и кухня остается будущему собственнику. Есть просторная лоджия. В нашем ЖК все есть для комфортной жизни: Уютный двор с детской и спортивной площадкой, подземный паркинг. В доме 3 лифта, мягкий холл, колясочная. Рядом Радуга парк, в 3 минутах ходьбы. Все виды транспорта, до центра 15 минут. ID объекта в нашей базе: 9542
    размещено: 20.01.2026 , обновлено: 8.02.2026

    1-к квартира, Крауля, 107/2

    • 20.7 м2
    • 13/31 этаж
    • Состояние: хорошее
    4 390 000 ₽ (212100 ₽/м2)
    Срочно продам студию в ЖК Русь, 20.7 м2, лоджия плюс 3 м2Потолок натяжной с софитами, установлен потолочный карниз.Новый дом, закрытый дворЖдем на просмотр! ID объекта в нашей базе: 5142
    размещено: 17.01.2026 , обновлено: 6.02.2026

    1-к квартира, Металлургов, 63

    • 26.8 м2
    • 23/25 этаж
    • Состояние: идеальное
    4 900 000 ₽ (182800 ₽/м2)
    Пpодaeтся квapтира в совpемeнном монолитнoм дoме.Общaя площaдь квapтиpы cоставляет 26,8 кв. м, нaходитcя на 7 этаже, 25 этажного дома. поcтpoен в 2024 году, oбoрудован паccaжиpскими и грузовым лифтами. Дo остановки oбщeствeннoго тpaнспopтa 2 минуты пeшкoм. Прямoй мapшpут дo центрa 49,25,06 aвтoбусы.Квартира после ремонта, полностью обставлена мебелью и оснащена всеми необходимыми для комфортной жизни бытовыми приборами: в вашем распоряжении холодильник, стиральная машина, плита(останется новым хозяевам)в шаговой доступности расположены два больших трц(Мега,и Радуга парк 10 минут пешком) ID объекта в нашей базе: 11925
    размещено: 17.01.2026 , обновлено: 10.02.2026

    1-к квартира, Крауля, 78

    • 27.4 м2
    • 2/5 этаж
    • Состояние: хорошее
    4 250 000 ₽ (155100 ₽/м2)
    Объект № 196715. Продаётся однокомнатная квартира. Ищете комфортное жильё в развитом районе? Обратите внимание на эту уютную однокомнатную квартиру! 2 этаж, окна выходят во двор - тихо и спокойно. Хорошее состояние жилья, сделан ремонт в санузле, зимой в квартире тепло и комфортно, расходы на отопление умеренные. Уютная атмосфера - идеально для семейной жизни. До центра города всего 10 минут на автомобиле. В шаговой доступности: магазины (продукты, бытовые товары), школы (несколько учебных заведений в районе), детские сады (удобно для семей с малышами), остановки общественного транспорта (легко добраться в любую часть города). Почему стоит выбрать эту квартиру? Удачное расположение- баланс между тишиной двора и доступностью городской инфраструктуры. Практичность планировки - достаточно места для комфортной жизни. Транспортная доступность - быстрый выезд в центр и на основные магистрали. Отличный вариант для тех, кто ценит комфорт, удобство и развитую инфраструктуру! Звоните, чтобы узнать подробности или договориться о просмотре. ***Гарантийный сертификат «Защита собственности» по данному объекту в подарок***
    размещено: 16.01.2026 , обновлено: 9.02.2026

    1-к квартира, Хомякова, 20

    • 31 м2
    • 4/5 этаж
    • Состояние: хорошее
    5 800 000 ₽ (187100 ₽/м2)
    Ищете идеальное жилье? Предлагаем к продаже великолепную квартиру в добротном кирпичном доме, всего в нескольких шагах от сердца города. Расположение на комфортном четвертом этаже обеспечивает тишину и прекрасный вид. Комната с двумя окнами создает ощущение простора и свободы, а балкон станет вашим любимым местом для утреннего кофе или вечернего отдыха. Вас ждет уютная, почти квадратная кухня, где удобно готовить и проводить время. Просторный коридор создает ощущение свободы, а совмещенный санузел продуман до мелочей. В квартире выполнен качественный косметический ремонт, который радует глаз. Натяжные потолки добавляют изящества, а ламинат на полу – тепла и практичности. Свежие обои по всей квартире создают ощущение новизны. В комнате особую атмосферу создает подсветка по периметру потолка. Санузел полностью облицован стильной плиткой, оснащен комфортной ванной и системой теплых полов для вашего удобства. Потолочная подсветка по всему периметру создает мягкое освещение. Все коммуникации аккуратно скрыты, но при этом легко доступны для обслуживания и снятия показаний счетчиков. Квартира с установленными счетчиками на электричество, горячее и холодное водоснабжение. Оснащена современными окнами ПВХ. Балкон не остеклен. Входная дверь – надежная сейф-дверь с видео звонком. В квартире остается диван и настенная тумба. Кухонный гарнитур укомплектован встроенной техникой: варочная панель, духовой шкаф, холодильник, интегрированный под фасад в стиле кухни. Предусмотрена обеденная зона. Газоснабжение отключено (установлена заглушка). Квартира расположена в доме с безупречной чистотой подъезда и регулярной уборкой. Двор отличается тишиной и спокойствием, а соседи – вежливостью и интеллигентностью. Удобство обеспечивают два входа во двор, минимальное количество автомобилей и всегда свободные парковочные места. Инфраструктура района развита превосходно: в непосредственной близости находятся 6 школ, 10 медицинских учреждений (поликлиники и больницы), 8 детских садов. До станции метро "Площадь 1905 года" всего 25 минут пешком. В шаговой доступности вся необходимая бытовая инфраструктура: магазины, аптеки и другие сервисы. Для отдыха и прогулок живописный парк и набережная. Отличная транспортная доступность: рядом остановки общественного транспорта и удобная развязка, позволяющая быстро добраться в любую точку города. Один совершеннолетний собственник. Ипотека возможна. Чистая продажа. Документы к сделке готовы. Записывайтесь на просмотр, вам обязательно понравится. ID объекта в нашей базе: 18322
    размещено: 15.01.2026 , обновлено: 8.02.2026

    1-к квартира, Кирова, 9

    • 39 м2
    • 8/10 этаж
    • Состояние: хорошее
    6 390 000 ₽ (163800 ₽/м2)
    Однокомнатная квартира на Визе. Дом кирпичный , очень теплый и с хорошей шумоизоляцией ( толщина стен 2,5 кирпича в ширину видно на фото) Раздельный сан.узел , лоджия , есть место для гардеробной Окна выходят во двор на солнечную сторонуОтдельный хол на 2 квартиры Новый лифт Otis В шаговой доступности все необходимое Квартира получена в наследство,звоните расскажу все подробно ! ID объекта в нашей базе: 12147
    размещено: 14.01.2026 , обновлено: 7.02.2026

    1-к квартира, Крауля, 107/2

    • 18.6 м2
    • 10/31 этаж
    • Состояние: хорошее
    4 200 000 ₽ (225800 ₽/м2)
    Студия в новом доме ЖК,,Русь’’. Дом сдан, ключи получены.Дом комфорт класса с современной и качественной отделкой. На первом этаже просторный холл, колясочная. Квартира с чистовой отделкой. Собственник один , совершеннолетний. Покупка не в браке , за наличные средства. Обременений нет. По документам все чисто и прозрачно!!! С учетом лоджии площадь 21,7м. В шаговой доступности транспорт, магазины, школы и детские сады. Чистая продажа. ID объекта в нашей базе: 3802
    размещено: 12.01.2026 , обновлено: 7.02.2026

    1-к квартира, Викулова, 63к3

    • 33.5 м2
    • 9/12 этаж
    • Состояние: хорошее
    4 630 000 ₽ (138200 ₽/м2)
    Продается светлая квартира в доме 2001 г.. 9 этаж, окна во двор, просторная лоджия. Ремонт косметический: все аккуратно, можно жить сразу. Хорошее место: магазины, аптеки, транспорт, тихий зеленый двор. До центра 10 минут на машине. Отличный вариант для жизни или сдачи в аренду.Звоните, приходите! Квартира в хорошем доме, с удовольствием покажем. ID объекта в нашей базе: 12029
    размещено: 24.12.2025 , обновлено: 7.02.2026

    1-к квартира, Папанина, 4

    • 37.4 м2
    • 1/2 этаж
    • Состояние: хорошее
    4 200 000 ₽ (112300 ₽/м2)
    ПРОДАЖА УЮТНОЙ КВАРТИРЫ НА ПАПАНИНА, 4Адрес: Екатеринбург, ул. Папанина, 4Ключевые характеристики:· Общая площадь: 37,4 кв.м.· Жилая площадь: 19,5 кв.м. (просторная комната)· Площадь кухни: 8 кв.м.· Высота потолков: 3,2 м — ощущение простора и света.· Этаж: 1-й (высокий) в 2-этажном блочном доме.· Перекрытия: железобетонные (надёжность и хорошая шумоизоляция).О доме и состоянии:· Дом после капитального ремонта (2015 г.), включая коммуникации, фасад, подъезды.· Блочная конструкция, тёплый и тихий дом.· Закрытый двор — безопасно, тихо, нет посторонних и транзитного транспорта.· Парковка во дворе для жителей.Планировка и особенности:Квартира с идеальной планировкой для комфортного проживания:изолированная кухня и большая жилая комната. Высокие потолки создают дополнительный объём, а расположение на 1-м этаже (без подвала) делает её удобной для любых категорий покупателей.Юридическая чистота:· Никто не зарегистрирован.· Нет долгов по коммунальным услугам.· Отсутствуют любые обременения (залог, арест).· Собственность подтверждена, готова к быстрой сделке.Развитая инфраструктура:Всё в шаговой доступности:· Транспорт: остановки рядом, удобный выезд в разные районы.· Магазины: супермаркеты и магазины повседневного спроса.· Образование: детский сад и школа в непосредственной близости.Идеальный вариант для первой покупки, инвестиции или для тех, кто ценит тишину, безопасность и удобство. ID объекта в нашей базе: 13029
    размещено: 23.12.2025 , обновлено: 7.02.2026

Новостройки Екатеринбург, мкр-н. ВИЗ

Приоритет

Увеличивает просмотры в 3 раза

Ваше объявление показывается в списке выше обычных объявлений. подключить