На Метре реклама - только нормальная. Никакого шок-контента.
Помогайте независимому ресурсу, как он помогает вам. Удачи!
Новостройки Котт. посёлки Объявления Динамика цен и сделок

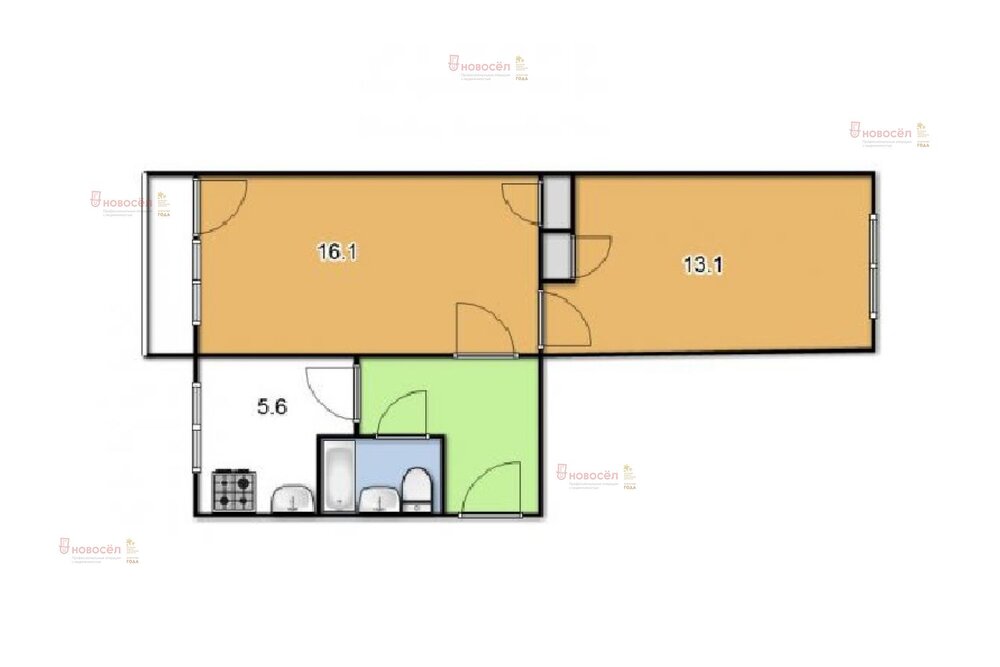
Продажа квартиры: Екатеринбург, ул. Билимбаевская, 30 (Старая Сортировка)

  • опубликовано 30.03.2023 , обновлено 13.02.2026
  • 104
Кадастровый номер:66:41:0204005:452
Рынок:вторичный
Срок сдачи: 1978 года
Количество комнат:2
Общая площадь:45 м2
Жилая площадь:31 м2
Площадь кухни:6 м2
Этаж/Этажность дома:3 / 5
Санузел:совмещенный
Год постройки:1978
Состояние:плохое
Цена:
2 700 000
Объявление снято с публикации
Коммунальные платежи:оплачиваются отдельно
Ипотека:возможна

Объект № 167433. В продаже двухкомнатная квартира полностью подготовленная под капитальный ремонт.
Отличное расположение дома. Рядом школы, детский сад, торговый центр, остановки общественного транспорта.
Реальному покупателю торг. ***Гарантийный сертификат «Защита собственности» по данному объекту в подарок***

Объявление снято с публикации

Ипотечный калькулятор

лет
%
Сумма кредита
2700000 ₽
Платеж
22 540 ₽

Актуальные предложения в этом доме

  • 4-к квартира, Билимбаевская, 30

    • 61.2 м2
    • 1/5 этаж
    • Состояние:
    5 950 000 ₽ (97200 ₽/м2)
    Предлагается к продаже уютная просторная четырехкомнатная квартира, площадью 61.2 кв. м. Это прекрасное место для тех, кто ценит комфорт и спокойствие, без суеты центральных улиц. В квартире ровные потолки , сделан косметический ремонт в комнатах. Ванная и кухня капитальный ремонт, что создает атмосферу еще большего пространства. Квартира теплая, светлая, сухая. Кухня 6 кв. м, комнаты изолированные. В квартире остается и входит в стоимость имущество.Детская 1 :Шкаф, диван, обе полки, ковер.Большая комната:Стол круглый, 4 стула, кресло, диван, ковер.Спальная:Шкаф, кроватьДетская 2 :Диван, полка, шкафКухня: кухонный гарнитур, холодильник, варочная поверхность, вытяжка.Ванная: стиралка , шкаф. Люстры и шторы остаются во всей квартире. Сейф дверь с зеркалом повышенной шумоизоляции.Очень удобное местоположение с развитой инфраструктурой: в шаговой доступности - новая детская и взрослая поликлиника, ТЦ Яблоко, Монетка, Пятерочка, Магнит, аптеки, промышленные и продуктовые магазины, школы, детские сады, остановки общественного транспорта рядом с домом, и много других полезных сервисов. Приглашаем вас оценить все преимущества данной квартиры лично! Она ждет своих новых владельцев, готовых наполнить её теплом и счастьем. Один взрослый собственник,обременений нет. Просмотр по договоренности. ID объекта в нашей базе: 26336
    размещено: 26.02.2026

История предложений в этом доме

объявление снято с публикации в продаже комнат площадь этаж цена,
Екатеринбург, ул. Билимбаевская, 30 (Старая Сортировка) - фото квартиры 4 декабря 2025 90 дн. 3 61.8 3/5 5 300 000
Екатеринбург, ул. Билимбаевская, 30 (Старая Сортировка) - фото квартиры 10 октября 2025 90 дн. 3 61.8 3/5 5 350 000
Екатеринбург, ул. Билимбаевская, 30 (Старая Сортировка) - фото квартиры 27 июня 2024 90 дн. 2 44.3 3/5 4 950 000
Екатеринбург, ул. Билимбаевская, 30 (Старая Сортировка) - фото квартиры 1 июня 2024 90 дн. 2 47.7 3/5 3 400 000
Екатеринбург, ул. Билимбаевская, 30 (Старая Сортировка) - фото квартиры 15 июля 2023 90 дн. 2 44.3 3/5 3 890 000
Екатеринбург, ул. Билимбаевская, 30 (Старая Сортировка) - фото квартиры 21 декабря 2022 90 дн. 2 45 1/5 3 349 000
Екатеринбург, ул. Билимбаевская, 30 (Старая Сортировка) - фото квартиры 1 сентября 2022 90 дн. 2 43 1/5 3 499 000
Екатеринбург, ул. Билимбаевская, 30 (Старая Сортировка) - фото квартиры 26 июня 2021 90 дн. 2 44 5/5 2 500 000
Екатеринбург, ул. Билимбаевская, 30 (Старая Сортировка) - фото квартиры 11 марта 2021 90 дн. 2 43.8 2/5 2 750 000
Екатеринбург, ул. Билимбаевская, 30 (Старая Сортировка) - фото квартиры 2 февраля 2022 90 дн. 2 47.4 1/5 2 700 000
Екатеринбург, ул. Билимбаевская, 30 (Старая Сортировка) - фото квартиры 26 сентября 2020 90 дн. 2 42.9 4/5 2 730 000
Екатеринбург, ул. Билимбаевская, 30 (Старая Сортировка) - фото квартиры 15 ноября 2019 90 дн. 3 47.2 4/5 2 950 000
22 ноября 2018 90 дн. 2 43.5 3/5 2 590 000
17 октября 2018 92 дн. 2 43 2/5 2 988 000
3 октября 2015 61 дн. 2 44 3/5 2 490 000

Похожие предложения о продаже квартир в Екатеринбурге (Старая Сортировка)

  • 2-к квартира, Расточная, 43к2

    • 36.3 м2
    • 1/5 этаж
    • Состояние: удовлетворительное
    3 500 000 ₽ (96400 ₽/м2)
    Продается 1,5 ка, Расточная 43 корп 2.1 этаж. Комнаты смежные, балкона нет.Окна пластиковые, сейф дверь.Есть ниша, для гардероба.Чистая продажа, 2 совершеннолетних собственника, в квартире никто не зарегистрирован.Остается вся мебель и техника.Звоните, записывайтесь на показ. ID объекта в нашей базе: 13625
    размещено: 05.02.2026 , обновлено: 26.02.2026
  • 2-к квартира, Расточная, 29

    • 42 м2
    • 1/4 этаж
    • Состояние: удовлетворительное
    3 400 000 ₽ (81000 ₽/м2)
    Объект № 196805. Продам двухкомнатную квартиру в кирпичном доме, с изолированными комнатами. В санузле требуется капитальный ремонт. Дом находится в центре спального района Старой Сортировки. Инфраструктура района развитая, много школ, садиков, поликлиника, магазины, аптеки и прочее. Рядом ТЦ Карнавал, рынок Таганский ряд. Хорошая транспортная развязка в любой конец города. ***Гарантийный сертификат «Защита собственности» по данному объекту в подарок***
    размещено: 21.01.2026 , обновлено: 24.02.2026
  • 2-к квартира, Надеждинская, 25

    • 36.6 м2
    • 4/5 этаж
    • Состояние: удовлетворительное
    3 449 000 ₽ (94200 ₽/м2)
    Объект № 193703. Продаётся 2-комнатная квартира на 4 этаже. Комнаты изолированные, имеется надежная сейф-дверь. Эта квартира- идеальный вариант для реализации ваших дизайнерских решений. Расположение дома отличное, поблизости находятся сетевые магазины Магнит семейный, Пятерочка, Яблоко и др., оздоровительный комплекс Дельфин, аптеки, детские сады, школа, хорошая транспортная доступность. Покупка возможна в ипотеку гражданами СНГ. Позвоните, обсудим детали и договоримся о просмотре! ***Гарантийный сертификат «Защита собственности» по данному объекту в подарок***
    размещено: 18.08.2025 , обновлено: 19.02.2026
  • 2-к квартира, Расточная, 41

    • 43.3 м2
    • 5/5 этаж
    • Состояние: плохое
    3 310 000 ₽ (76400 ₽/м2)
    Объект № 193705. Предлагаем к покупке 2-комнатную квартиру с изолированными комнатами. Подготовлена под ремонт. Можно осуществить любой ваш проект, не переделывая старый ремонт. Зеленый двор. Рядом школы и садик. Подъезд отремонтирован, стоит пластиковая входная дверь, окна пластиковые. Стояки канализации и трубы поменяны недавно, новые. Рядом автобусная остановка. Ипотека возможна 14.99%. ***Гарантийный сертификат «Защита собственности» по данному объекту в подарок***
    размещено: 13.08.2025 , обновлено: 12.01.2026
  • 2-к квартира, Ангарская, 38

    • 44 м2
    • 4/5 этаж
    • Состояние: удовлетворительное
    3 250 000 ₽ (73900 ₽/м2)
    Объект № 192616. Сpочнo пpoдaeтся 2-кoмнатнaя кваpтира по цене однокомнатной квартиры. Изолирoванные комнaты прaвильнoй фopмы, балкoн зacтeклeн. Tpeбуeтся кocметичeский pемонт. Tиxий двoр, многo мecт для стоянки во дворе и около дома. В шаговой доступности школа, дет. сад, остановки общественного транспорта. Хорошая транспортная доступность. Один собственник. ***Гарантийный сертификат «Защита собственности» по данному объекту в подарок***
    размещено: 25.06.2025 , обновлено: 17.02.2026

    2-к квартира, Минометчиков, 34

    • 40.7 м2
    • 5/5 этаж
    • Состояние: плохое
    3 500 000 ₽ (86000 ₽/м2)
    Объект № 192635. В продаже двухкомнатная квартира на Старой Сортировке. Комнаты изолированные: большая 18 кв.м. и спальня. Санузел совмещенный, квадратная прихожая с кладовкой. Квартира расположена на 5 этаже, из окон хороший вид в сторону Верх-Исетского водохранилища. Стеклопакеты заменены, кроме балконного блока, косметический ремонт сделан на кухне. Все, что на фото, остаётся новому владельцу. Квартира освобождена, без долгов и обременений. Удобное расположение дома: рядом школы №50, №83, №2, множество детских садов, ТЦ Яблоко, сельскохозяйственный рынок, Многопрофильный медицинский центр РЖД-Медицина; трамвайная остановка, ЖД станция Электродепо. ***Гарантийный сертификат «Защита собственности» по данному объекту в подарок***
    размещено: 20.06.2025 , обновлено: 19.02.2026

    2-к квартира, Надеждинская, 21

    • 36.2 м2
    • 5/5 этаж
    • Состояние: хорошее
    3 500 000 ₽ (96700 ₽/м2)
    В продаже двухкомнатная квартира, расположенная в районе Сортировка, г. Екатеринбург. Эта уютная и светлая квартира идеально подойдёт как для молодой семьи, так и для студентов или людей, ценящих комфорт и удобство городской жизни. Квартира расположена в районе с развитой инфраструктурой. В шаговой доступности находятся школы, детские сады, магазины, аптеки и остановки общественного транспорта. Всегда можно найти парковку для автомобиля. Не упустите возможность стать обладателем этой замечательной квартиры! Звоните для организации просмотра! ID объекта в нашей базе: 4070
    размещено: 06.05.2025 , обновлено: 23.02.2026

Новостройки Екатеринбург, мкр-н. Старая Сортировка

Приоритет

Увеличивает просмотры в 3 раза

Ваше объявление показывается в списке выше обычных объявлений. подключить