На Метре реклама - только нормальная. Никакого шок-контента.
Помогайте независимому ресурсу, как он помогает вам. Удачи!
Новостройки Котт. посёлки Объявления Динамика цен и сделок

Продажа квартиры: Екатеринбург, ул. Билимбаевская, 30 (Старая Сортировка)

  • опубликовано 2.05.2024 , обновлено 20.09.2025
  • 40
Рынок:вторичный
Срок сдачи: 1978 года
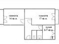
Количество комнат:2
Общая площадь:47.7 м2
Жилая площадь:31 м2
Площадь кухни:6 м2
Этаж/Этажность дома:3 / 5
Санузел:раздельный
Отделка:требует ремонта
Год постройки:1978
Балкон/лоджия:2 балкона
Состояние:удовлетворительное
Цена:
3 400 000
Объявление снято с публикации
Коммунальные платежи:оплачиваются отдельно

Продается двухкомнатная квартира улучшенной планировки, расположенная на 3-м этаже. Просторные светлые комнаты, небольшая эргономичная кухня, раздельный санузел и ванная комната, два балкона. Окна выходят на две стороны. Квартира требует ремонта, это позволит сделать пространство максимально удобным для себя. Отличный вариант для собственного проживания, для студентов и сдачи в аренду. Во дворе всегда есть место для парковки автомобиля.
Дом в тихом районе города Екатеринбурга. Окружающий район обладает всем необходимым для комфортной жизни, всё в шаговой доступности. Транспортное сообщение: автобусы, маршрутки, трамваи. Удобный выезд на Серовский тракт и ЕКАД.
Обременений нет. Чистая продажа. Два взрослых собственника. Ключи на сделке. Быстрый выход на сделку! СРОЧНО! Разумный торг.
Не всегда получается быстро ответить на смс, рекомендую звонить.
Ждём вас на просмотр!
ID объекта в нашей базе: 5656

Объявление снято с публикации

Ипотечный калькулятор

лет
%
Сумма кредита
3400000 ₽
Платеж
22 540 ₽

Актуальные предложения в этом доме

  • 3-к квартира, Билимбаевская, 30

    • 61.8 м2
    • 3/5 этаж
    • Состояние:
    5 350 000 ₽ (86600 ₽/м2)
    Предлагаем Вашему вниманию квартиру в микрорайоне Старая Сортировка.Плюсы расположения:✔ Благоустройство двора✔ Доступность общественного транспорта✔ Доступность магазиновКвартира:-планировка: кухня, 3 изолированные комнаты( 10,4м2.17,4м2,17,4м2), 2 балкона;- косметический ремонт;-стояки ,трубы ГВС,ХВС заменены, стены выровнены, пол-ламинат в комнатах, плитка-ванна и коридор, кухня-линолеум, стены-обои, потолок в коридоре и кухне не делали;- окна пластиковые. на разные стороны;- счётчики ГВС, ХВС(меняли 2024 и 2025г), электрический;- коммунальные платежи: лето-4000р,зима -8000р;- сейф дверь ;-если нужно ,оставим пианино; Дом:- дом 1978 г;- открытая территория двора, придомовая территория ухоженная зеленая;- наземный паркинг, всегда есть места ;- дом без лифта;- хорошая транспортная развязка;- в шаговой доступности: детские сады (Стрекоза,детский клуб,школа скорочтения и развития интеллекта, 197 м, Непоседы д.сад ,222м), 3 школы: №129-383м,№122-с углубленным изучением отдельных предметов-449м, №129-644м) .2 поликлиники и больницы: Центральная городская клиническая больница №3, терапевтическое отделение №3, 90 м, РЖД-Медицина стационар-682м, парк Семь Ключей, скверы, салоны красоты, аптеки,кафе,рестораны;-2 взрослых собственника, без обременений;Легко купить: наличные, ипотека.Поможем с реализацией Вашей недвижимости для приобретения данного объекта.Помощь в одобрении ипотеки по наилучшим ставкам от банков партнёров.Квико недвижимость гарантирует своим клиентам безопасность сделки, все сделки агентства застрахованы. ID объекта в нашей базе: 4673
    размещено: 22.08.2025 , обновлено: 13.09.2025

История предложений в этом доме

объявление снято с публикации в продаже комнат площадь этаж цена,
Екатеринбург, ул. Билимбаевская, 30 (Старая Сортировка) - фото квартиры 27 июня 2024 90 дн. 2 44.3 3/5 4 950 000
Екатеринбург, ул. Билимбаевская, 30 (Старая Сортировка) - фото квартиры 15 июля 2023 90 дн. 2 44.3 3/5 3 890 000
Екатеринбург, ул. Билимбаевская, 30 (Старая Сортировка) - фото квартиры 24 мая 2023 90 дн. 2 45 3/5 2 700 000
Екатеринбург, ул. Билимбаевская, 30 (Старая Сортировка) - фото квартиры 21 декабря 2022 90 дн. 2 45 1/5 3 349 000
Екатеринбург, ул. Билимбаевская, 30 (Старая Сортировка) - фото квартиры 1 сентября 2022 90 дн. 2 43 1/5 3 499 000
Екатеринбург, ул. Билимбаевская, 30 (Старая Сортировка) - фото квартиры 26 июня 2021 90 дн. 2 44 5/5 2 500 000
Екатеринбург, ул. Билимбаевская, 30 (Старая Сортировка) - фото квартиры 11 марта 2021 90 дн. 2 43.8 2/5 2 750 000
Екатеринбург, ул. Билимбаевская, 30 (Старая Сортировка) - фото квартиры 2 февраля 2022 90 дн. 2 47.4 1/5 2 700 000
Екатеринбург, ул. Билимбаевская, 30 (Старая Сортировка) - фото квартиры 26 сентября 2020 90 дн. 2 42.9 4/5 2 730 000
Екатеринбург, ул. Билимбаевская, 30 (Старая Сортировка) - фото квартиры 15 ноября 2019 90 дн. 3 47.2 4/5 2 950 000
22 ноября 2018 90 дн. 2 43.5 3/5 2 590 000
17 октября 2018 92 дн. 2 43 2/5 2 988 000
3 октября 2015 61 дн. 2 44 3/5 2 490 000

Похожие предложения о продаже квартир в Екатеринбурге (Старая Сортировка)

  • 2-к квартира, Техническая, 142

    • 44.5 м2
    • 4/4 этаж
    • Состояние: хорошее
    4 100 000 ₽ (92100 ₽/м2)
    В квартире сделан хороший, капитальный ремонт, заменяна вся проводка,выровнены стены, на полу стяжка, уложен ламинат. Квартира освобождена, отличное местоположение. Оставляем всю мебель и технику.Все вопросы по телефону ID объекта в нашей базе: 6132
    размещено: 29.09.2025 , обновлено: 3.10.2025
  • 2-к квартира, Билимбаевская, 18

    • 44.6 м2
    • 3/5 этаж
    • Состояние: идеальное
    4 150 000 ₽ (93000 ₽/м2)
    Продается 2комнатная квартира, площадь 44,6 кв.мРайон Старая СортировкаКомнаты изолированные.Санузел совмещенный.Окна пластиковые, сейф-дверь, балкон застеклен.Соседи все порядочные.В доме заменены все коммуникации, Новая проводка и щитки, в квартире заменена проводка на кухне.Полная замена стояков водоснабжения и канализации.Два взрослых собственника.Чистая продажа. ID объекта в нашей базе: 1905
    размещено: 19.09.2025 , обновлено: 6.10.2025
  • 2-к квартира, Билимбаевская, 27

    • 44.2 м2
    • 4/5 этаж
    • Состояние: хорошее
    4 200 000 ₽ (95000 ₽/м2)
    Предлагаем Вашему вниманию квартиру в микрорайоне Старая Сортировка.Квартира с косметическим ремонтом, можно заехать и жить!Плюсы расположения:✔ Благоустройство двора✔ Доступность общественного транспорта✔ Доступность магазиновКвартира:- косметический ремонт;- пол-ламинат, плитка-ванна, санузел, стены-обои, потолок натяжной, в гостиной-плитка клеевая ;-двери замены;-хорошая звукоизоляция, соседей не слышно;- окна пластиковые;- счётчики ГВС, ХВС, электрический;- коммунальные платежи, включая вывоз мусора и кап.ремонт : лето-3000 ,зима 4500 ;- сейф дверь ;Дом:- дом 1968;- открытая территория двора, придомовая территория ухоженная зеленая;- наземный паркинг, всегда есть места ;- хорошая транспортная развязка: рядом остановки общественного транспорта;- в шаговой доступности: детские сады (Стрекоза,детский клуб,школа скорочтения и развития интеллекта, 197 м, Непоседы д.сад ,222м), 3 школы: №129-383м,№122-с углубленным изучением отдельных предметов-449м, №129-644м) .2 поликлиники и больницы: Центральная городская клиническая больница №3, терапевтическое отделение №3, 90 м, РЖД-Медицина стационар-682м, парк Семь Ключей, скверы, салоны красоты, аптеки,кафе,рестораны;Легко купить: наличные, ипотека.Поможем с реализацией Вашей недвижимости для приобретения данного объекта.Помощь в одобрении ипотеки по наилучшим ставкам от банков партнёров.Квико недвижимость гарантирует своим клиентам безопасность сделки, наша профессиональная деятельность застрахована. ID объекта в нашей базе: 4682
    размещено: 19.09.2025 , обновлено: 4.10.2025
  • 2-к квартира, Ангарская, 52/3

    • 43 м2
    • 8/9 этаж
    • Состояние: хорошее
    4 400 000 ₽ (102300 ₽/м2)
    Продается уютная двухкомнатная квартира. Дом находится в живописном районе Екатеринбурга, Старая Сортировка м-н. Санузел совмещённый- удобное решение для экономии пространства. Из окон открывается приятный вид во двор, солнечная сторона. Жильё требует косметического ремонта. Во дворе дома расположены детская и спортивная площадки. Рядом находятся школа, детский сад, торговый центр, лесопарк. Транспорт идет почти во все районы города. ID объекта в нашей базе: 923
    размещено: 15.09.2025 , обновлено: 1.10.2025
  • 2-к квартира, Седова, 39

    • 41.1 м2
    • 3/5 этаж
    • Состояние: удовлетворительное
    3 800 000 ₽ (92500 ₽/м2)
    Прошу внимательно читать объявление. В нем есть ответы на большинство вопросов.Свободно продается квартира в центре района. Удобная планировка, две отдельные комнаты, комфортный третий этаж.Квартира чистая, соседи хорошие, пластиковые окна и сейф-дверь. Есть балкон.Рядом весь нужный транспорт, магазины и аптеки, торговые центры, спортзалы, школы и детские сады.Квартира продается свободно. Чистая продажа. Ключи сразу.Можно в ипотеку, можно с материнским капиталом, можно с наличными, можно с безналичными, можно с аккредитивом и безопасными расчетами. В военную ипотеку нельзя, долго.Долгов, проблем, обременений нет. Один взрослый собственник на основании договора купли-продажи. Согласие супруга получено. Никто не прописан.Предусмотрен разумный торг, обсуждается лично на квартире. Предусмотрен бонус профессионалам рынка недвижимости.Отвечаю на звонки с 09:00 до 21:00. Лучше звонить, а не писать. О просмотре прошу договариваться за сутки. Спасибо. Иван. ID объекта в нашей базе: 6531
    размещено: 10.09.2025 , обновлено: 22.09.2025

    2-к квартира, Билимбаевская, 20

    • 36.4 м2
    • 2/5 этаж
    • Состояние: хорошее
    3 490 000 ₽ (95900 ₽/м2)
    Продается 2х.к. квартира в жилом состоянии. Ремонт желателен. Всё наполнение квартиры входит в стоимость. Без долгов и обременений. Один взрослый собственник, зарегистрированных нет. Быстрый выход на сделку. Чистая продажа. Ипотека возможна, помогу в оформлении. ID объекта в нашей базе: 762
    размещено: 09.09.2025 , обновлено: 4.10.2025

    2-к квартира, Маневровая, 23 а

    • 43 м2
    • 2/5 этаж
    • Состояние: хорошее
    3 800 000 ₽ (88400 ₽/м2)
    В чистой продаже двухкомнатная квартира. Квартира с функциональной планировкой, комнаты правильной формы. В подъезде всегда порядок. Квартира удалена от дороги, окна выходят на две стороны, тихий спокойный двор, всегда есть место для парковки. В шаговой доступности детские сады, магазины, остановки общественного транспорта. Собственность более 5 лет. Два взрослых собственника. ID объекта в нашей базе: 6523
    размещено: 01.09.2025 , обновлено: 1.10.2025

    2-к квартира, Кишиневская, 54

    • 43 м2
    • 2/4 этаж
    • Состояние: хорошее
    3 949 000 ₽ (91800 ₽/м2)
    СРОЧНО! ТОРГ! ПРОДАЕТСЯ УЮТНА 2-КОМНАТНАЯ КВАРТИРА В РАЙОНЕ СТАРОЙ СОРТИРОВКИОписание квартиры: ✔ Просторная площадь — идеально для комфортного проживания. ✔ Без перепланировок — всё соответствует документам. ✔ Готово к заселению: заезжайте и живите! Локация и инфраструктура:???? рядом *Верх-Исетское водохранилище* — виды, прогулки, свежий воздух. ???? Парки: зелёная зона у дома, *парк «Семь ключей» *, стадион «Локомотив». ???? Активный отдых: лыжная база РЖД, бассейн. ???? для семей с детьми: школы, сады, ТЦ, остановки транспорта (трамвай, автобус) — всё в шаговой доступностиДополнительно:* Рассматриваем *обмен на вашу недвижимость*. * Любая форма оплаты (ипотека, наличные). * Срочная продажа — торг уместен! Звоните прямо сейчас и приезжайте на просмотр!Ваш идеальный вариант — не упустите ID объекта в нашей базе: 17821
    размещено: 21.08.2025 , обновлено: 25.09.2025

    2-к квартира, Сортировочная, 8

    • 40.8 м2
    • 1/5 этаж
    • Состояние: хорошее
    3 600 000 ₽ (88200 ₽/м2)
    Квартира теплая, чистая и ухоженная. Перепланировка согласована. Один совершеннолетний собственник. По документам все чисто и прозрачно. ID объекта в нашей базе: 3416
    размещено: 18.08.2025 , обновлено: 21.09.2025

    2-к квартира, Кунарская, 4

    • 34.4 м2
    • 1/3 этаж
    • Состояние: хорошее
    3 300 000 ₽ (95900 ₽/м2)
    Продам отличную, уютную, теплую квартиру на первом этаже, в самом центре района. В подарок новым собственникам остается кухонный гарнитур и часть мебели по договоренности, пластиковые окна, натяжной потолок. В доме прошел капитальный ремонт, заменены горячее и холодное водоснабжение, отопление, канализация. В квартире установлены приборы учета. Удачное расположение дома, в непосредственной близости от парка ''Локомотив'', вокруг большое количество различных магазинов, школа 129, детский садик, остановки транспорта (автобус, трамвай) в шаговой доступности. Документы готовы, один взрослый собственник, обременений нет, ипотека возможна. Ждем Вас на просмотр. ID объекта в нашей базе: 1402
    размещено: 13.08.2025 , обновлено: 7.10.2025

    2-к квартира, Билимбаевская, 16

    • 44 м2
    • 1/5 этаж
    • Состояние: удовлетворительное
    4 200 000 ₽ (95500 ₽/м2)
    Продается двухкомнатная квартира на 1 этаже. Ключи передадим на сделке! КВАРТИРА с удобной планировкой: Светлая, просторная. Две раздельные Комнаты. Санузел раздельный. Установлены приборы учета ХВС, ГВС, электроэнергии. ДОМ: панельный, очень теплый. Звукоизоляция хорошая. На этаже мало квартир. РАЙОН: Железнодорожный, Старая Сортировка. До центра легко добраться на машине за 15-20 минут, рядом с домом остановка автобуса. Удобный выезд на ЕКАД и Серовский тракт. Район развит – очень хорошая инфраструктура. Рядом с домом много магазинов, три детских сада и школа, банки, аптека и несколько кафе. ЮРИДИЧЕСКАЯ ЧИСТОТА: Квартира покупалась более трех лет назад. Документы готовы. Материнский капитал не использовался. ДОПОЛНИТЕЛЬНАЯ ИНФОРМАЦИЯ: Рассмотрим покупателя со своей непроданной квартирой. Звоните! ID объекта в нашей базе: 8383
    размещено: 26.06.2025 , обновлено: 23.09.2025

    2-к квартира, Техническая, 53

    • 44.6 м2
    • 2/4 этаж
    • Состояние: идеальное
    4 099 000 ₽ (91900 ₽/м2)
    Лучшее предложение по 2 к.кв. КАЧЕСТВО и ЦЕНА КВАРТИРА: 1 . В 2015 выполнен капитальный ремонт , приглашали бригаду специалистов. Проделали большую работу : - заменили старый пол - провели новую медную проводку - произвели шумоизоляцию - выровняли стены ( углы под 90 градусов) , потолки Установили стеклопакеты, новые радиаторы с терморегуляторами , кондиционер, достойного качества межкомнатные двери , уложили ламинат 33 класса. Самые затратные позиции в ремонте - это санузел и кухня « под ключ» . У нас эти работы выполнены качественно и со вкусом 5. ВАЖНО! У нас есть гардеробная. Сейчас это особо ценится. Квартира очень теплая и солнечная. Окна во двор. ДОМ: Теплый блочный дом с отличной звукоизоляцией. Приятно видеть , как он поэтапно обновляется . Произвели замену всех труб , делают новую кровлю. Двор оборудован : спортивным кортом, современными детскими площадками . В самом доме расположен детский клуб « Искра» с БЕСПЛАТНЫМИ кружками . ИНФРАСТРУКТУРА : В шаговой доступности расположена вся необходимая социальная инфраструктура (художественная школа №4 имени Г.С. Метелева, музыкальная школа №7 имени Рахманинова, поликлиника , лицей № 3 РЖД, школы № 50, 83, школа танцев «Фантазия») Радует то, что в 15 минутах от дома находится стадион « Локомотив», лесопарк и лыжная база « Семь ключей», парк «Таганская Слобода» . Множество торговых центров. Остановка общественный транспорт- 3 минуты. 25 МИНУТ до Центра города БЕЗ ПРОБОК, Важно!!! В стоимость объекта входит: Кухонный гарнитур, оборудованный варочной поверхностью , вытяжкой, духовым шкафом. Кондиционер Документы готовы на 100% , совершеннолетние собственники. ID объекта в нашей базе: 3567
    размещено: 24.05.2025 , обновлено: 22.09.2025

    2-к квартира, Ангарская, 46

    • 43.4 м2
    • 3/9 этаж
    • Состояние: хорошее
    4 400 000 ₽ (101400 ₽/м2)
    ПРОДАМ квартиру район: Старая Сортировка г. Екатеринбург. Квартира двухкомнатная, общая площадь- 43,4 кв. м. , комната- 15,6 кв.м. , спальная-10,4 кв.м., кухня- 7.5 кв.м, 3 этаж, лифт. Квартира светлая, теплая, косметический ремонт(в квартире остается): 1.прихожая оборудована встроенным шкафом,2.комната,3.спальная- встроенный шкаф,4.кухня с выходом на балкон: кухонный гарнитур, встроенная техника,5.ванная и сан. узел совмещенные, отделка кафелем. В квартиру можно заехать без ремонта. Дом блочный, 9 этажей, улучшенной планировки, 2, 6 м. потолки. Зеленый двор. Рядом детский сад №46; школа №122 с углубленным изучением предметов, В шаговой доступности(13 минут пешком) Стадион Локомотив для занятия спортом. Магазины: Пятерочка, Магнит, Бристоль и др. 11 минут до трамвайной остановки, 5 минут до автобусной остановки, очень удачное расположение дома. Обменный вариант на микрорайон Солнечный, ИПОТЕКА ВОЗМОЖНА. Ждем ВАС на просмотр! ID объекта в нашей базе: 1508
    размещено: 13.05.2025 , обновлено: 11.09.2025

    2-к квартира, Надеждинская, 21

    • 36.2 м2
    • 5/5 этаж
    • Состояние: хорошее
    3 500 000 ₽ (96700 ₽/м2)
    В продаже двухкомнатная квартира, расположенная в районе Сортировка, г. Екатеринбург. Эта уютная и светлая квартира идеально подойдёт как для молодой семьи, так и для студентов или людей, ценящих комфорт и удобство городской жизни. Квартира расположена в районе с развитой инфраструктурой. В шаговой доступности находятся школы, детские сады, магазины, аптеки и остановки общественного транспорта. Всегда можно найти парковку для автомобиля. Не упустите возможность стать обладателем этой замечательной квартиры! Звоните для организации просмотра! ID объекта в нашей базе: 4070
    размещено: 06.05.2025 , обновлено: 6.10.2025

    2-к квартира, Расточная, 43/1

    • 42.3 м2
    • 3/5 этаж
    • Состояние: хорошее
    3 900 000 ₽ (92200 ₽/м2)
    Уютная двухкомнатная квартира с отличной планировкой — идеальный вариант для жизни или сдачи в аренду!???? Расположена на комфортном 3 этаже пятиэтажного кирпичного дома.Дом тёплый, с хорошей звукоизоляцией.???? Планировка продумана до мелочей:— Просторный коридор— Две изолированные комнаты — удобно для семьи или арендаторов— Большая, квадратная кухня 8 м² с выходом на застеклённый балкон— Пластиковые окна во всей квартире— Совмещённый санузел— Квартира требует косметического ремонта, а значит — можно создать интерьер своей мечты с нуля!???? Тихий зелёный двор, множество продуктовых магазинов.???? Прямо во дворе — детский сад, школа № 122. Детям даже не нужно переходить проезжую часть! Это удобно и безопасно.???? Во дворе сегда есть парковочные места, Рядом с домом остановка общественного транспорта.???? Добрые и спокойные соседи — атмосфера настоящего уюта и безопасности.???? Звоните — с радостью организуем просмотр в удобное для вас время! ID объекта в нашей базе: 672
    размещено: 21.04.2025 , обновлено: 7.10.2025

    2-к квартира, Техническая, 81

    • 53.3 м2
    • 3/4 этаж
    • Состояние: хорошее
    4 200 000 ₽ (78800 ₽/м2)
    Продаем уютную, светлую 2х-комнатную квартиру на Старой Сортировке. Дом "сталинка" с высокими потолками 3 метра, большими окнами - в квартире много света и пространства! Дом кирпичный, перекрытия железобетонные.Квартира на комфортном 3 этаже, общей площадью 53,3 кв.м. Удобная планировка - две изолированные комнаты площадью 16,6 кв.м. и 15,1 кв.м., окна выходят во двор, удобная квадратная кухня 9 кв.м., просторный коридор, раздельный санузел. Окна пластиковые, есть балкон - он также застеклен и обшит. В остальном квартира требует вложений, но можно сделать сразу свой ремонт и дизайн, а не переделывать имеющийся под себя.Рядом с домом- остановки общественного транспорта (трамвайная и автобусная). Развитая социальная инфраструктура: несколько детских садов, школы №129 и №50, РЖД лицей №3, Уральский железнодорожный техникум. А также: магазины, мед.центры, банки, Спортивный центр и стадион "Локомотив" - все в шаговой доступности.Рядом расположены парки: Парк Локомотив и парк Семь Ключей - где можно совершать вечерние прогулки или утренние пробежки.Квартира без обременений и долгов.Ждем Вас на просмотр! ID объекта в нашей базе: 8074
    размещено: 31.01.2025 , обновлено: 7.10.2025

    2-к квартира, Техническая, 43

    • 44.9 м2
    • 2/5 этаж
    • Состояние: хорошее
    3 990 000 ₽ (88900 ₽/м2)
    Уютная и теплая квартира на втором этаже. Подъезд чистый, спокойные соседи. Дом расположен в тихом дворе в районе с максимально развитой инфраструктурой. В шаговой доступности остановки общественного транспорта. Без обременений. Без перепланировок. Один взрослый собственник. В собственности более 5 лет. Ипотека возможна. ID объекта в нашей базе: 3622
    размещено: 10.12.2024 , обновлено: 28.08.2025

    2-к квартира, Расточная, 13

    • 48 м2
    • 10/10 этаж
    • Состояние: удовлетворительное
    3 999 000 ₽ (83300 ₽/м2)
    Продам двухкомнатную квартиру в одном из экологически чистых районов города – на Старой Сортировке. Дом расположен в 15 минутах ходьбы от Верх -Исетского пруда и любимого места отдыха жителей микрорайона – парка 7 ключей с его живописными прогулочными дорожками и знаменитым родником с чистейшей ключевой водой. Дом удачно расположен: рядом разнообразные виды транспорта – трамвай, автобус, две остановки электрички. Отсюда можно не выезжать, все рядом: летом пешком можно добраться до пляжа, зимой работает лыжная база, для любителей спорта – в двух шагах стадион Локомотив. Для семей с детьми – несколько школ, лицей, детские сады, детская поликлиника. Все, что нужно для комфортной жизни – рядом: магазины Пятерочка, Верный, ТЦ 7 ключей, Кировский. Управляющая компания регулярно следит за состояние дома: в подъезде сделан свежий ремонт, заменены стояки, трубы ГВС и ХВС. Двор ухожен, оборудована большая детская площадка. Комнаты изолированы. Два взрослых собственника. Обременений нет. ID объекта в нашей базе: 16685
    размещено: 30.10.2024 , обновлено: 3.10.2025

    2-к квартира, Билимбаевская, 41

    • 44 м2
    • 8/9 этаж
    • Состояние: хорошее
    4 199 000 ₽ (95400 ₽/м2)
    Продается отличная 2 -х комнатная квартира, комнаты раздельные, в центе Старой Сортировки.Окна заменены, везде счетчики ,один собственник, в собственности более 20 лет, чистая продажа, никто не прописан.Звоните , записывайтесь на просмотр , помогу с ипотекой. ID объекта в нашей базе: 695
    размещено: 11.08.2023 , обновлено: 8.10.2025

    2-к квартира, Расточная, 35а

    • 44 м2
    • 3/5 этаж
    • Состояние: хорошее
    3 880 000 ₽ (88200 ₽/м2)
    Продаем 2х уютную и светлую квартиру. Дом во дворе..но весь транспорт рядом .Дом находится в близи парка Локомотив.большой и зеленый двор с детской площадкой. все магазины. школы .детские сады ID объекта в нашей базе: 586
    размещено: 24.04.2023 , обновлено: 6.10.2025

Новостройки Екатеринбург, мкр-н. Старая Сортировка

Приоритет

Увеличивает просмотры в 3 раза

Ваше объявление показывается в списке выше обычных объявлений. подключить