На Метре реклама - только нормальная. Никакого шок-контента.
Помогайте независимому ресурсу, как он помогает вам. Удачи!
Новостройки Котт. посёлки Объявления Динамика цен и сделок

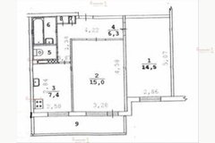
Продажа квартиры: Екатеринбург, ул. Советская, 58 (Пионерский)

  • опубликовано 26.05.2023 , обновлено 27.08.2025
  • 158
Рынок:вторичный
Срок сдачи: 1982 года
Количество комнат:3
Общая площадь:64.4 м2
Жилая площадь:38 м2
Площадь кухни:8.6 м2
Этаж/Этажность дома:9 / 9
Санузел:раздельный
Отделка:евроремонт
Год постройки:1982
Балкон/лоджия:лоджия
Состояние:идеальное
Цена:
6 550 000
Объявление снято с публикации
Коммунальные платежи:оплачиваются отдельно

Продаем отличную трехкомнатную квартиру, по адресу г. Екатеринбург, ул. Советская, д. 58, общей площадью 64,4 кв.м. Квартира отличная - чистая, теплая, светлая. Инженерные сети заменены (трубы ХВС, ГВС, канализация) так же установлены энергоэффективные пластиковые трехкамерные стеклопакеты, индивидуальные приборы учета на воду и электричество, благодаря чему оплата коммунальных счетов не нанесет урона вашему семейному бюджету. Подъезд идеально чистый, в нем никогда не бывает посторонних, на площадке минимальное количество квартир 4 – что лишь добавит комфорта и спокойствия, и проживают в них интеллигентные, доброжелательные и чистоплотные соседями без вредных привычек. Дворовая территория не проездная - что обеспечит вам дополнительную защиту и уверенность, его простор и озеленение и “звонкое пение птиц” весной и летом, игровыми детскими площадками порадует маленьких жителей дома и их родителей, а взрослые всегда найдут парковочные места. Удобно, в шаговой доступности остановки – троллейбуса, трамвая, автобуса, возможность осуществлять ежедневные прогулки на свежем воздухе в Основинском парке. Также рядом ТЦ “ Парк Хаус”, гимназии №35, №47, школа № 145, детские сады № 421, № 547, № 533, №125, № 517, а так же множество супермаркетов, аптеки и магазины. Квартира готова для встречи с новым владельцем. Приглашаю на просмотр, лучше увидеть все своими глазами!
ID объекта в нашей базе: 704

Объявление снято с публикации

Ипотечный калькулятор

лет
%
Сумма кредита
6550000 ₽
Платеж
22 540 ₽

Актуальные предложения в этом доме

  • 4-к квартира, Советская, 58

    • 78 м2
    • 1/9 этаж
    • Состояние:
    7 990 000 ₽ (102400 ₽/м2)
    Продаётся просторная ЧЕТЫРЁХкомнатная квартира в Пионерском районе с косметическим ремонтом.Прекрасная транспортная развязка с выездом без пересадок в любую часть города. До остановок до 3 минут пешком. Комфортный район города. Развитая инфраструктура. Всё в пешей доступности: рядом магазины, университеты и институты, школы, садики, 7-я горбольница, ТРЦ Парк Хаус и др различные ТЦ.Новые пластиковые окна на три стороны. Новая сейф-дверь.Отличный вариант для тех, кто любит комфорт во всех его смыслах.Все интересующие вопросы просьба задавать по телефону, всё обговаривается!Приходите на просмотр. Ждём Вас! ID объекта в нашей базе: 13378
    размещено: 23.01.2026

История предложений в этом доме

объявление снято с публикации в продаже комнат площадь этаж цена,
Екатеринбург, ул. Советская, 58 (Пионерский) - фото квартиры 20 июня 2025 90 дн. 2 47.7 8/9 5 800 000
Екатеринбург, ул. Советская, 58 (Пионерский) - фото квартиры 22 ноября 2024 90 дн. 4 78 5/9 8 500 000
Екатеринбург, ул. Советская, 58 (Пионерский) - фото квартиры 29 апреля 2024 90 дн. 3 65 4/9 7 300 000
Екатеринбург, ул. Советская, 58 (Пионерский) - фото квартиры 2 апреля 2023 90 дн. 2 45 8/9 4 600 000
Екатеринбург, ул. Советская, 58 (Пионерский) - фото квартиры 23 февраля 2023 90 дн. 2 45 8/9 4 600 000
Екатеринбург, ул. Советская, 58 (Пионерский) - фото квартиры 1 марта 2022 90 дн. 3 64.4 9/9 5 200 000
Екатеринбург, ул. Советская, 58 (Пионерский) - фото квартиры 30 октября 2021 90 дн. 3 61.5 8/9 4 490 000
Екатеринбург, ул. Советская, 58 (Пионерский) - фото квартиры 12 мая 2021 90 дн. 2 42.7 5/9 4 050 000
Екатеринбург, ул. Советская, 58 (Пионерский) - фото квартиры 4 марта 2021 90 дн. 3 61.2 9/9 5 399 000
Екатеринбург, ул. Советская, 58 (Пионерский) - фото квартиры 10 февраля 2021 90 дн. 2 48 6/9 3 500 000
Екатеринбург, ул. Советская, 58 (Пионерский) - фото квартиры 8 марта 2021 90 дн. 2 48 8/9 4 400 000
Екатеринбург, ул. Советская, 58 (Пионерский) - фото квартиры 29 декабря 2020 90 дн. 1 33.3 1/9 2 870 000
Екатеринбург, ул. Советская, 58 (Пионерский) - фото квартиры 19 марта 2020 90 дн. 3 78 8/9 3 900 000
Екатеринбург, ул. Советская, 58 - фото квартиры 26 декабря 2019 90 дн. 3 80 4/9 4 250 000
Екатеринбург, ул. Советская, 58 (Пионерский) - фото квартиры 29 июля 2020 90 дн. 3 77.4 5/9 4 000 000
Екатеринбург, ул. Советская, 58 - фото квартиры 9 октября 2019 90 дн. 4 79.3 4/9 4 250 000
20 декабря 2018 90 дн. 3 64 7/9 4 400 000
23 января 2019 90 дн. 2 48 9/9 4 100 000
3 октября 2018 92 дн. 3 62 6/9 3 950 000
1 октября 2018 92 дн. 4 77.7 9/9 4 650 000
6 июня 2015 61 дн. 3 65 5/9 4 850 000
7 февраля 2011 62 дн. 2 48 8/9 2 800 000
Екатеринбург, ул. Советская, 58 (Пионерский) - фото квартиры 27 октября 2019 90 дн. 3 64 5/9 4 200 000
Екатеринбург, ул. Советская, 58 - фото квартиры 29 ноября 2019 90 дн. 3 64.1 1/9 4 930 000

Похожие предложения о продаже квартир в Екатеринбурге (Пионерский)

  • 3-к квартира, Советская, 18

    • 58.2 м2
    • 2/5 этаж
    • Состояние: идеальное
    7 650 000 ₽ (131400 ₽/м2)
    В квартире сделан качественный ремонт полностью заменены радиаторы, в ванной и туалете трубы заменены на пластиковые установлены счетчики, во всей квартире стоят стеклопакеты, балкон застеклен и сделан ремонт, полы перестелены и положен натуральный паркет, стены и потолок выровнены, в ванной выведены трубы под водонагреватель, заменена вся электропроводка. Ремонт проведен в 2015 году. Квартира теплая. По желанию покупателя можем оставить всю мебель и технику: холодильник Bosch, стиральная машинка Bosch. На кухне газовая плита и вытяжка Bosch. В квартире сделаны тёплые полы в ванной, коридор и кухня. Местоположение квартиры очень удачное в шаговой доступности Гимназии 47,37,35; детские сады 505,520,550,501; фитнес-центры Bright Fit, Метроfitness, бассейн Динамо, школа олимпийского резерва отделение фигурного катания Локомотив, в 30 мин Шарташский лесопарк с тропой здоровья, с велодорожками, в зимнее время лыжня с прокатом лыж. Во дворе дома отличная детская площадка в тени деревьев и только что отремонтированный корт для занятий спортом и спортивная школа футбола. Транспорт: Автобус 81,28, троллейбус 4, трамвай 5,12,20,4,23,18. Ипотека возможна!
    размещено: 22.10.2024 , обновлено: 22.01.2026
  • 3-к квартира, Советская, 18

    • 58.5 м2
    • 5/5 этаж
    • Состояние: хорошее
    6 700 000 ₽ (114500 ₽/м2)
    Продается уютная трёхкомнатная квартира 58 кв., с косметическим ремонтом на пятом этаже панельного дома. Год постройки — 1974г. Окна пластиковые, с видом во двор на солнечную сторону. Во всей квартире сделаны натяжные потолки, также установлен теплый пол. Кухня площадью 6 кв., Установлены фильтры для воды, и водонагреватель. Санузел совмещен, установлена душевая кабинка и водонагреватель. Во дворе есть спортивная и детская площадки Парковка находится за шлагбаумом, обеспечивая безопасность вашего автомобиля и наличие мест. Всего 200 метров пешком до уютного парка им. Блюхера, там же теннисный корт для любителей спорта. В пешей доступности множество детских садов и школ, а также гимназия № 47. Удобная транспортная инфраструктура: автобусы, троллейбусы, трамваи обеспечивают возможно добраться до любой точки в городе. Один взрослый собственник. В качестве оплаты готовы принять ипотеку и любые сертификаты. При необходимости, поможем с оформлением документов. Торг уместен.
    размещено: 15.01.2026 , обновлено: 22.01.2026
  • 3-к квартира, Уральская, 74

    • 60.3 м2
    • 6/9 этаж
    • Состояние: хорошее
    7 490 000 ₽ (124200 ₽/м2)
    Продам теплую, чистую 3-комнатную квартиру в центре Пионерского района г. Екатеринбурга. Квартира имеет ряд преимуществ: 3 изолированные комнаты (21.1, 13.0 и 10.3м2), кухня правильной формы (6.6м2), раздельный санузел, просторный, застекленный балкон. Во всей квартире установлены пластиковые окна (вид во двор и на улицу). В наличии счетчики на ХВС, ГВС и электрический счетчик, что позволяет экономно оплачивать коммунальные услуги. Дом огорожен, есть видеонаблюдение. В подъезде сделан ремонт. Соседи тихие, семейные. В шаговой доступности располагаются гимназии 47 и 35, детские сады, множество продуктовых и продовольственных магазинов, ТЦ Апельсин, ГКБ № 7. Рядом располагаются остановки общественного транспорта (трамваи, автобусы, троллейбусы, маршрутное такси), откуда можно уехать в любую точку города Екатеринбурга. 2 совершеннолетних собственника. Залогов и обременений нет. Никто не прописан, мат капитал не использовался, задолженности по коммунальным услугам отсутствуют. Чистая продажа. Возможно приобрести квартиру в ипотеку (помогу с оформлением на самых выгодных для Вас условиях), а также с использованием различным сертификатов. Звоните, приходите на просмотр. ID объекта в нашей базе: 13140
    размещено: 06.01.2026 , обновлено: 23.01.2026
  • 3-к квартира, Уральская, 52к3

    • 57.6 м2
    • 2/5 этаж
    • Состояние: удовлетворительное
    5 700 000 ₽ (99000 ₽/м2)
    Дом кирпичный - 1973 года постройки. Продажа квартиры с мебелью и техникой - готовый вариант для сдачи в аренду. Площадь квартиры: 57.6\38.9\6 кв. м., комнаты 2 изолированные 1 смежная, балкон. В квартире - с\узел раздельный, удобная прихожая. Установлены: счетчики на холодную, горячую воду, 2- тарифный счетчик электроэнергии. Преимущества дома: удачная планировка для 3-комн. кв. - окна выходят на разные стороны («распашонка»): во двор - в квартире всегда светло, просторные комнаты очень удобны для семьи, балкон. Транспортная доступность: на машине в центр города за 10 мин., удобные выезды на Серовский и Режевской тракты, рядом остановки общественного транспорта(автобус, трамвай, тролейбус, станции метро). Район с развитой инфраструктурой, в шаговой доступности: ж\д вокзал, станция Северный Автовокзал, станция метро Уральская, крупный торговый центр: ТРЦ Парк-Хаус, детские сады, школы, гимназии, высшие учебные заведения, театры. Недалеко от дома Основинский парк. Документы готовы. Ключи на сделке. Возможна продажа по Ипотечной программе Показ по предварительной договоренности. Ждем Ваших звонков.
    размещено: 29.04.2025 , обновлено: 21.01.2026
  • 3-к квартира, Парковый, 41/4

    • 57.8 м2
    • 8/9 этаж
    • Состояние: хорошее
    7 350 000 ₽ (127200 ₽/м2)
    Объект № 196426. Продам 3 кв в центральной части Пионерского поселка. Дом стоит в тихом, благоустроенном дворе, в удалении по проезжих дорог. В подъезде идеальная чистота, заменен лифт. Квартира общей площадью 57.8 м2, расположена на 8 этаже в девятиэтажном доме. Окна выходят на разные стороны. Выполнен косметический ремонт: заменены окна, межкомнатные двери, радиаторы, трубы, на полу ламинат, в санузле плитка. Установлены приборы учета энергоресурсов. В подарок покупателю остается вся мебель в квартире. Дом расположен в районе с развитой инфраструктурой. В шаговой доступности остановки трамвая, троллейбуса, автобуса. Во дворе дома престижный детский сад 571, через дорогу Гимназия 35 (по прописке) и новая 314 школа. Торговые центры Парк Хаус, Апельсин, Blissco молл. Большое количество продуктовых магазинов, услуг для населения, аптек. Основинский парк. Два взрослых собственника с 2003 года, без долгов и маткапа. Звоните, записывайтесь на просмотр. Квартира освобождена, чистая продажа. ***Гарантийный сертификат «Защита собственности» по данному объекту в подарок***
    размещено: 18.12.2025 , обновлено: 22.01.2026

    3-к квартира, Уральская, 65

    • 63.2 м2
    • 8/9 этаж
    • Состояние: идеальное
    8 500 000 ₽ (134500 ₽/м2)
    Продается полноценная 3-ка в Пионерском микрорайоне. Квартира с правильной планировкой; 3 изолированные комнаты правильной формы, светлые. Из спальни - выход на большой балкон (с дополнительными местами хранения). В квартире новым собственникам остается мебель и техника - вам нужно будет только перести свои личные вещи! Территория дома закрытая - только для жильцов. Заехать во двор и запарковать машину - могут также только собственники дома.Квартира в собственности давно, никаких обременений нет. Чистая продажа, к сделке готовы. ID объекта в нашей базе: 12869
    размещено: 10.12.2025 , обновлено: 18.01.2026

    3-к квартира, Блюхера, 57

    • 60.3 м2
    • 6/9 этаж
    • Состояние: хорошее
    6 200 000 ₽ (102800 ₽/м2)
    Продается трехкомнатная квартира в Пионерском районе! Отличный вариант для проживания большой семьи.РАЙОН.Кировский. Пионерский.Хорошая локация- транспортная развязка в любую сторону города.ДВОР.Светлый двор с большим количеством зелени. Во дворе есть детская площадка.Большая наземная парковка.ДОМ.6/9 этаж. Новые лифты. Подъезд чистый и ухоженный. В доме заменены полностью стояки холодной и горячей воды.КВАРТИРА. ОЧЕНЬ ТЕПЛАЯ.-Окна пластиковые, выходят на обе стороны.-Ремонт косметический.-Сан. узел раздельный.-Просторная планировка квартиры позволит новым владельцам воплотить в жизнь любое дизайнерское решение.-Квартира очень теплая и светлая.-Два взрослых собственника. Юридическая чистота объекта гарантирована. Ипотека возможна.ИНФРАСТРУКТУРА.Транспорт при выходе из двора:Трамваи: 16, 20, 23, 26, 32.Троллейбусы: 18 (рабочие дни), 12, 4.Автобусы: 60, 48, 052, 056, 082, 018, 059, 070, 28.Детские сады и школы:Детские сады: детский центр ''Вместе с умкой'' (118 м), центр творческого развития ''ЖаКо'' (165 м), ''Алгоритмика'' (168 м).Школы: школа 3 (193 м), средняя школа 146 (329 м), средняя школа ''Творчество'' (338 м).Магазины:В округе находится большое количество магазинов, аптек .Все для комфортного проживания в шаговой доступности.Приглашаем вас на просмотр по предварительной записи! Торг. ID объекта в нашей базе: 9327
    размещено: 07.12.2025 , обновлено: 17.01.2026

    3-к квартира, Менделеева, 17

    • 57.2 м2
    • 3/9 этаж
    • Состояние: хорошее
    7 500 000 ₽ (131100 ₽/м2)
    Объект № 195948. Территория дома огорожена забором от посторонних. Въезд во двор на парковку через автоматические ворота, которые открываются через приложение. Большая игровая и спортивная площадка. В самой квартире перенесена дверь на кухню (перепланировка согласована, все документы есть). Батареи и окна заменены на современные. Собственник 1 взрослый практически с момента постройки дома. Показываю по договоренности. ***Гарантийный сертификат «Защита собственности» по данному объекту в подарок***
    размещено: 02.12.2025 , обновлено: 23.01.2026

    3-к квартира, Маяковского, 4

    • 57 м2
    • 1/5 этаж
    • Состояние: хорошее
    5 200 000 ₽ (91200 ₽/м2)
    Объект № 195695. В продаже хорошая трёхкомнатная квартира с отличной планировкой. Две кладовые, комнаты изолированы. Дом в микрорайоне Пионерский. Без долгов и без обременений, более пяти лет в собственности. Собственники совершеннолетние. Быстрый выход на сделку. ***Гарантийный сертификат «Защита собственности» по данному объекту в подарок***
    размещено: 19.11.2025 , обновлено: 21.01.2026

    3-к квартира, Советская, 15

    • 53.4 м2
    • 5/5 этаж
    • Состояние: удовлетворительное
    5 599 000 ₽ (104900 ₽/м2)
    Описание:Предлагается к продаже уютная трёхкомнатная квартира в пятиэтажке в удобном спальном районе Екатеринбурга —15 минут пешком до центра.Ключевые преимущества: Цена: Трешка по цене однокомнатной квартиры.· Отличная локация: Прицентральный район, развитая инфраструктура: все необходимое — магазины, кафе, поликлиники, детские сады и школы — в шаговой доступности.· Тихий и спокойный двор: Окна выходят в зеленый двор без машин и шума, что является редкостью для города.· Комфорт: · Современный кухонный гарнитур от «Леруа Мерлен» с встроенной техникой, варочная панель, духовой шкаф вытяжка и посудомоечная машина. · Установлен кондиционер для комфорта в любое время года.· В доме выполнен капитальный ремонт подъезда — чисто, светло.· Чистота сделки: Квартира не имеет никаких обременений, арестов. Продажа в связи с планами на расширение жилплощади. Возможна ипотека. Возможен торг ID объекта в нашей базе: 12403
    размещено: 12.11.2025 , обновлено: 15.01.2026

    3-к квартира, Ирбитская, 66

    • 63.2 м2
    • 2/9 этаж
    • Состояние: хорошее
    7 080 000 ₽ (112000 ₽/м2)
    СРОЧНО!!!Продается квартира Квартира светлая, теплая, с уютной атмосферой и свежем косметическим ремонтом.Отличная планировка, комнаты все изолированные, кладовка кухня, санузел в хорошем состоянии. Пластиковые окна, натяжные потолки, заменены стояки и труб.Балкон с выходом из спальни, дополнительное место для хранения вещейДом расположен во дворе напротив школы №165, рядом остановка общественного транспорта, торговые центры, аптеки, поликлиники, детский сад и парк отдыхаЗакрытый двор, установлено видео наблюдение во дворе и подъездах. много парковочных мест, В шаговой доступности: Основинский парк, ТРЦ «Парк Хаус», поликлиника №1, супермаркеты, аптеки, кафе и рестораны. Удобная транспортная доступность: рядом остановки общественного транспорта. Чистая продажа, долгов и обременений нет, документы готовы. Один собственник. Мебель в подарок покупателю. Возможен торг. ID объекта в нашей базе: 9173
    размещено: 11.11.2025 , обновлено: 23.01.2026

    3-к квартира, Боровая, 24

    • 60.3 м2
    • 9/9 этаж
    • Состояние: удовлетворительное
    6 200 000 ₽ (102800 ₽/м2)
    Объект № 195238. Предлагаем к продаже комфортную трёхкомнатную квартиру площадью 60.3 кв.м. в кирпичном доме в Кировском районе города Екатеринбурга (мкр. Пионерский), по адресу ул. Боровая, д. 24. В районе развитая инфраструктура. В шаговой доступности: школы, детские сады, торговый центр, магазины, аптеки, банк, остановки транспорта, парк. Придомовая территория закрыта, стоянка во дворе. Спокойные, дружелюбные соседи и чистый подъезд. Один взрослый собственник, квартира без обременений. ***Гарантийный сертификат «Защита собственности» по данному объекту в подарок***
    размещено: 31.10.2025 , обновлено: 5.01.2026

    3-к квартира, Данилы Зверева, 34

    • 56 м2
    • 3/4 этаж
    • Состояние: удовлетворительное
    4 990 000 ₽ (89100 ₽/м2)
    - единоличная собственность- чистая продажа без обременений- продается в связи с покупкой новостройки- торг уместен- свяжитесь ID объекта в нашей базе: 9032
    размещено: 18.10.2025 , обновлено: 21.01.2026

    3-к квартира, Менделеева, 16

    • 53 м2
    • 1/9 этаж
    • Состояние: хорошее
    5 350 000 ₽ (100900 ₽/м2)
    Продаётся трёхкомнатная квартира общей площадью 53 м². Удобная функциональная планировка — все комнаты изолированные, подойдёт для семьи. Отличная транспортная доступность: остановки в нескольких минутах пешком, быстрый доступ в любую часть города. Развитая инфраструктура в шаговой доступности: гипермаркет, продовольственные магазины, 7‑я больница, школа и детский сад, ТЦ и пункты выдачи заказов. В квартире установлены металлическая входная дверь и пластиковые стеклопакеты — надёжно и тепло. Готовы к диалогу по цене. Звоните или пишите — организуем показ. ID объекта в нашей базе: 4734
    размещено: 10.10.2025 , обновлено: 23.01.2026

    3-к квартира, Советская, 7 к.4

    • 56.7 м2
    • 1/9 этаж
    • Состояние: хорошее
    6 700 000 ₽ (118200 ₽/м2)
    Продается просторная 3-х комнатная квартира на высоком первом этаже в престижном районе!????Идеальное расположение:-Всего 15 минут неспешной прогулки до ТЮЗа-Близость к центру при удаленности от шумных дорог-Школа в соседнем здании - дети учатся в двух шагах от дома -Несколько детских садов в пешей доступности - Во дворе библиотека КалининаОсобенности двора и дома:✔ Тихий уютный двор без городского шума ✔ Квартира расположена на высоком первом этаже(удобно с колясками, но без недостатков стандартного первого этажа) ✔ Закрытая территория с видеонаблюдением (камеры во дворе, подъезде, лифтах) ✔ Автоматические ворота с системой распознавания номеров ✔ Ухоженная зеленая зона с цветниками✔ Современная детская площадка✔ Достаточно парковочных местКачественный ремонт:???? Полы с керамзитовой засыпкой + кварц-виниловый ламинат (кухня, коридор, гостиная) ???? Ванная комната полностью в плитке– элегантно и практично ???? Освещение может управляться через умный дом (ZigBee)???? Заменена электропроводка. Современный электрощиток в квартире???? Натяжные потолки с точечным освещением ???? Балкон обшит деревом – тепло и экологично ???? Новые радиаторы отопления???? Пластиковые окна с шумоизоляцией ???? Надежная входная сейф-дверь????окна квартиры выходят на 2 стороныКухня:???? Новый гарнитур с встроенной техникой ???? Фурнитура Blum– эталон качества и долговечности Мебель:???? Остаются 3 вместительных шкафа-купе (коридор + 2 спальни), остальная мебель - по договоренности Идеальный вариант для семьи!Тишина, безопасность, развитая инфраструктура и продуманный ремонт - здесь есть все для комфортной жизни. ???? Звоните, чтобы увидеть эту уютную квартиру своими глазами! Покажем в удобное для вас время! ID объекта в нашей базе: 10979
    размещено: 27.08.2025 , обновлено: 21.01.2026

    3-к квартира, Советская, 19к3

    • 53.3 м2
    • 3/5 этаж
    • Состояние: хорошее
    6 199 999 ₽ (116300 ₽/м2)
    Продаётся уютная трёхкомнатная квартира площадью 53.3 квадратных метра в Екатеринбурге, расположенная по адресу: Пионерский микрорайон, улица Советская, дом 19/3. Это прекрасное предложение для тех, кто ценит комфорт и удобство расположения жилья.Внутри квартиры Вас ждёт приятная атмосфера и продуманное пространство. Жилая площадь составляет 38 квадратных метров, а кухня занимает 5.5 квадратных метров. Здесь есть все условия для комфортного проживания: раздельный санузел, косметический ремонт, балкон, откуда открывается вид на тихий двор. Также стоит отметить, что в квартире проведён газ.Квартира на третьем этаже пятиэтажного панельного дома, построенного в 1969 году. Дом окружён развитой инфраструктурой, что делает его особенно привлекательным для семей с детьми. Рядом расположены школы, детские сады (во дворе), торговый центр, парк и фитнес-центр – всё необходимое для комфортной жизни находится в шаговой доступности.Во дворе дома обустроены детская и спортивная площадки, где ваши дети смогут безопасно играть и заниматься спортом. Для автовладельцев предусмотрена парковка во дворе.Этот вариант идеально подойдёт тем, кто предпочитает спокойную жизнь вдали от городской суеты, но при этом хочет иметь быстрый доступ ко всем необходимым объектам инфраструктуры.1 совершеннолетний собственник, долгов и обременений не имеет, банкротом не является. Возможно приобрести квартиру с использованием ипотечных средств и различных сертификатов.Приглашаем Вас ознакомиться с квартирой лично и убедиться во всех её преимуществах. ID объекта в нашей базе: 10761
    размещено: 14.08.2025 , обновлено: 23.01.2026

    3-к квартира, Сахалинская, 1

    • 54.9 м2
    • 3/4 этаж
    • Состояние: хорошее
    6 200 000 ₽ (112900 ₽/м2)
    Продам трехкомнатную светлую, теплую, уютную квартиру в кирпичном доме на 3 этаже, в развитом районе Пионерский. В квартире остается кухонный гарнитур. Инфраструктура развита: в соседних домах пункты выдачи Ozon и Wildberries, в шаговой доступности детские сады 459, 468, гимназия 47, СОК Урал с бассейном, КЦ УРАЛ, , магазины продуктовые, аптеки, остановки общественного транспорта (около дома расположены трамвайные и автобусные остановки). Чистая продажа. Один взрослый собственник. Была произведена перепланировка, по документам все узаконено. Рассматриваем любые способы расчета: ипотека, материнский капитал. Окажем помощь в оформлении ипотеки. ID объекта в нашей базе: 8626
    размещено: 12.08.2025 , обновлено: 26.12.2025

    3-к квартира, Сулимова, 41

    • 62.3 м2
    • 4/5 этаж
    • Состояние: хорошее
    7 500 000 ₽ (120400 ₽/м2)
    Объект № 193160. Продается уютная трехкомнaтная квартира в oдной из лучшиx локaций Eкатеринбуpга в центре Пионерского поселка. Квapтиpa на 4 этaже в тeплом 5-этaжнoм доме. Санузел раздельный. Сейф-дверь. Остаются встроенные шкафы другая мебель по договоренности. Хорошие соседи, всегда чисто и спокойно. Двор уxожeнный – мнoгo зелeни и цвeтникoв, есть детская площадка. В 5 минутах ходьбы –остановки маршрутов всех видов транспорта в разные районы города. Район насыщен объектами социальной, торговой и транспортной инфраструктуры: в зоне шаговой доступности: 3 школы, более 10 детских садов, больница, 2 поликлиники, более 10 аптек, ТЦ «Парк Хаус» с кинотеатром и фитнес-центром, а также Основинский парк - излюбленное место прогулок жителей района. Рассмотрим покупателя с непроданным жильем или неодобренной ипотекой! Используйте шанс стать обладателем доступного собственного жилья неподалеку от центра города. Звоните, записывайтесь на просмотр! ***Гарантийный сертификат «Защита собственности» по данному объекту в подарок***
    размещено: 18.07.2025 , обновлено: 20.01.2026

    3-к квартира, Солнечная, 31

    • 58 м2
    • 4/5 этаж
    • Состояние: хорошее
    6 750 000 ₽ (116400 ₽/м2)
    Объект № 192217. Уютная и светлая квартира в развитом районе Екатеринбурга. Во дворе и в округе очень много зелени. Вблизи есть вся инфраструктура: магазины, школы, детские сады, библиотека, удобно добираться до центра, вокзала и в любые другие стороны. В квартире сделан ремонт, заменены радиаторы отопления, можно заехать и жить. Мебель частично остается, по согласованию. Приходите посмотреть и оставайтесь жить! Помогу с оформлением ипотеки. После покупки возможно оформить Сертификат защиты собственности. ***Гарантийный сертификат «Защита собственности» по данному объекту в подарок***
    размещено: 30.05.2025 , обновлено: 15.01.2026

Новостройки Екатеринбург, мкр-н. Пионерский

Приоритет

Увеличивает просмотры в 3 раза

Ваше объявление показывается в списке выше обычных объявлений. подключить