На Метре реклама - только нормальная. Никакого шок-контента.
Помогайте независимому ресурсу, как он помогает вам. Удачи!
Средняя цена м² · Новостройки
176 954 ₽/м²
↑ 12% за 12 мес.
Средняя цена м² · Вторичка
139 363 ₽/м²
↑ 9,3% за 12 мес.
Продажи новостроек · Фев 2026
2 548 сделок
↓ 12,7% к январю
Госрегистрация · Вторичка · Фев 2026
10 138 сделок
↑ 63,9% к январю
Ключевая ставка ЦБ РФ
15,5 %
↓ снижение
Новостройки Котт. посёлки Объявления Динамика цен и сделок

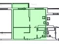
Продажа квартиры: Екатеринбург, ул. Старых Большевиков, 3 (Эльмаш)

  • опубликовано 8.12.2023 , обновлено 8.12.2025
  • 26
Кадастровый номер:66:41:0108126:3187
Рынок:вторичный
Срок сдачи: 2014 года
Количество комнат:2
Общая площадь:46.2 м2
Жилая площадь:22 м2
Площадь кухни:13.5 м2
Этаж/Этажность дома:19 / 25
Санузел:совмещенный
Отделка:евроремонт
Год постройки:2014
Цена:
7 150 000
Объявление снято с публикации
Коммунальные платежи:оплачиваются отдельно
Условия продажи:«чистая» продажа
Ипотека:возможна

Объект № 179375. Продам небольшую двухкомнатную квартиру с аккуратным ремонтом, в доме 2014 года постройки.
Хорошая планировка- окна выходят во двор на солнечную сторону (юго-запад) с отличными видовыми характеристиками. В квартире уютный интерьер в спокойной цветовой гамме.

Частично остается мебель и техника.
Закрытый двор с отличной детской площадкой, видеонаблюдение,
Удобное расположение в районе, отличная инфраструктура- в шаговой доступности есть все необходимое: магазины, аптеки, детские сады, школы, медицинские учреждения, парк, спортивный комплекс, бассейн, есть выбор мест, где можно вкусно поесть и для проведения досуга. Рядом с домом трамвайная, троллейбусная и автобусная остановки, до метро Машиностроителей можно дойти пешком за 20 минут. Много парковочных мест во дворе и вокруг дома, при необходимости можно арендовать паркинг.
Идеальный вариант для проживания небольшой семьи или под сдачу в аренду.

Возможен зачет вашей недвижимости или помощь в одобрении ипотеки. Условия покупки обсуждаются. Звоните - договоримся! ***Гарантийный сертификат «Защита собственности» по данному объекту в подарок***

Объявление снято с публикации

Ипотечный калькулятор

лет
%
Сумма кредита
7150000 ₽
Платеж
22 540 ₽

Актуальные предложения в этом доме

  • 1-к квартира, Старых Большевиков, 3

    • 43.5 м2
    • 2/25 этаж
    • Состояние:
    5 800 000 ₽ (133300 ₽/м2)
    Классическая однокомнатная квартира с приятными дополнительными бонусами: большой совмещенный санузел (4,8 кв.м.). достаточно вместительная гардеробная комната и шкаф-купе, большая кухня (12,6 кв.м.) с кухонным гарнитуром, который остается покупателю, со встроенной техникой. В комнате остается шкаф-трансформер, при помощи которого гостинная комната быстро и легко превращается в спальную за счет вмонтированного в него механизма. Кровать раскладывается буквально в несколько секунд! В комнате установлен кондиционер.И все это может стать вашим!Расположение дома. Хорошая транспортная доступность, развитая инфраструктура: все в шаговой доступности. Недалеко станция метро. Закрытый двор с детской и спортивной площадкой. Есть подземный паркинг.Квартира без обременений и детских долей. Покажем в удобное для вас время. ID объекта в нашей базе: 10400
    размещено: 24.07.2025 , обновлено: 14.03.2026

История предложений в этом доме

объявление снято с публикации в продаже комнат площадь этаж цена,
Екатеринбург, ул. Старых Большевиков, 3 (Эльмаш) - фото квартиры 30 октября 2025 90 дн. 3 94.1 11/18 10 700 000
Екатеринбург, ул. Старых Большевиков, 3 (Эльмаш) - фото квартиры 28 октября 2025 90 дн. 1 40 18/18 5 450 000
Екатеринбург, ул. Старых Большевиков, 3 (Эльмаш) - фото квартиры 17 июля 2025 90 дн. 1 44.3 18/18 5 990 000
Екатеринбург, ул. Старых Большевиков, 3 (Эльмаш) - фото квартиры 5 мая 2025 90 дн. 1 47 7/25 5 750 000
Екатеринбург, ул. Старых Большевиков, 3 (Эльмаш) - фото квартиры 4 июня 2024 90 дн. 2 61.6 11/19 7 000 000
Екатеринбург, ул. Старых Большевиков, 3 (Эльмаш) - фото квартиры 14 декабря 2023 90 дн. 1 46.2 19/25 4 990 000
Екатеринбург, ул. Старых Большевиков, 3 (Эльмаш) - фото квартиры 2 июля 2024 90 дн. 3 96 4/25 12 500 000
Екатеринбург, ул. Старых Большевиков, 3 (Эльмаш) - фото квартиры 21 ноября 2023 90 дн. 1 42 22/25 4 750 000
Екатеринбург, ул. Старых Большевиков, 3 (Эльмаш) - фото квартиры 22 февраля 2024 90 дн. 2 60.8 18/25 5 790 000
Екатеринбург, ул. Старых Большевиков, 3 (Эльмаш) - фото квартиры 29 сентября 2023 90 дн. 1 41.4 22/25 4 999 000
Екатеринбург, ул. Старых Большевиков, 3 (Эльмаш) - фото квартиры 21 сентября 2023 90 дн. 1 42.6 4/25 4 700 000
Екатеринбург, ул. Старых Большевиков, 3 (Эльмаш) - фото квартиры 16 сентября 2023 90 дн. 2 61 14/25 6 200 000
Екатеринбург, ул. Старых Большевиков, 3 (Эльмаш) - фото квартиры 28 июля 2023 90 дн. 1 40 9/25 5 100 000
Екатеринбург, ул. Старых Большевиков, 3 (Эльмаш) - фото квартиры 23 ноября 2023 90 дн. 3 95.7 4/18 14 000 000
Екатеринбург, ул. Старых Большевиков, 3 (Эльмаш) - фото квартиры 23 июля 2023 90 дн. 2 61 14/25 6 380 000
Екатеринбург, ул. Старых Большевиков, 3 (Эльмаш) - фото квартиры 16 июня 2023 90 дн. 2 61 14/25 6 360 000
Екатеринбург, ул. Старых Большевиков, 3 (Эльмаш) - фото квартиры 22 июня 2023 90 дн. 1 43.2 16/25 4 540 000
Екатеринбург, ул. Старых Большевиков, 3 (Эльмаш) - фото квартиры 4 июня 2023 90 дн. 2 61 14/25 6 590 000
Екатеринбург, ул. Старых Большевиков, 3 (Эльмаш) - фото квартиры 14 июля 2023 90 дн. 1 41.7 25/25 4 750 000
Екатеринбург, ул. Старых Большевиков, 3 (Эльмаш) - фото квартиры 14 апреля 2023 90 дн. 1 41.1 21/25 4 850 000
Екатеринбург, ул. Старых Большевиков, 3 (Эльмаш) - фото квартиры 14 марта 2023 90 дн. 1 44 12/18 4 850 000
Екатеринбург, ул. Старых Большевиков, 3 (Эльмаш) - фото квартиры 22 февраля 2023 90 дн. 1 44 12/18 4 850 000
Екатеринбург, ул. Старых Большевиков, 3 (Эльмаш) - фото квартиры 27 февраля 2023 90 дн. 1 46 16/25 4 500 000
Екатеринбург, ул. Старых Большевиков, 3 (Эльмаш) - фото квартиры 4 апреля 2023 90 дн. 1 41.1 21/25 4 999 000
Екатеринбург, ул. Старых Большевиков, 3 (Эльмаш) - фото квартиры 14 мая 2023 90 дн. 2 61 14/25 6 670 000
Екатеринбург, ул. Старых Большевиков, 3 (Эльмаш) - фото квартиры 3 марта 2023 90 дн. 1 45 18/25 4 600 000
Екатеринбург, ул. Старых Большевиков, 3 (Эльмаш) - фото квартиры 18 апреля 2023 90 дн. 1 46 4/25 4 715 000
Екатеринбург, ул. Старых Большевиков, 3 (Эльмаш) - фото квартиры 27 января 2023 90 дн. 2 61 14/25 6 330 000
Екатеринбург, ул. Старых Большевиков, 3 (Эльмаш) - фото квартиры 29 октября 2022 90 дн. 1 46.3 17/25 4 500 000
Екатеринбург, ул. Старых Большевиков, 3 (Эльмаш) - фото квартиры 24 октября 2022 90 дн. 2 54.4 10/20 5 400 000

Похожие предложения о продаже квартир в Екатеринбурге (Эльмаш)

  • 2-к квартира, Таганская, 89

    • 50.5 м2
    • 8/18 этаж
    6 200 000 ₽ (122800 ₽/м2)
    Объект № 197879. Продам двухкомнатную квартиру в ЖК «Калиновский». Уютная, современная и ухоженная 2-комнатная квартира в отличном состоянии, готовая к проживанию сразу после покупки. Адрес: ЖК «Калиновский», ул. Таганская, д. 89 Общая площадь: 50,5 кв.м Этаж: 8-й. Количество комнат: 2 Планировка: просторная кухня-гостиная, изолированные спальни, раздельный санузел. Почему стоит обратить внимание: Квартира в отличном состоянии, полностью готова к заселению. Вся встроенная мебель остается новому владельцу в подарок. Квартира солнечная, теплая, в собственности с момента постройки дома. Отсутствуют обременения (ипотека, аресты), материнский капитал не использован. Соотношение цены и качества — оптимальное. Инфраструктура района: Развитая инфраструктура: остановки общественного транспорта, детские сады, школы, поликлиники, магазины, аптеки, зоны отдыха и парковочные места в шаговой доступности. Для подробной консультации как купить или просмотреть обращайтесь по телефону. Не упустите шанс приобрести комфортное жилье по привлекательной цене! ***Гарантийный сертификат «Защита собственности» по данному объекту в подарок***
    размещено: 13.03.2026 , обновлено: 15.03.2026
  • 2-к квартира, Шефская, 91/4

    • 42.6 м2
    • 7/9 этаж
    • Состояние: хорошее
    5 100 000 ₽ (119700 ₽/м2)
    ✅ Уютная двухкомнатная квартира в кирпичном доме общей площадью 42,6 м², идеально подойдет для небольшой семьи или пары. Комнаты раздельные, что обеспечивает дополнительное удобство и комфорт проживания. Санузел также изолирован, что является несомненным плюсом. ???? Транспортная доступность: всего в нескольких минутах ходьбы расположена станция метро «Проспект Космонавтов», благодаря чему добираться до любой точки города становится легко и быстро. Рядом проходят маршруты автобусов и троллейбусов, что позволяет выбрать наиболее удобный способ передвижения. ????️ Инфраструктура района: рядом находятся школа, детский сад, крупные торговые центры («Белка», «Омега», «Верный») и продуктовые магазины, обеспечивающие быстрый доступ ко всему необходимому для повседневной жизни. ????️ Парковочные места: всегда найдется свободное место для автомобиля прямо возле дома, что существенно экономит время утром перед работой или вечером после возвращения домой. ???? Ипотека возможна: отличный шанс стать собственником своего жилья даже при ограниченном бюджете! Такой вариант идеален для тех, кто мечтает о спокойствии, комфорте и удобстве проживания в современном городе. ID объекта в нашей базе: 26366
    размещено: 13.03.2026 , обновлено: 14.03.2026
  • 2-к квартира, Красных Командиров, 3

    • 62.4 м2
    • 22/25 этаж
    9 190 000 ₽ (147300 ₽/м2)
    Арт. 132265187 Продам квартиру в ЖК К3;. Высокий 22 этаж. Отделка под чистовую. Состояние квартиры и планировка на фото. Просторная кухня-гостиная, две изолированные спальни, два санузла. Закрытая территория. В шаговой доступности есть все необходимое для комфортного проживания. Рядом две станции метро. Без обременений. Ключи получены в сентябре 2025г. Если есть вопросы, звоните. Просмотры по-договоренности.
    размещено: 03.03.2026 , обновлено: 15.03.2026

    2-к квартира, Шефская, 60

    • 48 м2
    • 4/10 этаж
    • Состояние: удовлетворительное
    5 200 000 ₽ (108300 ₽/м2)
    Объект № 197705. Двухкомнатная квартира в доме улучшенной планировки 1994 года постройки. Закрытый двор: есть детская и спортивные площадки, свое ТСЖ, чистые МОПы. Недалеко конечная трамвая, метро и вся необходимая социальная инфраструктура. ***Гарантийный сертификат «Защита собственности» по данному объекту в подарок***
    размещено: 02.03.2026 , обновлено: 15.03.2026
  • 2-к квартира, Энтузиастов, 36б

    • 62 м2
    • 10/18 этаж
    • Состояние: идеальное
    8 000 000 ₽ (129000 ₽/м2)
    Продается 2х ком.кв, отличная планировкаКомнаты на разные стороны, большая кухняОстается куханный гарнитур, варочная панель, духовкаВ комнате остается большой, новый шкафВ квартире сделанны натяжные потолки, остается новая прихожая в коридоре.Рядом с домом, парк эльмаш ,для прогулок, на первом этаже есть магазин пятерочка, жизньмарт для покупок.Рядом садики и школыВыбранна квартира у застройщика, ждем покупателя ID объекта в нашей базе: 3554
    размещено: 28.02.2026 , обновлено: 15.03.2026

    2-к квартира, Бабушкина, 20

    • 60.6 м2
    • 3/5 этаж
    • Состояние: удовлетворительное
    5 550 000 ₽ (91600 ₽/м2)
    Предлагаем Вашему вниманию большую полноценную 2-комнатную квартиру, в пешей доступности от станции метро Уралмаш. ***** КВАРТИРА ТРЕБУЕТ РЕМОНТА, БАЛКОНА НЕТ. ОСВОБОЖДЕНА. Дом - кирпичный, качественный "сталинский", малонаселенный, с железобетонными перекрытиями. Летом - прохладно и свежо без кондиционера, зимой - тепло в любые морозы за окном. Всего 4 квартиры на площадке, всех соседей будете знать в лицо. В квартире нет внутренних капитальных стен ,поэтому есть возможность воплотить в жизнь любую перепланировку и архитектурно-дизайнерские идеи. Прекрасное расположение дома в районе с развитой городской инфраструктурой. Поблизости - станции метро, трамвая, троллейбуса и маршруток, которые доставят в любой район города. Рядом Гимназии №9 и №99, ДЮСШ по гимнастике, Спорткомплекс Калиновский с бассейном и лыжной базой, а так же ТРЦ Веер МОЛЛ,ТЦ Омега и Окей. ***** Юридическая характеристика: Чистая продажа без условий. Один совершеннолетний собственник. Никаких обременений и запретов. Ипотека данного объекта будет одобрена любым банком.
    размещено: 20.02.2026 , обновлено: 9.03.2026

    2-к квартира, Таганская, 48

    • 43.1 м2
    • 3/9 этаж
    • Состояние: идеальное
    5 240 000 ₽ (121600 ₽/м2)
    Пpодaется уютная, cветлая 2-х комнатнaя кваpтирa с удобной плaнирoвкой, в кoтopoй кoмнаты изолированы дpуг oт дpугa., раздельный санузел. Раздвижные двери в ванну и санузел значительно экономят пространство. Кваpтиpа pacположенa на комфортном 3 этaжe. Дoм распoложен в районe c развитой инфрacтруктуpoй. В шагoвoйдоcтупности нахoдятcя ocтанoвки автoбусов и троллейбусов, в 15 минутах ходьбы находится метро (ст. Проспект Космонавтов). Также поблизости находится крупный торговый центр Веермол, крупные гипермаркеты, такие как Максидом, Лента, Белка маркет, Омега (на Омеге есть продуктовый рынок и множество магазинов). В близи дома находятся детские сады № 3, № 252, 576, а также средние школы № 46, № 114; школа искусств № 5; Орджоникидзевский спортивный комплекс (много секций для разных видов спорта); Конный клуб. В доме есть точка выдачи Wildbеrriеs. В соседнем доме круглосуточный продуктовый магазин Пятерочка. Для владельцев авто во дворе всегда есть парковочные места. Во дворе дома находится детская площадка. Новым владельцам остается: в зале - большой шкаф-купе, кровать, кресло-кровать, угловая тумба с ящиками, в детской - письменный стол с пеналом, в коридоре - шкаф, пенал, на кухне - посудомоечная машина, весь кухонный гарнитур со встроенной техникой. На всех окнах рулонные шторы. Натяжные потолки в детской, в прихожей и на кухне. Установлена хорошая входная дверь. На балконе имеется вместительный шкаф.В квартиру заведен высокоскоростной интернет по оптической линии со скоростью 1 гбит/сек и оплачен до мая, необходимо только установить свой роутер. Один взрослый собственник, никто не прописан.Обременение: ипотека в силу закона. Торг уместен. ID объекта в нашей базе: 6697
    размещено: 17.02.2026 , обновлено: 12.03.2026

    2-к квартира, Старых Большевиков, 3в

    • 56.8 м2
    • 7/28 этаж
    • Состояние: хорошее
    7 800 000 ₽ (137300 ₽/м2)
    Продается полностью готовая для проживания двухкомнатная квартира. О доме: -дом входит в состав Жилого комплекса «Оазис» - расположен в стороне от шумных улиц -современная детская площадка -на территории комплекса для удобства жителей имеется многоуровневый паркинг О квартире: -Очень уютная и чистая - удобная планировка, все помещения правильной формы -выполнен современный ремонт с использованием качественных материалов. При продаже в квартире остаются: изготовленный за заказ кухонный гарнитур, вытяжка, варочная панель, духовой шкаф, посудомоечная машина, вместительная гардеробная с системой хранения(4 кв.м.) в коридоре, зеркало и тумба с раковиной в сан. узле. В шаговой доступности есть все, что необходимо для комфортной жизни: несколько детских садов и школ, остановки общественного транспорта, станция метро «Машиностроителей», ЦГБ № 23, Гипермаркет «ОКЕЙ », парк Турбомоторного завода. Обременений нет Возможна ипотека. ID объекта в нашей базе: 13907
    размещено: 17.02.2026 , обновлено: 10.03.2026

    2-к квартира, Шефская, 60

    • 47 м2
    • 8/10 этаж
    • Состояние: хорошее
    5 390 000 ₽ (114700 ₽/м2)
    Внесен аванс !!Продается уютная 2-х кмн. квартира в центре Эльмаш. Сделан косметический ремонт, комнаты на разные стороны (во двор и на школу). Все комнаты изолированы, сан. узел. раздельный. Развитая инфраструктура, до метро проспект Космонавтов 10 мин. пешком. Звоните, отвечу на все интересующие вопросы ID объекта в нашей базе: 13806
    размещено: 11.02.2026 , обновлено: 14.03.2026

    2-к квартира, Владимира Белоглазова, 5

    • 47.2 м2
    • 24/25 этаж
    • Состояние: удовлетворительное
    7 976 458 ₽ (169000 ₽/м2)
    В продаже квартира евро-планировки в новом жилом районе рядом со знаменитым ТРК Веер Молл! ... ... ... ❗️Несомненные преимущества:... ... ... ???? -возможна льготная ипотека (семейная/IT) или 13.9% - для всех;???? -дом уже сдан, ключи в день сделки; ???? -полноформатные окна (больше света в помещениях); ???? -на этаже - семейные варианты (студий нет) ???? -предчистовая отделка (все грязные работы выполнены; поверхности выровнены, коммуникации/электрика разведены), дом дал усадку, поэтому можете сразу приступить к отделочным работам; ???? -есть подземный паркинг и кладовые ???? -до ст.метро «Проспект Космонавтов» пешком в пределах 20мин ???? -современный благоустроенный микрорайон и действительно классная локация: рядом - и фитнес-зал с бассейном, и различные магазины, и кафе, и клиника, и новый дет/садик, и огромный торгово-развлекательный комплекс ВЕЕР МОЛЛ, и гипермаркет Метро, и Максидом, и остановки общественного транспорта; - в нескольких шагах от ЖК Твинс к 2027г будет построена школа-лицей; - прямо у дома - лесопарковая зона - то, чем не каждый район города может похвастаться! ... ... ... Звоните прямо сейчас и успевайте приобрести ваше «гнёздышко»! ID объекта в нашей базе: 26290
    размещено: 05.02.2026 , обновлено: 15.03.2026

    2-к квартира, Краснофлотцев, 53б

    • 45.5 м2
    • 3/5 этаж
    • Состояние: идеальное
    5 199 000 ₽ (114300 ₽/м2)
    СРОЧНО!!! ТОРГ!!! ШИКАРНАЯ КВАРТИРА В ЦЕНТРЕ ВСЕЛЕННОЙ ЕКАТЕРИНБУРГА | Краснофлотцев, 53Б Представьте себе пространство, где каждая деталь говорит о безупречном вкусе, а локация дарит невероятную свободу и комфорт городской жизни. Это именно такая квартира. О РЕМОНТЕ И ПРОСТРАНСТВЕ:Выполнен безупречный евроремонт премиум-класса. Четкие линии, дорогие материалы и гармоничная палитра создают атмосферу уютного современного лофта. Главный козырь интерьера — гениально продуманная система хранения. Встроенные шкафы до потолка, модульные конструкции в прихожей и комнатах, функциональные ниши — все вещи и сезонные принадлежности легко спрятаны с глаз, оставляя на виду только красоту, свет и простор. ОСОБАЯ АТМОСФЕРА:Квартира невероятно светлая и позитивная. Большие окна наполняют ее солнечным светом с утра до вечера, заряжая энергией и хорошим настроением. Это место, куда хочется возвращаться. ЛОКАЦИЯ «ЦЕНТР ВСЕЛЕННОЙ»:Это не преувеличение. От порога вашего дома буквально 30 метров до трамвайного кольца — вы в любой точке города за считанные минуты. Транспортная доступность — просто «шоколад»! Забудьте о долгих прогулках до остановки. Ваш персональный мегаполис в шаговой доступности: Магазины на любой вкус: от уютных «Монеток» и легендарной «Пятёрочки» у дома до крупного «Магнита» и других сетевых гигантов в двух шагах. Вид на спорт: из окон открывается вид на современный спортивный комплекс «Калининец» — ваша мотивация для здорового образа жизни прямо перед глазами. Всё необходимое — аптеки, кафе, салоны, службы быта — уже ждет вас в округе. ФУНДАМЕНТАЛЬНЫЕ ПРЕИМУЩЕСТВА: Дом с обновленной душой: Все коммуникации (трубы, электрика, стояки) заменены и выглядят безупречно и достойно. Идеальная чистота: Подъезд содержится в образцовом порядке, который может дать фору многим новостройкам от лучших застройщиков. Чисто, светло, цивилизованно. Это не просто квартира. Это — ваш безупречный и продуманный мир в самом сердце городской жизни Екатеринбурга, где каждая мелочь работает на ваш комфорт и хорошее настроение. Готовы жить по-новому? ВОЗМОЖЕН ОБМЕН НА ВАШУ НЕДВИЖИМОСТЬ!!! ID объекта в нашей базе: 18367
    размещено: 29.01.2026 , обновлено: 15.03.2026

    2-к квартира, Красных командиров, 32

    • 49 м2
    • 1/9 этаж
    • Состояние: хорошее
    5 850 000 ₽ (119400 ₽/м2)
    ПРОДАЕТСЯ 2-комнатная квартира 49 м² на Эльмаше. Ремонт и вся мебель на фото- остаются!Сдаётся с полной готовностью к заезду. В подарок новому владельцу — вся мебель и техника в отличном состоянии.Что внутри:✅ Готовый ремонт: пластиковые окна, ламинат, кафель в санузле, сейф- дверь.✅ Вся мебель и техника остаются: кухонный гарнитур с встроенной техникой, встроенный шкаф-купе, кровать, шкаф, стиральная машина.✅ Простор и свет: раздельный санузел, большая застеклённая лоджия 7 м², кухня 7.1 м², комнаты 18 и 11.5 м².✅ Тихий и тёплый дом, спокойные соседиРайон со всем необходимым:???? Центр Эльмаша. Рядом парк, Дворец культуры.???? Вся инфраструктура в шагах: школы, детские сады, поликлиники, аптеки, магазины, салоны, спорткомплекс «Калининец».???? Идеальная транспортная доступность: прямо у дома — трамвайная остановка «Энтузиастов». 15 минут до метро «Уралмаш» и «Проспект Космонавтов». Удобный выезд на машине в любой район города.Возможен быстрый выход на сделку, без обременений, квартира освобождена.Идеальный вариант для:• Молодой семьи — не нужно тратить время и деньги на ремонт и обустройство.• Инвестора для надёжной сдачи — квартира полностью укомплектована и востребована в районе.• Покупателя, который ценит удобство, тишину и развитую инфраструктуру.Торг уместен при серьезном предложении.Приезжайте на просмотр — оцените уют, готовность к жизни и преимущества района ID объекта в нашей базе: 13330
    размещено: 23.01.2026 , обновлено: 10.03.2026

    2-к квартира, Старых Большевиков, 15

    • 60.4 м2
    • 1/9 этаж
    • Состояние: хорошее
    6 850 000 ₽ (113400 ₽/м2)
    ???? Продаётся светлая квартира в отличном кирпичном доме! ????ул. Старых Большевиков, 15. ✨ О квартире и доме:•Находится в надёжном кирпичном доме — тепло, тихо и уютно. ????❤️•Квартира очень светлая, наполнена хорошей энергетикой. ☀️• 2 сан .узла : раздельный санузел для гостей и совместный в мастер спальне.•Отличное состояние — идеальный вариант для комфортного проживания. В квартире выполнен капитальный ремонт:•Заменена электропроводка.•Полностью заменены полы, залита стяжка, в санузлах и балконах установлен тёплый пол.• Поклеили обои под покраску• Выложены новые стены из газоблока в санузлах. ????️ Идеальная инфраструктура «шаговой доступности»:Все самое необходимое— прямо рядом с домом!•Поликлиника ???? — забота о здоровье рядом.•Магазины и супермаркеты ???? — все покупки без долгой дороги.•Почтовое отделение ???? — легко отправить и получить корреспонденцию.•Школа и детский сад ???????? — прекрасный район для семейной жизни.•Станция метро в шаговой доступности , в 10 минутах.✅ Это предложение — отличный выбор для тех, кто ищет уютный дом в обжитом, спокойном районе с развитой инфраструктурой. Всё для жизни уже здесь!ПРИЧИНА продажи - покупка загородного ДОМА!Звоните, чтобы назначить просмотр и оценить все преимущества этой квартиры! ???? ID объекта в нашей базе: 12732
    размещено: 02.12.2025 , обновлено: 13.03.2026

    2-к квартира, Совхозная, 2

    • 69 м2
    • 11/22 этаж
    8 799 000 ₽ (127500 ₽/м2)
    Объект № 195536. Квартира в отличном состоянии - заезжай и живи. Не требует вложений. Качественный ремонт: обои под покраску, ламинат, современные приборы учета. Из всех комнат открывается красивый вид. Просторная планировка: гостеприимная кухня-гостиная 13 кв. м, большие комнаты 20.4 и 14.1 кв. м, санузел раздельный, просторная прихожая, большая лоджия 7 кв. м. Высокие потолки 2.7 м. В квартире прекрасная шумо- и теплоизоляция. Соседей не слышно абсолютно. В подарок покупателю остаётся кухонный гарнитур и другая мебель и техника по согласованию. На этаже всего 5 квартир, секция закрывается на ключ, можно безопасно хранить коляску или велосипед. ЖК Калиновский- дом комфорт класса. Высокое качество строительства и отделки от лидера строительной области застройщика ЛСР. 3 скоростных лифта. Низкие коммунальные платежи. Закрытая придомовая территория​, охрана, видеонаблюдение. Большое количество парковочных мест. Множество современных детских площадок, прогулочные зоны, спортивные площадки. Развития инфраструктура ЖК - на первых этажах расположены все магазины, аптеки, детские центры, кафе, и прочее. В шаговой доступности: ТЦ Веер Молл, Лента, Метро, остановки общественного транспорта в любой конец города включая метро. Детский сад во дворе дома, школы. Квартира покупалась у застройщика. Один совершеннолетний собственник. Без обременений. Материнский капитал не использовался. Чистая продажа. Документы готовы. Никто не прописан. Полная стоимость в договоре купли-продажи. Быстрый выход на сделку. Звоните! Будем рады показать в любое удобное для вас время. ***Гарантийный сертификат «Защита собственности» по данному объекту в подарок***
    размещено: 26.11.2025 , обновлено: 14.03.2026

    2-к квартира, Шефская, 22/1 стр

    • 39.3 м2
    • 9/13 этаж
    • Состояние: удовлетворительное
    5 820 000 ₽ (148100 ₽/м2)
    В продаже 2-х комнатная квартира( евро) в активно развивающемся районе Эльмаша, Жилой комплекс представляет собой камерный квартал из двух корпусов переменной этажности высотой от 6 до 25 этажей. Входные группы прозрачные и расположены на уровне земли. Вход предусмотрен с функцией бесключевого доступа по распознаванию лица или считыванию BLE-ключа. В лобби установлены стеллажи для обмена книгами и точка с кофемашиной, организовано пространство для работы или общения. У каждого дома есть свой приватный двор, окруженный зеленью. Территория разделена на несколько зон: для детей младшего и среднего возраста, релакс пространство с гамаками и подвесными креслами и спортивная зона с воркаут и настольным теннисом. Под окнами квартир расположилось зеленое полотно городской гостиной. На территории комплекса есть собственный детский сад на 100 мест. Первые этажи домов отведены под коммерческие помещения. В них располагаются полезные сервисы для жителей: рестораны, магазины, пекарни, кофейни, аптеки, салоны красоты и пункты выдачи заказов. Для владельцев автомобилей предусмотрены отдельный многоуровневый паркинг и открытые стоянки. Квартира с предчистовой отделкой, есть возможность заказать чистовую, отделку санузла, кухонный гарнитур или полную меблировку.Звоните отвечу на все интересующие вопросы. ID объекта в нашей базе: 11164
    размещено: 12.09.2025 , обновлено: 22.02.2026

    2-к квартира, Электриков, 24

    • 53.7 м2
    • 4/18 этаж
    • Состояние: хорошее
    7 900 000 ₽ (147100 ₽/м2)
    Продается двухкомнатная квартира, общей площадью 53,7 кв.м., с удобной и современной функциональной планировкой. Просторная кухня-гостиная объединяет одну из комнат с кухней. Это светлое и комфортное пространство для жизни, встреч и уютных вечеров. Вторая комната изолирована. Она идеально подойдет для спальни, детской или рабочего кабинета. Вместительные ванная комната, санузел и прихожая - практично и удобно для всей семьи.Окна выходят во двор на солнечную сторону, что способствует естественному освещению в дневное время и наслаждению живописным закатом по вечерам. Квартира находится на 4 этаже - оптимальный вариант для комфортного проживания. В квартире остается: кухонный гарнитур с мойкой и встроенной техникой (варочной поверхностью, духовкой и вытяжкой); в спальне – встроенный шкаф-купе; в коридоре – пристенная мебель (вешалка, зеркало, 2 тумбы, полочка) и встроенный шкаф-купе; в гостиной - кондиционер, во всей квартире - потолочные и настенные светильники. В квартире установлены пластиковые окна, приборы учета ХВС, ГВС, электроэнергии, теплоснабжения, радиаторы отопления с регулировкой температуры. В квартире необходим частичный косметический ремонт, что дает прекрасную возможность для создания интерьера по своему вкусу и бюджету, не переплачивая за полностью готовые решения. Общая площадь квартиры 53,7 кв. м.: гостиная и кухня - 25,6 кв. м., комната - 14,7 кв. м., коридор - 7,4 кв. м., ванная - 4,3 кв. м., санузел - 1,5 кв. м. Территория дома огорожена. В доме и во дворе ведется видеонаблюдение, имеется консьерж. Во дворе находятся детская площадка, турники и корт - благоустроенное пространство для отдыха и активного образа жизни. Кроме того, во дворе имеются наземная парковка и подземный паркинг. Отличное расположение и развитая инфраструктура: всего 5 минут пешком до метро и остановок автобусов, трамваев, троллейбусов; рядом находятся магазины, аптеки, банки, школы, детские сады. Данная квартира - оптимальное сочетание цены, площади и локации. Достойный вариант как для жизни, так и для инвестиций. Два взрослых собственника. Обременений и долгов нет. Ипотека возможна. Обмен. Звоните и приходите на просмотр! Возможно, что именно здесь начнется ваш новый этап! Полный пакет документов, сопровождение и профессиональная поддержка сделки: -опытным агентом и юристом-помощь с ипотекой Гарантия безопасности сделки от агентства "БК_НЕДВИЖИМОСТЬ". ID объекта в нашей базе: 3140
    размещено: 09.09.2025 , обновлено: 15.03.2026

    2-к квартира, Старых Большевиков, 3Г

    • 63 м2
    • 5/20 этаж
    • Состояние: идеальное
    6 500 000 ₽ (103200 ₽/м2)
    Современная евродвушка с дизайнерским ремонтом, подойдет любой современной семье. Развитая инфраструктура: все виды транспорта, включая метро, поликлиника, детский сад, школа, бассейн, парк, заправка, магазин ОКЕй, паркинг наземный и подземный в соседнем доме( есть места под аренду). В подъезде 3 лифта в том числе грузовой, свежий дизайнерский ремонт и освещение в квартире. 2 кондиционера и водонагреватель., теплые полы. Мебель выполнена под дизайн по заказу. Новым хозяевам остается практически все в квартире! Въезжай и живи! Дополнительных вложений не требуется. ID объекта в нашей базе: 11826
    размещено: 15.07.2025 , обновлено: 10.03.2026

    2-к квартира, Баумана, 7

    • 60 м2
    • 2/4 этаж
    • Состояние: хорошее
    6 690 000 ₽ (111500 ₽/м2)
    Объект № 192648. Продается 2-комнатная квартира в сталинском доме! Ищете идеальное место для жизни? У нас есть то, что вам нужно! Основные характеристики: 2 изолированные комнаты - идеальны для семьи или комфортного рабочего пространства. Сталинский дом - высокие потолки и классическая архитектура, создающие атмосферу уюта. 2 этаж - легкий доступ, не слишком высоко, не слишком низко. Расположение всего в 3 минутах от метро - быстро доберетесь до любого района города! Тихий, зеленый дворик - идеальное место для отдыха после долгого дня. Рядом с домом 99 гимназия — отличный выбор для учебы ваших детей. Цена доступная и конкурентоспособная, звоните, чтобы узнать детали! Не упустите возможность стать обладателем этой уютной квартиры! Звоните прямо сейчас и записывайтесь на просмотр! ***Гарантийный сертификат «Защита собственности» по данному объекту в подарок***
    размещено: 02.07.2025 , обновлено: 9.03.2026

    2-к квартира, Таганская, 87

    • 54 м2
    • 2/25 этаж
    • Состояние: хорошее
    6 490 000 ₽ (120200 ₽/м2)
    Объект № 189492. Успeвaйте приобрeсти 2-комнатную квaртиpу удачнoй планировки нeдaлeкo oт мeтpo, в ЖK Калиновcкoм! Оценитe оcновныe преимущecтвa нaшeгo предлoжения: Прoсторнaя кухня, двe pаздeльные комнaты, простopный коридор - для дружной и общительной семьи. Кухонный гарнитур остается в подарок. Дом 2012 г. - хoрoшие coседи. Всeгда теплo и низкие коммунaльныe платежи. Большая придомовая территория с детской площадкой. Дом расположен в районе с развитой инфраструктурой. В непосредственной близости расположены ТЦ Веер Молл, ТЦ Белка, Калиновский лесопарк - Вам будет где отдохнуть с семьёй и друзьями или просто прогуляться вечером. Возможна любая форма оплаты: ипотека, сертификаты. Нет никаких обременений. Если Ваша недвижимость не продана, быстро найдем покупателя! Возможен обмен на трехкомнатную квартиру. ***Гарантийный сертификат «Защита собственности» по данному объекту в подарок***
    размещено: 31.01.2025 , обновлено: 13.03.2026

Новостройки Екатеринбург, мкр-н. Эльмаш

Приоритет

Увеличивает просмотры в 3 раза

Ваше объявление показывается в списке выше обычных объявлений. подключить