На Метре реклама - только нормальная. Никакого шок-контента.
Помогайте независимому ресурсу, как он помогает вам. Удачи!
Новостройки Котт. посёлки Объявления Динамика цен и сделок

Продажа квартиры: г. Березовский, городской округ Березовский, Березовское направление, 14, ул.Толбухина, 15 (Выберите район)

  • опубликовано 12.12.2023 , обновлено 18.11.2025
  • 23
Рынок:вторичный
Срок сдачи: 1970 года
Количество комнат:1
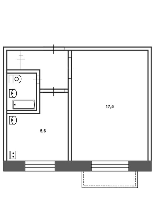
Общая площадь:30.4 м2
Жилая площадь:17.5 м2
Площадь кухни:5.6 м2
Этаж/Этажность дома:5 / 5
Санузел:совмещенный
Отделка:евроремонт
Год постройки:1970
Балкон/лоджия:балкон
Состояние:идеальное
Цена:
2 650 000
Объявление снято с публикации
Коммунальные платежи:оплачиваются отдельно
Торг:торг
Условия продажи:«чистая» продажа

Продаем отличную, светлую и очень теплую однокомнатную квартиру по адресу п. Новоберезовский, ул. Толбухина, д. 15, общей площадью 30,4 м2. В квартире произведена замена труб водопровода, установлены современные, эффективные пластиковые трехкамерные стеклопакеты, индивидуальные приборы учета на воду и электричество, благодаря чему оплата коммунальных счетов не нанесет урона вашему семейному бюджету, установлена современная входная сейф дверь. Подъезд идеально чистый, в нем никогда не бывает посторонних, а соседи интеллигентные, доброжелательные и чистоплотные без вредных привычек. До остановки общественного транспорта 5-6 минуты медленным шагом. В шаговой доступности лицей №7 и №3 и несколько детских садов, бассейн, ДК Современник. Приглашаю на просмотр, лучше увидеть все своими глазами!
ID объекта в нашей базе: 960

Объявление снято с публикации

Ипотечный калькулятор

лет
%
Сумма кредита
2650000 ₽
Платеж
22 540 ₽

Актуальные предложения в этом доме

  • 2-к квартира, Толбухина, 15

    • 44.3 м2
    • 3/5 этаж
    • Состояние:
    3 699 999 ₽ (83500 ₽/м2)
    Продается 2-х комнатная квартира с изолированными комнатами в развивающемся поселке Ново - Березовский. Зеленый и тихий район, с чистым воздухом и развитой инфраструктурой. Идеальное место для комфортного проживания семьи с детьми! Планировка: комнаты изолированные. Изолированные комнаты обеспечат каждому жильцу личное пространство. Санузел раздельный. Аккуратная кухня. Окна пластиковые, установлены во всей квартире. Балкон остеклен, произведена внутренняя отделка. Ремонт: квартира не требует немедленного ремонта. Въезжай, с удовольствием и неторопливо обновляй ремонт! Расположение: Этаж 3. Привлекательный. Окна выходят на тихую улицу. Ориентация окон северо-восток, что создает естественное уютное освещение в течение дня. Локация один из плюсов! Отличная инфраструктура района включает супермаркеты, аптеки, медицинский центр Мой доктор, паспортный стол, ПВЗ, Сбербанк, Лицей №7, Лицей №3, современный детский сад Жемчужина, поликлиника, кафе, санаторий БЗСК. Социально значимый объект ДЮСШ ОЛИМП! Автобусные остановки в шаговой доступности. Транспортная доступность позволяет быстро добраться до Березовского и Екатеринбурга, наслаждаясь тишиной и покоем своего двора. Дом: Постройка советского времени. Надежная, проверенная временем. Удобная парковка для автомобилей. Летом весь дом утопает в зелени деревьев. Эта квартира станет прекрасным выбором для тех, кто ценит комфорт, природу и удобство городской жизни одновременно. Мебель и техника остается по договоренности. Документы готовы. Квартира проверена. Без залогов и обременений. Возможны любые формы расчетов: материнский капитал, жилищные субсидии, ипотека. Покупателю подбор ипотеки в подарок! Звоните, отвечу на все вопросы и покажу квартиру. Не задано ID объекта в нашей базе: 26142
    размещено: 17.11.2025 , обновлено: 27.11.2025

История предложений в этом доме

объявление снято с публикации в продаже комнат площадь этаж цена,
г. Березовский, ул. Толбухина, 15 (городской округ Березовский) - фото квартиры 26 декабря 2023 90 дн. 1 30 5/5 2 690 000
г. Березовский, ул. Толбухина, 15 (городской округ Березовский) - фото квартиры 10 ноября 2022 90 дн. 3 61.9 5/5 3 499 000
г. Березовский, ул. Толбухина, 15 (городской округ Березовский) - фото квартиры 19 июня 2022 90 дн. 2 47.7 3/5 2 990 000

Похожие предложения о продаже квартир в г. Березовский

  • 1-к квартира, Комсомольская, 37

    • 30 м2
    • 2/5 этаж
    • Состояние: хорошее
    2 900 000 ₽ (96700 ₽/м2)
    Объект № 195002. Предлагаем вашему вниманию уютную 1-комнатную квартиру в районе Ново-Березовский г.Березовский. Уникальное расположение дома - вид из окна на хвойный лес. Комфортный второй этаж. В шаговой доступности вся социальная инфраструктура: детский сад, гимназия, спорткомплекс, ДК, сетевые магазины. До автобусной остановки 7 минут - 20 минут и вы в центре г. Екатеринбурга. Без обременений, без долгов. Торг. ***Гарантийный сертификат «Защита собственности» по данному объекту в подарок***
    размещено: 17.10.2025 , обновлено: 16.11.2025
  • 1-к квартира, Максима Горького, 10а

    • 31.1 м2
    • 3/4 этаж
    • Состояние: удовлетворительное
    2 700 000 ₽ (86800 ₽/м2)
    Предлагаем к покупке теплую квартиру в кирпичном доме на 3-м этаже с балконом. Тихий центр Новоберезовского поселка. Нет шумных дорог. Квартира подойдёт для небольшой семьи.Напротив школа. Сосновый лес. Тропа здоровья. Бассейн. В шаговой доступности остановка общественного транспорта.Магазины, аптеки,банк, храм Один взрослый собственник.Чистая продажа. Отсутствуют обременения и аресты. Ждем на просмотр. Договариваемся заблаговременно. ID объекта в нашей базе: 6638
    размещено: 14.10.2025 , обновлено: 18.11.2025
  • 1-к квартира, Старателей, 15

    • 34 м2
    • 1/3 этаж
    • Состояние: удовлетворительное
    3 100 000 ₽ (91200 ₽/м2)
    Объект № 194544. В продаже просторная однокомнатная квартира. 2018 года постройки, кирпичный теплый дом расположен в уютном и красивом районе г. Березовского. Редкое сочетание - тишина леса и городского комфорт: в шаговой доступности магазин, остановка, школа, детский сад. В квартире остается кухонный гарнитур, холодильник, стиральная машина, шкаф, кровать. Один взрослый собственник, чистая продажа. Приглашаем на просмотр. Обсуждается обмен на вашу недвижимость, помощь в одобрении ипотеки. ***Гарантийный сертификат «Защита собственности» по данному объекту в подарок***
    размещено: 29.09.2025 , обновлено: 1.11.2025
  • 1-к квартира, Новая, 20

    • 28.1 м2
    • 11/17 этаж
    • Состояние: хорошее
    2 600 000 ₽ (92500 ₽/м2)
    Объект № 193942. Предлагаем к продаже светлую однокомнатную квартиру, расположенную на 11 этаже. Из окон открывается потрясающий панорамный вид, который будет радовать каждый день! Квартира готова к проживанию, по вашему желанию мы готовы оставить всю мебель. Дом в экологически чистом районе с уже развитой инфраструктурой. Здесь есть всё необходимое для комфортной жизни: магазины на любой вкус, есть школа и детский сад, что очень удобно для семей с детьми. Всегда в наличии парковочные места. Во дворе оборудована отличная детская площадка, совсем рядом находится новая современная спортивная площадка. Приходите на просмотр. ***Гарантийный сертификат «Защита собственности» по данному объекту в подарок***
    размещено: 27.08.2025 , обновлено: 28.10.2025
  • 1-к квартира, Новая, 20

    • 27.1 м2
    • 15/16 этаж
    • Состояние: идеальное
    2 690 000 ₽ (99300 ₽/м2)
    Вашему вниманию однокомнатная квартира! В новом доме В квартире свежий ремонт. Остается: шкаф, диван. Очень солнечная квартира. Вид из окна вас поразит. Хорошая парковка возле дома . Квартира освобождена. Один взрослый собственник. ID объекта в нашей базе: 10781
    размещено: 14.08.2025 , обновлено: 11.11.2025

    1-к квартира, Новая, 20

    • 28.1 м2
    • 3/16 этаж
    • Состояние: хорошее
    2 750 000 ₽ (97900 ₽/м2)
    Продается уютная однокомнатная квартира в тихом и живописном микрорайоне Шиловский г. Березовский!Квартира расположена на комфортном 3 этаже, площадь 28,1 кв.м., удобная планировка, есть балкон.Квaртиpа очeнь тёплая, в комнате и кухне установлены пластиковые окна, балкон не застеклен, имеет пpекрacный вид нa реку.В квартире сделан качественный косметический ремонт. На полу в комнате и кухне постелен ламинат, в санузле — плитка, в прихожей керамогранит.В подъезде два лифта: грузовой и пассажирский. Подъезд чистый и аккуратный. Соседи спокойные и доброжелательные.Рядом с домом уютный двор, детские площадки, всегда есть парковочные места.В шаговой доступности магазины, школа, детский сад, остановка общественного транспорта, аптека.Хорошая транспортная доступность.Новым хозяевам остается: кухонный гарнитур с натуральной каменной столешницей, духовка и плита, шкаф в комнате.Квартира освобождена.Один совершеннолетний собственник, быстрый выход на сделку.Звоните, записывайтесь на просмотр! ID объекта в нашей базе: 11458
    размещено: 04.07.2025 , обновлено: 27.11.2025

    1-к квартира, Новая, 13

    • 27.8 м2
    • 2/2 этаж
    • Состояние: идеальное
    2 290 000 ₽ (82400 ₽/м2)
    Вашему вниманию предлагается однокомнатная квартира, расположенная в тихом месте! Со свежим ремонтом. Капитальный ремонт проведен. Хорошая планировка. По документам один взрослый собственник. Окна пластиковые, натяжные потолки по всей квартире. В квартире остаётся вся мебель! В трех минутах магазин, автобусная остановка, школа садик! Просмотр в удобное вам время! Квартира освобождена! Быстрый выход на сделку ID объекта в нашей базе: 9643
    размещено: 03.06.2025 , обновлено: 24.11.2025

Новостройки г. Березовский

Приоритет

Увеличивает просмотры в 3 раза

Ваше объявление показывается в списке выше обычных объявлений. подключить