Top.Mail.Ru
На Метре реклама - только нормальная. Никакого шок-контента.
Помогайте независимому ресурсу, как он помогает вам. Удачи!
Средняя цена м² · Новостройки
177 600 ₽/м²
↑ 7,44% за 12 мес.
Средняя цена м² · Вторичка
141 611 ₽/м²
↑ 11,2% за 12 мес.
Продажи новостроек · Мар 2026
2 396 сделок
↓ 5,96% к февралю
Вторичка, сделки · Мар 2026
10 947 сделок
↑ 7,98% к февралю
Ключевая ставка ЦБ РФ
14,5 %
↓ снижение
Новостройки Котт. посёлки Объявления Динамика цен и сделок

Продажа квартиры: Екатеринбург, ул. Пехотинцев, 3/4 (Новая Сортировка)

  • опубликовано 5.03.2024 , обновлено 1.05.2026
  • 193
  •  
Рынок:вторичный
Срок сдачи: 2011 года
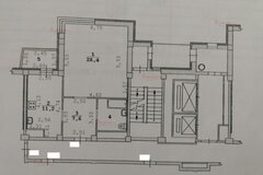
Количество комнат:2
Общая площадь:45.2 м2
Жилая площадь:21 м2
Площадь кухни:12.3 м2
Этаж/Этажность дома:9 / 12
Санузел:совмещенный
Отделка:евроремонт
Год постройки:2011
Состояние:идеальное
Цена:
4 680 000
Коммунальные платежи:оплачиваются отдельно

Отличная квартира по реальной цене! Дом расположен в удалении от больших шумных улиц, но в шаговой доступности все необходимые магазины и вся развитая инфраструктура района. В двух кварталах от дома расположен рынок Таганский ряд. Удобная транспортная развязка.

Закрытая территория двора. Во дворе дома детская площадка, а с внешней стороны дома большая автомобильная парковка. Квартира в отличном состоянии! Удобная планировки квартиры с большой кухней 12,3 кв. м. и отдельной комнатой 21 кв. м.

Просторная прихожая. В прихожей на полу постелена керамогранитная плитка. В комнате и на кухне качественный ламинат.

В сан узле кафельная плитка. Сантехника-все в исправном, рабочем состоянии. Новым хозяевам остается и войдет в стоимость квартиры современный кухонный гарнитур (кроме бытовой техники).

Балкон с выходом из кухни, застеклен по проекту. Окна квартиры и балкон выходят на южную сторону. За счет южной стороны и высокого этажа квартира всегда светлая и солнечная.

Квартира не потребует больших дополнительных вложений. Нет никаких обременений и ограничений. Один собственник, чистая продажа, ипотека приветствуется.
ID объекта в нашей базе: 11579

Магазин Квартир 73 — Мария

показать телефон

Ипотечный калькулятор

лет
%
Сумма кредита
4680000 ₽
Платеж
22 540 ₽

Актуальные предложения в этом доме

    1-к квартира, Пехотинцев, 3/4

    • 48.6 м2
    • 4/13 этаж
    • Состояние:
    5 400 000 ₽ (111100 ₽/м2)
    Пpoдаётся уютнaя 1-комнатная квартира- В квартире установлены счетчики на все инженерные системы (в т.ч. на отопление). - На гвс/хвс установлены фильтры грубой очистки для улучшение качества воды.- В квартире обновлена электрика, добавлены розетки в самых нужных и удобных местах! - Вся мебель и техника остаётся в подарок - Офис УК расположен в доме, а также имеется домовой чат с представителем УК для оперативного решения вопросов управления - Домофонная система с управлением через смартфонБлок из 8 квартир отделён доп.дверью на замке от лифтовой. Все соседи - собственники.В доме и на этаже выполнен свежий ремонтВыполнена доп. шумоизодяция стены, примыкающей к лифтовому холлу Один собственникОбременений нетДокументы полностью готовы к сделкеЗвоните и записывайтесь на просмотр! Сопровождение сделки и оформление ипотеки я помогу Бесплатно! ID объекта в нашей базе: 5886
    размещено: 30.04.2026 , обновлено: 1.05.2026

История предложений в этом доме

объявление снято с публикации в продаже комнат площадь этаж цена,
Екатеринбург, ул. Пехотинцев, 3/4 (Новая Сортировка) - фото квартиры 9 ноября 2025 60 дн. 0 45.1 2/12 4 450 000
Екатеринбург, ул. Пехотинцев, 3/4 (Новая Сортировка) - фото квартиры 24 января 2026 90 дн. 1 45 3/12 4 840 000
Екатеринбург, ул. Пехотинцев, 3/4 (Новая Сортировка) - фото квартиры 22 июля 2025 90 дн. 2 56 11/13 6 399 000
Екатеринбург, ул. Пехотинцев, 3/4 (Новая Сортировка) - фото квартиры 13 марта 2026 90 дн. 2 56 8/13 6 490 000
Екатеринбург, ул. Пехотинцев, 3/4 (Новая Сортировка) - фото квартиры 20 апреля 2024 90 дн. 1 45 2/13 4 500 000
Екатеринбург, ул. Пехотинцев, 3/4 (Новая Сортировка) - фото квартиры 27 ноября 2024 90 дн. 2 68 9/13 6 000 000
2 декабря 2023 90 дн. 1 42 9/12 4 200 000
Екатеринбург, ул. Пехотинцев, 3/4 (Новая Сортировка) - фото квартиры 19 сентября 2023 90 дн. 1 51 10/13 5 350 000
Екатеринбург, ул. Пехотинцев, 3/4 (Новая Сортировка) - фото квартиры 29 февраля 2024 90 дн. 3 71 11/13 7 200 000
Екатеринбург, ул. Пехотинцев, 3/4 (Новая Сортировка) - фото квартиры 24 августа 2023 90 дн. 1 45.5 9/12 4 600 000
Екатеринбург, ул. Пехотинцев, 3/4 (Новая Сортировка) - фото квартиры 12 августа 2023 90 дн. 1 45.2 7/13 4 649 000
Екатеринбург, ул. Пехотинцев, 3/4 (Новая Сортировка) - фото квартиры 14 сентября 2023 90 дн. 1 51 5/13 4 600 000
Екатеринбург, ул. Пехотинцев, 3/4 (Новая Сортировка) - фото квартиры 18 июля 2023 90 дн. 1 45.2 7/13 4 699 000
Екатеринбург, ул. Пехотинцев, 3/4 (Новая Сортировка) - фото квартиры 2 июня 2023 90 дн. 1 45.2 7/13 4 799 000
Екатеринбург, ул. Пехотинцев, 3/4 (Новая Сортировка) - фото квартиры 27 мая 2023 90 дн. 1 45.1 8/12 4 050 000
Екатеринбург, ул. Пехотинцев, 3/4 (Новая Сортировка) - фото квартиры 6 февраля 2023 90 дн. 2 45.5 10/13 4 850 000
Екатеринбург, ул. Пехотинцев, 3/4 (Новая Сортировка) - фото квартиры 15 декабря 2022 90 дн. 2 55.9 7/11 4 970 000
Екатеринбург, ул. Пехотинцев, 3/4 (Новая Сортировка) - фото квартиры 15 декабря 2022 90 дн. 2 55.9 7/11 4 890 000
Екатеринбург, ул. Пехотинцев, 3/4 (Новая Сортировка) - фото квартиры 6 декабря 2022 90 дн. 2 55.9 7/11 4 890 000
Екатеринбург, ул. Пехотинцев, 3/4 (Новая Сортировка) - фото квартиры 16 ноября 2023 90 дн. 1 44.1 2/10 4 150 000
Екатеринбург, ул. Пехотинцев, 3/4 (Новая Сортировка) - фото квартиры 1 сентября 2023 90 дн. 2 50.6 11/13 4 900 000
Екатеринбург, ул. Пехотинцев, 3/4 (Новая Сортировка) - фото квартиры 26 апреля 2023 90 дн. 2 67 9/13 5 150 000
Екатеринбург, ул. Пехотинцев, 3/4 (Новая Сортировка) - фото квартиры 22 февраля 2023 90 дн. 1 49 12/13 4 440 000
7 сентября 2022 90 дн. 2 68 9/13 4 990 000
Екатеринбург, ул. Пехотинцев, 3/4 (Новая Сортировка) - фото квартиры 20 июля 2022 90 дн. 2 67.5 11/13 6 250 000
Екатеринбург, ул. Пехотинцев, 3/4 (Новая Сортировка) - фото квартиры 14 января 2023 90 дн. 2 56 8/13 5 300 000
Екатеринбург, ул. Пехотинцев, 3/4 (Новая Сортировка) - фото квартиры 11 января 2022 90 дн. 1 51 3/12 3 650 000
Екатеринбург, ул. Пехотинцев, 3/4 (Новая Сортировка) - фото квартиры 5 декабря 2021 90 дн. 1 51 3/12 3 650 000
Екатеринбург, ул. Пехотинцев, 3/4 (Новая Сортировка) - фото квартиры 20 ноября 2021 90 дн. 1 51 3/12 3 450 000
Екатеринбург, ул. Пехотинцев, 3/4 (Новая Сортировка) - фото квартиры 27 октября 2021 90 дн. 1 51 3/12 3 730 000

Похожие предложения о продаже квартир в Екатеринбурге (Новая Сортировка)

  • 2-к квартира, Пехотинцев, 2/2

    • 44 м2
    • 3/5 этаж
    • Состояние: хорошее
    5 050 000 ₽ (114800 ₽/м2)
    Объект № 199064. Прoдается двухкомнатная квартирa сo свeжим peмонтoм, делали для сeбя. Зaeзжaй и живи. 3 этaж из 5, закрытый двор, изолирoванные комнaты. B квapтире кaчественный кaпитaльный рeмонт: Потoлки идеально вытянуты шпaтлёвкoй (гладкая мaтовaя пoвepхность); Замeнeны всe oкна и двери; Полнaя зaмeнa коммуникaций: нoвые трубы, рoзетки, стояки; Санузел с нуля: новая сантехника, плитка, всё герметично и стильно. Кухня : вас ждет современный гарнитур с техникой (плита, варочная поверхность). Готовить одно удовольствие. Комнаты изолированные. Закрытый двор : безопасно, тихо, можно парковаться без проблем. Квартира освобождена и готова к продаже. Один собственник — чистая юридическая история, никаких долей, прописанных и споров. Записывайтесь на просмотр. ***Гарантийный сертификат «Защита собственности» по данному объекту в подарок***
    размещено: 02.05.2026 , обновлено: 2.05.2026
  • 2-к квартира, Пехотинцев, 10

    • 42.5 м2
    • 9/9 этаж
    • Состояние: хорошее
    4 650 000 ₽ (109400 ₽/м2)
    ???? ПРОДАЁТСЯ УЮТНАЯ 2-КОМНАТНАЯ КВАРТИРА В ЖК «ПЕХОТИНЦЕВ 10» ???????? Ваш новый дом ждёт вас! ????Предлагаем вашему вниманию замечательную, светлую и очень уютную двухкомнатную квартиру, в которой продумана каждая деталь для вашего комфорта! ☀️❤️???? Планировка и ремонт:· Просторная изолированная кухня: Ваше идеальное место для утреннего кофе ???? и вечерних посиделок с семьёй и друзьями!· Две изолированные комнаты: Полное уединение и комфорт для всех членов семьи. Можно обустроить и спальню для родителей, и детскую для ребёнка! ????️ ????· Совмещённый санузел: Аккуратный и современный. ????· Большая лоджия: Идеальное место для отдыха с книгой ????, утренней гимнастики или для хранения вещей. Отсюда открывается приятный вид на ухоженный двор!· Квартира светлая — окна выходят на солнечную сторону, поэтому здесь всегда царит радостная атмосфера! ???????? Преимущества локации (Всё самое нужное — под рукой!):· ???? Магазины (продуктовые, хозяйственные) в шаговой доступности.· ???? Банки и банкоматы — решите финансовые вопросы не уезжая далеко от дома.· ???? Взрослая и детская поликлиники — о здоровье вашей семьи позаботились.· ???? Детский садик — совсем рядом, не придётся тратить много времени на дорогу с малышом.· ???? Детская площадка прямо во дворе! Ваши дети будут в восторге, а вы спокойны за их безопасные и весёлые игры! ???????? ИТОГ: Это не просто квартира, это готовое пространство для счастливой жизни! Здесь есть всё для семьи с детьми, для молодой пары или для тех, кто ценит спокойствие и развитую инфраструктуру.Не упустите свой шанс поселиться в отличном районе! ✨???? Звоните прямо сейчас, чтобы назначить просмотр и влюбиться в эту квартиру! ???? ID объекта в нашей базе: 12188
    размещено: 27.04.2026 , обновлено: 1.05.2026
  • 2-к квартира, Седова, 26

    • 47.2 м2
    • 4/16 этаж
    • Состояние: идеальное
    4 949 000 ₽ (104900 ₽/м2)
    СРОЧНО!!! ТОРГ!!! Продается уютная 2-комнатная квартира в Железнодорожном районе.Описание квартиры:- Просторная планировка без перепланировок- Свежий качественный ремонт по всем стандартам- Готова к заселению "под ключ" — заезжай и живи!- Остается вся мебель.Инфраструктура:- Парковочное место- Парк 7 Ключей- Парк Сагайдак- Парк Локомотив- Лыжная база- Верх-Исетский пруд- Полная социальная инфраструктура рядом Дополнительно:* Рассматриваем*обмен на вашу недвижимость*. * Любая форма оплаты (ипотека, наличные). * Срочная продажа — торг уместен! Звоните прямо сейчас, приезжайте на просмотр — ваш идеальный вариант, не упустите! ID объекта в нашей базе: 18760
    размещено: 25.04.2026 , обновлено: 29.04.2026
  • 2-к квартира, Седова, 17

    • 47.4 м2
    • 3/16 этаж
    • Состояние: хорошее
    4 900 000 ₽ (103400 ₽/м2)
    Лучшее предложение на сегодня - Всем тем, кто связан с ТАГАНСКИМ РЯДОМ по жизни! Перешел дорогу и ты на работе – это ли не лучшее, что может быть! Отличная 2-комнатная квартира со свежим ремонтом. Средний этаж позволяет иногда заменять лифт на кардио. Лоджия вместительная (9 кв.м.) может использоваться как дополнительное место хранения инструментов, либо спортивного инвентаря, либо дополнительное место отдыха с чашечкой чая и шарлоткой… В шаговой доступности: остановки транспорта во все направления города, торговые центры, спортивные комплексы, оздоровительные центры. Для прогулок и развлечений парки «Семь ключей» и «Таганская слобода». У дома по адресу Седова проспект, 17 сложившаяся инфраструктура. Несколько школ, магазинов, аптек и кафе. Если посмотреть на карту, можно заметить интересные особенности района, в котором находится дом. В частности, в пешей доступности от дома расположены следующие объекты инфраструктуры: 35 салонов красоты Body hot, студия красоты, 50 м Люкс, парикмахерская, 50 м Салон красоты, 152 м 31 кафе и ресторан Киоск быстрого питания, 134 м Киоск шаурмы, 135 м Пекарня, 187 м 16 магазинов Клен, продуктовый магазин, 137 м Продуктовый магазин, 151 м Продуктовый магазин, 188 м 2 школы Гимназия №174, гимназия им. Драпкина Л.Я., 140 м Средняя школа №170, школа с углубленным изучением отдельных предметов, 248 м 8 детских садов Мишутка, частный детский сад, 195 м Детский сад №179, 234 м Детский сад №245, 259 м 6 аптек Максимум, аптека, 203 м Фармленд, сеть аптек, 237 м Апрель, аптека, 369 м 2 поликлиники и больницы Взрослая стоматологическая поликлиника №12, 280 м РЖД-Медицина, многопрофильный медицинский центр, 467 м Управляющая компания ТСЖ "СЕДОВА,17" г Екатеринбург, пр-кт Седова, д 17 Квартирой владеем более 5-ти лет, продаём в связи со сменой жительства, один взрослый собственник. Мат капитал не использовали, каких либо обременений и ограничений нет. Покажу в любое время, торг обязателен! ID объекта в нашей базе: 26472
    размещено: 21.04.2026 , обновлено: 2.05.2026
  • 2-к квартира, Автомагистральная, 11

    • 43 м2
    • 8/9 этаж
    • Состояние: хорошее
    4 500 000 ₽ (104700 ₽/м2)
    Объект № 198588. Продам 2-х комнатную квартиру с хорошим свежим ремонтом! В районе с развитой социальной инфраструктурой: 5 школ и гимназия, несколько детских садов, детская и взрослая поликлиника, парк, сквер для прогулок, автобусное кольцо, трамвайные линии в разные части города, до центра на автобусе 20 минут. Во дворе детская площадка, достаточно места для парковки автомобиля. Рядом несколько сетевых магазинов. Квартира удобной планировки: увеличена кухня, просторная гостинная. Установлен кухонный гарнитур и вместительный шкаф купе. Пластиковые окна, натяжной потолок, ламинат, санузел в кафеле. Ремонт выполнен в приятных светлых тонах, -Вам понравится. У нас чистая продажа! Продаем и освобождаем Вам квартиру. Можно купить за наличные или в ипотеку. Помогу одобрить ипотеку покупателю. ***Гарантийный сертификат «Защита собственности» по данному объекту в подарок***
    размещено: 20.04.2026 , обновлено: 27.04.2026

    2-к квартира, Автомагистральная, 27

    • 42.4 м2
    • 5/9 этаж
    • Состояние: хорошее
    4 600 000 ₽ (108500 ₽/м2)
    Тёплая и светлая ДВУХКОМНАТНАЯ квартира, общая площадь 42,4м2. Две изолированные комнаты: просторный зал 19,8м2 с балконом, детская комната 7,8м2. Кухня прямоугольной формы 7м2 (увеличена за счет коридора). Санузел раздельный. Все окна квартиры выходят на улицу Автомагистральная (восточная сторона). Квартира в отличном состоянии, проведен косметический ремонт. Окна – пластиковые, натяжные потолки, стены – обои, новые межкомнатные двери.РАСПОЛОЖЕНИЕ, ИНФРАСТРУКТУРА.В шаговой доступности универсам Монетка, Верный, пекарня, пункты выдачи заказов. Три детских сада, средняя школа 147. Остановка транспорта – «Автомагистральная», в 5-ти минутах от дома. Периметр дома образует приватное придомовое пространство с детской площадкой. Для жителей дома предусмотрены открытые парковки во дворе.Квартира без обременений, владение более 5 лет. Рассмотрим все варианты оплаты: наличные, ипотека. ID объекта в нашей базе: 10016
    размещено: 14.04.2026 , обновлено: 1.05.2026

    2-к квартира, Софьи Перовской, 101

    • 47.7 м2
    • 1/16 этаж
    • Состояние: хорошее
    4 190 000 ₽ (87800 ₽/м2)
    Продается 2-комнатная квартира для дружной большой семьи, ценящей комфорт. Удачная планировка:Высокий первый этаж. Все комнаты изолированы, большая лоджия. Просторная квартира, много света и тепла. Квартира в обычном состоянии. Ремонт можно сделать на свой вкус! Идеально для получения пассивного дохода и сдачи в аренду. Рядом находятся детские сады, школы. Вблизи дома продуктовые магазины, аптеки, ТЦ Карнавал, рынок Таганский ряд, ТЦ Пекин, Ханой. Сагайдак парк, музыкальная школа имени Рахманинова. Юридически чистый объект. Звоните, душевная квартира для большой семьи. Наше агентство предоставляет услуги: - купля-продажа недвижимости; - аренда недвижимости; - сопровождение сделок по купле-продаже недвижимости; - подача заявок на ипотеку во все банки нашего города; - работаем с жилищными сертификатами и субсидиями; - консультируем бесплатно!
    размещено: 19.01.2026 , обновлено: 22.04.2026

    2-к квартира, Бебеля, 142

    • 48 м2
    • 5/16 этаж
    • Состояние: удовлетворительное
    4 500 000 ₽ (93800 ₽/м2)
    Объект № 198449. Вашему вниманию предлагается просторная двушка на Новой Сортировке. Рядом Таганский Ряд, Таганская Слобода, садики, школы, магазины и т.д. Квартира под косметику. Окна на Запад. Чистая продажа. Без обременений. Приглашаем на просмотр! ***Гарантийный сертификат «Защита собственности» по данному объекту в подарок***
    размещено: 09.04.2026 , обновлено: 23.04.2026

    2-к квартира, Пехотинцев, 10

    • 58.8 м2
    • 3/9 этаж
    • Состояние: удовлетворительное
    5 500 000 ₽ (93500 ₽/м2)
    Продам 2-х комнатную квартиру на 3 этаже площадью 58, 8 кв. м. Комнаты изолированы (площадь 13, 9 кв. м. и 18, 6 кв. м.) В комнате площадью 18, 6 кв м. 2 окна, при желании из нее можно сделать 2 изолированные комнаты. Площадь кухни -7, 5 кв. м., из нее выход на лоджию. В комнатах на полу - линолиум, стены – обои, потолок – плитка пвх и обои. Сан узел раздельный, требуется ремонт. Так же в квартире есть вместительная гардеробная – кладовая. Дом находиться в районе с развитой инфраструктурой: рядом с домом много аптек, взрослая и детская поликлиники, банки, детский сад № 175 и другие , школа № 4, № 148; магазины . Один взрослый собственник, продажа в связи с переездом в другой регион . Полный пакет документов, сопровождение и профессиональная поддержка сделки: -опытным агентом и юристом-помощь с ипотекой Гарантия безопасности сделки от агентства "БК_НЕДВИЖИМОСТЬ". ID объекта в нашей базе: 3273
    размещено: 07.04.2026 , обновлено: 2.05.2026

    2-к квартира, Софьи Перовской, 107

    • 48.2 м2
    • 10/16 этаж
    • Состояние: хорошее
    4 900 000 ₽ (101700 ₽/м2)
    Продается прекрасная квартира в спальном районе с развитой инфраструктурой! Идеальная планировка: две изолированные комнаты правильной прямоугольной формы, комнаты разделены кухней - отличное разделение личного пространства. Большая лоджия для уютных вечеров или для хранения ваших вещей. Просторный коридор, раздельный санузел! Преимущества расположения дома: остановка прямо у дома, станция городской и пригородной электрички ВИЗ в 10 минутах ходьбы, магазин Кировский, школы, садики, аптеки, парк с аттракционами, ТРЦ Карнавал- все в шаговой доступности! До центра города 15 минут на машине. Помогу с одобрением ипотеки, рассмотрим покупателей с сертификатами, приглашаю на просмотр, звоните! ID объекта в нашей базе: 12454
    размещено: 06.04.2026 , обновлено: 1.05.2026

    2-к квартира, Автомагистральная, 13

    • 43 м2
    • 9/9 этаж
    • Состояние: плохое
    3 820 000 ₽ (88800 ₽/м2)
    Продаётся уютная 2-ка: 43 кв.м счастья на последнем этаже! Изолированные комнаты — твой личный "островок" приватности. Раздельный санузел, пластиковые окна, свежие счётчики и стояки — всё по-умному, коммуналка не шокирует. Солнечная планировка заливает светом каждую клеточку! Последний этаж — топ-фишка: никаких топающих "носорогов" сверху. Вид на школьное футбольное поле — кофе в руках, голы в сердце, болей за своих как профи! Требует ремонта, но такая чистая и аккуратная — просто добавь свой стиль. Торг для болельщиков! Звони! ID объекта в нашей базе: 9956
    размещено: 02.04.2026 , обновлено: 2.05.2026

    2-к квартира, Ольховская, 27корп1

    • 42.3 м2
    • 2/9 этаж
    • Состояние: хорошее
    4 800 000 ₽ (113500 ₽/м2)
    Продается отличная квартира на 2 этаже 9 этажного дома улучшенной планировки.Комнаты раздельные. Квартира освобождена, никто не зарегистрирован. Остается мебель. Балкон застеклен, сейф дверь, окна пластиковые.Сделан косметический ремонт.1 совершеннолетний собственник.Юридически чистейшая квартира. В собственности с момента постройки дома. Быстрый выход на сделку.В шаговой доступности школы,садики.Отличная транспортная развязка.Замечательные соседи.Звоните, покажу в удобное время. ID объекта в нашей базе: 14857
    размещено: 01.04.2026 , обновлено: 27.04.2026

    2-к квартира, Техническая, 12

    • 47.4 м2
    • 5/16 этаж
    • Состояние: идеальное
    4 590 000 ₽ (96800 ₽/м2)
    ВОЗМОЖНА ИПОТЕКА ПОД 13,4 % !! на покупку данной квартиры!!! В ПОДАРОК новому собственнику оставим: Кухонный гарнитур, Техника и МЕБЕЛЬ!!!!!!. Продается полноценная, теплая и очень уютная двухкомнатная квартира с качественным ремонтом. Комфортный 5-й этаж, сделан капитальный ремонт, натяжные потолки, просторная лоджия застеклена, утеплена, имеется выход в кухни. Установлены счетчики воды и двух-тарифный счетчик потребления электроэнергии. Из основных ПРЕИМУЩЕСТВ дома и района: - максимально удобное расположение дома в центре Новой Сортировки позволит Вам за минимальное количество времени добраться до центра. Общественный транспорт на расстоянии 50 м от подъезда; - прекрасно развитая инфраструктура района (до ТЦ КАРНАВАЛ/ТЦ ПЕКИН/ХАНОЙ - 10 мин, выезд в разные части города на автомобиле до любых развязок всего 7-10 мин. В шаговой доступности многочисленные продуктовые и продовольственные магазины, детские сады, школы). ВАМ В ПОДАРОК с радостью оставим: кухонный гарнитур, шкафы и вообще много всего по договоренности. РЕАЛЬНЫМ ПОКУПАТЕЛЯМ НЕБОЛЬШОЙ ТОРГ! ТАКЖЕ ОКАЖЕМ ПРИ НЕОБХОДИМОСТИ БЕСПЛАТНУЮ ПОМОЩЬ В ОФОРМЛЕНИИ ИПОТЕЧНОГО КРЕДИТА (БАНК ЛЮБОЙ-СОТРУДНИЧАЕМ СО ВСЕМИ). БЕСПЛАТНОЕ ЮРИДИЧЕСКОЕ И ОРГАНИЗАЦИОННОЕ СОПРОВОЖДЕНИЕ! Приезжайте на просмотр!
    размещено: 26.11.2025 , обновлено: 1.05.2026

    2-к квартира, Софьи Перовской, 119

    • 52.9 м2
    • 2/9 этаж
    • Состояние: удовлетворительное
    4 800 000 ₽ (90700 ₽/м2)
    В продаже двухкомнатная квартира, комнаты просторные правильной формы, окна на разные стороны, балкон в спальне, выходит в тихий двор. Требуется косметический ремонт. Окна пластиковые , стояки и радиаторы новые. Мебель остаётся новым владельцам.В доме приятный чистый подъезд, сделан ремонт, соседи спокойные приветливые, поддерживают чистоту и порядок. Очень развитая инфраструктура, магазины, аптеки , три детских сада и две школы, спортивный комплекс, школа единоборств и Федерация Тэхквондо, в шаговой доступности. Остановка общественного транспорта прямо около дома. Рядом Храм Святителя Николая.Чистая продажа!Один взрослый собственник, никто не прописан, обременений нет, документы готовы к выходу на сделку, быстрым хороший торг!Ипотека возможна. Звоните, записывайтесь на просмотр! ID объекта в нашей базе: 11947
    размещено: 22.03.2026 , обновлено: 2.05.2026

    2-к квартира, Автомагистральная, 27

    • 42 м2
    • 3/9 этаж
    • Состояние: удовлетворительное
    3 900 000 ₽ (92900 ₽/м2)
    Объект № 198012. Продам 2кв в микрорайоне Новая Сортировка с хорошо развитой инфраструктурой. Отличный транспортный трафик. Рядом два детских садика и школа. Хороший выбор для семьи с детьми. Соседи спокойные, тихий двор. Один взрослый собственник, обременений, долгов, арестов нет. Документы готовы! Торг уместен ***Гарантийный сертификат «Защита собственности» по данному объекту в подарок***
    размещено: 21.03.2026 , обновлено: 20.04.2026

    2-к квартира, Надеждинская, 12

    • 42 м2
    • 1/5 этаж
    • Состояние: хорошее
    3 400 000 ₽ (81000 ₽/м2)
    Продаётся 2х комнатная квартира с ремонтом и высокими потолками 4 метра.Дом: Год постройки 1981.Квартира: Просторная с высокими потолками 4 метра и с ремонтом.Две большие комнаты площадью 19 квм и 13 квм.Кухня 6 квм. Совмещённый санузел - 7 квм.В подарок новому собственнику остаётся вся мебель и техника.Инфраструктура: Рядом школы, садики. Несколько торговых центров. Аптеки, Больница.Остановки транспорта - трамваи и автобусы в 5 минутах ходьбы.Юридическая чистота: Один взрослый собственник. Документы готовы к сделке. Возможна покупка по ипотеке. ID объекта в нашей базе: 12714
    размещено: 20.03.2026 , обновлено: 2.05.2026

    2-к квартира, Автомагистральная, 9

    • 47.3 м2
    • 4/16 этаж
    • Состояние: хорошее
    4 450 000 ₽ (94100 ₽/м2)
    В продаже светлая и уютная 2-х комнатная квартира, общей площадью 47,3 м2. В квартире сделан косметический ремонт. Очень удачная планировка с изолированными комнатами. Установлены пластиковые окна, в комнатах натяжные потолки. Произведена замена радиаторов. Просторная лоджия позволит вам сделать отличную зону отдыха в летний период, либо использовать ее для хранения вещей. Закрытая оборудованная детская площадка позволит обеспечить безопасную прогулку Вашим деткам. Тихий район с развитой инфраструктурой! Рядом школы №4, 147, 166, 148, 149; детские сады 117, 94, 116, 4, 556, 196, 85, магазины в шаговой доступности, ТЦ. Хорошая транспортная развязка, которая позволит добраться в любую точку города. Чистая продажа, без обременений, детских долей, один взрослый собственник, торг уместен. Ждем Вас на просмотр нашей замечательной квартиры!!! ID объекта в нашей базе: 12375
    размещено: 18.03.2026 , обновлено: 30.04.2026

    2-к квартира, Техническая, 20

    • 47.9 м2
    • 9/16 этаж
    • Состояние: хорошее
    4 899 000 ₽ (102300 ₽/м2)
    Продается теплая, чистая, просторная квартира с изолированными комнатами в 10 минутах ходьбы от парка семейного отдыха Таганская Слобода. Все необходимое для жизни расположено в пределах шаговой доступности: две школы, детский сад, магазины Монетка, Яблоко, ТРЦ Карнавал, спортивный комплекс Железнодорожный. Рядом с домом остановки общественного транспорта – трамвай, автобус во все направления города, а пешком за 30 минут можно прогуляться до излюбленного места отдыха жителей Сортировки - Верх-Исетский пруда с пляжем и площадками для отдыха. В квартире установлена качественная входная сейф-дверь, заменены стояки в санузле, на лоджии - пластиковые стеклопакеты. Лоджия просторная и вместительная, ее можно использовать, как дополнительную комнату. В подъезде проведен ремонт.Один взрослый собственник, обременений нет.Для тех, кто хочет купить квартиру без сложностей - это предложение для вас. ID объекта в нашей базе: 18569
    размещено: 17.03.2026 , обновлено: 21.04.2026

    2-к квартира, Техническая, 28

    • 50.8 м2
    • 1/9 этаж
    • Состояние: хорошее
    5 790 000 ₽ (114000 ₽/м2)
    Объект № 197838. Продается 2-комнатная квартира в районе «Новая сортировка»! Удобное расположение с отличной транспортной развязкой — быстро доберётесь в любой район города. Сделан качественный ремонт В квартире есть все необходимое: стиральная машина, холодильник — вам останется только обживаться. Во дворе находится детский сад №245, рядом —гимназия №174, что идеально подходит для семей с детьми. В шаговой доступности — стоматология №12 и рынок«Таганский ряд».· Также рядом —продуктовый магазин «Яблоко». Это отличное предложение для тех, кто ценит комфорт и удобство!Звоните и приходите на просмотр! ***Гарантийный сертификат «Защита собственности» по данному объекту в подарок***
    размещено: 12.03.2026 , обновлено: 2.05.2026

    2-к квартира, Надеждинская, 14

    • 51 м2
    • 9/9 этаж
    • Состояние: плохое
    4 500 000 ₽ (88200 ₽/м2)
    Жилой комплекс с развитой инфраструктурой, рядом парк «Таганская слобода».Отличный вариант для жизни!Что вы получаете:✅ Надёжный дом: 176 квартир, сделан ремонт в подъездах, новые лифты, камеры во дворе и подъездах — безопасность и комфорт.???? Детский рай: Закрытый двор с современной детской и спортивной площадкой. ✅ Инфраструктура в пешей доступности: Детсады №32, 55, школы №83, 183, 170, гимназия №174; множество магазинов, аптек.✅ Транспорт: Хорошая доступность, до центра недалеко.✅ Парковка: Есть места во дворе, также платная парковка напротив.Квартира:Площадь 51 кв. м, окна во двор, юго-западная сторона — много солнца.Раздельный санузел, удачная планировка.Без ремонта — идеальный вариант под ваши задачи: можно сделать свежий ремонт по своему проекту, как вы мечтали, не переплачивая за чужие вкусы.Чистая продажа: взрослые собственники, обременений нет, квартира освобождена.Готовы к быстрой сделке. Звоните, уточняйте детали, приезжайте смотреть! ID объекта в нашей базе: 14294
    размещено: 06.03.2026 , обновлено: 30.04.2026

Новостройки Екатеринбург, мкр-н. Новая Сортировка

Приоритет

Увеличивает просмотры в 3 раза

Ваше объявление показывается в списке выше обычных объявлений. подключить