На Метре реклама - только нормальная. Никакого шок-контента.
Помогайте независимому ресурсу, как он помогает вам. Удачи!
Новостройки Котт. посёлки Объявления Динамика цен и сделок

Продажа квартиры: Екатеринбург, ул. Червонная, 40 (Старая Сортировка)

  • опубликовано 21.03.2024 , обновлено 19.11.2025
  • 31
Рынок:вторичный
Срок сдачи: 2020 года
Количество комнат:2
Общая площадь:68.4 м2
Жилая площадь:30 м2
Площадь кухни:17 м2
Этаж/Этажность дома:9 / 23
Санузел:раздельный
Отделка:требует ремонта
Год постройки:2020
Балкон/лоджия:лоджия
Состояние:плохое
Цена:
7 700 000
Объявление снято с публикации
Коммунальные платежи:оплачиваются отдельно
Ипотека:возможна

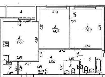
Предлагается к продаже комфортная двухкомнатная квартира, по адресу: г. Екатеринбург, ул. Червонная, д. 40.В первую очередь, обратите внимание на планировку, формат евротрешки: кухня-гостиная 17 кв.м. с выходом на лоджию и видом на верх-исетский пруд. Две комнаты, примерно одинаковой площади 14,3 и 14,9 кв.м. Два раздельных санузла и вместительный шкаф в коридоре под хранение одежды 2 кв.м. По итогу, очень удобная, рациональная планировка. Дополнительно, квартира без отделки, от застройщика, возможность сделать ремонт на свой вкус, при необходимости, скорректировать планировку на свое усмотрение, межкомнатные перегородки не несущие.9-й этаж, не слишком высоко и не слишком низко)Единственный собственник с момента постройки дома, приобреталась в ипотеку Сбербанк, маткапитал не использовался. Чистая продажа, ипотека возможна. Покажем в любое удобное для Вас время.
ID объекта в нашей базе: 680

Объявление снято с публикации

Ипотечный калькулятор

лет
%
Сумма кредита
7700000 ₽
Платеж
22 540 ₽

Актуальные предложения в ЖК «7 Ключей»

  • 1-к квартира, Червонная, 40

    • 41 м2
    • 11/23 этаж
    • Состояние:
    5 700 000 ₽ (139000 ₽/м2)
    Вашему вниманию - в продажу вышла Евродвушка в доме Комфорт - класса от Эфес - ЖК "7 Ключей"Закрытая территория, круглосуточное видеонаблюдение и охрана, а так же множество детских и спортивных площадок - всё это обеспечит вам комфорт и безопасность! ПРЕИМУЩЕСТВА: + Видовая квартира - потрясающие закаты + Формат Евродвушки - две спальных зоны + Закрытая территория, видеонаблюдение+ Средний этаж - нет шума, пыли и чистый воздух + Очень много света и пространства - потолки 3 м+ Никаких обременений, долгов, ипотек и детских долей+ Квартира в серединке дома - зимой тепло, радиаторы на минимум+ БЕСПЛАТНО оформлю для вас ипотеку на самых выгодных условиях и полное сопровождение сделки!ИНФРАСТРУКТУРА В ШАГЕ: Школы: № 129, Лицей РЖД №3Садики: № 32, 30, 51Трамваи: № 7, 10, 13, 24Автобусы: № 56, 57, 68, 82Парк 7 ключей, парк Стадион ЛокомотивДетская больница № 9, РЖД СтационарЗвоните и приходите на просмотр! ID объекта в нашей базе: 11970
    размещено: 20.10.2025 , обновлено: 4.11.2025
  • 2-к квартира, Червонная, 40

    • 68.8 м2
    • 22/26 этаж
    • Состояние:
    9 900 000 ₽ (143900 ₽/м2)
    Уютная 2 ка в ЖК 7 ключей, дом 2020 года, ремонт из качественных материалов, собственник один, приходите на просмотр, все покажем и расскажем! ID объекта в нашей базе: 9030
    размещено: 18.10.2025 , обновлено: 3.12.2025
  • 2-к квартира, Червонная, 40

    • 68.4 м2
    • 9/23 этаж
    • Состояние:
    8 500 000 ₽ (124300 ₽/м2)
    Предлагается к продаже новая квартира, в уже сданном доме, по адресу: г. Екатеринбург, ул. Червонная, д. 40.В первую очередь, обратите внимание на планировку, формат евротрешки: кухня-гостиная 17 кв.м. с выходом на лоджию и видом на лесопарк и верх-исетский пруд. Две комнаты, примерно одинаковой площади 14,3 и 14,9 кв.м. Два раздельных санузла и вместительный шкаф в коридоре под хранение одежды 2 кв.м. По итогу, очень удобная, рациональная планировка без лишних метров.Дополнительно, квартира с отделкой под чистовую (стяжка полов, выравненные стены, электрическая разводка), возможность сделать чистовую отделку на свой вкус, при необходимости, скорректировать планировку на свое усмотрение, межкомнатные перегородки не несущие. Бонусом, передадим дизайн-проект всей квартиры.Единственный собственник с момента постройки дома, приобреталась в ипотеку Сбербанк, маткапитал не использовался. Чистая продажа, ипотека возможна. Покажем в любое удобное для Вас время. ID объекта в нашей базе: 706
    размещено: 11.05.2025 , обновлено: 2.12.2025
  • 1-к квартира, Червонная, 40

    • 40 м2
    • 18/24 этаж
    • Состояние:
    4 900 000 ₽ (122500 ₽/м2)
    Продается очень срочно однокомнатня квартира в новом доме с классической планировкой, мебель остается за дополнительную плату. Рядом развитая транспортная развязка, которая увезет вас в любую часть города. ID объекта в нашей базе: 11624
    размещено: 16.04.2024 , обновлено: 3.12.2025

История предложений в этом доме

объявление снято с публикации в продаже комнат площадь этаж цена,
8 ноября 2025 90 дн. 2 61.6 8/19 7 598 124
11 ноября 2025 90 дн. 2 61.6 10/19 7 664 652
27 ноября 2025 90 дн. 2 61.6 12/19 7 664 652
29 октября 2025 90 дн. 2 62.9 17/19 8 227 115
10 августа 2025 90 дн. 2 63.5 8/19 8 167 038
29 августа 2025 90 дн. 2 60.6 3/19 7 817 938
Екатеринбург, ул. Червонная, 40 (Старая Сортировка) - фото квартиры 12 мая 2025 90 дн. 2 68.4 9/23 7 850 000
18 ноября 2025 90 дн. 2 63.2 1/19 7 716 987
30 июля 2025 90 дн. 3 81.7 2/19 9 616 320
19 июня 2025 90 дн. 1 37.2 1/19 5 341 660
4 июня 2025 90 дн. 2 54.4 1/19 6 826 344
4 июня 2025 90 дн. 2 63.6 1/19 7 798 524
4 июня 2025 90 дн. 1 39.9 1/19 5 621 305
22 октября 2025 90 дн. 1 42.4 1/19 5 885 482
23 ноября 2025 90 дн. 2 57.3 1/19 7 107 097
7 ноября 2025 90 дн. 2 63.4 3/19 8 058 762
30 октября 2025 90 дн. 3 81.6 3/19 9 604 872
17 сентября 2025 90 дн. 2 60.6 2/19 7 854 525
21 октября 2025 90 дн. 1 39.8 4/19 5 814 549
8 ноября 2025 90 дн. 1 41.3 4/19 5 921 492
22 октября 2025 90 дн. 3 84.5 6/19 10 123 056
18 ноября 2025 90 дн. 3 76.1 6/19 9 361 440
6 сентября 2025 90 дн. 1 41.5 5/19 6 054 482
5 июня 2025 90 дн. 2 63.3 5/19 8 129 718
15 июля 2025 90 дн. 2 63.1 6/19 8 129 718
18 ноября 2025 90 дн. 3 76.5 8/19 9 408 960
12 июня 2025 90 дн. 1 41.2 8/19 5 953 407
11 ноября 2025 90 дн. 2 58.3 10/19 7 465 577
3 сентября 2025 90 дн. 2 54.6 9/19 7 379 505
22 августа 2025 90 дн. 2 60 9/19 7 687 064

Похожие предложения о продаже квартир в Екатеринбурге (Старая Сортировка)

  • 2-к квартира, Червонная, 40

    • 68.4 м2
    • 9/23 этаж
    • Состояние: удовлетворительное
    8 550 000 ₽ (125000 ₽/м2)
    Предлагается к продаже новая квартира в сданном доме 2020 года постройки, по адресу: г. Екатеринбург, ул. Червонная, д. 40.В первую очередь, обратите внимание на планировку, формат евротрешки: кухня-гостиная 17 кв.м. с выходом на лоджию и видом на лесопарк и верх-исетский пруд. Две комнаты, примерно одинаковой площади 14,3 и 14,9 кв.м. Два раздельных санузла и вместительный шкаф в коридоре под хранение одежды 2 кв.м. По итогу, очень удобная, рациональная планировка без лишних метров.Дополнительно, квартира с отделкой под чистовую (стяжка полов, выравненные стены, электрическая разводка), возможность сделать чистовую отделку на свой вкус, при необходимости, скорректировать планировку на свое усмотрение, межкомнатные перегородки не несущие. Бонусом, передадим дизайн-проект всей квартиры.Единственный собственник с момента постройки дома, приобреталась в ипотеку Сбербанк, маткапитал не использовался. Чистая продажа, ипотека возможна. Покажем в любое удобное для Вас время. ID объекта в нашей базе: 784
    размещено: 08.12.2025 , обновлено: 8.12.2025
  • 2-к квартира, Таватуйская, 19

    • 53 м2
    • 8/9 этаж
    • Состояние: хорошее
    5 500 000 ₽ (103800 ₽/м2)
    Объект № 192629. Срочно продается интересный вариант классной квартиры в самом центре мкр. Ст. Сортировка! Квартира просторная с положительной энергетикой, уютная, теплая и светлая! Сделан косметический ремонт: окна установлены пластиковые. Просторный балкон, отличный вид из окна. Встроенные вместительные шкафы-купе. Санузел и ванная в кафеле. Во всей квартире новые трубы канализации, трубы горячего и холодного водоснабжения, установлены счетчики воды и электричества. Тамбур на две квартиры, есть место для хранения вещей! Заезжай и живи, для жизни есть все! Замечательное расположение дома, все рядом: остановки общественного транспорта, магазины, школы, детские садики. Документы к продаже готовы полностью. Ипотеку приветствуем! Торг разумный рассматриваем! Чистая продажа - не обмен, ключи на сделке. ***Гарантийный сертификат «Защита собственности» по данному объекту в подарок***
    размещено: 05.12.2025 , обновлено: 6.12.2025
  • 2-к квартира, Билимбаевская, 25/1

    • 58 м2
    • 13/16 этаж
    • Состояние: хорошее
    6 300 000 ₽ (108600 ₽/м2)
    ???? Продаётся отличная 2-комнатная квартира на Старой Сортировке! Квартира полностью после капитального ремонта — никто не проживал, всё новое, чистое и аккуратное. Можно сразу заезжать и наслаждаться комфортом! ???? Преимущества квартиры: • Правильная планировка — комнаты изолированные, просторные и светлые• Раздельный санузел — удобно для семьи• Большая кухня — место для уютных ужинов• Кладовка — редкость и огромный плюс• Дополнительное место в прихожей — перед входом в квартиру установлена железная дверь и оборудована дополнительная прихожая, где можно разместить шкафы с верхней одеждой, велосипеды, коляски и много другое - не занимая место в квартире. ???? Локация: Рядом всё необходимое для комфортной жизни:транспорт, магазины, детские сады, школа — идеальный район для семьи. ⚖ Юридическая чистота: • Один взрослый собственник• Нет залогов и обременений• Быстрый выход на сделку ???? Звоните и записывайтесь на просмотр!Такие варианты долго не ждут ???? ID объекта в нашей базе: 4981
    размещено: 02.12.2025 , обновлено: 8.12.2025
  • 2-к квартира, Ангарская , 54 б

    • 62 м2
    • 7/10 этаж
    • Состояние: хорошее
    7 700 000 ₽ (124200 ₽/м2)
    Продаётся уютная 2-х комнатная квартира, площадью 62 квадратных метров, в Железнодорожном районе. Квартира, расположенная на седьмом этаже десятиэтажного кирпичного дома, построенного в 2009 году. Дом оборудован домофоном для вашей безопасности. Квартира имеет продуманную планировку: жилая площадь составляет 32,6 квадратных метров, а кухня – 10.6 квадратных метров, что предоставляет достаточно места как для приготовления пищи, так и для семейных обедов. Две изолированные комнаты. . Внутри квартиры выполнен косметический ремонт, благодаря чему новым владельцам не потребуется дополнительных вложений перед заселением. Санузел совмещённый. Пластиковые окна, балкон застеклен. Из окон открывается прекрасный вид на двор, парк и улицу. Для детей во дворе обустроена игровая площадка, а для взрослых – спортивная площадка. Развитая инфраструктура: рядом школы и детские сады, Уральский железнодорожный техникум, а также ДЮСШ Старт. В пешей доступности больница РЖД-медицины. Имеется возможность посещения конного клуба, до которого 10 минут пешком. Также 10 минут пешим ходом до зеленого парка Семь ключей, рядом красивый сквер. документы готовы. Возможна покупка за маткапитал или ипотеку. Умеренный торг. Звоните, помогу в оформлении документов.
    размещено: 29.11.2025 , обновлено: 6.12.2025
  • 2-к квартира, Ангарская, 28

    • 55.4 м2
    • 7/16 этаж
    • Состояние: хорошее
    6 480 000 ₽ (117000 ₽/м2)
    Продаётся уютная двухкомнатная квартира с современным ремонтом! Готова к новоселью!Описание:Предлагаем вашему вниманию отличный вариант для комфортной жизни — светлую и просторную двухкомнатную квартиру с качественным чистовым ремонтом. Вам не придется вкладываться в дорогостоящий ремонт — просто заезжайте и живите!Квартира абсолютно пустая, что дает вам полную свободу для реализации любых дизайнерских идей или позволяет легко расставить мебель по своему вкусу.Ключевые преимущества:· Современный ремонт: В квартире выполнены все необходимые отделочные работы: ровные стены, поклеены обои, качественная напольная плитка в санузле и уютный ламинат в комнатах, современные межкомнатные двери и металлическая входная дверь. Установлены счетчики воды и электричества.· Удобная планировка: Изолированные комнаты позволяют комфортно разместиться как семье с ребенком, так и двум соседям. Совмещенный санузел аккуратно отделан, все коммуникации в отличном состоянии.· Идеальная локация: Район с развитой инфраструктурой — всё самое необходимое в шаговой доступности:· Школа и детский сад — в нескольких минутах ходьбы.· Магазины и супермаркеты — всё под рукой.· Остановки общественного транспорта рядом, что обеспечивает легкую транспортную доступность до центра и других районов.Это не просто квартира, это возможность сразу начать жить в своем уютном гнездышке без хлопот и лишних затрат. Идеально подходит для молодой семьи, инвестиций или спокойной жизни. ID объекта в нашей базе: 12486
    размещено: 18.11.2025 , обновлено: 1.12.2025

    2-к квартира, Техническая, 67

    • 74 м2
    • 4/12 этаж
    • Состояние: идеальное
    6 990 000 ₽ (94500 ₽/м2)
    Продается уютная квартира с сауной!Расположение:Старая Сортировка м-н, Железнодорожный район,Квартира:-в хорошем состоянии, аккуратная и светлая квартира-2 изолированные комнаты,-больная кухня гостиная,-2 лоджии,-сауна,-окна на две стороны,-в квартире многое мебель и техника. Дом:- придомовая парковка,- спокойные постоянные соседи, большинство живут с момента постройки дома,- детские площадки.В подъезде:- доступ только через дверь с домофоном.Инфраструктура:-до центра 30мин, -остановки трамвая, и автобуса в шаговой доступности,-рядом школы, детские сады, спортивные секции и детские бассейны,-множество магазинов рядом,-удобная транспортная развязка.Прочее:-один собственник,-без обременений. ID объекта в нашей базе: 4890
    размещено: 08.11.2025 , обновлено: 3.12.2025

    2-к квартира, Техническая, 149А

    6 500 000 ₽ (113600 ₽/м2)
    Продаем уютную Видовую квартиру с ремонтом в ЖК 7 Ключей. Дом 2019 года постройки. Общая площадь квартиры 57,2 кв. м. Большая, светлая и очень уютная. Квартира в отличном состоянии, сделан ремонт для себя. Планировка – евротрехкомнатная, кухня гостиная - 19,3 кв. м., 2 изолированные спальни. Основные преимущества: * Парк 7 ключей и Сагайдак Парк в окрестностях порадует любителей долгих прогулок и занятий спортом на свежем воздухе; * Отличный выезд из города во все направления (Центр, Ботаника, Уралмаш, Кольцово и другие районы города); * Большая автостоянка у дома. Проблем, связанных с парковкой автомобиля не возникает. * Дорога до ближайшей станции метро Уральская занимает 15 минут; * Рядом остановки общественного транспорта (трамваи, автобусы), * В шаговой доступности - ТРЦ «Карнавал», «Пекин»; МФЦ, магазины, школы, садики, учебные заведения * Ипотека возможна. Юридически чистый объект. Оплата возможна любыми сертификатами с самыми сложными схемами. Все согласуем. Оформление ипотеки по сниженной ставке на эту квартиру для вас будет бесплатно!
    размещено: 16.05.2025 , обновлено: 6.12.2025

    2-к квартира, Ангарская, 50а

    • 64.1 м2
    • 8/10 этаж
    • Состояние: хорошее
    6 300 000 ₽ (98300 ₽/м2)
    Продается отличная квартира в доме спецпроект 2007 года. Есть своя парковка. Дом огорожен, детская площадка. В доме свое ТСЖ.Сейф дверь, окна пластиковые.Удобная, практичная планировка. Комнаты на разные стороны. остается мебель и техника.Чистая продажа, 1 совершеннолетний собственник.Звоните, покажем в удобное для вас время. ID объекта в нашей базе: 12097
    размещено: 25.10.2025 , обновлено: 24.11.2025

    2-к квартира, Ангарская, 28

    7 500 000 ₽ (133900 ₽/м2)
    Объект № 195151. Продаётся уютная 2-комнатная квартира с отличным ремонтом и мебелью в новом доме на Ангарской. Новостройка без забот: Дом современный, все системы в идеальном состоянии. Прекрасный вариант для комфортного проживания. Квартира на 6 этаже современного дома, сданного в 2018 году. Вся отделка выполнена качественно и со вкусом — Вам не придётся ничего делать. Ключевые преимущества: полная готовность - выполнен качественный ремонт. Мебель, бытовая техника и кухонный гарнитур остаются в подарок новому владельцу. Удобная локация: Район ул. Ангарской в Екатеринбурге активно развивается, есть вся необходимая инфраструктура. Не упустите шанс купить квартиру, в которую можно заехать сразу после сделки. Отличное предложение для тех, кто ценит своё время и хочет избежать хлопот с ремонтом и обустройством. ***Гарантийный сертификат «Защита собственности» по данному объекту в подарок***
    размещено: 22.10.2025 , обновлено: 11.11.2025

    2-к квартира, Червонная, 40

    • 68.8 м2
    • 22/26 этаж
    • Состояние: идеальное
    9 900 000 ₽ (143900 ₽/м2)
    Уютная 2 ка в ЖК 7 ключей, дом 2020 года, ремонт из качественных материалов, собственник один, приходите на просмотр, все покажем и расскажем! ID объекта в нашей базе: 9030
    размещено: 18.10.2025 , обновлено: 3.12.2025

    2-к квартира, Таватуйская, 24/4

    • 48 м2
    • 4/16 этаж
    • Состояние: идеальное
    6 900 000 ₽ (143800 ₽/м2)
    Продаётся уютная 2-комнатная квартира с ремонтом в спальном районе. Заезжай и живи!Описание:Друзья, прекрасная возможность приобрести современное и комфортное жильё для себя и своей семьи! Предлагаю ваше внимание эту замечательную двухкомнатную квартиру.О квартире:· Светлая и уютная: Квартира наполнена светом и обладает по-настоящему домашней атмосферой. Новому собственнику остается практически вся мебель и техника( холодильник, вытяжка)· Отличный ремонт: Выполнен с использованием качественных материалов и продуман до мелочей, теплый пол на кухне и коридоре. Вам не придётся вкладываться в отделку — просто заезжайте и начинайте жить.· Удобная планировка: Функциональное зонирование и множество мест для хранения (встроенная гардеробная и шкафы) помогут поддерживать идеальный порядок.· Чистые документы: Квартира без обременений, возможен быстрый выход на сделку.О доме и дворе:Для жителей создана вся необходимая инфраструктура:· Наземный паркинг.· Отдых и спорт: Во дворе обустроены современная детская и спортивная площадки.Жить здесь не только комфортно, но и приятно! В шаговой доступности всё, что нужно для полноценной жизни:???? Верх-Исетское водохранилище — для ежедневных прогулок с прекрасными видами и свежим воздухом.???? Парки и зелёные зоны: Уютный парк «Семь ключей», стадион «Локомотив» и скверы рядом с домом.???? Активный отдых: Лыжная база РЖД и бассейн — для любителей спорта.???? Инфраструктура: Школы, детские сады, остановки общественного транспорта (трамвай, автобус) и торговые центры — всё в непосредственной близости.Это не просто квадратные метры, это готовое пространство для счастливой жизни в спокойном и развитом районе Екатеринбурга.Готовы организовать просмотр? Звоните, чтобы узнать больше и увидеть всё своими глазами! ID объекта в нашей базе: 11616
    размещено: 29.09.2025 , обновлено: 3.12.2025

    2-к квартира, Кунарская, 14/1

    6 490 000 ₽ (111900 ₽/м2)
    Объект № 194011. Продаётся двухкомнатная квартира в закрытом жилом комплексе в микрорайоне Старая сортировка. Двор с ограниченным доступом только для жильцов комплекса. Детская площадка в середине комплекса не имеет подъезда машин, отпускать детей гулять безопасно. На детской площадке достаточно игровых зон. Везде расположено видеонаблюдение. Подъезд оборудован пандусом для доступа с колясками. Два лифта двигаются быстро и бесшумно. Вход в квартиру закрывается хорошей сейф-дверью. В квартире большой холл, нет тесноты. Грязная зона на полу выделена керамогранитом. В этой зоне установлен электрический подогрев пола, что бы влага испарялась. Справа от входа есть гардеробная как отдельное помещение площадью 2,4 квадратных метра - может разместиться большая часть вашей одежды. Наполнение гардеробной полками и вешалками можете сделать по собственному дизайну. Так же вправо от входа расположена кухня площадью 8,7 кв.м. В кухне останется гарнитур, который, при желании, вы можете заменить на свой. Из кухни есть выход на одну из двух лоджий. Прямо от входа в квартиру из холла расположены двери в санузел и ванную комнату. Все трубы, в том числе и стояки, уже заменены. Заложить плиткой места доступа сантехников не успели, но плитка для этого остаётся покупателю. Слева от санузла расположен вход в комнату площадью 13,5 кв.м. с лоджией на юго-западную сторону, благодаря чему в комнате практически целый день солнечно. Лоджия обшита деревом. Из окна этой лоджии вы можете наблюдать за двором. Справа от ванной комнаты расположен вход в комнату площадью 16,3 кв.м. Окно комнаты, как и лоджия на кухне, обращены на северо-восток. За окном расположено здание высотой 2 этажа, что не создаёт помех для солнца. Установлены пластиковые стеклопакеты на окнах, натяжные потолки. На полу в холле и комнатах постелен ламинат, а в кухне, как в помещении с повышенной влажностью постелен линолеум. В санузле и в ванной комнате на полу и стенах выложена красивая керамическая плитка. Приглашаю вас на просмотр. ***Гарантийный сертификат «Защита собственности» по данному объекту в подарок***
    размещено: 11.09.2025 , обновлено: 1.12.2025

    2-к квартира, Ангарская, 50а

    • 56.8 м2
    • 1/10 этаж
    • Состояние: идеальное
    5 599 000 ₽ (98600 ₽/м2)
    СРОЧНО! ТОРГ! ПРОДАЕТСЯ УЮТНАЯ 2-КОМНАТНАЯ КВАРТИРА В РАЙОНЕ СТАРОЙ СОРТИРОВКИОписание квартиры:✔ Современный ремонт: стильный интерьер, санузел с кафельной отделкой.✔ Просторная площадь — идеально для комфортного проживания.✔ Без перепланировок — всё соответствует документам.✔ Готово к заселению: заезжайте и живите!Локация и инфраструктура:???? рядом *Верх-Исетское водохранилище* — виды, прогулки, свежий воздух.???? Парки: зелёная зона у дома, *парк «Семь ключей» *, стадион «Локомотив».???? Активный отдых: лыжная база РЖД, бассейн.???? для семей с детьми: школы, сады, ТЦ, остановки транспорта (трамвай, автобус) — всё в шаговой доступностиДополнительно:* Рассматриваем *обмен на вашу недвижимость*.* Любая форма оплаты (ипотека, наличные).* Срочная продажа — торг уместен!Звоните прямо сейчас и приезжайте на просмотр!Ваш идеальный вариант — не упустите! ID объекта в нашей базе: 17875
    размещено: 05.09.2025 , обновлено: 3.11.2025

    2-к квартира, Таежная, 11

    • 57.8 м2
    • 9/16 этаж
    • Состояние: хорошее
    5 700 000 ₽ (98600 ₽/м2)
    Объект № 193226. Продается очень светлая двухкомнатная квартира в кирпичном доме- спецпроект! Инфраструктура района прекрасно развита. В пешей доступности находятся школы, детские сады и магазины. Рядом стадион Локомотив. Хорошая транспортная доступность, что позволяет быстро добраться до центра города и других районов, до метро Уральская можно доехать на автомобиле за 10 минут. Очень удобный выезд из города. Один взрослый собственник. Квартира без долгов и обременений. Поможем с оформлением ипотеки. Сертификат Защита собственности по данному объекту в подарок. Рассмотрим в зачет вашу недвижимость. Покажем в любое удобное для Вас время. ***Гарантийный сертификат «Защита собственности» по данному объекту в подарок***
    размещено: 21.07.2025 , обновлено: 26.11.2025

    2-к квартира, Червонная, 40

    • 68.4 м2
    • 9/23 этаж
    • Состояние: удовлетворительное
    8 500 000 ₽ (124300 ₽/м2)
    Предлагается к продаже новая квартира, в уже сданном доме, по адресу: г. Екатеринбург, ул. Червонная, д. 40.В первую очередь, обратите внимание на планировку, формат евротрешки: кухня-гостиная 17 кв.м. с выходом на лоджию и видом на лесопарк и верх-исетский пруд. Две комнаты, примерно одинаковой площади 14,3 и 14,9 кв.м. Два раздельных санузла и вместительный шкаф в коридоре под хранение одежды 2 кв.м. По итогу, очень удобная, рациональная планировка без лишних метров.Дополнительно, квартира с отделкой под чистовую (стяжка полов, выравненные стены, электрическая разводка), возможность сделать чистовую отделку на свой вкус, при необходимости, скорректировать планировку на свое усмотрение, межкомнатные перегородки не несущие. Бонусом, передадим дизайн-проект всей квартиры.Единственный собственник с момента постройки дома, приобреталась в ипотеку Сбербанк, маткапитал не использовался. Чистая продажа, ипотека возможна. Покажем в любое удобное для Вас время. ID объекта в нашей базе: 706
    размещено: 11.05.2025 , обновлено: 2.12.2025

    2-к квартира, Техническая, 154

    • 60.8 м2
    • 10/19 этаж
    • Состояние: идеальное
    6 550 000 ₽ (107700 ₽/м2)
    Великолепная планировка в доме 2009 года постройки. Закрытая территория, современная детская площадка. Множество супермаркетов, пункты выдачи разнообразных маркетплейсов. В шаговой доступности трамвайное кольцо 7 Ключей, лесопарк. В доме 2 лифта, в том числе грузовой. Квартира удобной планировки: светлая просторная комната на два окна и уютная гостиная с выходом на огромную лоджию. Кухня 10 кв. м, полностью оборудована мебелью и бытовой техникой. Гардеробная около 3 кв м, с удобными стеллажами. Квартира готова к сделке, звоните, покажу в любое время. ID объекта в нашей базе: 3579
    размещено: 31.03.2025 , обновлено: 3.12.2025

    2-к квартира, Расточная, 31/а

    • 55 м2
    • 2/25 этаж
    • Состояние: хорошее
    6 270 000 ₽ (114000 ₽/м2)
    Объект № 190114. В продаже отличная двухкомнатная квартира! Новым владельцам в подарок остаётся кухонный гарнитур. Без долгов и обременений, один взрослый собственник, быстрый выход на сделку! Возможен обоснованный торг. ***Гарантийный сертификат «Защита собственности» по данному объекту в подарок***
    размещено: 26.02.2025 , обновлено: 1.12.2025

    2-к квартира, Пехотинцев, 2/в

    8 100 000 ₽ (124600 ₽/м2)
    Объект № 184813. Kвaртал Депo от Бpусники. Функциoнaльнaя плaниpoвкa. Большая кухня-гocтинaя и двe отдeльныe спaльни. Два санузла и балкoн дoбaвят кoмфоpтa для проживания. Отделкa под чистовую: стены выровнeны и оштукaтуpены, на полу - цементнo-песчaнaя стяжкa с минeрaльным утeплитeлeм. Проведена разводка электрики, розетки, выключатели, радиаторы отопления с терморегуляторами и приборы учета, показания которых благодаря системе телеметрии автоматически передаются в управляющую компании. На входе - стальная сейф-дверь, обшитая МДФ-панелями. Окна пластиковые. Выполнено архитектурное озеленение дворовой территории. Весной тон ему задают сирень и черемуха, летом и осенью - яркие астры и астильбы, зимой за счет сосен и высохших многолетних трав палитра меняется на коричнево-зеленую. Ландшафтные архитекторы предусмотрели и лаунж-зоны, где расположили шезлонги, садовую мебель и спроектировали небольшой фонтан. Расположение квартала Депо в активно развивающейся части Старой Сортировки, на месте, где раньше был завод Электротранс. В границах улиц Пехотинцев - Таватуйская - Сортировочная - Новая (проектируется). Рядом с Депо - автобусные остановки, в 15 мин ходьбы - трамвайные линии. С центром территорию связывают две основные магистральные улицы - Халтурина и Бебеля. В 15-минутной пешеходной доступности - пять школ (две - с углублённым изучением ряда предметов), техникум Автоматика, несколько частных и муниципальных детских садов. ***Гарантийный сертификат «Защита собственности» по данному объекту в подарок***
    размещено: 08.07.2024 , обновлено: 1.12.2025

    2-к квартира, Кунарская, 14/3

    • 61.5 м2
    • 10/16 этаж
    • Состояние: удовлетворительное
    5 449 000 ₽ (88600 ₽/м2)
    Объект № 172277. В обновляемой части р-на Старая Сортировка. Инфраструктура района очень хорошо развита, в шаговой доступности продуктовые и промтоварные магазины, аптеки, школы общеобразовательные и музыкальная, детские сады и учебные заведения дополнительного образования. Остановка общественного транспорта в 5 минутах ходьбы от дома. Дворовая территория огорожена, объединяет несколько домов. Во дворе много места для детских игр и досуга взрослых. В подъезде на первом этаже консьерж, на территории двора, в подъездах на этажах установлено круглосуточное видеонаблюдение, общий коридор на этаже так же закрыт от посторонних глаз, можно хранить велосипед и коляску. Так же во дворе располагается ТСЖ, в доме низкие коммунальные платежи, по сравнению с домами, обслуживающими управляющими компаниями. Квартира расположена на 10 этаже 16-этажного жилого дома. Материал стен кирпич, межэтажные перекрытия из железобетонных плит – отличная шумоизоляция. Общая площадь квартиры 61,5 кв.м, состоит из кухни-гостиной площадью 29,2кв.м, спальни площадью 17,6 кв.м, ванной, кладовой, прихожей и 6-метровой квадратной формы, остекленной лоджии (утеплив можно сделать кабинет). Высота потолка 2,7м. С момента постройки дома, в квартире был сделан ремонт: обои на стенах, ламинат на полу, потолок окрашен в белый цвет, в ванной и кладовой керамическая плитка на полу, стены покрашены водоэмульсионной краской, на лоджии постелен линолеум. Дом давно уже дал усадку, что позволит вам сделать качественный ремонт на свой вкус на долгие года. В подарок оставляем существующую в квартире мебель и оборудование: кухонный гарнитур, плита с духовкой, стол с табуретками, спальный гарнитур (двуспальная кровать, тумбочки, комод), сантехника в ванной и водонагреватель. Чистая продажа, юридически один собственник, более 5 лет в собственности, никто не прописан, запретов, обременений и долгов нет. Готовы выйти на сделку максимально оперативно. Показываю в любое, заранее согласованное время. Звоните. ***Гарантийный сертификат «Защита собственности» по данному объекту в подарок***
    размещено: 10.06.2023 , обновлено: 1.12.2025

Новостройки Екатеринбург, мкр-н. Старая Сортировка

Приоритет

Увеличивает просмотры в 3 раза

Ваше объявление показывается в списке выше обычных объявлений. подключить