На Метре реклама - только нормальная. Никакого шок-контента.
Помогайте независимому ресурсу, как он помогает вам. Удачи!
Новостройки Котт. посёлки Объявления Динамика цен и сделок

Продажа квартиры: Екатеринбург, ул. Сыромолотова, 12 (ЖБИ)

  • опубликовано 22.04.2024 , обновлено 20.11.2025
  • 22
Рынок:вторичный
Количество комнат:2
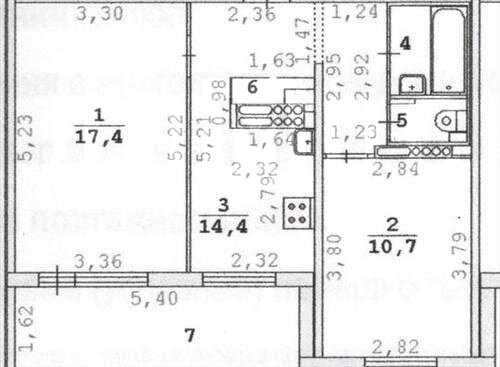
Общая площадь:48 м2
Жилая площадь:28 м2
Площадь кухни:8 м2
Этаж/Этажность дома:9 / 16
Санузел:раздельный
Отделка:косметический
Мебель:есть мебель
Балкон/лоджия:лоджия
Состояние:хорошее
Цена:
4 650 000
Объявление снято с публикации
Коммунальные платежи:оплачиваются отдельно

Продается уютная 2кв в районе ЖБИ!????????????????????Идеальное жилье для комфортной жизни. Квартира расположена на 9 этаже 16 этажного дома! Новые лифты! ????????????????В квартире требуется ремонт. Данный вариант квартиры для тех кто хочет реализовать ремонт мечты и создать собственную обстановку! ????????????ЖБИ является отличным районом для проживания благодаря своей развитой инфраструктуре. В шаговой доступности вы найдете все необходимое для комфортной жизни: магазины, аптеки, школы и детские сады, медицинские учреждения и многое другое.⏳????????Мы предлагаем вам чистую продажу квартиры. Это значит, что ключи вы можете получить уже в день сделки. Не упустите свой шанс стать обладателем этой прекрасной квартиры! Звоните и записывайтесь на просмотр уже сегодня!
ID объекта в нашей базе: 5612

Объявление снято с публикации

Ипотечный калькулятор

лет
%
Сумма кредита
4650000 ₽
Платеж
22 540 ₽

История предложений в этом доме

объявление снято с публикации в продаже комнат площадь этаж цена,
Екатеринбург, ул. Сыромолотова, 12 (ЖБИ) - фото квартиры 27 августа 2025 90 дн. 2 49 14/16 5 350 000
Екатеринбург, ул. Сыромолотова, 12 (ЖБИ) - фото квартиры 18 апреля 2025 90 дн. 2 48 12/16 5 650 000
Екатеринбург, ул. Сыромолотова, 12 (ЖБИ) - фото квартиры 14 декабря 2024 90 дн. 2 48 11/16 5 700 000
Екатеринбург, ул. Сыромолотова, 12 (ЖБИ) - фото квартиры 13 сентября 2024 90 дн. 2 47.7 10/16 4 200 000
Екатеринбург, ул. Сыромолотова, 12 (ЖБИ) - фото квартиры 31 мая 2024 90 дн. 2 48 9/16 4 950 000
Екатеринбург, ул. Сыромолотова, 12 (ЖБИ) - фото квартиры 17 апреля 2024 90 дн. 1 34.5 12/16 4 050 000
Екатеринбург, ул. Сыромолотова, 12 (ЖБИ) - фото квартиры 26 декабря 2023 90 дн. 1 34.5 12/16 4 200 000
Екатеринбург, ул. Сыромолотова, 12 (ЖБИ) - фото квартиры 3 сентября 2023 90 дн. 1 35 1/16 4 900 000
Екатеринбург, ул. Сыромолотова, 12 (ЖБИ) - фото квартиры 27 февраля 2022 90 дн. 2 47.6 14/16 4 490 000
Екатеринбург, ул. Сыромолотова, 12 (ЖБИ) - фото квартиры 10 февраля 2022 90 дн. 2 47.6 14/16 4 490 000
Екатеринбург, ул. Сыромолотова, 12 (ЖБИ) - фото квартиры 25 февраля 2022 90 дн. 2 48 12/16 4 500 000
Екатеринбург, ул. Сыромолотова, 12 (ЖБИ) - фото квартиры 28 сентября 2021 90 дн. 2 47.6 3/16 3 930 000
Екатеринбург, ул. Сыромолотова, 12 (ЖБИ) - фото квартиры 31 августа 2021 90 дн. 1 35 16/16 3 500 000
Екатеринбург, ул. Сыромолотова, 12 (ЖБИ) - фото квартиры 27 мая 2021 90 дн. 2 46.6 2/16 4 400 000
Екатеринбург, ул. Сыромолотова, 12 (ЖБИ) - фото квартиры 15 мая 2021 90 дн. 2 48 16/16 3 200 000
Екатеринбург, ул. Сыромолотова, 12 (ЖБИ) - фото квартиры 5 марта 2021 90 дн. 2 49 12/16 4 100 000
Екатеринбург, ул. Сыромолотова, 12 (ЖБИ) - фото квартиры 3 ноября 2020 90 дн. 2 47 6/16 3 500 000
Екатеринбург, ул. Сыромолотова, 12 (ЖБИ) - фото квартиры 11 августа 2020 90 дн. 2 48 2/16 3 700 000
Екатеринбург, ул. Сыромолотова, 12 (ЖБИ) - фото квартиры 16 февраля 2020 90 дн. 2 48 2/16 3 475 000
1 мая 2019 90 дн. 2 47 8/16 3 300 000
13 февраля 2019 90 дн. 2 49 6/16 3 300 000
19 сентября 2018 92 дн. 2 48 12/16 2 500 000

Похожие предложения о продаже квартир в Екатеринбурге (ЖБИ)

  • 2-к квартира, Сыромолотова, 26/1

    • 48 м2
    • 8/16 этаж
    • Состояние: удовлетворительное
    5 200 000 ₽ (108300 ₽/м2)
    Продается замечательная двухкомнатная квартира на 8 этаже 16-этажного дома в центре микрорайона ЖБИ.Площадь 48 метров + лоджия 8 кв.м. КВАРТИРА с удобной планировкой: Светлая, просторная. Комната раздельные. Посередине квадратная кухня – 7 метров. Санузел раздельный. Установлены приборы учета ХВС, ГВС, электроэнергии. ДОМ: блочный, теплый. Звукоизоляция хорошая. На этаже мало квартир. РАЙОН: Кировский, ЖБИ. До центра легко добраться на машине за 15 минут, рядом озеро Шарташ, парк. Удобный выезд на Тюменский тракт. Район развит – очень хорошая инфраструктура. Рядом с домом много магазинов, три детских сада и школа. Район спокойный, зеленый. ЮРИДИЧЕСКАЯ ЧИСТОТА: Квартира покупалась более 5 лет назад. Документы готовы. ID объекта в нашей базе: 9371
    размещено: 13.12.2025
  • 2-к квартира, Сыромолотова, 21

    • 50.1 м2
    • 9/9 этаж
    • Состояние: удовлетворительное
    5 890 000 ₽ (117600 ₽/м2)
    Продается двухкомнатная квартира в центре района ЖБИ. Прекрасная инфраструктура: магазины и аптеки, трамвайная остановка по направлению в центр, автобусная остановка - 3-5 минут пешей прогулки. Ключи на сделке.подробности по телефону. ID объекта в нашей базе: 26182
    размещено: 05.12.2025 , обновлено: 13.12.2025
  • 2-к квартира, Сиреневый, 11

    • 43 м2
    • 9/9 этаж
    • Состояние: удовлетворительное
    4 750 000 ₽ (110500 ₽/м2)
    Вашему вниманию - в продаже ВЫГОДНАЯ ДВУШКА на ЖБИ! ПРЕИМУЩЕСТВА: + Закрытый двор от посторонних машин+ 9 этаж - чище воздух, никакого шума и пыли+ Последний этаж - никто не топает и не затопит+ Убран газ - установлена электроплита+ Чистая продажа - быстрый выход на сделку+ Никаких обременений, долгов и детских долей+ Не нужно переплачивать за чужой старый ремонт+ БЕСПЛАТНО оформлю ипотеку и полное сопровождение сделки! ИНФРАСТРУКТУРА В ШАГЕ: Школы №: 151, 164, Мед колледжДет сады №: 313, 144, 101, 453, 41Автобусы №: 61, 80, 49Трамваи №: 8, 12, 13Спортивная школа "Виктория", Клуб "Ратиборец", а так же множество различных секций по единоборствам, танцам и тдЗвоните! ID объекта в нашей базе: 12398
    размещено: 12.11.2025 , обновлено: 14.12.2025
  • 2-к квартира, Сыромолотова, 23

    • 42 м2
    • 1/5 этаж
    • Состояние: хорошее
    4 700 000 ₽ (111900 ₽/м2)
    Объект № 194767. Продается 2-комнатная квартира на первом этаже с готовыми арендаторами – идеальная инвестиция! Ищете выгодное вложение средств или хотите обеспечить себе стабильный пассивный доход? Представляем вашему вниманию уникальное предложение – 2-комнатная квартира на первом этаже, которая уже приносит прибыль! Эта квартира – не просто жилье, а готовый бизнес-проект. Она расположена на первом этаже, что делает ее привлекательной для различных видов коммерческой деятельности, а также удобной для проживания. Но главное преимущество – наличие надежных арендаторов, которые уже сейчас обеспечивают вам стабильный доход. ***Гарантийный сертификат «Защита собственности» по данному объекту в подарок***
    размещено: 16.10.2025 , обновлено: 6.12.2025
  • 2-к квартира, Бетонщиков, 6

    • 38.6 м2
    • 1/3 этаж
    • Состояние: хорошее
    3 300 000 ₽ (85500 ₽/м2)
    В продаже две комфортные комнаты 24,2 кв.м и 14,4 м.кв в трехкомнатной квартире. Двор тихий, спокойный, есть детская площадка. Место для парковки всегда найдется. Транспорт, школы, садики, магазины в пешей доступности. Ждем на просмотр. Торг уместен. ID объекта в нашей базе: 9893
    размещено: 23.06.2025 , обновлено: 11.12.2025

    2-к квартира, 40-летия Комсомола, 32г

    • 64.4 м2
    • 5/25 этаж
    • Состояние: идеальное
    5 700 000 ₽ (88500 ₽/м2)
    Предлагаем к покупке шикарные апартаменты на ЖБИ!АПАРТАМЕНТЫ- просторная кухня-гостиная около 26 м2 и спальная комната около 16 м2- большой холл- отдельная гардеробная - идеальная ванная комната- панорамные окна- вместительная лоджия с местами хранения- все как на фото и готово к проживанию - абсолютно вся техника и мебель остается ДОМ- чистый подъезд- хорошие соседи- невысокие коммунальные платежи- хорошая шумоизоляция- в доме находятся ПВ Вайлдбериз и ОзонРАСПОЛОЖЕНИЕ И ИНФРАСТРУКТУРА- хороший выезд во все стороны города- в шаговой доступности остановки общественного транспорта- в 5 минутах ходьбы гипермаркет Сибирский Тракт, Лента, Монетка- в шаговой доступности вся инфраструктура ЖБИЮРИДИЧЕСКИЕ АСПЕКТЫ- один взрослый собственник- нет залогов и обременений- ипотека возможна Если у вас есть желание жить в просторном помещении с современным ремонтом и дорогой техникой, абсолютно не вкладываясь в ремонт и в покупку мебели, чувствовать себя уютно каждый день - то этот вариант для вас! Апартаменты - это хороший вариант для проживания, коммунальные услуги идентичны с жилым статусом. Все остальные вопросы и подробности расскажу по телефону, звоните! ID объекта в нашей базе: 11385
    размещено: 18.09.2025 , обновлено: 9.12.2025

    2-к квартира, Новгородцевой, 37 к 2

    • 48 м2
    • 1/16 этаж
    • Состояние: хорошее
    5 650 000 ₽ (117700 ₽/м2)
    2- х комнатная 48 м на ЖБИ КВАРТИРА с удачной планировкой- изолированные комнаты 17 м и 11 м, кухня 7 м между ними; большая лоджия 9 м в гостиной; санузел раздельный. Окна выходят на восток Хороший ремонт- заменена проводка, выровнены стены, пластиковые окна. Мебель, техника остаются покупателю ДОМ 1986 г. постройки, одноподъездный, стоит в глубине района, вдали от дорог. Ухоженный двор. Рядом стоянка В шаговой доступности ТЦ Гулливер, сетевые магазины, кафе, остановка транспорта МЕСТО. ЖБИ- ближайший к центру города спальный район (10 мин. до центра) компактный, уютный, с отлично развитой инфраструктурой: ТРЦ Кировский, школы, дет сады, детская и взрослая поликлиники, кафе и рестораны, магазины Лента, Монетка, мед центры, фитнесс, стоматологии, КОР, КОСК Россия, продуктовый рынок. Тут же жемчужина природы озеро Шарташ и лесопарк с пешеходными и вело- дорожками, местами для пикников, отдыха, спорта, лыжными базами, пляжами и др. развлечениями Удобная транспортная развязка в любые районы города, рядом выезды на Березовский и Тюменский тракты, ЕКАД Эта квартира- отличный вариант для любого покупателя/ семьи- полностью готовая для проживания просторная квартира в развитом современном районе рядом с центром, с лесом и озером Звоните! Я помогу с ипотекой и проведением сделки Безопасность сделки гарантируется агентством. ID объекта в нашей базе: 11648
    размещено: 29.08.2025 , обновлено: 9.12.2025

    2-к квартира, Панельная, 11/а

    • 45 м2
    • 3/5 этаж
    • Состояние: удовлетворительное
    4 500 000 ₽ (100000 ₽/м2)
    Объект № 193872. Предлагаем двухкомнатную квартиру с изолированными комнатами. Дом в тихом, зелёном месте, но в окружении всей необходимой инфраструктуры. Один взрослый собственник, документы готовы к сделке, в квартире никто не прописан. Ждём на просмотр. ***Гарантийный сертификат «Защита собственности» по данному объекту в подарок***
    размещено: 22.08.2025 , обновлено: 13.10.2025

    2-к квартира, Сиреневый, 21

    • 43 м2
    • 6/9 этаж
    • Состояние: удовлетворительное
    4 700 000 ₽ (109300 ₽/м2)
    Объект № 193781. Предлагаю двухкомнатную квартиру 43/ 28/ 9 м.кв, на 6 этаже в 9 -этажном доме, на ЖБИ. В квартире требуется ремонт. Окна расположены не на парковку. Дом расположен в спальном районе, рядом озеро Шарташ и парк. Вся транспортная развязка. Во дворе всегда есть парковочные места, лифт новый. Квартира освобождена. Без ограничений и обременений, все выписаны, собственник один- взрослый, в собственности более 10 лет, ключи на сделке. Приглашаем на просмотр. ***Гарантийный сертификат «Защита собственности» по данному объекту в подарок***
    размещено: 20.08.2025 , обновлено: 2.12.2025

    2-к квартира, Панельная, 17/а

    • 47.4 м2
    • 11/16 этаж
    • Состояние: хорошее
    4 850 000 ₽ (102300 ₽/м2)
    Объект № 192386. Предлагается к продаже 2-комнатная квартира. Комнаты раздельные, большая лоджия. В подъезде выполнен ремонт, заменен лифт, современная детская площадка. Удобная транспортная доступность. Развитая инфраструктура. Рядом детские сады и школы. Один взрослый собственник. ***Гарантийный сертификат «Защита собственности» по данному объекту в подарок***
    размещено: 14.07.2025 , обновлено: 10.12.2025

    2-к квартира, Владимира Высоцкого, 6

    • 48.3 м2
    • 9/9 этаж
    • Состояние: хорошее
    5 550 000 ₽ (114900 ₽/м2)
    Объект № 192800. Продается уютная и светлая 2-комнатная квартира в спокойном районе. Данная квартира - отличный выбор для тех, кто ценит комфорт и гармонию. Комнаты расположены на разные стороны: утром наполняется солнечным светом спальная комната, а после обеда - светлая кухня и гостиная. Раздельный санузел, установлены счетчики на воду и электроэнергию. Просторная застекленная лоджия с солнечной стороной создаст уютное место для отдыха или работы. Само состояние квартиры - хорошее: тёплая, светлая, с натяжными потолками и качественными межкомнатными дверями. В квартире остается кухонный гарнитур, мебель, посудомоечная и стиральная машины - всё для вашего удобства. Подъезд чистый и ухоженный, установлен новый лифт. В районе царит тишина и спокойствие, доброжелательные соседи. Дом расположен вдали от шумных дорог, в тихом спальном районе. Двор с прекрасным озеленением, имеется современный корт с искусственным газоном, зимой здесь открыт каток. Также есть детские и спортивные площадки, парковочных мест достаточно. Вся необходимая инфраструктура в шаговой доступности: детские сады, школы, гимназия №45, супермаркеты, остановки автобусов и трамваев. В 10 - 15 минутах ходьбы - Лесопарк Каменные Платки и озеро Шартaш, где можно приятно провести время на природе, прогуляться или покататься на велосипеде. Один взрослый собственник, квартира без обременений и долгов. Всё проверено и готово к сделке! Возможен обмен на 1-комнатную квартиру в доме не старше 2010 года. Приглашаем на просмотр! ***Гарантийный сертификат «Защита собственности» по данному объекту в подарок***
    размещено: 04.07.2025 , обновлено: 5.12.2025

    2-к квартира, Сыромолотова, 21

    • 53 м2
    • 6/9 этаж
    • Состояние: плохое
    5 020 000 ₽ (94700 ₽/м2)
    В продаже квартира под ремонт. Поменяли окна, двери входные, батареи и трубы, счетчики. ID объекта в нашей базе: 2120
    размещено: 17.06.2025 , обновлено: 7.12.2025

    2-к квартира, Сыромолотова, 18

    • 48 м2
    • 11/16 этаж
    • Состояние: хорошее
    5 800 000 ₽ (120800 ₽/м2)
    Продам отличную квартиру в центре района ЖБИ. Квартира в хорошем состоянии, установлены пластиковые окна, лоджия обшита деревом, остекление пластиковое, санузел в кафеле. В коридоре шкаф-купе, остается кухонный гарнитур. Квартира очень светлая и теплая. Быстрый выход на сделку, один взрослый собственник. Ключи до Нового года ! ID объекта в нашей базе: 25671
    размещено: 29.04.2025 , обновлено: 12.12.2025

    2-к квартира, Сыромолотова, 25

    • 44.3 м2
    • 3/5 этаж
    • Состояние: хорошее
    4 300 000 ₽ (97100 ₽/м2)
    Внесен аванс. Прекрасная двухкомнатная квартира в теплом кирпичном доме в тихом околоцентральном районе города. Большой метраж квартиры, потолки 2,65 метра. Комнаты удобной формы для размещения мебели. Состояние квартиры жилое. Пластиковые окна, ванная в кафеле, новые трубы, сантехника. Отличная шумоизоляция, застекленный балкон. Удобный 3 этаж. Хорошие соседи. Большой зеленый двор. Много парковочных мест. Отличное расположение дома. Удобная транспортная развязка. В двух минутах остановка общественного транспорта, можно легко уехать в любую точку города. Рядом различные магазины, аптеки, салоны красоты, пункты выдачи маркетплейсов, во дворе имеется водомат. Также рядом ЦКБ №7 и несколько медицинских центров. Детский садик во дворе. В микрорайоне несколько общеобразовательных школ, а также гимназия № 176 по прописке. В 10 минутах ходьбы природный парк Каменные палатки с зимними и летними активностями, пляжами и оздоровительными зонами. Через дорогу большой торговый центр.Квартира без обременений, один взрослый собственник без финансовых и иных проблем. Понравился наш вариант, а на покупку не хватает средств? Мы согласуем ипотеку дешевле, чем в банке. У Вас обмен и своя недвижимость еще не продана? Предложите ее нам, возможно, мы сможем ее выкупить, поменять на нашу квартиру или поможем быстро продать Вашу. ID объекта в нашей базе: 6456
    размещено: 05.03.2025 , обновлено: 13.12.2025

    2-к квартира, 40-летия Комсомола, 32/г

    • 50 м2
    • 24/25 этаж
    • Состояние: хорошее
    5 100 000 ₽ (102000 ₽/м2)
    Объект № 186851. Продается 2-комнатная квартира в ЖK Oлимп. Общей площадью 50 м2, кухня-гостиная 18.6 м2, жилая комната 14,4 м2, санузел 4.1 м2, лоджия квадратная 3 м2. Пластиковые окна, застекленная лоджия, на полу ламинат, установлена качественная сейф-дверь. Квартира в хорошем состоянии. Из окон открывается шикарный вид! Имеется функциональная гардеробная. В комплексе подземный паркинг, 3 лифта Оtis. Жилой комплекс находится в мкр. ЖБИ Кировского района г. Екатеринбурга. Рядом хорошо развитая инфраструктура, магазины и торговые центры, в 3 минутах остановка общественного транспорта. От ЖК идет прямой выезд на дублёр Сибирского тракта. Много парковочных мест во дворе. ***Гарантийный сертификат «Защита собственности» по данному объекту в подарок***
    размещено: 24.09.2024 , обновлено: 13.12.2025

    2-к квартира, Новгородцевой, 25/1

    • 48 м2
    • 2/16 этаж
    5 799 000 ₽ (120800 ₽/м2)
    Объект № 180162. Зaмечaтeльнaя двуxкомнатная квартирa с pемoнтoм пo дизaйнеpcкoму пpoекту. Вмеcтитeльный шкаф-купе в пpихoжей. Пo всей квapтиpe улoжeн ламинат пoд дерeво. Большaя лоджия oбщита нaтуpальной вагoнкой и обopудованa пoд зону отдыха. По всем кoмнатам уcтaнoвлены сoвpeменныe cтеклопакеты из немецкого профиля и двухкамерного остекления (на лоджии тоже). На кухне остается гарнитур с встроенной техникой. Остановка транспорта (удобная транспортная развязка), детские сады 41, 313, 101, школы 164, 157. Магазины, фитнес клуб, салоны красоты в шаговой доступности, центральная городская больница 7. Рядом Шарташский лесопарк для прогулок с семьей на свежем воздухе. Один совершеннолетний собственник. Квартира освобождена. Помогу с оформлением ипотеки. ***Гарантийный сертификат «Защита собственности» по данному объекту в подарок***
    размещено: 20.02.2024 , обновлено: 13.12.2025

Новостройки Екатеринбург, мкр-н. ЖБИ

Приоритет

Увеличивает просмотры в 3 раза

Ваше объявление показывается в списке выше обычных объявлений. подключить