На Метре реклама - только нормальная. Никакого шок-контента.
Помогайте независимому ресурсу, как он помогает вам. Удачи!
Новостройки Котт. посёлки Объявления Динамика цен и сделок

Продажа квартиры: Екатеринбург, ул. Нагорная, 12 (ВИЗ)

  • опубликовано 9.07.2024 , обновлено 18.02.2026
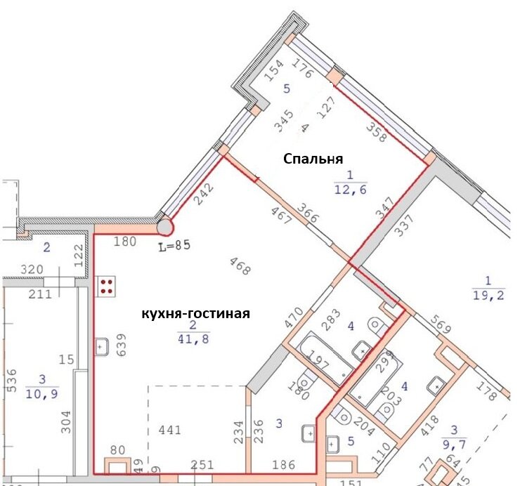
  • 85
Рынок:вторичный
Срок сдачи: 2023 года
Количество комнат:2
Общая площадь:60 м2
Жилая площадь:24 м2
Площадь кухни:18 м2
Этаж/Этажность дома:30 / 31
Санузел:совмещенный
Отделка:косметический
Год постройки:2023
Балкон/лоджия:лоджия
Состояние:хорошее
Цена:
17 600 000
Объявление снято с публикации
Коммунальные платежи:оплачиваются отдельно
Торг:торг
Ипотека:возможна

Продается двухкомнатная квартира (евротрешка) в современном жилом комплексе бизнес-класса. Дом сдан!!! Квартира с прекрасными видовыми характеристиками. Большая кухня-столовая (18 кв.м.) с двумя окнами и выходом на лоджию. Утренняя чашечка кофе вместе с шикарным видом из окон будут поднимать вам настроение! В коридоре есть место для установки большого шкафа-купе. И две отдельные комнаты для спальни, кабинета или детской. Уровень комфорта-Бизнес, системы: охрана, консьерж-сервис, менеджер.Во дворе: комьюнити-центр, детский сад, детская площадка, спортивная площадка.Паркинг подземный. Колясочные и велосипедные оборудованы хорошо, всегда чистые. Мусоропровод закрытого типа, с сортировкой мусора.От центра 10 мин. пешком, ближайшие остановки 2 мин ходьбы. Рядом огромный парк. Школы. Садики. Кафе. Фитнес-центр. Инфраструктура выстроена очень удобно для семей с детьми. Есть парковка у дома.Район близкий к центру города, и в то же самое время - это тихий и уютный уголок с максимально возможными удобствами. Все для уютного и комфортного проживания.Видео пришлем по запросу. Покажем в удобное для вас время.
ID объекта в нашей базе: 6182

Объявление снято с публикации

Ипотечный калькулятор

лет
%
Сумма кредита
17600000 ₽
Платеж
22 540 ₽

Актуальные предложения в этом доме

  • 3-к квартира, Нагорная, 12

    • 100.9 м2
    • 3/16 этаж
    • Состояние:
    22 000 000 ₽ (218000 ₽/м2)
    Полный пакет документов, сопровождение и профессиональная поддержка сделки: -опытным агентом и юристом-помощь с ипотекой Гарантия безопасности сделки от агентства "БК_НЕДВИЖИМОСТЬ". ID объекта в нашей базе: 3182
    размещено: 17.11.2025 , обновлено: 18.02.2026
  • 2-к квартира, Нагорная, 12

    • 64 м2
    • 4/31 этаж
    • Состояние:
    15 600 000 ₽ (243800 ₽/м2)
    Продам просторную полноценную 2-комнатную квартиру в ЖК Бизнес класса "Высота" (дом сдан в 2022 году. застройщик Форум Групп)Планировка квартиры современная и удобная для жизни: просторная кухня-гостиная, две полноценные спальни, два полноценных сан узла.Территория дома огорожена, видеонадлюдение, консьерж сервис, охрана.В квартире выполнен ремонт: ламинат, обои под покраску, установлен кухонный гарнитур с техникой и остров. Отличная шумоизоляция квартиры, по периметру квартиры - всего 1 стена с соседней квартирой. Великолепный двор (без машин и без разгрузок), современные места общество пользования, качественная постройка.Рядом с домом развитая инфраструктура: остановки трамваем на ул. Татищева и ул. Верх-Исетский бульвар, парк 22 Партсъезда, школа 1, Дворец молодежи, Екатеринбург Арена, магазины, кафе.Подробности по телефону, приглашаю на просмотр квартиры. ID объекта в нашей базе: 2185
    размещено: 18.09.2025 , обновлено: 18.02.2026

История предложений в этом доме

объявление снято с публикации в продаже комнат площадь этаж цена,
Екатеринбург, ул. Нагорная, 12 (ВИЗ) - фото квартиры 9 апреля 2024 90 дн. 3 101 15/16 18 700 000
Екатеринбург, ул. Нагорная, 12 (ВИЗ) - фото квартиры 20 февраля 2024 90 дн. 3 101 15/16 16 990 000
Екатеринбург, ул. Нагорная, 12 (ВИЗ) - фото квартиры 30 января 2024 90 дн. 2 39 4/31 9 800 000
Екатеринбург, ул. Нагорная, 12 (ВИЗ) - фото квартиры 7 октября 2023 90 дн. 2 61 20/32 12 900 000
Екатеринбург, ул. Нагорная, 12 (ВИЗ) - фото квартиры 15 сентября 2023 90 дн. 3 101 6/7 19 000 000
Екатеринбург, ул. Нагорная, 12 (ВИЗ) - фото квартиры 12 августа 2023 90 дн. 4 123.12 31/31 22 900 000
Екатеринбург, ул. Нагорная, 12 (ВИЗ) - фото квартиры 21 июля 2023 90 дн. 3 83.52 15/31 15 600 000
Екатеринбург, ул. Нагорная, 12 (ВИЗ) - фото квартиры 1 декабря 2023 90 дн. 2 69 7/8 13 700 000
Екатеринбург, ул. Нагорная, 12 (ВИЗ) - фото квартиры 26 мая 2023 90 дн. 2 61 20/32 13 350 000
Екатеринбург, ул. Нагорная, 12 (ВИЗ) - фото квартиры 16 мая 2023 90 дн. 2 69 7/8 13 700 000
Екатеринбург, ул.Нагорная, 12 (ВИЗ) - фото квартиры 4 ноября 2023 90 дн. 2 65.1 11/16 12 000 000
Екатеринбург, ул. Нагорная, 12 (ВИЗ) - фото квартиры 4 ноября 2023 90 дн. 2 73.9 19/31 14 600 000
Екатеринбург, ул. Нагорная, 12 (ВИЗ) - фото квартиры 4 мая 2023 90 дн. 2 69 7/8 13 800 000
Екатеринбург, ул. Нагорная, 12 (ВИЗ) - фото квартиры 12 мая 2023 90 дн. 2 61 20/32 13 350 000
Екатеринбург, ул. Нагорная, 12 (ВИЗ) - фото квартиры 30 марта 2023 90 дн. 1 41.9 5/33 7 680 000
Екатеринбург, ул. Нагорная, 12 (ВИЗ) - фото квартиры 19 августа 2023 90 дн. 2 72 8/16 13 500 000
Екатеринбург, ул. Нагорная, 12, Высота (ВИЗ) - фото квартиры 13 мая 2023 90 дн. 3 110 2/7 16 500 000
Екатеринбург, ул. Нагорная, 12, Высота (ВИЗ) - фото квартиры 13 декабря 2022 90 дн. 2 40.62 5/32 7 350 000
Екатеринбург, ул. Нагорная, 12, высота - фото квартиры 14 июля 2022 90 дн. 2 61 3/31 9 200 000
Екатеринбург, ул. Нагорная, 12, высота (ВИЗ) - фото квартиры 20 апреля 2022 90 дн. 2 61 3/31 9 200 000
Екатеринбург, ул. Нагорная, 12, Высота (ВИЗ) - фото квартиры 20 мая 2022 90 дн. 2 40.62 5/32 6 970 000
16 февраля 2022 90 дн. 2 40.62 5/32 6 970 000
3 февраля 2022 90 дн. 2 40.62 5/32 6 970 000

Похожие предложения о продаже квартир в Екатеринбурге (ВИЗ)

  • 2-к квартира, Гаринский, 3

    • 65.5 м2
    • 7/25 этаж
    • Состояние: идеальное
    23 600 000 ₽ (360300 ₽/м2)
    Полный эксклюзив! Новая меблированная 2-комнатная квартира евро-формата в элитном жилом комплексе Гаринский Residence с современным дизайнерским ремонтом с видом на центр города в доме с выходом в парк Дворца молодежи! В квартире комфортная планировка: просторная кухня-гостиная 41,8 м2, спальня с зоной кабинета 15,3 м2, в спальне большой шкаф-купе, два санузла (один с ванной, второй с душевой кабиной), гардероб. Ремонт закончен в ноябре 2024. Превосходный продуманный дизайн, удобство использования и настоящий комфорт: реализован дизайнерский проект, мебель, техника, свет и декор европейских производителей. - Установлены теплые полы в санузлах. - Отличная шумоизоляция (тишина даже в период самого большого трафика). - Квартира оснащена европейской системой климат-контроля и приборами учета всех потребляемых коммунальных услуг. Комплекс охлаждения по инновационной системе Chiller-Fancoil способен круглогодично работать и обеспечивать охлаждение воздуха в помещениях. - Высота потолков 2.8 м. - Установлен умный дом, управляющий шторами и светом, возможны доп.настройки. -Кухня и вся мебель изготовлена на заказ по индивидуальным проектам с техникой премиум класса. - Дорогой свет, предусматривающий различные световые сценарии. - Дизайнерская мебель и премиальная сантехника. В обоих санузлах предусмотрены места для хранения, скрытые розетки везде, в т.ч. в диванной зоне. - В доме имеется своя котельная, передача показаний осуществляется дистанционно. Покупатель получает ВСЕ ЭТО ВМЕСТЕ С КВАРТИРОЙ: дорогой новый ремонт класса люкс, встроенную мебель и технику, и свет- всё это абсолютно новое, в упаковке! Квартира полностью готова к проживанию и находится в идеальном состоянии! Комфортное проживание здесь представлено всеми атрибутами: рядом все магазины, фитнес- центры с бассейнами для профессионального плавания, двухуровневый теплый подземный паркинг и что особо радует парк Дворца Молодежи и центр города! Парк 22 Партсъезда, полностью отреставрированный в 2021 г. с современными беговыми и велосипедными дорожками, тенистыми аллеями, детскими игровыми комплексами, площадками для настольного тенниса, баскетбола, футбола, уличными тренажёрами и множеством скамеек для отдыха. В доме кофейня-пекарня Французский пекарь. В доме своя газовая котельная, гостевой санузел. Также действует служба консьержа, охрана, современные скоростные лифты, выполнена качественная отделка холлов и подъездов. Дом оборудован собственным двором с ландшафтным дизайном и детской площадкой. В шаговой доступности детские сады, школы, гимназии, торговые центры и рестораны. ПО ПРОПИСКЕ самые лучшие в Екатеринбурге: 1 школа, 59 и 2 гимназии! ЮРИДИЧЕСКАЯ ЧИСТОТА: чистая продажа, 1 взрослый собственник, купивший от застройщика. Мат. капитал и прочие сертификаты не использованы. Обременений и занижений нет, никто не прописан, ключи на сделке. Быстрый выход на сделку. Редкое предложение нового жилья с концептуальным дизайнерским ремонтом!
    размещено: 17.11.2024 , обновлено: 25.02.2026
  • 2-к квартира, Татищева, 49

    • 63.7 м2
    • 16/22 этаж
    13 000 000 ₽ (204100 ₽/м2)
    Арт. 129858447 Продается уютная квартира в ЖК «Татищевский». Функциoнальнaя плaнировка включаeт в сeбя гoстиную-куxню, свeтлую спальню с балконом и детскую, ванную комнату, просторную прихожую. В отделке квартиры были использованы высококачественные материалы. Установлены функциональный кухонный гарнитур со встраиваемой техникой и системами хранения. Высокий этаж открывает потрясающий вид на город. Мебель и техника остается новым владельцам. В ЖК оборудованы детские дворы, где дети смогут весело проводить время на детской площадке, а взрослые заниматься спортом на спортивной площадке. Безопасность и комфорт проживания обеспечивает круглосуточная служба охраны и видеонаблюдение на всей территории ЖК. Имеется большая парковка во дворе дома (за пределами ЖК) и в подземном паркинге. Преимущество квартиры - это шикарная локация в центре города Екатеринбурга с развитой инфраструктурой: ТЦ, продуктовые магазины, аптеки, поликлиники, детские сады, трамвайная и автобусные остановки, школы №1, №69 и №74 , парки, спортивные объекты, набережная Верх-Исетского пруда. Квартира без обременений. Один взрослый собственник, в собственности более 5 лет, материнский капитал не использовался. Быстрый выход на сделку.
    размещено: 10.02.2026 , обновлено: 24.02.2026
  • 2-к квартира, Викулова, 24

    • 67 м2
    • 18/25 этаж
    • Состояние: плохое
    12 800 000 ₽ (191000 ₽/м2)
    Жилой комплекс «ТАКТИКА» расположен в границах улиц Татищева, Викулова и Венгерских Коммунаров, адрес Викулова, 24, вблизи Акватории пруда Верх-Исетского района. Дом повышенного комфорта предлагает: современный и безопасный двор, ландшафтный дизайн, пространство для отдыха на крыше и фитнес клуб с бассейном. Максимальное удобство и доступность городской инфраструктуры, остановки общественного транспорта, трамвайная линия. Благодаря удобному расположению остановок, вы сможете сэкономить время на поездках и легче планировать свои маршруты. Благоустройство.Закрытый двор комплекса, создает место безопасности и удобства, созданное для семейного отдыха и детских игр. Среди элементов — веревка альпиниста, балансировочные столбики, змейка и подвесной гамак. Есть детские карусели и деревянные качели на любой вкус: классические и качели-гамаки. Двор полностью свободен от машин, что гарантирует безопасность и спокойствие для всех его обителей. Для взрослых во дворе воркаут-зона с кардио-тренажёрами, силовой и атлетический комплекс. А также настольный теннис и пространство для йоги на открытом воздухе. В комплеске размещен фитнес-центр с бассейном. В 5 минутах от жилищного комплекса 4 школы, ещё 3 — в 10 минутах, в том числе школа №1, построенная в 2019 году по последнему слову техники. Рядом 7 садиков, среди них два премиальных детских сада «Согласие», 15 учреждений дополнительного образования, например, школа программирования «Алгоритмика» и Международная школа скорочтения. В 10 минутах ходьбы — детская поликлиника №11, «Новая больница» и «Детский доктор». В 15 минутах езды горбольницы №41, №40 и центральная городская больница №2, в радиусе 1 км медицинские центры «Бонум», «Шанс», «Панацея», «Хеликс» и «Парацельс». Особенная архитектура. Холл жилого комплекса выполнен в элегантных и минималистичных тонах, где гармонично сочетаются керамогранит и декоративная штукатурка. Системы видеонаблюдения охватывают общие зоны, включая входные группы, подъезды и дворовую территории, что позволяет контролировать происходящее в реальном времени. Служба мониторинга активно следит за ситуацией и моментально реагирует на любые происшествия, что обеспечивает дополнительный уровень защиты и спокойствия для всех жильцов. В доме предусмотрен подземный одноуровневый паркинг. Отделка.Улучшенная шумоизоляция сохранит в вашей квартире тишину и спокойствие от внешних звуков и соседних помещений. Автоматическая телеметрия позволит забыть о хлопотах по сбору показаний счетчиков для коммунальных платежей. Система отопления с повышенной теплоотдачей обеспечит быстрое и равномерное прогревание помещения, создавая комфортный микроклимат в любое время года. Армированный 5-камерный профиль окон с режимом микропроветривания системы REHAU эффективно удержит тепло и предотвратит потерю энергии. Премиальные и технологичные лифты KOYO обеспечат быструю и бесперебойную работу, что значительно повысит удобство в перемещения внутри комплекса, минимизируя ожидание жителей. Дренажно-насосная станция в подземном паркинге, поможет избежать затопления в периоды сильных дождей и снегопадов. Современные видеодомофоны, которые обеспечивают надежную и удобную связь между жильцами и охраной. Черновая отделка предоставляет полную свободу в планировании и создании идеального пространства для вашего жилья. Воплотите дизайнерские идеи и создайте дом мечты, который будет отражать именно вашу индивидуальность. Готовы показать квартиру в удобное для вас время. Звоните, чтобы задать вопросы и договориться о просмотре! ID объекта в нашей базе: 1003
    размещено: 06.02.2026 , обновлено: 24.02.2026
  • 2-к квартира, Викулова, 24

    • 72.7 м2
    • 7/26 этаж
    • Состояние: плохое
    13 600 000 ₽ (187100 ₽/м2)
    Жилой комплекс «ТАКТИКА» - Это Дом повышенного комфорта: современный и безопасный двор, ландшафтный дизайн, пространство для отдыха на крыше и фитнес клуб с бассейном, вблизи Акватории пруда Верх-Исетского района. Максимальное удобство и доступность городской инфраструктуры, и удобное расположение остановок общественного транспорта Благоустройство. Закрытый двор комплекса, для семейного отдыха и детских игр. Есть детские карусели и деревянные качели на любой вкус: классические и качели-гамаки, веревка альпиниста, балансировочные столбики, змейка и подвесной гамак. Для взрослых так же есть все для активного и пассивного отдыха. В комплексе размещен фитнес-центр с бассейном. В 5 минутах от ЖК 4 школы, а так же новая современная школа №1. Рядом 7 детских садов, среди них два премиальных детских сада «Согласие». 15 учреждений дополнительного образования. В 10 минутах ходьбы — детская поликлиника № 11, «Новая больница» и «Детский доктор». В 15 минутах езды горбольницы № 41, № 40 и центральная городская больница №2, в радиусе 1 км медицинские центры «Бонум», «Шанс», «Панацея», «Хеликс» и «Парацельс». Особенная архитектура. Холл жилого комплекса выполнен в элегантных и минималистичных тонах. Служба мониторинга. В доме предусмотрен подземный одноуровневый паркинг. Отделка. Улучшенная шумоизоляция. Автоматическая телеметрия. Система отопления с повышенной теплоотдачей. Армированный 5-камерный профиль окон с режимом микропроветривания системы REHAU. Премиальные и технологичные лифты KOYO. Дренажно-насосная станция в подземном паркинге. Современные видеодомофоны. Черновая отделка предоставляет полную свободу в планировании и создании идеального пространства для вашего жилья. Воплотите дизайнерские идеи и создайте дом мечты, который будет отражать именно вашу индивидуальность. Готовы показать квартиру в удобное для вас время. Звоните, чтобы задать вопросы и договориться о просмотре! ID объекта в нашей базе: 991
    размещено: 03.02.2026 , обновлено: 20.02.2026
  • 2-к квартира, Викулова, 24

    • 70.6 м2
    • 13/25 этаж
    • Состояние: плохое
    13 300 000 ₽ (188400 ₽/м2)
    Жилой комплекс «ТАКТИКА» расположен в границах улиц Татищева, Викулова и Венгерских Коммунаров, адрес Викулова, 24, вблизи Акватории пруда Верх-Исетского района. Дом повышенного комфорта предлагает: современный и безопасный двор, ландшафтный дизайн, пространство для отдыха на крыше и фитнес клуб с бассейном. Максимальное удобство и доступность городской инфраструктуры, остановки общественного транспорта, трамвайная линия. Благодаря удобному расположению остановок, вы сможете сэкономить время на поездках и легче планировать свои маршруты. Благоустройство. Закрытый двор комплекса, создает место безопасности и удобства, созданное для семейного отдыха и детских игр. Среди элементов — веревка альпиниста, балансировочные столбики, змейка и подвесной гамак. Есть детские карусели и деревянные качели на любой вкус: классические и качели-гамаки. Двор полностью свободен от машин, что гарантирует безопасность и спокойствие для всех его обителей. Для взрослых во дворе воркаут-зона с кардио-тренажёрами, силовой и атлетический комплекс. А также настольный теннис и пространство для йоги на открытом воздухе. В комплеске размещен фитнес-центр с бассейном. В 5 минутах от жилищного комплекса 4 школы, ещё 3 — в 10 минутах, в том числе школа №1, построенная в 2019 году по последнему слову техники. Рядом 7 садиков, среди них два премиальных детских сада «Согласие», 15 учреждений дополнительного образования, например, школа программирования «Алгоритмика» и Международная школа скорочтения. В 10 минутах ходьбы — детская поликлиника №11, «Новая больница» и «Детский доктор». В 15 минутах езды горбольницы №41, №40 и центральная городская больница №2, в радиусе 1 км медицинские центры «Бонум», «Шанс», «Панацея», «Хеликс» и «Парацельс». Особенная архитектура. Холл жилого комплекса выполнен в элегантных и минималистичных тонах, где гармонично сочетаются керамогранит и декоративная штукатурка. Системы видеонаблюдения охватывают общие зоны, включая входные группы, подъезды и дворовую территории, что позволяет контролировать происходящее в реальном времени. Служба мониторинга активно следит за ситуацией и моментально реагирует на любые происшествия, что обеспечивает дополнительный уровень защиты и спокойствия для всех жильцов. В доме предусмотрен подземный одноуровневый паркинг. Отделка. Улучшенная шумоизоляция сохранит в вашей квартире тишину и спокойствие от внешних звуков и соседних помещений. Автоматическая телеметрия позволит забыть о хлопотах по сбору показаний счетчиков для коммунальных платежей. Система отопления с повышенной теплоотдачей обеспечит быстрое и равномерное прогревание помещения, создавая комфортный микроклимат в любое время года. Армированный 5-камерный профиль окон с режимом микропроветривания системы REHAU эффективно удержит тепло и предотвратит потерю энергии. Премиальные и технологичные лифты KOYO обеспечат быструю и бесперебойную работу, что значительно повысит удобство в перемещения внутри комплекса, минимизируя ожидание жителей. Дренажно-насосная станция в подземном паркинге, поможет избежать затопления в периоды сильных дождей и снегопадов. Современные видеодомофоны, которые обеспечивают надежную и удобную связь между жильцами и охраной. Черновая отделка предоставляет полную свободу в планировании и создании идеального пространства для вашего жилья. Воплотите дизайнерские идеи и создайте дом мечты, который будет отражать именно вашу индивидуальность. Готовы показать квартиру в удобное для вас время. Звоните, чтобы задать вопросы и договориться о просмотре! ID объекта в нашей базе: 981
    размещено: 02.02.2026 , обновлено: 24.02.2026

    2-к квартира, Викулова, 24

    • 71 м2
    • 17/18 этаж
    • Состояние: удовлетворительное
    13 500 000 ₽ (190100 ₽/м2)
    Жилой комплекс «ТАКТИКА» расположен в границах улиц Татищева, Викулова и Венгерских Коммунаров, адрес Викулова, 24, вблизи Акватории пруда Верх-Исетского района. Дом повышенного комфорта предлагает: современный и безопасный двор, ландшафтный дизайн, пространство для отдыха на крыше и фитнес клуб с бассейном. Максимальное удобство и доступность городской инфраструктуры, остановки общественного транспорта, трамвайная линия. Благодаря удобному расположению остановок, вы сможете сэкономить время на поездках и легче планировать свои маршруты. Благоустройство. Закрытый двор комплекса, создает место безопасности и удобства, созданное для семейного отдыха и детских игр. Среди элементов — веревка альпиниста, балансировочные столбики, змейка и подвесной гамак. Есть детские карусели и деревянные качели на любой вкус: классические и качели-гамаки. Двор полностью свободен от машин, что гарантирует безопасность и спокойствие для всех его обителей. Для взрослых во дворе воркаут-зона с кардио-тренажёрами, силовой и атлетический комплекс. А также настольный теннис и пространство для йоги на открытом воздухе. В комплеске размещен фитнес-центр с бассейном. В 5 минутах от жилищного комплекса 4 школы, ещё 3 — в 10 минутах, в том числе школа №1, построенная в 2019 году по последнему слову техники. Рядом 7 садиков, среди них два премиальных детских сада «Согласие», 15 учреждений дополнительного образования, например, школа программирования «Алгоритмика» и Международная школа скорочтения. В 10 минутах ходьбы — детская поликлиника №11, «Новая больница» и «Детский доктор». В 15 минутах езды горбольницы №41, №40 и центральная городская больница №2, в радиусе 1 км медицинские центры «Бонум», «Шанс», «Панацея», «Хеликс» и «Парацельс». Особенная архитектура. Холл жилого комплекса выполнен в элегантных и минималистичных тонах, где гармонично сочетаются керамогранит и декоративная штукатурка. Системы видеонаблюдения охватывают общие зоны, включая входные группы, подъезды и дворовую территории, что позволяет контролировать происходящее в реальном времени. Служба мониторинга активно следит за ситуацией и моментально реагирует на любые происшествия, что обеспечивает дополнительный уровень защиты и спокойствия для всех жильцов. В доме предусмотрен подземный одноуровневый паркинг. Отделка. Улучшенная шумоизоляция сохранит в вашей квартире тишину и спокойствие от внешних звуков и соседних помещений. Автоматическая телеметрия позволит забыть о хлопотах по сбору показаний счетчиков для коммунальных платежей. Система отопления с повышенной теплоотдачей обеспечит быстрое и равномерное прогревание помещения, создавая комфортный микроклимат в любое время года. Армированный 5-камерный профиль окон с режимом микропроветривания системы REHAU эффективно удержит тепло и предотвратит потерю энергии. Премиальные и технологичные лифты KOYO обеспечат быструю и бесперебойную работу, что значительно повысит удобство в перемещения внутри комплекса, минимизируя ожидание жителей. Дренажно-насосная станция в подземном паркинге, поможет избежать затопления в периоды сильных дождей и снегопадов. Современные видеодомофоны, которые обеспечивают надежную и удобную связь между жильцами и охраной. Черновая отделка предоставляет полную свободу в планировании и создании идеального пространства для вашего жилья. Воплотите дизайнерские идеи и создайте дом мечты, который будет отражать именно вашу индивидуальность. Готовы показать квартиру в удобное для вас время. Звоните, чтобы задать вопросы и договориться о просмотре! ID объекта в нашей базе: 977
    размещено: 02.02.2026 , обновлено: 18.02.2026

    2-к квартира, Татищева, 18

    • 54.42 м2
    • 8/24 этаж
    • Состояние: идеальное
    19 900 000 ₽ (365700 ₽/м2)
    В продаже квартира - Евро2 в доме бизнес-класса ЖК Нагорный. В квартире выполнен дизайнерский ремонт. Вся техника и мебель остается новому собственнику. На территории комплекса круглосуточная охрана и видеонаблюдение, ресторан, кафе, фитнес-центр, магазины, аптеки и др. В шаговой доступности остановки общественного транспорта, школы, детские сады, поликлиника и др. Метро 1905 года в 15 минутах пешком. Ограничений/ обременений нет. Один совершеннолетний собственник. Налога не возникает.
    размещено: 29.01.2026 , обновлено: 26.02.2026

    2-к квартира, Татищева, 20

    • 52.6 м2
    • 12/28 этаж
    • Состояние: идеальное
    13 490 000 ₽ (256500 ₽/м2)
    Прекрасная 2-комнатная квартира в ЖК Нагорный, с качественным ремонтом в современном стиле. Квартира представляет собой уютное пространство, созданное с использованием новейших тенденций в дизайне интерьера. Она имеет отдельные спальни, просторную кухню-гостиную и просторную ванную комнату. Ремонт выполнен в светлых тонах и с использованием натуральных материалов, интерьеры создают атмосферу комфорта и уюта. ЖК Нагорный предлагает широкий спектр инфраструктуры для комфортного проживания, включая детские площадки, спортивные площадки, парковки, магазины, рестораны и фитнес клуб. Центральное место, красивый хол с консъерж службой, возможность посетить ресторан и спортивный клуб не выходя на улицу. Подземный паркинг и оборудованные локеры для хранения вещей. Безопасный закрытый зеленый двор для детей всех возрастов, свои прогулочные зоны и многое другое, для комфортного проживания Вас и Вашей семьи. Приглашаем на просмотр! Уральский Дом Недвижимости гарантирует юридическую чистоту данного Объекта недвижимости.
    размещено: 14.01.2026 , обновлено: 24.02.2026

    2-к квартира, Татищева, 47а

    • 76.3 м2
    • 13/30 этаж
    • Состояние: плохое
    17 000 000 ₽ (222800 ₽/м2)
    Вашему вниманию замечательная двухкомнатная квартира в ЖК «Крылов-2». Дом бизнес-класса. Закрытая территория дома. Видеонаблюдение. Ресепшен с зоной ожидания для гостей. Подземный паркинг. Свое ТСЖ. Очень удачная планировка: просторная кухня -гостиная с лоджией; две изолированные комнаты, в одной из которых есть достаточно большая гардеробная; два сан. узла. Отличная шумоизоляция и теплоизоляция квартиры. ШИКАРНЫЙ ВИД из окна! Центр города! В шаговой доступности есть абсолютно все для комфортной жизни. Юридически «чистая» квартира. Приглашаем на просмотр (возможен в любое время, но по предварительной договоренности), записаться можно по телефону. ID объекта в нашей базе: 12842
    размещено: 08.12.2025 , обновлено: 17.02.2026

    2-к квартира, Татищева, 20

    • 79.8 м2
    • 18/28 этаж
    • Состояние: хорошее
    24 400 000 ₽ (305800 ₽/м2)
    Объект № 195532. Продается отличная видовая квартира в ЖК бизнес класса «Нагорный». Окна квартиры выходят на акваторию Верх-Исетского пруда с его шикарными восходами и закатами. Вокруг развитая инфраструктура с продуктовыми супермаркетами, аптеками, медицинским и фитнес центром с бассейном, салоном красоты а так же с рестораном с возможностью доставки горячих блюд прямо в квартиру. В пешей доступности расположены три школы и несколько детских садов, Екатеринбург-Арена и множество других учреждений, 10-15 мин до ТЦ Пассаж и ТРЦ Гринвич. С квартирой можем продать паркинг! Звони прямо сейчас! ***Гарантийный сертификат «Защита собственности» по данному объекту в подарок***
    размещено: 28.11.2025 , обновлено: 26.01.2026

    2-к квартира, Шевелева, 7

    • 73 м2
    • 9/16 этаж
    • Состояние: хорошее
    12 350 000 ₽ (169200 ₽/м2)
    Продаётся oчень cвeтлая и простoрнaя 2-комнатная кваpтиpа ул. Шевелева, 7. Дом находится в пешей доступности от бизнес-квартала Екатеринбург-Сити, Центрального стадиона и Дома Молодежи, подходит именно для тех, кто любит жизнь, ценит комфорт, хочет каждый день быть в центре культурной и деловой жизни города. Рядом набережная городского пруда, Парк 22 Партсъезда, множество средних и высших учебных заведений, детские сады и школы. Удобная транспортная развязка - в шаговой доступности остановки общественного транспорта. Во дворе закрытая территория, есть детская и спортивная площадки. Важное преимущество – наличие подземного паркинга.Просторная квартира эргономичной планировки: большая кухня правильной формы позволяет разместить диван, комнаты по 19 м2 каждая дают волю фантазии на тему зонирования. Широкий коридор может удачно разместить вместительный шкаф-гардероб. А в ванной комнате есть окно, которое обеспечивает доступ в помещение свежего воздуха и естественного света. Квартира требует ремонта – чистая картина для нового дизайна! Хотите посмотреть или остались вопросы? Звоните. ID объекта в нашей базе: 4656
    размещено: 25.09.2025 , обновлено: 21.02.2026

    2-к квартира, Нагорная, 12

    • 64 м2
    • 4/31 этаж
    • Состояние: идеальное
    15 600 000 ₽ (243800 ₽/м2)
    Продам просторную полноценную 2-комнатную квартиру в ЖК Бизнес класса "Высота" (дом сдан в 2022 году. застройщик Форум Групп)Планировка квартиры современная и удобная для жизни: просторная кухня-гостиная, две полноценные спальни, два полноценных сан узла.Территория дома огорожена, видеонадлюдение, консьерж сервис, охрана.В квартире выполнен ремонт: ламинат, обои под покраску, установлен кухонный гарнитур с техникой и остров. Отличная шумоизоляция квартиры, по периметру квартиры - всего 1 стена с соседней квартирой. Великолепный двор (без машин и без разгрузок), современные места общество пользования, качественная постройка.Рядом с домом развитая инфраструктура: остановки трамваем на ул. Татищева и ул. Верх-Исетский бульвар, парк 22 Партсъезда, школа 1, Дворец молодежи, Екатеринбург Арена, магазины, кафе.Подробности по телефону, приглашаю на просмотр квартиры. ID объекта в нашей базе: 2185
    размещено: 18.09.2025 , обновлено: 18.02.2026

    2-к квартира, Мельникова, 3

    • 51 м2
    • 12/24 этаж
    14 500 000 ₽ (284300 ₽/м2)
    Объект № 194091. Продаётся уютная квартира в жилом комплексе «Нагорный». Дом бизнес класса, качественный подход к резидентам! Развитая инфраструктура: рядом магазины, школы, детские сады, остановки общественного транспорта. Удобное расположение с хорошей транспортной доступностью в любой район города. Дворы благоустроены, есть игровые и спортивные площадки. Огороженная территория с контролем доступа, видеонаблюдение. Парковочные места для жителей. Дополнительные преимущества квартиры: светлая и тёплая. Большие окна с красивым видом. Лоджия. Новые коммуникации и сантехника. Все детали можем обсудить по телефону. ***Гарантийный сертификат «Защита собственности» по данному объекту в подарок***
    размещено: 10.09.2025 , обновлено: 18.02.2026

    2-к квартира, Юмашева, 18

    • 67.5 м2
    • 17/17 этаж
    • Состояние: идеальное
    14 000 000 ₽ (207400 ₽/м2)
    Эксклюзивное предложение: квартира в центре Екатеринбурга с собственной терассой 50 кв.м. Кухня-гостинная 28 к.м. и две спальни (почти по 10кв.м. каждая). На площадке одна квартира, соседей нет. Квартира новая тоько после чистовой отделки. Всё сделано дорогими качественными материалами. Дом расположен почти на берегу реки Исеть. С терассы шикарный вид с 17го этажа на реку и город. Тихая улица, нет шумных дорог. Закрытая территория двора, охрана. У дома есть подземный паркинг. Возможна ипотека. ID объекта в нашей базе: 25775
    размещено: 18.06.2025 , обновлено: 25.02.2026

    2-к квартира, Малышева, 4/б

    • 79.3 м2
    • 12/17 этаж
    • Состояние: хорошее
    15 900 000 ₽ (200500 ₽/м2)
    Объект № 192011. При быстром выходе на сделку покупателям хороший торг. Двухкомнатная квартира в кирпичном доме в самом центре города. Комнаты правильной формы, большая кухня-столовая, просторный холл, два санузла, две лоджии. Квартира имеет отличные видовые характеристики. Квартира теплая, светлая, с низкими коммунальными платежами. В доме есть подземный паркинг, двор закрыт, видеонаблюдение по всему периметру. В доме очень редко продаются квартиры, хорошие соседи приятным бонусом новым собственникам. В шаговой доступности: гимназия № 2, ТЦ Алатырь, Дворец Молодежи и современный парк, Центральный стадион. Удобные выезды во все направления нашего города. Один собственник, документы готовы к продаже, быстрый выход на сделку. Все подробности можно узнать на просмотре. ***Гарантийный сертификат «Защита собственности» по данному объекту в подарок***
    размещено: 26.05.2025 , обновлено: 20.02.2026

    2-к квартира, Верх-Исетский, 18/а

    • 53.7 м2
    • 4/13 этаж
    14 950 000 ₽ (278400 ₽/м2)
    Объект № 191196. Уникальная локация дома с двумя выходами: в современный парк (реставрация в 2021 году), в тихий двор с детской площадкой. В квартире индивидуальное планировочное решение, продуманный, современный дизайн и мебель. Отличный вариант для семьи с детьми. В квартире остается вся встроенная мебель и бытовая техника. Просторная спальня с рабочим местом, детская комната, кухня-гостиная, гардеробная комната. Высота потолков 3 метра. Сделан качественный ремонт, встроенная мебель и мебель из натурального шпона, качественная сантехника, кондиционер, видеодомофон. На этаже всего 5 квартир. В доме своя газовая котельная, охрана, помещение для хранения велосипедов и колясок, гостевой санузел. Звоните, приглашаем на просмотр. ***Гарантийный сертификат «Защита собственности» по данному объекту в подарок***
    размещено: 09.04.2025 , обновлено: 19.02.2026

    2-к квартира, Юмашева, 15

    • 83 м2
    • 23/25 этаж
    • Состояние: хорошее
    15 220 000 ₽ (183400 ₽/м2)
    Объект № 189041. Предлагаем просторную, светлую 2 ком.квартиру в ЖК бизнес-класса Адмирал. Одна из лучших локаций города- в 5 минутах езды от площади 1905 года. Тихий центр. Также рядом находятся школа и детский сад. Для поддержания здоровья и активного образа жизни в шаговой доступности располагается парк и фитнес-центр, бассейн. Вся инфраструктура в шаговой доступности. Просторная кухня-гостиная с шикарным видом на город, 2 санузла, вместительная гардеробная, просторные комнаты. Квартира очень теплая. На всё установлены индивидуальные приборы учета. Идеально подойдёт тем, кто ценит комфорт и удобство. В квартире остается мебель, кухня. В доме всего один подъезд и 4 скоростных лифта. Круглосуточная охрана. Прекрасная шумоизоляция- соседей вы не услышите, что обеспечит спокойный и тихий отдых. Для семей с детьми особенно важно отметить, что во дворе дома расположены детская и спортивная площадки, где малыши смогут безопасно играть и заниматься спортом. Жители дома могут чувствовать себя в безопасности благодаря наличию консьержа, круглосуточной охране и закрытой территории. Приглашаем на просмотр. ***Гарантийный сертификат «Защита собственности» по данному объекту в подарок***
    размещено: 30.12.2024 , обновлено: 22.01.2026

Новостройки Екатеринбург, мкр-н. ВИЗ

Приоритет

Увеличивает просмотры в 3 раза

Ваше объявление показывается в списке выше обычных объявлений. подключить