На Метре реклама - только нормальная. Никакого шок-контента.
Помогайте независимому ресурсу, как он помогает вам. Удачи!
Новостройки Котт. посёлки Объявления Динамика цен и сделок

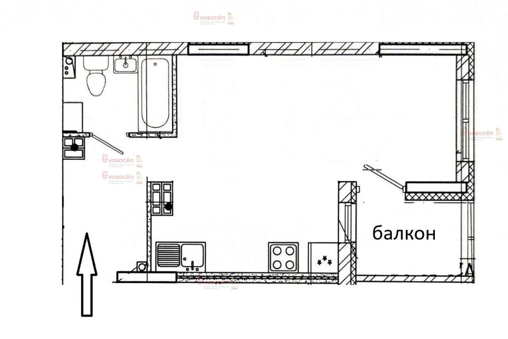
Продажа квартиры: Екатеринбург, ул. Калинина, 59, ЖК "Мир Труд Май" (Дом №4 секция Б) (Уралмаш)

  • опубликовано 31.07.2024 , обновлено 16.10.2025
  • 5
Рынок:строящееся жилье
Количество комнат:2
Общая площадь:59.01 м2
Жилая площадь:25.52 м2
Площадь кухни:25.52 м2
Этаж/Этажность дома:12 / 27
Отделка:Предчистовая
Цена:
8 261 400
Объявление снято с публикации
Объявление снято с публикации

Ипотечный калькулятор

лет
%
Сумма кредита
8261400 ₽
Платеж
22 540 ₽

Актуальные предложения в ЖК Мир Труд Май

  • Студия, Калинина, 59

    • 29 м2
    • 5/17 этаж
    • Состояние:
    4 800 000 ₽ (165500 ₽/м2)
    Объект № 196220. Студия с балконом на среднем этаже в самом сердце Уралмаша в современном малоэтажном ЖК Мир Труд Май. Ликвидный вариант для инвестиции, под сдачу или отличный старт для молодежи. Продажа в связи с расширением. Юридически чистая: без залогов и обременений, один совершеннолетний собственник. Ждем на просмотры. ***Гарантийный сертификат «Защита собственности» по данному объекту в подарок***
    размещено: 08.12.2025 , обновлено: 12.12.2025

История предложений в этом доме

объявление снято с публикации в продаже комнат площадь этаж цена,
Екатеринбург, ул. Калинина, 59 (Уралмаш) - фото квартиры 23 июня 2025 90 дн. 1 37 3/27 5 300 000
Екатеринбург, ул. Калинина, 59 (Уралмаш) - фото квартиры 24 января 2025 90 дн. 2 57.8 5/10 9 500 000
19 ноября 2025 90 дн. 4 91.59 27/27 12 456 240
16 октября 2025 90 дн. 2 59.36 27/27 9 022 720
16 октября 2025 90 дн. 2 63.81 27/27 8 942 333
28 ноября 2025 90 дн. 4 91.62 26/27 12 551 940
16 октября 2025 90 дн. 2 63.76 24/27 8 940 172
16 октября 2025 90 дн. 2 59.36 24/27 9 260 160
15 ноября 2025 90 дн. 2 54.25 23/27 9 385 250
16 октября 2025 90 дн. 2 63.76 23/27 9 245 200
16 октября 2025 90 дн. 2 59.85 23/27 8 678 250
13 ноября 2025 90 дн. 2 59.36 23/27 9 200 800
25 октября 2025 90 дн. 1 37.5 23/27 6 525 000
16 октября 2025 90 дн. 2 54.25 22/27 8 463 000
10 декабря 2025 90 дн. 2 59.85 22/27 9 576 000
13 ноября 2025 90 дн. 2 59.36 22/27 9 141 440
16 октября 2025 90 дн. 1 37.5 22/27 6 525 000
16 октября 2025 90 дн. 2 59.85 21/27 8 498 700
15 ноября 2025 90 дн. 2 63.76 21/27 9 564 000
19 ноября 2025 90 дн. 1 37.57 20/27 7 326 150
1 ноября 2025 90 дн. 2 59.36 20/27 8 666 560
25 октября 2025 90 дн. 2 63.76 20/27 9 181 440
16 октября 2025 90 дн. 1 37.5 20/27 6 337 500
9 ноября 2025 90 дн. 1 37.57 19/27 6 574 750
19 октября 2025 90 дн. 2 63.76 19/27 8 990 160
1 декабря 2025 90 дн. 2 59.85 19/27 8 977 500
16 октября 2025 90 дн. 2 63.76 19/27 8 670 455
16 октября 2025 90 дн. 1 37.5 19/27 6 450 000
16 октября 2025 90 дн. 1 37.43 18/27 6 512 820
19 ноября 2025 90 дн. 2 53.72 18/27 9 132 400

Новостройки Екатеринбург, мкр-н. Уралмаш

Приоритет

Увеличивает просмотры в 3 раза

Ваше объявление показывается в списке выше обычных объявлений. подключить