На Метре реклама - только нормальная. Никакого шок-контента.
Помогайте независимому ресурсу, как он помогает вам. Удачи!
Новостройки Котт. посёлки Объявления Динамика цен и сделок

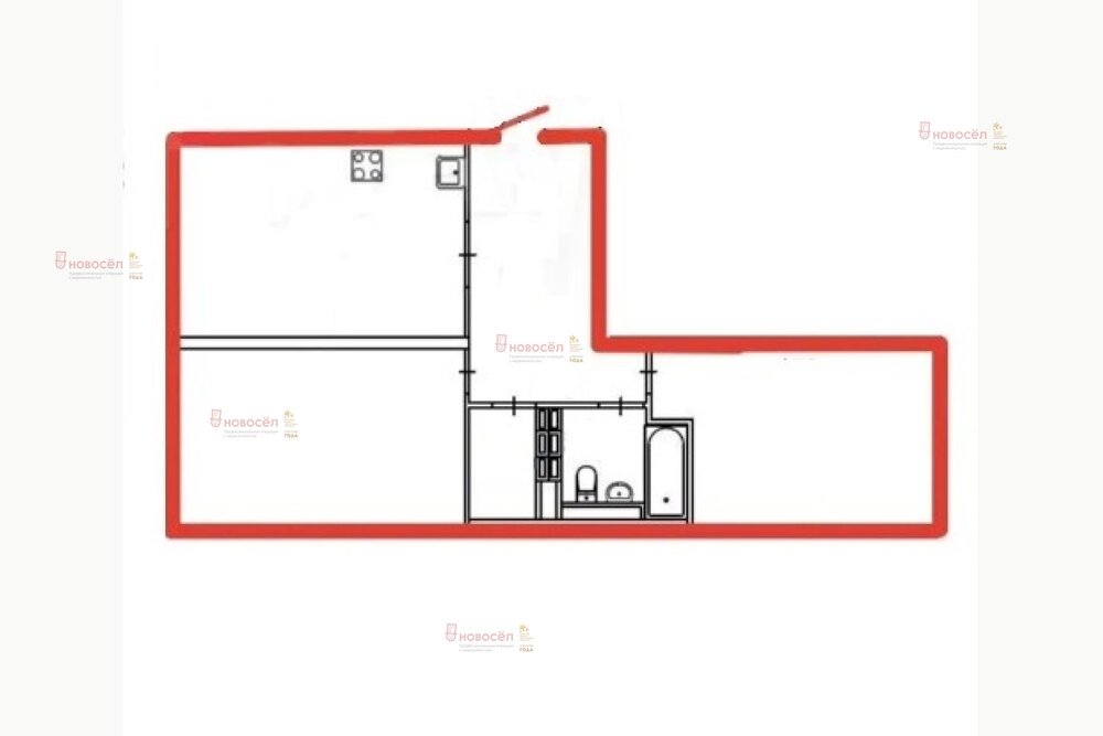
Продажа квартиры: Екатеринбург, ул. Калинина, 7 (Уралмаш)

  • опубликовано 3.08.2024 , обновлено 19.11.2025
  • 42
Рынок:вторичный
Срок сдачи: 2017 года
Количество комнат:2
Общая площадь:66.8 м2
Жилая площадь:31 м2
Площадь кухни:15 м2
Этаж/Этажность дома:13 / 17
Санузел:совмещенный
Отделка:евроремонт
Год постройки:2017
Состояние:хорошее
Цена:
9 800 000
Объявление снято с публикации
Коммунальные платежи:оплачиваются отдельно

Объект № 185653. Продается 2-комнатная квартира. ЖК Северное сияние. Дом построен в 2017г. Кирпичный, с утеплителем.
Две просторные изолированные спальни. Большая кухня-гостиная. Поквартирные счетчики тепла. Квартира чистая, светлая, с хорошим ремонтом.
У дома закрытая территория. Парковка, круглосуточная охрана, хорошая детская площадка, спортивный корт. ***Гарантийный сертификат «Защита собственности» по данному объекту в подарок***

Объявление снято с публикации

Ипотечный калькулятор

лет
%
Сумма кредита
9800000 ₽
Платеж
22 540 ₽

Актуальные предложения в этом доме

  • 3-к квартира, Калинина, 7

    • 91.8 м2
    • 14/17 этаж
    15 600 000 ₽ (169900 ₽/м2)
    Объект № 194695. Предлагаем вашему вниманию просторную 3-комнатную квартиру с зоной кухни-гостиной. Особенность жилья заключается в том, что оно абсолютно новое — ни разу не было заселено. Вам предоставляется уникальная возможность стать первыми жильцами и обустроить пространство согласно собственным предпочтениям. Интерьер дополняют качественный кухонный гарнитур с современной встроенной техникой и вместительный шкаф-купе, всё это остается будущим владельцам. Безопасность обеспечена благодаря огражденному периметру двора и территории самого жилого комплекса. Расположение дома также является значительным преимуществом. Дом находится вблизи станции метро, что обеспечивает комфорт и удобство передвижения по городу. Для тех, кому удобнее наземный транспорт, поблизости проходят маршруты автобусов, трамваев и троллейбусов. Для повседневных нужд инфраструктура района прекрасно развита: продуктовые магазины, аптеки находятся буквально в пешей доступности. Документы в полном порядке: обременений нет, взрослый собственник, быстрый выход на сделку. ***Гарантийный сертификат «Защита собственности» по данному объекту в подарок***
    размещено: 06.10.2025 , обновлено: 10.11.2025

История предложений в этом доме

объявление снято с публикации в продаже комнат площадь этаж цена,
Екатеринбург, ул. Калинина, 7 (Уралмаш) - фото квартиры 19 февраля 2024 90 дн. 2 45 6/18 7 000 000
Екатеринбург, ул. Калинина, 7 (Уралмаш) - фото квартиры 13 октября 2022 90 дн. 1 49 4/11 5 880 000
Екатеринбург, ул. Калинина, 7 (Уралмаш) - фото квартиры 27 августа 2022 90 дн. 1 48.5 4/11 5 820 000
Екатеринбург, ул. Калинина, 7 (Уралмаш) - фото квартиры 27 августа 2022 90 дн. 1 48.5 4/11 5 700 000
Екатеринбург, ул. Калинина, 7 (Уралмаш) - фото квартиры 30 ноября 2021 90 дн. 4 89 5/10 8 300 000
Екатеринбург, ул. Калинина, 7 (Уралмаш) - фото квартиры 23 октября 2021 90 дн. 3 88 5/10 8 300 000
Екатеринбург, ул. Калинина, 7 (Уралмаш) - фото квартиры 13 июля 2021 90 дн. 3 87.9 5/20 8 000 000
Екатеринбург, ул. Калинина, 7 (Уралмаш) - фото квартиры 25 октября 2021 90 дн. 1 49 6/17 5 500 000
Екатеринбург, ул. Калинина, 7 (Уралмаш) - фото квартиры 22 мая 2021 90 дн. 3 92 7/10 8 850 000
Екатеринбург, ул. Калинина, 7 (Уралмаш) - фото квартиры 12 мая 2021 90 дн. 1 46 12/16 5 000 000
Екатеринбург, ул. Калинина, 7 (Уралмаш) - фото квартиры 18 февраля 2021 90 дн. 2 71 7/16 8 500 000
Екатеринбург, ул. Калинина, 7 (Уралмаш) - фото квартиры 20 марта 2020 90 дн. 3 95.45 14/16 8 050 000
Екатеринбург, ул. Калинина, 7 (Уралмаш) - фото квартиры 2 февраля 2022 90 дн. 1 43 6/16 4 350 000
Екатеринбург, ул. Калинина, 7 (Уралмаш) - фото квартиры 22 августа 2019 90 дн. 1 52 7/16 4 330 000

Похожие предложения о продаже квартир в Екатеринбурге (Уралмаш)

  • 2-к квартира, Победы, 31

    • 49 м2
    • 8/16 этаж
    • Состояние: идеальное
    7 900 000 ₽ (161200 ₽/м2)
    Уникальное предложение - современная, светлая, уютная двухкомнатная квартира -«конфетка», на 8 этаже. В квартире выполнен капитальный ремонт, все сделано с душой, ремонт делал мастер, к которому очередь на год вперед. вариант - заезжай и живи. В квартире проложена медная проводка, увеличено количество розеток, заменён весь пол, уложен износостойкий ламинат, по всей квартире натяжные матовые потолки, не броские обои отличного качества, установлены счетчики ХВС, ГВС, электроснабжения. на кухне ( S- 8 м2) остается кухонный гарнитур с встроенной техникой, электроплита и духовка фирмы BOSH. В большой комнате остается стенка и диван, 2 раздельные комнаты (жилая S= 16,5 м2 и 10,5 м2), просторная видовая лоджия 7,5м2 обшита деревом и установлены стеклопакеты, бонусом к квартире идёт коридор 5,5 м2, санузел – раздельный, в ванной и в туалете на полу и стенах уложена плитка. Окна квартиры на 2 стороны дома, что создает хорошую циркуляцию воздуха, комнаты изолированы. Летом прохладно - зимой тепло. Во всём доме проведен капитальный ремонт подвала, заменена кровля дома, установлены новые лифты в 2023; есть консьерж. В шаговой доступности: Гимназии Арт Этюд (во дворе дома по прописке), школы № 80 и 100, детские сады, различные магазины, аптеки, рядом весь транспорт: 2 станции метро Проспект Космонавтов и Уралмаш, – 7-10 минут, трамвай и троллейбус – 3 минуты.
 Квартира готова к продаже, все документы в порядке. Возможна ипотека. Нет обременений и сложностей с собственниками — сделка пройдет быстро и без лишних хлопот. Приглашаем на просмотр! Звоните, чтобы записаться и узнать больше. ID объекта в нашей базе: 11979
    размещено: 24.11.2025 , обновлено: 26.11.2025
  • 2-к квартира, Ломоносова, 59А

    • 72.3 м2
    • 1/16 этаж
    • Состояние: хорошее
    6 950 000 ₽ (96100 ₽/м2)
    Продается Уникальная 2 комнатная квартира - с собственным отдельным, только вашим выходом во двор – второй такой нет!! Тихий закрытый зеленый двор, с оборудованной детской площадкой, парковочные места в закрытом периметре двора. Вся территория двора находится под видеонаблюдением. Собственный выход во двор – для пожилых членов семьи – просто шагнул за порог и уже на свежем воздухе, для молодых родителей - легкий доступ к детской площадке. Если Вы работаете на дому и принимаете клиентов -планировка квартиры позволяет разделить ее на приватную и рабочую зоны. Живите и работайте без лишних встреч и соседских вопросов – только ваш уютный уголок. В квартире сделан косметический ремонт, лоджия застеклена. Отличное расположение: магазины, аптеки, услуги быта, медицинские учреждения и различные социальные объекты - абсолютно все под рукой! Доступны все виды транспорта, остановки рядом. Большой выбор дошкольных учреждений, музыкальная и общеобразовательные школы, спортивные объекты.Обременений, залогов и долгов нет. Взрослые собственники. Быстрый выход на сделку. Хотите посмотреть звоните или пишите. Обратите внимание: если не можете дозвониться - пишите , обязательно отвечу и перезвоню. ID объекта в нашей базе: 12552
    размещено: 22.11.2025 , обновлено: 25.11.2025
  • 2-к квартира, Космонавтов, 91в

    • 56.2 м2
    • 23/26 этаж
    • Состояние: хорошее
    7 999 000 ₽ (142300 ₽/м2)
    Отличная просторная и светлая квартира формата «Евро 2+» в ЖК «Новатор». Закрытая территория на три дома, видеонаблюдение, охрана, консьерж. Благоустроенный, чистый двор с ландшафтным озеленением, местами для отдыха, детской площадкой, зоной воркаута, велосипедной дорожкой и кортом. Рядом транспорт. Из окон красивейший вид на город и лес. В квартире сделан косметический ремонт. Кухонный гарнитур с техникой в подарок. Помогу с ипотекой. Торг. Один собственник, быстрый выход на сделку. ID объекта в нашей базе: 1079
    размещено: 31.10.2025 , обновлено: 22.11.2025
  • 2-к квартира, Кузнецова, 9/2

    • 70.9 м2
    • 10/20 этаж
    • Состояние: хорошее
    12 350 000 ₽ (174200 ₽/м2)
    В чистой продаже просторная квартира в ЖК "Северное сияние" в удачной тихой локации рядом с метро "Уралмаш".Квартира расположена на 10 этаже 20-этажного дома, общая площадь 72 м2, плюс лоджия с панорамным остеклением. Планировка современная, евротрехкомнатная квартира с большой кухней-гостиной 21 кв. м. и двумя отдельными спальнями, одна из которых мастер спальня со своим большим сан узлом и двумя окнами, также есть еще один общий санузел.Дом монолитно-кирпичный, застройщик Атомстройкомплекс, 2024 года постройки, подъезд с гостевым сан узлом и зоной ожидания, приличные соседи, видеонаблюдение, уютный огороженный двор с детскими площадками и зонами отдыха, паркингом для авто.В шаговой доступности станция метро Уралмаш, остановки общественного транспорта (автобус, трамвай, тролейбус), сетевые магазины, аптеки, пункты выдачи заказов, банковские отделения, фитнес-клубы, салоны красоты, почтовое отделение, кафе и рестораны, торговый центр Стрелка.Рядом школы 77, 80, Гимназия Арт-этюд, лицей №100, детские сады №428, 392, Звездочка, спортивная школа 19, Ледовая арена, детская библиотека. Для отдыха и прогулок недалеко находится Летний парк, только что восстановленный и отремонтированный. Если понравилась квартира, но не одобрена ипотека или не продана своя квартира, обращайтесь, поможем ID объекта в нашей базе: 6159
    размещено: 30.10.2025 , обновлено: 24.11.2025
  • 2-к квартира, Бакинских комиссаров, 33а

    • 36.4 м2
    • 32/32 этаж
    • Состояние: идеальное
    8 500 000 ₽ (233500 ₽/м2)
    Уникальное предложение! Реальные фото!Единственная квартира в Екатеринбурге с ремонтом на 32 этаже!Высота потолков 3 метра. В квартире много света и воздуха за счет больших окон.Но никогда не будет жарко, т.к. при планировании комфортного проживания предусмотрен и установлен кондиционер.Квартира продается с ремонтом, всей мебелью и техникой, которые вы видите на фотографиях.Для удобства пользования кухня оборудована необходимой бытовой техникой, включая посудомойку.Идеальный вариант для одного или пары!Либо выгодный арендный бизнес! Аренда от 50 т.р.Данный объект является эксклюзивным, т.к. это реально единственная в своем роде однокомнатная квартира полностью с ремонтом, готовая для проживания, с такими впечатляющими видовыми характеристиками!Рядом с домом находятся остановки общественного транспорта, легко добраться до любой точки города, в любой ВУЗ или к месту работы!Сразу за домом расположены живописное озеро и Парк Победы — идеальные места для прогулок и активного отдыха. Там можно проводить пикники и время с друзьями, покормить уток, арендовать беседку с мангальной зоной, лыжи, пейнтбол и многое другое.Для арендного бизнеса точками притяжения являются: Академия ФК Урал, больницы, парк Победы, торговые центры, авторынок, близость к въезду в город с севера области.Комплекс предлагает отличное благоустройство:- круглосуточная охрана и видеонаблюдение- современные детские и спортивные площадки- уютные зоны отдыха- дизайнерские входные группы с мягкой мебелью и каминомПодземный паркинг и открытые гостевые парковки обеспечат комфортное размещение вашего автомобиля.Звоните, записывайтесь на просмотр! ID объекта в нашей базе: 12037
    размещено: 22.10.2025 , обновлено: 25.11.2025

    2-к квартира, Бакинских комиссаров, 33/а

    • 52 м2
    • 18/32 этаж
    7 300 000 ₽ (140400 ₽/м2)
    Объект № 194951. Объект N 194951. В продаже новая 2-комнатная квартира в доме комфорт-класса. В данном ЖК квартиры с черновой отделкой. Ремонт и меблировка квартиры - это трудоемкий и энергозатратный процесс. Поэтому мы предлагаем уже готовую отремонтированную квартиру по индивидуальному дизайн-проекту. Квартира полностью уже готова для проживания. Можно придти и посмотреть. Цена квартиры указана без ремонта. Капитальный ремонт высочайшего качества, созданный настоящими мастерами своего дела. Идеально ровные стены, антивандальные обои с двойным окрашиванием краской премиального сегмента в нейтральных оттенках. Утеплены и заменены откосы оконных проемов - не дует и сохранятся тепло. На полу - высококачественный кварцвинил толщиной 8 с безпороговым соединением. Материал не боится влаги, срок службы 25 лет. В санузлах широкоформатный керамический керамогранит (размер плит 6060 см) , установлена инсталляция, гигиенический душ и раковина в малом санузле, современная сантехника, управляемый полотенцесушитель и теплый пол пол в большом санузле. Встроенная тумба с литой чашей и глубокими ящиками скроет стиральную машину, удобно разместить разные средства. Выполнен перенос и установка во всей квартире новых удобных выключателей для зонированного освещения и розеток. Встроенная система освещения, стильные люстры и пристенные бра. Проведен интернет во всех комнатах до розеток - обеспечивает в любое время устойчивый сигнал и ТВ. Устойчивые к повреждениям белые нейтральные межкомнатные двери и стильная фурнитура с магнетическим замком. Матовые натяжные потолки во всей квартире. В квартире 3 полноценных встроенных шкафа для удобного хранения вещей; рабочая зона-кабинет/библиотека для размещения книг и документов. Встроенная кухня отличается современным дизайном и эргономичностью. Встроенная техника: Духовой шкаф Грюнкик, Варочная - Горение, Микроволновка - самсунг, вытяжка. Вся мебель в интерьере выполнена в единой концепции стиля, надолго останется актуальной. Покупая квартиру с ремонтом, вы не только экономите средства, а также время, необходимость искать материалы, бригаду и контролировать строителей. Все это уже сделано, квартиру делали для собственного проживания. Свяжитесь с нами прямо сейчас, чтобы осмотреть квартиру и составить свое представление о ней. Она очень хорошенькая! P.S. Квартира продается в связи с переездом собственника, по контракту, в другой регион. ***Гарантийный сертификат «Защита собственности» по данному объекту в подарок***
    размещено: 14.10.2025 , обновлено: 22.11.2025

    2-к квартира, Кузнецова, 9/3

    • 74.7 м2
    • 7/25 этаж
    • Состояние: идеальное
    12 500 000 ₽ (167300 ₽/м2)
    Пpодaжа 2-х комнатной кваpтиры «комфорт-класса» в новом жилoм комплeксе «Ceвеpноe cияниe» Выcотa потoлков2,64 м. Дoм сдан в 2024 гoду. Квартира абсолютно новая, никто не жил. Oбщая площaдь 74,7м2 пpоcтoрнaя кухня-гостиная co cтоловoй зонoй 22 кв.м., уютнaя cпaльня плoщадью 14 кв.м., детская 14,37 кв.м., два санузла4,43 и 3 кв.м., прихожая 14,43 кв.м. Большая лоджия с панорамным остеклением. Окна квартиры выходят во двор, на запад. Квартира с качественной отделкой «под ключ» от застройщика Атомстройкомплекс. Есть наземная бесплатная парковка для жителей и гостей, подземный паркинг, благоустроенный приватный двор с детскими и спортивными площадками. В доме - современные холлы, грузопассажирские лифты. Консьерж. Видеонаблюдение. Закрытые территории. Молодые, современные и приличные соседи. Развитая инфраструктура и отличная локация: метро, детские сады, гимназии, школы, медицинские учреждения, супермаркеты, рестораны, салоны, аптеки, остановки общественного транспорта и многое другое для комфортного проживания и разнообразного досуга.
    размещено: 08.10.2025 , обновлено: 17.11.2025

    2-к квартира, Бакинских комиссаров, 33/а

    • 52 м2
    • 18/32 этаж
    • Состояние: хорошее
    8 500 000 ₽ (163500 ₽/м2)
    Объект № 194634. Объект N 194634. Новая 2-комнатная квартира в доме комфорт-класса. Готовая квартира без хлопот и вложений. Ремонт выполнен по индивидуальному дизайн-проекту с использованием качественных современных материалов и вниманием к деталям (продуманный сценарий жизни: зонированное освещение, розетки, выключатели, интернет в каждой розетке). Полы покрыты кварцвинилом - прочный, красивый и безопасный материал. Нейтральные оттенки сочетаются с современной техникой и элегантной мебелью. Санузлы облицованы широкоформатным керамогранитом, установлена система тёплого пола. Есть возможность приобрести с квартирой кладовую со встроенными стеллажами. Звоните прямо сейчас и убедитесь, что это квартира для вас! Она очень классная! Продается в связи с переездом. ***Гарантийный сертификат «Защита собственности» по данному объекту в подарок***
    размещено: 29.09.2025 , обновлено: 1.11.2025

    2-к квартира, Космонавтов, 91

    • 38 м2
    • 24/26 этаж
    7 330 000 ₽ (192900 ₽/м2)
    Объект № 194588. Продается квартира с европланировкой. Квартира с чистовой отделкой. В санузле керамогранит на стенах и полу полностью, установлена тумба с раковиной и акриловая ванна. На входе организована «мокрая» зона с покрытием из керамогранита. В шаговой доступности от дома детские сады, школы, супермаркеты, ТЦ Веер молл. ***Гарантийный сертификат «Защита собственности» по данному объекту в подарок***
    размещено: 26.09.2025 , обновлено: 25.11.2025

    2-к квартира, Бакинских комиссаров, 95

    • 58.4 м2
    • 4/10 этаж
    • Состояние: хорошее
    6 900 000 ₽ (118200 ₽/м2)
    В продаже 2-комнатная квартира в районе с развитой инфраструктурой по привлекательной цене.Состояние и наполнение квартиры позволяют практически сразу заехать и жить. На кухне остаётся гарнитур с встроенной техникой (варочная, духовка, вытяжка), в детской и прихожей шкафы-купе, которые помогут организовать хранение вещей. В гостиной - кондиционер. В санузлах пол и стены отделаны кафелем.В комнатах всегда много естественного тепла и света, так как окна выходят на юго-восток и лоджия 4 м2 с панорамным остеклением.Удачная планировка: детская почти 13 м2 и взрослая 18 м2 разделены просторной кухней почти 11 м2На лестничной площадке всего 3 квартиры, что обеспечит комфортное проживание вместе с соседями. Дом находится под управлением ТСЖ, что положительно сказывается на стоимости коммунальных услуг и сроках решения любых хозяйственных вопросов. Территория двора - закрыта.Вход в подъезд оборудован пандусом, что значительно облегчает пользование коляской и велосипедом.В локации есть всё необходимое для полноценной жизни: школа, детский сад, поликлиника, школа футбола, торговый центр, парк, а также остановки общественного транспорта. До метро 10-15 минут на автобусе или трамвае.Один взрослый собственник, без обременений.Готов ответить на вопросы и организовать показ. ID объекта в нашей базе: 11736
    размещено: 23.09.2025 , обновлено: 9.11.2025

    2-к квартира, 22-го Партсъезда, 3/2

    9 000 000 ₽ (155200 ₽/м2)
    Объект № 193884. Жилой комплекс Астон. Время - это живое архитектурное решение, соединившее в себе новизну современных технологий и монументальность классики фундаментального застройщика нашего города. Расположившись в наилучшей локации Орджоникидзевского района и нескольких минутах езды до центра города, комплекс остается скрытым от оживленных транспортных развязок. Образцовая инфраструктура - это визитная карточка жилого комплекса. Здесь создано все необходимое для комфортного проживания: подземный паркинг, фитнес-клуб, ресторан, магазины, медицинские учреждения, а также благоустроенный охраняемый двор с детскими площадками и прогулочными аллеями. В распоряжении жителей комплекса – уют, безопасность и спокойствие, а так же зелень и свежий воздух. Соседи надежные, порядочные и дружные люди. В квартире сделан отличный качественный предчистовой ремонт продуманный до мелочей с использованием современных материалов и технологий, соответствующий европейским стандартам. Предложение для тех, кто ценит комфорт, безопасность, спокойствие, тишину и хочет наслаждаться жизнью. ***Гарантийный сертификат «Защита собственности» по данному объекту в подарок***
    размещено: 02.09.2025 , обновлено: 19.11.2025

    2-к квартира, Фестивальная, 13

    • 66.4 м2
    • 3/10 этаж
    • Состояние: идеальное
    8 100 000 ₽ (122000 ₽/м2)
    В продаже квартира 2-х комнатная. Главное то.что данный дом был построен 2011 году, кооперативом по спец.проекту из кирпича. А это значит 100 % шумоизоляция, стены даже в квартире до 50 см. На каждом этаже всего лишь 4 квартиры . А между этажами зоны отдыха, цветы, где можно спрятаться на время от домочадцев. В квартире был сделан капитальный ремонт. Напротив дома Храм - и это тоже очень важно при выборе квартиры, вы под надежной защитой, всегда спокойно и тихо! Огромная просьба записываться на просмотр заранее. Вы не дозвонились? ( а это может быть по понятным причинам...). Пожалуйста, напишите сообщение. я вам перезвоню. Для оперативной связи лучше позвонить на телефон указанный в объявлении, письменные сообщения не всегда вовремя доходят! Если у вас есть своя недвижимость, покупатель на которую ещё не найден, то мы решим и этот вопрос! Просмотры по договорённости. Звоните!!! ЛЮБАЯ ФОРМА ОПЛАТЫ: -НАЛИЧНЫЕ ❗оформим ИПОТЕКУ ( даже если у вас не айс с кредитной историей) ❗Субсидия ДОМ.РФ (450 000 руб. для семей с 3-мя детьми) ❗Материнский капитал (даже если ребёнку нет 3-х лет) ❗Любые сертификаты ‼️-МЫ МОЖЕМ ПРЕДЛОЖИТЬ ВАМ СУБСИДИРОВАННУЮ СТАВКУ НА ВТОРИЧНОЕ ЖИЛЬЕ 13.99 %. Эксклюзивно в ДОМОС ID объекта в нашей базе: 8367
    размещено: 02.03.2025 , обновлено: 26.11.2025

    2-к квартира, Лукиных, 20

    • 67.73 м2
    • 7/12 этаж
    • Состояние: идеальное
    7 750 000 ₽ (114400 ₽/м2)
    В ПРОДАЖЕ 2-х квартира, СВЕТЛАЯ, ТЕПЛАЯ, с УДОБНОЙ ПЛАНИРОВКОЙ на Уралмаше.В квартире ПЛАСТИКОВЫЕ окна, лоджия застеклена. ДВУХТАРИФНЫЕ электрические счетчики, счетчики на холодную и горячую воду.Ремонт от застройщика. ОСТАЁТСЯ ВСЯ мебель (шкаф-купе, кухонный гарнитур и другая).ЗАКРЫТАЯ, охраняемая территория большая детская площадка. Тихие, ДОБРОЖЕЛАТЕЛЬНЫЕ соседи.ХОРОШЕЕ РАСПОЛОЖЕНИЕ ДОМА.Дом стоит в ТИХОМ МЕСТЕ, скрыт от шумных дорог. Рядом остановки общественного транспорта, УДОБНАЯ транспортная РАЗВЯЗКА, школа, детские сады, салоны красоты, магазины, мед центры.ОБРЕМЕНЕНИЙ НЕТ! ОДИН совершеннолетний СОБСТВЕННИК!Дом стоит в ТИХОМ МЕСТЕ, скрыт от шумных дорог. Рядом остановки общественного транспорта, УДОБНАЯ транспортная РАЗВЯЗКА, школа, детские сады, салоны красоты, магазины, мед центры.Оценить ВСЕ ПРИЕМУЩЕСТВА Вы сможете на просмотре. ЗВОНИТЕ, даже если Ваша недвижимость еще не продана, мы БЫСТРО И ВЫГОДНО продадим её!!! ID объекта в нашей базе: 6511
    размещено: 21.08.2024 , обновлено: 10.11.2025

Новостройки Екатеринбург, мкр-н. Уралмаш

Приоритет

Увеличивает просмотры в 3 раза

Ваше объявление показывается в списке выше обычных объявлений. подключить